3130 Woodroffe (D07-12-22-0055)

3130 Woodroffe (D07-12-22-0055) #

Summary #

Application StatusPost Approval
Review StatusRequest for Agreement Received
DescriptionTo build a new dental clinic on the subject lands and to also build 2 pairs of semi-detached residential units on the property (4 residential units in total). Note that a site plan agreement has been issued (but not executed) for these lands for a dental clinic and tenant office space. The plans are to be modifiied with a new servicing within the Woodroffe Right of Way and those drawings are beining included in this site plan submission. 3112 Woodroffe, 3130 Woodroffe (future dentist and semis), 3150 Woodroffe, 3162 Woodroffe/15 Deerfox
WardWard 24 - Wilson Lo
Date Initiated2022-04-04
Last Updated2023-04-27

Renders #

  • Rendering of building from page 9 of the file '2022-04-04 - Design Brief - D07-12-22-0055'
  • Rendering of building from page 1 of the file '2022-04-04 - Design Brief - D07-12-22-0055'
  • Rendering of building from page 8 of the file '2022-04-04 - Design Brief - D07-12-22-0055'
  • Rendering of building from page 8 of the file '2022-04-04 - Design Brief - D07-12-22-0055'
  • Rendering of building from page 1 of the file '2022-04-04 - View Renderings - D07-12-22-0055'
  • Rendering of building from page 10 of the file '2022-04-04 - Design Brief - D07-12-22-0055'
  • Rendering of building from page 13 of the file '2022-04-04 - Design Brief - D07-12-22-0055'
  • Rendering of building from page 1 of the file '2022-04-04 - Rendering - D07-12-22-0055'
  • Rendering of building from page 13 of the file '2022-04-04 - Design Brief - D07-12-22-0055'
  • Rendering of building from page 12 of the file '2022-04-04 - Design Brief - D07-12-22-0055'
  • Rendering of building from page 1 of the file '2022-04-04 - Front View (2) - D07-12-22-0055'
  • Rendering of building from page 1 of the file '2022-04-04 - Front View - D07-12-22-0055'
  • Rendering of building from page 10 of the file '2022-04-04 - Design Brief - D07-12-22-0055'
  • Rendering of building from page 13 of the file '2022-04-04 - Design Brief - D07-12-22-0055'
  • Rendering of building from page 1 of the file '2022-04-04 - Rendering (2) - D07-12-22-0055'
  • Rendering of building from page 26 of the file '2022-04-04 - Design Brief - D07-12-22-0055'
  • Rendering of building from page 9 of the file '2022-04-04 - Design Brief - D07-12-22-0055'
  • Rendering of building from page 1 of the file '2022-04-04 - Design Brief - D07-12-22-0055'
  • Rendering of building from page 8 of the file '2022-04-04 - Design Brief - D07-12-22-0055'
  • Rendering of building from page 8 of the file '2022-04-04 - Design Brief - D07-12-22-0055'
  • Rendering of building from page 1 of the file '2022-04-04 - View Renderings - D07-12-22-0055'
  • Rendering of building from page 10 of the file '2022-04-04 - Design Brief - D07-12-22-0055'
  • Rendering of building from page 13 of the file '2022-04-04 - Design Brief - D07-12-22-0055'
  • Rendering of building from page 1 of the file '2022-04-04 - Rendering - D07-12-22-0055'
  • Rendering of building from page 13 of the file '2022-04-04 - Design Brief - D07-12-22-0055'
  • Rendering of building from page 12 of the file '2022-04-04 - Design Brief - D07-12-22-0055'
  • Rendering of building from page 1 of the file '2022-04-04 - Front View (2) - D07-12-22-0055'
  • Rendering of building from page 1 of the file '2022-04-04 - Front View - D07-12-22-0055'
  • Rendering of building from page 10 of the file '2022-04-04 - Design Brief - D07-12-22-0055'
  • Rendering of building from page 13 of the file '2022-04-04 - Design Brief - D07-12-22-0055'
  • Rendering of building from page 1 of the file '2022-04-04 - Rendering (2) - D07-12-22-0055'
  • Rendering of building from page 26 of the file '2022-04-04 - Design Brief - D07-12-22-0055'

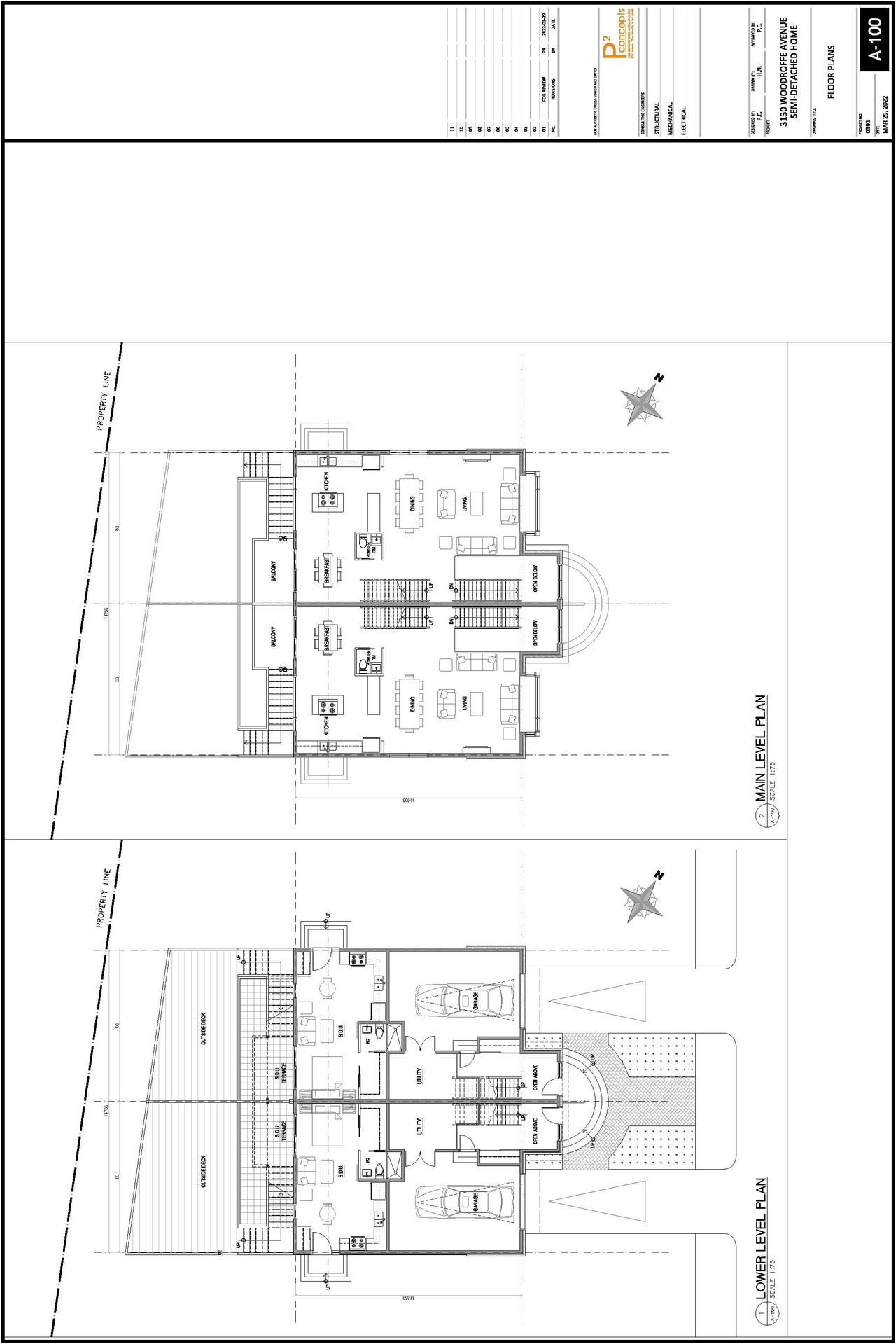
Site and Floor Plans #

  • Construction site plan for project from page 11 of the file '2022-04-04 - Design Brief - D07-12-22-0055'
  • Floor plan for project from page 22 of the file '2022-04-04 - Design Brief - D07-12-22-0055'
  • Construction site plan for project from page 11 of the file '2022-04-04 - Design Brief - D07-12-22-0055'
  • Floor plan for project from page 22 of the file '2022-04-04 - Design Brief - D07-12-22-0055'

Documents #

TypeDocument
Application Summary2022-04-19 - Application Summary - D07-12-22-0055
Architectural Plans2023-05-08 - Approved Site Plan - D07-12-22-0055
Architectural Plans2023-05-08 - Approved Sanitary Drainage Plan - D07-12-22-0055
Architectural Plans2023-05-08 - Approved Plan & Profile 4 - D07-12-22-0055
Architectural Plans2023-05-08 - Approved Plan & Profile 3 - D07-12-22-0055
Architectural Plans2023-05-08 - Approved Plan & Profile 2 - D07-12-22-0055
Architectural Plans2023-05-08 - Approved Plan & Profile 1 - D07-12-22-0055
Architectural Plans2023-05-08 - Approved Plan - D07-12-22-0055
Architectural Plans2023-05-08 - Approved Notes & Details 2 - D07-12-22-0055
Architectural Plans2023-05-08 - Approved Notes & Details 1 - D07-12-22-0055
Architectural Plans2023-05-08 - Approved East & West Building Elevations - D07-12-22-0055
Architectural Plans2023-05-08 - Approved Buildings Elevations - D07-12-22-0055
Architectural Plans2023-05-08 - Approved Asphalt Reinstatement & Overlay Plan - D07-12-22-0055
Architectural Plans2022-04-04 - West Elevation - D07-12-22-0055
Architectural Plans2022-04-04 - Site Plan - D07-12-22-0055
Architectural Plans2022-04-04 - Sanitary Extension Plan C-1 - D07-12-22-0055
Architectural Plans2022-04-04 - Sanitary Drainage Plan C-9 - D07-12-22-0055
Architectural Plans2022-04-04 - Plan & Profile C-7 - D07-12-22-0055
Architectural Plans2022-04-04 - Plan & Profile C-6 - D07-12-22-0055
Architectural Plans2022-04-04 - Plan & Profile C-5 - D07-12-22-0055
Architectural Plans2022-04-04 - Plan & Profile C-4 - D07-12-22-0055
Architectural Plans2022-04-04 - Plan & Profile C-3 - D07-12-22-0055
Architectural Plans2022-04-04 - Plan & Profile C-2 - D07-12-22-0055
Architectural Plans2022-04-04 - Notes and Details - D07-12-22-0055
Architectural Plans2022-04-04 - North and South Elevations - D07-12-22-0055
Architectural Plans2022-04-04 - Front Elevations both buildings - D07-12-22-0055
Design Brief2022-04-04 - Design Brief - D07-12-22-0055
Environmental2022-04-04 - Phase I Environmental Site Assessment - D07-12-22-0055
Erosion And Sediment Control Plan2023-05-08 - Approved Erosion & Sediment Control Plan - D07-12-22-0055
Erosion And Sediment Control Plan2022-04-04 - Erosion and Sediment Control Plan & Drainage Plan - D07-12-22-0055
Existing Conditions2023-05-08 - Approved Existing Conditions & Retaining Wall Plan - D07-12-22-0055
Floor Plan2022-04-04 - floor plans and elevations - D07-12-22-0055
Geotechnical Report2023-05-08 - Approved Grading Plan - D07-12-22-0055
Geotechnical Report2022-04-04 - Grading Plan and Retaining Wall Plan - D07-12-22-0055
Geotechnical Report2022-04-04 - Geotechnical Investigation - D07-12-22-0055
Noise Study2023-05-08 - Final Noise Attenuation Study - D07-12-22-0055
Notification2024-05-23 - Letter - Commence Work Notification - D07-12-22-0055
Planning2022-04-04 - Planning Rationale - D07-12-22-0055
Rendering2022-04-04 - View Renderings - D07-12-22-0055
Rendering2022-04-04 - Rendering (2) - D07-12-22-0055
Rendering2022-04-04 - Rendering - D07-12-22-0055
Rendering2022-04-04 - Front View (2) - D07-12-22-0055
Rendering2022-04-04 - Front View - D07-12-22-0055
Site Servicing2023-05-08 - Approved Site Servicing Plan - D07-12-22-0055
Site Servicing2023-05-08 - Approved Site Servicing Detail - D07-12-22-0055
Site Servicing2022-04-04 - Site Servicing Study & Stormwater Management Report - D07-12-22-0055
Site Servicing2022-04-04 - Site Servicing Plan - D07-12-22-0055
Stormwater Management2023-05-08 - Final Site Servicing Study & Stormwater Management Report - D07-12-22-0055
Stormwater Management2023-05-08 - Final Servicing Study & Stormwater Management Report - D07-12-22-0055
Surveying2023-05-08 - Final Designated Substances Survey - D07-12-22-0055
Surveying2022-04-04 - Topographic Boundary Survey - D07-12-22-0055
Surveying2022-04-04 - Designated Substances Survey - D07-12-22-0055
Tree Information and Conservation2023-05-08 - Approved Tree Conservation Report - D07-12-22-0055
2023-05-08 - Signed Delegated Authority Report - D07-12-22-0055
2023-05-08 - Final Traffic Report - D07-12-22-0055
2023-05-08 - Final Servicing Study - D07-12-22-0055
2023-05-08 - Final Phase I Environmental Site Assessment Update - D07-12-22-0055
2023-05-08 - Final Phase I Environmental Site Assessment - D07-12-22-0055
2023-05-08 - Final Geotechnical Investigation - D07-12-22-0055
2023-05-08 - Approved Notes - D07-12-22-0055
2023-05-08 - Approved Details & Schedules - D07-12-22-0055
2022-04-04 - Screening and Scoping Report - D07-12-22-0055
2022-04-04 - Sanitary Sewer Extension Servicing Study - D07-12-22-0055
2022-04-04 - Notes & Schedules C-8 - D07-12-22-0055
2022-04-04 - Details and Schedules - D07-12-22-0055