1498 Stittsville Main (D07-12-22-0035)

1498 Stittsville Main (D07-12-22-0035) #

Summary #

Application StatusFile Pending
Review StatusApplication File Pending
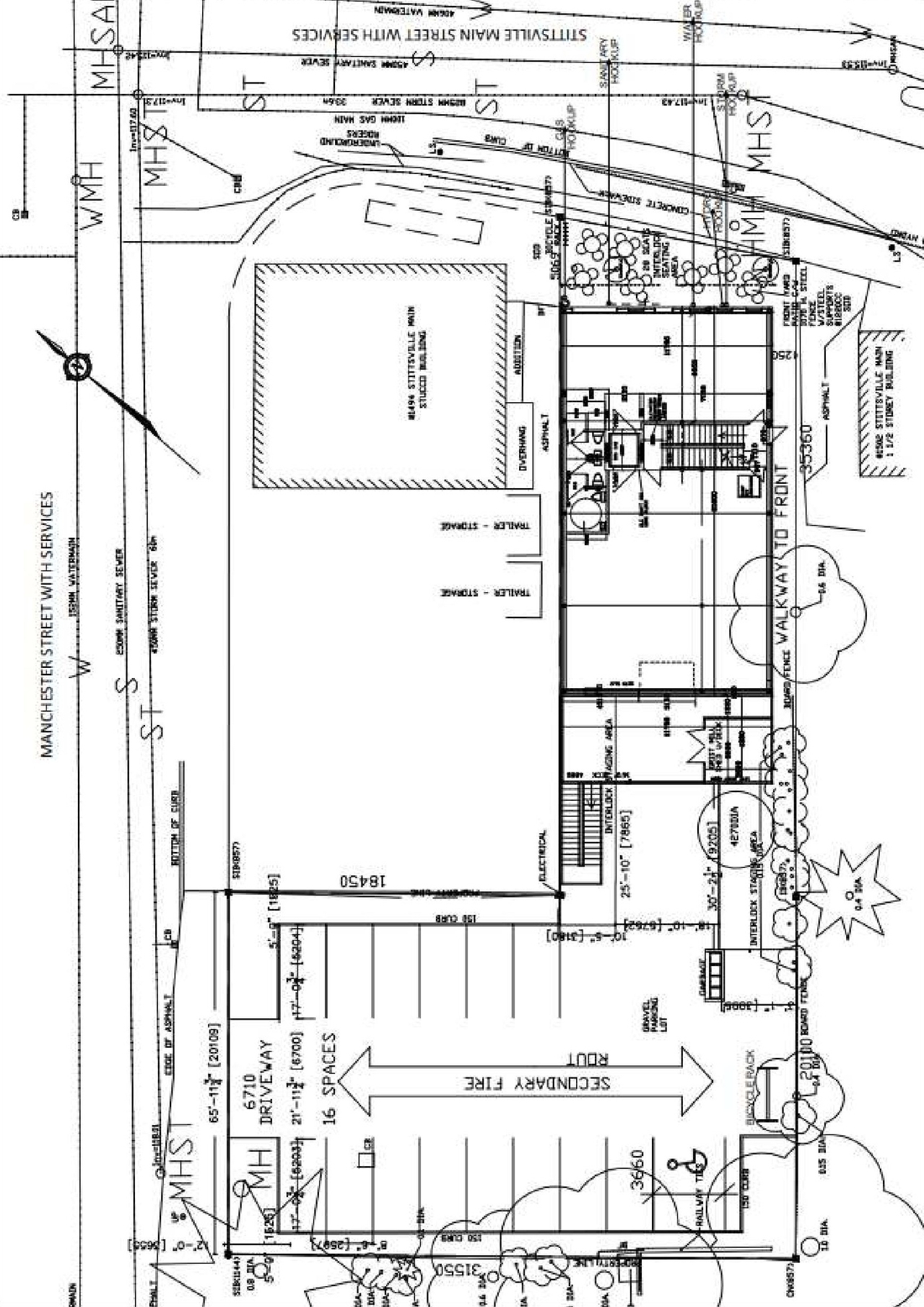
DescriptionExisting building is damaged, will be replaced by a new 2-storey non combustible building, building area 509m2, wil be used as a micro distillery with retail space at the front.
WardWard 6 - Glen Gower
Date Initiated2022-03-03
Last Updated2024-02-22

Renders #

  • Rendering of building from page 7 of the file '2022-12-17 - Design Brief - D07-12-22-0035'
  • Rendering of building from page 6 of the file '2022-12-17 - Design Brief - D07-12-22-0035'
  • Rendering of building from page 7 of the file '2022-12-17 - Design Brief - D07-12-22-0035'
  • Rendering of building from page 6 of the file '2022-12-17 - Design Brief - D07-12-22-0035'

Files #

TypeNameLinks
Application Summary2022-03-07 - Application Summary - D07-12-22-0035Download PDF
Architectural Plans2022-11-18 - Site Plan - D07-12-22-0035Download PDF
Architectural Plans2022-11-18 - Elevations - D07-12-22-0035Download PDF
Architectural Plans2022-10-26 - Site Plan - D07-12-22-0035Download PDF
Architectural Plans2022-10-26 - Section Plan - D07-12-22-0035 (2)Download PDF
Architectural Plans2022-10-26 - Section Plan - D07-12-22-0035Download PDF
Architectural Plans2022-10-26 - North & West Elevations - D07-12-22-0035Download PDF
Architectural Plans2022-10-26 - North & West Elevation Plan - D07-12-22-0035Download PDF
Architectural Plans2022-10-26 - Ground Floor Equipment Plan - D07-12-22-0035Download PDF
Architectural Plans2022-10-26 - Basement Foundation Plan - D07-12-22-0035Download PDF
Architectural Plans2022-03-03 - Site Plan - D07-12-22-0035Download PDF
Architectural Plans2022-03-03 - Second Floor Equipment Plan - D07-12-22-0035Download PDF
Architectural Plans2022-03-03 - North & West Elevation Plan (2) - D07-12-22-0035Download PDF
Architectural Plans2022-03-03 - North & West Elevation Plan - D07-12-22-0035Download PDF
Architectural Plans2022-03-03 - Ground Floor Equipment Plan - D07-12-22-0035Download PDF
Architectural Plans2022-03-03 - Basement Partition Plan - D07-12-22-0035Download PDF
Architectural Plans2022-03-03 - Basement Equipment Plan - D07-12-22-0035Download PDF
Design Brief2022-12-17 - Design Brief - D07-12-22-0035Download PDF
Design Brief2022-03-03 - Design Brief - D07-12-22-0035Download PDF
Drainage Plan2022-10-26 - Drainage Plan - D07-12-22-0035Download PDF
Drainage Plan2022-03-03 - Drainage Plan - D07-12-22-0035Download PDF
Environmental2022-03-31 - Phase I Environmental Site Assessment - D07-12-22-0035Download PDF
Environmental2022-03-03 - Phase II Environmental Site Assessment - D07-12-22-0035Download PDF
Environmental2022-03-03 - Phase I Environmental Site Assessment - D07-12-22-0035Download PDF
Erosion And Sediment Control Plan2022-10-26 - Erosion & Sediment Control Plan - D07-12-22-0035Download PDF
Erosion And Sediment Control Plan2022-03-03 - Erosion & Sediment Control Plan - D07-12-22-0035Download PDF
Existing Conditions2022-10-26 - Existing Conditions & Removals Plan - D07-12-22-0035Download PDF
Existing Conditions2022-03-03 - Existing Conditions & Removals - D07-12-22-0035Download PDF
Floor Plan2022-10-26 - Second Floor Plan - D07-12-22-0035Download PDF
Geotechnical Report2022-10-26 - Grading Plan - D07-12-22-0035Download PDF
Geotechnical Report2022-10-26 - Geotechnical Report - D07-12-22-0035Download PDF
Geotechnical Report2022-03-03 - Grading Plan - D07-12-22-0035Download PDF
Noise Study2022-03-03 - Noise - D07-12-22-0035Download PDF
Planning2022-10-26 - Zoning Chart - D07-12-22-0035Download PDF
Site Servicing2022-10-26 - Site Servicing Plan - D07-12-22-0035Download PDF
Site Servicing2022-10-26 - SERVICING BRIEF & Stormwater Management Report - D07-12-22-0035Download PDF
Site Servicing2022-03-15 - Servicing Brief & Stormwater Management Report - D07-12-22-0035Download PDF
Site Servicing2022-03-03 - Site Servicing Plan - D07-12-22-0035Download PDF
Surveying2022-10-26 - Topographic Plan - D07-12-22-0035Download PDF
Surveying2022-03-14 - Land Survey - D07-12-22-0035Download PDF
Tree Information and Conservation2022-10-27 - TREE CONSERVATION REPORT - D07-12-22-0035Download PDF
2022-10-26 - NUMBER SEQUENCE BOTTOM - D07-12-22-0035Download PDF
2022-10-26 - Notes - D07-12-22-0035Download PDF
2022-10-26 - FLOW CONTROL ROOF DRAINAGE DECLARATION - D07-12-22-0035Download PDF
2022-10-26 - Fixture Counts Calculator - D07-12-22-0035Download PDF
2022-10-26 - Details & Schedules - D07-12-22-0035Download PDF
2022-03-03 - Section Drawing - D07-12-22-0035Download PDF
2022-03-03 - Memo Geotechnical Assessment - D07-12-22-0035Download PDF
2022-03-03 - Details & Schedules - D07-12-22-0035Download PDF