36-40 Jamie Ave. (D07-12-22-0031)

36-40 Jamie Ave. (D07-12-22-0031) #

Summary #

Application StatusFile Pending
Review StatusApplication File Pending
Descriptionan addition that will connect the two existing buildings. two commercial-industrial buildings used for automotive body repair
WardWard 9 - Sean Devine
Date Initiated2022-02-28
Last Updated2023-11-08

Location #

Select a marker to view the address.

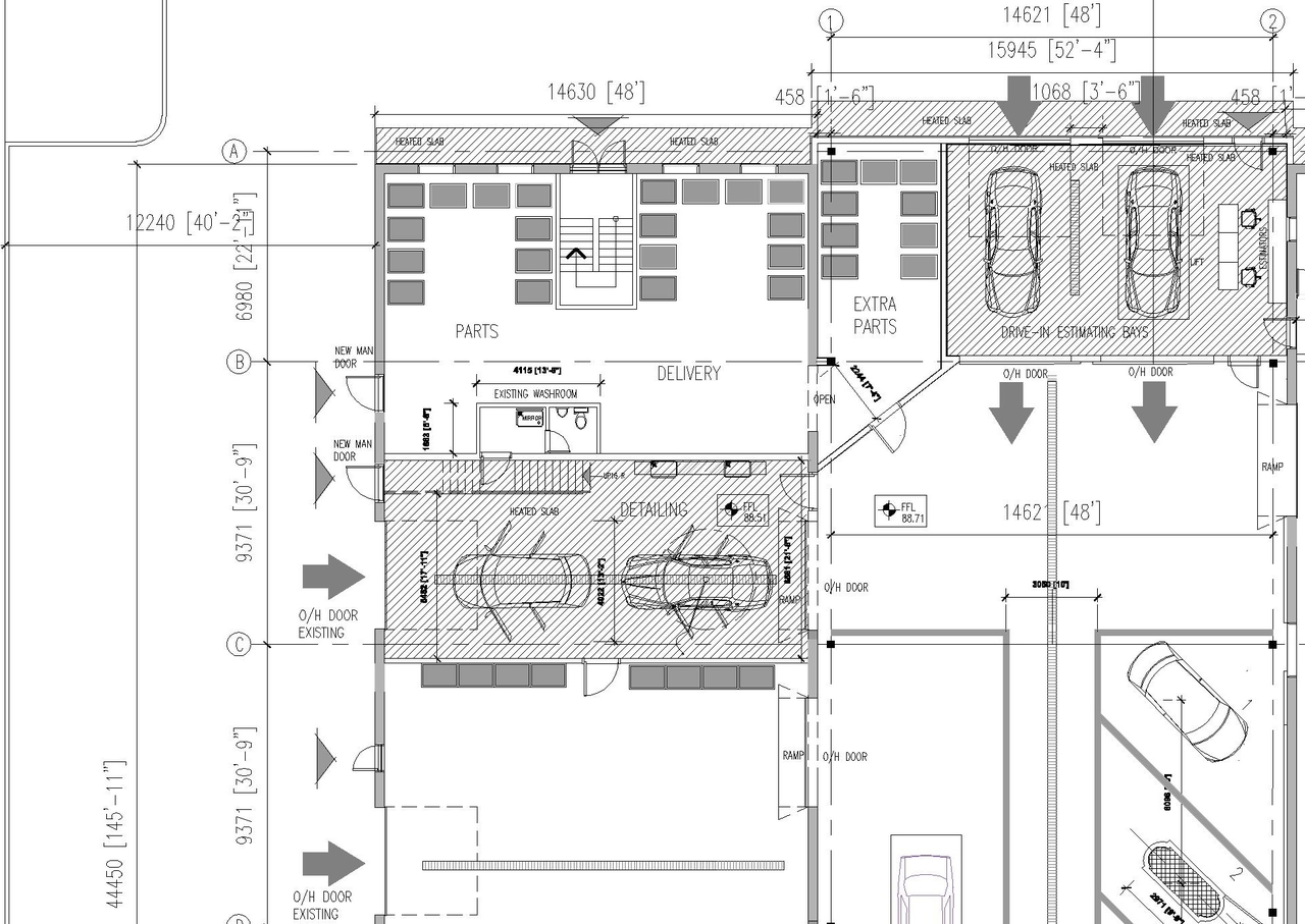
Site and Floor Plans #

  • Floor plan for project from page 1 of the file '2023-03-13 - Ground Floor Plan - D07-12-22-0031'
  • Floor plan for project from page 1 of the file '2023-03-13 - Ground Floor Plan - D07-12-22-0031'

Documents #

TypeDocument
Application Summary2022-03-15 - Application Summary - D07-12-22-0031
Architectural Plans2023-08-22 - Site Plan - D07-12-22-0031
Architectural Plans2023-06-07 - Site Plan - D07-12-22-0031
Architectural Plans2023-06-07 - Sanitary Drainage Area Plan - D07-12-22-0031
Architectural Plans2023-06-07 - Notes and Legend Plan - D07-12-22-0031
Architectural Plans2023-03-13 - Site Plan - D07-12-22-0031
Architectural Plans2023-03-13 - Sanitary Drainage Area Plan - D07-12-22-0031
Architectural Plans2023-03-13 - Notes & Legends Plan - D07-12-22-0031
Architectural Plans2023-03-13 - North Elevation Plan - D07-12-22-0031
Architectural Plans2022-03-14 - Site Plan - D07-12-22-0031
Architectural Plans2022-03-14 - Sanitary Drainage Area Plan - D07-12-22-0031
Architectural Plans2022-03-14 - Notes and Legend Plan - D07-12-22-0031
Architectural Plans2022-03-14 - Elevations - D07-12-22-0031
Civil Engineering Report2023-08-22 - Civil Drawings - D07-12-22-0031
Environmental2022-03-14 - Phase 2 Environmental Site Assessment - D07-12-22-0031
Environmental2022-03-14 - Phase 1 Environmental Site Assessment - D07-12-22-0031
Erosion And Sediment Control Plan2023-06-07 - Erosion Control Plan - D07-12-22-0031
Erosion And Sediment Control Plan2023-03-13 - Erosion Control Plan & Detail Sheet - D07-12-22-0031
Erosion And Sediment Control Plan2022-03-14 - Erosion Control Plan and Details Sheet - D07-12-22-0031
Existing Conditions2023-06-07 - Existing Conditions and Removals Plan - D07-12-22-0031
Existing Conditions2023-03-13 - Existing Conditions & Removals Plan - D07-12-22-0031
Existing Conditions2022-03-14 - Existing Conditions and Removals Plan - D07-12-22-0031
Floor Plan2023-03-13 - Ground Floor Plan - D07-12-22-0031
Geotechnical Report2022-03-14 - Geotechnical Investigation - D07-12-22-0031
Landscape Plan2023-08-22 - Landscape Plan - D07-12-22-0031
Landscape Plan2022-03-14 - Landscape Plan - D07-12-22-0031
Planning2022-03-14 - Planning Brief - D07-12-22-0031
Site Servicing2023-08-22 - Servicing & Stormwater Management Report - D07-12-22-0031
Site Servicing2023-06-07 - Site Servicing and Grading Plan - D07-12-22-0031
Site Servicing2023-06-07 - Servicing and Stormwater Management Report - D07-12-22-0031
Site Servicing2023-03-13 - Site Servicing & Grading Plan - D07-12-22-0031
Site Servicing2023-03-13 - servicing report - D07-12-22-0031
Site Servicing2022-03-14 - Site Servicing and Grading Plan - D07-12-22-0031
Site Servicing2022-03-14 - Servicing and Stormwater Management Report - D07-12-22-0031
Stormwater Management2023-06-07 - Storm Drainage Area Plan - D07-12-22-0031
Stormwater Management2023-03-13 - Storm Drainage Area Plan - D07-12-22-0031
Stormwater Management2022-03-14 - Storm Drainage Area Plan - D07-12-22-0031
Surveying2022-03-14 - Survey Plans - D07-12-22-0031

Additional Information #

All Addresses36 Jamie Ave.
40 Jamie Ave.