1300 Michael (D07-12-22-0012)

1300 Michael (D07-12-22-0012) #

Summary #

Application StatusPost Approval
Review StatusRequest for Agreement Received
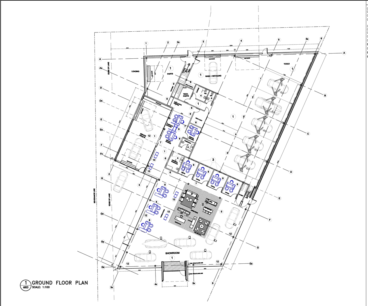
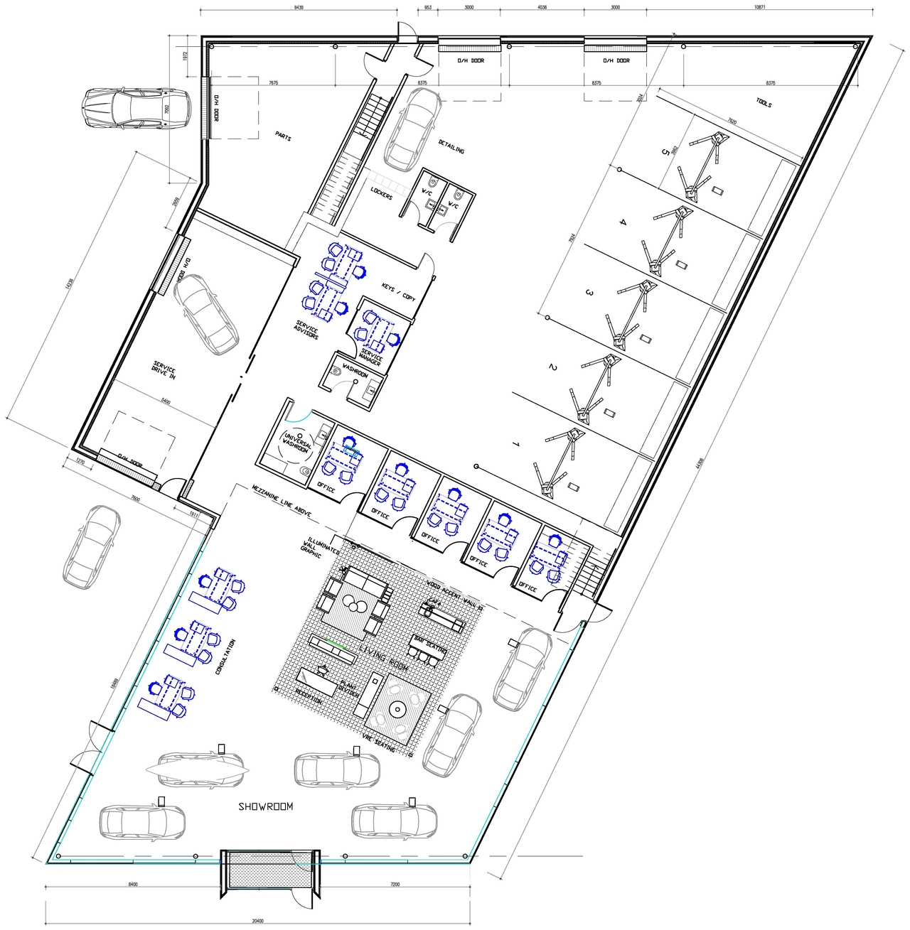
DescriptionThe City of Ottawa has received a Site Plan Control application to construct a two storey Volvo automobile dealership with a total gross floor area (GFA) of 1,141 square metres on the southern corner of the subject property. The dealership will consist of a vehicle showroom area, offices, and services areas. Five customer parking spaces will be built. A new service entrance is proposed on Michael Street.
WardWard 11 - Tim Tierney
Date Initiated2022-01-26
Last Updated2024-03-27

Site and Floor Plans #

  • Construction site plan for project from page 1 of the file '2023-03-21 - Ground and Second Floor Plan - D07-12-22-0012'
  • Construction site plan for project from page 2 of the file '2023-03-21 - Ground and Second Floor Plan - D07-12-22-0012'
  • Construction site plan for project from page 1 of the file '2022-01-26 - Ground Floor Plan - D07-12-22-0012'
  • Construction site plan for project from page 1 of the file '2023-03-21 - Ground and Second Floor Plan - D07-12-22-0012'
  • Construction site plan for project from page 2 of the file '2023-03-21 - Ground and Second Floor Plan - D07-12-22-0012'
  • Construction site plan for project from page 1 of the file '2022-01-26 - Ground Floor Plan - D07-12-22-0012'

Files #

TypeNameLinks
Application Summary2022-05-06 - Application Summary - D07-12-22-0012Download PDF
Architectural Plans2024-02-26 - For Information Site Plan - D07-12-22-0012Download PDF
Architectural Plans2024-02-26 - Approved West Elevation - D07-12-22-0012Download PDF
Architectural Plans2024-02-26 - Approved South Elevation - D07-12-22-0012Download PDF
Architectural Plans2024-02-26 - Approved Site Plan - D07-12-22-0012Download PDF
Architectural Plans2024-02-26 - Approved Pre-Development Drainage Plan - D07-12-22-0012Download PDF
Architectural Plans2024-02-26 - Approved Post-Development Drainage Plan - D07-12-22-0012Download PDF
Architectural Plans2024-02-26 - Approved North Elevation - D07-12-22-0012Download PDF
Architectural Plans2024-02-26 - Approved East Elevation - D07-12-22-0012Download PDF
Architectural Plans2023-07-27 - Site Plan and Details - D07-12-22-0012Download PDF
Architectural Plans2023-07-27 - Post Development Drainage Plan - D07-12-22-0012Download PDF
Architectural Plans2023-07-27 - Elevations - D07-12-22-0012Download PDF
Architectural Plans2023-03-21 - Site Plan and Details - D07-12-22-0012Download PDF
Architectural Plans2023-03-21 - Pre Development Drainage Plan - D07-12-22-0012Download PDF
Architectural Plans2023-03-21 - Post Development Drainage Plan - D07-12-22-0012Download PDF
Architectural Plans2023-03-21 - Elevations - D07-12-22-0012Download PDF
Architectural Plans2023-03-21 - Draft Plan - D07-12-22-0012Download PDF
Architectural Plans2022-08-19 - Site Plans - D07-12-22-0012Download PDF
Architectural Plans2022-08-19 - Elevations - D07-12-22-0012Download PDF
Architectural Plans2022-01-26 - West Elevation - D07-12-22-0012Download PDF
Architectural Plans2022-01-26 - South Elevation - D07-12-22-0012Download PDF
Architectural Plans2022-01-26 - Site Plan - D07-12-22-0012Download PDF
Architectural Plans2022-01-26 - Elevation North - D07-12-22-0012Download PDF
Architectural Plans2022-01-26 - East Elevation - D07-12-22-0012Download PDF
Civil Engineering Report2022-08-19 - Civil Drawings - D07-12-22-0012Download PDF
Drainage Plan2022-01-26 - Drainage Plan - D07-12-22-0012Download PDF
Environmental2022-01-26 - Phase 1 Environmental Site Assessment - D07-12-22-0012Download PDF
Existing Conditions2023-03-21 - Existing Drainage Plan & Conditions, Removals, & Decommissioning - D07-12-22-0012Download PDF
Existing Conditions2022-01-26 - Existing Conditions and Removals - D07-12-22-0012Download PDF
Floor Plan2023-03-21 - Ground and Second Floor Plan - D07-12-22-0012Download PDF
Floor Plan2022-01-26 - Second Floor Plan - D07-12-22-0012Download PDF
Floor Plan2022-01-26 - Ground Floor Plan - D07-12-22-0012Download PDF
Geotechnical Report2024-02-26 - Approved Grading Plan, & Erosion & Sediment Control Plan - D07-12-22-0012Download PDF
Geotechnical Report2023-07-27 - Grading Plan and Erosion & Sediment Control Plan - D07-12-22-0012Download PDF
Geotechnical Report2023-03-21 - Grading Plan and Erosion & Sediment Control Plan - D07-12-22-0012Download PDF
Geotechnical Report2023-03-21 - Geotechnical Report - D07-12-22-0012Download PDF
Geotechnical Report2023-03-21 - Geotechnical Memo - D07-12-22-0012Download PDF
Geotechnical Report2022-01-26 - Grading and Erosion and Sediment Control Plan - D07-12-22-0012Download PDF
Geotechnical Report2022-01-26 - Geotechnical - D07-12-22-0012Download PDF
Landscape Plan2024-02-26 - Approved Landscape Plan & Details- D07-12-22-0012Download PDF
Landscape Plan2023-07-27 - Landscape Plan & Details - D07-12-22-0012Download PDF
Landscape Plan2023-03-21 - Landscape Plan - D07-12-22-0012Download PDF
Landscape Plan2022-08-19 - Landscape Plan - D07-12-22-0012Download PDF
Landscape Plan2022-01-26 - Landscape Plan - D07-12-22-0012Download PDF
Noise Study2022-01-26 - Stationary Noise Assessment - D07-12-22-0012Download PDF
Planning2022-01-26 - Planning Rationale - D07-12-22-0012Download PDF
Site Servicing2024-02-26 - Approved Site Servicing Plan - D07-12-22-0012Download PDF
Site Servicing2023-07-27 - Site Servicing Plan - D07-12-22-0012Download PDF
Site Servicing2023-03-21 - Site Servicing Plan - D07-12-22-0012Download PDF
Site Servicing2023-03-21 - Site Servicing and Stormwater Management Report - D07-12-22-0012Download PDF
Site Servicing2022-08-19 - Servicing Study and SWM Report - D07-12-22-0012Download PDF
Site Servicing2022-01-26 - Site Servicing Study & Stormwater Management Report - D07-12-22-0012Download PDF
Site Servicing2022-01-26 - Site Servicing Plan - D07-12-22-0012Download PDF
Surveying2023-03-21 - Topographical Sketch - D07-12-22-0012Download PDF
Surveying2022-08-19 - Survey - D07-12-22-0012Download PDF
Transportation Analysis2022-01-26 - Transportation Impact Assessment - D07-12-22-0012Download PDF
Tree Information and Conservation2023-07-27 - Tree Conservation Report - D07-12-22-0012Download PDF
Tree Information and Conservation2023-03-21 - TCR Map2 - D07-12-22-0012Download PDF
Tree Information and Conservation2022-08-19 - Tree Conservation Report - D07-12-22-0012Download PDF
Tree Information and Conservation2022-01-26 - Tree Conservation Report - D07-12-22-0012Download PDF
2024-02-26 - Signed Delegated Authority Report - D07-12-22-0012Download PDF
2024-02-26 - Approved Notes - D07-12-22-0012Download PDF
2024-02-26 - Approved JLR - VOLVO Access Schematics - D07-12-22-0012Download PDF
2024-02-26 - Approved Extent of Work Area - D07-12-22-0012Download PDF
2024-02-26 - Approved Details & Schedules - D07-12-22-0012Download PDF
2023-07-27 - Notes - D07-12-22-0012Download PDF
2023-07-27 - Extent of Work Area - D07-12-22-0012Download PDF
2023-03-21 - Notes - D07-12-22-0012Download PDF
2023-03-21 - Extent of Work Area - D07-12-22-0012Download PDF
2023-03-21 - Detail and Schedules - D07-12-22-0012Download PDF
2023-03-21 - Building Access Schematics - D07-12-22-0012Download PDF
2022-01-26 - Notes - D07-12-22-0012Download PDF
2022-01-26 - Details & Schedules - D07-12-22-0012Download PDF