572 Moodie Dr./4000 Old Richmond Rd. (D07-12-21-0234)#
Summary#
| Application Status | File Pending |
| Review Status | Application File Pending |
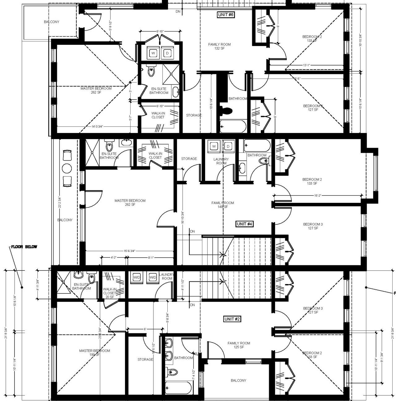
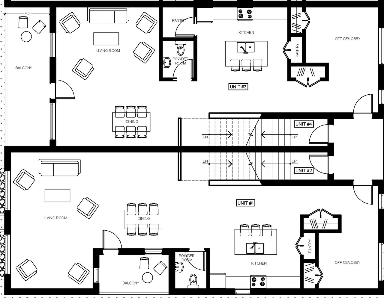
| Description | The City of Ottawa has received a Zoning By-law Amendment and Site Plan Control application to permit the development of four-storey apartment building along Old Richmond Road and six stacked townhouse dwelling units along Moodie Drive. |
| Ward | Ward 8 - Laine Johnson |
| Date Initiated | 2021-12-24 |
| Last Updated | 2026-01-20 |
Location#
Select a marker to view the address.








