900 Watters Rd. (D07-12-21-0183)

900 Watters Rd. (D07-12-21-0183) #

Summary #

Application StatusInactive
Review StatusAgreement Registered - Final Legal Clearance Given
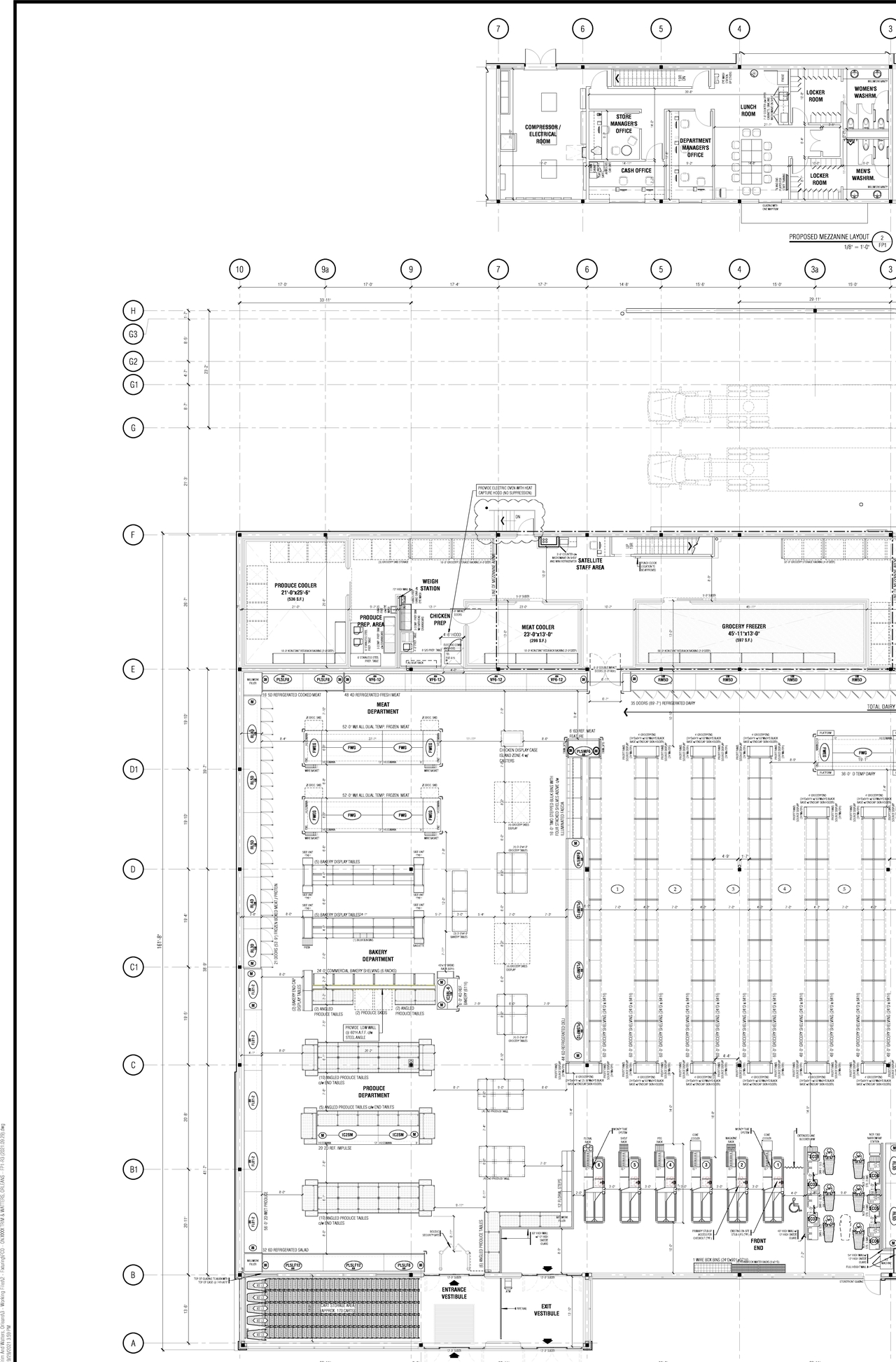
DescriptionA Site Plan Control application has been submitted to the City of Ottawa to construct a retail food store with a 3017 square metres gross floor area (GFA), a restaurant with a drive-through - the restaurant will be 443 square metres GFA, and associated surface parking with 164 new parking spaces.
WardWard 1 - Matthew Luloff
Date Initiated2021-11-01
Last Updated2022-08-10

Location #

Select a marker to view the address.

Site and Floor Plans #

  • Floor plan for project from page 1 of the file '2021-11-01 - Floor Plans - D07-12-21-0183'
  • Floor plan for project from page 1 of the file '2021-11-01 - Fast Food Retaurant Floor Plan - D07-12-21-0183'
  • Floor plan for project from page 1 of the file '2021-11-01 - Floor Plans - D07-12-21-0183'
  • Floor plan for project from page 1 of the file '2021-11-01 - Fast Food Retaurant Floor Plan - D07-12-21-0183'

Documents #

TypeDocument
Application Summary2021-12-09 - Application Summary - D07-12-21-0183
Archaelogical Assessment2021-11-01 - Archaeological Assessment - D07-12-21-0183
Architectural Plans2022-05-26 - Approved Site Plan - D07-12-21-0183
Architectural Plans2022-05-26 - Approved Elevations Fresh Co Orleans - D07-12-21-0183
Architectural Plans2022-05-26 - Approved Elevation Restaurant McDonald’s Trim and Watters - D07-12-21-0183
Architectural Plans2022-04-21 - Architectural Site Plan - D07-12-21-0183
Architectural Plans2022-02-08 - Architectural Site Plan - D07-12-21-0183
Architectural Plans2021-11-01 - Site Plan - D07-12-21-0183
Architectural Plans2021-11-01 - Restaurant Colorized Elevations - D07-12-21-0183
Architectural Plans2021-11-01 - Colourized Elevations - D07-12-21-0183
Civil Engineering Report2022-05-26 - Approved Civil Engineering Drawings - D07-12-21-0183
Civil Engineering Report2022-04-21 - Civil Engineering Drawing Package - D07-12-21-0183
Civil Engineering Report2022-04-21 - Civil Engineering Design Brief - D07-12-21-0183
Civil Engineering Report2022-02-08 - Civil Engineering Drawing Package - D07-12-21-0183
Civil Engineering Report2022-02-08 - Civil Engineering Design Brief - D07-12-21-0183
Electrical Plan2022-02-08 - Electrical Drawing Package - D07-12-21-0183
Environmental2021-11-01 - Phase 1 Environmental Site Assessment 3 - D07-12-21-0183
Environmental2021-11-01 - Phase 1 Environmental Site Assessment 2 - D07-12-21-0183
Environmental2021-11-01 - Phase 1 Environmental Site Assessment - D07-12-21-0183
Existing Conditions2021-11-01 - Existing Site Plan - D07-12-21-0183
Floor Plan2021-11-01 - Floor Plans - D07-12-21-0183
Floor Plan2021-11-01 - Fast Food Retaurant Floor Plan - D07-12-21-0183
Geotechnical Report2022-05-26 - Geotechnical Review Memo-Sanitary Sewer and USF Conflict - D07-12-21-0183
Geotechnical Report2021-11-01 - Grading and Site Servicing Drawings - D07-12-21-0183
Geotechnical Report2021-11-01 - Geotechnical Report - D07-12-21-0183
Landscape Plan2022-04-21 - Landscape Plan - D07-12-21-0183
Landscape Plan2022-02-08 - Landscape Plan - D07-12-21-0183
Noise Study2021-11-01 - Noise Assessment - D07-12-21-0183
Planning2021-11-01 - Planning Rationale and Design Brief - D07-12-21-0183
Site Servicing2022-05-26 - Approved Site Servicing and Storm Water Management Brief - D07-12-21-0183
Stormwater Management2021-11-01 - Desing Brief and Stormwater Management Report - D07-12-21-0183
Surveying2022-04-21 - Topographical Plan of Survey - D07-12-21-0183
Surveying2021-11-01 - Topographical Plan of Survey - D07-12-21-0183
Transportation Analysis2022-03-09 - Transportation Impact Assessment - D07-12-21-0183
Transportation Analysis2021-11-01 - Transportation Impact Assessment - D07-12-21-0183
Tree Information and Conservation2022-07-18 - Approved Landscape Plan and Tree Conservation Report - D07-12-21-0183
Tree Information and Conservation2022-05-26 - Approved Landscape Plan and Tree Conservation Report - D07-12-21-0183
Tree Information and Conservation2021-11-01 - Landscape and Tree Conservation Plan - D07-12-21-0183
2022-05-26 - Signed Delegated Authority Report - D07-12-21-0183