1740-1760 St-Laurent Blvd. (D07-12-21-0177) #
Summary #
| Application Status | File Pending |
| Review Status | Application File Pending |
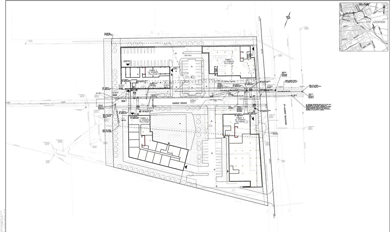
| Description | Four (4) buildings, two mixed use towers at 15-storeys and two residential towers at 12-storeys |
| Ward | Ward 18 - Marty Carr |
| Date Initiated | 2021-10-27 |
| Last Updated | 2022-02-10 |
Renders #
Location #
Select a marker to view the address.
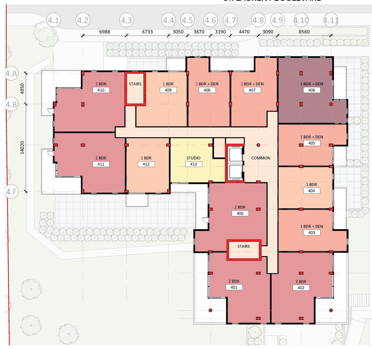
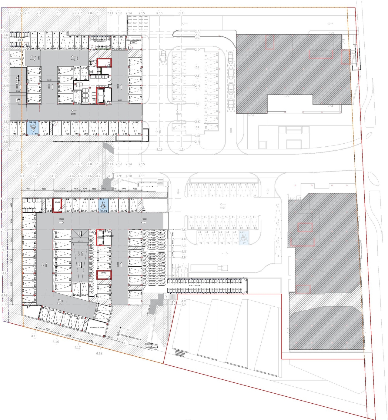
Site Plans, Elevations and Floor Plans #
Documents #
Additional Information #
| All Addresses | 1740 St-Laurent Blvd. 1754 St-Laurent Blvd. 1760 St-Laurent Blvd. |














































































































