2262 Braeside Ave. (D07-12-21-0174)

2262 Braeside Ave. (D07-12-21-0174) #

Summary #

Application StatusPost Approval
Review StatusReceipt of Agreement from Owner Pending
DescriptionThe existing rectory building is proposed to be demolished. A new 3.5-storey addition is proposed to the existing Ellwood House retirement home, and will consist of 38 retirement dwelling units. Parking is proposed to be redistributed and shared across the campus, containing St. Thomas the Apostle Church and Braeside House, and will be facilitated through a Minor Zoning By-law Amendment application to permit “one lot for zoning purposes.”
WardWard 18 - Marty Carr
Date Initiated2021-10-26
Last Updated2024-05-13

Location #

Select a marker to view the address.

Site and Floor Plans #

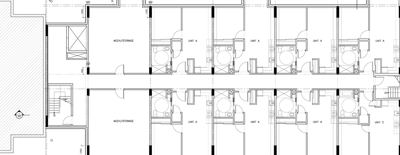
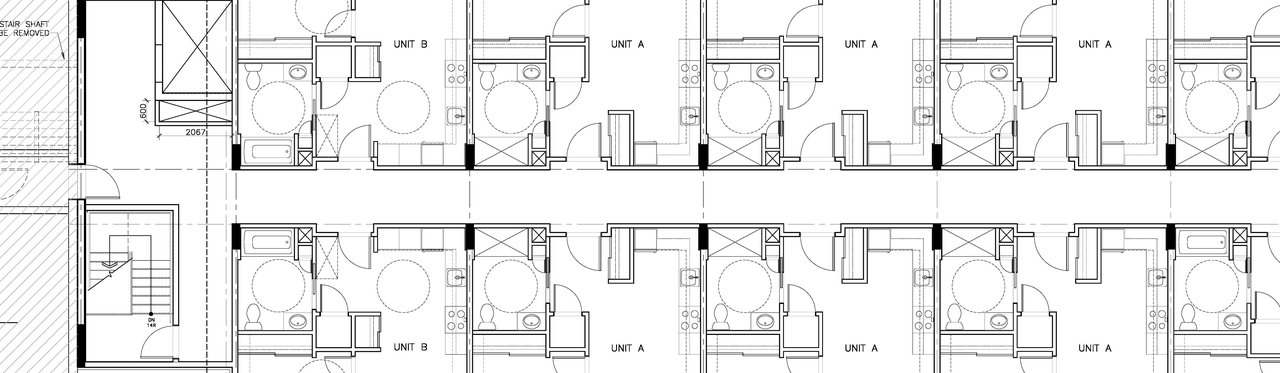
  • Floor plan for project from page 1 of the file '2021-10-27 - Floor Plans - D07-12-21-0174'
  • Floor plan for project from page 1 of the file '2021-10-27 - Floor Plans - D07-12-21-0174'

Documents #

TypeDocument
Application Summary2021-11-23 - Application Summary - D07-12-21-0174
Architectural Plans2023-08-15 - Sub-Catchment Area and Drainage Plan - D07-12-21-0174
Architectural Plans2023-08-15 - Revised Site Plan - D07-12-21-0174
Architectural Plans2023-08-15 - Pre-Development Drainage Plan - D07-12-21-0174
Architectural Plans2023-08-15 - Notes and Details - D07-12-21-0174
Architectural Plans2022-06-20 - Site Plan - D07-12-21-0174
Architectural Plans2022-06-20 - Engineering Plans - D07-12-21-0174
Architectural Plans2021-10-27 - Site Plan - D07-12-21-0174
Architectural Plans2021-10-27 - Notes and Details - D07-12-21-0174
Architectural Plans2021-10-27 - Elevations - D07-12-21-0174
Drainage Plan2021-10-27 - Drainage Plan C-7 - D07-12-21-0174
Electrical Plan2023-08-15 - Site Lighting Certification Letter - D07-12-21-0174
Environmental2023-08-15 - Phase One ESA - D07-12-21-0174
Environmental2021-10-27 - Phase One Environmental Site Assessment - D07-12-21-0174
Existing Conditions2021-10-27 - Existing Conditions Removals - D07-12-21-0174
Floor Plan2021-10-27 - Floor Plans - D07-12-21-0174
Geotechnical Report2023-08-15 - Grading Plan Review Memorandum - D07-12-21-0174
Geotechnical Report2023-08-15 - Geotechnical Report - D07-12-21-0174
Geotechnical Report2022-06-20 - Grading Plan Review Memorandum - D07-12-21-0174
Geotechnical Report2022-06-20 - Geotechnical Memorandum - D07-12-21-0174
Geotechnical Report2021-10-27 - Grading Plan and Erosion and Sediment Plan C-3 - D07-12-21-0174
Geotechnical Report2021-10-27 - Geotechnical - D07-12-21-0174
Landscape Plan2023-08-15 - Revised Landscape Plan - D07-12-21-0174
Landscape Plan2022-06-20 - Landscape Plan - D07-12-21-0171
Landscape Plan2021-10-27 - Landscape Plan - D07-12-21-0174
Planning2022-06-20 - Zoning Compliance Table - D07-12-21-0174
Planning2021-10-27 - Planning Rationale - D07-12-21-0174
Site Servicing2023-08-15 - Site Servicing Plan with Background Info Removed - D07-12-21-0174
Site Servicing2023-08-15 - Site Servicing Plan - D07-12-21-0174
Site Servicing2023-08-15 - Site Servicing Details - D07-12-21-0174
Site Servicing2023-08-15 - Revised Servicing Brief and SWM Report - D07-12-21-0174
Site Servicing2022-06-20 - Servicing Brief and Stormwater Management Report - D07-12-21-0171
Site Servicing2021-10-27 - Site Servicing Plan C-1 - D07-12-21-0174
Site Servicing2021-10-27 - Servicing Brief & Stormwater Management Report - D07-12-21-0174
Stormwater Management2023-08-15 - Stormwater Management and Drainage Plan - D07-12-21-0174
Surveying2021-10-27 - Survey Plan - D07-12-21-0174
Transportation Analysis2021-10-27 - Transportation Impact Assessment - D07-12-21-0174
Tree Information and Conservation2023-08-15 - Tree Conservation Report- D07-12-21-0174
Tree Information and Conservation2021-10-27 - Tree Conservation Report - D07-12-21-0174
2023-08-15 - Final TIA - D07-12-21-0174
2023-08-15 - Details - D07-12-21-0174
2023-08-15 - Delegated Authority Report - D07-12-21-0174
2022-06-20 Transportation Impact Assessment - D07-12-21-0174
2021-10-27 - Model Image - D07-12-21-0174
2021-10-27 - Details C-5 - D07-12-21-0174
2021-10-27 - Areas Changing C-6 - D07-12-21-0174