330 Mcleod (D07-12-21-0172)

330 Mcleod (D07-12-21-0172) #

Summary #

Application StatusPost Approval
Review StatusReceipt of Agreement from Owner Pending
DescriptionThe development proposes to maintain the existing, 48-unit rooming house and construct a four-and-a-half storey rear addition.
WardWard 14 - Ariel Troster
Date Initiated2021-10-26
Last Updated2024-07-03

Renders #

  • Rendering of building from page 6 of the file '2023-10-12 - Floor Plan Package - D07-12-21-0172'
  • Rendering of building from page 3 of the file '2023-10-12 - Floor Plan Package - D07-12-21-0172'
  • Rendering of building from page 6 of the file '2023-10-12 - Floor Plan Package - D07-12-21-0172'
  • Rendering of building from page 3 of the file '2023-10-12 - Floor Plan Package - D07-12-21-0172'

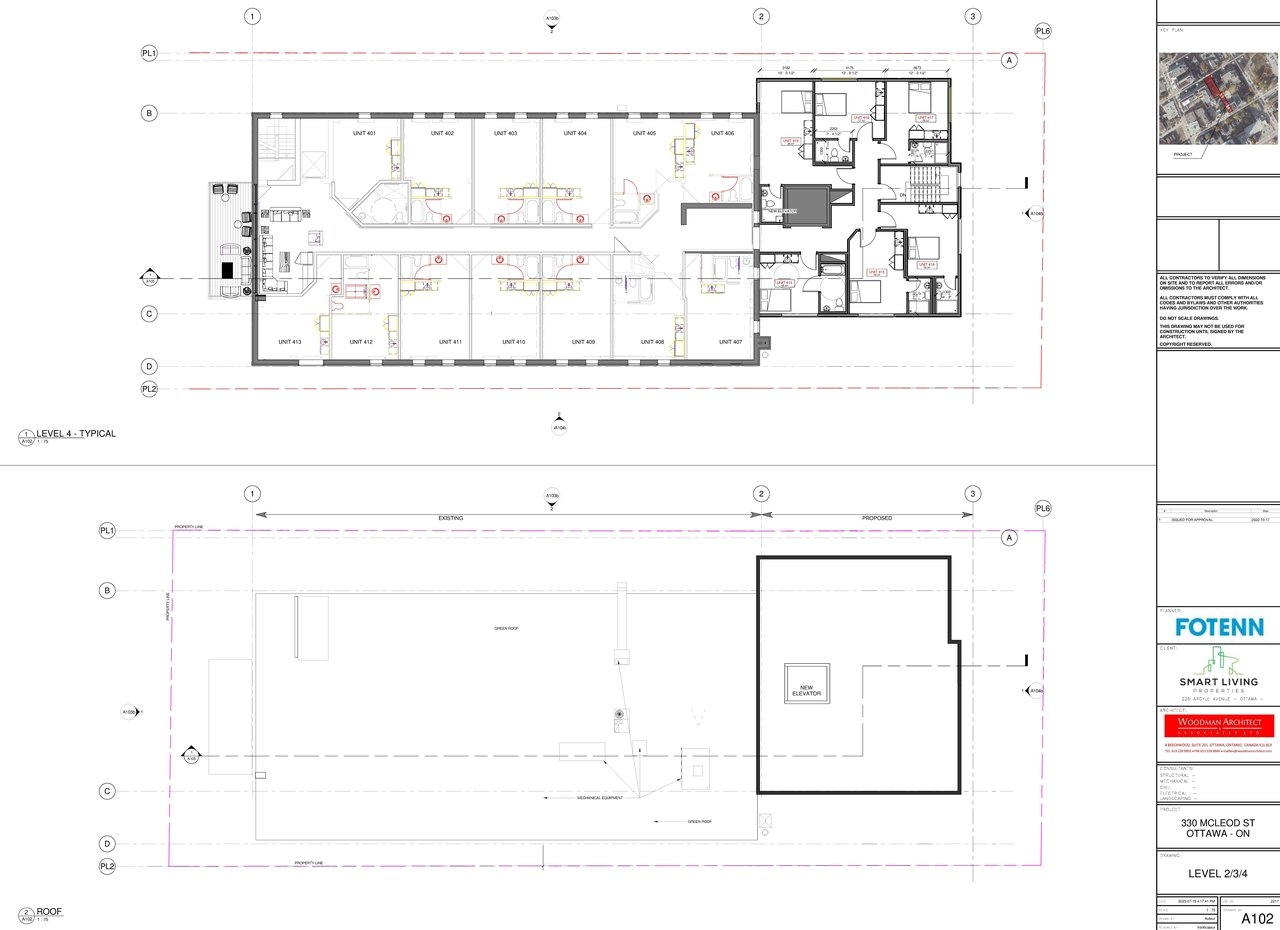
Site and Floor Plans #

  • Floor plan for project from page 1 of the file '2023-10-12 - Floor Plan Package - D07-12-21-0172'
  • Floor plan for project from page 2 of the file '2023-10-12 - Floor Plan Package - D07-12-21-0172'
  • Floor plan for project from page 1 of the file '2023-10-12 - Floor Plan Package - D07-12-21-0172'
  • Floor plan for project from page 2 of the file '2023-10-12 - Floor Plan Package - D07-12-21-0172'

Files #

TypeNameLinks
Application Summary2021-11-25 - Application Summary - D07-12-21-0172Download PDF
Architectural Plans2024-03-12 - Approved Site Plan - D07-12-21-0172Download PDF
Architectural Plans2024-03-12 - Approved Elevations - D07-12-21-0172Download PDF
Architectural Plans2023-10-12 - Site Plan - D07-12-21-0172Download PDF
Architectural Plans2022-12-30 - Site Plan - D07-12-21-0172Download PDF
Architectural Plans2022-12-30 - Elevation and Plan Set - D07-12-21-0172Download PDF
Architectural Plans2022-08-10 - Basement & Main Level Plan - D07-12-21-0172Download PDF
Architectural Plans2022-06-28 - Site Plan (2) - D07-12-21-0172Download PDF
Architectural Plans2022-06-28 - Site Plan - D07-12-21-0172Download PDF
Architectural Plans2022-06-28 - Architectural Package (2) - D07-12-21-0172Download PDF
Architectural Plans2022-06-28 - Architectural Package - D07-12-21-0172Download PDF
Architectural Plans2021-11-18 - Architectural Plans - D07-12-21-0172Download PDF
Architectural Plans2021-10-26 - Pre Development Service Plan - D07-12-21-0172Download PDF
Architectural Plans2021-10-26 - Post Development Service Plan - D07-12-21-0172Download PDF
Architectural Plans2021-10-26 - Engineering Plans - D07-12-21-0172Download PDF
Civil Engineering Report2022-08-10 - Civil Plans - D07-12-21-0172Download PDF
Environmental2022-06-28 - Phase Two Environmental Site Assessment - D07-12-21-0172Download PDF
Environmental2022-06-28 - Phase II-Environmental Site Assessment - D07-12-21-0172Download PDF
Environmental2022-06-28 - Phase I Environmental Site Assessment - D07-12-21-0172Download PDF
Environmental2021-11-25 - Phase II Environmental Site Assessment - D07-12-21-0172Download PDF
Environmental2021-10-26 - Phase 1 Environmental Site Assessment - D07-12-21-0172Download PDF
Floor Plan2023-10-12 - Floor Plan Package - D07-12-21-0172Download PDF
Geotechnical Report2024-03-12 - Approved Grading & Erosion Control Plan - D07-12-21-0172Download PDF
Geotechnical Report2023-10-12 - Grading and Erosion Control Plan - D07-12-21-0172Download PDF
Geotechnical Report2022-12-30 - Grading, Sediment and Erosion Control Plan - D07-12-21-0172Download PDF
Geotechnical Report2022-08-10 - Grading & Sediment and Erosion Control Plan - D07-12-21-0172Download PDF
Geotechnical Report2022-06-28 - Soil Remidiation Plan - D07-12-21-0172Download PDF
Geotechnical Report2021-10-26 - Geotechnical - D07-12-21-0172Download PDF
Landscape Plan2021-10-26 - Landscape - D07-12-21-0172Download PDF
Noise Study2021-10-26 - Roadway Traffic Noise Assessment - D07-12-21-0172Download PDF
Planning2022-12-30 - Planning Rationale Addendum - D07-12-21-0172Download PDF
Planning2021-11-18 - Planning Rationale - D07-12-21-0172Download PDF
Site Servicing2024-03-12 - Approved Servicing Plan - D07-12-21-0172Download PDF
Site Servicing2023-10-12 - Servicing Plan - D07-12-21-0172Download PDF
Site Servicing2022-12-30 - Servicing Report - D07-12-21-0172Download PDF
Site Servicing2022-12-30 - Servicing plan - D07-12-21-0172Download PDF
Site Servicing2022-08-10 - Servicing Report - D07-12-21-0172Download PDF
Site Servicing2022-08-10 - Servicing Plan - D07-12-21-0172Download PDF
Site Servicing2022-08-10 - Servicing & Stormwater Management Report - D07-12-21-0172Download PDF
Site Servicing2021-10-26 - Servicing Plan - D07-12-21-0172Download PDF
Site Servicing2021-10-26 - Servicing and Stormwater Management Report - D07-12-21-0172Download PDF
Surveying2021-10-26 - Topographical - D07-12-21-0172Download PDF
Transportation Analysis2022-12-30 - TDM Checklist - D07-12-21-0172Download PDF
Transportation Analysis2022-08-10 - TDM Measures Checklist - D07-12-21-0172Download PDF
Tree Information and Conservation2024-03-12 - Approved Tree Conservation Report & Landscape Plan - D07-12-21-0172Download PDF
Tree Information and Conservation2023-10-12 - Tree Conservation Report & Landscape Plan - D07-12-21-0172Download PDF
Tree Information and Conservation2022-12-30 - Tree Conservation Report & Landscape Plan - D07-12-21-0172Download PDF
Tree Information and Conservation2022-08-10 - Tree Conservation Report & Landscape Plan (2) - D07-12-21-0172Download PDF
Tree Information and Conservation2022-08-10 - Tree Conservation Report & Landscape Plan - D07-12-21-0172Download PDF
2024-03-12 - Signed Delegated Authority Report - D07-12-21-0172Download PDF