933 Gladstone (D07-12-21-0149)

933 Gladstone (D07-12-21-0149) #

Summary #

Application StatusPost Approval
Review StatusReceipt of Agreement from Owner Pending
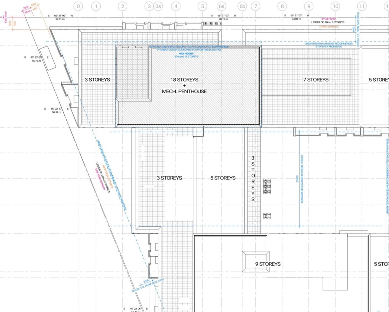
DescriptionA Site Plan Control application has been submitted to construct 18-storey and 9-storey apartment buildings containing 338 dwelling units and 372 m2 of commercial space, with a total of 145 vehicle spaces and 340 bicycle spaces below grade.
WardWard 14 - Ariel Troster
Date Initiated2021-09-24
Last Updated2024-07-17

Renders #

  • Rendering of building from page 32 of the file '2021-11-25 - UDRP Dec 3 2021 Design Brief - D07-12-21-0149'
  • Rendering of building from page 52 of the file '2021-11-25 - UDRP Dec 3 2021 Design Brief - D07-12-21-0149'
  • Rendering of building from page 38 of the file '2021-11-25 - UDRP Dec 3 2021 Design Brief - D07-12-21-0149'
  • Rendering of building from page 31 of the file '2021-11-25 - UDRP Dec 3 2021 Design Brief - D07-12-21-0149'
  • Rendering of building from page 53 of the file '2021-11-25 - UDRP Dec 3 2021 Design Brief - D07-12-21-0149'
  • Rendering of building from page 54 of the file '2021-11-25 - UDRP Dec 3 2021 Design Brief - D07-12-21-0149'
  • Rendering of building from page 45 of the file '2021-11-25 - UDRP Dec 3 2021 Design Brief - D07-12-21-0149'
  • Rendering of building from page 38 of the file '2021-11-25 - UDRP Dec 3 2021 Design Brief - D07-12-21-0149'
  • Rendering of building from page 50 of the file '2021-11-25 - UDRP Dec 3 2021 Design Brief - D07-12-21-0149'
  • Rendering of building from page 24 of the file '2021-09-24 - Floor Plans - D07-12-21-0149'
  • Rendering of building from page 30 of the file '2021-11-25 - UDRP Dec 3 2021 Design Brief - D07-12-21-0149'
  • Rendering of building from page 45 of the file '2021-11-25 - UDRP Dec 3 2021 Design Brief - D07-12-21-0149'
  • Rendering of building from page 1 of the file '2021-11-25 - UDRP Dec 3 2021 Design Brief - D07-12-21-0149'
  • Rendering of building from page 23 of the file '2021-11-25 - UDRP Dec 3 2021 Design Brief - D07-12-21-0149'
  • Rendering of building from page 51 of the file '2021-11-25 - UDRP Dec 3 2021 Design Brief - D07-12-21-0149'
  • Rendering of building from page 44 of the file '2021-11-25 - UDRP Dec 3 2021 Design Brief - D07-12-21-0149'
  • Rendering of building from page 28 of the file '2021-11-25 - UDRP Dec 3 2021 Design Brief - D07-12-21-0149'
  • Rendering of building from page 54 of the file '2021-11-25 - UDRP Dec 3 2021 Design Brief - D07-12-21-0149'
  • Rendering of building from page 43 of the file '2021-11-25 - UDRP Dec 3 2021 Design Brief - D07-12-21-0149'
  • Rendering of building from page 1 of the file '2021-09-24 - Floor Plans - D07-12-21-0149'
  • Rendering of building from page 58 of the file '2021-11-25 - UDRP Dec 3 2021 Design Brief - D07-12-21-0149'
  • Rendering of building from page 27 of the file '2021-11-25 - UDRP Dec 3 2021 Design Brief - D07-12-21-0149'
  • Rendering of building from page 8 of the file '2021-09-24 - Design Brief - D07-12-21-0149'
  • Rendering of building from page 19 of the file '2021-09-24 - Floor Plans - D07-12-21-0149'
  • Rendering of building from page 47 of the file '2021-11-25 - UDRP Dec 3 2021 Design Brief - D07-12-21-0149'
  • Rendering of building from page 46 of the file '2021-11-25 - UDRP Dec 3 2021 Design Brief - D07-12-21-0149'
  • Rendering of building from page 49 of the file '2021-11-25 - UDRP Dec 3 2021 Design Brief - D07-12-21-0149'
  • Rendering of building from page 48 of the file '2021-11-25 - UDRP Dec 3 2021 Design Brief - D07-12-21-0149'
  • Rendering of building from page 43 of the file '2021-11-25 - UDRP Dec 3 2021 Design Brief - D07-12-21-0149'
  • Rendering of building from page 32 of the file '2021-11-25 - UDRP Dec 3 2021 Design Brief - D07-12-21-0149'
  • Rendering of building from page 52 of the file '2021-11-25 - UDRP Dec 3 2021 Design Brief - D07-12-21-0149'
  • Rendering of building from page 38 of the file '2021-11-25 - UDRP Dec 3 2021 Design Brief - D07-12-21-0149'
  • Rendering of building from page 31 of the file '2021-11-25 - UDRP Dec 3 2021 Design Brief - D07-12-21-0149'
  • Rendering of building from page 53 of the file '2021-11-25 - UDRP Dec 3 2021 Design Brief - D07-12-21-0149'
  • Rendering of building from page 54 of the file '2021-11-25 - UDRP Dec 3 2021 Design Brief - D07-12-21-0149'
  • Rendering of building from page 45 of the file '2021-11-25 - UDRP Dec 3 2021 Design Brief - D07-12-21-0149'
  • Rendering of building from page 38 of the file '2021-11-25 - UDRP Dec 3 2021 Design Brief - D07-12-21-0149'
  • Rendering of building from page 50 of the file '2021-11-25 - UDRP Dec 3 2021 Design Brief - D07-12-21-0149'
  • Rendering of building from page 24 of the file '2021-09-24 - Floor Plans - D07-12-21-0149'
  • Rendering of building from page 30 of the file '2021-11-25 - UDRP Dec 3 2021 Design Brief - D07-12-21-0149'
  • Rendering of building from page 45 of the file '2021-11-25 - UDRP Dec 3 2021 Design Brief - D07-12-21-0149'
  • Rendering of building from page 1 of the file '2021-11-25 - UDRP Dec 3 2021 Design Brief - D07-12-21-0149'
  • Rendering of building from page 23 of the file '2021-11-25 - UDRP Dec 3 2021 Design Brief - D07-12-21-0149'
  • Rendering of building from page 51 of the file '2021-11-25 - UDRP Dec 3 2021 Design Brief - D07-12-21-0149'
  • Rendering of building from page 44 of the file '2021-11-25 - UDRP Dec 3 2021 Design Brief - D07-12-21-0149'
  • Rendering of building from page 28 of the file '2021-11-25 - UDRP Dec 3 2021 Design Brief - D07-12-21-0149'
  • Rendering of building from page 54 of the file '2021-11-25 - UDRP Dec 3 2021 Design Brief - D07-12-21-0149'
  • Rendering of building from page 43 of the file '2021-11-25 - UDRP Dec 3 2021 Design Brief - D07-12-21-0149'
  • Rendering of building from page 1 of the file '2021-09-24 - Floor Plans - D07-12-21-0149'
  • Rendering of building from page 58 of the file '2021-11-25 - UDRP Dec 3 2021 Design Brief - D07-12-21-0149'
  • Rendering of building from page 27 of the file '2021-11-25 - UDRP Dec 3 2021 Design Brief - D07-12-21-0149'
  • Rendering of building from page 8 of the file '2021-09-24 - Design Brief - D07-12-21-0149'
  • Rendering of building from page 19 of the file '2021-09-24 - Floor Plans - D07-12-21-0149'
  • Rendering of building from page 47 of the file '2021-11-25 - UDRP Dec 3 2021 Design Brief - D07-12-21-0149'
  • Rendering of building from page 46 of the file '2021-11-25 - UDRP Dec 3 2021 Design Brief - D07-12-21-0149'
  • Rendering of building from page 49 of the file '2021-11-25 - UDRP Dec 3 2021 Design Brief - D07-12-21-0149'
  • Rendering of building from page 48 of the file '2021-11-25 - UDRP Dec 3 2021 Design Brief - D07-12-21-0149'
  • Rendering of building from page 43 of the file '2021-11-25 - UDRP Dec 3 2021 Design Brief - D07-12-21-0149'

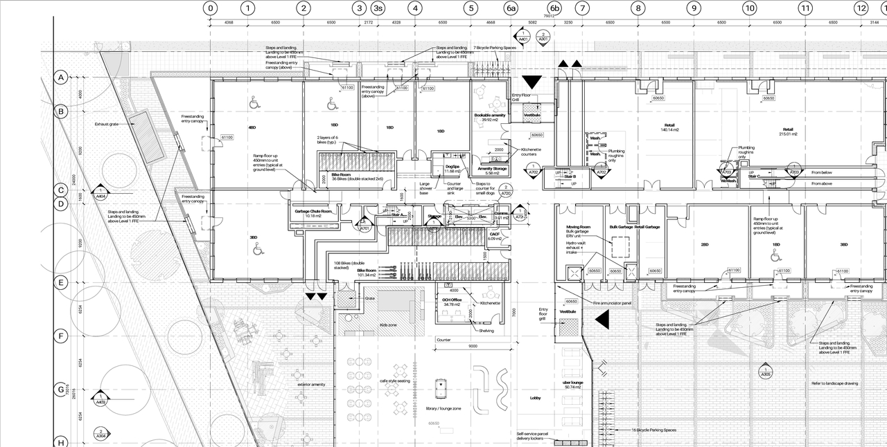
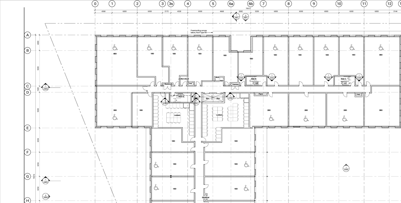
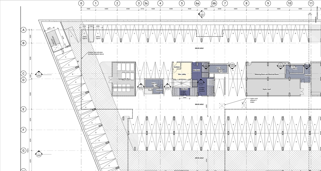
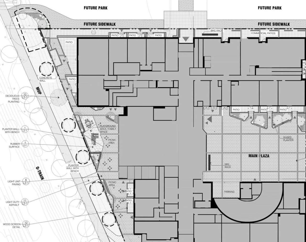
Site and Floor Plans #

  • Construction site plan for project from page 10 of the file '2021-11-25 - UDRP Dec 3 2021 Design Brief - D07-12-21-0149'
  • Construction site plan for project from page 12 of the file '2021-11-25 - UDRP Dec 3 2021 Design Brief - D07-12-21-0149'
  • Construction site plan for project from page 13 of the file '2021-11-25 - UDRP Dec 3 2021 Design Brief - D07-12-21-0149'
  • Construction site plan for project from page 14 of the file '2021-11-25 - UDRP Dec 3 2021 Design Brief - D07-12-21-0149'
  • Construction site plan for project from page 15 of the file '2021-11-25 - UDRP Dec 3 2021 Design Brief - D07-12-21-0149'
  • Construction site plan for project from page 16 of the file '2021-11-25 - UDRP Dec 3 2021 Design Brief - D07-12-21-0149'
  • Construction site plan for project from page 18 of the file '2021-11-25 - UDRP Dec 3 2021 Design Brief - D07-12-21-0149'
  • Construction site plan for project from page 19 of the file '2021-11-25 - UDRP Dec 3 2021 Design Brief - D07-12-21-0149'
  • Construction site plan for project from page 20 of the file '2021-11-25 - UDRP Dec 3 2021 Design Brief - D07-12-21-0149'
  • Construction site plan for project from page 21 of the file '2021-11-25 - UDRP Dec 3 2021 Design Brief - D07-12-21-0149'
  • Construction site plan for project from page 25 of the file '2021-11-25 - UDRP Dec 3 2021 Design Brief - D07-12-21-0149'
  • Construction site plan for project from page 25 of the file '2021-11-25 - UDRP Dec 3 2021 Design Brief - D07-12-21-0149'
  • Construction site plan for project from page 35 of the file '2021-11-25 - UDRP Dec 3 2021 Design Brief - D07-12-21-0149'
  • Construction site plan for project from page 36 of the file '2021-11-25 - UDRP Dec 3 2021 Design Brief - D07-12-21-0149'
  • Construction site plan for project from page 36 of the file '2021-11-25 - UDRP Dec 3 2021 Design Brief - D07-12-21-0149'
  • Construction site plan for project from page 37 of the file '2021-11-25 - UDRP Dec 3 2021 Design Brief - D07-12-21-0149'
  • Construction site plan for project from page 37 of the file '2021-11-25 - UDRP Dec 3 2021 Design Brief - D07-12-21-0149'
  • Construction site plan for project from page 38 of the file '2021-11-25 - UDRP Dec 3 2021 Design Brief - D07-12-21-0149'
  • Construction site plan for project from page 40 of the file '2021-11-25 - UDRP Dec 3 2021 Design Brief - D07-12-21-0149'
  • Construction site plan for project from page 41 of the file '2021-11-25 - UDRP Dec 3 2021 Design Brief - D07-12-21-0149'
  • Construction site plan for project from page 56 of the file '2021-11-25 - UDRP Dec 3 2021 Design Brief - D07-12-21-0149'
  • Construction site plan for project from page 60 of the file '2021-11-25 - UDRP Dec 3 2021 Design Brief - D07-12-21-0149'
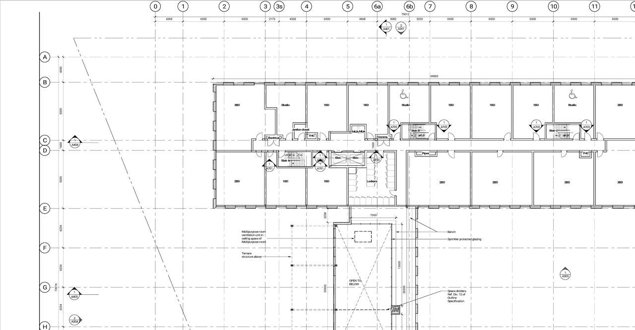
  • Floor plan for project from page 67 of the file '2021-11-25 - UDRP Dec 3 2021 Design Brief - D07-12-21-0149'
  • Floor plan for project from page 68 of the file '2021-11-25 - UDRP Dec 3 2021 Design Brief - D07-12-21-0149'
  • Floor plan for project from page 68 of the file '2021-11-25 - UDRP Dec 3 2021 Design Brief - D07-12-21-0149'
  • Floor plan for project from page 68 of the file '2021-11-25 - UDRP Dec 3 2021 Design Brief - D07-12-21-0149'
  • Floor plan for project from page 69 of the file '2021-11-25 - UDRP Dec 3 2021 Design Brief - D07-12-21-0149'
  • Floor plan for project from page 70 of the file '2021-11-25 - UDRP Dec 3 2021 Design Brief - D07-12-21-0149'
  • Construction site plan for project from page 71 of the file '2021-11-25 - UDRP Dec 3 2021 Design Brief - D07-12-21-0149'
  • Construction site plan for project from page 72 of the file '2021-11-25 - UDRP Dec 3 2021 Design Brief - D07-12-21-0149'
  • Construction site plan for project from page 73 of the file '2021-11-25 - UDRP Dec 3 2021 Design Brief - D07-12-21-0149'
  • Construction site plan for project from page 74 of the file '2021-11-25 - UDRP Dec 3 2021 Design Brief - D07-12-21-0149'
  • Construction site plan for project from page 75 of the file '2021-11-25 - UDRP Dec 3 2021 Design Brief - D07-12-21-0149'
  • Construction site plan for project from page 76 of the file '2021-11-25 - UDRP Dec 3 2021 Design Brief - D07-12-21-0149'
  • Construction site plan for project from page 77 of the file '2021-11-25 - UDRP Dec 3 2021 Design Brief - D07-12-21-0149'
  • Construction site plan for project from page 78 of the file '2021-11-25 - UDRP Dec 3 2021 Design Brief - D07-12-21-0149'
  • Construction site plan for project from page 79 of the file '2021-11-25 - UDRP Dec 3 2021 Design Brief - D07-12-21-0149'
  • Construction site plan for project from page 80 of the file '2021-11-25 - UDRP Dec 3 2021 Design Brief - D07-12-21-0149'
  • Construction site plan for project from page 81 of the file '2021-11-25 - UDRP Dec 3 2021 Design Brief - D07-12-21-0149'
  • Construction site plan for project from page 82 of the file '2021-11-25 - UDRP Dec 3 2021 Design Brief - D07-12-21-0149'
  • Construction site plan for project from page 83 of the file '2021-11-25 - UDRP Dec 3 2021 Design Brief - D07-12-21-0149'
  • Construction site plan for project from page 84 of the file '2021-11-25 - UDRP Dec 3 2021 Design Brief - D07-12-21-0149'
  • Construction site plan for project from page 85 of the file '2021-11-25 - UDRP Dec 3 2021 Design Brief - D07-12-21-0149'
  • Construction site plan for project from page 86 of the file '2021-11-25 - UDRP Dec 3 2021 Design Brief - D07-12-21-0149'
  • Construction site plan for project from page 87 of the file '2021-11-25 - UDRP Dec 3 2021 Design Brief - D07-12-21-0149'
  • Construction site plan for project from page 88 of the file '2021-11-25 - UDRP Dec 3 2021 Design Brief - D07-12-21-0149'
  • Construction site plan for project from page 89 of the file '2021-11-25 - UDRP Dec 3 2021 Design Brief - D07-12-21-0149'
  • Construction site plan for project from page 90 of the file '2021-11-25 - UDRP Dec 3 2021 Design Brief - D07-12-21-0149'
  • Construction site plan for project from page 91 of the file '2021-11-25 - UDRP Dec 3 2021 Design Brief - D07-12-21-0149'
  • Construction site plan for project from page 92 of the file '2021-11-25 - UDRP Dec 3 2021 Design Brief - D07-12-21-0149'
  • Construction site plan for project from page 93 of the file '2021-11-25 - UDRP Dec 3 2021 Design Brief - D07-12-21-0149'
  • Construction site plan for project from page 94 of the file '2021-11-25 - UDRP Dec 3 2021 Design Brief - D07-12-21-0149'
  • Construction site plan for project from page 95 of the file '2021-11-25 - UDRP Dec 3 2021 Design Brief - D07-12-21-0149'
  • Construction site plan for project from page 96 of the file '2021-11-25 - UDRP Dec 3 2021 Design Brief - D07-12-21-0149'
  • Construction site plan for project from page 97 of the file '2021-11-25 - UDRP Dec 3 2021 Design Brief - D07-12-21-0149'
  • Construction site plan for project from page 98 of the file '2021-11-25 - UDRP Dec 3 2021 Design Brief - D07-12-21-0149'
  • Construction site plan for project from page 99 of the file '2021-11-25 - UDRP Dec 3 2021 Design Brief - D07-12-21-0149'
  • Construction site plan for project from page 101 of the file '2021-11-25 - UDRP Dec 3 2021 Design Brief - D07-12-21-0149'
  • Construction site plan for project from page 2 of the file '2021-09-24 - Floor Plans - D07-12-21-0149'
  • Construction site plan for project from page 3 of the file '2021-09-24 - Floor Plans - D07-12-21-0149'
  • Construction site plan for project from page 4 of the file '2021-09-24 - Floor Plans - D07-12-21-0149'
  • Floor plan for project from page 9 of the file '2021-09-24 - Floor Plans - D07-12-21-0149'
  • Floor plan for project from page 10 of the file '2021-09-24 - Floor Plans - D07-12-21-0149'
  • Floor plan for project from page 11 of the file '2021-09-24 - Floor Plans - D07-12-21-0149'
  • Floor plan for project from page 13 of the file '2021-09-24 - Floor Plans - D07-12-21-0149'
  • Floor plan for project from page 14 of the file '2021-09-24 - Floor Plans - D07-12-21-0149'
  • Floor plan for project from page 15 of the file '2021-09-24 - Floor Plans - D07-12-21-0149'
  • Floor plan for project from page 17 of the file '2021-09-24 - Floor Plans - D07-12-21-0149'
  • Floor plan for project from page 22 of the file '2021-09-24 - Floor Plans - D07-12-21-0149'
  • Construction site plan for project from page 13 of the file '2021-09-24 - Design Brief - D07-12-21-0149'
  • Construction site plan for project from page 13 of the file '2021-09-24 - Design Brief - D07-12-21-0149'
  • Construction site plan for project from page 14 of the file '2021-09-24 - Design Brief - D07-12-21-0149'
  • Construction site plan for project from page 14 of the file '2021-09-24 - Design Brief - D07-12-21-0149'
  • Construction site plan for project from page 17 of the file '2021-09-24 - Design Brief - D07-12-21-0149'
  • Construction site plan for project from page 23 of the file '2021-09-24 - Design Brief - D07-12-21-0149'
  • Construction site plan for project from page 10 of the file '2021-11-25 - UDRP Dec 3 2021 Design Brief - D07-12-21-0149'
  • Construction site plan for project from page 12 of the file '2021-11-25 - UDRP Dec 3 2021 Design Brief - D07-12-21-0149'
  • Construction site plan for project from page 13 of the file '2021-11-25 - UDRP Dec 3 2021 Design Brief - D07-12-21-0149'
  • Construction site plan for project from page 14 of the file '2021-11-25 - UDRP Dec 3 2021 Design Brief - D07-12-21-0149'
  • Construction site plan for project from page 15 of the file '2021-11-25 - UDRP Dec 3 2021 Design Brief - D07-12-21-0149'
  • Construction site plan for project from page 16 of the file '2021-11-25 - UDRP Dec 3 2021 Design Brief - D07-12-21-0149'
  • Construction site plan for project from page 18 of the file '2021-11-25 - UDRP Dec 3 2021 Design Brief - D07-12-21-0149'
  • Construction site plan for project from page 19 of the file '2021-11-25 - UDRP Dec 3 2021 Design Brief - D07-12-21-0149'
  • Construction site plan for project from page 20 of the file '2021-11-25 - UDRP Dec 3 2021 Design Brief - D07-12-21-0149'
  • Construction site plan for project from page 21 of the file '2021-11-25 - UDRP Dec 3 2021 Design Brief - D07-12-21-0149'
  • Construction site plan for project from page 25 of the file '2021-11-25 - UDRP Dec 3 2021 Design Brief - D07-12-21-0149'
  • Construction site plan for project from page 25 of the file '2021-11-25 - UDRP Dec 3 2021 Design Brief - D07-12-21-0149'
  • Construction site plan for project from page 35 of the file '2021-11-25 - UDRP Dec 3 2021 Design Brief - D07-12-21-0149'
  • Construction site plan for project from page 36 of the file '2021-11-25 - UDRP Dec 3 2021 Design Brief - D07-12-21-0149'
  • Construction site plan for project from page 36 of the file '2021-11-25 - UDRP Dec 3 2021 Design Brief - D07-12-21-0149'
  • Construction site plan for project from page 37 of the file '2021-11-25 - UDRP Dec 3 2021 Design Brief - D07-12-21-0149'
  • Construction site plan for project from page 37 of the file '2021-11-25 - UDRP Dec 3 2021 Design Brief - D07-12-21-0149'
  • Construction site plan for project from page 38 of the file '2021-11-25 - UDRP Dec 3 2021 Design Brief - D07-12-21-0149'
  • Construction site plan for project from page 40 of the file '2021-11-25 - UDRP Dec 3 2021 Design Brief - D07-12-21-0149'
  • Construction site plan for project from page 41 of the file '2021-11-25 - UDRP Dec 3 2021 Design Brief - D07-12-21-0149'
  • Construction site plan for project from page 56 of the file '2021-11-25 - UDRP Dec 3 2021 Design Brief - D07-12-21-0149'
  • Construction site plan for project from page 60 of the file '2021-11-25 - UDRP Dec 3 2021 Design Brief - D07-12-21-0149'
  • Floor plan for project from page 67 of the file '2021-11-25 - UDRP Dec 3 2021 Design Brief - D07-12-21-0149'
  • Floor plan for project from page 68 of the file '2021-11-25 - UDRP Dec 3 2021 Design Brief - D07-12-21-0149'
  • Floor plan for project from page 68 of the file '2021-11-25 - UDRP Dec 3 2021 Design Brief - D07-12-21-0149'
  • Floor plan for project from page 68 of the file '2021-11-25 - UDRP Dec 3 2021 Design Brief - D07-12-21-0149'
  • Floor plan for project from page 69 of the file '2021-11-25 - UDRP Dec 3 2021 Design Brief - D07-12-21-0149'
  • Floor plan for project from page 70 of the file '2021-11-25 - UDRP Dec 3 2021 Design Brief - D07-12-21-0149'
  • Construction site plan for project from page 71 of the file '2021-11-25 - UDRP Dec 3 2021 Design Brief - D07-12-21-0149'
  • Construction site plan for project from page 72 of the file '2021-11-25 - UDRP Dec 3 2021 Design Brief - D07-12-21-0149'
  • Construction site plan for project from page 73 of the file '2021-11-25 - UDRP Dec 3 2021 Design Brief - D07-12-21-0149'
  • Construction site plan for project from page 74 of the file '2021-11-25 - UDRP Dec 3 2021 Design Brief - D07-12-21-0149'
  • Construction site plan for project from page 75 of the file '2021-11-25 - UDRP Dec 3 2021 Design Brief - D07-12-21-0149'
  • Construction site plan for project from page 76 of the file '2021-11-25 - UDRP Dec 3 2021 Design Brief - D07-12-21-0149'
  • Construction site plan for project from page 77 of the file '2021-11-25 - UDRP Dec 3 2021 Design Brief - D07-12-21-0149'
  • Construction site plan for project from page 78 of the file '2021-11-25 - UDRP Dec 3 2021 Design Brief - D07-12-21-0149'
  • Construction site plan for project from page 79 of the file '2021-11-25 - UDRP Dec 3 2021 Design Brief - D07-12-21-0149'
  • Construction site plan for project from page 80 of the file '2021-11-25 - UDRP Dec 3 2021 Design Brief - D07-12-21-0149'
  • Construction site plan for project from page 81 of the file '2021-11-25 - UDRP Dec 3 2021 Design Brief - D07-12-21-0149'
  • Construction site plan for project from page 82 of the file '2021-11-25 - UDRP Dec 3 2021 Design Brief - D07-12-21-0149'
  • Construction site plan for project from page 83 of the file '2021-11-25 - UDRP Dec 3 2021 Design Brief - D07-12-21-0149'
  • Construction site plan for project from page 84 of the file '2021-11-25 - UDRP Dec 3 2021 Design Brief - D07-12-21-0149'
  • Construction site plan for project from page 85 of the file '2021-11-25 - UDRP Dec 3 2021 Design Brief - D07-12-21-0149'
  • Construction site plan for project from page 86 of the file '2021-11-25 - UDRP Dec 3 2021 Design Brief - D07-12-21-0149'
  • Construction site plan for project from page 87 of the file '2021-11-25 - UDRP Dec 3 2021 Design Brief - D07-12-21-0149'
  • Construction site plan for project from page 88 of the file '2021-11-25 - UDRP Dec 3 2021 Design Brief - D07-12-21-0149'
  • Construction site plan for project from page 89 of the file '2021-11-25 - UDRP Dec 3 2021 Design Brief - D07-12-21-0149'
  • Construction site plan for project from page 90 of the file '2021-11-25 - UDRP Dec 3 2021 Design Brief - D07-12-21-0149'
  • Construction site plan for project from page 91 of the file '2021-11-25 - UDRP Dec 3 2021 Design Brief - D07-12-21-0149'
  • Construction site plan for project from page 92 of the file '2021-11-25 - UDRP Dec 3 2021 Design Brief - D07-12-21-0149'
  • Construction site plan for project from page 93 of the file '2021-11-25 - UDRP Dec 3 2021 Design Brief - D07-12-21-0149'
  • Construction site plan for project from page 94 of the file '2021-11-25 - UDRP Dec 3 2021 Design Brief - D07-12-21-0149'
  • Construction site plan for project from page 95 of the file '2021-11-25 - UDRP Dec 3 2021 Design Brief - D07-12-21-0149'
  • Construction site plan for project from page 96 of the file '2021-11-25 - UDRP Dec 3 2021 Design Brief - D07-12-21-0149'
  • Construction site plan for project from page 97 of the file '2021-11-25 - UDRP Dec 3 2021 Design Brief - D07-12-21-0149'
  • Construction site plan for project from page 98 of the file '2021-11-25 - UDRP Dec 3 2021 Design Brief - D07-12-21-0149'
  • Construction site plan for project from page 99 of the file '2021-11-25 - UDRP Dec 3 2021 Design Brief - D07-12-21-0149'
  • Construction site plan for project from page 101 of the file '2021-11-25 - UDRP Dec 3 2021 Design Brief - D07-12-21-0149'
  • Construction site plan for project from page 2 of the file '2021-09-24 - Floor Plans - D07-12-21-0149'
  • Construction site plan for project from page 3 of the file '2021-09-24 - Floor Plans - D07-12-21-0149'
  • Construction site plan for project from page 4 of the file '2021-09-24 - Floor Plans - D07-12-21-0149'
  • Floor plan for project from page 9 of the file '2021-09-24 - Floor Plans - D07-12-21-0149'
  • Floor plan for project from page 10 of the file '2021-09-24 - Floor Plans - D07-12-21-0149'
  • Floor plan for project from page 11 of the file '2021-09-24 - Floor Plans - D07-12-21-0149'
  • Floor plan for project from page 13 of the file '2021-09-24 - Floor Plans - D07-12-21-0149'
  • Floor plan for project from page 14 of the file '2021-09-24 - Floor Plans - D07-12-21-0149'
  • Floor plan for project from page 15 of the file '2021-09-24 - Floor Plans - D07-12-21-0149'
  • Floor plan for project from page 17 of the file '2021-09-24 - Floor Plans - D07-12-21-0149'
  • Floor plan for project from page 22 of the file '2021-09-24 - Floor Plans - D07-12-21-0149'
  • Construction site plan for project from page 13 of the file '2021-09-24 - Design Brief - D07-12-21-0149'
  • Construction site plan for project from page 13 of the file '2021-09-24 - Design Brief - D07-12-21-0149'
  • Construction site plan for project from page 14 of the file '2021-09-24 - Design Brief - D07-12-21-0149'
  • Construction site plan for project from page 14 of the file '2021-09-24 - Design Brief - D07-12-21-0149'
  • Construction site plan for project from page 17 of the file '2021-09-24 - Design Brief - D07-12-21-0149'
  • Construction site plan for project from page 23 of the file '2021-09-24 - Design Brief - D07-12-21-0149'

Documents #

TypeDocument
Application Summary2021-10-01 - Application Summary - D07-12-21-0149
Architectural Plans2024-03-12 - Elevations - D07-12-21-0149
Architectural Plans2023-10-19 - APPROVED Site Plan - D07-12-21-0149
Architectural Plans2023-10-19 - APPROVED Elevations - D07-12-21-0149
Architectural Plans2022-03-31 - Updated Architectural Package - D07-12-21-0149
Architectural Plans2021-09-24 - Site Plan - D07-12-21-0149
Architectural Plans2021-09-24 - Engineering Plans - D07-12-21-0149
Civil Engineering Report2023-10-19 - APPROVED Civil Drawings - D07-12-21-0149
Design Brief2021-11-25 - UDRP Dec 3 2021 Design Brief - D07-12-21-0149
Design Brief2021-09-24 - Design Brief - D07-12-21-0149
Environmental2023-10-19 - Phase II Environmental Site Assessment Update - D07-12-21-0149
Environmental2023-10-19 - Phase I Environmental Site Assessment Update - D07-12-21-0149
Environmental2021-09-24 - Phase II Environmental Site Assessment - D07-12-21-0149
Environmental2021-09-24 - Phase I Environmental Site Assessement - D07-12-21-0149
Floor Plan2021-09-24 - Floor Plans - D07-12-21-0149
Geotechnical Report2023-10-19 - Geotechnical Investigation - D07-12-21-0149
Geotechnical Report2021-09-24 - Geotechnical Investigation - D07-12-21-0149
Landscape Plan2023-10-19 - APPROVED Landscape Plans - D07-12-21-0149
Landscape Plan2021-09-24 - Landscape Plan - D07-12-21-0149
Landscape Plan2021-09-24 - Landscape Details - D07-12-21-0149
Noise Study2021-09-27 - Traffic Noise - D07-12-21-0149
Planning2021-09-24 - Planning Rationale - D07-12-21-0149
Shadow Study2021-09-24 - Shadow Analysis - D07-12-21-0149
Site Servicing2023-10-19 - Site Servicing and Stormwater Management Design Brief - D07-12-21-0149
Site Servicing2022-03-31 - Site Servicing and Stormwater Management Design Brief - D07-12-21-0149
Site Servicing2021-09-24 - Site Servicing and Stormwater Management Design Brief - D07-12-21-0149
Transportation Analysis2021-09-24 - Transportation Impact Assessment - D07-12-21-0149
Tree Information and Conservation2021-09-24 - Tree Protection Plan - D07-12-21-0149
Wind Study2021-09-24 - Wind Study - D07-12-21-0149
2023-10-19 - Signed Delegated Authority Report - D07-12-21-0149
2021-09-24 - Trillium Line Level 2 Proximity Study - D07-12-21-0149
2021-09-24 - Appendix B-D - D07-12-21-0149
2021-09-24 - Appendix A - D07-12-21-0149
IDAddressLast UpdatedDate Initiated
D07-16-21-0022933 Gladstone2024-06-032021-07-02