1291 Summerville Ave. (D07-12-21-0126) #
Summary #
| Application Status | Post Approval |
| Review Status | Agreement Signed |
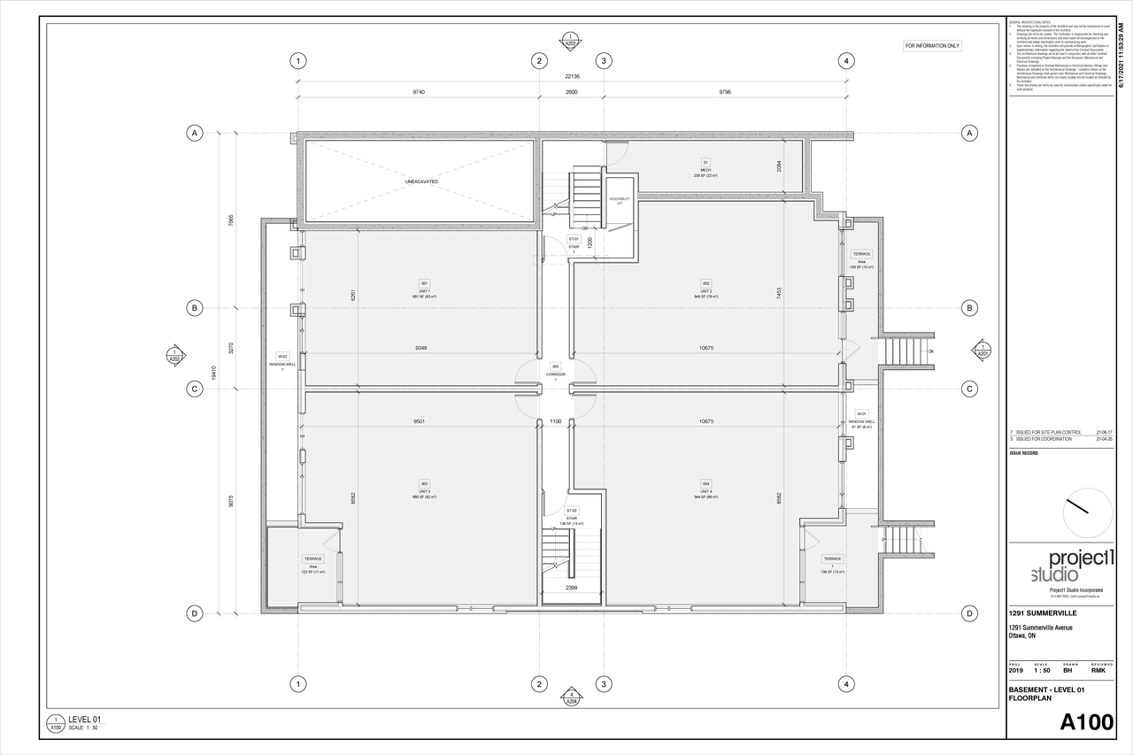
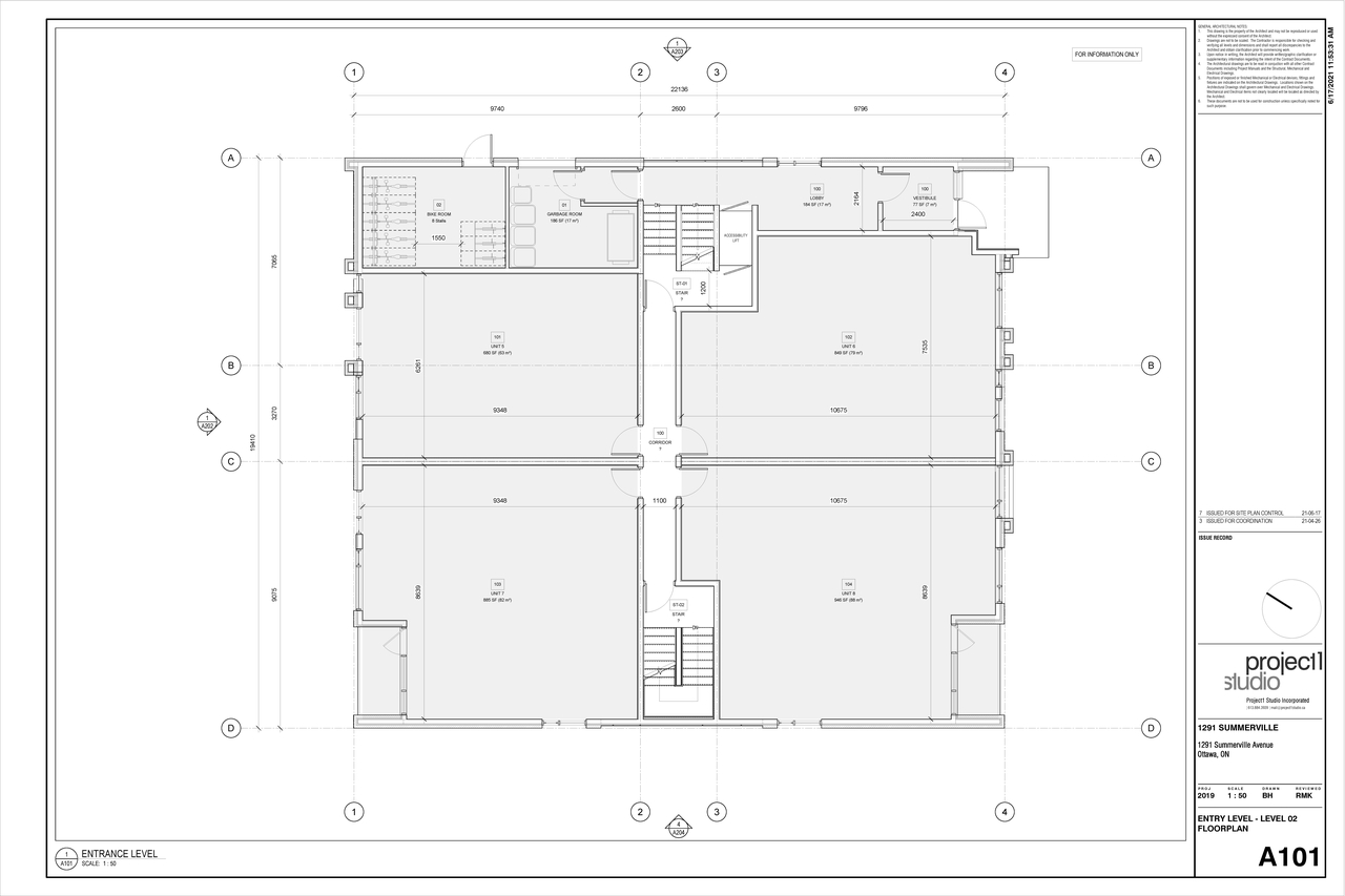
| Description | Proposed low-rise apartment building containing 16 units with four parking spaces located in the rear yard. |
| Ward | Ward 16 - Riley Brockington |
| Date Initiated | 2021-08-19 |
| Last Updated | 2025-12-02 |
Renders #
Location #
Select a marker to view the address.









