1055 Klondike (D07-12-21-0109)

1055 Klondike (D07-12-21-0109) #

Summary #

Application StatusPost Approval
Review StatusReceipt of Agreement from Owner Pending
DescriptionProposed 53 unit low-rise apartment building
WardWard 4 - Cathy Curry
Date Initiated2021-07-20
Last Updated2025-09-29

Renders #

  • Rendering of building from page 1 of the file '2021-07-20 - South View - D07-12-210109'
  • Rendering of building from page 1 of the file '2021-07-20 - East View - D07-12-21-0109'
  • Rendering of building from page 1 of the file '2021-07-20 - West View - D07-12-21-0109'
  • Rendering of building from page 1 of the file '2021-07-20 - View of Main Entry 2 - D07-12-21-0109'
  • Rendering of building from page 1 of the file '2021-07-20 - View of Main Entry - D07-12-21-0109'
  • Rendering of building from page 1 of the file '2021-07-20 - South View - D07-12-210109'
  • Rendering of building from page 1 of the file '2021-07-20 - East View - D07-12-21-0109'
  • Rendering of building from page 1 of the file '2021-07-20 - West View - D07-12-21-0109'
  • Rendering of building from page 1 of the file '2021-07-20 - View of Main Entry 2 - D07-12-21-0109'
  • Rendering of building from page 1 of the file '2021-07-20 - View of Main Entry - D07-12-21-0109'

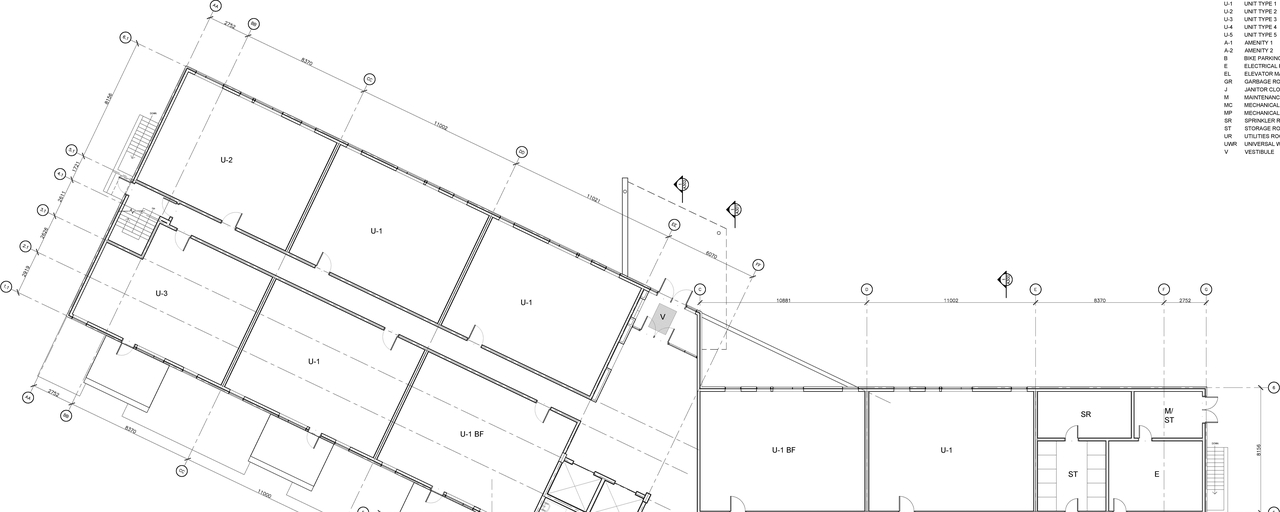
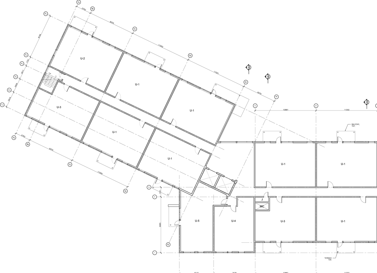
Site and Floor Plans #

  • Construction site plan for project from page 1 of the file '2021-07-20 - Third Floor Plan - D07-12-21-0109'
  • Construction site plan for project from page 1 of the file '2021-07-20 - Second Floor Plan - D07-12-21-0109'
  • Construction site plan for project from page 1 of the file '2021-07-20 - Overhead View - D07-12-21-0109'
  • Construction site plan for project from page 1 of the file '2021-07-20 - Fourth Floor Plan - D07-12-21-0109'
  • Construction site plan for project from page 1 of the file '2021-07-20 - First Floor Plan - D07-12-21-0109'
  • Construction site plan for project from page 1 of the file '2021-07-20 - Third Floor Plan - D07-12-21-0109'
  • Construction site plan for project from page 1 of the file '2021-07-20 - Second Floor Plan - D07-12-21-0109'
  • Construction site plan for project from page 1 of the file '2021-07-20 - Overhead View - D07-12-21-0109'
  • Construction site plan for project from page 1 of the file '2021-07-20 - Fourth Floor Plan - D07-12-21-0109'
  • Construction site plan for project from page 1 of the file '2021-07-20 - First Floor Plan - D07-12-21-0109'

Files #

TypeNameLinks
Application Summary2021-07-23 - Application Summary - D07-12-21-0109Download PDF
Architectural Plans2024-07-16 - APPROVED Site Plan - D07-12-21-0109Download PDF
Architectural Plans2024-07-16 - APPROVED Sanitary Drainage Area Plan - D07-12-21-0109Download PDF
Architectural Plans2024-07-16 - APPROVED Removals Erosion and Sediment Control Plan - D07-12-21-0109Download PDF
Architectural Plans2024-07-16 - APPROVED Elevations - D07-12-21-0109Download PDF
Architectural Plans2021-07-20 - West and South Elevations - D07-12-21-0109Download PDF
Architectural Plans2021-07-20 - Unit Plans - D07-12-21-0109Download PDF
Architectural Plans2021-07-20 - South and East Elevations - D07-12-21-0109Download PDF
Architectural Plans2021-07-20 - Site Plan - D07-12-21-0109Download PDF
Architectural Plans2021-07-20 - Roof and Mechanical Plan - D07-12-21-0109Download PDF
Architectural Plans2021-07-20 - North Elevations - D07-12-21-0109Download PDF
Architectural Plans2021-07-20 - Building Section 2 - D07-12-21-0109Download PDF
Architectural Plans2021-07-20 - Building Section 1 - D07-12-21-0109Download PDF
Architectural Plans2021-07-20 - Basement Plan - D07-12-21-0109Download PDF
Electrical Plan2021-07-20 - Electrical Plans - D07-12-21-0109Download PDF
Environmental2021-07-20 - Phase 1 Environmental Site Assessment - D07-12-21-0109Download PDF
Environmental2024-07-31 - APPROVED Phase 2 ESA OLD - D07-12-21-0109Download PDF
Environmental2024-07-31 - APPROVED Phase 1 ESA - D07-12-21-0109Download PDF
Environmental2024-07-31 - APPROVED ESA UPDATE - D07-12-21-0109Download PDF
Erosion And Sediment Control Plan2021-07-20 - Erosion and Sediment Control Plan - D07-12-21-0109Download PDF
Floor Plan2021-07-20 - Third Floor Plan - D07-12-21-0109Download PDF
Floor Plan2021-07-20 - Second Floor Plan - D07-12-21-0109Download PDF
Floor Plan2021-07-20 - Fourth Floor Plan - D07-12-21-0109Download PDF
Floor Plan2021-07-20 - First Floor Plan - D07-12-21-0109Download PDF
Geotechnical Report2024-07-16 - APPROVED Grading Plan - D07-12-21-0109Download PDF
Geotechnical Report2021-07-20 - Grading Plan - D07-12-21-0109Download PDF
Geotechnical Report2021-07-20 - Geotechnical Investigation - D07-12-21-0109Download PDF
Geotechnical Report2024-07-31 - APPROVED Supplemental Geotechnical Investigation - D07-12-21-0109Download PDF
Geotechnical Report2024-07-31 - APPROVED Geotechnical Investigation - D07-12-21-0109Download PDF
Landscape Plan2024-07-16 - APPROVED Landscape Plan - D07-12-21-0109Download PDF
Landscape Plan2021-07-20 - Landscape Plan - D07-12-21-0109Download PDF
Noise Study2024-07-16 - Noise Impact Assessment - D07-12-21-0109Download PDF
Noise Study2021-07-20 - Noise Impact Assessment - D07-12-21-0109Download PDF
Noise Study2024-07-31 - APPROVED Noise Impact Assessment - D07-12-21-0109Download PDF
Planning2021-07-20 - Planning and Design Rationale - D07-12-21-0109Download PDF
Planning2024-07-31 - APPROVED Planning Rationale - D07-12-21-0109Download PDF
Rendering2021-07-20 - West View - D07-12-21-0109Download PDF
Rendering2021-07-20 - View of Main Entry 2 - D07-12-21-0109Download PDF
Rendering2021-07-20 - View of Main Entry - D07-12-21-0109Download PDF
Rendering2021-07-20 - South View - D07-12-210109Download PDF
Rendering2021-07-20 - Overhead View - D07-12-21-0109Download PDF
Rendering2021-07-20 - East View - D07-12-21-0109Download PDF
Shadow Study2021-07-20 - Sun Shadow Study - D07-12-21-0109Download PDF
Site Servicing2024-07-16 - Site Servicing and SWM Report - D07-12-21-0109Download PDF
Site Servicing2024-07-16 - APPROVED Servicing Plan - D07-12-21-0109Download PDF
Site Servicing2021-07-20 - Site Servicing and Stormwater Management Report - D07-12-21-0109Download PDF
Site Servicing2021-07-20 - Servicing Plan - D07-12-21-0109Download PDF
Site Servicing2024-07-31 - APPROVED Servicing Brief - D07-12-21-0109Download PDF
Stormwater Management2024-07-16 - APPROVED Storm Drainage Area Plan - D07-12-21-0109Download PDF
Stormwater Management2021-07-20 - Storm Drainage Plan - D07-12-21-0109Download PDF
Surveying2021-07-20 - Survey Plan - D07-12-21-0109Download PDF
Transportation Analysis2024-07-31 - APPROVED Transportation Review - D07-12-21-0109Download PDF
Tree Information and Conservation2021-07-20 - Tree Planting Recommendations - D07-12-21-0109Download PDF
Tree Information and Conservation2021-07-20 - Environmental Impact Statement Tree Conservation Report - D07-12-21-0109Download PDF
Tree Information and Conservation2024-07-31 - APPROVED Tree Planting Recommendations - D07-12-21-0109Download PDF
2024-07-19 - SIGNED Delegated Authority Report - D07-12-21-0109Download PDF
2021-07-20 - Technical Review Transportation - D07-12-21-0109Download PDF
2024-07-31 - APPROVED Slope Stability Assessment - D07-12-21-0109Download PDF
2024-07-31 - APPROVED Phase2ESA - D07-12-21-0109Download PDF
2024-07-31 - APPROVED EISTCR - D07-12-21-0109Download PDF
2025-08-25 - CWN 1055 Klondike_Block 10 - D07-12-21-0109Download PDF