770-774 Bronson Ave./557 Cambridge St. (D07-12-21-0108)#
Summary#
| Application Status | Post Approval |
| Review Status | Receipt of Agreement from Owner Pending |
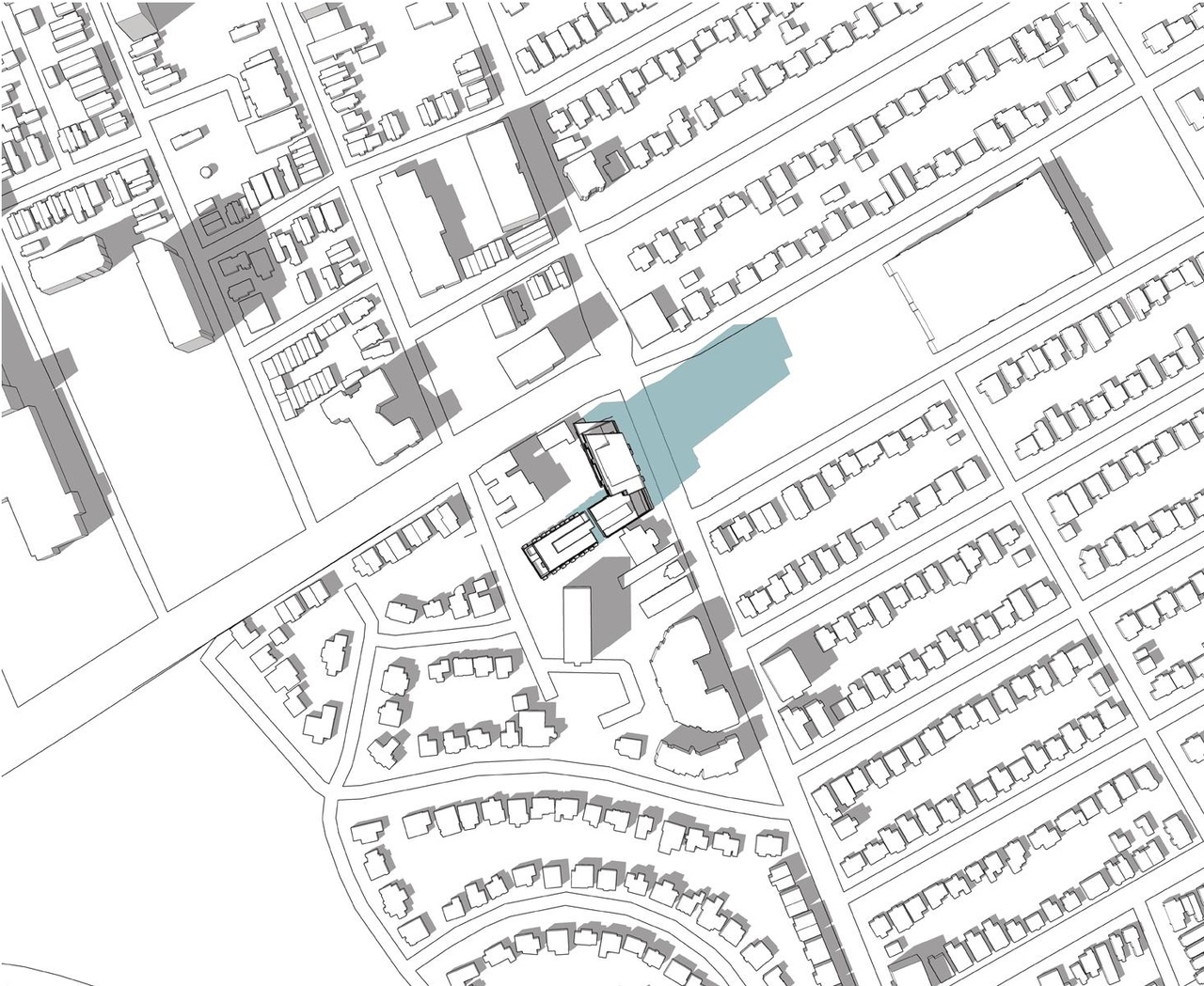
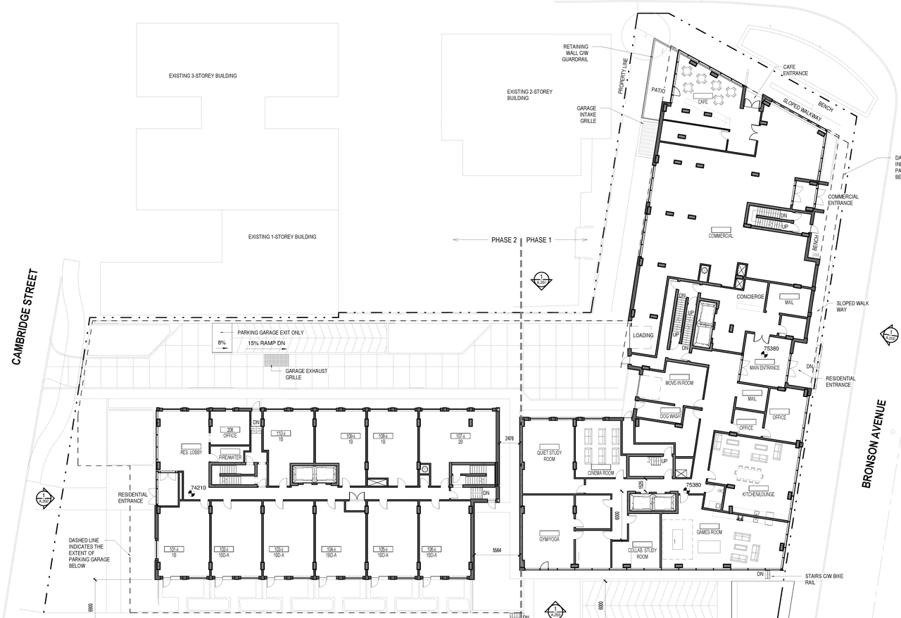
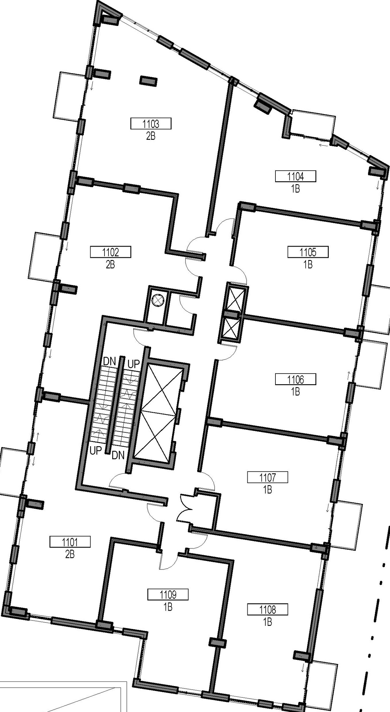
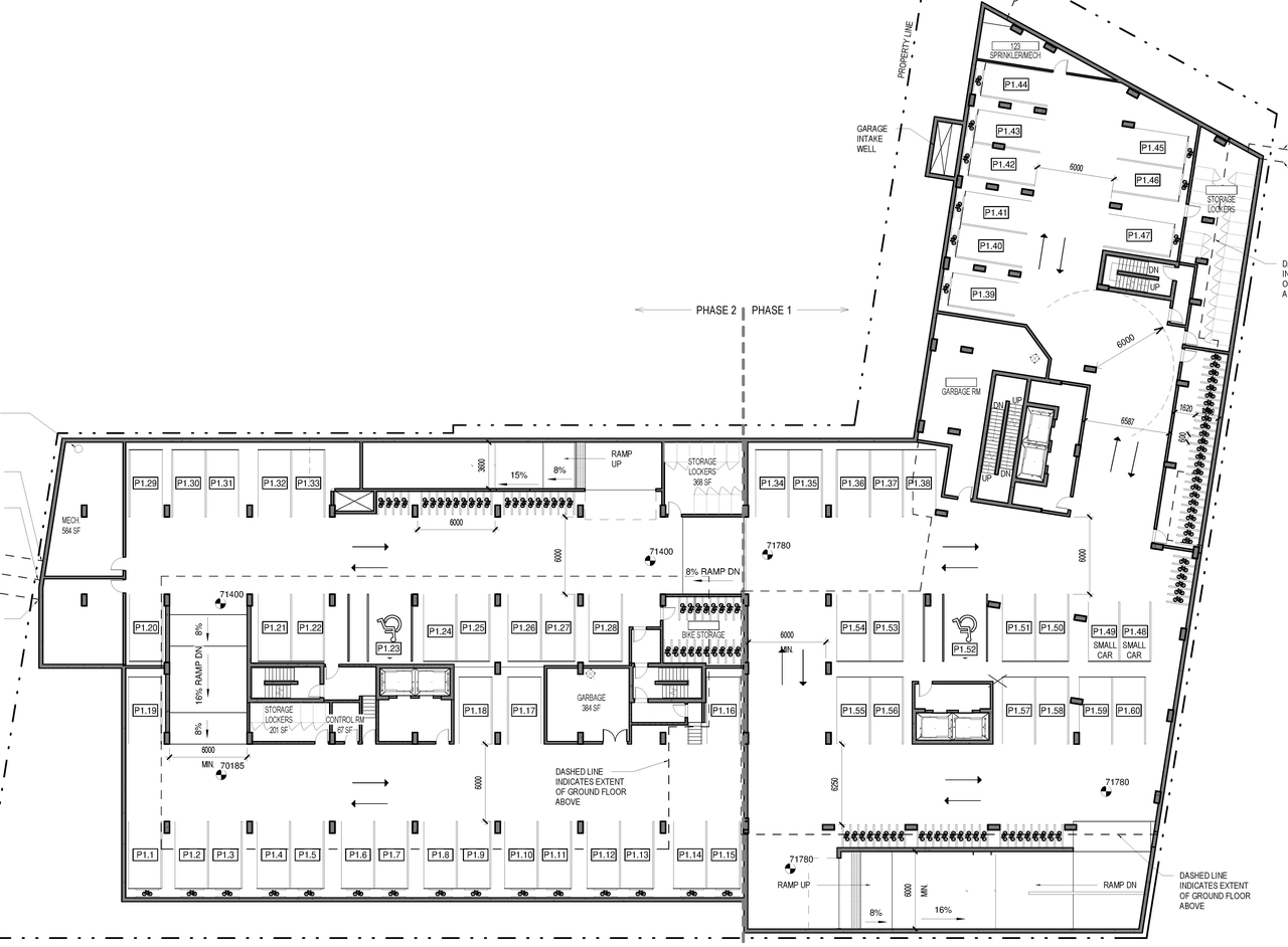
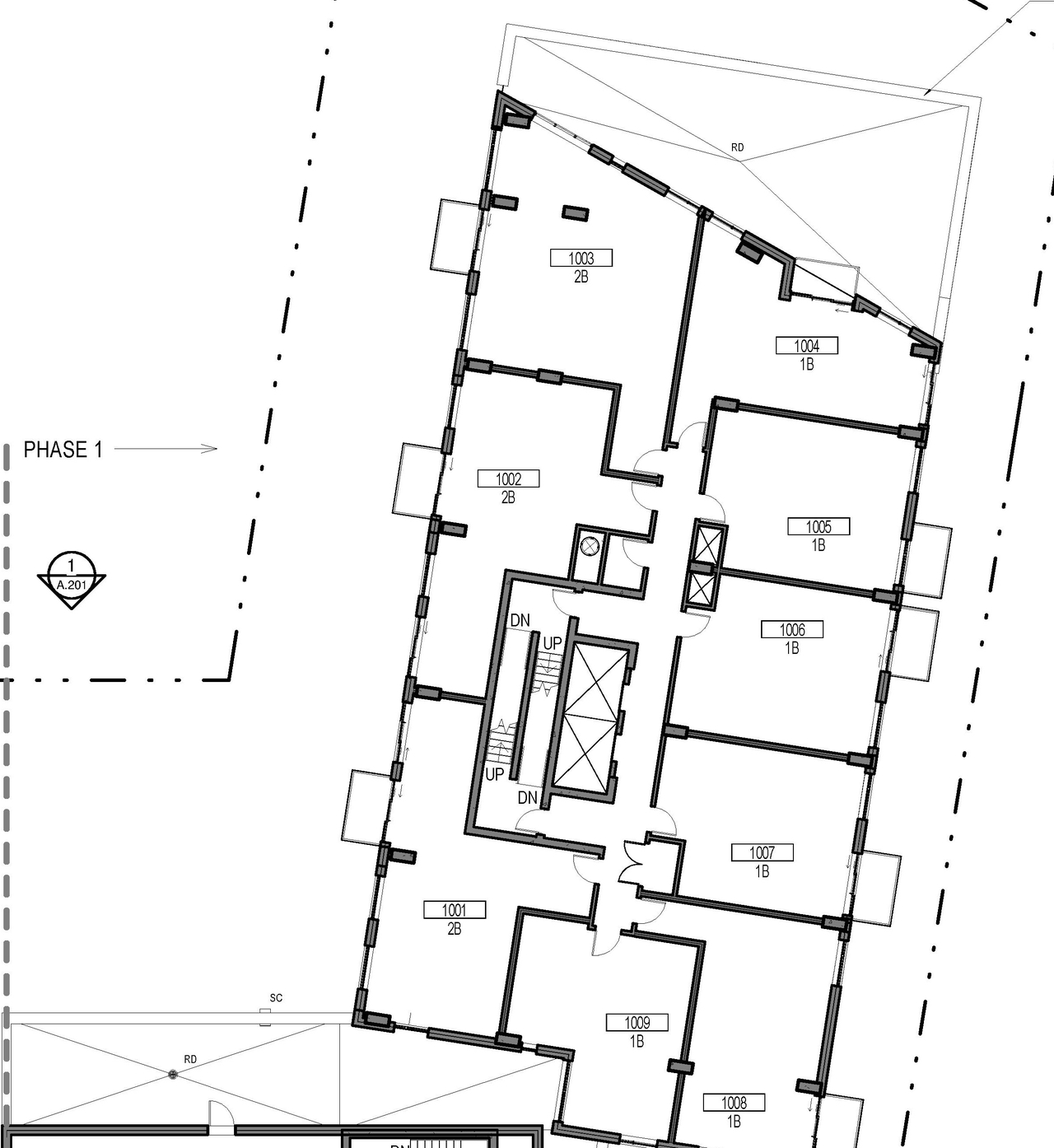
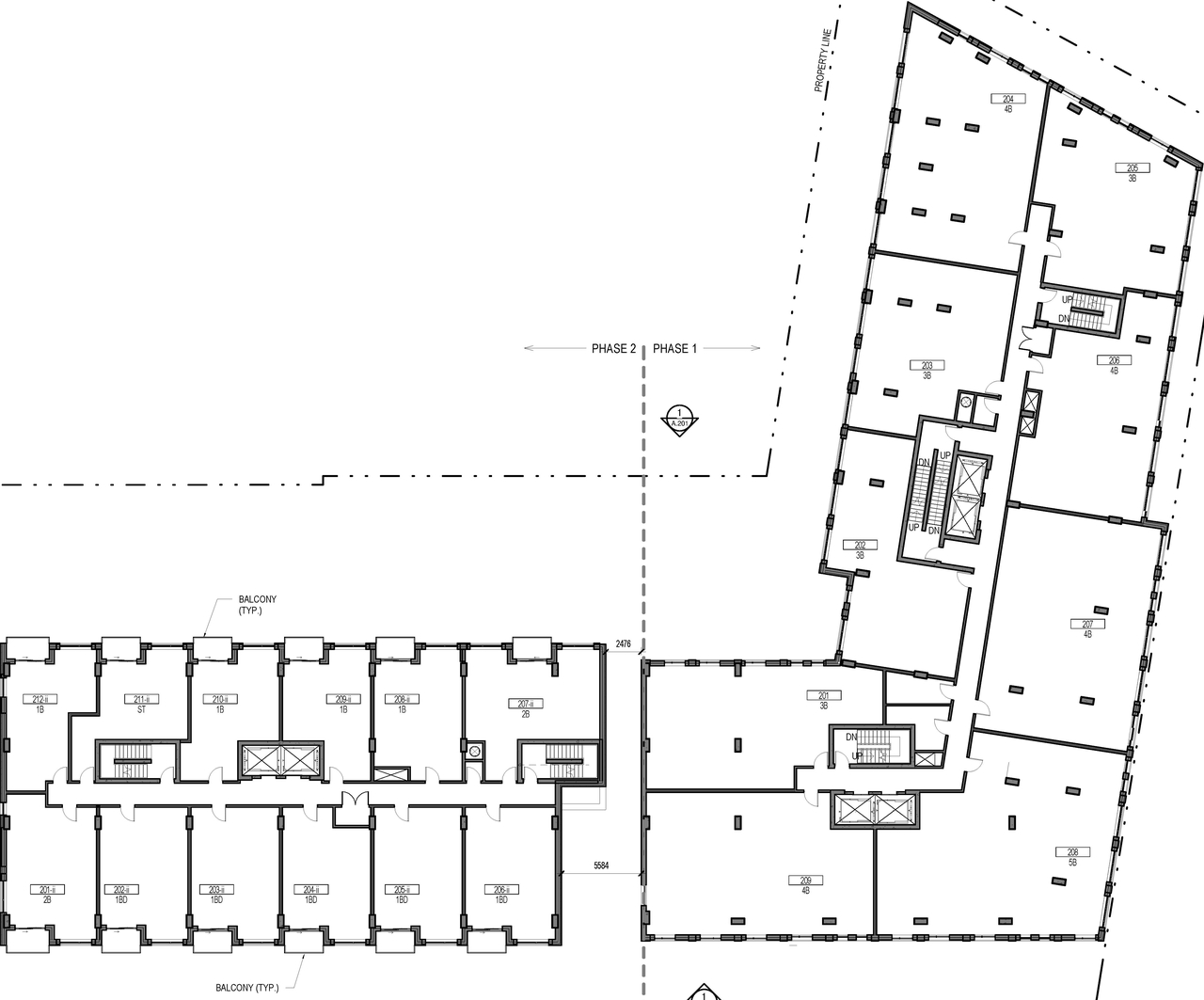
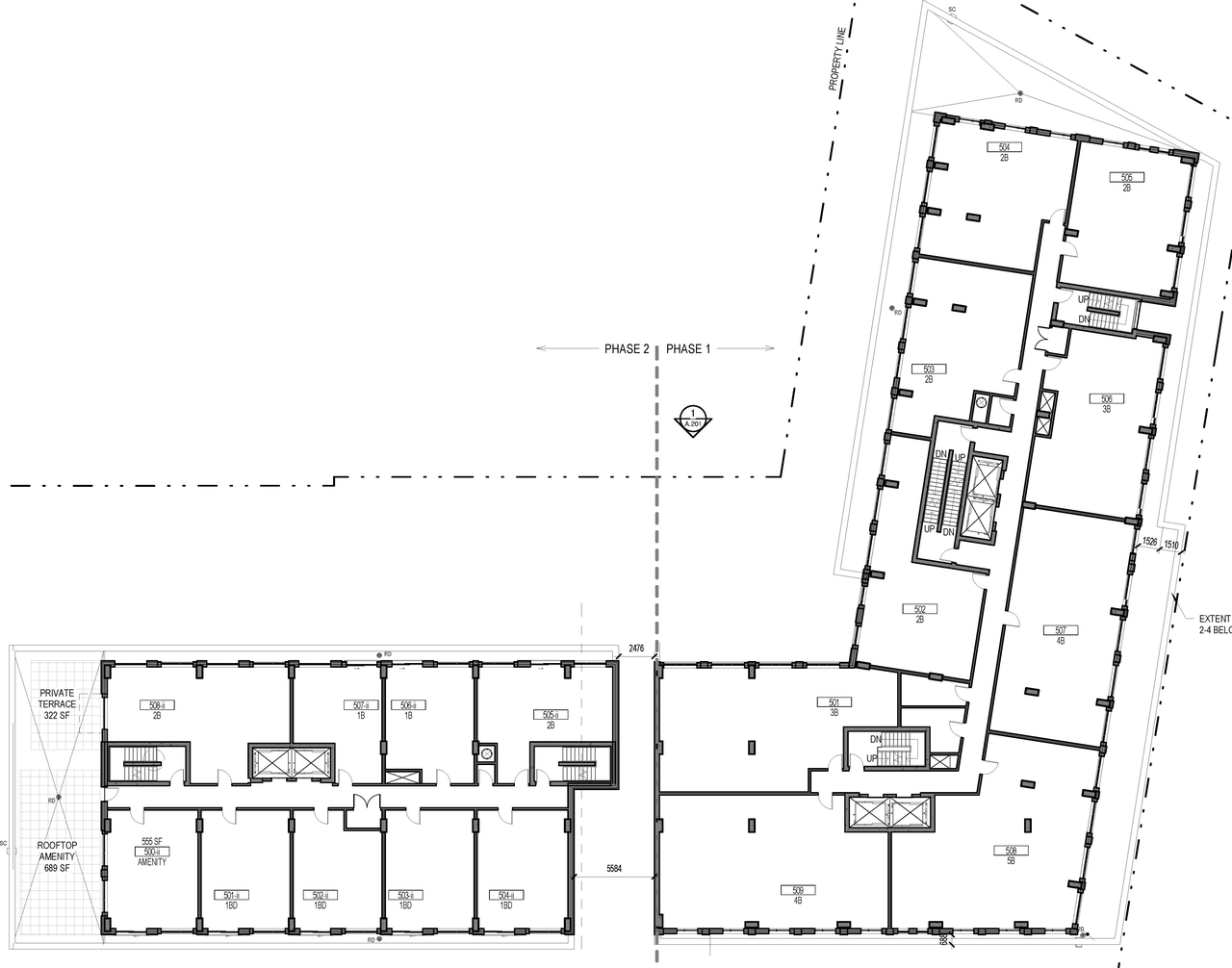
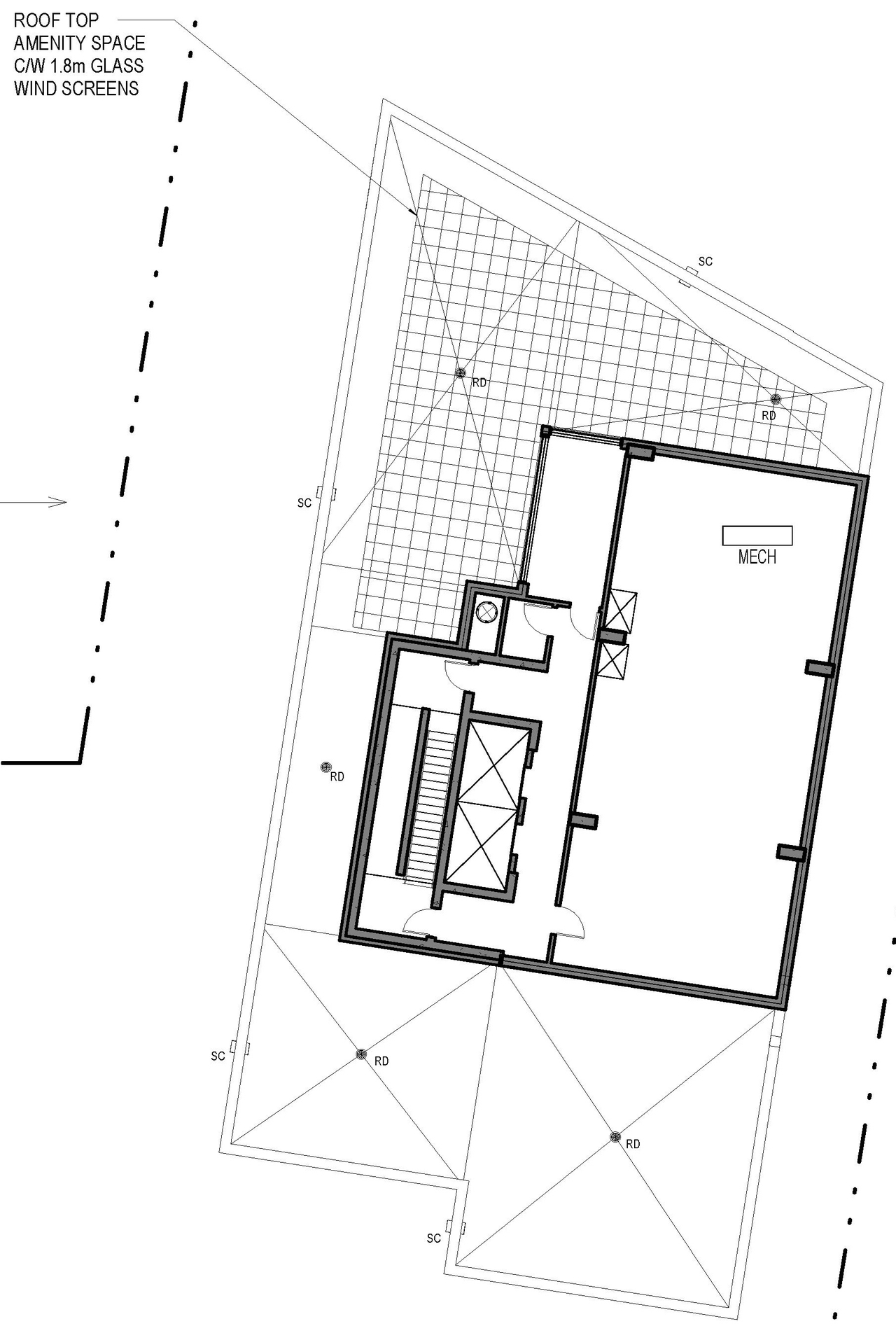
| Description | The proposed development consists of a 26-storey mixed-use building along Bronson Avenue and extending west to Cambridge Street South, stepping down to four (4) storeys adjacent to the low-rise neighbourhood. A total of 328 units are proposed within the building which is to be constructed in two phases. |
| Ward | Ward 17 - Shawn Menard |
| Date Initiated | 2021-07-19 |
| Last Updated | 2025-09-27 |
Renders#
Location#
Select a marker to view the address.
Site Plans, Elevations and Floor Plans#
Documents#
Additional Information#
| All Addresses | 770 Bronson Ave. 774 Bronson Ave. 557 Cambridge St. |

















































