1435 Morisset/1455 Morisset (D07-12-21-0091)

1435 Morisset/1455 Morisset (D07-12-21-0091) #

Summary #

Application StatusPost Approval
Review StatusReceipt of Agreement from Owner Pending
Description4-storey residential building with 31 units and 2373.3M2 GFA.
WardWard 16 - Riley Brockington
Date Initiated2021-06-23
Last Updated2025-02-10

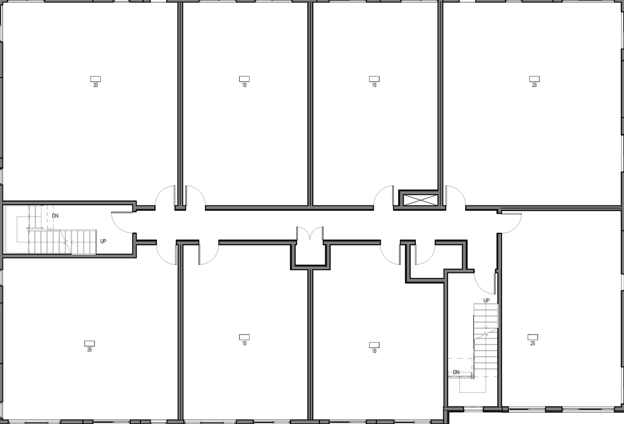
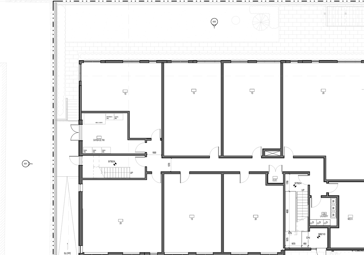
Site and Floor Plans #

  • Floor plan for project from page 1 of the file '2023-06-22 - Approved Floor Plans - D07-12-21-0091'
  • Floor plan for project from page 2 of the file '2023-06-22 - Approved Floor Plans - D07-12-21-0091'
  • Floor plan for project from page 1 of the file '2023-06-22 - Approved Floor Plans - D07-12-21-0091'
  • Floor plan for project from page 2 of the file '2023-06-22 - Approved Floor Plans - D07-12-21-0091'

Files #

TypeNameLinks
Application Summary2021-07-28 - Application Summary - D07-12-21-0091Download PDF
Architectural Plans2023-06-22 - Approved Site Plan - D07-12-21-0091Download PDF
Architectural Plans2023-06-22 - Approved Elevations - D07-12-21-0091Download PDF
Architectural Plans2022-02-03 - Site Plan - D07-12-21-0091Download PDF
Architectural Plans2022-02-03 - Elevations - D07-12-21-0091Download PDF
Architectural Plans2021-06-23 - Site Plan - D07-12-21-0091Download PDF
Architectural Plans2021-06-23 - Fullset Plans - D07-12-21-0091Download PDF
Architectural Plans2021-06-23 - Elevation Plans - D07-12-21-0091Download PDF
Architectural Plans2025-03-06 - Plans - D07-12-21-0091Download PDF
Architectural Plans2025-03-06 - Elevations - D07-12-21-0091Download PDF
Civil Engineering Report2023-06-22 - Approved Civil Plans - D07-12-21-0091Download PDF
Civil Engineering Report2022-02-03 - Civil Plans - D07-12-21-0091Download PDF
Civil Engineering Report2025-03-06 - Civil - D07-12-21-0091Download PDF
Environmental2021-06-23 - Phase 1 Environmental Site Assessment - D07-12-21-0091Download PDF
Floor Plan2023-06-22 - Approved Floor Plans - D07-12-21-0091Download PDF
Floor Plan2022-02-03 - Level & Floor Plans - D07-12-21-0091Download PDF
Geotechnical Report2021-06-23 - Geotechnical Investigation - D07-12-21-0091Download PDF
Landscape Plan2023-06-22 - Approved Landscape Plan - D07-12-21-0091Download PDF
Landscape Plan2021-06-23 - Landscape Plan - D07-12-21-0091Download PDF
Landscape Plan2025-03-06 - Landscape Plan (signed) - D07-12-21-0091Download PDF
Noise Study2021-06-23 - Noise Memo - D07-12-21-0091Download PDF
Planning2022-02-03 - Zoning Chart Revision - D07-12-21-0091Download PDF
Planning2021-06-25 - Planning Rationale - D07-12-21-0091Download PDF
Stormwater Management2022-02-03 - Stormwater Management Report - D07-12-21-0091Download PDF
Stormwater Management2021-06-23 - Stormwater Management Report - D07-12-21-0091Download PDF
Stormwater Management2025-03-06 - SWM Report - D07-12-21-0091Download PDF
Surveying2021-06-23 - Plan of Survey - D07-12-21-0091Download PDF
Tree Information and Conservation2022-02-03 - Tree Conservation Plan - D07-12-21-0091Download PDF
Tree Information and Conservation2021-06-23 - Tree Conservation Report - D07-12-21-0091Download PDF
2023-06-22 - Signed Delegated Authority Report - D07-12-21-0091Download PDF
2023-06-22 - Approved Retaining Wall - D07-12-21-0091Download PDF
2025-03-06 - SPC Amendment - D07-12-21-0091Download PDF
2025-03-06 - SitePlan - D07-12-21-0091Download PDF
2025-03-06 - Retaining Wall - D07-12-21-0091Download PDF
2025-03-06 - Retaing Wall SP Rev1 - D07-12-21-0091Download PDF
2025-03-06 - Delegated Authority Report (signed) - D07-12-21-0091Download PDF