1592 Tenth Line Rd. (D07-12-21-0084)

1592 Tenth Line Rd. (D07-12-21-0084)#

Summary#

Application StatusPost Approval
Review StatusRequest for Agreement Received
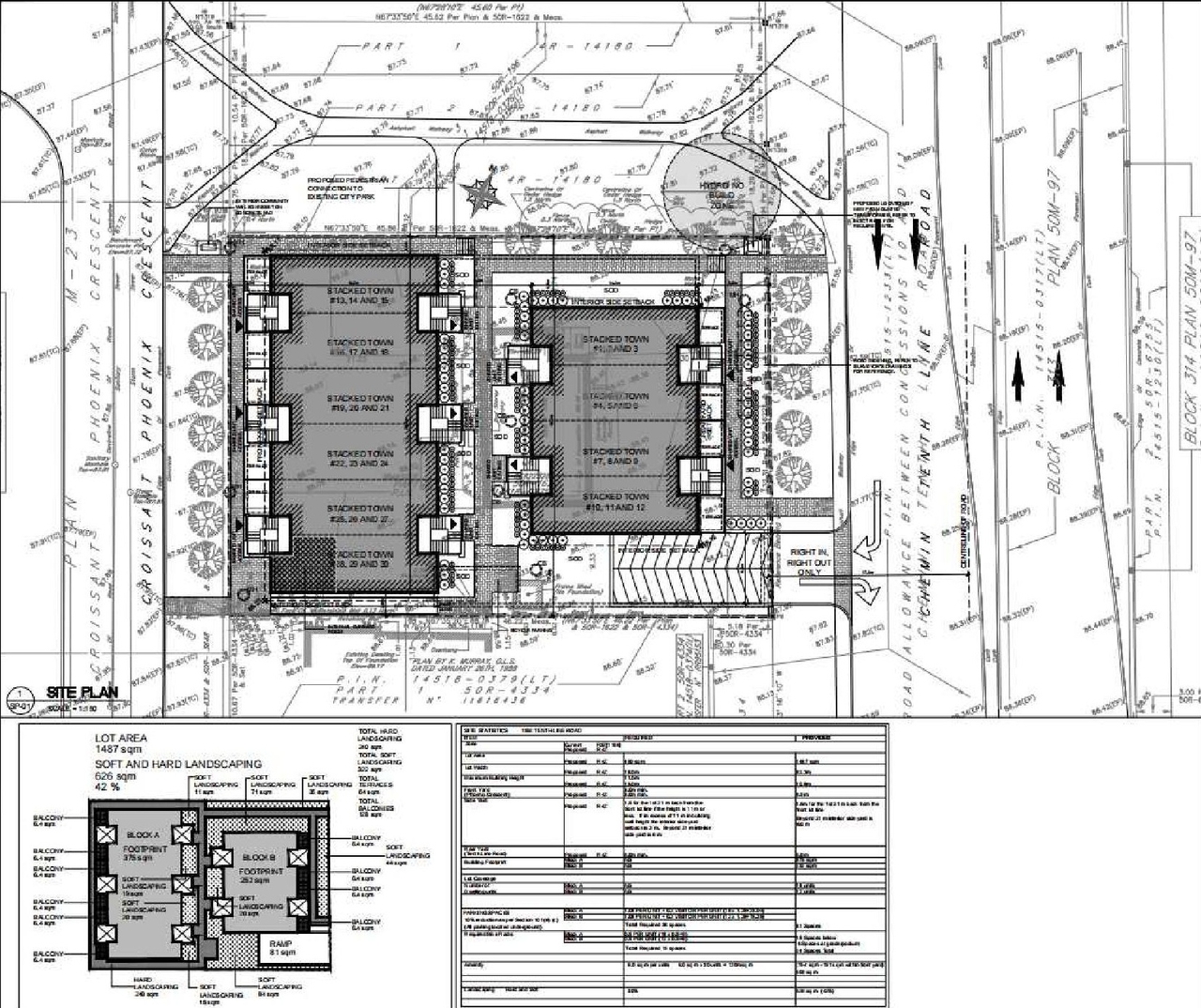
DescriptionThe City of Ottawa has received a Zoning By-law Amendment and Site Plan Control application to rezone the site from “Residential Third Density” (R3Z[1186]) to “Residential Fourth Density” (R4Z), with an exception to the minimum parking requirements, to allow the development of two, three-storey rental stacked dwellings.
WardWard 1 - Matthew Luloff
Date Initiated2021-06-16
Last Updated2025-09-04

Renders#

Location#

Select a marker to view the address.

Site Plans, Elevations and Floor Plans#

  • Image from page 20 of the file '2021-06-16 - Design Brief - D07-12-21-0084'
  • Image from page 29 of the file '2021-06-16 - Design Brief - D07-12-21-0084'
  • Image from page 20 of the file '2021-06-16 - Design Brief - D07-12-21-0084'
  • Image from page 28 of the file '2021-06-16 - Design Brief - D07-12-21-0084'
  • Image from page 28 of the file '2021-06-16 - Design Brief - D07-12-21-0084'
  • Image from page 24 of the file '2021-06-16 - Design Brief - D07-12-21-0084'
  • Image from page 1 of the file '2021-06-16 - Building Sections South View - D07-12-21-0084'
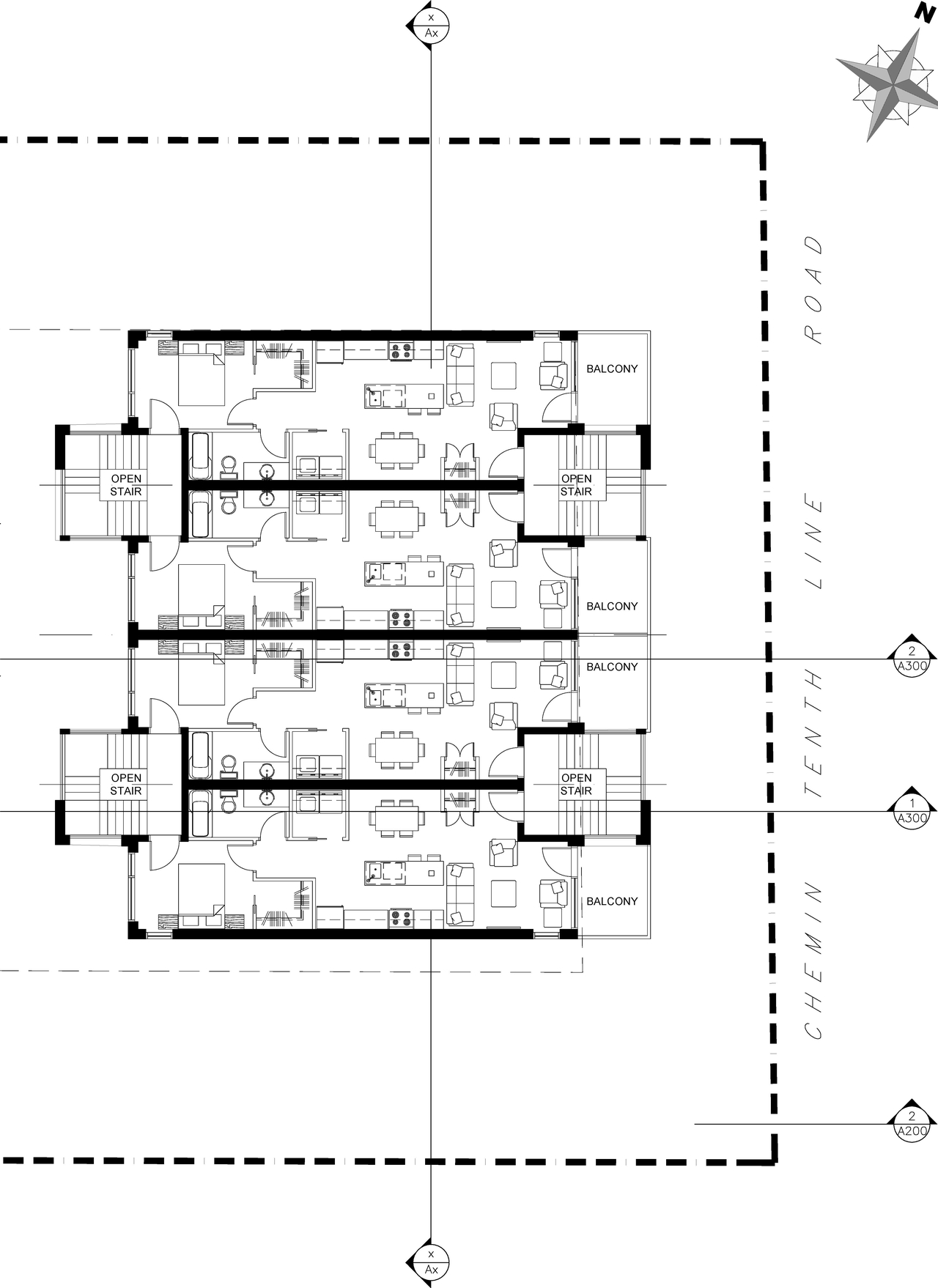
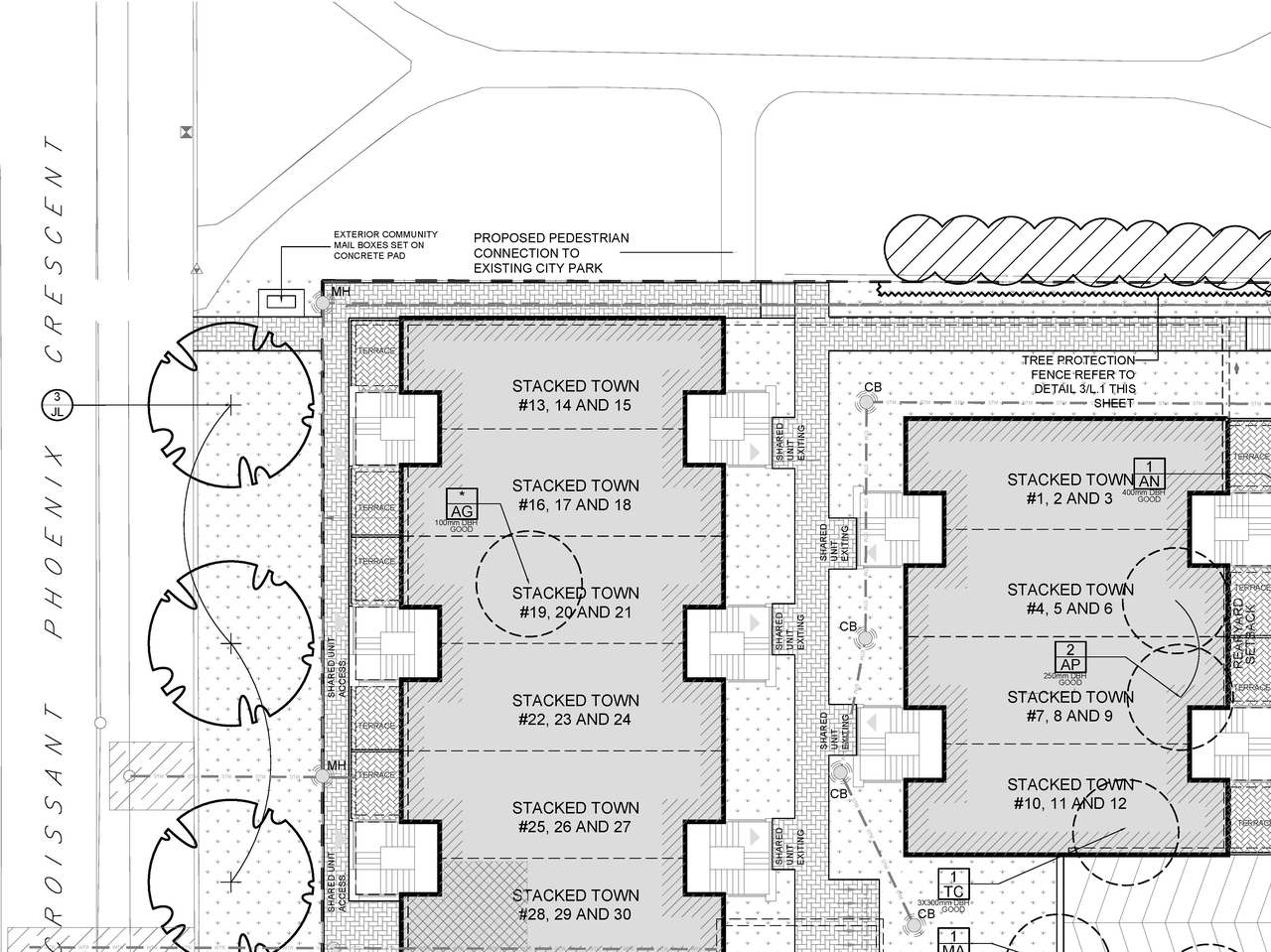
  • Construction site plan for project from page 23 of the file '2021-06-16 - Design Brief - D07-12-21-0084'
  • Construction site plan for project from page 9 of the file '2021-06-16 - Design Brief - D07-12-21-0084'
  • Construction site plan for project from page 24 of the file '2021-06-16 - Design Brief - D07-12-21-0084'
  • Construction site plan for project from page 16 of the file '2021-06-16 - Design Brief - D07-12-21-0084'
  • Construction site plan for project from page 17 of the file '2021-06-16 - Design Brief - D07-12-21-0084'
  • Construction site plan for project from page 10 of the file '2021-06-16 - Design Brief - D07-12-21-0084'
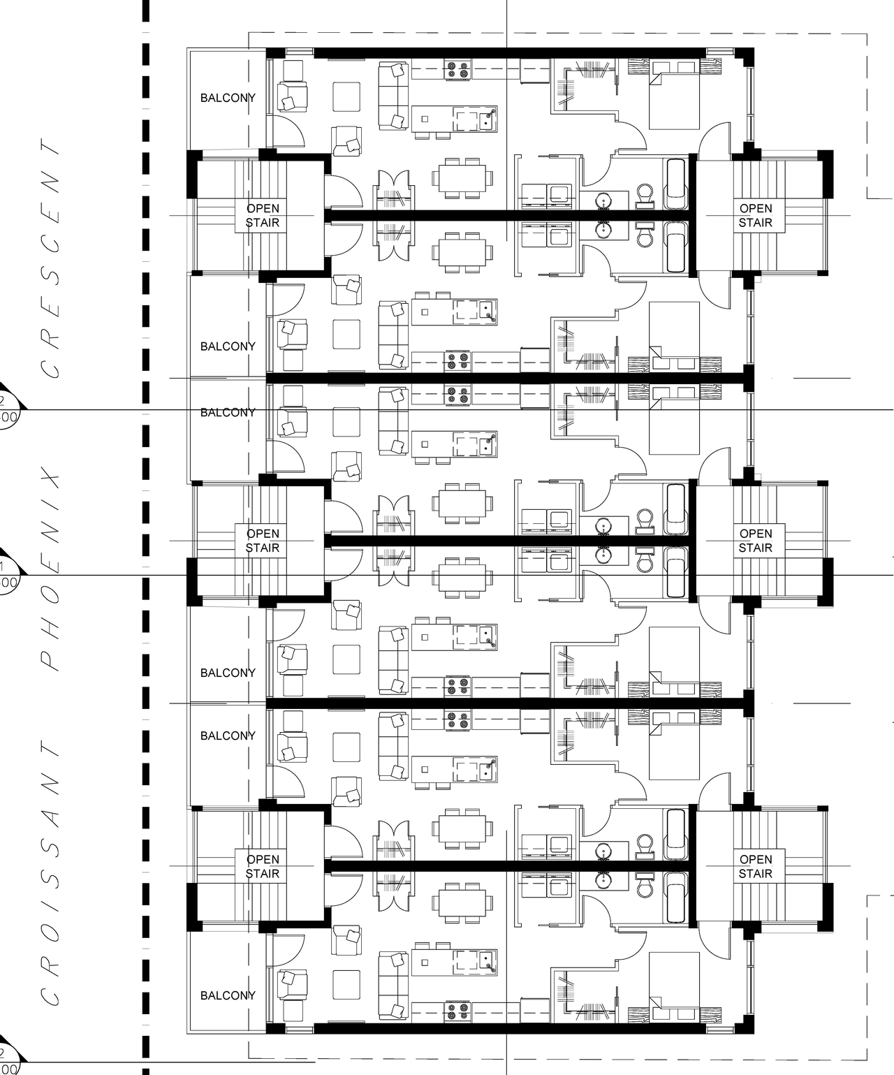
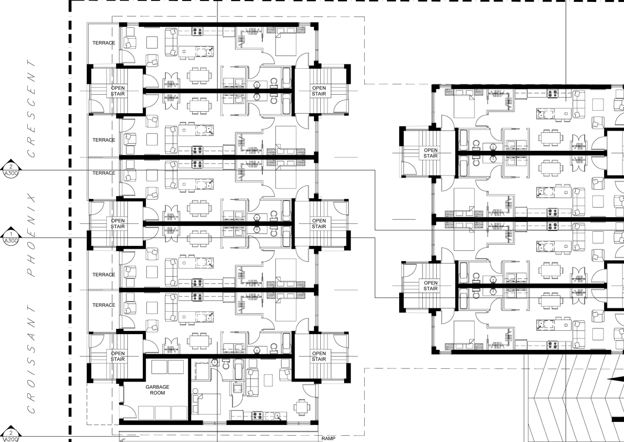
  • Construction site plan for project from page 1 of the file '2021-06-16 - Ground Floor Plans - D07-12-21-0084'
  • Construction site plan for project from page 1 of the file '2021-06-16 - Typical Floor Plan - D07-12-21-0084'
  • Construction site plan for project from page 24 of the file '2021-06-16 - Design Brief - D07-12-21-0084'
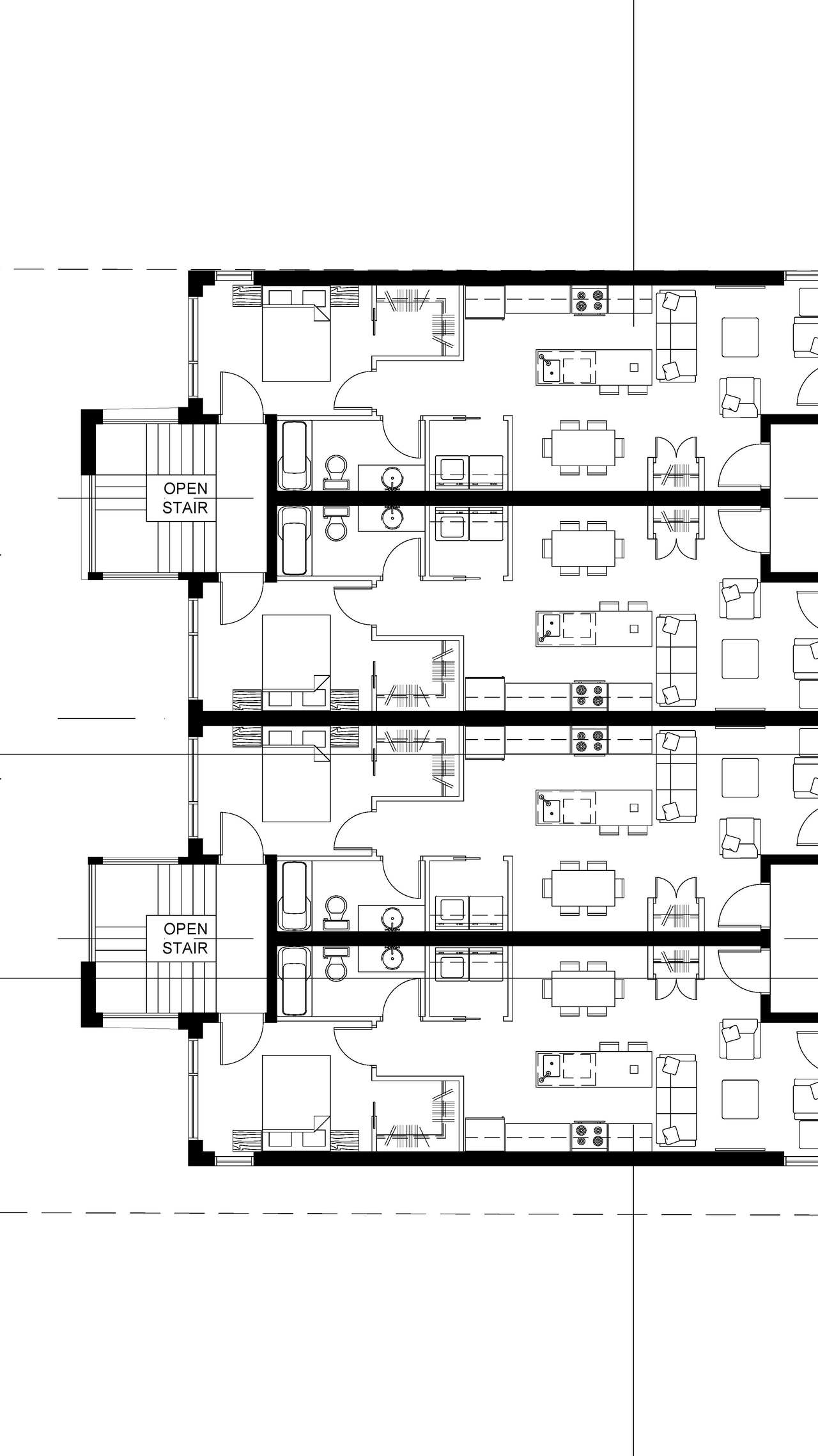
  • Floor plan for project from page 25 of the file '2021-06-16 - Design Brief - D07-12-21-0084'
  • Floor plan for project from page 18 of the file '2021-06-16 - Design Brief - D07-12-21-0084'
  • Floor plan for project from page 27 of the file '2021-06-16 - Design Brief - D07-12-21-0084'
  • Floor plan for project from page 18 of the file '2021-06-16 - Design Brief - D07-12-21-0084'
  • Floor plan for project from page 27 of the file '2021-06-16 - Design Brief - D07-12-21-0084'
  • Floor plan for project from page 1 of the file '2021-06-16 - Typical Floor Plan - D07-12-21-0084'
  • Floor plan for project from page 19 of the file '2021-06-16 - Design Brief - D07-12-21-0084'
  • Floor plan for project from page 26 of the file '2021-06-16 - Design Brief - D07-12-21-0084'
  • Image from page 20 of the file '2021-06-16 - Design Brief - D07-12-21-0084'
  • Image from page 29 of the file '2021-06-16 - Design Brief - D07-12-21-0084'
  • Image from page 20 of the file '2021-06-16 - Design Brief - D07-12-21-0084'
  • Image from page 28 of the file '2021-06-16 - Design Brief - D07-12-21-0084'
  • Image from page 28 of the file '2021-06-16 - Design Brief - D07-12-21-0084'
  • Image from page 24 of the file '2021-06-16 - Design Brief - D07-12-21-0084'
  • Image from page 1 of the file '2021-06-16 - Building Sections South View - D07-12-21-0084'
  • Construction site plan for project from page 23 of the file '2021-06-16 - Design Brief - D07-12-21-0084'
  • Construction site plan for project from page 9 of the file '2021-06-16 - Design Brief - D07-12-21-0084'
  • Construction site plan for project from page 24 of the file '2021-06-16 - Design Brief - D07-12-21-0084'
  • Construction site plan for project from page 16 of the file '2021-06-16 - Design Brief - D07-12-21-0084'
  • Construction site plan for project from page 17 of the file '2021-06-16 - Design Brief - D07-12-21-0084'
  • Construction site plan for project from page 10 of the file '2021-06-16 - Design Brief - D07-12-21-0084'
  • Construction site plan for project from page 1 of the file '2021-06-16 - Ground Floor Plans - D07-12-21-0084'
  • Construction site plan for project from page 1 of the file '2021-06-16 - Typical Floor Plan - D07-12-21-0084'
  • Construction site plan for project from page 24 of the file '2021-06-16 - Design Brief - D07-12-21-0084'
  • Floor plan for project from page 25 of the file '2021-06-16 - Design Brief - D07-12-21-0084'
  • Floor plan for project from page 18 of the file '2021-06-16 - Design Brief - D07-12-21-0084'
  • Floor plan for project from page 27 of the file '2021-06-16 - Design Brief - D07-12-21-0084'
  • Floor plan for project from page 18 of the file '2021-06-16 - Design Brief - D07-12-21-0084'
  • Floor plan for project from page 27 of the file '2021-06-16 - Design Brief - D07-12-21-0084'
  • Floor plan for project from page 1 of the file '2021-06-16 - Typical Floor Plan - D07-12-21-0084'
  • Floor plan for project from page 19 of the file '2021-06-16 - Design Brief - D07-12-21-0084'
  • Floor plan for project from page 26 of the file '2021-06-16 - Design Brief - D07-12-21-0084'

Documents#

TypeDocument
Application Summary2021-07-28 - Application Summary - D07-12-21-0084
Architectural Plans2024-05-09 - Site Plan-D07-12-21-0084
Architectural Plans2024-05-09 - North and South Elevations-D07-12-21-0084
Architectural Plans2024-05-09 - Lower Level Plan-A100 - D07-12-21-0084
Architectural Plans2024-05-09 - East and West Elevations-D07-12-21-0084
Architectural Plans2024-05-09 - Building Sections - D07-12-21-0084 (2)
Architectural Plans2024-05-09 - Building Sections - D07-12-21-0084
Architectural Plans2024-03-22 - Site Plan - D07-12-21-0084
Architectural Plans2024-03-22 - Site Grading Plan - D07-12-21-0084
Architectural Plans2024-03-22 - Sediment Erosion Control Plan - D07-12-21-0084
Architectural Plans2024-03-22 - Pre Development Drainage Plan - D07-12-21-0084
Architectural Plans2024-03-22 - Post Development Drainage Plan - D07-12-21-0084
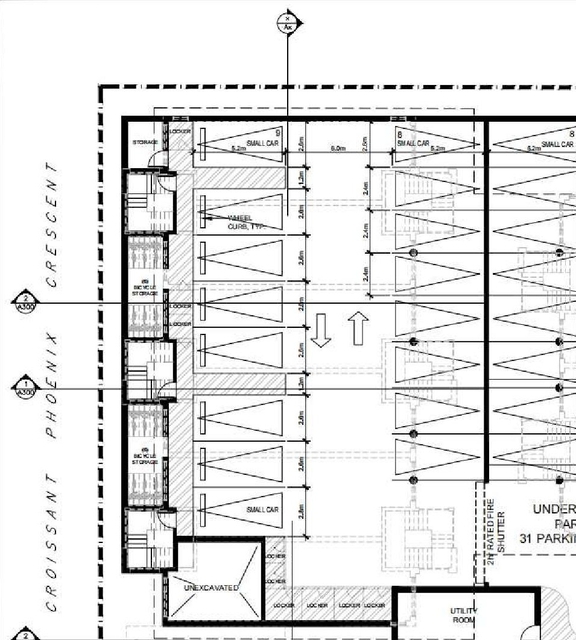
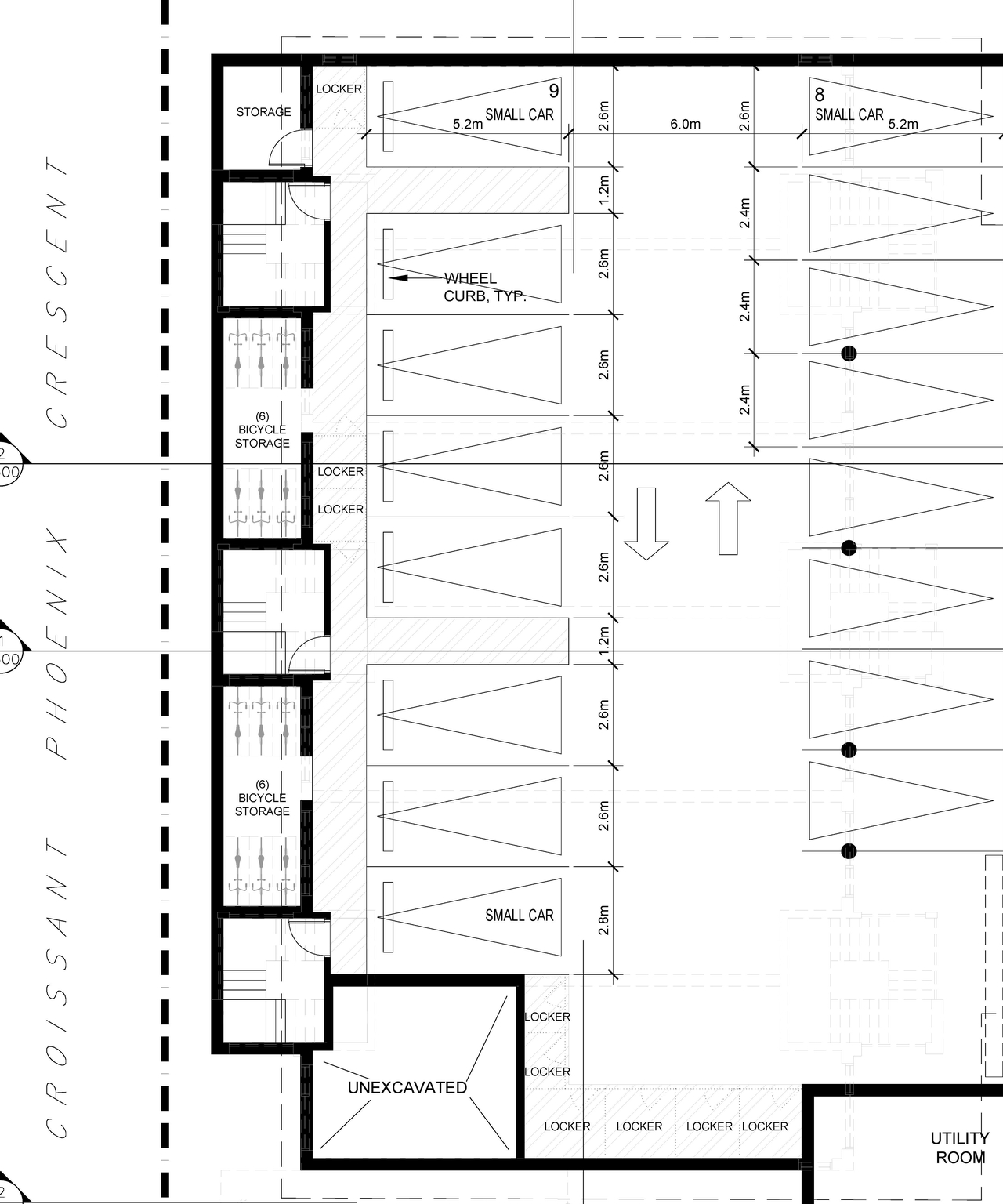
Architectural Plans2024-03-22 - Underground Parking Plan - D07-12-21-0084
Architectural Plans2023-12-19 - Underground Parking Plan - D07-12-21-0084
Architectural Plans2023-12-19 - Site Plan - D07-12-21-0084
Architectural Plans2023-12-19 - Site Grading Plan - D07-12-21-0084
Architectural Plans2023-12-19 - Sediment and Erosion Control Plan - D07-12-21-0084
Architectural Plans2023-12-19 - Pre Development Drainage Plan - D07-12-21-0084
Architectural Plans2023-12-19 - Post Development Drainage Plan - D07-12-21-0084
Architectural Plans2023-12-19 - North and South Elevations - D07-12-21-0084
Architectural Plans2023-12-19 - East and West Elevations - D07-12-21-0084
Architectural Plans2023-11-14 - Building Sections Through Open Stairs and Looking North - D07-12-21-0084
Architectural Plans2023-11-14 - Building Sections Looking East and West - D07-12-21-0084
Architectural Plans2023-10-17 - Underground Parking Plan - D07-12-21-0084
Architectural Plans2023-10-17 - Site Plan - D07-12-21-0084
Architectural Plans2023-10-17 - Site Grading Plan - D07-12-21-0084
Architectural Plans2023-10-17 - Sediment and Erosion Control Plan - D07-12-21-0084
Architectural Plans2023-10-17 - Pre Development Drainage Plan -D07-12-21-0084
Architectural Plans2023-10-17 - Post Development Drainage Plan - D07-12-21-0084
Architectural Plans2023-10-17 - North and South Elevations - D07-12-21-0084
Architectural Plans2023-10-17 - East and West Elevations - D07-12-21-0084
Architectural Plans2022-12-24 - Site Plan - D07-12-21-0084
Architectural Plans2022-12-24 - Site Grading Plan - D07-12-21-0084
Architectural Plans2022-12-24 - Sediment and Erosion Control Plan - D07-12-21-0084
Architectural Plans2022-12-24 - Pre Development Drainage Plan - D07-12-21-0084
Architectural Plans2022-12-24 - Post Development Drainage Plan - D07-12-21-0084
Architectural Plans2022-12-24 - Architectural Drawings and Underground Parking Plan - D07-12-21-0084
Architectural Plans2022-07-29 - Underground Parking, Unit Layouts and Elevations - D07-12-21-0084
Architectural Plans2022-07-29 - Site Plan - D07-12-21-0084
Architectural Plans2022-07-29 - Site Grading Plan - D07-12-21-0084
Architectural Plans2022-07-29 - Sediment & Erosion Control Plan - D07-12-21-0084
Architectural Plans2022-07-29 - Photometric Plan - D07-12-21-0084
Architectural Plans2021-06-16 - West and East Elevations - D07-12-21-0084
Architectural Plans2021-06-16 - Underground Parking Plan - D07-12-21-0084
Architectural Plans2021-06-16 - Site Plan - D07-12-21-0084
Architectural Plans2021-06-16 - Site Grading Plan - D07-12-21-0084
Architectural Plans2021-06-16 - North and South Elevations - D07-12-21-0084
Architectural Plans2021-06-16 - Building Sections East and West - D07-12-21-0084
Architectural Plans2024-10-30 - Approved Site Plan - D07-12-21-0084
Architectural Plans2024-08-16 - MEMO - Grading & Servicing Plan Review- D07-12-21-0084
Architectural Plans2024-08-16 - Approved Site Grading Plan - D07-12-21-0084
Architectural Plans2024-08-16 - Approved Sediment Erosion Control Plan - D07-12-21-0084
Architectural Plans2024-08-16 - Approved Pre Development Drainage Plan - D07-12-21-0084
Architectural Plans2024-08-16 - Approved Post Development Drainage Plan - D07-12-21-0084
Architectural Plans2024-08-16 - Approved North and South Elevations-D07-12-21-0084
Architectural Plans2024-08-16 - Approved Lower Level Plan-A100 - D07-12-21-0084
Architectural Plans2024-08-16 - Approved East and West Elevations - D07-12-21-0084
Design Brief2021-06-16 - Design Brief - D07-12-21-0084
Electrical Plan2021-06-16 - Photometric Lighting Site Plan - D07-12-21-0084
Environmental2022-12-24 - Phase I Environmental Site Assessment - D07-12-21-0084
Environmental2022-07-29 - Phase I ESA - D07-12-21-0084
Environmental2021-08-10 - Phase 1 ESA P1+Appendices_8July21 - D07-12-21-0084
Environmental2021-06-16 - Phase 1 Environmental Site Assessment - D07-12-21-0084
Erosion And Sediment Control Plan2021-06-16 - Erosion Sediment Control Report - D07-12-21-0084
Floor Plan2021-06-16 - Typical Floor Plan - D07-12-21-0084
Floor Plan2021-06-16 - Ground Floor Plans - D07-12-21-0084
Geotechnical Report2023-12-19 - Geotechnical Investigation - D07-12-21-0084
Geotechnical Report2023-10-17 - Geotechnical Investigation Report - D07-12-21-0084
Geotechnical Report2022-12-24 - Geotechnical Investigation - D07-12-21-0084
Geotechnical Report2021-06-16 - Geotechncial Report - D07-12-21-0084
Geotechnical Report2024-08-16 - Geotechnical Responses to City Comments - D07-12-21-0084
Landscape Plan2022-12-24 - Landscape Plan - D07-12-21-0084
Landscape Plan2022-07-29 - Landscape Plan - D07-12-21-0084
Landscape Plan2021-06-16 - Landscape Plan - D07-12-21-0084
Noise Study2022-07-29 - Noise Study - D07-12-21-0084
Noise Study2021-06-16 - Noise Study - D07-12-21-0084
Planning2021-06-16 - Planning Rationale - D07-12-21-0084
Rendering2021-06-16 - Perspective Views - D07-12-21-0084
Rendering2021-06-16 - Perspective Drawings from Park and Angled Views - D07-12-21-0084
Rendering2021-06-16 - Building Sections South View - D07-12-21-0084
Site Servicing2024-03-22 - Site Servicing Plan - D07-12-21-0084
Site Servicing2023-12-19 - Site Servicing Plan - D07-12-21-0084
Site Servicing2023-12-19 - Site Servicing and Stormwater Management Report - D07-12-21-0084
Site Servicing2023-10-17 - Site Servicing Plan - D07-12-21-0084
Site Servicing2023-10-17 - Site Servicing and Stormwater Management Report - D07-12-21-0084
Site Servicing2022-12-24 - Site Servicing Plan - D07-12-21-0084
Site Servicing2022-12-24 - Site Servicing and Stormwater Management Report - D07-12-21-0084
Site Servicing2022-07-29 - Site Servicing Plan - D07-12-21-0084
Site Servicing2021-06-16 - Site Servicing Plan - D07-12-21-0084
Site Servicing2024-08-16 - Approved Site Servicing Plan - D07-12-21-0084
Stormwater Management2022-07-29 - SWM Report - D07-12-21-0084
Stormwater Management2021-06-16 - Stormwater Managment and Site Servicing Report - D07-12-21-0084
Surveying2021-06-16 - Topographic Survey Plan - D07-12-21-0084
Tree Information and Conservation2024-03-22 - Tree Conservation Report - D07-12-21-0084
Tree Information and Conservation2023-12-19- Tree Conservation Report - D07-12-21-0084
Tree Information and Conservation2023-10-17 - Tree Conservation Report and Landscape Plan - D07-12-21-0084
Tree Information and Conservation2024-08-16 - Approved Tree Conservation Report and Landscape Plan - D07-12-21-0084
Tree Information and Conservation2025-09-03 - Tree Conservation Report and Landscape Plan - D07-12-21-0084
2024-03-22 - Stormceptor Detail - D07-12-21-0084
2023-12-19 - Standard Stormceptor Details - D07-12-21-0084
2023-10-17 - Details Sheet - D07-12-21-0084
2022-12-24 - Stormceptor Details - D07-12-21-0084
2022-07-29 - Pre-Development Drainage - D07-12-21-0084
2022-07-29 - Post Development Storage Area - D07-12-21-0084
2022-07-29 - Details 1 & 2 - D07-12-21-0084
2021-06-16 - Pre Development Drainage - D07-12-21-0084
2021-06-16 - Post Development Storage Area - D07-12-21-0084
2021-06-16 - Engineering Details Sheet 2 - D07-12-21-0084
2021-06-16 - Engineering Details Sheet 1 - D07-12-21-0084
2024-08-16 - Delegated Authority Report - D07-12-21-0084
2024-10-30 - Signed Updated Delegated Authority Report - D07-12-21-0084
2024-08-16 - Approved Stormceptor Detail - D07-12-21-0084