69-76 Barrette St./78-88 Beechwood Ave. (D07-12-20-0186)

69-76 Barrette St./78-88 Beechwood Ave. (D07-12-20-0186) #

Summary #

Application StatusPost Approval
Review StatusAgreement Registered - Final Legal Clearance Given
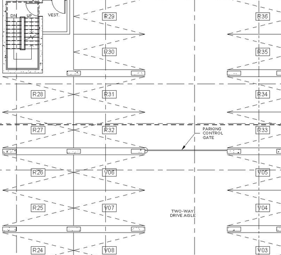
DescriptionProposed development is a 9 storey mixed use building to include 6,135 ft2 of ground floor commercial and approximately 158,639 ft2 pf GFA for appoximately 226 units. Residiental garage access would be from Barrett Street. The arage would include parking for 159 vehicles across two levels.
WardWard 13 - Rawlson King
Date Initiated2020-12-21
Last Updated2022-10-28

Renders #

  • Rendering of building from page 8 of the file '2021-02-03 - UDRP Package - D07-12-20-0186'
  • Rendering of building from page 35 of the file '2021-02-03 - UDRP Package - D07-12-20-0186'
  • Rendering of building from page 36 of the file '2021-02-03 - UDRP Package - D07-12-20-0186'
  • Rendering of building from page 37 of the file '2021-02-03 - UDRP Package - D07-12-20-0186'
  • Rendering of building from page 41 of the file '2021-02-03 - UDRP Package - D07-12-20-0186'
  • Rendering of building from page 42 of the file '2021-02-03 - UDRP Package - D07-12-20-0186'
  • Rendering of building from page 26 of the file '2021-02-03 - UDRP Package - D07-12-20-0186'
  • Rendering of building from page 38 of the file '2021-02-03 - UDRP Package - D07-12-20-0186'
  • Rendering of building from page 29 of the file '2021-02-03 - UDRP Package - D07-12-20-0186'
  • Rendering of building from page 27 of the file '2021-02-03 - UDRP Package - D07-12-20-0186'
  • Rendering of building from page 39 of the file '2021-02-03 - UDRP Package - D07-12-20-0186'
  • Rendering of building from page 28 of the file '2021-02-03 - UDRP Package - D07-12-20-0186'
  • Rendering of building from page 31 of the file '2021-02-03 - UDRP Package - D07-12-20-0186'
  • Rendering of building from page 34 of the file '2021-02-03 - UDRP Package - D07-12-20-0186'
  • Rendering of building from page 32 of the file '2021-02-03 - UDRP Package - D07-12-20-0186'
  • Rendering of building from page 33 of the file '2021-02-03 - UDRP Package - D07-12-20-0186'
  • Rendering of building from page 1 of the file '2021-02-03 - UDRP Package - D07-12-20-0186'
  • Rendering of building from page 8 of the file '2021-02-03 - UDRP Package - D07-12-20-0186'
  • Rendering of building from page 35 of the file '2021-02-03 - UDRP Package - D07-12-20-0186'
  • Rendering of building from page 36 of the file '2021-02-03 - UDRP Package - D07-12-20-0186'
  • Rendering of building from page 37 of the file '2021-02-03 - UDRP Package - D07-12-20-0186'
  • Rendering of building from page 41 of the file '2021-02-03 - UDRP Package - D07-12-20-0186'
  • Rendering of building from page 42 of the file '2021-02-03 - UDRP Package - D07-12-20-0186'
  • Rendering of building from page 26 of the file '2021-02-03 - UDRP Package - D07-12-20-0186'
  • Rendering of building from page 38 of the file '2021-02-03 - UDRP Package - D07-12-20-0186'
  • Rendering of building from page 29 of the file '2021-02-03 - UDRP Package - D07-12-20-0186'
  • Rendering of building from page 27 of the file '2021-02-03 - UDRP Package - D07-12-20-0186'
  • Rendering of building from page 39 of the file '2021-02-03 - UDRP Package - D07-12-20-0186'
  • Rendering of building from page 28 of the file '2021-02-03 - UDRP Package - D07-12-20-0186'
  • Rendering of building from page 31 of the file '2021-02-03 - UDRP Package - D07-12-20-0186'
  • Rendering of building from page 34 of the file '2021-02-03 - UDRP Package - D07-12-20-0186'
  • Rendering of building from page 32 of the file '2021-02-03 - UDRP Package - D07-12-20-0186'
  • Rendering of building from page 33 of the file '2021-02-03 - UDRP Package - D07-12-20-0186'
  • Rendering of building from page 1 of the file '2021-02-03 - UDRP Package - D07-12-20-0186'

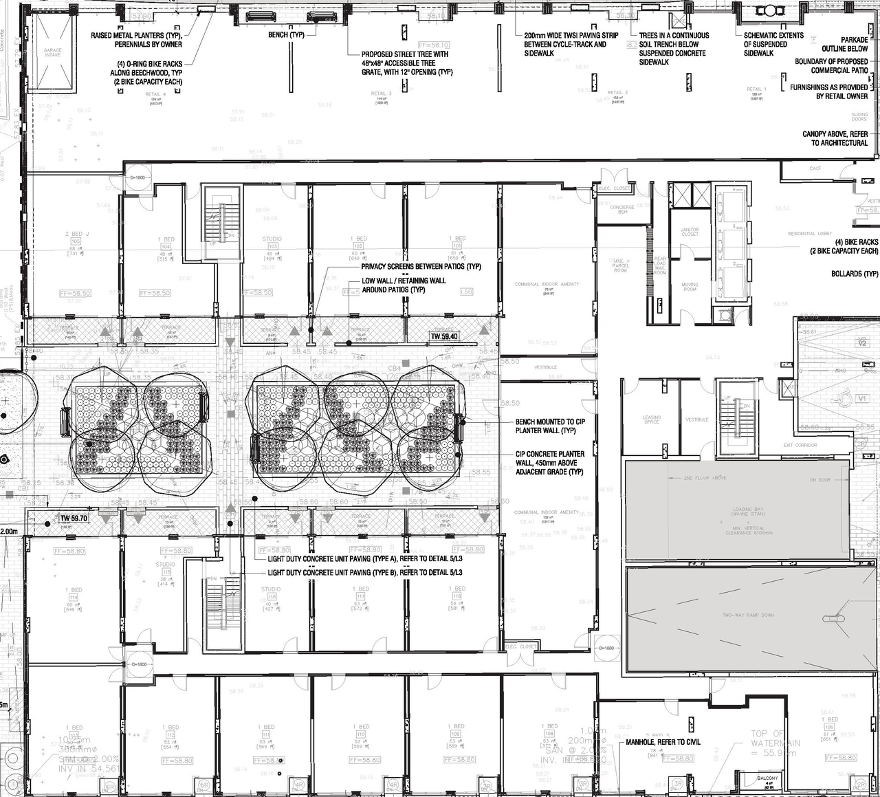
Site and Floor Plans #

  • Construction site plan for project from page 2 of the file '2021-02-03 - UDRP Package - D07-12-20-0186'
  • Construction site plan for project from page 3 of the file '2021-02-03 - UDRP Package - D07-12-20-0186'
  • Construction site plan for project from page 4 of the file '2021-02-03 - UDRP Package - D07-12-20-0186'
  • Construction site plan for project from page 6 of the file '2021-02-03 - UDRP Package - D07-12-20-0186'
  • Construction site plan for project from page 7 of the file '2021-02-03 - UDRP Package - D07-12-20-0186'
  • Construction site plan for project from page 10 of the file '2021-02-03 - UDRP Package - D07-12-20-0186'
  • Construction site plan for project from page 24 of the file '2021-02-03 - UDRP Package - D07-12-20-0186'
  • Construction site plan for project from page 45 of the file '2021-02-03 - UDRP Package - D07-12-20-0186'
  • Floor plan for project from page 49 of the file '2021-02-03 - UDRP Package - D07-12-20-0186'
  • Floor plan for project from page 53 of the file '2021-02-03 - UDRP Package - D07-12-20-0186'
  • Floor plan for project from page 54 of the file '2021-02-03 - UDRP Package - D07-12-20-0186'
  • Floor plan for project from page 58 of the file '2021-02-03 - UDRP Package - D07-12-20-0186'
  • Construction site plan for project from page 61 of the file '2021-02-03 - UDRP Package - D07-12-20-0186'
  • Construction site plan for project from page 62 of the file '2021-02-03 - UDRP Package - D07-12-20-0186'
  • Construction site plan for project from page 63 of the file '2021-02-03 - UDRP Package - D07-12-20-0186'
  • Construction site plan for project from page 64 of the file '2021-02-03 - UDRP Package - D07-12-20-0186'
  • Construction site plan for project from page 65 of the file '2021-02-03 - UDRP Package - D07-12-20-0186'
  • Construction site plan for project from page 66 of the file '2021-02-03 - UDRP Package - D07-12-20-0186'
  • Construction site plan for project from page 67 of the file '2021-02-03 - UDRP Package - D07-12-20-0186'
  • Construction site plan for project from page 68 of the file '2021-02-03 - UDRP Package - D07-12-20-0186'
  • Construction site plan for project from page 2 of the file '2021-02-03 - UDRP Package - D07-12-20-0186'
  • Construction site plan for project from page 3 of the file '2021-02-03 - UDRP Package - D07-12-20-0186'
  • Construction site plan for project from page 4 of the file '2021-02-03 - UDRP Package - D07-12-20-0186'
  • Construction site plan for project from page 6 of the file '2021-02-03 - UDRP Package - D07-12-20-0186'
  • Construction site plan for project from page 7 of the file '2021-02-03 - UDRP Package - D07-12-20-0186'
  • Construction site plan for project from page 10 of the file '2021-02-03 - UDRP Package - D07-12-20-0186'
  • Construction site plan for project from page 24 of the file '2021-02-03 - UDRP Package - D07-12-20-0186'
  • Construction site plan for project from page 45 of the file '2021-02-03 - UDRP Package - D07-12-20-0186'
  • Floor plan for project from page 49 of the file '2021-02-03 - UDRP Package - D07-12-20-0186'
  • Floor plan for project from page 53 of the file '2021-02-03 - UDRP Package - D07-12-20-0186'
  • Floor plan for project from page 54 of the file '2021-02-03 - UDRP Package - D07-12-20-0186'
  • Floor plan for project from page 58 of the file '2021-02-03 - UDRP Package - D07-12-20-0186'
  • Construction site plan for project from page 61 of the file '2021-02-03 - UDRP Package - D07-12-20-0186'
  • Construction site plan for project from page 62 of the file '2021-02-03 - UDRP Package - D07-12-20-0186'
  • Construction site plan for project from page 63 of the file '2021-02-03 - UDRP Package - D07-12-20-0186'
  • Construction site plan for project from page 64 of the file '2021-02-03 - UDRP Package - D07-12-20-0186'
  • Construction site plan for project from page 65 of the file '2021-02-03 - UDRP Package - D07-12-20-0186'
  • Construction site plan for project from page 66 of the file '2021-02-03 - UDRP Package - D07-12-20-0186'
  • Construction site plan for project from page 67 of the file '2021-02-03 - UDRP Package - D07-12-20-0186'
  • Construction site plan for project from page 68 of the file '2021-02-03 - UDRP Package - D07-12-20-0186'

Documents #

TypeDocument
Application Summary2021-02-10 - Application Summary - D07-12-20-0186
Architectural Plans2021-12-08 - Approved Site Plan - D07-12-20-0186
Architectural Plans2021-12-08 - Approved Site Plan - D07-12-20-0186
Architectural Plans2021-12-08 - Approved Planting Plan - D07-12-20-0186
Architectural Plans2021-12-08 - Approved North and South Building Elevations - D07-12-20-0186
Architectural Plans2021-12-08 - Approved East and West Building Elevations - D07-12-20-0186
Architectural Plans2021-12-08 - Approved Context Plan, Notes & Stats - D07-12-20-0186
Architectural Plans2021-10-01 - Architectural Set - D07-12-20-0186
Architectural Plans2021-08-06 - Architectural Set - D07-12-20-0186
Architectural Plans2021-05-10 - Architectural - D07-12-20-0186
Architectural Plans2020-12-21 - Remedial Action Plan - D07-12-20-0186
Architectural Plans2020-12-21 - Architectural Package - D07-12-20-0186
Design Brief2021-02-03 - UDRP Package - D07-12-20-0186
Drainage Plan2021-12-08 - Approved Drainage Plan - D07-12-20-0186 26
Environmental2020-12-21 - Phase 2 Environmental Site Assessment - D07-12-20-0186
Erosion And Sediment Control Plan2021-12-08 - Approved Erosion & Sediment Control Plan - D07-12-20-0186 26
Geotechnical Report2021-12-08 - Approved Grading Plan - D07-12-20-0186 26
Geotechnical Report2020-12-21 - Geotechnical Investigation - D07-12-20-0186
Landscape Plan2021-12-08 - Approved Landscape Plan L1 - D07-12-20-0186
Landscape Plan2021-11-01 - Landscape Plan - D07-12-20-0186
Landscape Plan2021-10-01 - Landscape Plans - D07-12-20-0186
Landscape Plan2021-08-23 - Landscape Plan - D07-12-20-0186
Landscape Plan2021-08-09 - Landscape Plan - D07-12-20-0186
Landscape Plan2021-05-10 - Landscape Plan - D07-12-20-0186
Landscape Plan2020-12-21 - Landscape Plans and Details - D07-12-20-0186
Noise Study2020-12-21 - Noise Study - D07-12-20-0186
Shadow Study2021-05-10 - Shadow Study - D07-12-20-0186
Shadow Study2020-12-21 - Sun Shadow Study - D07-12-20-0186
Site Servicing2021-11-01 - Site Servicing Plan - D07-12-20-0186
Site Servicing2021-05-10 - Site Servicing Report and Erosion Control Plan - D07-12-20-0186
Site Servicing2021-05-10 - Site Servicing Plan Grading and Erosion Drawings - D07-12-20-0186
Site Servicing2020-12-21 - Site Servicing Report and Erosion Control Plan - D07-12-20-0186
Surveying2020-12-21 - Survey Area Certificate - D07-12-20-0186
Transportation Analysis2020-12-21 - Transportation Impact Assessment Addendum - D07-12-20-0186
Tree Information and Conservation2021-12-08 - Approved Tree Conservation Plan - D07-12-20-0186
Tree Information and Conservation2021-05-10 - Tree Planting Solutions Best Practices Manual City of Toronto - D07-12-20-0186
Tree Information and Conservation2021-05-10 - Tree Planting Solutions Best Practices Manual - D07-12-20-0186
Tree Information and Conservation2021-05-10 - Tree Conservation Plan Aerial - D07-12-20-0186
Tree Information and Conservation2021-05-10 - Tree Conservation Plan - D07-12-20-0186
Tree Information and Conservation2020-12-21 - Tree Conservation Report - D07-12-20-0186
2021-12-13 - Signed Delegated Authority Report - D07-12-20-0186
2021-12-08 - Approved Construction Details L4 - D07-12-20-0186
2021-12-08 - Approved Construction Details L3 - D07-12-20-0186
2021-11-01 - Architect Set - D07-12-20-0186
2021-08-23 - Architect Drawings - D07-12-20-0186
2021-05-10 - Neoliviano Bench - D07-12-20-0186
2021-05-10 - Connect Leaning Rail - D07-12-20-0186
2020-12-21 - Cultural Heritage Impact Statement - D07-12-20-0186

Additional Information #

All Addresses76 Barrette St.
72 Barrette St.
69 Barrette St.
71 Barrette St.
73 Barrette St.
74 Barrette St.
70 Barrette St.
86 Beechwood Ave.
84 Beechwood Ave.
78 Beechwood Ave.
82 Beechwood Ave.
88 Beechwood Ave.
81 Beechwood Ave.
80 Beechwood Ave.