35-37 William St./62 York St. (D07-12-20-0006)#
Summary#
| Application Status | Post Approval |
| Review Status | Agreement Signed |
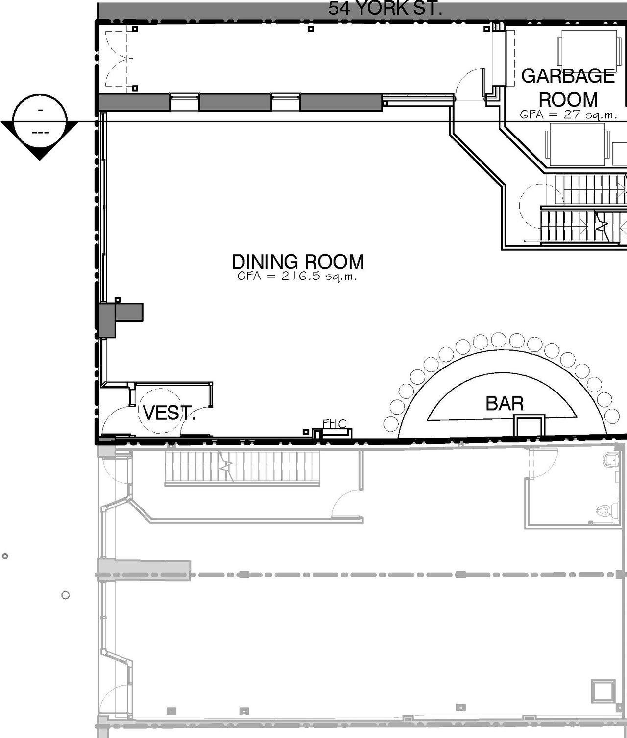
| Description | The City of Ottawa has received a Zoning By-law Amendment and a Site Plan Control application to permit a four-storey mixed-use building with ground floor restaurant use and 16 residential dwelling units. |
| Ward | Ward 12 - Stéphanie Plante |
| Date Initiated | 2020-01-28 |
| Last Updated | 2024-10-17 |
Location#
Select a marker to view the address.
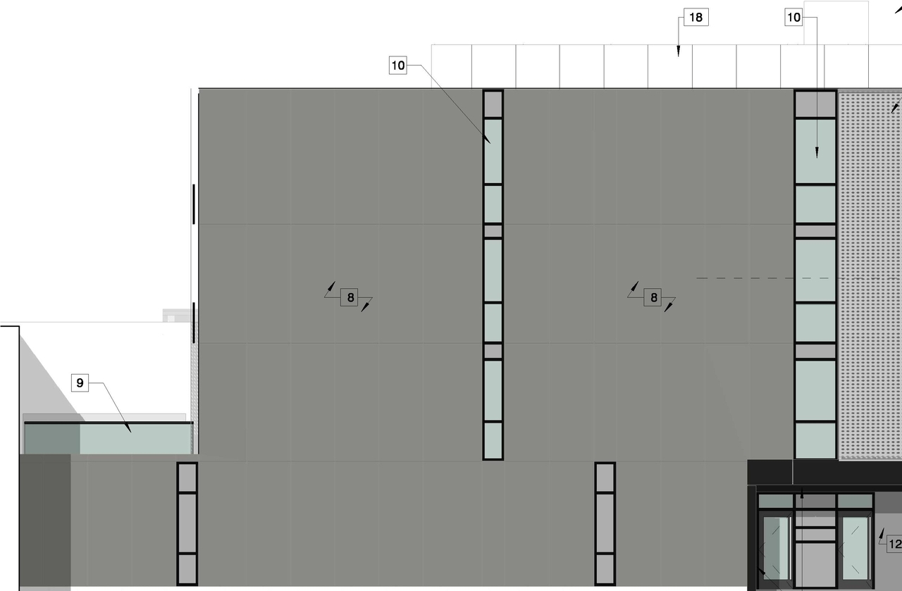
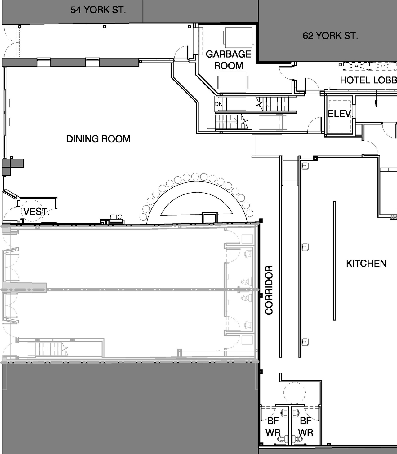
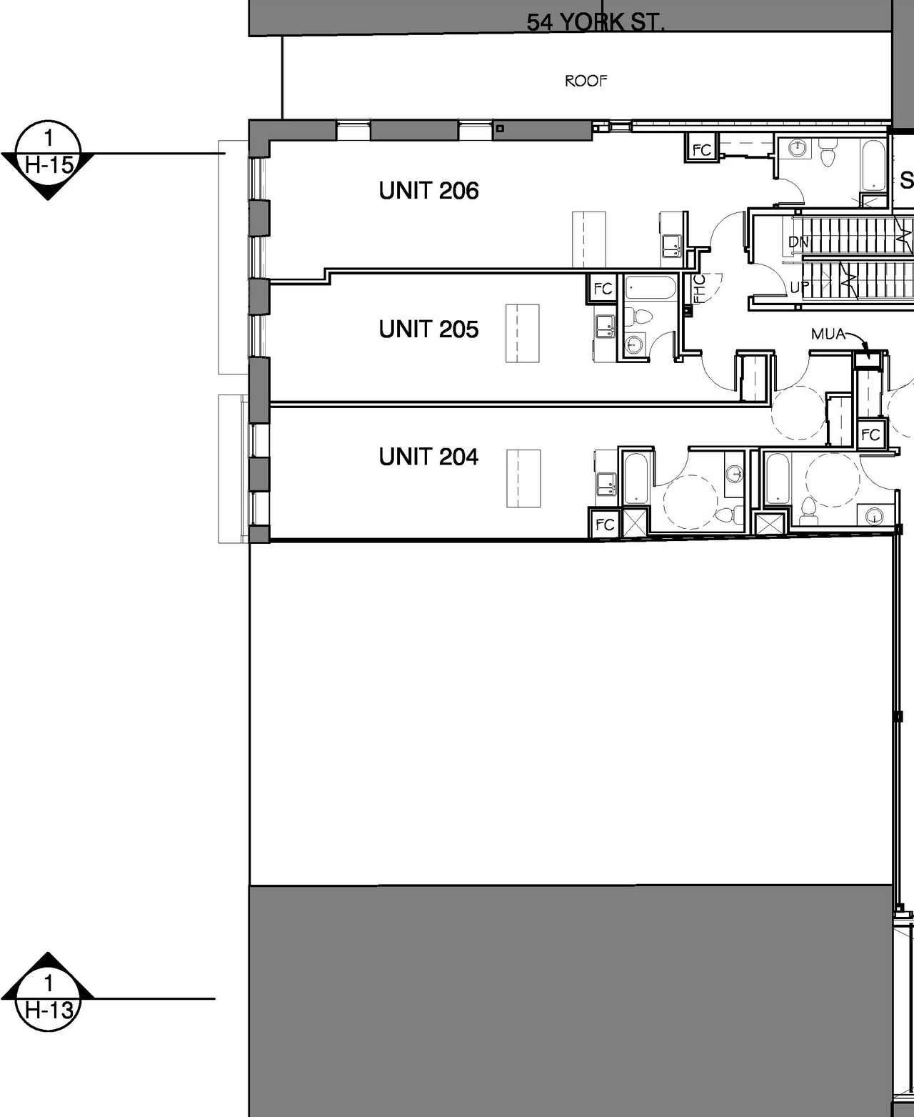
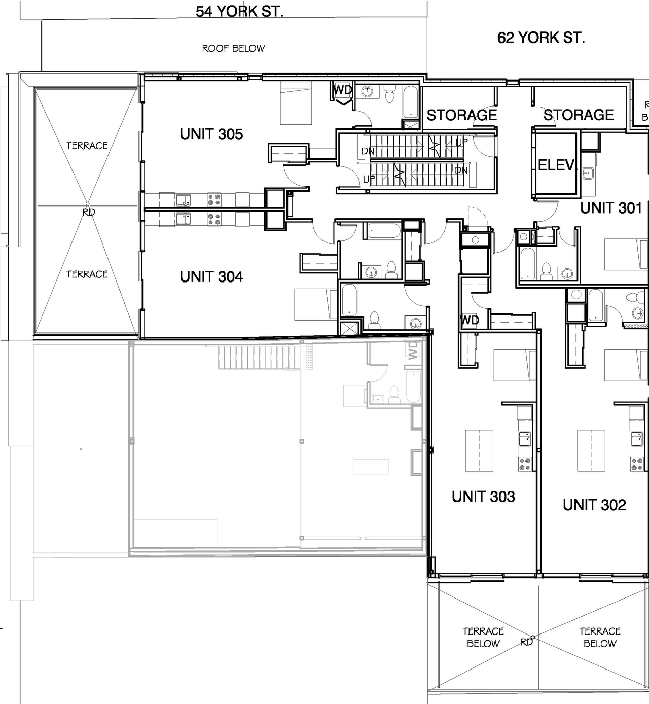
Site Plans, Elevations and Floor Plans#
Documents#
Additional Information#
| All Addresses | 35 William St. 37 William St. 62 York St. |















