261-277 King Edward Ave./260 Murray St. (D07-12-16-0045)#
Summary#
| Application Status | File Pending |
| Review Status | Application File Pending |
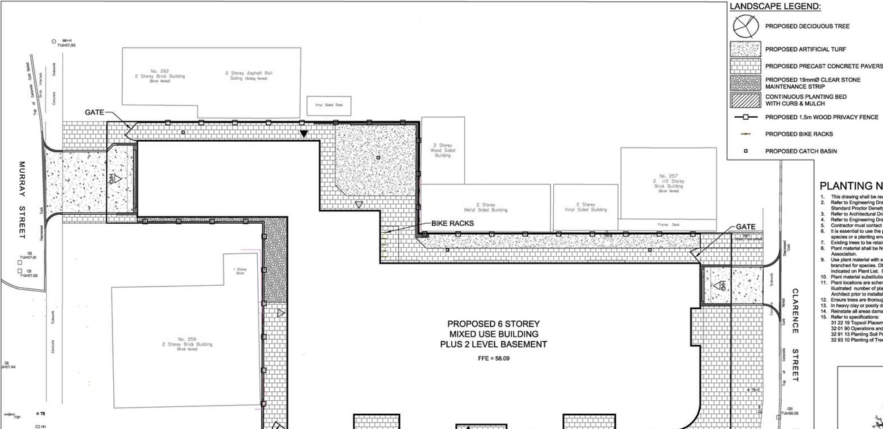
| Description | Part of Lots B and 7 North Clarence Street (formerly Parry Street) on Registered Plan 43586, in the City of Ottawa. The site is currently vacant. |
| Ward | Ward 12 - Stéphanie Plante |
| Date Initiated | 2016-04-12 |
| Last Updated | 2016-06-14 |
Renders#
Location#
Select a marker to view the address.
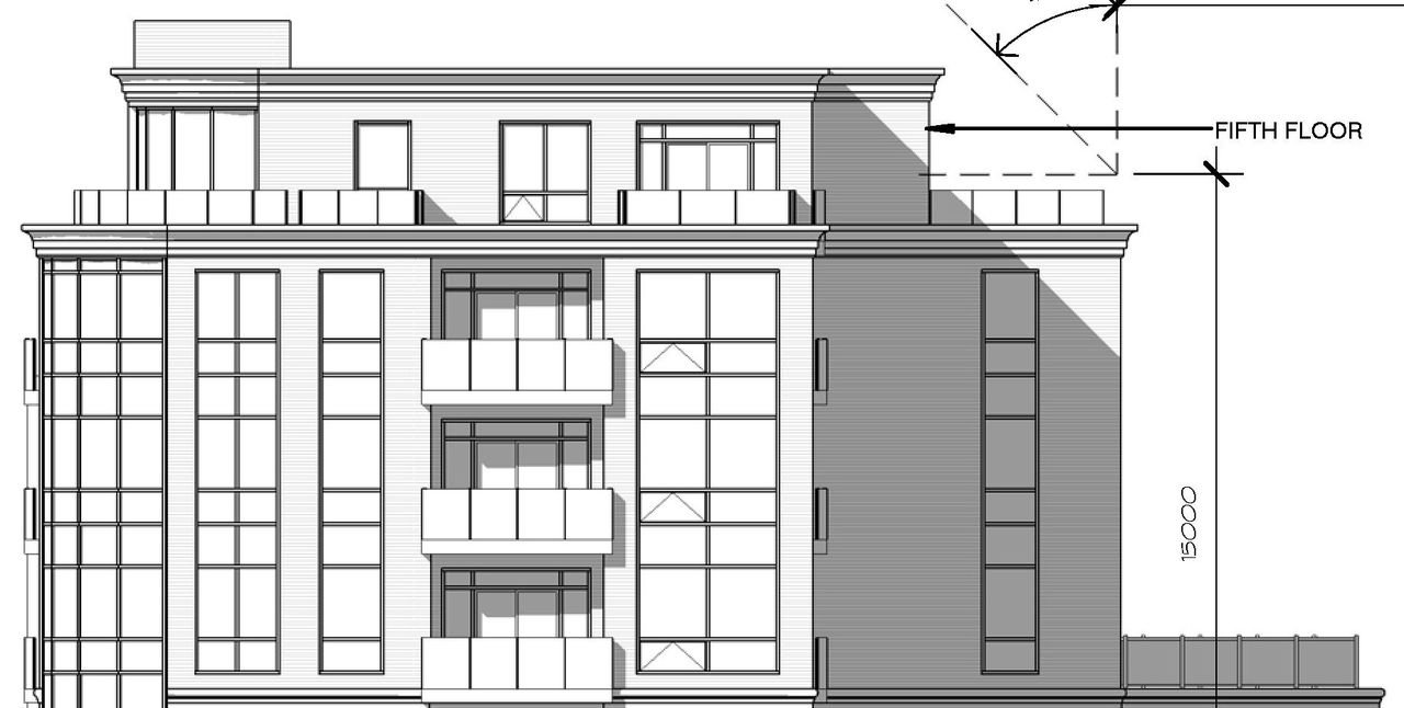
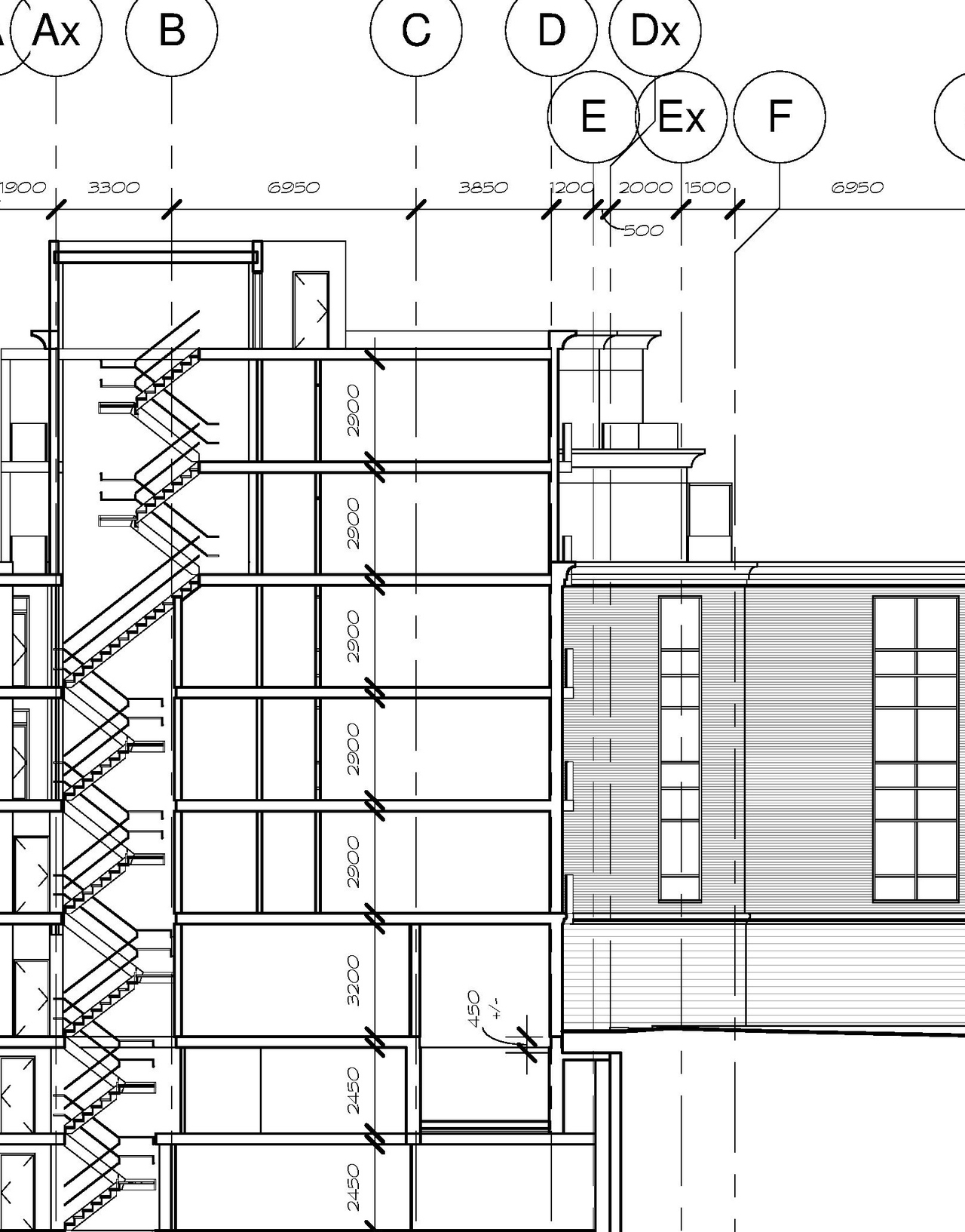
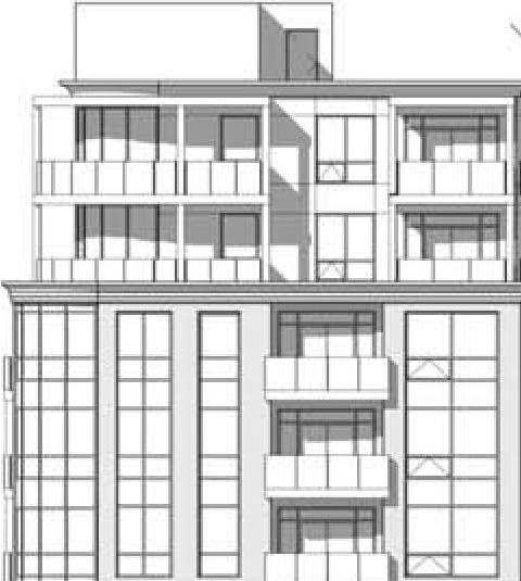
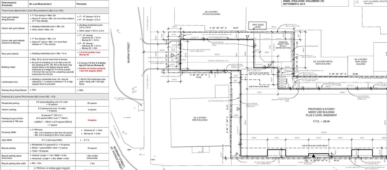
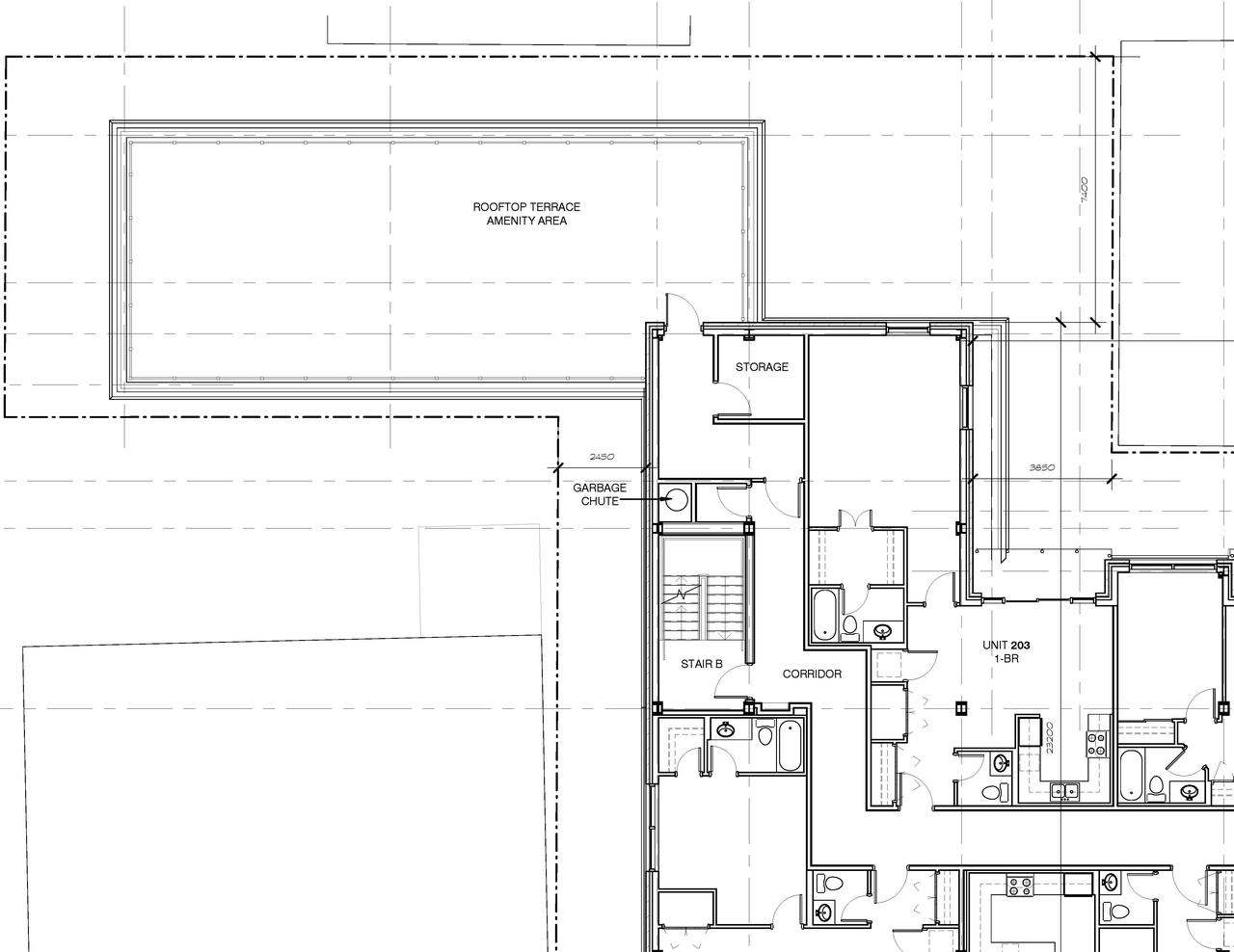
Site Plans, Elevations and Floor Plans#
Documents#
Additional Information#
| All Addresses | 261 King Edward Ave. 269 King Edward Ave. 277 King Edward Ave. 260 Murray St. |









































