137 Bay St./350 Sparks St. (D07-12-15-0117)#
Summary#
| Application Status | File Pending |
| Review Status | Application File Pending |
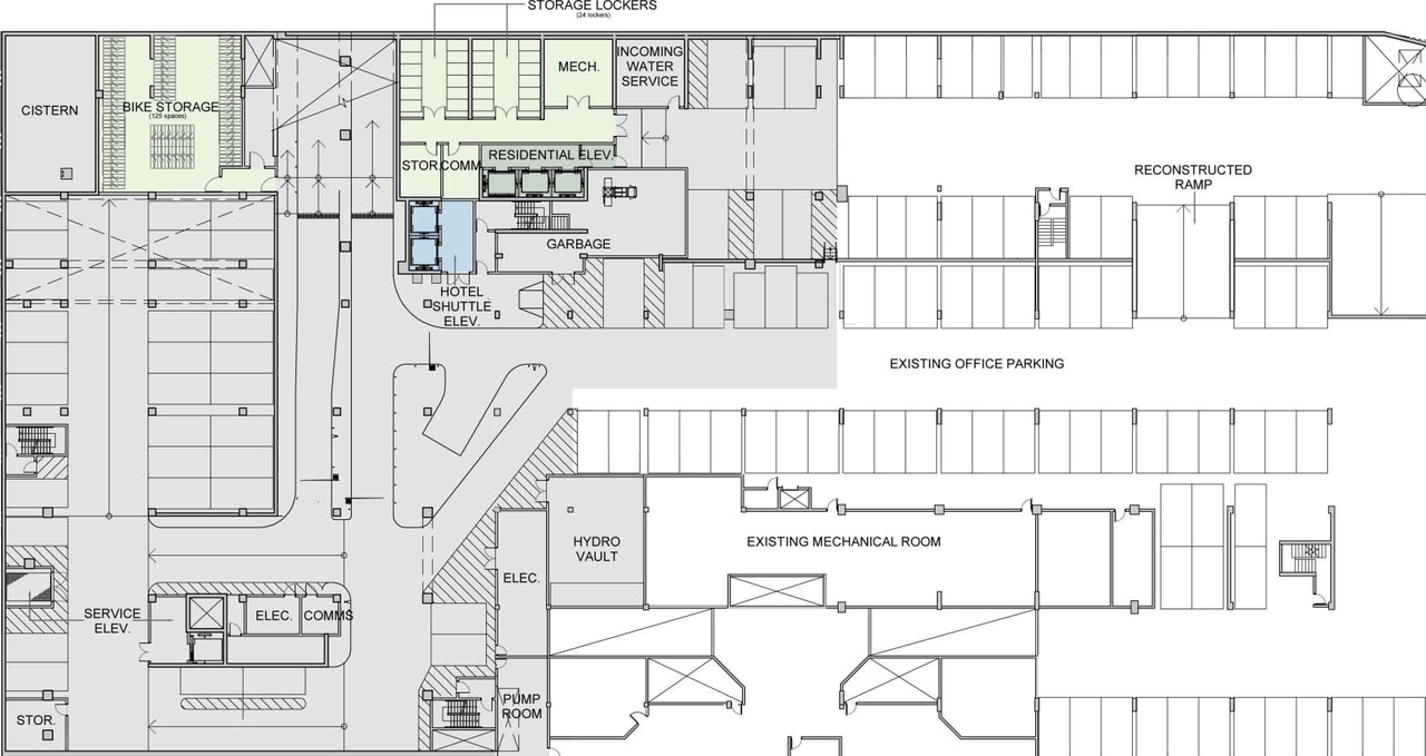
| Description | The City of Ottawa has received applications for Zoning By-law Amendment, Site Plan Control, and Demolition Control to permit the development of a 27-storey hotel and a 23-storey residential apartment building with ground level commercial space, an addition to the existing office building, and underground garage with 348 parking spaces. |
| Ward | Ward 14 - Ariel Troster |
| Date Initiated | 2015-06-30 |
| Last Updated | 2015-09-04 |
Renders#
Location#
Select a marker to view the address.


















































