93 Norman/95 Norman/97 Norman/99 Norman/103 Norman/105 Norman (D07-12-13-0225)

93 Norman/95 Norman/97 Norman/99 Norman/103 Norman/105 Norman (D07-12-13-0225) #

Summary #

Application StatusPost Approval
Review StatusAgreement Registered - Final Legal Clearance Given
Descriptionlots 1503,1504,1505,1506 and 1507 reg plan 38//RESIDENTIAL DEVELOPMENT APARTMENT DWELLING AND TOWNHOUSE
WardWard 14 - Ariel Troster
Date Initiated2013-11-25
Last Updated2022-04-14

Renders #

  • Rendering of building from page 5 of the file '93 Norman - UDRP Presentation May 2021'
  • Rendering of building from page 4 of the file '93 Norman - UDRP Presentation May 2021'
  • Rendering of building from page 1 of the file '93 Norman - UDRP Presentation May 2021'
  • Rendering of building from page 36 of the file '93 Norman - UDRP Presentation May 2021'
  • Rendering of building from page 35 of the file '93 Norman - UDRP Presentation May 2021'
  • Rendering of building from page 31 of the file '93 Norman - UDRP Presentation May 2021'
  • Rendering of building from page 32 of the file '93 Norman - UDRP Presentation May 2021'
  • Rendering of building from page 5 of the file '93 Norman - UDRP Presentation May 2021'
  • Rendering of building from page 4 of the file '93 Norman - UDRP Presentation May 2021'
  • Rendering of building from page 1 of the file '93 Norman - UDRP Presentation May 2021'
  • Rendering of building from page 36 of the file '93 Norman - UDRP Presentation May 2021'
  • Rendering of building from page 35 of the file '93 Norman - UDRP Presentation May 2021'
  • Rendering of building from page 31 of the file '93 Norman - UDRP Presentation May 2021'
  • Rendering of building from page 32 of the file '93 Norman - UDRP Presentation May 2021'

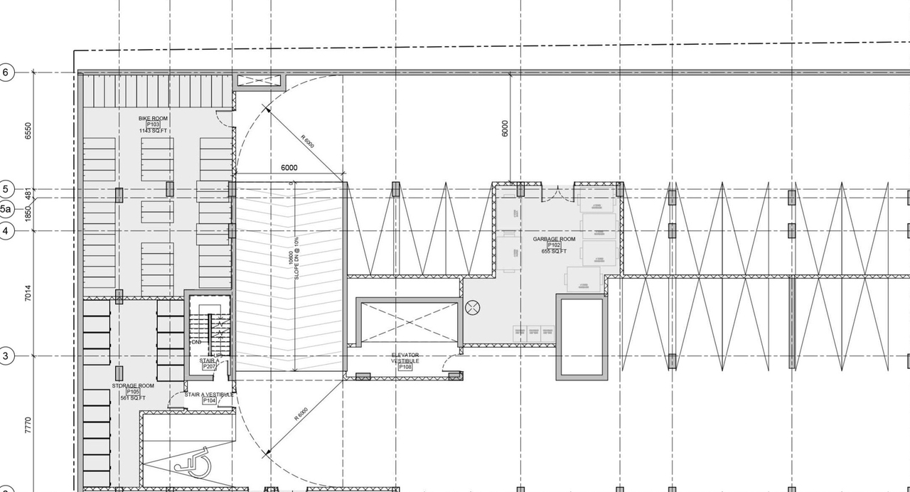
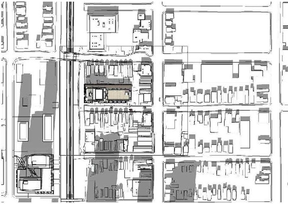
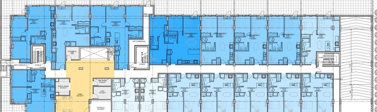
Site and Floor Plans #

  • Construction site plan for project from page 2 of the file '93 Norman - UDRP Presentation May 2021'
  • Construction site plan for project from page 3 of the file '93 Norman - UDRP Presentation May 2021'
  • Construction site plan for project from page 5 of the file '93 Norman - UDRP Presentation May 2021'
  • Construction site plan for project from page 6 of the file '93 Norman - UDRP Presentation May 2021'
  • Construction site plan for project from page 7 of the file '93 Norman - UDRP Presentation May 2021'
  • Construction site plan for project from page 8 of the file '93 Norman - UDRP Presentation May 2021'
  • Construction site plan for project from page 9 of the file '93 Norman - UDRP Presentation May 2021'
  • Construction site plan for project from page 11 of the file '93 Norman - UDRP Presentation May 2021'
  • Construction site plan for project from page 13 of the file '93 Norman - UDRP Presentation May 2021'
  • Construction site plan for project from page 15 of the file '93 Norman - UDRP Presentation May 2021'
  • Construction site plan for project from page 16 of the file '93 Norman - UDRP Presentation May 2021'
  • Floor plan for project from page 22 of the file '93 Norman - UDRP Presentation May 2021'
  • Floor plan for project from page 23 of the file '93 Norman - UDRP Presentation May 2021'
  • Floor plan for project from page 23 of the file '93 Norman - UDRP Presentation May 2021'
  • Floor plan for project from page 23 of the file '93 Norman - UDRP Presentation May 2021'
  • Floor plan for project from page 24 of the file '93 Norman - UDRP Presentation May 2021'
  • Floor plan for project from page 25 of the file '93 Norman - UDRP Presentation May 2021'
  • Floor plan for project from page 26 of the file '93 Norman - UDRP Presentation May 2021'
  • Floor plan for project from page 26 of the file '93 Norman - UDRP Presentation May 2021'
  • Floor plan for project from page 27 of the file '93 Norman - UDRP Presentation May 2021'
  • Construction site plan for project from page 34 of the file '93 Norman - UDRP Presentation May 2021'
  • Construction site plan for project from page 34 of the file '93 Norman - UDRP Presentation May 2021'
  • Construction site plan for project from page 34 of the file '93 Norman - UDRP Presentation May 2021'
  • Construction site plan for project from page 34 of the file '93 Norman - UDRP Presentation May 2021'
  • Construction site plan for project from page 34 of the file '93 Norman - UDRP Presentation May 2021'
  • Construction site plan for project from page 34 of the file '93 Norman - UDRP Presentation May 2021'
  • Construction site plan for project from page 2 of the file '93 Norman - UDRP Presentation May 2021'
  • Construction site plan for project from page 3 of the file '93 Norman - UDRP Presentation May 2021'
  • Construction site plan for project from page 5 of the file '93 Norman - UDRP Presentation May 2021'
  • Construction site plan for project from page 6 of the file '93 Norman - UDRP Presentation May 2021'
  • Construction site plan for project from page 7 of the file '93 Norman - UDRP Presentation May 2021'
  • Construction site plan for project from page 8 of the file '93 Norman - UDRP Presentation May 2021'
  • Construction site plan for project from page 9 of the file '93 Norman - UDRP Presentation May 2021'
  • Construction site plan for project from page 11 of the file '93 Norman - UDRP Presentation May 2021'
  • Construction site plan for project from page 13 of the file '93 Norman - UDRP Presentation May 2021'
  • Construction site plan for project from page 15 of the file '93 Norman - UDRP Presentation May 2021'
  • Construction site plan for project from page 16 of the file '93 Norman - UDRP Presentation May 2021'
  • Floor plan for project from page 22 of the file '93 Norman - UDRP Presentation May 2021'
  • Floor plan for project from page 23 of the file '93 Norman - UDRP Presentation May 2021'
  • Floor plan for project from page 23 of the file '93 Norman - UDRP Presentation May 2021'
  • Floor plan for project from page 23 of the file '93 Norman - UDRP Presentation May 2021'
  • Floor plan for project from page 24 of the file '93 Norman - UDRP Presentation May 2021'
  • Floor plan for project from page 25 of the file '93 Norman - UDRP Presentation May 2021'
  • Floor plan for project from page 26 of the file '93 Norman - UDRP Presentation May 2021'
  • Floor plan for project from page 26 of the file '93 Norman - UDRP Presentation May 2021'
  • Floor plan for project from page 27 of the file '93 Norman - UDRP Presentation May 2021'
  • Construction site plan for project from page 34 of the file '93 Norman - UDRP Presentation May 2021'
  • Construction site plan for project from page 34 of the file '93 Norman - UDRP Presentation May 2021'
  • Construction site plan for project from page 34 of the file '93 Norman - UDRP Presentation May 2021'
  • Construction site plan for project from page 34 of the file '93 Norman - UDRP Presentation May 2021'
  • Construction site plan for project from page 34 of the file '93 Norman - UDRP Presentation May 2021'
  • Construction site plan for project from page 34 of the file '93 Norman - UDRP Presentation May 2021'

Documents #

TypeDocument
Application Summary2021-03-25 - Application Summary - D07-12-13-0225
Architectural PlansD07-12-13-0225 West Elevation
Architectural PlansD07-12-13-0225 South Elevations
Architectural PlansD07-12-13-0225 Site Servicing and Grading Plan
Architectural PlansD07-12-13-0225 Site Plan
Architectural PlansD07-12-13-0225 North Elevations
Architectural PlansD07-12-13-0225 Landscape Plan
Architectural PlansD07-12-13-0225 Existing Conditions and Removals Plan
Architectural PlansD07-12-13-0225 Erosion Control Plan
Architectural PlansD07-12-13-0225 6th Floor to Mechanical Penthouse Plan
Architectural Plans2021-11-25 - Approved South Elevation - D07-12-13-0225
Architectural Plans2021-11-25 - Approved Site Plan - D07-12-13-0225
Architectural Plans2021-11-25 - Approved North Elevation - D07-12-13-0225
Architectural Plans2021-11-25 - Approved General Plan of Services - D07-12-13-0225
Architectural Plans2021-11-25 - Approved East & West Elevation - D07-12-13-0225
Architectural Plans2021-06-16 - Architectural Package - D07-12-13-0225
Architectural Plans2021-03-19 - Site Plan Site Plan Zoning -D07-12-13-0225
Architectural Plans2021-03-19 - Site Plan Control Planning Rationale - D07-12-13-0225
Architectural Plans2021-03-19 - Plans - D07-1-13-0225
Architectural Plans2021-03-19 - Elevations - D07-12-13-0225
Design Brief93 Norman - UDRP Presentation May 2021
Erosion And Sediment Control Plan2021-11-25 - Approved Erosion and Sedimentation Control Plan - D07-12-13-0225
Erosion And Sediment Control Plan2021-06-16 - Erosion and Sediment Control Plan - D07-12-13-0225
Floor PlanD07-12-13-0225 Parking and Ground Floor Plan
Floor PlanD07-12-13-0225 2nd to 5th Floor Plan
Geotechnical Report2021-11-25 - Approved Grading Plan - D07-12-13-0225
Geotechnical Report2021-06-16 - Grading Plan - D07-12-13-0225
Geotechnical Report2021-06-16 - Geotechnical - D07-12-13-0225
Geotechnical Report2021-03-19 - Geotechnical Investigation - D07-12-13-0225
Landscape Plan2021-11-25 - Approved Landscape Plan - D07-12-13-0225
Landscape Plan2021-06-16 - Landscape Plan - D07-12-13-0225
Landscape Plan2021-03-19 - Landscape Plan - D07-12-13-0225
Noise Study2021-03-19 - Transportation Noise and Vibration - D07-12-13-0225
RenderingD07-12-13-0225 Perspective VI
RenderingD07-12-13-0225 Perspective V
RenderingD07-12-13-0225 Perspective IV
RenderingD07-12-13-0225 Perspective III
RenderingD07-12-13-0225 Perspective II
RenderingD07-12-13-0225 Perspective I
Shadow StudyD07-12-13-0225 Sun Shadow Study II
Shadow StudyD07-12-13-0225 Sun Shadow Study I
Shadow Study2021-03-19 - Shadow Study - D07-12-13-0225
Site Servicing2021-06-16 - Site Servicing Erosion - D07-12-13-0225
Site Servicing2021-03-19 - Site Servicing Erosion - D07-12-13-0225
Stormwater ManagementD07-12-13-0225 Stormwater Management Plan
SurveyingD07-12-13-0225 Survey Plan
Surveying2021-03-19 - Topographical - D07-12-13-0225
Transportation Analysis2021-03-19 - Transportation Impact Assessment Step 4 Strategy Report - D07-12-13-0225
Tree Information and ConservationD07-12-13-0225 Tree Conservation Report
Wind Study2021-03-19 - Wind Study - D07-12-13-0225
D07-12-13-0225 Transportation Addendum
D07-12-13-0225 Planning Rationale
D07-12-13-0225 Phase II Environmental Site Assessment
D07-12-13-0225 Phase I Environmental Site Assessment
D07-12-13-0225 Geotechnical Investigation
2021-11-25 - Signed DAR - D07-12-13-0225
2021-11-25 - Approved Norman Street Watermain - D07-12-13-0225
2021-03-19 - Proximity Study - D07-12-13-0225
2021-03-19 - Images - D07-12-13-0225
IDAddressLast UpdatedDate Initiated
D07-05-15-000493 Norman
99 Norman
103 Norman
105 Norman
2018-04-132015-07-31