1050 Somerset St. (D07-12-12-0017)#
Summary#
| Application Status | File Pending |
| Review Status | Application File Pending |
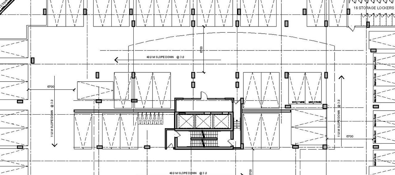
| Description | The proposed development includes a 28-storey mixed-use condominium tower with a total height of 86 metres. The development proposes 271 residential units, including seven ground-oriented attached dwellings, and 567 square metres of ground-oriented commercial space. Commercial entrances are proposed to front onto Somerset Street West, while the main residential entrance is proposed along Breezehill Avenue North. Five levels of underground parking, containing 244 parking spaces, are proposed to be accessed from the laneway along the western edge of the property. |
| Ward | Ward 15 - Jeff Leiper |
| Date Initiated | 2012-02-08 |
| Last Updated | 2012-03-22 |
Renders#
Location#
Select a marker to view the address.



































