8415 Campeau (D07-04-22-0009)

8415 Campeau (D07-04-22-0009) #

Summary #

Application StatusInactive
Review StatusAgreement Registered - Securities Held
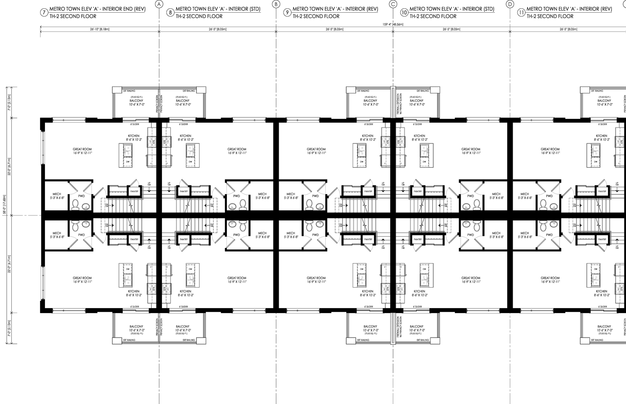
Description264 stacked townhouse dwelings; 104 townhouse dwellings; 314 parking spaces for stocked dwellings (above and below ground); and 208 parking spaces for the townhouse dwellings (1 in the garage and 1 on the driveway). One (1) 0.56 ho park block and two outdoor amenity areas
WardWard 4 - Cathy Curry
Date Initiated2022-07-21
Last Updated2025-03-25

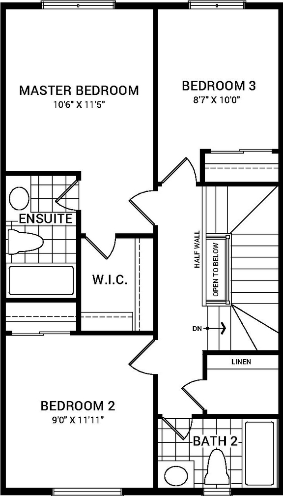
Site and Floor Plans #

  • Floor plan for project from page 1 of the file '2022-07-21 - Venice Corner Unit Floor Plan - D07-04-22-0009'
  • Floor plan for project from page 1 of the file '2022-07-21 - Venice Corner Unit Floor Plan - D07-04-22-0009'
  • Floor plan for project from page 2 of the file '2022-07-21 - Venice Corner Unit Floor Plan - D07-04-22-0009'
  • Floor plan for project from page 3 of the file '2022-07-21 - Venice Corner Unit Floor Plan - D07-04-22-0009'
  • Floor plan for project from page 4 of the file '2022-07-21 - Venice Corner Unit Floor Plan - D07-04-22-0009'
  • Floor plan for project from page 4 of the file '2022-07-21 - Venice Corner Unit Floor Plan - D07-04-22-0009'
  • Floor plan for project from page 4 of the file '2022-07-21 - Venice Corner Unit Floor Plan - D07-04-22-0009'
  • Floor plan for project from page 1 of the file '2022-07-21 - Tahoe End Unit Floor Plan - D07-04-22-0009'
  • Floor plan for project from page 1 of the file '2022-07-21 - Tahoe End Unit Floor Plan - D07-04-22-0009'
  • Floor plan for project from page 1 of the file '2022-07-21 - Tahoe End Unit Floor Plan - D07-04-22-0009'
  • Floor plan for project from page 1 of the file '2022-07-21 - Tahoe End Unit Floor Plan - D07-04-22-0009'
  • Floor plan for project from page 2 of the file '2022-07-21 - Tahoe End Unit Floor Plan - D07-04-22-0009'
  • Floor plan for project from page 2 of the file '2022-07-21 - Tahoe End Unit Floor Plan - D07-04-22-0009'
  • Floor plan for project from page 3 of the file '2022-07-21 - Tahoe End Unit Floor Plan - D07-04-22-0009'
  • Floor plan for project from page 3 of the file '2022-07-21 - Tahoe End Unit Floor Plan - D07-04-22-0009'
  • Floor plan for project from page 3 of the file '2022-07-21 - Tahoe End Unit Floor Plan - D07-04-22-0009'
  • Floor plan for project from page 3 of the file '2022-07-21 - Tahoe End Unit Floor Plan - D07-04-22-0009'
  • Floor plan for project from page 3 of the file '2022-07-21 - Tahoe End Unit Floor Plan - D07-04-22-0009'
  • Floor plan for project from page 4 of the file '2022-07-21 - Tahoe End Unit Floor Plan - D07-04-22-0009'
  • Floor plan for project from page 4 of the file '2022-07-21 - Tahoe End Unit Floor Plan - D07-04-22-0009'
  • Floor plan for project from page 4 of the file '2022-07-21 - Tahoe End Unit Floor Plan - D07-04-22-0009'
  • Floor plan for project from page 1 of the file '2022-07-21 - Monterey Floor Plan - D07-04-22-0009'
  • Floor plan for project from page 1 of the file '2022-07-21 - Monterey Floor Plan - D07-04-22-0009'
  • Floor plan for project from page 1 of the file '2022-07-21 - Monterey Floor Plan - D07-04-22-0009'
  • Floor plan for project from page 1 of the file '2022-07-21 - Monterey Floor Plan - D07-04-22-0009'
  • Floor plan for project from page 1 of the file '2022-07-21 - Monterey Floor Plan - D07-04-22-0009'
  • Floor plan for project from page 2 of the file '2022-07-21 - Monterey Floor Plan - D07-04-22-0009'
  • Floor plan for project from page 2 of the file '2022-07-21 - Monterey Floor Plan - D07-04-22-0009'
  • Floor plan for project from page 2 of the file '2022-07-21 - Monterey Floor Plan - D07-04-22-0009'
  • Floor plan for project from page 2 of the file '2022-07-21 - Monterey Floor Plan - D07-04-22-0009'
  • Floor plan for project from page 2 of the file '2022-07-21 - Monterey Floor Plan - D07-04-22-0009'
  • Floor plan for project from page 1 of the file '2022-07-21 - Monterey End Unit Floor Plan - D07-04-22-0009'
  • Floor plan for project from page 1 of the file '2022-07-21 - Monterey End Unit Floor Plan - D07-04-22-0009'
  • Floor plan for project from page 1 of the file '2022-07-21 - Monterey End Unit Floor Plan - D07-04-22-0009'
  • Floor plan for project from page 1 of the file '2022-07-21 - McKee Corner Unit Floor Plan - D07-04-22-0009'
  • Floor plan for project from page 1 of the file '2022-07-21 - McKee Corner Unit Floor Plan - D07-04-22-0009'
  • Floor plan for project from page 1 of the file '2022-07-21 - McKee Corner Unit Floor Plan - D07-04-22-0009'
  • Floor plan for project from page 2 of the file '2022-07-21 - McKee Corner Unit Floor Plan - D07-04-22-0009'
  • Floor plan for project from page 1 of the file '2022-07-21 - Laguna Floor Plan - D07-04-22-0009'
  • Floor plan for project from page 1 of the file '2022-07-21 - Laguna Floor Plan - D07-04-22-0009'
  • Floor plan for project from page 1 of the file '2022-07-21 - Laguna Floor Plan - D07-04-22-0009'
  • Floor plan for project from page 1 of the file '2022-07-21 - Laguna Floor Plan - D07-04-22-0009'
  • Floor plan for project from page 2 of the file '2022-07-21 - Laguna Floor Plan - D07-04-22-0009'
  • Floor plan for project from page 2 of the file '2022-07-21 - Laguna Floor Plan - D07-04-22-0009'
  • Floor plan for project from page 2 of the file '2022-07-21 - Laguna Floor Plan - D07-04-22-0009'
  • Floor plan for project from page 1 of the file '2022-07-21 - Laguna End Unit Floor Plan - D07-04-22-0009'
  • Floor plan for project from page 1 of the file '2022-07-21 - Haven Floor Plan - D07-04-22-0009'
  • Floor plan for project from page 1 of the file '2022-07-21 - Haven Floor Plan - D07-04-22-0009'
  • Floor plan for project from page 1 of the file '2022-07-21 - Haven Floor Plan - D07-04-22-0009'
  • Floor plan for project from page 1 of the file '2022-07-21 - Haven Floor Plan - D07-04-22-0009'
  • Floor plan for project from page 2 of the file '2022-07-21 - Haven Floor Plan - D07-04-22-0009'
  • Floor plan for project from page 2 of the file '2022-07-21 - Haven Floor Plan - D07-04-22-0009'
  • Floor plan for project from page 2 of the file '2022-07-21 - Haven Floor Plan - D07-04-22-0009'
  • Floor plan for project from page 1 of the file '2022-07-21 - Dawson End Unit Floor Plan - D07-04-22-0009'
  • Floor plan for project from page 1 of the file '2022-07-21 - Dawson End Unit Floor Plan - D07-04-22-0009'
  • Floor plan for project from page 1 of the file '2022-07-21 - Dawson End Unit Floor Plan - D07-04-22-0009'
  • Floor plan for project from page 1 of the file '2022-07-21 - Citrus Floor Plan - D07-04-22-0009'
  • Floor plan for project from page 1 of the file '2022-07-21 - Citrus Floor Plan - D07-04-22-0009'
  • Floor plan for project from page 1 of the file '2022-07-21 - Citrus Floor Plan - D07-04-22-0009'
  • Floor plan for project from page 1 of the file '2022-07-21 - Citrus Floor Plan - D07-04-22-0009'
  • Floor plan for project from page 2 of the file '2022-07-21 - Citrus Floor Plan - D07-04-22-0009'
  • Floor plan for project from page 2 of the file '2022-07-21 - Citrus Floor Plan - D07-04-22-0009'
  • Floor plan for project from page 1 of the file '2022-07-21 - Cambridge Floor Plan - D07-04-22-0009'
  • Floor plan for project from page 1 of the file '2022-07-21 - Cambridge Floor Plan - D07-04-22-0009'
  • Floor plan for project from page 2 of the file '2022-07-21 - Cambridge Floor Plan - D07-04-22-0009'
  • Floor plan for project from page 1 of the file '2022-07-21 - Cambridge End Unit Floor Plan - D07-04-22-0009'
  • Floor plan for project from page 1 of the file '2022-07-21 - Burnaby Floor Plan - D07-04-22-0009'
  • Floor plan for project from page 1 of the file '2022-07-21 - Burnaby Floor Plan - D07-04-22-0009'
  • Floor plan for project from page 1 of the file '2022-07-21 - Burnaby Floor Plan - D07-04-22-0009'
  • Floor plan for project from page 2 of the file '2022-07-21 - Burnaby Floor Plan - D07-04-22-0009'
  • Floor plan for project from page 1 of the file '2022-07-21 - Alder Floor Plan - D07-04-22-0009'
  • Floor plan for project from page 1 of the file '2022-07-21 - Alder Floor Plan - D07-04-22-0009'
  • Floor plan for project from page 1 of the file '2022-07-21 - Alder Floor Plan - D07-04-22-0009'
  • Floor plan for project from page 1 of the file '2022-07-21 - Venice Corner Unit Floor Plan - D07-04-22-0009'
  • Floor plan for project from page 1 of the file '2022-07-21 - Venice Corner Unit Floor Plan - D07-04-22-0009'
  • Floor plan for project from page 2 of the file '2022-07-21 - Venice Corner Unit Floor Plan - D07-04-22-0009'
  • Floor plan for project from page 3 of the file '2022-07-21 - Venice Corner Unit Floor Plan - D07-04-22-0009'
  • Floor plan for project from page 4 of the file '2022-07-21 - Venice Corner Unit Floor Plan - D07-04-22-0009'
  • Floor plan for project from page 4 of the file '2022-07-21 - Venice Corner Unit Floor Plan - D07-04-22-0009'
  • Floor plan for project from page 4 of the file '2022-07-21 - Venice Corner Unit Floor Plan - D07-04-22-0009'
  • Floor plan for project from page 1 of the file '2022-07-21 - Tahoe End Unit Floor Plan - D07-04-22-0009'
  • Floor plan for project from page 1 of the file '2022-07-21 - Tahoe End Unit Floor Plan - D07-04-22-0009'
  • Floor plan for project from page 1 of the file '2022-07-21 - Tahoe End Unit Floor Plan - D07-04-22-0009'
  • Floor plan for project from page 1 of the file '2022-07-21 - Tahoe End Unit Floor Plan - D07-04-22-0009'
  • Floor plan for project from page 2 of the file '2022-07-21 - Tahoe End Unit Floor Plan - D07-04-22-0009'
  • Floor plan for project from page 2 of the file '2022-07-21 - Tahoe End Unit Floor Plan - D07-04-22-0009'
  • Floor plan for project from page 3 of the file '2022-07-21 - Tahoe End Unit Floor Plan - D07-04-22-0009'
  • Floor plan for project from page 3 of the file '2022-07-21 - Tahoe End Unit Floor Plan - D07-04-22-0009'
  • Floor plan for project from page 3 of the file '2022-07-21 - Tahoe End Unit Floor Plan - D07-04-22-0009'
  • Floor plan for project from page 3 of the file '2022-07-21 - Tahoe End Unit Floor Plan - D07-04-22-0009'
  • Floor plan for project from page 3 of the file '2022-07-21 - Tahoe End Unit Floor Plan - D07-04-22-0009'
  • Floor plan for project from page 4 of the file '2022-07-21 - Tahoe End Unit Floor Plan - D07-04-22-0009'
  • Floor plan for project from page 4 of the file '2022-07-21 - Tahoe End Unit Floor Plan - D07-04-22-0009'
  • Floor plan for project from page 4 of the file '2022-07-21 - Tahoe End Unit Floor Plan - D07-04-22-0009'
  • Floor plan for project from page 1 of the file '2022-07-21 - Monterey Floor Plan - D07-04-22-0009'
  • Floor plan for project from page 1 of the file '2022-07-21 - Monterey Floor Plan - D07-04-22-0009'
  • Floor plan for project from page 1 of the file '2022-07-21 - Monterey Floor Plan - D07-04-22-0009'
  • Floor plan for project from page 1 of the file '2022-07-21 - Monterey Floor Plan - D07-04-22-0009'
  • Floor plan for project from page 1 of the file '2022-07-21 - Monterey Floor Plan - D07-04-22-0009'
  • Floor plan for project from page 2 of the file '2022-07-21 - Monterey Floor Plan - D07-04-22-0009'
  • Floor plan for project from page 2 of the file '2022-07-21 - Monterey Floor Plan - D07-04-22-0009'
  • Floor plan for project from page 2 of the file '2022-07-21 - Monterey Floor Plan - D07-04-22-0009'
  • Floor plan for project from page 2 of the file '2022-07-21 - Monterey Floor Plan - D07-04-22-0009'
  • Floor plan for project from page 2 of the file '2022-07-21 - Monterey Floor Plan - D07-04-22-0009'
  • Floor plan for project from page 1 of the file '2022-07-21 - Monterey End Unit Floor Plan - D07-04-22-0009'
  • Floor plan for project from page 1 of the file '2022-07-21 - Monterey End Unit Floor Plan - D07-04-22-0009'
  • Floor plan for project from page 1 of the file '2022-07-21 - Monterey End Unit Floor Plan - D07-04-22-0009'
  • Floor plan for project from page 1 of the file '2022-07-21 - McKee Corner Unit Floor Plan - D07-04-22-0009'
  • Floor plan for project from page 1 of the file '2022-07-21 - McKee Corner Unit Floor Plan - D07-04-22-0009'
  • Floor plan for project from page 1 of the file '2022-07-21 - McKee Corner Unit Floor Plan - D07-04-22-0009'
  • Floor plan for project from page 2 of the file '2022-07-21 - McKee Corner Unit Floor Plan - D07-04-22-0009'
  • Floor plan for project from page 1 of the file '2022-07-21 - Laguna Floor Plan - D07-04-22-0009'
  • Floor plan for project from page 1 of the file '2022-07-21 - Laguna Floor Plan - D07-04-22-0009'
  • Floor plan for project from page 1 of the file '2022-07-21 - Laguna Floor Plan - D07-04-22-0009'
  • Floor plan for project from page 1 of the file '2022-07-21 - Laguna Floor Plan - D07-04-22-0009'
  • Floor plan for project from page 2 of the file '2022-07-21 - Laguna Floor Plan - D07-04-22-0009'
  • Floor plan for project from page 2 of the file '2022-07-21 - Laguna Floor Plan - D07-04-22-0009'
  • Floor plan for project from page 2 of the file '2022-07-21 - Laguna Floor Plan - D07-04-22-0009'
  • Floor plan for project from page 1 of the file '2022-07-21 - Laguna End Unit Floor Plan - D07-04-22-0009'
  • Floor plan for project from page 1 of the file '2022-07-21 - Haven Floor Plan - D07-04-22-0009'
  • Floor plan for project from page 1 of the file '2022-07-21 - Haven Floor Plan - D07-04-22-0009'
  • Floor plan for project from page 1 of the file '2022-07-21 - Haven Floor Plan - D07-04-22-0009'
  • Floor plan for project from page 1 of the file '2022-07-21 - Haven Floor Plan - D07-04-22-0009'
  • Floor plan for project from page 2 of the file '2022-07-21 - Haven Floor Plan - D07-04-22-0009'
  • Floor plan for project from page 2 of the file '2022-07-21 - Haven Floor Plan - D07-04-22-0009'
  • Floor plan for project from page 2 of the file '2022-07-21 - Haven Floor Plan - D07-04-22-0009'
  • Floor plan for project from page 1 of the file '2022-07-21 - Dawson End Unit Floor Plan - D07-04-22-0009'
  • Floor plan for project from page 1 of the file '2022-07-21 - Dawson End Unit Floor Plan - D07-04-22-0009'
  • Floor plan for project from page 1 of the file '2022-07-21 - Dawson End Unit Floor Plan - D07-04-22-0009'
  • Floor plan for project from page 1 of the file '2022-07-21 - Citrus Floor Plan - D07-04-22-0009'
  • Floor plan for project from page 1 of the file '2022-07-21 - Citrus Floor Plan - D07-04-22-0009'
  • Floor plan for project from page 1 of the file '2022-07-21 - Citrus Floor Plan - D07-04-22-0009'
  • Floor plan for project from page 1 of the file '2022-07-21 - Citrus Floor Plan - D07-04-22-0009'
  • Floor plan for project from page 2 of the file '2022-07-21 - Citrus Floor Plan - D07-04-22-0009'
  • Floor plan for project from page 2 of the file '2022-07-21 - Citrus Floor Plan - D07-04-22-0009'
  • Floor plan for project from page 1 of the file '2022-07-21 - Cambridge Floor Plan - D07-04-22-0009'
  • Floor plan for project from page 1 of the file '2022-07-21 - Cambridge Floor Plan - D07-04-22-0009'
  • Floor plan for project from page 2 of the file '2022-07-21 - Cambridge Floor Plan - D07-04-22-0009'
  • Floor plan for project from page 1 of the file '2022-07-21 - Cambridge End Unit Floor Plan - D07-04-22-0009'
  • Floor plan for project from page 1 of the file '2022-07-21 - Burnaby Floor Plan - D07-04-22-0009'
  • Floor plan for project from page 1 of the file '2022-07-21 - Burnaby Floor Plan - D07-04-22-0009'
  • Floor plan for project from page 1 of the file '2022-07-21 - Burnaby Floor Plan - D07-04-22-0009'
  • Floor plan for project from page 2 of the file '2022-07-21 - Burnaby Floor Plan - D07-04-22-0009'
  • Floor plan for project from page 1 of the file '2022-07-21 - Alder Floor Plan - D07-04-22-0009'
  • Floor plan for project from page 1 of the file '2022-07-21 - Alder Floor Plan - D07-04-22-0009'
  • Floor plan for project from page 1 of the file '2022-07-21 - Alder Floor Plan - D07-04-22-0009'

Files #

TypeNameLinks
Application Summary2022-08-09 - Application Summary - D07-04-22-0009Download PDF
Architectural Plans2022-07-21 - Underground Garage Plan - D07-04-22-0009Download PDF
Architectural Plans2022-07-21 - Site Plans UnStamped - D07-04-22-0009Download PDF
Architectural Plans2022-07-21 - Site Plans Stamped - D07-04-22-0009Download PDF
Architectural Plans2022-07-21 - Site Plan - D07-04-22-0009Download PDF
Architectural Plans2022-07-21 - Elevations - D07-04-22-0009Download PDF
Architectural Plans2022-07-21 - Draft Plan of Subdivision - D07-04-22-0009Download PDF
Architectural Plans2022-07-21 - Draft Plan of Condominium - D07-04-22-0009Download PDF
Architectural Plans2022-07-21 - Concept Plan 4 - D07-04-22-0009Download PDF
Architectural Plans2022-07-21 - Concept Plan 3 - D07-04-22-0009Download PDF
Architectural Plans2022-07-21 - Concept Plan 2 - D07-04-22-0009Download PDF
Architectural Plans2022-07-21 - Concept Plan - D07-04-22-0009Download PDF
Architectural Plans2022-07-21 - Basement and Ground Floor Elevations - D07-04-22-0009Download PDF
Architectural Plans2024-09-10 - Signed Draft Plan of Condominium - D07-04-22-0009Download PDF
Environmental2022-07-21 - Phase I Environmental Site Assessment - D07-04-22-0009Download PDF
Environmental2022-07-21 - Environmental Site Assessment - D07-04-22-0009Download PDF
Environmental2022-07-21 - Environmental Impact Statement - D07-04-22-0009Download PDF
Floor Plan2022-07-21 - Venice Corner Unit Floor Plan - D07-04-22-0009Download PDF
Floor Plan2022-07-21 - Tahoe End Unit Floor Plan - D07-04-22-0009Download PDF
Floor Plan2022-07-21 - Tahoe End Unit 4 Bedroom Floor Plan - D07-04-22-0009Download PDF
Floor Plan2022-07-21 - Monterey Floor Plan - D07-04-22-0009Download PDF
Floor Plan2022-07-21 - Monterey End Unit Floor Plan - D07-04-22-0009Download PDF
Floor Plan2022-07-21 - McKee Corner Unit Floor Plan - D07-04-22-0009Download PDF
Floor Plan2022-07-21 - Laguna Floor Plan - D07-04-22-0009Download PDF
Floor Plan2022-07-21 - Laguna End Unit Floor Plan - D07-04-22-0009Download PDF
Floor Plan2022-07-21 - Haven Floor Plan - D07-04-22-0009Download PDF
Floor Plan2022-07-21 - Floor Plans - D07-04-22-0009Download PDF
Floor Plan2022-07-21 - Dawson End Unit Floor Plan - D07-04-22-0009Download PDF
Floor Plan2022-07-21 - Citrus Floor Plan - D07-04-22-0009Download PDF
Floor Plan2022-07-21 - Cambridge Floor Plan - D07-04-22-0009Download PDF
Floor Plan2022-07-21 - Cambridge End Unit Floor Plan - D07-04-22-0009Download PDF
Floor Plan2022-07-21 - Burnaby Floor Plan - D07-04-22-0009Download PDF
Floor Plan2022-07-21 - Alder Floor Plan - D07-04-22-0009Download PDF
Geotechnical Report2022-07-21 - Geotechnical Investigation - D07-04-22-0009Download PDF
Landscape Plan2022-07-21 - Landscape Plan - D07-04-22-0009Download PDF
Noise Study2022-07-21 - Noise Study - D07-04-22-0009Download PDF
Planning2022-07-21 - Planning Rationale - D07-04-22-0009Download PDF
Site Servicing2022-07-21 - Site Servicing Report - D07-04-22-0009Download PDF
Surveying2022-07-21 - Plan of Survey - D07-04-22-0009Download PDF
Transportation Analysis2022-07-21 - Transportation Impact Assessment - D07-04-22-0009Download PDF
2024-06-05 - Signed Delegated Authority Report - D07-04-22-0009Download PDF
2022-07-21 - Turning Movement Analysis - D07-04-22-0009Download PDF
2022-07-21 - Streetlighting Drawings - D07-04-22-0009Download PDF
2022-07-21 - LRT Proximity Study - D07-04-22-0009Download PDF
2022-07-21 - Cover Letter - D07-04-22-0009Download PDF
2024-09-10 - Conditions of Draft Approval - D07-04-22-0009Download PDF