2505-2707 Solandt Rd. (D02-02-26-0006)#
Summary#
| Application Status | Active |
| Review Status | Comment Period in Progress |
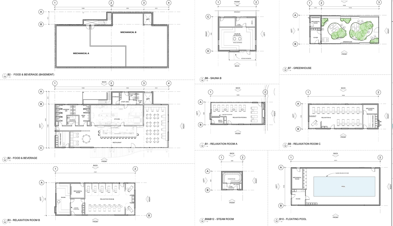
| Description | It is proposed to construct a three-storey personal service facility on the subject site. The purposed use includes a spa with accessory outdoor amenity areas and personal service buildings located west of the main building. A restaurant is proposed within the mail building. The subject site will be accessed via a driveway off Solandt Road. A major zoning by-law amendment application is required to rezone the subject site from “IP6” to “MC” to permit “personal service business” and other proposed uses on the subject site. A site-specific zoning provision will establish no minimum parking for the proposed development. |
| Ward | Ward 4 - Cathy Curry |
| Date Initiated | 2026-01-30 |
| Last Updated | 2026-02-07 |
Location#
Select a marker to view the address.
Site Plans, Elevations and Floor Plans#
Documents#
Additional Information#
| All Addresses | 2505 Solandt Rd. 2707 Solandt Rd. |
Related Projects#
| Project | Last Updated | Date Initiated |
|---|---|---|
2505-2707 Solandt Rd.
D07-12-26-0007 | 2026-02-07 | 2026-01-30 |
2505-2707 Solandt Rd.
D07-12-19-0172 | 2025-05-30 | 2019-10-11 |


