306-335 Tweedsmuir Ave./322-330 Athlone Ave./1994 Scott St. (D02-02-25-0097)#
Summary#
| Application Status | Active |
| Review Status | Comment Period in Progress |
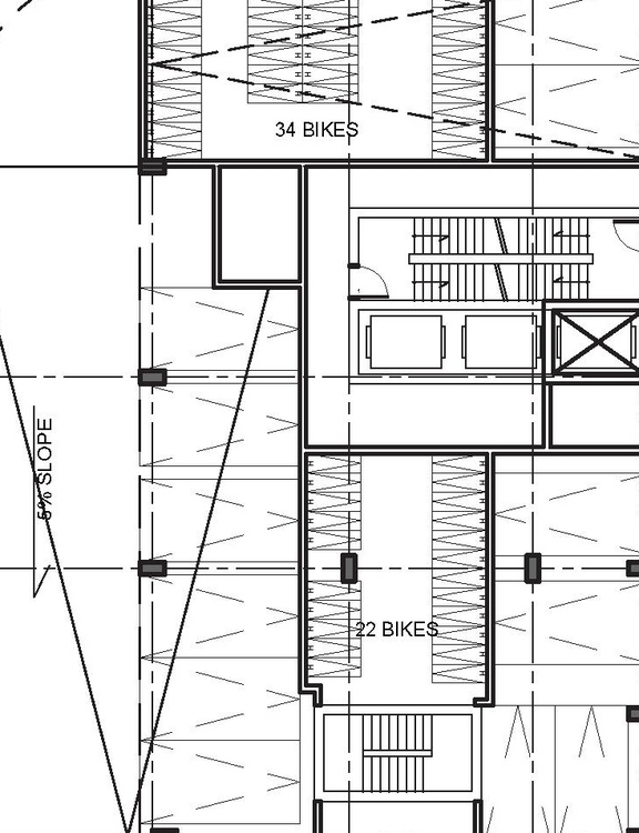
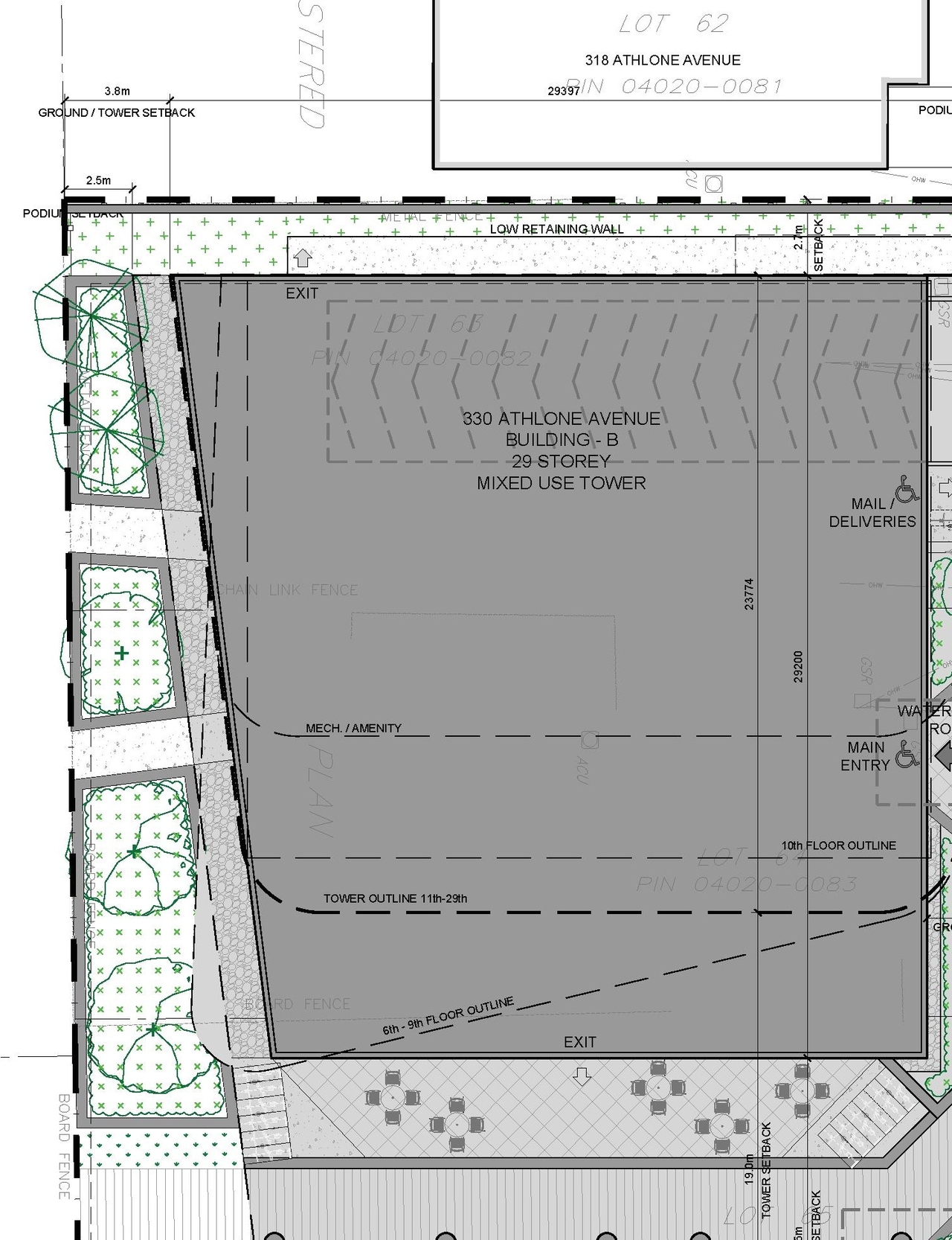
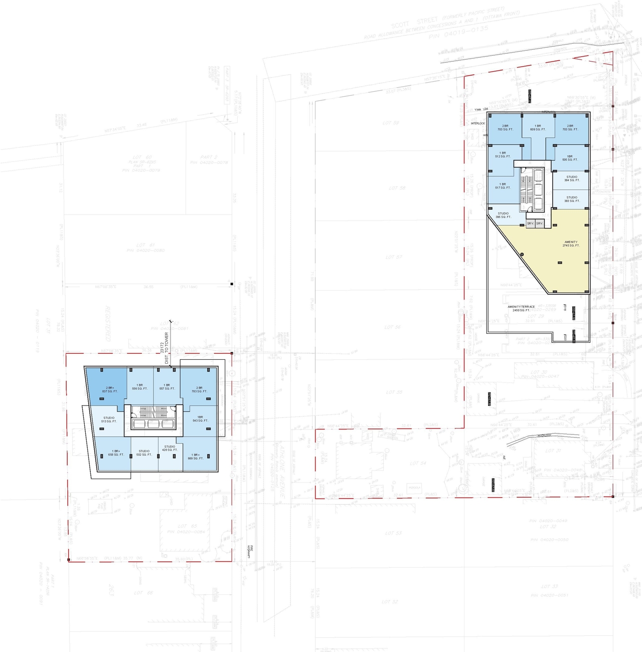
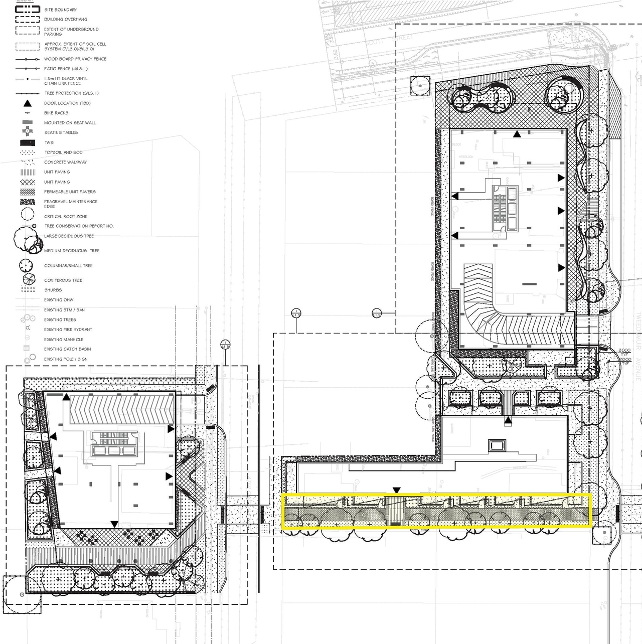
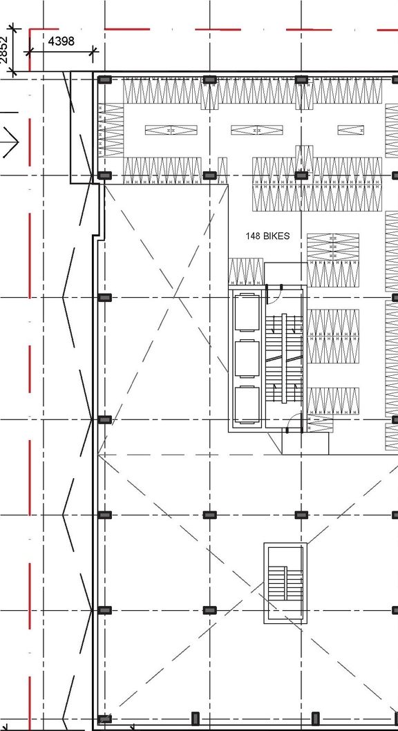
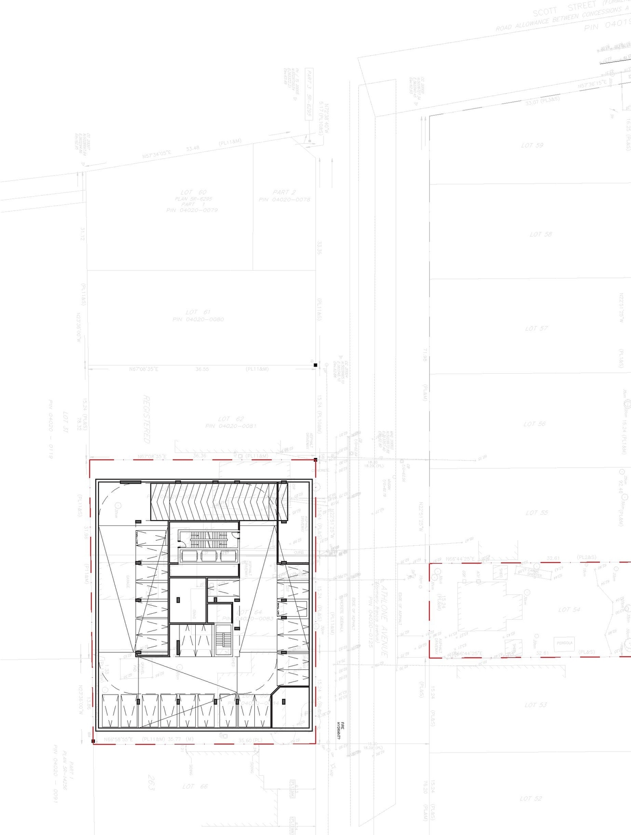
| Description | Applications for establishing entitlements to facilitate future redevelopment of four assembled portions of land (Parcels A1, A2, B, and C) into a transit-oriented community consisting of low- to high-rise buildings of primarily residential use, parkland, and well-connected public realm space. The conceptual development consists of one 4-storey building, two 29-storey buildings, and one 40-storey building, with a total of 1,206 dwelling units, 444.5m2 of commercial GFA, 10,380m2 of amenity area, 610 vehicle parking spaces, 1,273 bicycle parking spaces, a publicly accessible mid block connection, a privately owned public space, and parkland (approx. 10% of site area). |
| Ward | Ward 15 - Jeff Leiper |
| Date Initiated | 2025-12-15 |
| Last Updated | 2026-01-16 |
Renders#
Location#
Select a marker to view the address.
Site Plans, Elevations and Floor Plans#
Documents#
Additional Information#
| All Addresses | 306 Tweedsmuir Ave. 314 Tweedsmuir Ave. 316 Tweedsmuir Ave. 317 Tweedsmuir Ave. 318 Tweedsmuir Ave. 320 Tweedsmuir Ave. 321 Tweedsmuir Ave. 323 Tweedsmuir Ave. 324 Tweedsmuir Ave. 327 Tweedsmuir Ave. 328 Tweedsmuir Ave. 333 Tweedsmuir Ave. 335 Tweedsmuir Ave. 322 Athlone Ave. 326 Athlone Ave. 327 Athlone Ave. 330 Athlone Ave. 1994 Scott St. |
| Other IDs | D01-01-25-0025 |









































