3400-3428 Woodroffe Ave. (D02-02-25-0090) #
Summary #
| Application Status | Active |
| Review Status | Comment Period in Progress |
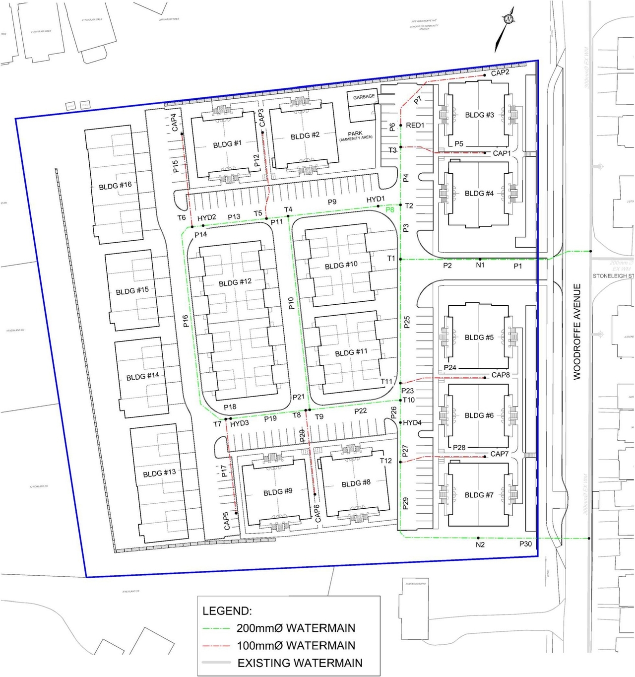
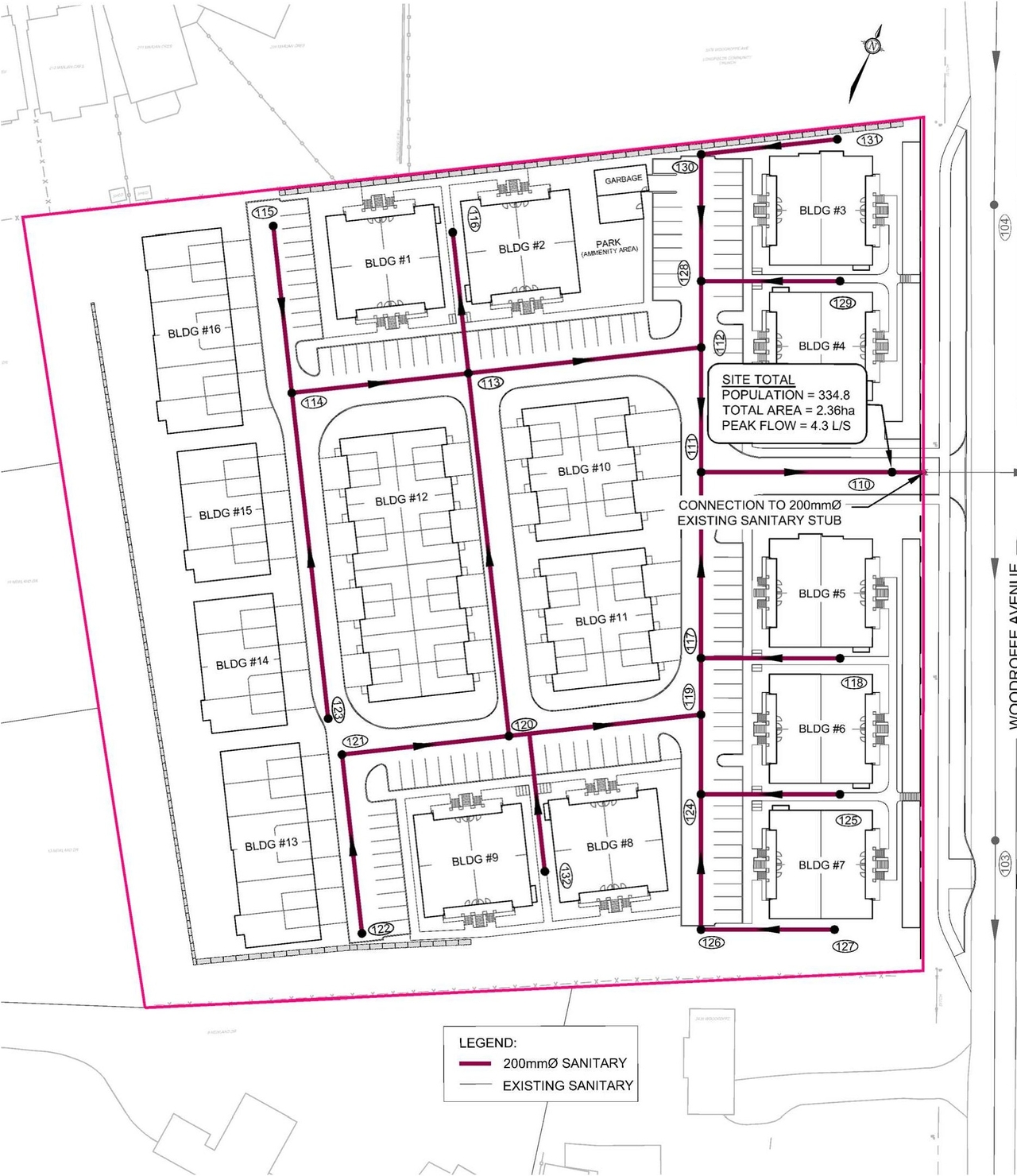
| Description | A Zoning By-law Amendment and Site Plan Control application to rezone the site to Residential Fourth Density, Subzone Z, with an exception (R4Z[XXXX]) to construct a planned unit development (PUD). The proposal consists of a private road and 16 buildings ranging from 2 to 3 storeys, for a total of 160 units. |
| Ward | Ward 24 - Wilson Lo |
| Date Initiated | 2025-12-03 |
| Last Updated | 2026-01-30 |
Renders #
Location #
Select a marker to view the address.
Site and Floor Plans #
Documents #
Additional Information #
| All Addresses | 3400 Woodroffe Ave. 3428 Woodroffe Ave. |

























































