5872-5884 Hazeldean Rd./7 Savage Dr. (D02-02-25-0070) #
Summary #
| Application Status | Active |
| Review Status | Comment Period in Progress |
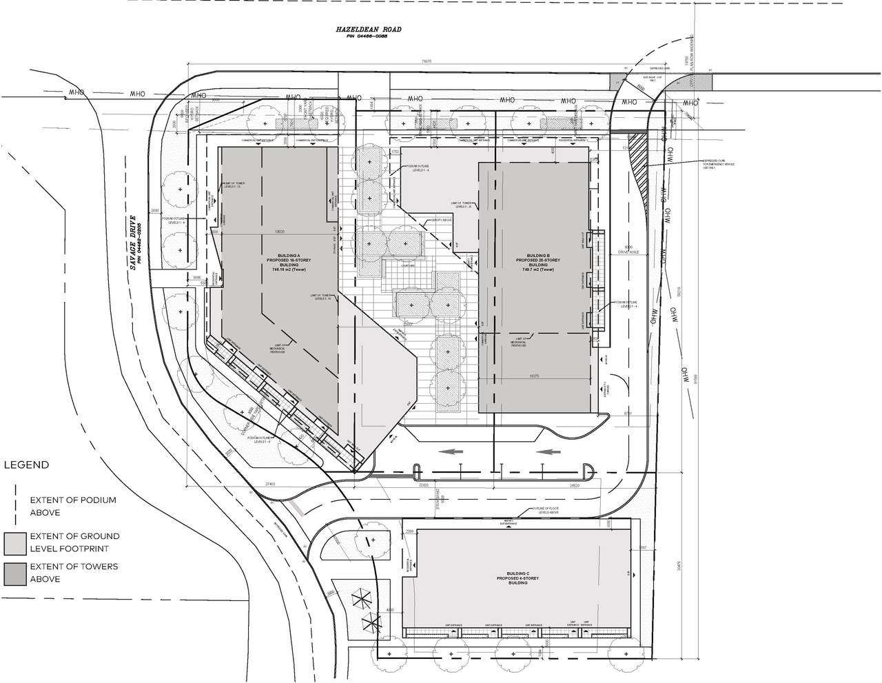
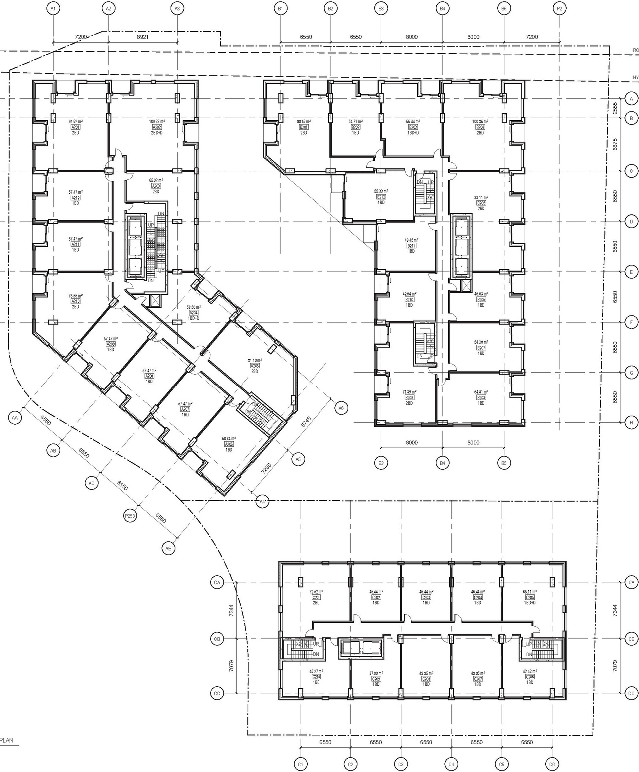
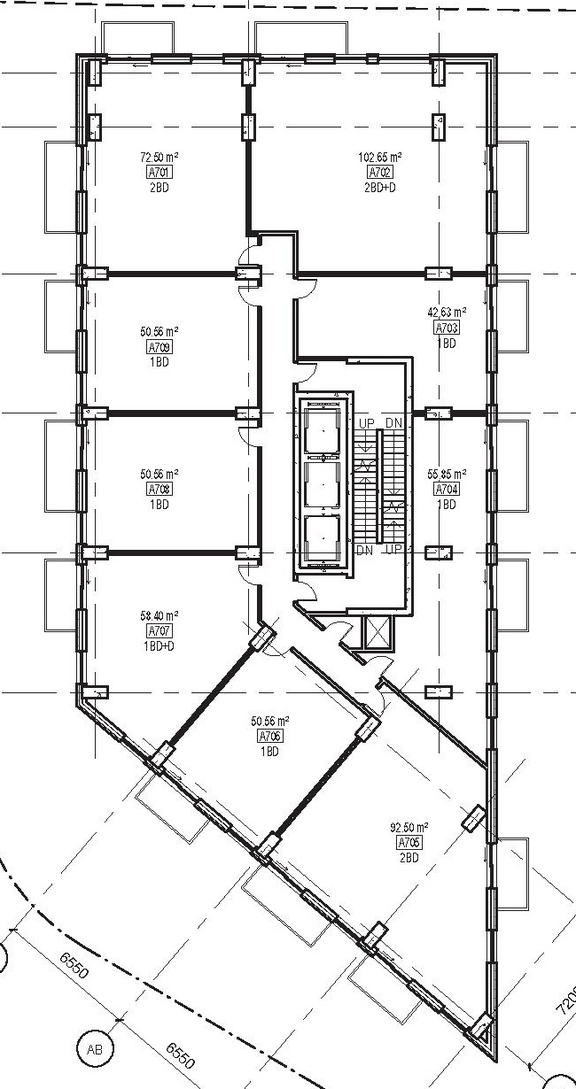
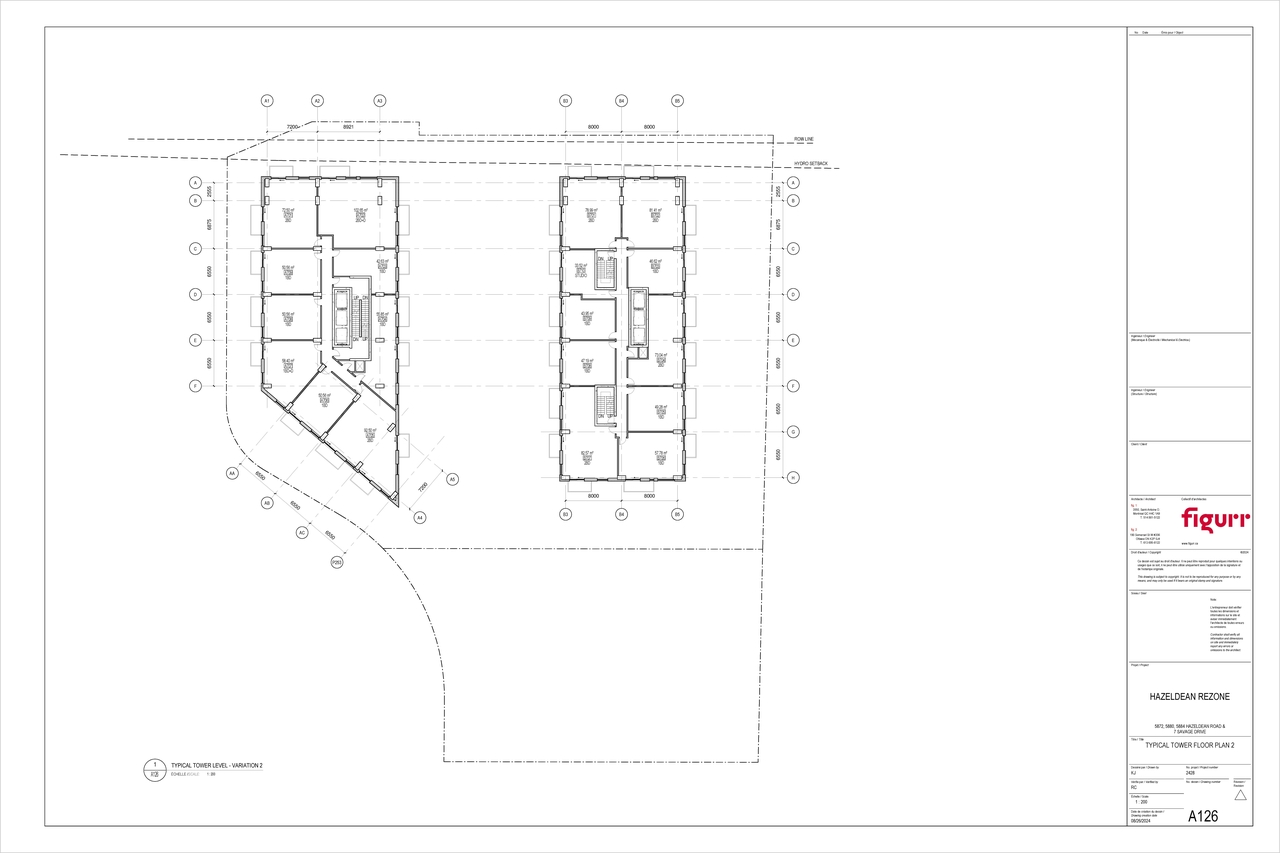
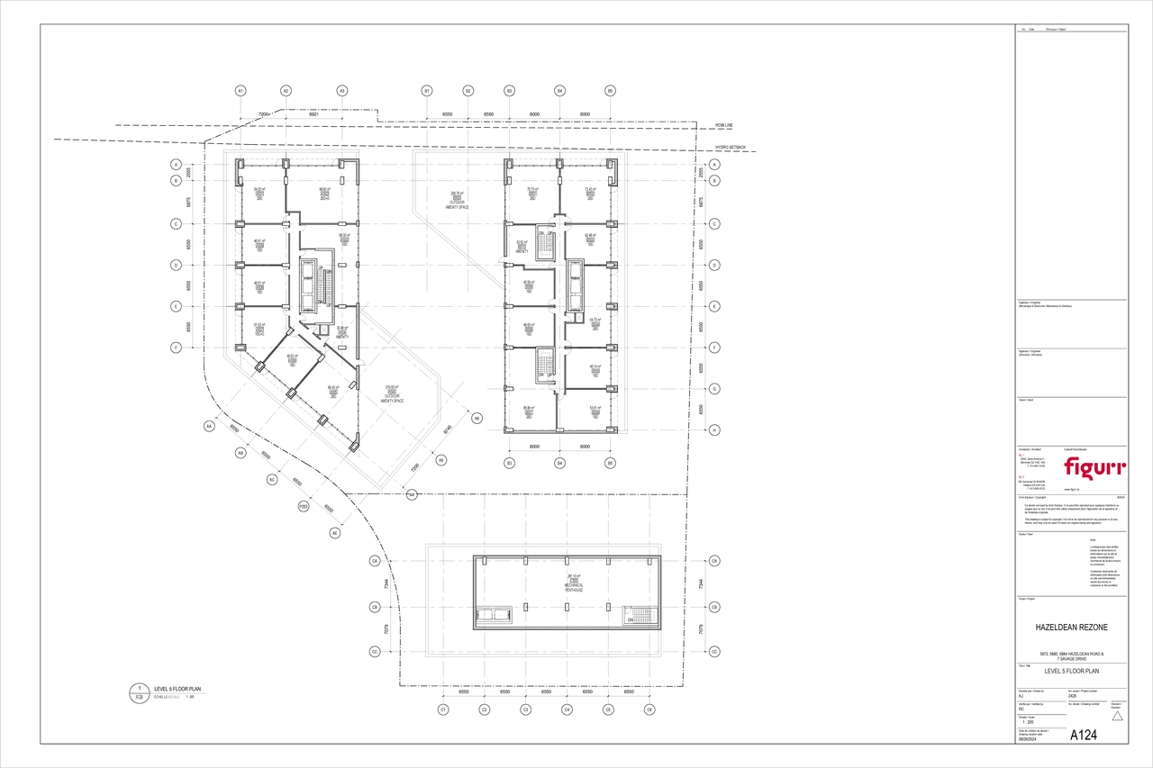
| Description | The proposed development includes a 25-storey and a 19-storey mixed-use building at the northeast and northwest corners of the site, respectively, and a 4-storey low-rise apartment building to the south. Together, the buildings will provide 456 residential units and four ground-floor commercial units fronting Hazeldean Road, with a total commercial area of 438.37 m². A central internal road, turning loop, and courtyard are also proposed, with an overall residential density of approximately 779 units per hectare. |
| Ward | Ward 6 - Glen Gower |
| Date Initiated | 2025-09-19 |
| Last Updated | 2025-12-15 |
Renders #
Location #
Select a marker to view the address.
Site and Floor Plans #
Documents #
Additional Information #
| All Addresses | 5872 Hazeldean Rd. 5880 Hazeldean Rd. 5884 Hazeldean Rd. 7 Savage Dr. |









































































































