6310-6320 Hazeldean Rd. (D02-02-25-0063)

6310-6320 Hazeldean Rd. (D02-02-25-0063) #

Summary #

Application StatusActive
Review StatusApplication Reactivated
DescriptionThe City of Ottawa has received Minor Zoning By-law Amendment and Site Plan Control applications to develop two high-rise buildings, 12 and 21 storeys in height. The development proposes to include 457 residential units, 553 vehicle parking spaces and 462 bicycle parking spaces.
WardWard 6 - Glen Gower
Date Initiated2025-09-02
Last Updated2026-01-31

Renders #

  • Rendering of building from page 36 of the file '2025-09-02 - Urban Design Review Panel Report - D02-02-25-0063'
  • Rendering of building from page 45 of the file '2025-09-02 - Design Brief - D02-02-25-0063'
  • Rendering of building from page 32 of the file '2025-09-02 - Design Brief - D02-02-25-0063'
  • Rendering of building from page 48 of the file '2025-09-02 - Urban Design Review Panel Report - D02-02-25-0063'
  • Rendering of building from page 4 of the file '2025-11-07 - RENDERS - D02-02-25-0063'
  • Rendering of building from page 8 of the file '2025-11-07 - RENDERS - D02-02-25-0063'
  • Rendering of building from page 6 of the file '2025-11-07 - RENDERS - D02-02-25-0063'
  • Rendering of building from page 10 of the file '2025-09-02 - Urban Design Review Panel Report - D02-02-25-0063'
  • Rendering of building from page 43 of the file '2025-09-02 - Design Brief - D02-02-25-0063'
  • Rendering of building from page 47 of the file '2025-09-02 - Design Brief - D02-02-25-0063'
  • Rendering of building from page 46 of the file '2025-09-02 - Design Brief - D02-02-25-0063'
  • Rendering of building from page 2 of the file '2025-11-07 - RENDERS - D02-02-25-0063'
  • Rendering of building from page 32 of the file '2025-09-02 - Design Brief - D02-02-25-0063'
  • Rendering of building from page 14 of the file '2025-09-02 - Design Brief - D02-02-25-0063'
  • Rendering of building from page 47 of the file '2025-09-02 - Urban Design Review Panel Report - D02-02-25-0063'
  • Rendering of building from page 46 of the file '2025-09-02 - Urban Design Review Panel Report - D02-02-25-0063'
  • Rendering of building from page 35 of the file '2025-09-02 - Urban Design Review Panel Report - D02-02-25-0063'
  • Rendering of building from page 14 of the file '2025-09-02 - Design Brief - D02-02-25-0063'
  • Rendering of building from page 32 of the file '2025-09-02 - Design Brief - D02-02-25-0063'
  • Rendering of building from page 44 of the file '2025-09-02 - Design Brief - D02-02-25-0063'
  • Rendering of building from page 44 of the file '2025-09-02 - Urban Design Review Panel Report - D02-02-25-0063'
  • Rendering of building from page 5 of the file '2025-11-07 - RENDERS - D02-02-25-0063'
  • Rendering of building from page 6 of the file '2025-09-02 - Design Brief - D02-02-25-0063'
  • Rendering of building from page 35 of the file '2025-09-02 - Urban Design Review Panel Report - D02-02-25-0063'
  • Rendering of building from page 49 of the file '2025-09-02 - Urban Design Review Panel Report - D02-02-25-0063'
  • Rendering of building from page 1 of the file '2025-11-07 - RENDERS - D02-02-25-0063'
  • Rendering of building from page 7 of the file '2025-11-07 - RENDERS - D02-02-25-0063'
  • Rendering of building from page 50 of the file '2025-09-02 - Urban Design Review Panel Report - D02-02-25-0063'
  • Rendering of building from page 35 of the file '2025-09-02 - Urban Design Review Panel Report - D02-02-25-0063'
  • Rendering of building from page 48 of the file '2025-09-02 - Design Brief - D02-02-25-0063'
  • Rendering of building from page 21 of the file '2025-09-02 - Urban Design Review Panel Report - D02-02-25-0063'
  • Rendering of building from page 9 of the file '2025-11-07 - RENDERS - D02-02-25-0063'
  • Rendering of building from page 32 of the file '2025-09-02 - Design Brief - D02-02-25-0063'
  • Rendering of building from page 45 of the file '2025-09-02 - Urban Design Review Panel Report - D02-02-25-0063'
  • Rendering of building from page 40 of the file '2025-09-02 - Design Brief - D02-02-25-0063'
  • Rendering of building from page 49 of the file '2025-09-02 - Design Brief - D02-02-25-0063'
  • Rendering of building from page 10 of the file '2025-11-07 - RENDERS - D02-02-25-0063'
  • Rendering of building from page 32 of the file '2025-09-02 - Design Brief - D02-02-25-0063'
  • Rendering of building from page 41 of the file '2025-09-02 - Design Brief - D02-02-25-0063'
  • Rendering of building from page 42 of the file '2025-09-02 - Urban Design Review Panel Report - D02-02-25-0063'
  • Rendering of building from page 21 of the file '2025-09-02 - Urban Design Review Panel Report - D02-02-25-0063'
  • Rendering of building from page 41 of the file '2025-09-02 - Urban Design Review Panel Report - D02-02-25-0063'
  • Rendering of building from page 13 of the file '2025-09-02 - Urban Design Review Panel Report - D02-02-25-0063'
  • Rendering of building from page 50 of the file '2025-09-02 - Design Brief - D02-02-25-0063'
  • Rendering of building from page 51 of the file '2025-09-02 - Urban Design Review Panel Report - D02-02-25-0063'
  • Rendering of building from page 102 of the file '2025-09-02 - Urban Design Review Panel Report - D02-02-25-0063'
  • Rendering of building from page 51 of the file '2025-09-02 - Design Brief - D02-02-25-0063'
  • Rendering of building from page 52 of the file '2025-09-02 - Urban Design Review Panel Report - D02-02-25-0063'
  • Rendering of building from page 6 of the file '2025-09-02 - Design Brief - D02-02-25-0063'
  • Rendering of building from page 53 of the file '2025-09-02 - Design Brief - D02-02-25-0063'
  • Rendering of building from page 50 of the file '2025-09-02 - Design Brief - D02-02-25-0063'
  • Rendering of building from page 53 of the file '2025-09-02 - Design Brief - D02-02-25-0063'
  • Rendering of building from page 52 of the file '2025-09-02 - Urban Design Review Panel Report - D02-02-25-0063'
  • Rendering of building from page 53 of the file '2025-09-02 - Design Brief - D02-02-25-0063'
  • Rendering of building from page 32 of the file '2025-09-02 - Design Brief - D02-02-25-0063'
  • Rendering of building from page 52 of the file '2025-09-02 - Design Brief - D02-02-25-0063'
  • Rendering of building from page 53 of the file '2025-09-02 - Urban Design Review Panel Report - D02-02-25-0063'
  • Rendering of building from page 53 of the file '2025-09-02 - Design Brief - D02-02-25-0063'
  • Rendering of building from page 43 of the file '2025-09-02 - Urban Design Review Panel Report - D02-02-25-0063'
  • Rendering of building from page 3 of the file '2025-11-07 - RENDERS - D02-02-25-0063'
  • Rendering of building from page 69 of the file '2025-09-02 - Design Brief - D02-02-25-0063'
  • Rendering of building from page 68 of the file '2025-09-02 - Design Brief - D02-02-25-0063'
  • Rendering of building from page 55 of the file '2025-09-02 - Urban Design Review Panel Report - D02-02-25-0063'
  • Rendering of building from page 55 of the file '2025-09-02 - Urban Design Review Panel Report - D02-02-25-0063'
  • Rendering of building from page 71 of the file '2025-09-02 - Design Brief - D02-02-25-0063'
  • Rendering of building from page 70 of the file '2025-09-02 - Design Brief - D02-02-25-0063'
  • Rendering of building from page 73 of the file '2025-09-02 - Urban Design Review Panel Report - D02-02-25-0063'
  • Rendering of building from page 37 of the file '2025-09-02 - Urban Design Review Panel Report - D02-02-25-0063'
  • Rendering of building from page 75 of the file '2025-09-02 - Urban Design Review Panel Report - D02-02-25-0063'
  • Rendering of building from page 74 of the file '2025-09-02 - Urban Design Review Panel Report - D02-02-25-0063'
  • Rendering of building from page 8 of the file '2025-09-02 - Urban Design Review Panel Report - D02-02-25-0063'
  • Rendering of building from page 36 of the file '2025-09-02 - Urban Design Review Panel Report - D02-02-25-0063'
  • Rendering of building from page 45 of the file '2025-09-02 - Design Brief - D02-02-25-0063'
  • Rendering of building from page 32 of the file '2025-09-02 - Design Brief - D02-02-25-0063'
  • Rendering of building from page 48 of the file '2025-09-02 - Urban Design Review Panel Report - D02-02-25-0063'
  • Rendering of building from page 4 of the file '2025-11-07 - RENDERS - D02-02-25-0063'
  • Rendering of building from page 8 of the file '2025-11-07 - RENDERS - D02-02-25-0063'
  • Rendering of building from page 6 of the file '2025-11-07 - RENDERS - D02-02-25-0063'
  • Rendering of building from page 10 of the file '2025-09-02 - Urban Design Review Panel Report - D02-02-25-0063'
  • Rendering of building from page 43 of the file '2025-09-02 - Design Brief - D02-02-25-0063'
  • Rendering of building from page 47 of the file '2025-09-02 - Design Brief - D02-02-25-0063'
  • Rendering of building from page 46 of the file '2025-09-02 - Design Brief - D02-02-25-0063'
  • Rendering of building from page 2 of the file '2025-11-07 - RENDERS - D02-02-25-0063'
  • Rendering of building from page 32 of the file '2025-09-02 - Design Brief - D02-02-25-0063'
  • Rendering of building from page 14 of the file '2025-09-02 - Design Brief - D02-02-25-0063'
  • Rendering of building from page 47 of the file '2025-09-02 - Urban Design Review Panel Report - D02-02-25-0063'
  • Rendering of building from page 46 of the file '2025-09-02 - Urban Design Review Panel Report - D02-02-25-0063'
  • Rendering of building from page 35 of the file '2025-09-02 - Urban Design Review Panel Report - D02-02-25-0063'
  • Rendering of building from page 14 of the file '2025-09-02 - Design Brief - D02-02-25-0063'
  • Rendering of building from page 32 of the file '2025-09-02 - Design Brief - D02-02-25-0063'
  • Rendering of building from page 44 of the file '2025-09-02 - Design Brief - D02-02-25-0063'
  • Rendering of building from page 44 of the file '2025-09-02 - Urban Design Review Panel Report - D02-02-25-0063'
  • Rendering of building from page 5 of the file '2025-11-07 - RENDERS - D02-02-25-0063'
  • Rendering of building from page 6 of the file '2025-09-02 - Design Brief - D02-02-25-0063'
  • Rendering of building from page 35 of the file '2025-09-02 - Urban Design Review Panel Report - D02-02-25-0063'
  • Rendering of building from page 49 of the file '2025-09-02 - Urban Design Review Panel Report - D02-02-25-0063'
  • Rendering of building from page 1 of the file '2025-11-07 - RENDERS - D02-02-25-0063'
  • Rendering of building from page 7 of the file '2025-11-07 - RENDERS - D02-02-25-0063'
  • Rendering of building from page 50 of the file '2025-09-02 - Urban Design Review Panel Report - D02-02-25-0063'
  • Rendering of building from page 35 of the file '2025-09-02 - Urban Design Review Panel Report - D02-02-25-0063'
  • Rendering of building from page 48 of the file '2025-09-02 - Design Brief - D02-02-25-0063'
  • Rendering of building from page 21 of the file '2025-09-02 - Urban Design Review Panel Report - D02-02-25-0063'
  • Rendering of building from page 9 of the file '2025-11-07 - RENDERS - D02-02-25-0063'
  • Rendering of building from page 32 of the file '2025-09-02 - Design Brief - D02-02-25-0063'
  • Rendering of building from page 45 of the file '2025-09-02 - Urban Design Review Panel Report - D02-02-25-0063'
  • Rendering of building from page 40 of the file '2025-09-02 - Design Brief - D02-02-25-0063'
  • Rendering of building from page 49 of the file '2025-09-02 - Design Brief - D02-02-25-0063'
  • Rendering of building from page 10 of the file '2025-11-07 - RENDERS - D02-02-25-0063'
  • Rendering of building from page 32 of the file '2025-09-02 - Design Brief - D02-02-25-0063'
  • Rendering of building from page 41 of the file '2025-09-02 - Design Brief - D02-02-25-0063'
  • Rendering of building from page 42 of the file '2025-09-02 - Urban Design Review Panel Report - D02-02-25-0063'
  • Rendering of building from page 21 of the file '2025-09-02 - Urban Design Review Panel Report - D02-02-25-0063'
  • Rendering of building from page 41 of the file '2025-09-02 - Urban Design Review Panel Report - D02-02-25-0063'
  • Rendering of building from page 13 of the file '2025-09-02 - Urban Design Review Panel Report - D02-02-25-0063'
  • Rendering of building from page 50 of the file '2025-09-02 - Design Brief - D02-02-25-0063'
  • Rendering of building from page 51 of the file '2025-09-02 - Urban Design Review Panel Report - D02-02-25-0063'
  • Rendering of building from page 102 of the file '2025-09-02 - Urban Design Review Panel Report - D02-02-25-0063'
  • Rendering of building from page 51 of the file '2025-09-02 - Design Brief - D02-02-25-0063'
  • Rendering of building from page 52 of the file '2025-09-02 - Urban Design Review Panel Report - D02-02-25-0063'
  • Rendering of building from page 6 of the file '2025-09-02 - Design Brief - D02-02-25-0063'
  • Rendering of building from page 53 of the file '2025-09-02 - Design Brief - D02-02-25-0063'
  • Rendering of building from page 50 of the file '2025-09-02 - Design Brief - D02-02-25-0063'
  • Rendering of building from page 53 of the file '2025-09-02 - Design Brief - D02-02-25-0063'
  • Rendering of building from page 52 of the file '2025-09-02 - Urban Design Review Panel Report - D02-02-25-0063'
  • Rendering of building from page 53 of the file '2025-09-02 - Design Brief - D02-02-25-0063'
  • Rendering of building from page 32 of the file '2025-09-02 - Design Brief - D02-02-25-0063'
  • Rendering of building from page 52 of the file '2025-09-02 - Design Brief - D02-02-25-0063'
  • Rendering of building from page 53 of the file '2025-09-02 - Urban Design Review Panel Report - D02-02-25-0063'
  • Rendering of building from page 53 of the file '2025-09-02 - Design Brief - D02-02-25-0063'
  • Rendering of building from page 43 of the file '2025-09-02 - Urban Design Review Panel Report - D02-02-25-0063'
  • Rendering of building from page 3 of the file '2025-11-07 - RENDERS - D02-02-25-0063'
  • Rendering of building from page 69 of the file '2025-09-02 - Design Brief - D02-02-25-0063'
  • Rendering of building from page 68 of the file '2025-09-02 - Design Brief - D02-02-25-0063'
  • Rendering of building from page 55 of the file '2025-09-02 - Urban Design Review Panel Report - D02-02-25-0063'
  • Rendering of building from page 55 of the file '2025-09-02 - Urban Design Review Panel Report - D02-02-25-0063'
  • Rendering of building from page 71 of the file '2025-09-02 - Design Brief - D02-02-25-0063'
  • Rendering of building from page 70 of the file '2025-09-02 - Design Brief - D02-02-25-0063'
  • Rendering of building from page 73 of the file '2025-09-02 - Urban Design Review Panel Report - D02-02-25-0063'
  • Rendering of building from page 37 of the file '2025-09-02 - Urban Design Review Panel Report - D02-02-25-0063'
  • Rendering of building from page 75 of the file '2025-09-02 - Urban Design Review Panel Report - D02-02-25-0063'
  • Rendering of building from page 74 of the file '2025-09-02 - Urban Design Review Panel Report - D02-02-25-0063'
  • Rendering of building from page 8 of the file '2025-09-02 - Urban Design Review Panel Report - D02-02-25-0063'

Location #

Select a marker to view the address.

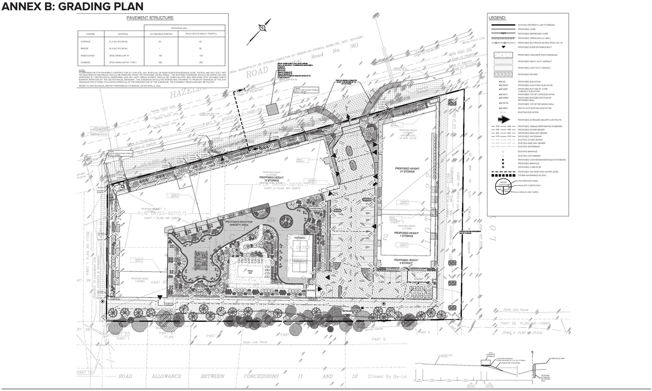
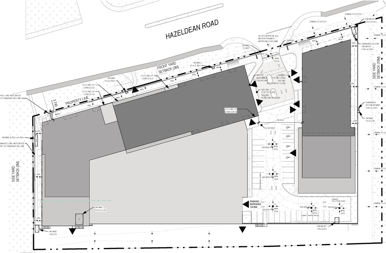
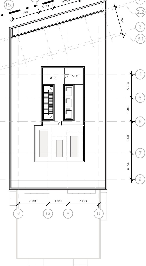
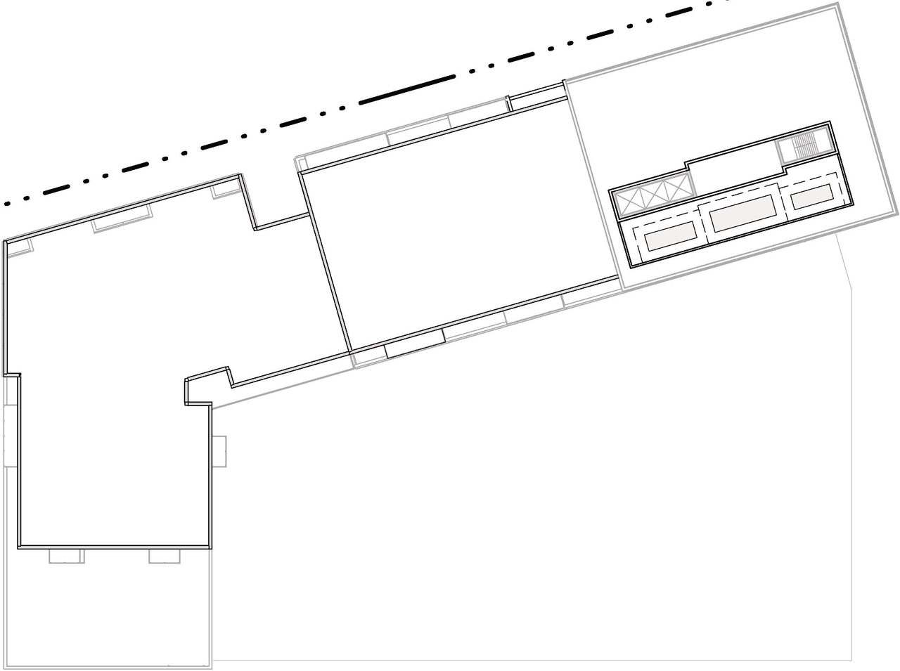
Site and Floor Plans #

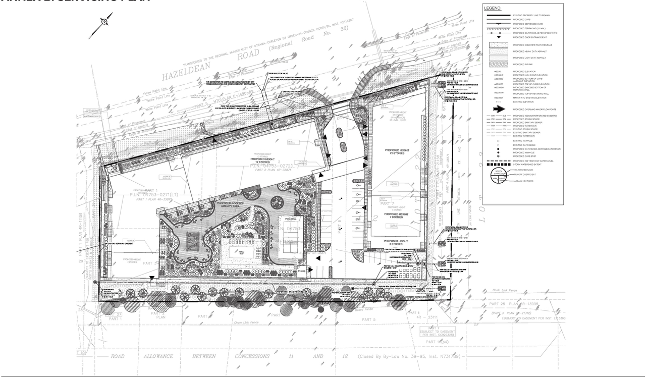
  • Construction site plan for project from page 16 of the file '2025-09-02 - Urban Design Review Panel Report - D02-02-25-0063'
  • Construction site plan for project from page 19 of the file '2025-09-02 - Urban Design Review Panel Report - D02-02-25-0063'
  • Construction site plan for project from page 25 of the file '2025-09-02 - Urban Design Review Panel Report - D02-02-25-0063'
  • Construction site plan for project from page 25 of the file '2025-09-02 - Urban Design Review Panel Report - D02-02-25-0063'
  • Construction site plan for project from page 25 of the file '2025-09-02 - Urban Design Review Panel Report - D02-02-25-0063'
  • Construction site plan for project from page 26 of the file '2025-09-02 - Urban Design Review Panel Report - D02-02-25-0063'
  • Construction site plan for project from page 28 of the file '2025-09-02 - Urban Design Review Panel Report - D02-02-25-0063'
  • Construction site plan for project from page 31 of the file '2025-09-02 - Urban Design Review Panel Report - D02-02-25-0063'
  • Construction site plan for project from page 31 of the file '2025-09-02 - Urban Design Review Panel Report - D02-02-25-0063'
  • Construction site plan for project from page 31 of the file '2025-09-02 - Urban Design Review Panel Report - D02-02-25-0063'
  • Construction site plan for project from page 32 of the file '2025-09-02 - Urban Design Review Panel Report - D02-02-25-0063'
  • Construction site plan for project from page 32 of the file '2025-09-02 - Urban Design Review Panel Report - D02-02-25-0063'
  • Construction site plan for project from page 33 of the file '2025-09-02 - Urban Design Review Panel Report - D02-02-25-0063'
  • Construction site plan for project from page 37 of the file '2025-09-02 - Urban Design Review Panel Report - D02-02-25-0063'
  • Construction site plan for project from page 39 of the file '2025-09-02 - Urban Design Review Panel Report - D02-02-25-0063'
  • Construction site plan for project from page 40 of the file '2025-09-02 - Urban Design Review Panel Report - D02-02-25-0063'
  • Construction site plan for project from page 59 of the file '2025-09-02 - Urban Design Review Panel Report - D02-02-25-0063'
  • Construction site plan for project from page 61 of the file '2025-09-02 - Urban Design Review Panel Report - D02-02-25-0063'
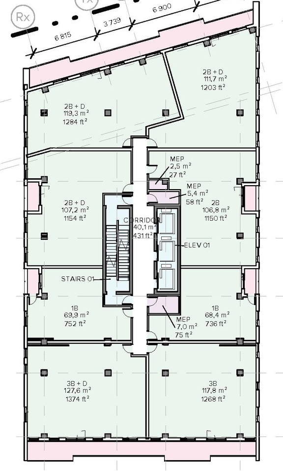
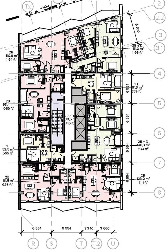
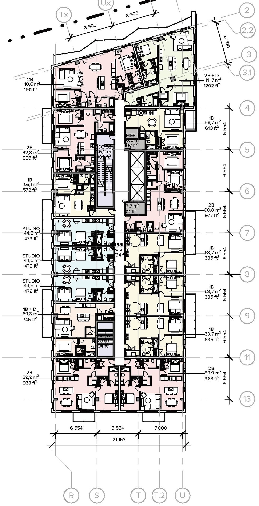
  • Floor plan for project from page 64 of the file '2025-09-02 - Urban Design Review Panel Report - D02-02-25-0063'
  • Floor plan for project from page 65 of the file '2025-09-02 - Urban Design Review Panel Report - D02-02-25-0063'
  • Floor plan for project from page 66 of the file '2025-09-02 - Urban Design Review Panel Report - D02-02-25-0063'
  • Floor plan for project from page 66 of the file '2025-09-02 - Urban Design Review Panel Report - D02-02-25-0063'
  • Floor plan for project from page 67 of the file '2025-09-02 - Urban Design Review Panel Report - D02-02-25-0063'
  • Floor plan for project from page 69 of the file '2025-09-02 - Urban Design Review Panel Report - D02-02-25-0063'
  • Floor plan for project from page 69 of the file '2025-09-02 - Urban Design Review Panel Report - D02-02-25-0063'
  • Construction site plan for project from page 69 of the file '2025-09-02 - Urban Design Review Panel Report - D02-02-25-0063'
  • Construction site plan for project from page 70 of the file '2025-09-02 - Urban Design Review Panel Report - D02-02-25-0063'
  • Floor plan for project from page 70 of the file '2025-09-02 - Urban Design Review Panel Report - D02-02-25-0063'
  • Construction site plan for project from page 76 of the file '2025-09-02 - Urban Design Review Panel Report - D02-02-25-0063'
  • Construction site plan for project from page 76 of the file '2025-09-02 - Urban Design Review Panel Report - D02-02-25-0063'
  • Construction site plan for project from page 78 of the file '2025-09-02 - Urban Design Review Panel Report - D02-02-25-0063'
  • Construction site plan for project from page 80 of the file '2025-09-02 - Urban Design Review Panel Report - D02-02-25-0063'
  • Construction site plan for project from page 81 of the file '2025-09-02 - Urban Design Review Panel Report - D02-02-25-0063'
  • Construction site plan for project from page 81 of the file '2025-09-02 - Urban Design Review Panel Report - D02-02-25-0063'
  • Construction site plan for project from page 82 of the file '2025-09-02 - Urban Design Review Panel Report - D02-02-25-0063'
  • Construction site plan for project from page 83 of the file '2025-09-02 - Urban Design Review Panel Report - D02-02-25-0063'
  • Construction site plan for project from page 93 of the file '2025-09-02 - Urban Design Review Panel Report - D02-02-25-0063'
  • Construction site plan for project from page 95 of the file '2025-09-02 - Urban Design Review Panel Report - D02-02-25-0063'
  • Construction site plan for project from page 95 of the file '2025-09-02 - Urban Design Review Panel Report - D02-02-25-0063'
  • Construction site plan for project from page 95 of the file '2025-09-02 - Urban Design Review Panel Report - D02-02-25-0063'
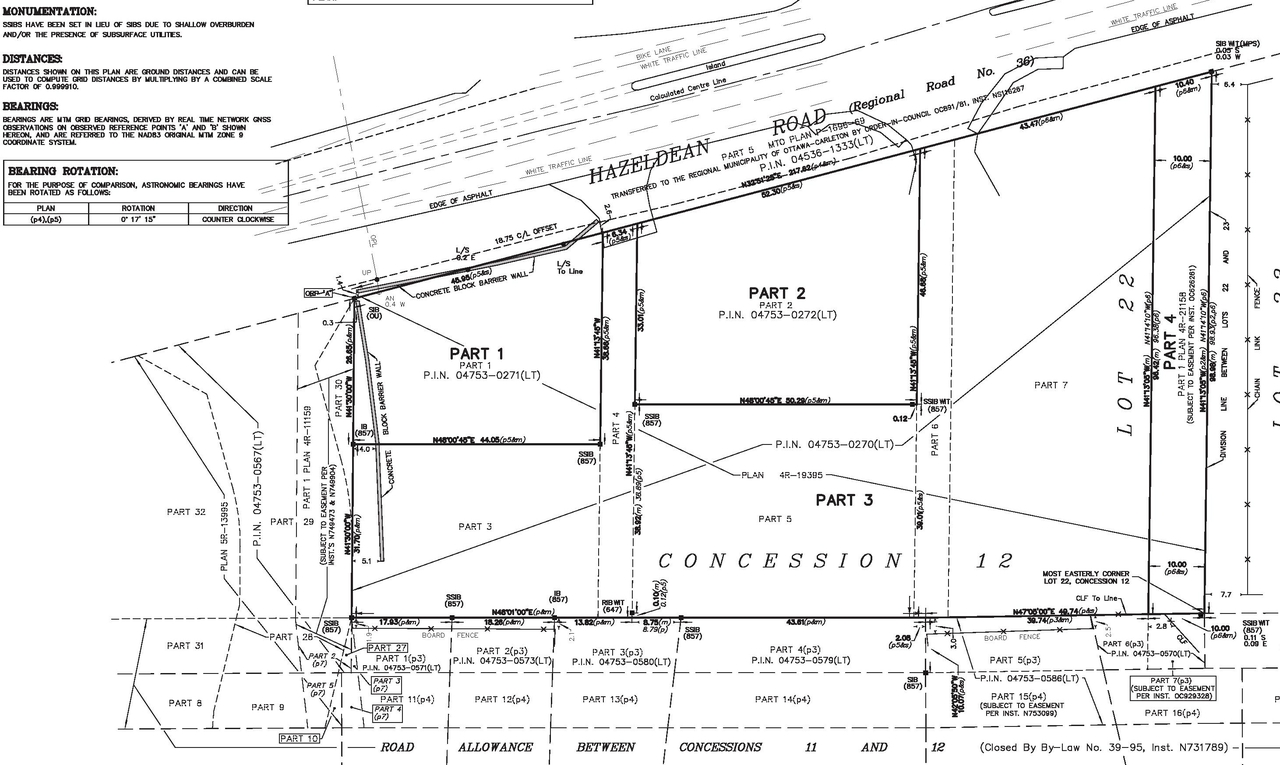
  • Construction site plan for project from page 11 of the file '2025-09-02 - Design Brief - D02-02-25-0063'
  • Construction site plan for project from page 12 of the file '2025-09-02 - Design Brief - D02-02-25-0063'
  • Construction site plan for project from page 13 of the file '2025-09-02 - Design Brief - D02-02-25-0063'
  • Construction site plan for project from page 56 of the file '2025-09-02 - Design Brief - D02-02-25-0063'
  • Construction site plan for project from page 58 of the file '2025-09-02 - Design Brief - D02-02-25-0063'
  • Floor plan for project from page 60 of the file '2025-09-02 - Design Brief - D02-02-25-0063'
  • Construction site plan for project from page 60 of the file '2025-09-02 - Design Brief - D02-02-25-0063'
  • Floor plan for project from page 61 of the file '2025-09-02 - Design Brief - D02-02-25-0063'
  • Floor plan for project from page 62 of the file '2025-09-02 - Design Brief - D02-02-25-0063'
  • Floor plan for project from page 64 of the file '2025-09-02 - Design Brief - D02-02-25-0063'
  • Floor plan for project from page 66 of the file '2025-09-02 - Design Brief - D02-02-25-0063'
  • Floor plan for project from page 67 of the file '2025-09-02 - Design Brief - D02-02-25-0063'
  • Construction site plan for project from page 74 of the file '2025-09-02 - Design Brief - D02-02-25-0063'
  • Construction site plan for project from page 75 of the file '2025-09-02 - Design Brief - D02-02-25-0063'
  • Construction site plan for project from page 76 of the file '2025-09-02 - Design Brief - D02-02-25-0063'
  • Construction site plan for project from page 77 of the file '2025-09-02 - Design Brief - D02-02-25-0063'
  • Construction site plan for project from page 78 of the file '2025-09-02 - Design Brief - D02-02-25-0063'
  • Construction site plan for project from page 79 of the file '2025-09-02 - Design Brief - D02-02-25-0063'
  • Construction site plan for project from page 16 of the file '2025-09-02 - Urban Design Review Panel Report - D02-02-25-0063'
  • Construction site plan for project from page 19 of the file '2025-09-02 - Urban Design Review Panel Report - D02-02-25-0063'
  • Construction site plan for project from page 25 of the file '2025-09-02 - Urban Design Review Panel Report - D02-02-25-0063'
  • Construction site plan for project from page 25 of the file '2025-09-02 - Urban Design Review Panel Report - D02-02-25-0063'
  • Construction site plan for project from page 25 of the file '2025-09-02 - Urban Design Review Panel Report - D02-02-25-0063'
  • Construction site plan for project from page 26 of the file '2025-09-02 - Urban Design Review Panel Report - D02-02-25-0063'
  • Construction site plan for project from page 28 of the file '2025-09-02 - Urban Design Review Panel Report - D02-02-25-0063'
  • Construction site plan for project from page 31 of the file '2025-09-02 - Urban Design Review Panel Report - D02-02-25-0063'
  • Construction site plan for project from page 31 of the file '2025-09-02 - Urban Design Review Panel Report - D02-02-25-0063'
  • Construction site plan for project from page 31 of the file '2025-09-02 - Urban Design Review Panel Report - D02-02-25-0063'
  • Construction site plan for project from page 32 of the file '2025-09-02 - Urban Design Review Panel Report - D02-02-25-0063'
  • Construction site plan for project from page 32 of the file '2025-09-02 - Urban Design Review Panel Report - D02-02-25-0063'
  • Construction site plan for project from page 33 of the file '2025-09-02 - Urban Design Review Panel Report - D02-02-25-0063'
  • Construction site plan for project from page 37 of the file '2025-09-02 - Urban Design Review Panel Report - D02-02-25-0063'
  • Construction site plan for project from page 39 of the file '2025-09-02 - Urban Design Review Panel Report - D02-02-25-0063'
  • Construction site plan for project from page 40 of the file '2025-09-02 - Urban Design Review Panel Report - D02-02-25-0063'
  • Construction site plan for project from page 59 of the file '2025-09-02 - Urban Design Review Panel Report - D02-02-25-0063'
  • Construction site plan for project from page 61 of the file '2025-09-02 - Urban Design Review Panel Report - D02-02-25-0063'
  • Floor plan for project from page 64 of the file '2025-09-02 - Urban Design Review Panel Report - D02-02-25-0063'
  • Floor plan for project from page 65 of the file '2025-09-02 - Urban Design Review Panel Report - D02-02-25-0063'
  • Floor plan for project from page 66 of the file '2025-09-02 - Urban Design Review Panel Report - D02-02-25-0063'
  • Floor plan for project from page 66 of the file '2025-09-02 - Urban Design Review Panel Report - D02-02-25-0063'
  • Floor plan for project from page 67 of the file '2025-09-02 - Urban Design Review Panel Report - D02-02-25-0063'
  • Floor plan for project from page 69 of the file '2025-09-02 - Urban Design Review Panel Report - D02-02-25-0063'
  • Floor plan for project from page 69 of the file '2025-09-02 - Urban Design Review Panel Report - D02-02-25-0063'
  • Construction site plan for project from page 69 of the file '2025-09-02 - Urban Design Review Panel Report - D02-02-25-0063'
  • Construction site plan for project from page 70 of the file '2025-09-02 - Urban Design Review Panel Report - D02-02-25-0063'
  • Floor plan for project from page 70 of the file '2025-09-02 - Urban Design Review Panel Report - D02-02-25-0063'
  • Construction site plan for project from page 76 of the file '2025-09-02 - Urban Design Review Panel Report - D02-02-25-0063'
  • Construction site plan for project from page 76 of the file '2025-09-02 - Urban Design Review Panel Report - D02-02-25-0063'
  • Construction site plan for project from page 78 of the file '2025-09-02 - Urban Design Review Panel Report - D02-02-25-0063'
  • Construction site plan for project from page 80 of the file '2025-09-02 - Urban Design Review Panel Report - D02-02-25-0063'
  • Construction site plan for project from page 81 of the file '2025-09-02 - Urban Design Review Panel Report - D02-02-25-0063'
  • Construction site plan for project from page 81 of the file '2025-09-02 - Urban Design Review Panel Report - D02-02-25-0063'
  • Construction site plan for project from page 82 of the file '2025-09-02 - Urban Design Review Panel Report - D02-02-25-0063'
  • Construction site plan for project from page 83 of the file '2025-09-02 - Urban Design Review Panel Report - D02-02-25-0063'
  • Construction site plan for project from page 93 of the file '2025-09-02 - Urban Design Review Panel Report - D02-02-25-0063'
  • Construction site plan for project from page 95 of the file '2025-09-02 - Urban Design Review Panel Report - D02-02-25-0063'
  • Construction site plan for project from page 95 of the file '2025-09-02 - Urban Design Review Panel Report - D02-02-25-0063'
  • Construction site plan for project from page 95 of the file '2025-09-02 - Urban Design Review Panel Report - D02-02-25-0063'
  • Construction site plan for project from page 11 of the file '2025-09-02 - Design Brief - D02-02-25-0063'
  • Construction site plan for project from page 12 of the file '2025-09-02 - Design Brief - D02-02-25-0063'
  • Construction site plan for project from page 13 of the file '2025-09-02 - Design Brief - D02-02-25-0063'
  • Construction site plan for project from page 56 of the file '2025-09-02 - Design Brief - D02-02-25-0063'
  • Construction site plan for project from page 58 of the file '2025-09-02 - Design Brief - D02-02-25-0063'
  • Floor plan for project from page 60 of the file '2025-09-02 - Design Brief - D02-02-25-0063'
  • Construction site plan for project from page 60 of the file '2025-09-02 - Design Brief - D02-02-25-0063'
  • Floor plan for project from page 61 of the file '2025-09-02 - Design Brief - D02-02-25-0063'
  • Floor plan for project from page 62 of the file '2025-09-02 - Design Brief - D02-02-25-0063'
  • Floor plan for project from page 64 of the file '2025-09-02 - Design Brief - D02-02-25-0063'
  • Floor plan for project from page 66 of the file '2025-09-02 - Design Brief - D02-02-25-0063'
  • Floor plan for project from page 67 of the file '2025-09-02 - Design Brief - D02-02-25-0063'
  • Construction site plan for project from page 74 of the file '2025-09-02 - Design Brief - D02-02-25-0063'
  • Construction site plan for project from page 75 of the file '2025-09-02 - Design Brief - D02-02-25-0063'
  • Construction site plan for project from page 76 of the file '2025-09-02 - Design Brief - D02-02-25-0063'
  • Construction site plan for project from page 77 of the file '2025-09-02 - Design Brief - D02-02-25-0063'
  • Construction site plan for project from page 78 of the file '2025-09-02 - Design Brief - D02-02-25-0063'
  • Construction site plan for project from page 79 of the file '2025-09-02 - Design Brief - D02-02-25-0063'

Documents #

TypeDocument
Application Summary2025-11-27 - Application Summary - D02-02-25-0063
Architectural Plans2025-11-07 - ARCHITECTURAL PLANS - D02-02-25-0063
Architectural Plans2025-09-02 - Preliminary Construction Management Plan - D02-02-25-0063
Architectural Plans2025-09-02 - Architectural Drawings - D02-02-25-0063
Civil Engineering Report2025-11-07 - Civil Drawings - D02-02-25-0063
Civil Engineering Report2025-09-02 - Civil Plans - D02-02-25-0063
Design Brief2025-09-02 - Urban Design Review Panel Report - D02-02-25-0063
Design Brief2025-09-02 - Design Brief - D02-02-25-0063
Environmental2025-11-07 - Environmental Noise - D02-02-25-0063
Environmental2025-09-02 - Phase II Environmental Site Assessment Update - D02-02-25-0063
Environmental2025-09-02 - Phase I Environmental Site Assessment Update - D02-02-25-0063
Environmental2025-09-02 - Environmental Noise Assessment - D02-02-25-0063
Geotechnical Report2025-11-07 - Geotechnical Investigation - D02-02-25-0063
Geotechnical Report2025-09-02 - Geotechnical Investigation - D02-02-25-0063
Landscape Plan2025-09-24 - Landscape Details - D02-02-25-0063
Landscape Plan2025-09-24 - Landscape Concept Plan - D02-02-25-0063
Planning2025-11-07 - Zoning Confirmation Report - D02-02-25-0063
Planning2025-11-07 - Planning Rationale - D02-02-25-0063
Planning2025-09-02 - Zoning Confirmation Report - D02-02-25-0063
Planning2025-09-02 - Planning Rationale - D02-02-25-0063
Rendering2025-11-07 - RENDERS - D02-02-25-0063
Stormwater Management2025-11-07 - Stormwater Management Report and and Servicing Brief - D02-02-25-0063
Stormwater Management2025-09-02 - SWM Report and Servicing Brief - D02-02-25-0063
Stormwater Management2026-01-29 - Stormwater Management Report & Servicing Brief - D02-02-25-0063
Surveying2025-09-02 - Topo Plan - D02-02-25-0063
Surveying2025-09-02 - Survey Plan - D02-02-25-0063
Transportation Analysis2025-11-07 - Transportation Impact Assessment - D02-02-25-0063
Transportation Analysis2025-09-02 - Transportation Impact Assessment - D02-02-25-0063
Tree Information and Conservation2025-11-07 - Tree Conservation Report - D02-02-25-0063
Tree Information and Conservation2025-09-24 - Landscape Plan and TCR - D02-02-25-0063
Tree Information and Conservation2025-09-02 - Tree Conservation Report - D02-02-25-0063
Tree Information and Conservation2026-01-29 - Tree Conservation Report & Landscape Plan - D02-02-25-0063
Wind Study2025-09-02 - Pedestrian Level Wind Study Addendum - D02-02-25-0063
Wind Study2025-09-02 - Pedestrian Level Wind Study - D02-02-25-0063
2025-11-07 - Turning Movement Analysis - D02-02-25-0063
2026-01-29 - Zoning Confirmation Report - D02-02-25-0063
2026-01-29 - Sun Study - D02-02-25-0063
2026-01-29 - Geotechnical Investigation - D02-02-25-0063
2026-01-29 - Civil Set - D02-02-25-0063
2026-01-29 - Architectural Set - D02-02-25-0063

Additional Information #

All Addresses6310 Hazeldean Rd.
6320 Hazeldean Rd.