4497 O'Keefe Ct. (D02-02-25-0061)

4497 O’Keefe Ct. (D02-02-25-0061)#

Summary#

Application StatusActive
Review StatusOMB Package Sent
DescriptionA new urban subdivision is proposed that would result in 1493 new residential units and approximately 3657 square metres of commercial space. The proposed subdivision will also include new parks, streets, and will conserve existing environmental areas. The proposed development is intended to be serviced on full municipal services.
WardWard 3 - David Hill
Date Initiated2025-08-22
Last Updated2026-01-24

Renders#

Location#

Select a marker to view the address.

Site Plans, Elevations and Floor Plans#

Documents#

TypeDocument
Application Summary2025-12-08 - Application Summary - D07-16-25-0015 & D02-02-25-0061
Archaelogical Assessment2025-08-22 - Stage 2 Archaeological Assessment - D02-02-25-0061
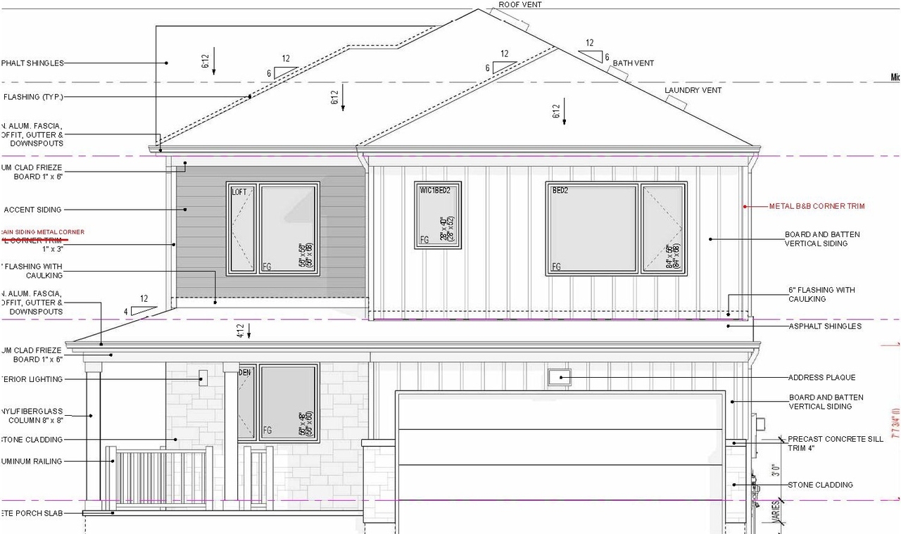
Architectural Plans2025-08-22 - Sample Elevations VHs - D02-02-25-0061
Architectural Plans2025-08-22 - Sample Elevations THs - D02-02-25-0061
Architectural Plans2025-08-22 - Sample Elevations Stacks - D02-02-25-0061
Architectural Plans2025-08-22 - Sample Elevations RLT - D02-02-25-0061
Architectural Plans2025-08-22 - Sample Elevations Apartment - D02-02-25-0061
Architectural Plans2025-08-22 - Sample Elevations 43s - D02-02-25-0061
Architectural Plans2025-08-22 - Sample Elevations 36s - D02-02-25-0061
Architectural Plans2025-08-22 - Sample Elevations 30s - D02-02-25-0061
Architectural Plans2025-08-22 - Preliminary Construction Traffic Management Plan - D02-02-25-0061
Architectural Plans2025-08-22 - Parking Plan - D02-02-25-0061
Architectural Plans2025-08-22 - Draft Plan of Subdivision - D02-02-25-0061
Architectural Plans2025-08-22 - Concept Plan - D02-02-25-0061
Design Brief2025-08-22 - Urban Design Brief - D02-02-25-0061
Environmental2025-08-22 - Phase II Environmental Site Assessment - D02-02-25-0061
Environmental2025-08-22 - Phase I Environmental Site Assessment - D02-02-25-0061
Environmental2025-08-22 - Environmental Impact Study - D02-02-25-0061
Geotechnical Report2025-08-22 - Hydrogeological Study - D02-02-25-0061
Geotechnical Report2025-08-22 - Geotechnical Investigation - D02-02-25-0061
Noise Study2025-08-22 - Traffic Noise Feasibility Assessment - D02-02-25-0061
Planning2025-08-22 - Zoning Confirmation Report - D02-02-25-0061
Planning2025-08-22 - Planning Rationale - D02-02-25-0061
Surveying2025-08-22 - Topographic Sketch - D02-02-25-0061
Transportation Analysis2025-08-22 - Transportation Impact Assessment - Strategy Report - D02-02-25-0061
2025-08-22 - Functional Servicing Report - D02-02-25-0061

Additional Information#

Other IDsD07-16-25-0015