42 Colonnade Rd. (D02-02-25-0047)#
Summary#
| Application Status | Inactive |
| Review Status | Zoning By-law in Effect |
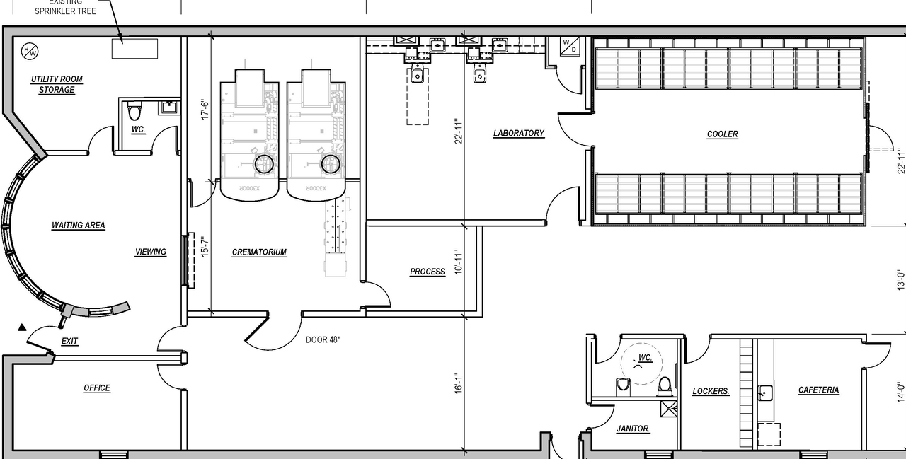
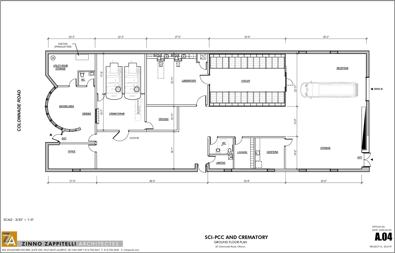
| Description | The City of Ottawa has received a Zoning By-law Amendment application to add Funeral Home as a permitted use, which are limited to this zoning classification under the By-law. The amendment applies only to approximately 75 m² of internal floor area within the existing building. |
| Ward | Ward 9 - Sean Devine |
| Date Initiated | 2025-07-04 |
| Last Updated | 2026-01-14 |
Location#
Select a marker to view the address.
Site Plans, Elevations and Floor Plans#
Documents#
| Type | Document |
|---|---|
| Adequacy Of Public Services | 2025-09-09 - Serviceability Memo - D02-02-25-0047 |
| Adequacy Of Public Services | 2025-07-04 - Serviceability Memorandum - D02-02-25-0047 |
| Application Summary | 2025-10-01 - Application Summary - D02-02-25-0047 |
| Floor Plan | 2025-07-04 - Ground Floor Plan - D02-02-25-0047 |
| Planning | 2025-09-09 - Planning Rationale - D02-02-25-0047 |
| Planning | 2025-09-09 - Zoning Confirmation Report - D02-02-25-0047 |
| Planning | 2025-11-19 - Zoning Confirmation Report - D02-02-25-0047 |
| Surveying | 2025-07-04 - Survey - D02-02-25-0047 |
| 2025-11-20 - APPROVED Delegated Authority Report - D02-02-25-0047 |
