1015 Tweddle Rd. (D02-02-25-0038)

1015 Tweddle Rd. (D02-02-25-0038) #

Summary #

Application StatusActive
Review StatusCommunity Heads Up - supporting documents to be posted later during circulation period
DescriptionThe City of Ottawa has received a Zoning By-law Amendment application to permit the development of four podium-style mixed-use, high-rise towers ranging from 24 to 32 storeys, and a total of 1,257 dwelling units, a commercial ground floor and underground parking.
WardWard 1 - Matthew Luloff
Date Initiated2025-06-02
Last Updated2025-12-18

Renders #

  • Rendering of building from page 67 of the file '2025-06-02 - Design Brief - D02-02-25-0038'
  • Rendering of building from page 7 of the file '2025-10-07 - Design Brief - D02-02-25-0038'
  • Rendering of building from page 28 of the file '2025-10-07 - Design Brief - D02-02-25-0038'
  • Rendering of building from page 73 of the file '2025-10-07 - Design Brief - D02-02-25-0038'
  • Rendering of building from page 72 of the file '2025-10-07 - Design Brief - D02-02-25-0038'
  • Rendering of building from page 69 of the file '2025-10-07 - Design Brief - D02-02-25-0038'
  • Rendering of building from page 66 of the file '2025-10-07 - Design Brief - D02-02-25-0038'
  • Rendering of building from page 65 of the file '2025-10-07 - Design Brief - D02-02-25-0038'
  • Rendering of building from page 15 of the file '2025-10-07 - Design Brief - D02-02-25-0038'
  • Rendering of building from page 68 of the file '2025-10-07 - Design Brief - D02-02-25-0038'
  • Rendering of building from page 67 of the file '2025-10-07 - Design Brief - D02-02-25-0038'
  • Rendering of building from page 71 of the file '2025-10-07 - Design Brief - D02-02-25-0038'
  • Rendering of building from page 76 of the file '2025-10-07 - Design Brief - D02-02-25-0038'
  • Rendering of building from page 77 of the file '2025-10-07 - Design Brief - D02-02-25-0038'
  • Rendering of building from page 75 of the file '2025-10-07 - Design Brief - D02-02-25-0038'
  • Rendering of building from page 70 of the file '2025-10-07 - Design Brief - D02-02-25-0038'
  • Rendering of building from page 78 of the file '2025-10-07 - Design Brief - D02-02-25-0038'
  • Rendering of building from page 79 of the file '2025-10-07 - Design Brief - D02-02-25-0038'
  • Rendering of building from page 57 of the file '2025-06-02 - Design Brief - D02-02-25-0038'
  • Rendering of building from page 28 of the file '2025-10-07 - Design Brief - D02-02-25-0038'
  • Rendering of building from page 59 of the file '2025-10-07 - Design Brief - D02-02-25-0038'
  • Rendering of building from page 80 of the file '2025-10-07 - Design Brief - D02-02-25-0038'
  • Rendering of building from page 71 of the file '2025-10-07 - Design Brief - D02-02-25-0038'
  • Rendering of building from page 57 of the file '2025-10-07 - Design Brief - D02-02-25-0038'
  • Rendering of building from page 33 of the file '2025-10-07 - Design Brief - D02-02-25-0038'
  • Rendering of building from page 56 of the file '2025-06-02 - Design Brief - D02-02-25-0038'
  • Rendering of building from page 74 of the file '2025-10-07 - Design Brief - D02-02-25-0038'
  • Rendering of building from page 74 of the file '2025-10-07 - Design Brief - D02-02-25-0038'
  • Rendering of building from page 58 of the file '2025-10-07 - Design Brief - D02-02-25-0038'
  • Rendering of building from page 32 of the file '2025-10-07 - Design Brief - D02-02-25-0038'
  • Rendering of building from page 29 of the file '2025-10-07 - Design Brief - D02-02-25-0038'
  • Rendering of building from page 73 of the file '2025-06-02 - Design Brief - D02-02-25-0038'
  • Rendering of building from page 81 of the file '2025-10-07 - Design Brief - D02-02-25-0038'
  • Rendering of building from page 81 of the file '2025-10-07 - Design Brief - D02-02-25-0038'
  • Rendering of building from page 30 of the file '2025-10-07 - Design Brief - D02-02-25-0038'
  • Rendering of building from page 74 of the file '2025-06-02 - Design Brief - D02-02-25-0038'
  • Rendering of building from page 73 of the file '2025-06-02 - Design Brief - D02-02-25-0038'
  • Rendering of building from page 31 of the file '2025-10-07 - Design Brief - D02-02-25-0038'
  • Rendering of building from page 74 of the file '2025-06-02 - Design Brief - D02-02-25-0038'
  • Rendering of building from page 67 of the file '2025-06-02 - Design Brief - D02-02-25-0038'
  • Rendering of building from page 7 of the file '2025-10-07 - Design Brief - D02-02-25-0038'
  • Rendering of building from page 28 of the file '2025-10-07 - Design Brief - D02-02-25-0038'
  • Rendering of building from page 73 of the file '2025-10-07 - Design Brief - D02-02-25-0038'
  • Rendering of building from page 72 of the file '2025-10-07 - Design Brief - D02-02-25-0038'
  • Rendering of building from page 69 of the file '2025-10-07 - Design Brief - D02-02-25-0038'
  • Rendering of building from page 66 of the file '2025-10-07 - Design Brief - D02-02-25-0038'
  • Rendering of building from page 65 of the file '2025-10-07 - Design Brief - D02-02-25-0038'
  • Rendering of building from page 15 of the file '2025-10-07 - Design Brief - D02-02-25-0038'
  • Rendering of building from page 68 of the file '2025-10-07 - Design Brief - D02-02-25-0038'
  • Rendering of building from page 67 of the file '2025-10-07 - Design Brief - D02-02-25-0038'
  • Rendering of building from page 71 of the file '2025-10-07 - Design Brief - D02-02-25-0038'
  • Rendering of building from page 76 of the file '2025-10-07 - Design Brief - D02-02-25-0038'
  • Rendering of building from page 77 of the file '2025-10-07 - Design Brief - D02-02-25-0038'
  • Rendering of building from page 75 of the file '2025-10-07 - Design Brief - D02-02-25-0038'
  • Rendering of building from page 70 of the file '2025-10-07 - Design Brief - D02-02-25-0038'
  • Rendering of building from page 78 of the file '2025-10-07 - Design Brief - D02-02-25-0038'
  • Rendering of building from page 79 of the file '2025-10-07 - Design Brief - D02-02-25-0038'
  • Rendering of building from page 57 of the file '2025-06-02 - Design Brief - D02-02-25-0038'
  • Rendering of building from page 28 of the file '2025-10-07 - Design Brief - D02-02-25-0038'
  • Rendering of building from page 59 of the file '2025-10-07 - Design Brief - D02-02-25-0038'
  • Rendering of building from page 80 of the file '2025-10-07 - Design Brief - D02-02-25-0038'
  • Rendering of building from page 71 of the file '2025-10-07 - Design Brief - D02-02-25-0038'
  • Rendering of building from page 57 of the file '2025-10-07 - Design Brief - D02-02-25-0038'
  • Rendering of building from page 33 of the file '2025-10-07 - Design Brief - D02-02-25-0038'
  • Rendering of building from page 56 of the file '2025-06-02 - Design Brief - D02-02-25-0038'
  • Rendering of building from page 74 of the file '2025-10-07 - Design Brief - D02-02-25-0038'
  • Rendering of building from page 74 of the file '2025-10-07 - Design Brief - D02-02-25-0038'
  • Rendering of building from page 58 of the file '2025-10-07 - Design Brief - D02-02-25-0038'
  • Rendering of building from page 32 of the file '2025-10-07 - Design Brief - D02-02-25-0038'
  • Rendering of building from page 29 of the file '2025-10-07 - Design Brief - D02-02-25-0038'
  • Rendering of building from page 73 of the file '2025-06-02 - Design Brief - D02-02-25-0038'
  • Rendering of building from page 81 of the file '2025-10-07 - Design Brief - D02-02-25-0038'
  • Rendering of building from page 81 of the file '2025-10-07 - Design Brief - D02-02-25-0038'
  • Rendering of building from page 30 of the file '2025-10-07 - Design Brief - D02-02-25-0038'
  • Rendering of building from page 74 of the file '2025-06-02 - Design Brief - D02-02-25-0038'
  • Rendering of building from page 73 of the file '2025-06-02 - Design Brief - D02-02-25-0038'
  • Rendering of building from page 31 of the file '2025-10-07 - Design Brief - D02-02-25-0038'
  • Rendering of building from page 74 of the file '2025-06-02 - Design Brief - D02-02-25-0038'

Location #

Select a marker to view the address.

Site and Floor Plans #

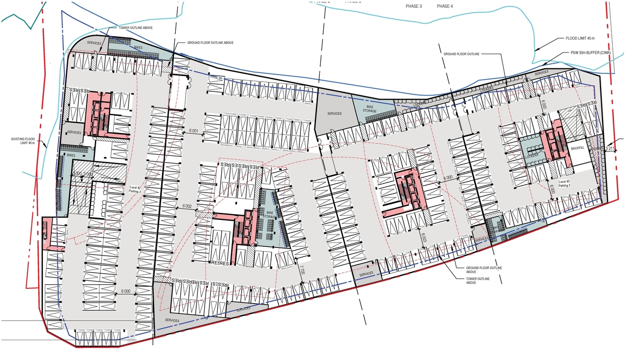
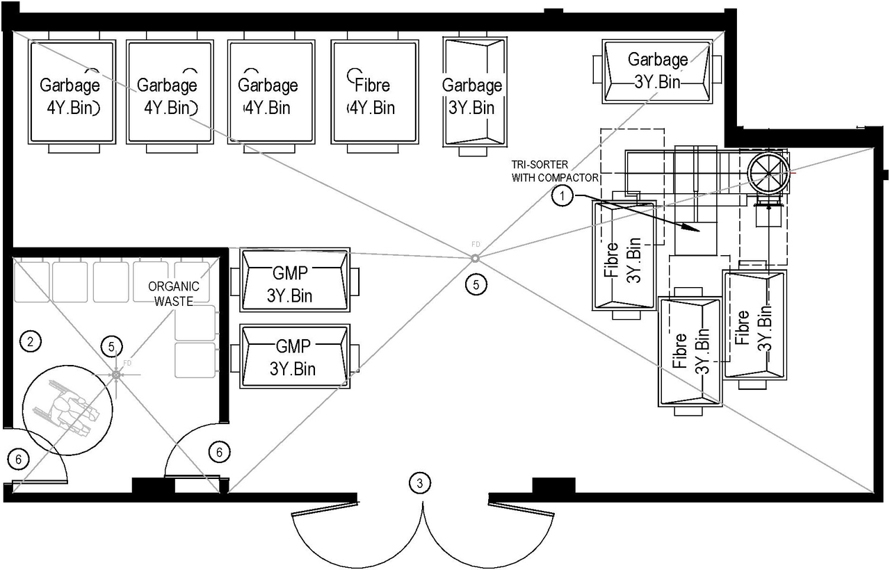
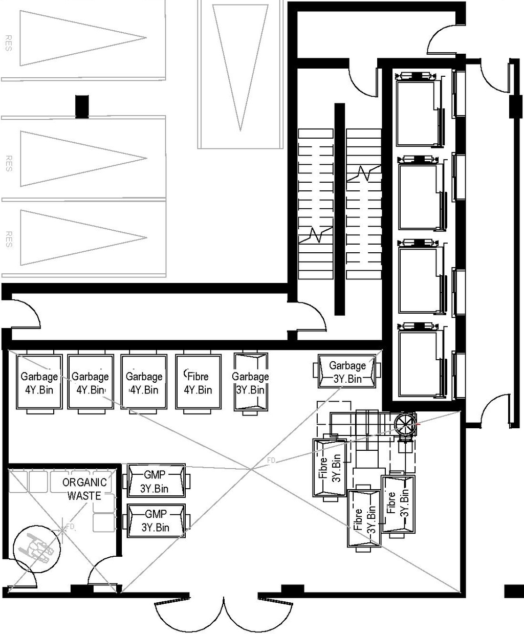
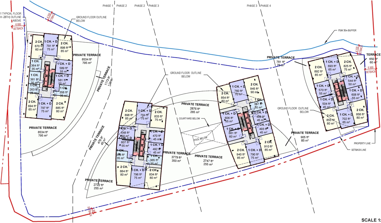
  • Construction site plan for project from page 5 of the file '2025-10-07 - Design Brief - D02-02-25-0038'
  • Construction site plan for project from page 8 of the file '2025-10-07 - Design Brief - D02-02-25-0038'
  • Construction site plan for project from page 8 of the file '2025-10-07 - Design Brief - D02-02-25-0038'
  • Construction site plan for project from page 9 of the file '2025-10-07 - Design Brief - D02-02-25-0038'
  • Construction site plan for project from page 10 of the file '2025-10-07 - Design Brief - D02-02-25-0038'
  • Construction site plan for project from page 12 of the file '2025-10-07 - Design Brief - D02-02-25-0038'
  • Construction site plan for project from page 14 of the file '2025-10-07 - Design Brief - D02-02-25-0038'
  • Construction site plan for project from page 15 of the file '2025-10-07 - Design Brief - D02-02-25-0038'
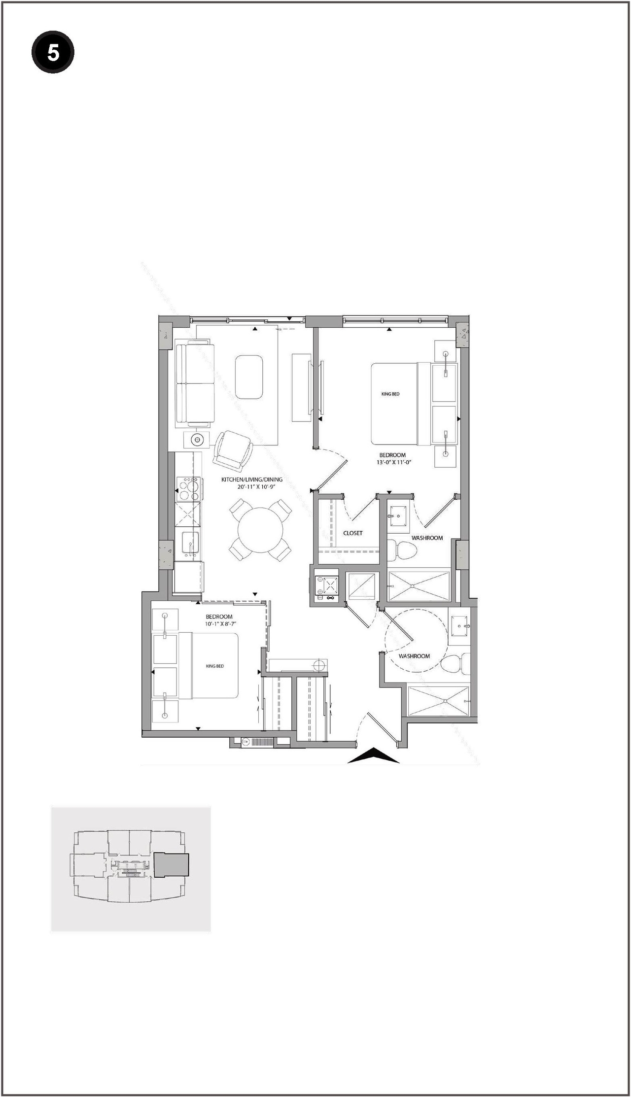
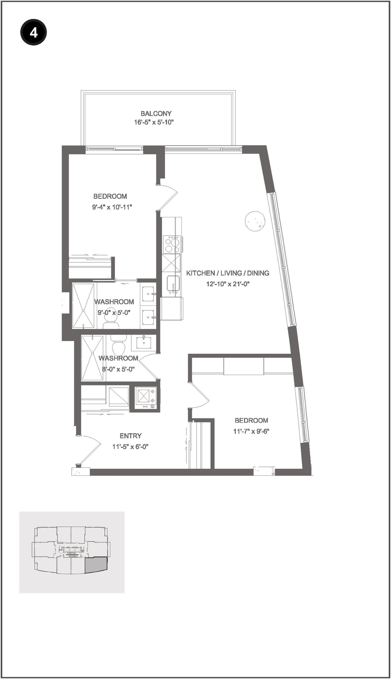
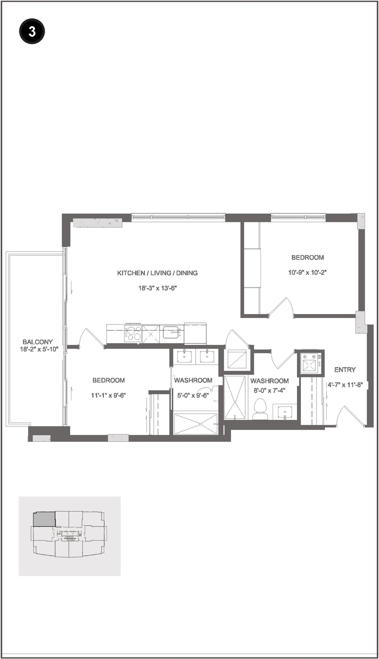
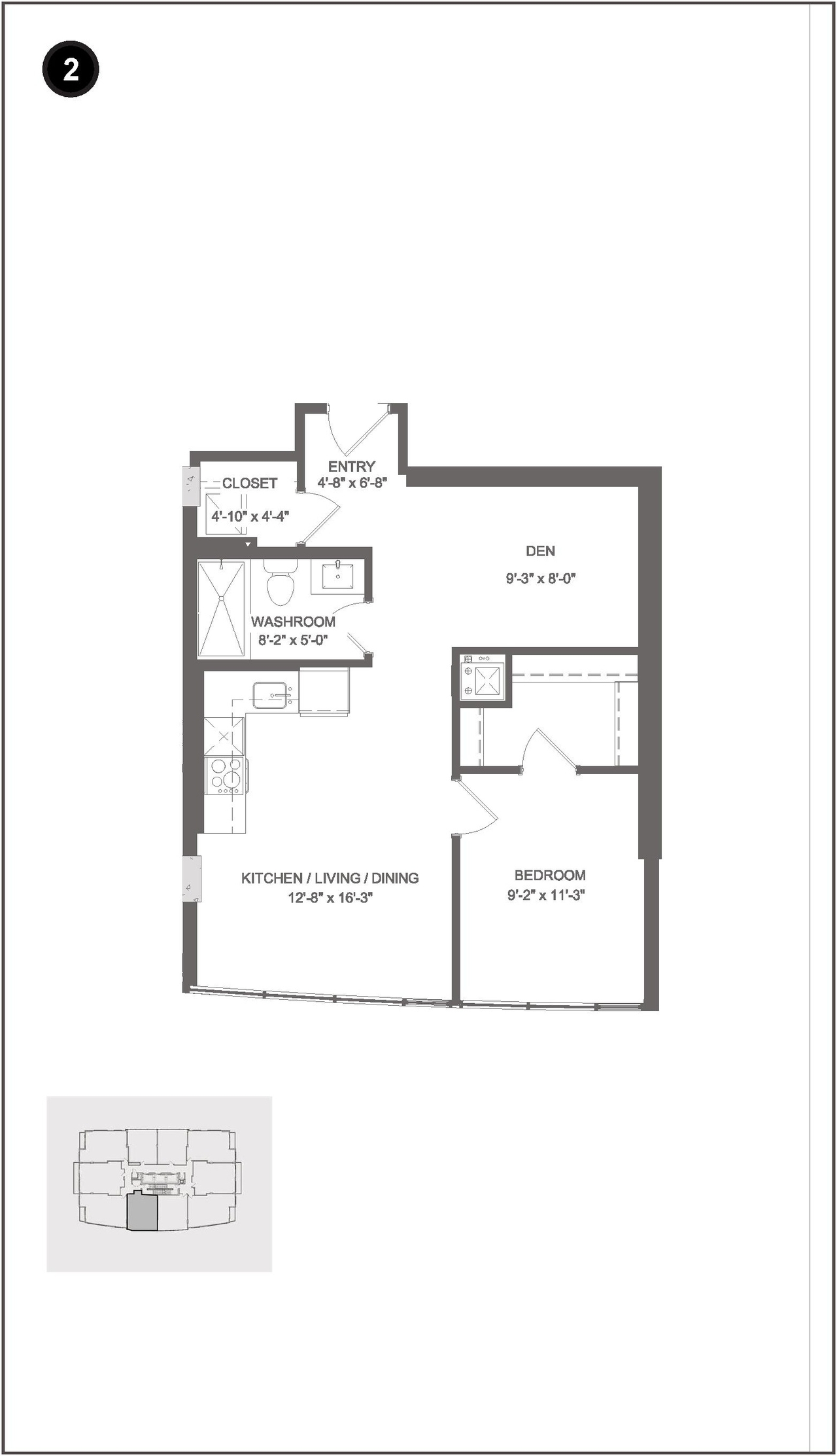
  • Floor plan for project from page 23 of the file '2025-10-07 - Design Brief - D02-02-25-0038'
  • Construction site plan for project from page 26 of the file '2025-10-07 - Design Brief - D02-02-25-0038'
  • Construction site plan for project from page 26 of the file '2025-10-07 - Design Brief - D02-02-25-0038'
  • Construction site plan for project from page 26 of the file '2025-10-07 - Design Brief - D02-02-25-0038'
  • Construction site plan for project from page 26 of the file '2025-10-07 - Design Brief - D02-02-25-0038'
  • Construction site plan for project from page 27 of the file '2025-10-07 - Design Brief - D02-02-25-0038'
  • Construction site plan for project from page 34 of the file '2025-10-07 - Design Brief - D02-02-25-0038'
  • Construction site plan for project from page 34 of the file '2025-10-07 - Design Brief - D02-02-25-0038'
  • Construction site plan for project from page 34 of the file '2025-10-07 - Design Brief - D02-02-25-0038'
  • Construction site plan for project from page 34 of the file '2025-10-07 - Design Brief - D02-02-25-0038'
  • Construction site plan for project from page 37 of the file '2025-10-07 - Design Brief - D02-02-25-0038'
  • Construction site plan for project from page 38 of the file '2025-10-07 - Design Brief - D02-02-25-0038'
  • Construction site plan for project from page 39 of the file '2025-10-07 - Design Brief - D02-02-25-0038'
  • Construction site plan for project from page 39 of the file '2025-10-07 - Design Brief - D02-02-25-0038'
  • Construction site plan for project from page 41 of the file '2025-10-07 - Design Brief - D02-02-25-0038'
  • Construction site plan for project from page 42 of the file '2025-10-07 - Design Brief - D02-02-25-0038'
  • Construction site plan for project from page 43 of the file '2025-10-07 - Design Brief - D02-02-25-0038'
  • Construction site plan for project from page 44 of the file '2025-10-07 - Design Brief - D02-02-25-0038'
  • Construction site plan for project from page 45 of the file '2025-10-07 - Design Brief - D02-02-25-0038'
  • Floor plan for project from page 46 of the file '2025-10-07 - Design Brief - D02-02-25-0038'
  • Floor plan for project from page 46 of the file '2025-10-07 - Design Brief - D02-02-25-0038'
  • Construction site plan for project from page 46 of the file '2025-10-07 - Design Brief - D02-02-25-0038'
  • Construction site plan for project from page 47 of the file '2025-10-07 - Design Brief - D02-02-25-0038'
  • Construction site plan for project from page 47 of the file '2025-10-07 - Design Brief - D02-02-25-0038'
  • Construction site plan for project from page 47 of the file '2025-10-07 - Design Brief - D02-02-25-0038'
  • Floor plan for project from page 49 of the file '2025-10-07 - Design Brief - D02-02-25-0038'
  • Floor plan for project from page 49 of the file '2025-10-07 - Design Brief - D02-02-25-0038'
  • Floor plan for project from page 50 of the file '2025-10-07 - Design Brief - D02-02-25-0038'
  • Floor plan for project from page 50 of the file '2025-10-07 - Design Brief - D02-02-25-0038'
  • Floor plan for project from page 51 of the file '2025-10-07 - Design Brief - D02-02-25-0038'
  • Floor plan for project from page 51 of the file '2025-10-07 - Design Brief - D02-02-25-0038'
  • Floor plan for project from page 52 of the file '2025-10-07 - Design Brief - D02-02-25-0038'
  • Floor plan for project from page 52 of the file '2025-10-07 - Design Brief - D02-02-25-0038'
  • Floor plan for project from page 53 of the file '2025-10-07 - Design Brief - D02-02-25-0038'
  • Floor plan for project from page 54 of the file '2025-10-07 - Design Brief - D02-02-25-0038'
  • Floor plan for project from page 55 of the file '2025-10-07 - Design Brief - D02-02-25-0038'
  • Floor plan for project from page 55 of the file '2025-10-07 - Design Brief - D02-02-25-0038'
  • Floor plan for project from page 55 of the file '2025-10-07 - Design Brief - D02-02-25-0038'
  • Floor plan for project from page 56 of the file '2025-10-07 - Design Brief - D02-02-25-0038'
  • Floor plan for project from page 56 of the file '2025-10-07 - Design Brief - D02-02-25-0038'
  • Floor plan for project from page 56 of the file '2025-10-07 - Design Brief - D02-02-25-0038'
  • Floor plan for project from page 74 of the file '2025-10-07 - Design Brief - D02-02-25-0038'
  • Construction site plan for project from page 87 of the file '2025-10-07 - Design Brief - D02-02-25-0038'
  • Construction site plan for project from page 87 of the file '2025-10-07 - Design Brief - D02-02-25-0038'
  • Construction site plan for project from page 87 of the file '2025-10-07 - Design Brief - D02-02-25-0038'
  • Construction site plan for project from page 87 of the file '2025-10-07 - Design Brief - D02-02-25-0038'
  • Construction site plan for project from page 87 of the file '2025-10-07 - Design Brief - D02-02-25-0038'
  • Construction site plan for project from page 87 of the file '2025-10-07 - Design Brief - D02-02-25-0038'
  • Construction site plan for project from page 87 of the file '2025-10-07 - Design Brief - D02-02-25-0038'
  • Construction site plan for project from page 87 of the file '2025-10-07 - Design Brief - D02-02-25-0038'
  • Construction site plan for project from page 87 of the file '2025-10-07 - Design Brief - D02-02-25-0038'
  • Construction site plan for project from page 87 of the file '2025-10-07 - Design Brief - D02-02-25-0038'
  • Construction site plan for project from page 87 of the file '2025-10-07 - Design Brief - D02-02-25-0038'
  • Construction site plan for project from page 33 of the file '2025-06-02 - Design Brief - D02-02-25-0038'
  • Construction site plan for project from page 33 of the file '2025-06-02 - Design Brief - D02-02-25-0038'
  • Construction site plan for project from page 33 of the file '2025-06-02 - Design Brief - D02-02-25-0038'
  • Construction site plan for project from page 36 of the file '2025-06-02 - Design Brief - D02-02-25-0038'
  • Construction site plan for project from page 39 of the file '2025-06-02 - Design Brief - D02-02-25-0038'
  • Construction site plan for project from page 40 of the file '2025-06-02 - Design Brief - D02-02-25-0038'
  • Construction site plan for project from page 41 of the file '2025-06-02 - Design Brief - D02-02-25-0038'
  • Construction site plan for project from page 42 of the file '2025-06-02 - Design Brief - D02-02-25-0038'
  • Construction site plan for project from page 43 of the file '2025-06-02 - Design Brief - D02-02-25-0038'
  • Construction site plan for project from page 44 of the file '2025-06-02 - Design Brief - D02-02-25-0038'
  • Construction site plan for project from page 44 of the file '2025-06-02 - Design Brief - D02-02-25-0038'
  • Floor plan for project from page 45 of the file '2025-06-02 - Design Brief - D02-02-25-0038'
  • Construction site plan for project from page 45 of the file '2025-06-02 - Design Brief - D02-02-25-0038'
  • Construction site plan for project from page 5 of the file '2025-10-07 - Design Brief - D02-02-25-0038'
  • Construction site plan for project from page 8 of the file '2025-10-07 - Design Brief - D02-02-25-0038'
  • Construction site plan for project from page 8 of the file '2025-10-07 - Design Brief - D02-02-25-0038'
  • Construction site plan for project from page 9 of the file '2025-10-07 - Design Brief - D02-02-25-0038'
  • Construction site plan for project from page 10 of the file '2025-10-07 - Design Brief - D02-02-25-0038'
  • Construction site plan for project from page 12 of the file '2025-10-07 - Design Brief - D02-02-25-0038'
  • Construction site plan for project from page 14 of the file '2025-10-07 - Design Brief - D02-02-25-0038'
  • Construction site plan for project from page 15 of the file '2025-10-07 - Design Brief - D02-02-25-0038'
  • Floor plan for project from page 23 of the file '2025-10-07 - Design Brief - D02-02-25-0038'
  • Construction site plan for project from page 26 of the file '2025-10-07 - Design Brief - D02-02-25-0038'
  • Construction site plan for project from page 26 of the file '2025-10-07 - Design Brief - D02-02-25-0038'
  • Construction site plan for project from page 26 of the file '2025-10-07 - Design Brief - D02-02-25-0038'
  • Construction site plan for project from page 26 of the file '2025-10-07 - Design Brief - D02-02-25-0038'
  • Construction site plan for project from page 27 of the file '2025-10-07 - Design Brief - D02-02-25-0038'
  • Construction site plan for project from page 34 of the file '2025-10-07 - Design Brief - D02-02-25-0038'
  • Construction site plan for project from page 34 of the file '2025-10-07 - Design Brief - D02-02-25-0038'
  • Construction site plan for project from page 34 of the file '2025-10-07 - Design Brief - D02-02-25-0038'
  • Construction site plan for project from page 34 of the file '2025-10-07 - Design Brief - D02-02-25-0038'
  • Construction site plan for project from page 37 of the file '2025-10-07 - Design Brief - D02-02-25-0038'
  • Construction site plan for project from page 38 of the file '2025-10-07 - Design Brief - D02-02-25-0038'
  • Construction site plan for project from page 39 of the file '2025-10-07 - Design Brief - D02-02-25-0038'
  • Construction site plan for project from page 39 of the file '2025-10-07 - Design Brief - D02-02-25-0038'
  • Construction site plan for project from page 41 of the file '2025-10-07 - Design Brief - D02-02-25-0038'
  • Construction site plan for project from page 42 of the file '2025-10-07 - Design Brief - D02-02-25-0038'
  • Construction site plan for project from page 43 of the file '2025-10-07 - Design Brief - D02-02-25-0038'
  • Construction site plan for project from page 44 of the file '2025-10-07 - Design Brief - D02-02-25-0038'
  • Construction site plan for project from page 45 of the file '2025-10-07 - Design Brief - D02-02-25-0038'
  • Floor plan for project from page 46 of the file '2025-10-07 - Design Brief - D02-02-25-0038'
  • Floor plan for project from page 46 of the file '2025-10-07 - Design Brief - D02-02-25-0038'
  • Construction site plan for project from page 46 of the file '2025-10-07 - Design Brief - D02-02-25-0038'
  • Construction site plan for project from page 47 of the file '2025-10-07 - Design Brief - D02-02-25-0038'
  • Construction site plan for project from page 47 of the file '2025-10-07 - Design Brief - D02-02-25-0038'
  • Construction site plan for project from page 47 of the file '2025-10-07 - Design Brief - D02-02-25-0038'
  • Floor plan for project from page 49 of the file '2025-10-07 - Design Brief - D02-02-25-0038'
  • Floor plan for project from page 49 of the file '2025-10-07 - Design Brief - D02-02-25-0038'
  • Floor plan for project from page 50 of the file '2025-10-07 - Design Brief - D02-02-25-0038'
  • Floor plan for project from page 50 of the file '2025-10-07 - Design Brief - D02-02-25-0038'
  • Floor plan for project from page 51 of the file '2025-10-07 - Design Brief - D02-02-25-0038'
  • Floor plan for project from page 51 of the file '2025-10-07 - Design Brief - D02-02-25-0038'
  • Floor plan for project from page 52 of the file '2025-10-07 - Design Brief - D02-02-25-0038'
  • Floor plan for project from page 52 of the file '2025-10-07 - Design Brief - D02-02-25-0038'
  • Floor plan for project from page 53 of the file '2025-10-07 - Design Brief - D02-02-25-0038'
  • Floor plan for project from page 54 of the file '2025-10-07 - Design Brief - D02-02-25-0038'
  • Floor plan for project from page 55 of the file '2025-10-07 - Design Brief - D02-02-25-0038'
  • Floor plan for project from page 55 of the file '2025-10-07 - Design Brief - D02-02-25-0038'
  • Floor plan for project from page 55 of the file '2025-10-07 - Design Brief - D02-02-25-0038'
  • Floor plan for project from page 56 of the file '2025-10-07 - Design Brief - D02-02-25-0038'
  • Floor plan for project from page 56 of the file '2025-10-07 - Design Brief - D02-02-25-0038'
  • Floor plan for project from page 56 of the file '2025-10-07 - Design Brief - D02-02-25-0038'
  • Floor plan for project from page 74 of the file '2025-10-07 - Design Brief - D02-02-25-0038'
  • Construction site plan for project from page 87 of the file '2025-10-07 - Design Brief - D02-02-25-0038'
  • Construction site plan for project from page 87 of the file '2025-10-07 - Design Brief - D02-02-25-0038'
  • Construction site plan for project from page 87 of the file '2025-10-07 - Design Brief - D02-02-25-0038'
  • Construction site plan for project from page 87 of the file '2025-10-07 - Design Brief - D02-02-25-0038'
  • Construction site plan for project from page 87 of the file '2025-10-07 - Design Brief - D02-02-25-0038'
  • Construction site plan for project from page 87 of the file '2025-10-07 - Design Brief - D02-02-25-0038'
  • Construction site plan for project from page 87 of the file '2025-10-07 - Design Brief - D02-02-25-0038'
  • Construction site plan for project from page 87 of the file '2025-10-07 - Design Brief - D02-02-25-0038'
  • Construction site plan for project from page 87 of the file '2025-10-07 - Design Brief - D02-02-25-0038'
  • Construction site plan for project from page 87 of the file '2025-10-07 - Design Brief - D02-02-25-0038'
  • Construction site plan for project from page 87 of the file '2025-10-07 - Design Brief - D02-02-25-0038'
  • Construction site plan for project from page 33 of the file '2025-06-02 - Design Brief - D02-02-25-0038'
  • Construction site plan for project from page 33 of the file '2025-06-02 - Design Brief - D02-02-25-0038'
  • Construction site plan for project from page 33 of the file '2025-06-02 - Design Brief - D02-02-25-0038'
  • Construction site plan for project from page 36 of the file '2025-06-02 - Design Brief - D02-02-25-0038'
  • Construction site plan for project from page 39 of the file '2025-06-02 - Design Brief - D02-02-25-0038'
  • Construction site plan for project from page 40 of the file '2025-06-02 - Design Brief - D02-02-25-0038'
  • Construction site plan for project from page 41 of the file '2025-06-02 - Design Brief - D02-02-25-0038'
  • Construction site plan for project from page 42 of the file '2025-06-02 - Design Brief - D02-02-25-0038'
  • Construction site plan for project from page 43 of the file '2025-06-02 - Design Brief - D02-02-25-0038'
  • Construction site plan for project from page 44 of the file '2025-06-02 - Design Brief - D02-02-25-0038'
  • Construction site plan for project from page 44 of the file '2025-06-02 - Design Brief - D02-02-25-0038'
  • Floor plan for project from page 45 of the file '2025-06-02 - Design Brief - D02-02-25-0038'
  • Construction site plan for project from page 45 of the file '2025-06-02 - Design Brief - D02-02-25-0038'

Documents #

TypeDocument
Archaelogical Assessment2025-06-02 - Step 1 Archaeological Assessment - D02-02-25-0038
Architectural Plans2025-11-28 - Site Plan - D02-02-25-0038
Architectural Plans2025-11-28 - Site Grading Plan - D02-02-25-0038
Architectural Plans2025-11-28 - Plan & Profile 02 - D02-02-25-0038
Architectural Plans2025-11-28 - Plan & Profile 01 - D02-02-25-0038
Architectural Plans2025-11-28 - Elevations - D02-02-25-0038
Architectural Plans2025-10-28 - Roll Plan - D02-02-25-0038
Architectural Plans2025-10-07 - Site Plan - D02-02-25-0038
Architectural Plans2025-10-07 - Site Grading Plan - D02-02-25-0038
Architectural Plans2025-10-07 - Sanitary Drainage Area Plan - D02-02-25-0038
Architectural Plans2025-10-07 - Preliminary Plan - D02-02-25-0038
Architectural Plans2025-10-07 - Plan & Profile 01 - D02-02-25-0038
Architectural Plans2025-10-07 - Plan & Profile - D02-02-25-0038
Architectural Plans2025-10-07 - Elevations - D02-02-25-0038
Architectural Plans2025-06-02 - Site Plan - D02-02-25-0038
Architectural Plans2025-06-02 - Site Grading Plan - D02-02-25-0038
Architectural Plans2025-06-02 - Sanitary Drainage Area Plan - D02-02-25-0038
Architectural Plans2025-06-02 - Roll Plan - D02-02-25-0038
Architectural Plans2025-06-02 - Plan and Profile PP2 - D02-02-25-0038
Architectural Plans2025-06-02 - Plan and Profile PP1 - D02-02-25-0038
Cover Letter2025-10-07 - Cover Sheet - D02-02-25-0038
Design Brief2025-10-07 - Design Brief - D02-02-25-0038
Design Brief2025-06-02 - Design Brief - D02-02-25-0038
Environmental2025-06-02 - Phase II ESA Update - D02-02-25-0038
Environmental2025-06-02 - Phase I ESA Update - D02-02-25-0038
Environmental2025-06-02 - Environmental Impact Statement - D02-02-25-0038
Erosion And Sediment Control Plan2025-10-07 - Erosion & Sediment Control Plan - D02-02-25-0038
Erosion And Sediment Control Plan2025-06-02 - Erosion and Sediment Control Plan - D02-02-25-0038
Existing Conditions2025-11-28 - Existing Conditions Plan - D02-02-25-0038
Existing Conditions2025-10-07 - Existing Conditions Plan - D02-02-25-0038
Existing Conditions2025-06-02 - Existing Conditions Plan - D02-02-25-0038
Geotechnical Report2025-11-28 - Soil Specifications - D02-02-25-0038
Geotechnical Report2025-10-07 - Geotechnical Investigation - D02-02-25-0038
Geotechnical Report2025-06-02 - Geotechnical Investigation - D02-02-25-0038
Geotechnical Report2025-06-02 - Geotechnical Assessment - Grading Plan Review - D02-02-25-0038
Landscape Plan2025-11-28 - Landscape Achitecture - D02-02-25-0038
Landscape Plan2025-10-07 - Landscape Architecture - D02-02-25-0038
Landscape Plan2025-06-02 - Landscape Package - D02-02-25-0038
Noise Study2025-06-02 - Roadway Traffic Noise Feasibility Assessment - D02-02-25-0038
Planning2025-11-28 - Planning Rationale - D02-02-25-0038
Planning2025-10-07 - Planning Rationale - D02-02-25-0038
Planning2025-06-02 - Zoning Confirmation Report - D02-02-25-0038
Planning2025-06-02 - Planning Rationale - D02-02-25-0038
Shadow Study2025-06-02 - Sun Shadow Study - D02-02-25-0038
Site Servicing2025-11-28 - Site Servicing Plan - D02-02-25-0038
Site Servicing2025-11-28 - Site Servicing & Stormwater Management Report - D02-02-25-0038
Site Servicing2025-11-28 - Servicing Tables - D02-02-25-0038
Site Servicing2025-10-07 - Site Servicing Plan - D02-02-25-0038
Site Servicing2025-10-07 - Site Servicing & Stormwater Management Report - D02-02-25-0038
Site Servicing2025-10-07 - Servicing Tables - D02-02-25-0038
Site Servicing2025-06-02 - Site Servicing Plan - D02-02-25-0038
Site Servicing2025-06-02 - Servicing Tables - D02-02-25-0038
Site Servicing2025-06-02 - Servicing & SWM Report - D02-02-25-0038
Stormwater Management2025-11-28 - Post Development Storm Drainage Area Plan - D02-02-25-0038
Stormwater Management2025-10-07 - Storm Drainage Area Plan - D02-02-25-0038
Stormwater Management2025-10-07 - Post Development Storm Drainage Area Plan - D02-02-25-0038
Stormwater Management2025-06-02 - Post Development Storm Drainage Area Plan - D02-02-25-0038
Surveying2025-06-02 - TOPO Plan of Survey - D02-02-25-0038
Transportation Analysis2025-10-28 - TIA Step 4 Report - D02-02-25-0038
Transportation Analysis2025-06-02 - TIA Step 3 Strategy Report - D02-02-25-0038
Tree Information and Conservation2025-11-28 - Tree Conservation Report - D02-02-25-0038
Tree Information and Conservation2025-10-07 - Tree Conservation Report - D02-02-25-0038
Tree Information and Conservation2025-06-02 - Tree Conservation Report - D02-02-25-0038
Wind Study2025-06-02 - Pedestrian Level Wind Study - D02-02-25-0038
2025-11-28 - Notes & Legends Sheet - D02-02-25-0038
2025-11-28 - Cover Page - D02-02-25-0038
2025-10-07 - Notes & Legend Sheet - D02-02-25-0038
2025-06-02 - Slope Stability Review and Landslide Risk Assessment - D02-02-25-0038
2025-06-02 - RMA-2025-TPD-026-B - D02-02-25-0038
2025-06-02 - RMA-2025-TPD-026-A - D02-02-25-0038
2025-06-02 - Retaining Wall Global Stability Analysis - D02-02-25-0038
2025-06-02 - Notes and Legend Sheet - D02-02-25-0038