4159 Obsidian (D02-02-25-0031)

4159 Obsidian (D02-02-25-0031) #

Summary #

Application StatusActive
Review StatusAdditional Submission Deemed Adequate
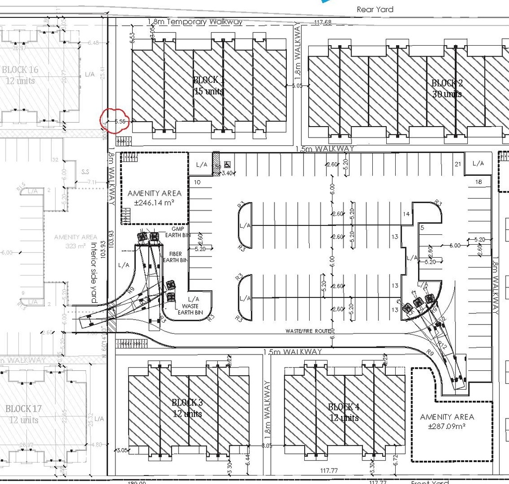
Description93 stacked, back-to-back townhouse dwellings in six (6) blocks. The blocks range in size from 12 units to 30 units.
WardWard 3 - David Hill
Date Initiated2025-05-16
Last Updated2025-09-23

Renders #

  • Rendering of building from page 15 of the file '2025-05-16 - Urban Design Brief - D02-02-25-0031'
  • Rendering of building from page 20 of the file '2025-05-16 - Urban Design Brief - D02-02-25-0031'
  • Rendering of building from page 21 of the file '2025-05-16 - Urban Design Brief - D02-02-25-0031'
  • Rendering of building from page 16 of the file '2025-05-16 - Urban Design Brief - D02-02-25-0031'
  • Rendering of building from page 15 of the file '2025-05-16 - Urban Design Brief - D02-02-25-0031'
  • Rendering of building from page 20 of the file '2025-05-16 - Urban Design Brief - D02-02-25-0031'
  • Rendering of building from page 21 of the file '2025-05-16 - Urban Design Brief - D02-02-25-0031'
  • Rendering of building from page 16 of the file '2025-05-16 - Urban Design Brief - D02-02-25-0031'

Site and Floor Plans #

  • Construction site plan for project from page 6 of the file '2025-05-16 - Urban Design Brief - D02-02-25-0031'
  • Construction site plan for project from page 7 of the file '2025-05-16 - Urban Design Brief - D02-02-25-0031'
  • Construction site plan for project from page 7 of the file '2025-05-16 - Urban Design Brief - D02-02-25-0031'
  • Construction site plan for project from page 7 of the file '2025-05-16 - Urban Design Brief - D02-02-25-0031'
  • Construction site plan for project from page 7 of the file '2025-05-16 - Urban Design Brief - D02-02-25-0031'
  • Construction site plan for project from page 8 of the file '2025-05-16 - Urban Design Brief - D02-02-25-0031'
  • Construction site plan for project from page 9 of the file '2025-05-16 - Urban Design Brief - D02-02-25-0031'
  • Construction site plan for project from page 10 of the file '2025-05-16 - Urban Design Brief - D02-02-25-0031'
  • Construction site plan for project from page 11 of the file '2025-05-16 - Urban Design Brief - D02-02-25-0031'
  • Construction site plan for project from page 11 of the file '2025-05-16 - Urban Design Brief - D02-02-25-0031'
  • Construction site plan for project from page 11 of the file '2025-05-16 - Urban Design Brief - D02-02-25-0031'
  • Construction site plan for project from page 14 of the file '2025-05-16 - Urban Design Brief - D02-02-25-0031'
  • Floor plan for project from page 14 of the file '2025-05-16 - Urban Design Brief - D02-02-25-0031'
  • Construction site plan for project from page 14 of the file '2025-05-16 - Urban Design Brief - D02-02-25-0031'
  • Floor plan for project from page 18 of the file '2025-05-16 - Urban Design Brief - D02-02-25-0031'
  • Floor plan for project from page 18 of the file '2025-05-16 - Urban Design Brief - D02-02-25-0031'
  • Floor plan for project from page 18 of the file '2025-05-16 - Urban Design Brief - D02-02-25-0031'
  • Floor plan for project from page 18 of the file '2025-05-16 - Urban Design Brief - D02-02-25-0031'
  • Construction site plan for project from page 19 of the file '2025-05-16 - Urban Design Brief - D02-02-25-0031'
  • Construction site plan for project from page 21 of the file '2025-05-16 - Urban Design Brief - D02-02-25-0031'
  • Construction site plan for project from page 6 of the file '2025-05-16 - Urban Design Brief - D02-02-25-0031'
  • Construction site plan for project from page 7 of the file '2025-05-16 - Urban Design Brief - D02-02-25-0031'
  • Construction site plan for project from page 7 of the file '2025-05-16 - Urban Design Brief - D02-02-25-0031'
  • Construction site plan for project from page 7 of the file '2025-05-16 - Urban Design Brief - D02-02-25-0031'
  • Construction site plan for project from page 7 of the file '2025-05-16 - Urban Design Brief - D02-02-25-0031'
  • Construction site plan for project from page 8 of the file '2025-05-16 - Urban Design Brief - D02-02-25-0031'
  • Construction site plan for project from page 9 of the file '2025-05-16 - Urban Design Brief - D02-02-25-0031'
  • Construction site plan for project from page 10 of the file '2025-05-16 - Urban Design Brief - D02-02-25-0031'
  • Construction site plan for project from page 11 of the file '2025-05-16 - Urban Design Brief - D02-02-25-0031'
  • Construction site plan for project from page 11 of the file '2025-05-16 - Urban Design Brief - D02-02-25-0031'
  • Construction site plan for project from page 11 of the file '2025-05-16 - Urban Design Brief - D02-02-25-0031'
  • Construction site plan for project from page 14 of the file '2025-05-16 - Urban Design Brief - D02-02-25-0031'
  • Floor plan for project from page 14 of the file '2025-05-16 - Urban Design Brief - D02-02-25-0031'
  • Construction site plan for project from page 14 of the file '2025-05-16 - Urban Design Brief - D02-02-25-0031'
  • Floor plan for project from page 18 of the file '2025-05-16 - Urban Design Brief - D02-02-25-0031'
  • Floor plan for project from page 18 of the file '2025-05-16 - Urban Design Brief - D02-02-25-0031'
  • Floor plan for project from page 18 of the file '2025-05-16 - Urban Design Brief - D02-02-25-0031'
  • Floor plan for project from page 18 of the file '2025-05-16 - Urban Design Brief - D02-02-25-0031'
  • Construction site plan for project from page 19 of the file '2025-05-16 - Urban Design Brief - D02-02-25-0031'
  • Construction site plan for project from page 21 of the file '2025-05-16 - Urban Design Brief - D02-02-25-0031'

Files #

TypeNameLinks
Application Summary2025-06-17 - Application Summary - D07-12-25-0068Download PDF
Application Summary2025-06-17 - Application Summary - D02-02-25-0031Download PDF
Architectural Plans2025-05-16 - Site Plan - D02-02-25-0031Download PDF
Architectural Plans2025-05-16 - Sanitary Drainage Plan - D02-02-25-0031Download PDF
Architectural Plans2025-05-16 - Preliminary Construction Management Plan - D02-02-25-0031Download PDF
Architectural Plans2025-05-16 - Plan 4M-1729 - D02-02-25-0031Download PDF
Architectural Plans2025-05-16 - Notes and Legends Plan - D02-02-25-0031Download PDF
Architectural Plans2025-05-16 - Elevations - D02-02-25-0031Download PDF
Architectural Plans2025-09-24 - Site Plan - D02-02-25-0031Download PDF
Architectural Plans2025-09-24 - Sanitary Drainage Plan - D02-02-25-0031Download PDF
Architectural Plans2025-09-24 - Preliminary Construction Management Plan - D02-02-25-0031Download PDF
Architectural Plans2025-09-24 - Parkette Fit Plan - D02-02-25-0031Download PDF
Design Brief2025-05-16 - Urban Design Brief - D02-02-25-0031Download PDF
Electrical Plan2025-09-24 - Electrical Specifications - D02-02-25-0031Download PDF
Erosion And Sediment Control Plan2025-05-16 - Erosion Control Plan and Detail Sheet - D02-02-25-0031Download PDF
Erosion And Sediment Control Plan2025-09-24 - Erosion Control & Details Sheet - D02-02-25-0031Download PDF
Existing Conditions2025-05-16 - Existing Conditions and Removals Plan - D02-02-25-0031Download PDF
Geotechnical Report2025-05-16 - Grading Plan - D02-02-25-0031Download PDF
Geotechnical Report2025-05-16 - Geotechnical Investigation - D02-02-25-0031Download PDF
Geotechnical Report2025-09-24 - Grading Plan - D02-02-25-0031Download PDF
Geotechnical Report2025-09-24 - Geotechnical Investigation - D02-02-25-0031Download PDF
Landscape Plan2025-05-16 - Landscape Plan and Details - D02-02-25-0031Download PDF
Landscape Plan2025-09-24 - Landscape Plan - D02-02-25-0031Download PDF
Noise Study2025-05-16 - Detailed Traffic Noise Study - D02-02-25-0031Download PDF
Planning2025-05-16 - Zoning Confirmation Report - D02-02-25-0031Download PDF
Planning2025-05-16 - Planning Rationale - D02-02-25-0031Download PDF
Planning2025-09-24 - Planning Rationale - D02-02-25-0031Download PDF
Site Servicing2025-05-16 - Site Servicing Plan - D02-02-25-0031Download PDF
Site Servicing2025-05-16 - Servicing and SWM Report - D02-02-25-0031Download PDF
Site Servicing2025-09-24 - Site Servicing Plan - D02-02-25-0031Download PDF
Stormwater Management2025-05-16 - Storm Drainage Plan - D02-02-25-0031Download PDF
Stormwater Management2025-09-24 - Stormwater Management Report - D02-02-25-0031Download PDF
Stormwater Management2025-09-24 - Storm Drainage Plan - D02-02-25-0031Download PDF
Transportation Analysis2025-05-16 - Transportation Impact Assessment - D02-02-25-0031Download PDF
Transportation Analysis2025-09-24 - Transportation Impact Assessment - D02-02-25-0031Download PDF
2025-05-16 - Update of Phase I ESA - D02-02-25-0031Download PDF
2025-05-16 - Details Sheet 2 - D02-02-25-0031Download PDF
2025-05-16 - Details Sheet - D02-02-25-0031Download PDF
2025-09-24 - Details Sheet 01 - D02-02-25-0031Download PDF
2025-09-24 - Details Sheet - D02-02-25-0031Download PDF