593-601 Laurier Ave. W. (D02-02-24-0079)

593-601 Laurier Ave. W. (D02-02-24-0079) #

Summary #

Application StatusActive
Review StatusComment Period in Progress
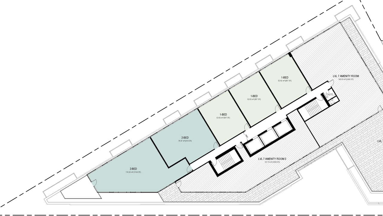
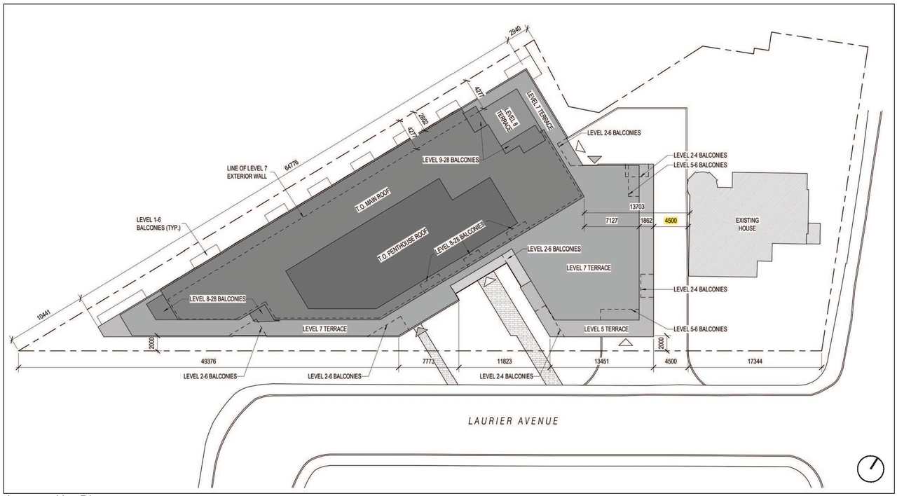
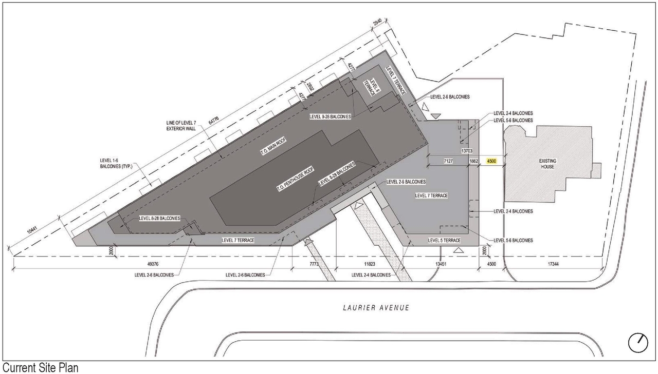
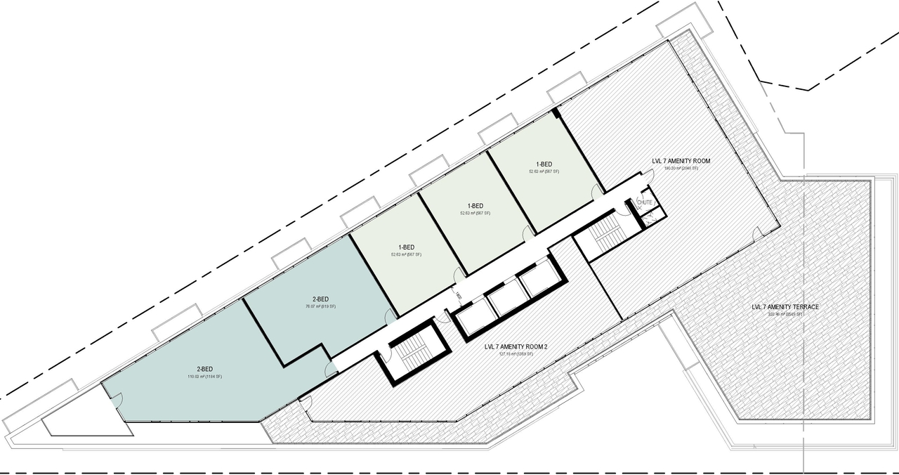
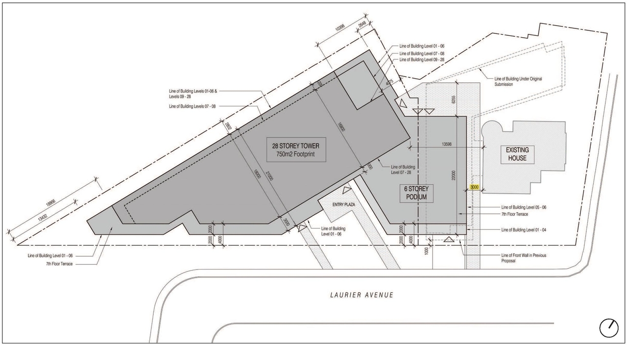
Description28 STOREY HIGH RISE APT BUILDING WITH A 6 STORY PODIUM ADJACENT TO THE ALEXANDER FLECK HOUSE. COMPRISING 326 RESIDENTIAL UNITS, THE PROPOSED DEVELOPMENT INCLUDES A MIX OF UNIT SIZES RANGING FROM BACHELOR TO 3 BEDROOM UNITS
WardWard 14 - Ariel Troster
Date Initiated2024-12-17
Last Updated2025-12-31

Renders #

  • Rendering of building from page 6 of the file '2025-07-16 - Urban View Analysis - D02-02-24-0079'
  • Rendering of building from page 12 of the file '2025-11-26 - UDRP Report - D02-02-24-0079'
  • Rendering of building from page 6 of the file '2025-07-16 - Urban View Analysis - D02-02-24-0079'
  • Rendering of building from page 1 of the file '2025-11-26 - UDRP Report - D02-02-24-0079'
  • Rendering of building from page 10 of the file '2025-11-26 - UDRP Report - D02-02-24-0079'
  • Rendering of building from page 9 of the file '2025-11-26 - UDRP Report - D02-02-24-0079'
  • Rendering of building from page 25 of the file '2025-11-26 - UDRP Report - D02-02-24-0079'
  • Rendering of building from page 22 of the file '2025-11-26 - UDRP Report - D02-02-24-0079'
  • Rendering of building from page 24 of the file '2025-11-26 - UDRP Report - D02-02-24-0079'
  • Rendering of building from page 13 of the file '2025-11-26 - UDRP Report - D02-02-24-0079'
  • Rendering of building from page 9 of the file '2025-11-26 - UDRP Report - D02-02-24-0079'
  • Rendering of building from page 13 of the file '2024-12-18 - Urban Design Brief - D02-02-24-0079'
  • Rendering of building from page 6 of the file '2025-07-16 - Urban View Analysis - D02-02-24-0079'
  • Rendering of building from page 10 of the file '2025-11-26 - UDRP Report - D02-02-24-0079'
  • Rendering of building from page 23 of the file '2025-11-26 - UDRP Report - D02-02-24-0079'
  • Rendering of building from page 20 of the file '2025-11-26 - UDRP Report - D02-02-24-0079'
  • Rendering of building from page 20 of the file '2025-11-26 - UDRP Report - D02-02-24-0079'
  • Rendering of building from page 23 of the file '2025-11-26 - UDRP Report - D02-02-24-0079'
  • Rendering of building from page 21 of the file '2025-11-26 - UDRP Report - D02-02-24-0079'
  • Rendering of building from page 21 of the file '2025-11-26 - UDRP Report - D02-02-24-0079'
  • Rendering of building from page 13 of the file '2024-12-18 - Urban Design Brief - D02-02-24-0079'
  • Rendering of building from page 30 of the file '2025-11-26 - UDRP Report - D02-02-24-0079'
  • Rendering of building from page 30 of the file '2025-11-26 - UDRP Report - D02-02-24-0079'
  • Rendering of building from page 33 of the file '2024-12-18 - Urban Design Brief - D02-02-24-0079'
  • Rendering of building from page 34 of the file '2024-12-18 - Urban Design Brief - D02-02-24-0079'
  • Rendering of building from page 43 of the file '2025-11-26 - UDRP Report - D02-02-24-0079'
  • Rendering of building from page 44 of the file '2025-11-26 - UDRP Report - D02-02-24-0079'
  • Rendering of building from page 44 of the file '2025-11-26 - UDRP Report - D02-02-24-0079'
  • Rendering of building from page 43 of the file '2025-11-26 - UDRP Report - D02-02-24-0079'
  • Rendering of building from page 6 of the file '2024-12-18 - Urban Design Brief - D02-02-24-0079'
  • Rendering of building from page 12 of the file '2025-11-26 - UDRP Report - D02-02-24-0079'
  • Rendering of building from page 6 of the file '2025-07-16 - Urban View Analysis - D02-02-24-0079'
  • Rendering of building from page 12 of the file '2025-11-26 - UDRP Report - D02-02-24-0079'
  • Rendering of building from page 6 of the file '2025-07-16 - Urban View Analysis - D02-02-24-0079'
  • Rendering of building from page 1 of the file '2025-11-26 - UDRP Report - D02-02-24-0079'
  • Rendering of building from page 10 of the file '2025-11-26 - UDRP Report - D02-02-24-0079'
  • Rendering of building from page 9 of the file '2025-11-26 - UDRP Report - D02-02-24-0079'
  • Rendering of building from page 25 of the file '2025-11-26 - UDRP Report - D02-02-24-0079'
  • Rendering of building from page 22 of the file '2025-11-26 - UDRP Report - D02-02-24-0079'
  • Rendering of building from page 24 of the file '2025-11-26 - UDRP Report - D02-02-24-0079'
  • Rendering of building from page 13 of the file '2025-11-26 - UDRP Report - D02-02-24-0079'
  • Rendering of building from page 9 of the file '2025-11-26 - UDRP Report - D02-02-24-0079'
  • Rendering of building from page 13 of the file '2024-12-18 - Urban Design Brief - D02-02-24-0079'
  • Rendering of building from page 6 of the file '2025-07-16 - Urban View Analysis - D02-02-24-0079'
  • Rendering of building from page 10 of the file '2025-11-26 - UDRP Report - D02-02-24-0079'
  • Rendering of building from page 23 of the file '2025-11-26 - UDRP Report - D02-02-24-0079'
  • Rendering of building from page 20 of the file '2025-11-26 - UDRP Report - D02-02-24-0079'
  • Rendering of building from page 20 of the file '2025-11-26 - UDRP Report - D02-02-24-0079'
  • Rendering of building from page 23 of the file '2025-11-26 - UDRP Report - D02-02-24-0079'
  • Rendering of building from page 21 of the file '2025-11-26 - UDRP Report - D02-02-24-0079'
  • Rendering of building from page 21 of the file '2025-11-26 - UDRP Report - D02-02-24-0079'
  • Rendering of building from page 13 of the file '2024-12-18 - Urban Design Brief - D02-02-24-0079'
  • Rendering of building from page 30 of the file '2025-11-26 - UDRP Report - D02-02-24-0079'
  • Rendering of building from page 30 of the file '2025-11-26 - UDRP Report - D02-02-24-0079'
  • Rendering of building from page 33 of the file '2024-12-18 - Urban Design Brief - D02-02-24-0079'
  • Rendering of building from page 34 of the file '2024-12-18 - Urban Design Brief - D02-02-24-0079'
  • Rendering of building from page 43 of the file '2025-11-26 - UDRP Report - D02-02-24-0079'
  • Rendering of building from page 44 of the file '2025-11-26 - UDRP Report - D02-02-24-0079'
  • Rendering of building from page 44 of the file '2025-11-26 - UDRP Report - D02-02-24-0079'
  • Rendering of building from page 43 of the file '2025-11-26 - UDRP Report - D02-02-24-0079'
  • Rendering of building from page 6 of the file '2024-12-18 - Urban Design Brief - D02-02-24-0079'
  • Rendering of building from page 12 of the file '2025-11-26 - UDRP Report - D02-02-24-0079'

Location #

Select a marker to view the address.

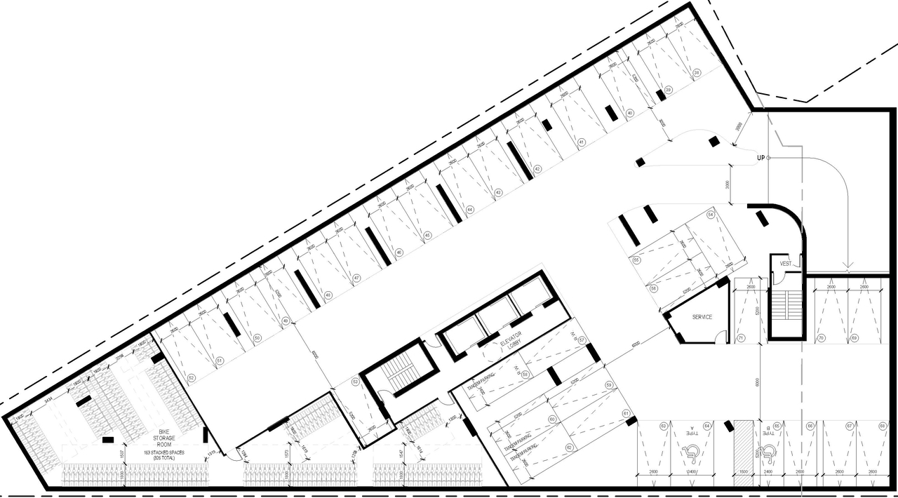
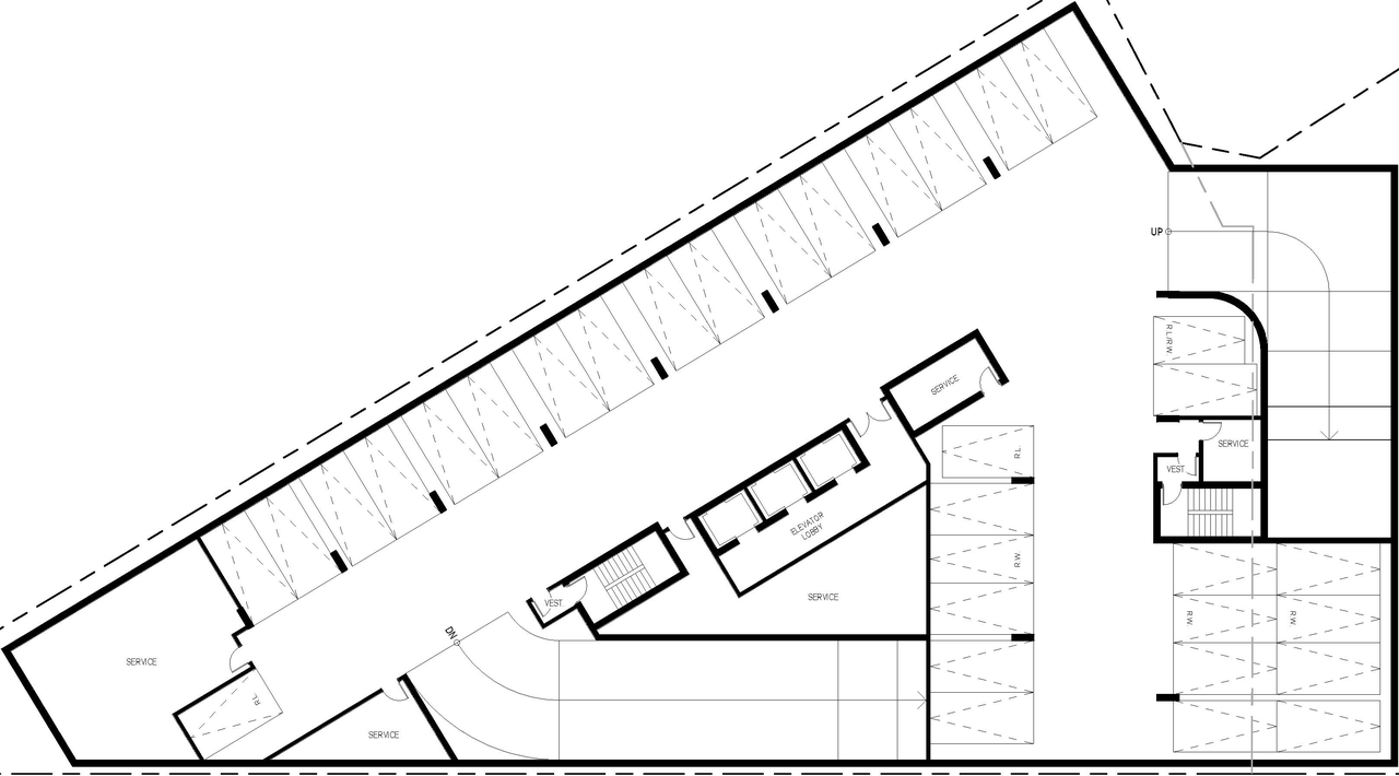
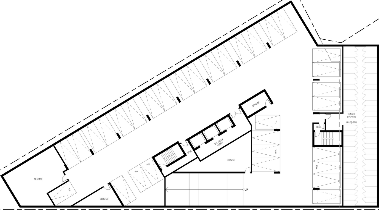
Site and Floor Plans #

  • Construction site plan for project from page 4 of the file '2025-11-26 - UDRP Report - D02-02-24-0079'
  • Construction site plan for project from page 4 of the file '2025-11-26 - UDRP Report - D02-02-24-0079'
  • Construction site plan for project from page 4 of the file '2025-11-26 - UDRP Report - D02-02-24-0079'
  • Construction site plan for project from page 5 of the file '2025-11-26 - UDRP Report - D02-02-24-0079'
  • Construction site plan for project from page 5 of the file '2025-11-26 - UDRP Report - D02-02-24-0079'
  • Construction site plan for project from page 7 of the file '2025-11-26 - UDRP Report - D02-02-24-0079'
  • Construction site plan for project from page 10 of the file '2025-11-26 - UDRP Report - D02-02-24-0079'
  • Construction site plan for project from page 14 of the file '2025-11-26 - UDRP Report - D02-02-24-0079'
  • Construction site plan for project from page 15 of the file '2025-11-26 - UDRP Report - D02-02-24-0079'
  • Construction site plan for project from page 16 of the file '2025-11-26 - UDRP Report - D02-02-24-0079'
  • Construction site plan for project from page 17 of the file '2025-11-26 - UDRP Report - D02-02-24-0079'
  • Construction site plan for project from page 18 of the file '2025-11-26 - UDRP Report - D02-02-24-0079'
  • Construction site plan for project from page 19 of the file '2025-11-26 - UDRP Report - D02-02-24-0079'
  • Construction site plan for project from page 26 of the file '2025-11-26 - UDRP Report - D02-02-24-0079'
  • Construction site plan for project from page 27 of the file '2025-11-26 - UDRP Report - D02-02-24-0079'
  • Construction site plan for project from page 30 of the file '2025-11-26 - UDRP Report - D02-02-24-0079'
  • Construction site plan for project from page 30 of the file '2025-11-26 - UDRP Report - D02-02-24-0079'
  • Construction site plan for project from page 32 of the file '2025-11-26 - UDRP Report - D02-02-24-0079'
  • Construction site plan for project from page 32 of the file '2025-11-26 - UDRP Report - D02-02-24-0079'
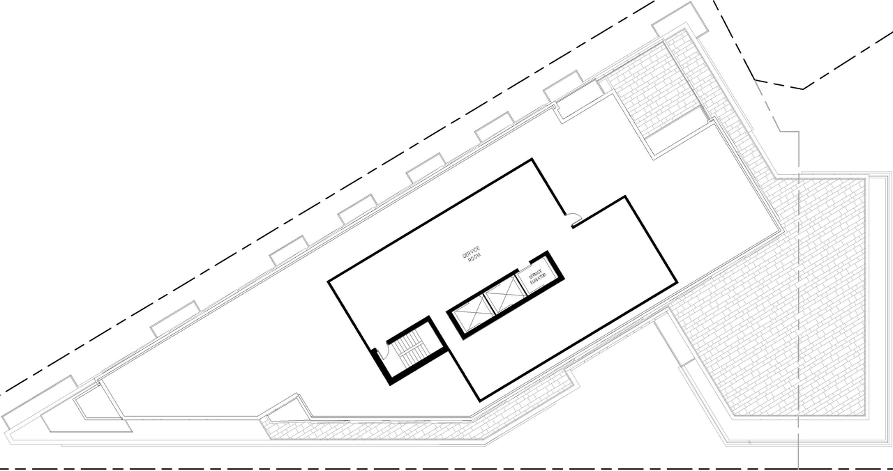
  • Floor plan for project from page 33 of the file '2025-11-26 - UDRP Report - D02-02-24-0079'
  • Construction site plan for project from page 36 of the file '2025-11-26 - UDRP Report - D02-02-24-0079'
  • Floor plan for project from page 39 of the file '2025-11-26 - UDRP Report - D02-02-24-0079'
  • Floor plan for project from page 39 of the file '2025-11-26 - UDRP Report - D02-02-24-0079'
  • Floor plan for project from page 42 of the file '2025-11-26 - UDRP Report - D02-02-24-0079'
  • Construction site plan for project from page 47 of the file '2025-11-26 - UDRP Report - D02-02-24-0079'
  • Construction site plan for project from page 47 of the file '2025-11-26 - UDRP Report - D02-02-24-0079'
  • Construction site plan for project from page 47 of the file '2025-11-26 - UDRP Report - D02-02-24-0079'
  • Construction site plan for project from page 47 of the file '2025-11-26 - UDRP Report - D02-02-24-0079'
  • Construction site plan for project from page 49 of the file '2025-11-26 - UDRP Report - D02-02-24-0079'
  • Construction site plan for project from page 2 of the file '2025-11-26 - Context Views - D02-02-24-0079'
  • Construction site plan for project from page 2 of the file '2025-07-16 - Urban View Analysis - D02-02-24-0079'
  • Construction site plan for project from page 3 of the file '2024-12-18 - Urban Design Brief - D02-02-24-0079'
  • Construction site plan for project from page 4 of the file '2024-12-18 - Urban Design Brief - D02-02-24-0079'
  • Construction site plan for project from page 5 of the file '2024-12-18 - Urban Design Brief - D02-02-24-0079'
  • Construction site plan for project from page 9 of the file '2024-12-18 - Urban Design Brief - D02-02-24-0079'
  • Construction site plan for project from page 10 of the file '2024-12-18 - Urban Design Brief - D02-02-24-0079'
  • Construction site plan for project from page 19 of the file '2024-12-18 - Urban Design Brief - D02-02-24-0079'
  • Construction site plan for project from page 20 of the file '2024-12-18 - Urban Design Brief - D02-02-24-0079'
  • Floor plan for project from page 22 of the file '2024-12-18 - Urban Design Brief - D02-02-24-0079'
  • Construction site plan for project from page 22 of the file '2024-12-18 - Urban Design Brief - D02-02-24-0079'
  • Floor plan for project from page 23 of the file '2024-12-18 - Urban Design Brief - D02-02-24-0079'
  • Floor plan for project from page 25 of the file '2024-12-18 - Urban Design Brief - D02-02-24-0079'
  • Floor plan for project from page 29 of the file '2024-12-18 - Urban Design Brief - D02-02-24-0079'
  • Construction site plan for project from page 35 of the file '2024-12-18 - Urban Design Brief - D02-02-24-0079'
  • Construction site plan for project from page 35 of the file '2024-12-18 - Urban Design Brief - D02-02-24-0079'
  • Construction site plan for project from page 35 of the file '2024-12-18 - Urban Design Brief - D02-02-24-0079'
  • Construction site plan for project from page 35 of the file '2024-12-18 - Urban Design Brief - D02-02-24-0079'
  • Construction site plan for project from page 35 of the file '2024-12-18 - Urban Design Brief - D02-02-24-0079'
  • Construction site plan for project from page 35 of the file '2024-12-18 - Urban Design Brief - D02-02-24-0079'
  • Construction site plan for project from page 35 of the file '2024-12-18 - Urban Design Brief - D02-02-24-0079'
  • Construction site plan for project from page 35 of the file '2024-12-18 - Urban Design Brief - D02-02-24-0079'
  • Construction site plan for project from page 36 of the file '2024-12-18 - Urban Design Brief - D02-02-24-0079'
  • Construction site plan for project from page 36 of the file '2024-12-18 - Urban Design Brief - D02-02-24-0079'
  • Construction site plan for project from page 36 of the file '2024-12-18 - Urban Design Brief - D02-02-24-0079'
  • Construction site plan for project from page 36 of the file '2024-12-18 - Urban Design Brief - D02-02-24-0079'
  • Construction site plan for project from page 36 of the file '2024-12-18 - Urban Design Brief - D02-02-24-0079'
  • Construction site plan for project from page 36 of the file '2024-12-18 - Urban Design Brief - D02-02-24-0079'
  • Construction site plan for project from page 36 of the file '2024-12-18 - Urban Design Brief - D02-02-24-0079'
  • Construction site plan for project from page 37 of the file '2024-12-18 - Urban Design Brief - D02-02-24-0079'
  • Construction site plan for project from page 37 of the file '2024-12-18 - Urban Design Brief - D02-02-24-0079'
  • Construction site plan for project from page 37 of the file '2024-12-18 - Urban Design Brief - D02-02-24-0079'
  • Construction site plan for project from page 38 of the file '2024-12-18 - Urban Design Brief - D02-02-24-0079'
  • Construction site plan for project from page 38 of the file '2024-12-18 - Urban Design Brief - D02-02-24-0079'
  • Construction site plan for project from page 38 of the file '2024-12-18 - Urban Design Brief - D02-02-24-0079'
  • Construction site plan for project from page 38 of the file '2024-12-18 - Urban Design Brief - D02-02-24-0079'
  • Construction site plan for project from page 38 of the file '2024-12-18 - Urban Design Brief - D02-02-24-0079'
  • Construction site plan for project from page 38 of the file '2024-12-18 - Urban Design Brief - D02-02-24-0079'
  • Construction site plan for project from page 38 of the file '2024-12-18 - Urban Design Brief - D02-02-24-0079'
  • Construction site plan for project from page 4 of the file '2025-11-26 - UDRP Report - D02-02-24-0079'
  • Construction site plan for project from page 4 of the file '2025-11-26 - UDRP Report - D02-02-24-0079'
  • Construction site plan for project from page 4 of the file '2025-11-26 - UDRP Report - D02-02-24-0079'
  • Construction site plan for project from page 5 of the file '2025-11-26 - UDRP Report - D02-02-24-0079'
  • Construction site plan for project from page 5 of the file '2025-11-26 - UDRP Report - D02-02-24-0079'
  • Construction site plan for project from page 7 of the file '2025-11-26 - UDRP Report - D02-02-24-0079'
  • Construction site plan for project from page 10 of the file '2025-11-26 - UDRP Report - D02-02-24-0079'
  • Construction site plan for project from page 14 of the file '2025-11-26 - UDRP Report - D02-02-24-0079'
  • Construction site plan for project from page 15 of the file '2025-11-26 - UDRP Report - D02-02-24-0079'
  • Construction site plan for project from page 16 of the file '2025-11-26 - UDRP Report - D02-02-24-0079'
  • Construction site plan for project from page 17 of the file '2025-11-26 - UDRP Report - D02-02-24-0079'
  • Construction site plan for project from page 18 of the file '2025-11-26 - UDRP Report - D02-02-24-0079'
  • Construction site plan for project from page 19 of the file '2025-11-26 - UDRP Report - D02-02-24-0079'
  • Construction site plan for project from page 26 of the file '2025-11-26 - UDRP Report - D02-02-24-0079'
  • Construction site plan for project from page 27 of the file '2025-11-26 - UDRP Report - D02-02-24-0079'
  • Construction site plan for project from page 30 of the file '2025-11-26 - UDRP Report - D02-02-24-0079'
  • Construction site plan for project from page 30 of the file '2025-11-26 - UDRP Report - D02-02-24-0079'
  • Construction site plan for project from page 32 of the file '2025-11-26 - UDRP Report - D02-02-24-0079'
  • Construction site plan for project from page 32 of the file '2025-11-26 - UDRP Report - D02-02-24-0079'
  • Floor plan for project from page 33 of the file '2025-11-26 - UDRP Report - D02-02-24-0079'
  • Construction site plan for project from page 36 of the file '2025-11-26 - UDRP Report - D02-02-24-0079'
  • Floor plan for project from page 39 of the file '2025-11-26 - UDRP Report - D02-02-24-0079'
  • Floor plan for project from page 39 of the file '2025-11-26 - UDRP Report - D02-02-24-0079'
  • Floor plan for project from page 42 of the file '2025-11-26 - UDRP Report - D02-02-24-0079'
  • Construction site plan for project from page 47 of the file '2025-11-26 - UDRP Report - D02-02-24-0079'
  • Construction site plan for project from page 47 of the file '2025-11-26 - UDRP Report - D02-02-24-0079'
  • Construction site plan for project from page 47 of the file '2025-11-26 - UDRP Report - D02-02-24-0079'
  • Construction site plan for project from page 47 of the file '2025-11-26 - UDRP Report - D02-02-24-0079'
  • Construction site plan for project from page 49 of the file '2025-11-26 - UDRP Report - D02-02-24-0079'
  • Construction site plan for project from page 2 of the file '2025-11-26 - Context Views - D02-02-24-0079'
  • Construction site plan for project from page 2 of the file '2025-07-16 - Urban View Analysis - D02-02-24-0079'
  • Construction site plan for project from page 3 of the file '2024-12-18 - Urban Design Brief - D02-02-24-0079'
  • Construction site plan for project from page 4 of the file '2024-12-18 - Urban Design Brief - D02-02-24-0079'
  • Construction site plan for project from page 5 of the file '2024-12-18 - Urban Design Brief - D02-02-24-0079'
  • Construction site plan for project from page 9 of the file '2024-12-18 - Urban Design Brief - D02-02-24-0079'
  • Construction site plan for project from page 10 of the file '2024-12-18 - Urban Design Brief - D02-02-24-0079'
  • Construction site plan for project from page 19 of the file '2024-12-18 - Urban Design Brief - D02-02-24-0079'
  • Construction site plan for project from page 20 of the file '2024-12-18 - Urban Design Brief - D02-02-24-0079'
  • Floor plan for project from page 22 of the file '2024-12-18 - Urban Design Brief - D02-02-24-0079'
  • Construction site plan for project from page 22 of the file '2024-12-18 - Urban Design Brief - D02-02-24-0079'
  • Floor plan for project from page 23 of the file '2024-12-18 - Urban Design Brief - D02-02-24-0079'
  • Floor plan for project from page 25 of the file '2024-12-18 - Urban Design Brief - D02-02-24-0079'
  • Floor plan for project from page 29 of the file '2024-12-18 - Urban Design Brief - D02-02-24-0079'
  • Construction site plan for project from page 35 of the file '2024-12-18 - Urban Design Brief - D02-02-24-0079'
  • Construction site plan for project from page 35 of the file '2024-12-18 - Urban Design Brief - D02-02-24-0079'
  • Construction site plan for project from page 35 of the file '2024-12-18 - Urban Design Brief - D02-02-24-0079'
  • Construction site plan for project from page 35 of the file '2024-12-18 - Urban Design Brief - D02-02-24-0079'
  • Construction site plan for project from page 35 of the file '2024-12-18 - Urban Design Brief - D02-02-24-0079'
  • Construction site plan for project from page 35 of the file '2024-12-18 - Urban Design Brief - D02-02-24-0079'
  • Construction site plan for project from page 35 of the file '2024-12-18 - Urban Design Brief - D02-02-24-0079'
  • Construction site plan for project from page 35 of the file '2024-12-18 - Urban Design Brief - D02-02-24-0079'
  • Construction site plan for project from page 36 of the file '2024-12-18 - Urban Design Brief - D02-02-24-0079'
  • Construction site plan for project from page 36 of the file '2024-12-18 - Urban Design Brief - D02-02-24-0079'
  • Construction site plan for project from page 36 of the file '2024-12-18 - Urban Design Brief - D02-02-24-0079'
  • Construction site plan for project from page 36 of the file '2024-12-18 - Urban Design Brief - D02-02-24-0079'
  • Construction site plan for project from page 36 of the file '2024-12-18 - Urban Design Brief - D02-02-24-0079'
  • Construction site plan for project from page 36 of the file '2024-12-18 - Urban Design Brief - D02-02-24-0079'
  • Construction site plan for project from page 36 of the file '2024-12-18 - Urban Design Brief - D02-02-24-0079'
  • Construction site plan for project from page 37 of the file '2024-12-18 - Urban Design Brief - D02-02-24-0079'
  • Construction site plan for project from page 37 of the file '2024-12-18 - Urban Design Brief - D02-02-24-0079'
  • Construction site plan for project from page 37 of the file '2024-12-18 - Urban Design Brief - D02-02-24-0079'
  • Construction site plan for project from page 38 of the file '2024-12-18 - Urban Design Brief - D02-02-24-0079'
  • Construction site plan for project from page 38 of the file '2024-12-18 - Urban Design Brief - D02-02-24-0079'
  • Construction site plan for project from page 38 of the file '2024-12-18 - Urban Design Brief - D02-02-24-0079'
  • Construction site plan for project from page 38 of the file '2024-12-18 - Urban Design Brief - D02-02-24-0079'
  • Construction site plan for project from page 38 of the file '2024-12-18 - Urban Design Brief - D02-02-24-0079'
  • Construction site plan for project from page 38 of the file '2024-12-18 - Urban Design Brief - D02-02-24-0079'
  • Construction site plan for project from page 38 of the file '2024-12-18 - Urban Design Brief - D02-02-24-0079'

Documents #

TypeDocument
Application Summary2025-12-31 - Application Summary - D02-02-24-0079
Architectural Plans2025-11-26 - Conservation Plan - D02-02-24-0079
Architectural Plans2025-11-26 - Architectural Plans - D02-02-24-0079
Architectural Plans2025-07-16 - Site Plan - D02-02-24-0079
Architectural Plans2025-07-16 - Average Grade Plan - D02-02-24-0079
Architectural Plans2025-07-16 - Architectural Drawings - D02-02-24-0079
Architectural Plans2024-12-18 - Architectural Plans - D02-02-24-0079
Design Brief2025-11-26 - UDRP Report - D02-02-24-0079
Design Brief2025-07-16 - Urban Design Brief Report - D02-02-24-0079
Design Brief2024-12-18 - Urban Design Brief - D02-02-24-0079
Environmental2025-07-16 - Phase I Environmental Site Assessment - D02-02-24-0079
Environmental2025-07-16 - Environmental Site Remedial Action Plan - D02-02-24-0079
Environmental2025-07-16 - Environmental Impact Study - D02-02-24-0079
Environmental2024-12-30 - Environmental Impact Study - D02-02-24-0079
Environmental2024-12-18 - Phase II ESA - D02-02-24-0079
Environmental2024-12-18 - Phase I ESA - D02-02-24-0079
Geotechnical Report2025-11-26 - Grading & Drainage - Redline - D02-02-24-0079
Geotechnical Report2025-11-26 - Geotechnical Investigation - D02-02-24-0079
Geotechnical Report2024-12-18 - Geotechnical Investigation - D02-02-24-0079
Landscape Plan2025-11-26 - Landscape Plan - D02-02-24-0079
Landscape Plan2025-07-16 - Landscape Plan - D02-02-24-0079
Noise Study2024-12-18 - Transportation Noise Assessment - D02-02-24-0079
Planning2025-11-26 - Planning Rationale - D02-02-24-0079
Planning2025-07-16 - Planning Rationale - D02-02-24-0079
Planning2024-12-18 - Zoning Confirmation Report - D02-02-24-0079
Planning2024-12-18 - Planning Rationale - D02-02-24-0079
Rendering2025-11-26 - Context Views - D02-02-24-0079
Rendering2025-07-16 - Urban View Analysis - D02-02-24-0079
Shadow Study2025-11-26 - Shadow Analysis - D02-02-24-0079
Shadow Study2025-07-16 - Shadow Analysis - Graphics + Description - D02-02-24-0079
Site Servicing2025-11-26 - Site Servicing & SWM Report - D02-02-24-0079
Site Servicing2025-07-16 - Site Servicing & SWM Report - D02-02-24-0079
Site Servicing2024-12-18 - Site Servicing & SWM Report - D02-02-24-0079
Surveying2024-12-18 - Plan of Survey - D02-02-24-0079
Transportation Analysis2025-11-26 - Transportation Impact Assessment - D02-02-24-0079
Transportation Analysis2024-12-30 - Transportation Impact Assessment - D02-02-24-0079
Tree Information and Conservation2024-12-18 - Tree Conservation Report - D02-02-24-0079
Wind Study2025-11-26 - Pedestrian Level Wind Study Addendum - D02-02-24-0079
Wind Study2024-12-18 - Pedestrian Level Wind Study - D02-02-24-0079
2025-11-26 - Site & Landscape Context - D02-02-24-0079
2025-11-26 - Heritage Impact Assessment Addendum - D02-02-24-0079
2024-12-18 - Heritage Impact Assessment - D02-02-24-0079

Additional Information #

All Addresses593 Laurier Ave. W.
601 Laurier Ave. W.