295-355 Deschatelets (D02-02-24-0062)

295-355 Deschatelets (D02-02-24-0062)#

Summary#

Application StatusInactive
Review StatusZoning By-law in Effect
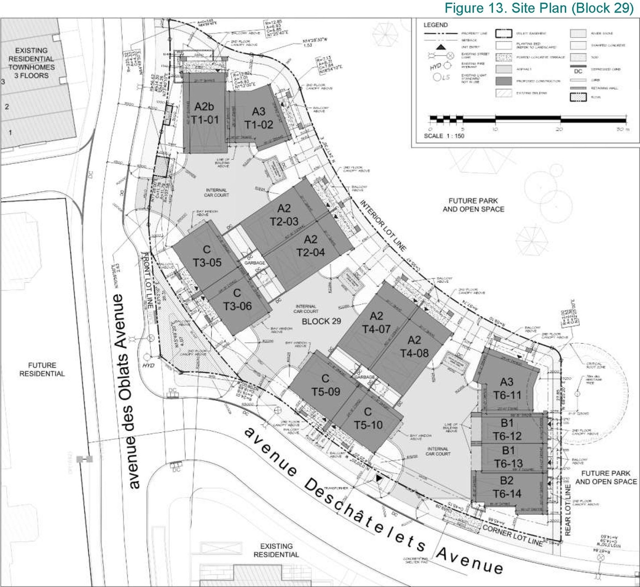
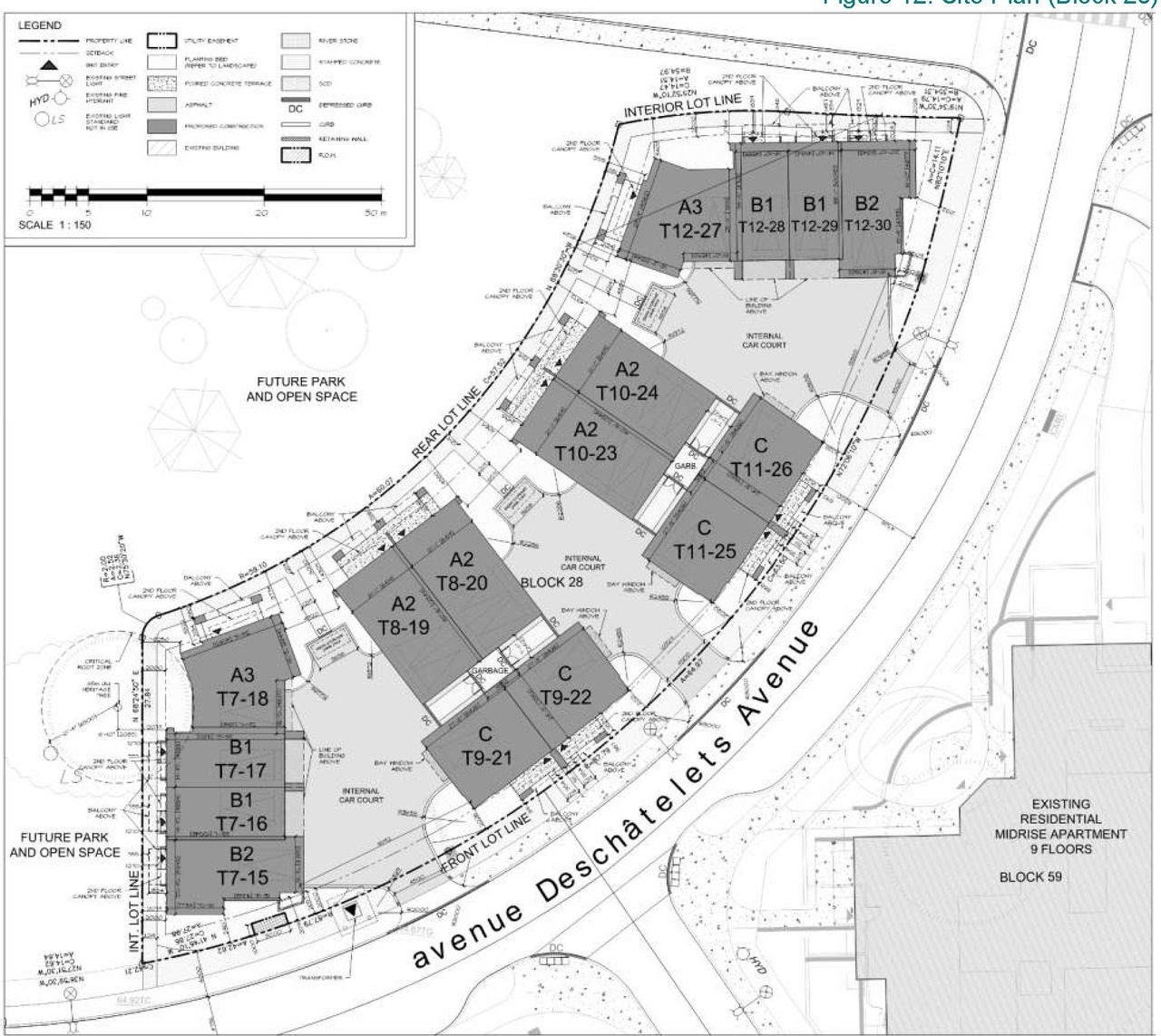
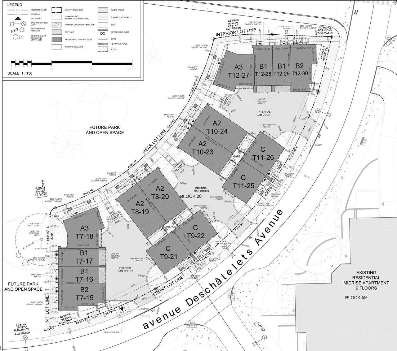
DescriptionThe proposed Planned Unit Development includes thirty (30) townhouse units with associated car court and landscaping. Please refer to the Planning Rationale, prepared by Novatech Engineers, for further details about the proposal.
WardWard 17 - Shawn Menard
Date Initiated2024-10-18
Last Updated2025-07-03

Renders#

  • Rendering of building from page 54 of the file '2024-12-23 - Urban Design Brief - D02-02-24-0062'
  • Rendering of building from page 45 of the file '2024-12-23 - Urban Design Brief - D02-02-24-0062'
  • Rendering of building from page 53 of the file '2024-12-23 - Urban Design Brief - D02-02-24-0062'
  • Rendering of building from page 40 of the file '2024-12-23 - Urban Design Brief - D02-02-24-0062'
  • Rendering of building from page 6 of the file '2024-12-23 - Architectural Renders - D02-02-24-0062'
  • Rendering of building from page 42 of the file '2024-12-23 - Urban Design Brief - D02-02-24-0062'
  • Rendering of building from page 14 of the file '2024-12-23 - Architectural Renders - D02-02-24-0062'
  • Rendering of building from page 46 of the file '2024-12-23 - Urban Design Brief - D02-02-24-0062'
  • Rendering of building from page 16 of the file '2024-12-23 - Urban Design Brief - D02-02-24-0062'
  • Rendering of building from page 44 of the file '2024-12-23 - Urban Design Brief - D02-02-24-0062'
  • Rendering of building from page 15 of the file '2024-12-23 - Urban Design Brief - D02-02-24-0062'
  • Rendering of building from page 48 of the file '2024-12-23 - Urban Design Brief - D02-02-24-0062'
  • Rendering of building from page 9 of the file '2024-12-23 - Architectural Renders - D02-02-24-0062'
  • Rendering of building from page 3 of the file '2024-12-23 - Architectural Renders - D02-02-24-0062'
  • Rendering of building from page 50 of the file '2024-12-23 - Urban Design Brief - D02-02-24-0062'
  • Rendering of building from page 7 of the file '2024-12-23 - Architectural Renders - D02-02-24-0062'
  • Rendering of building from page 49 of the file '2024-12-23 - Urban Design Brief - D02-02-24-0062'
  • Rendering of building from page 2 of the file '2024-12-23 - Architectural Renders - D02-02-24-0062'
  • Rendering of building from page 4 of the file '2024-12-23 - Architectural Renders - D02-02-24-0062'
  • Rendering of building from page 11 of the file '2024-12-23 - Architectural Renders - D02-02-24-0062'
  • Rendering of building from page 15 of the file '2024-12-23 - Urban Design Brief - D02-02-24-0062'
  • Rendering of building from page 52 of the file '2024-12-23 - Urban Design Brief - D02-02-24-0062'
  • Rendering of building from page 20 of the file '2024-12-23 - Urban Design Brief - D02-02-24-0062'
  • Rendering of building from page 19 of the file '2024-12-23 - Urban Design Brief - D02-02-24-0062'
  • Rendering of building from page 43 of the file '2024-12-23 - Urban Design Brief - D02-02-24-0062'
  • Rendering of building from page 47 of the file '2024-12-23 - Urban Design Brief - D02-02-24-0062'
  • Rendering of building from page 51 of the file '2024-12-23 - Urban Design Brief - D02-02-24-0062'
  • Rendering of building from page 12 of the file '2024-12-23 - Architectural Renders - D02-02-24-0062'
  • Rendering of building from page 14 of the file '2024-12-23 - Urban Design Brief - D02-02-24-0062'
  • Rendering of building from page 54 of the file '2024-12-23 - Urban Design Brief - D02-02-24-0062'
  • Rendering of building from page 45 of the file '2024-12-23 - Urban Design Brief - D02-02-24-0062'
  • Rendering of building from page 53 of the file '2024-12-23 - Urban Design Brief - D02-02-24-0062'
  • Rendering of building from page 40 of the file '2024-12-23 - Urban Design Brief - D02-02-24-0062'
  • Rendering of building from page 6 of the file '2024-12-23 - Architectural Renders - D02-02-24-0062'
  • Rendering of building from page 42 of the file '2024-12-23 - Urban Design Brief - D02-02-24-0062'
  • Rendering of building from page 14 of the file '2024-12-23 - Architectural Renders - D02-02-24-0062'
  • Rendering of building from page 46 of the file '2024-12-23 - Urban Design Brief - D02-02-24-0062'
  • Rendering of building from page 16 of the file '2024-12-23 - Urban Design Brief - D02-02-24-0062'
  • Rendering of building from page 44 of the file '2024-12-23 - Urban Design Brief - D02-02-24-0062'
  • Rendering of building from page 15 of the file '2024-12-23 - Urban Design Brief - D02-02-24-0062'
  • Rendering of building from page 48 of the file '2024-12-23 - Urban Design Brief - D02-02-24-0062'
  • Rendering of building from page 9 of the file '2024-12-23 - Architectural Renders - D02-02-24-0062'
  • Rendering of building from page 3 of the file '2024-12-23 - Architectural Renders - D02-02-24-0062'
  • Rendering of building from page 50 of the file '2024-12-23 - Urban Design Brief - D02-02-24-0062'
  • Rendering of building from page 7 of the file '2024-12-23 - Architectural Renders - D02-02-24-0062'
  • Rendering of building from page 49 of the file '2024-12-23 - Urban Design Brief - D02-02-24-0062'
  • Rendering of building from page 2 of the file '2024-12-23 - Architectural Renders - D02-02-24-0062'
  • Rendering of building from page 4 of the file '2024-12-23 - Architectural Renders - D02-02-24-0062'
  • Rendering of building from page 11 of the file '2024-12-23 - Architectural Renders - D02-02-24-0062'
  • Rendering of building from page 15 of the file '2024-12-23 - Urban Design Brief - D02-02-24-0062'
  • Rendering of building from page 52 of the file '2024-12-23 - Urban Design Brief - D02-02-24-0062'
  • Rendering of building from page 20 of the file '2024-12-23 - Urban Design Brief - D02-02-24-0062'
  • Rendering of building from page 19 of the file '2024-12-23 - Urban Design Brief - D02-02-24-0062'
  • Rendering of building from page 43 of the file '2024-12-23 - Urban Design Brief - D02-02-24-0062'
  • Rendering of building from page 47 of the file '2024-12-23 - Urban Design Brief - D02-02-24-0062'
  • Rendering of building from page 51 of the file '2024-12-23 - Urban Design Brief - D02-02-24-0062'
  • Rendering of building from page 12 of the file '2024-12-23 - Architectural Renders - D02-02-24-0062'
  • Rendering of building from page 14 of the file '2024-12-23 - Urban Design Brief - D02-02-24-0062'

Location#

Select a marker to view the address.

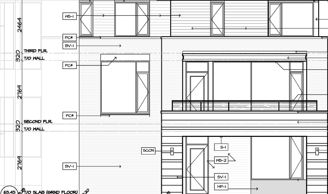
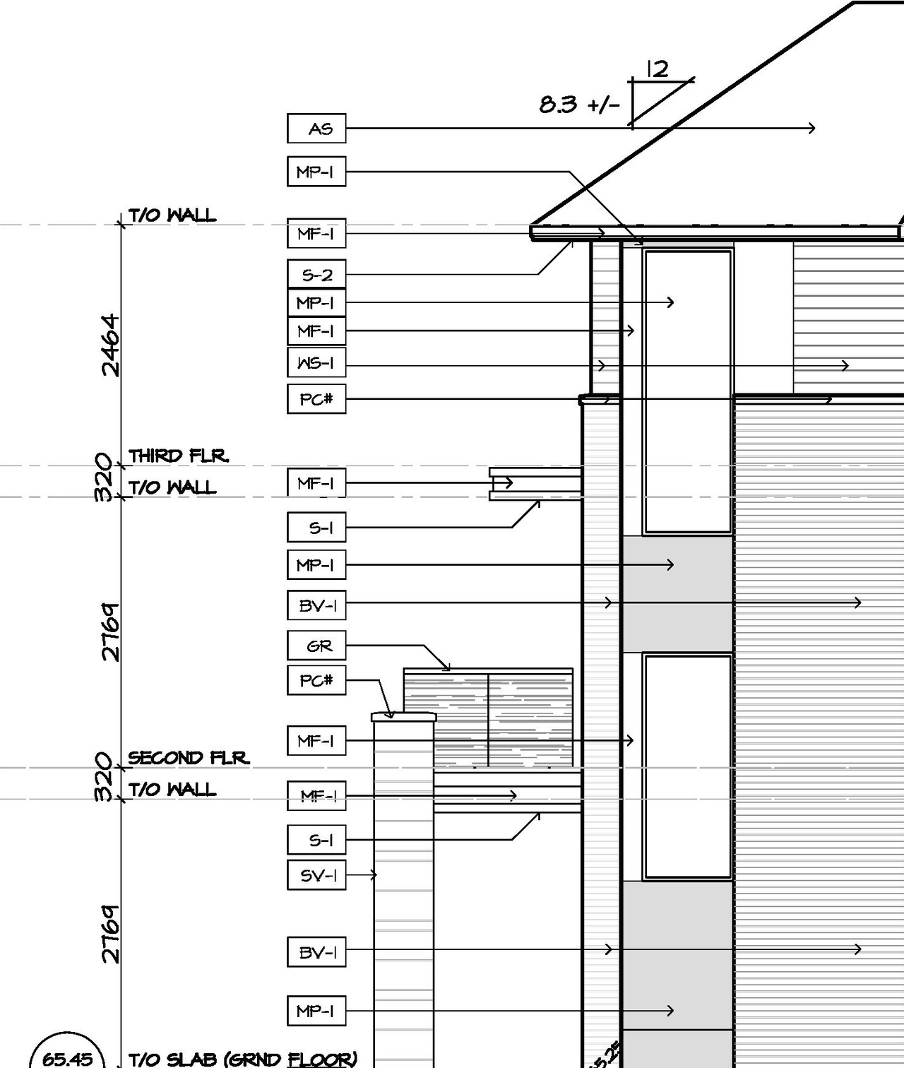
Site Plans, Elevations and Floor Plans#

  • Image from page 31 of the file '2024-10-18 - Urban Design Brief - D02-02-24-0062'
  • Image from page 26 of the file '2024-10-18 - Urban Design Brief - D02-02-24-0062'
  • Image from page 31 of the file '2024-10-18 - Urban Design Brief - D02-02-24-0062'
  • Image from page 32 of the file '2024-10-18 - Urban Design Brief - D02-02-24-0062'
  • Image from page 27 of the file '2024-10-18 - Urban Design Brief - D02-02-24-0062'
  • Image from page 33 of the file '2024-12-23 - Urban Design Brief - D02-02-24-0062'
  • Image from page 32 of the file '2024-12-23 - Urban Design Brief - D02-02-24-0062'
  • Image from page 27 of the file '2024-12-23 - Urban Design Brief - D02-02-24-0062'
  • Image from page 38 of the file '2024-12-23 - Urban Design Brief - D02-02-24-0062'
  • Image from page 37 of the file '2024-12-23 - Urban Design Brief - D02-02-24-0062'
  • Image from page 28 of the file '2024-10-18 - Urban Design Brief - D02-02-24-0062'
  • Image from page 35 of the file '2024-10-18 - Urban Design Brief - D02-02-24-0062'
  • Image from page 28 of the file '2024-12-23 - Urban Design Brief - D02-02-24-0062'
  • Image from page 29 of the file '2024-10-18 - Urban Design Brief - D02-02-24-0062'
  • Image from page 27 of the file '2024-12-23 - Urban Design Brief - D02-02-24-0062'
  • Image from page 27 of the file '2024-12-23 - Urban Design Brief - D02-02-24-0062'
  • Image from page 27 of the file '2024-12-23 - Urban Design Brief - D02-02-24-0062'
  • Image from page 37 of the file '2024-10-18 - Urban Design Brief - D02-02-24-0062'
  • Image from page 35 of the file '2024-12-23 - Urban Design Brief - D02-02-24-0062'
  • Image from page 31 of the file '2024-10-18 - Urban Design Brief - D02-02-24-0062'
  • Image from page 38 of the file '2024-12-23 - Urban Design Brief - D02-02-24-0062'
  • Image from page 35 of the file '2024-12-23 - Urban Design Brief - D02-02-24-0062'
  • Image from page 26 of the file '2024-10-18 - Urban Design Brief - D02-02-24-0062'
  • Image from page 32 of the file '2024-12-23 - Urban Design Brief - D02-02-24-0062'
  • Image from page 38 of the file '2024-12-23 - Urban Design Brief - D02-02-24-0062'
  • Image from page 27 of the file '2024-12-23 - Urban Design Brief - D02-02-24-0062'
  • Image from page 31 of the file '2024-12-23 - Urban Design Brief - D02-02-24-0062'
  • Image from page 32 of the file '2024-12-23 - Urban Design Brief - D02-02-24-0062'
  • Image from page 27 of the file '2024-12-23 - Urban Design Brief - D02-02-24-0062'
  • Image from page 29 of the file '2024-12-23 - Urban Design Brief - D02-02-24-0062'
  • Image from page 32 of the file '2024-12-23 - Urban Design Brief - D02-02-24-0062'
  • Image from page 32 of the file '2024-12-23 - Urban Design Brief - D02-02-24-0062'
  • Image from page 31 of the file '2024-12-23 - Urban Design Brief - D02-02-24-0062'
  • Image from page 34 of the file '2024-10-18 - Urban Design Brief - D02-02-24-0062'
  • Image from page 33 of the file '2024-12-23 - Urban Design Brief - D02-02-24-0062'
  • Image from page 27 of the file '2024-10-18 - Urban Design Brief - D02-02-24-0062'
  • Image from page 29 of the file '2024-12-23 - Urban Design Brief - D02-02-24-0062'
  • Image from page 31 of the file '2024-12-23 - Urban Design Brief - D02-02-24-0062'
  • Image from page 34 of the file '2024-12-23 - Urban Design Brief - D02-02-24-0062'
  • Image from page 28 of the file '2024-12-23 - Urban Design Brief - D02-02-24-0062'
  • Image from page 30 of the file '2024-12-23 - Urban Design Brief - D02-02-24-0062'
  • Image from page 29 of the file '2024-10-18 - Urban Design Brief - D02-02-24-0062'
  • Image from page 33 of the file '2024-10-18 - Urban Design Brief - D02-02-24-0062'
  • Image from page 29 of the file '2024-10-18 - Urban Design Brief - D02-02-24-0062'
  • Image from page 33 of the file '2024-12-23 - Urban Design Brief - D02-02-24-0062'
  • Image from page 27 of the file '2024-10-18 - Urban Design Brief - D02-02-24-0062'
  • Image from page 28 of the file '2024-12-23 - Urban Design Brief - D02-02-24-0062'
  • Image from page 17 of the file '2024-12-23 - Urban Design Brief - D02-02-24-0062'
  • Construction site plan for project from page 22 of the file '2024-12-23 - Urban Design Brief - D02-02-24-0062'
  • Construction site plan for project from page 26 of the file '2024-12-23 - Urban Design Brief - D02-02-24-0062'
  • Construction site plan for project from page 25 of the file '2024-12-23 - Urban Design Brief - D02-02-24-0062'
  • Construction site plan for project from page 21 of the file '2024-12-23 - Urban Design Brief - D02-02-24-0062'
  • Construction site plan for project from page 20 of the file '2024-10-18 - Urban Design Brief - D02-02-24-0062'
  • Construction site plan for project from page 9 of the file '2024-12-23 - Urban Design Brief - D02-02-24-0062'
  • Construction site plan for project from page 6 of the file '2024-12-23 - Urban Design Brief - D02-02-24-0062'
  • Construction site plan for project from page 10 of the file '2024-12-23 - Urban Design Brief - D02-02-24-0062'
  • Floor plan for project from page 27 of the file '2024-12-23 - Urban Design Brief - D02-02-24-0062'
  • Floor plan for project from page 29 of the file '2024-12-23 - Urban Design Brief - D02-02-24-0062'
  • Image from page 31 of the file '2024-10-18 - Urban Design Brief - D02-02-24-0062'
  • Image from page 26 of the file '2024-10-18 - Urban Design Brief - D02-02-24-0062'
  • Image from page 31 of the file '2024-10-18 - Urban Design Brief - D02-02-24-0062'
  • Image from page 32 of the file '2024-10-18 - Urban Design Brief - D02-02-24-0062'
  • Image from page 27 of the file '2024-10-18 - Urban Design Brief - D02-02-24-0062'
  • Image from page 33 of the file '2024-12-23 - Urban Design Brief - D02-02-24-0062'
  • Image from page 32 of the file '2024-12-23 - Urban Design Brief - D02-02-24-0062'
  • Image from page 27 of the file '2024-12-23 - Urban Design Brief - D02-02-24-0062'
  • Image from page 38 of the file '2024-12-23 - Urban Design Brief - D02-02-24-0062'
  • Image from page 37 of the file '2024-12-23 - Urban Design Brief - D02-02-24-0062'
  • Image from page 28 of the file '2024-10-18 - Urban Design Brief - D02-02-24-0062'
  • Image from page 35 of the file '2024-10-18 - Urban Design Brief - D02-02-24-0062'
  • Image from page 28 of the file '2024-12-23 - Urban Design Brief - D02-02-24-0062'
  • Image from page 29 of the file '2024-10-18 - Urban Design Brief - D02-02-24-0062'
  • Image from page 27 of the file '2024-12-23 - Urban Design Brief - D02-02-24-0062'
  • Image from page 27 of the file '2024-12-23 - Urban Design Brief - D02-02-24-0062'
  • Image from page 27 of the file '2024-12-23 - Urban Design Brief - D02-02-24-0062'
  • Image from page 37 of the file '2024-10-18 - Urban Design Brief - D02-02-24-0062'
  • Image from page 35 of the file '2024-12-23 - Urban Design Brief - D02-02-24-0062'
  • Image from page 31 of the file '2024-10-18 - Urban Design Brief - D02-02-24-0062'
  • Image from page 38 of the file '2024-12-23 - Urban Design Brief - D02-02-24-0062'
  • Image from page 35 of the file '2024-12-23 - Urban Design Brief - D02-02-24-0062'
  • Image from page 26 of the file '2024-10-18 - Urban Design Brief - D02-02-24-0062'
  • Image from page 32 of the file '2024-12-23 - Urban Design Brief - D02-02-24-0062'
  • Image from page 38 of the file '2024-12-23 - Urban Design Brief - D02-02-24-0062'
  • Image from page 27 of the file '2024-12-23 - Urban Design Brief - D02-02-24-0062'
  • Image from page 31 of the file '2024-12-23 - Urban Design Brief - D02-02-24-0062'
  • Image from page 32 of the file '2024-12-23 - Urban Design Brief - D02-02-24-0062'
  • Image from page 27 of the file '2024-12-23 - Urban Design Brief - D02-02-24-0062'
  • Image from page 29 of the file '2024-12-23 - Urban Design Brief - D02-02-24-0062'
  • Image from page 32 of the file '2024-12-23 - Urban Design Brief - D02-02-24-0062'
  • Image from page 32 of the file '2024-12-23 - Urban Design Brief - D02-02-24-0062'
  • Image from page 31 of the file '2024-12-23 - Urban Design Brief - D02-02-24-0062'
  • Image from page 34 of the file '2024-10-18 - Urban Design Brief - D02-02-24-0062'
  • Image from page 33 of the file '2024-12-23 - Urban Design Brief - D02-02-24-0062'
  • Image from page 27 of the file '2024-10-18 - Urban Design Brief - D02-02-24-0062'
  • Image from page 29 of the file '2024-12-23 - Urban Design Brief - D02-02-24-0062'
  • Image from page 31 of the file '2024-12-23 - Urban Design Brief - D02-02-24-0062'
  • Image from page 34 of the file '2024-12-23 - Urban Design Brief - D02-02-24-0062'
  • Image from page 28 of the file '2024-12-23 - Urban Design Brief - D02-02-24-0062'
  • Image from page 30 of the file '2024-12-23 - Urban Design Brief - D02-02-24-0062'
  • Image from page 29 of the file '2024-10-18 - Urban Design Brief - D02-02-24-0062'
  • Image from page 33 of the file '2024-10-18 - Urban Design Brief - D02-02-24-0062'
  • Image from page 29 of the file '2024-10-18 - Urban Design Brief - D02-02-24-0062'
  • Image from page 33 of the file '2024-12-23 - Urban Design Brief - D02-02-24-0062'
  • Image from page 27 of the file '2024-10-18 - Urban Design Brief - D02-02-24-0062'
  • Image from page 28 of the file '2024-12-23 - Urban Design Brief - D02-02-24-0062'
  • Image from page 17 of the file '2024-12-23 - Urban Design Brief - D02-02-24-0062'
  • Construction site plan for project from page 22 of the file '2024-12-23 - Urban Design Brief - D02-02-24-0062'
  • Construction site plan for project from page 26 of the file '2024-12-23 - Urban Design Brief - D02-02-24-0062'
  • Construction site plan for project from page 25 of the file '2024-12-23 - Urban Design Brief - D02-02-24-0062'
  • Construction site plan for project from page 21 of the file '2024-12-23 - Urban Design Brief - D02-02-24-0062'
  • Construction site plan for project from page 20 of the file '2024-10-18 - Urban Design Brief - D02-02-24-0062'
  • Construction site plan for project from page 9 of the file '2024-12-23 - Urban Design Brief - D02-02-24-0062'
  • Construction site plan for project from page 6 of the file '2024-12-23 - Urban Design Brief - D02-02-24-0062'
  • Construction site plan for project from page 10 of the file '2024-12-23 - Urban Design Brief - D02-02-24-0062'
  • Floor plan for project from page 27 of the file '2024-12-23 - Urban Design Brief - D02-02-24-0062'
  • Floor plan for project from page 29 of the file '2024-12-23 - Urban Design Brief - D02-02-24-0062'

Documents#

TypeDocument
Application Summary2025-01-15 - Application Summary - D02-02-24-0062
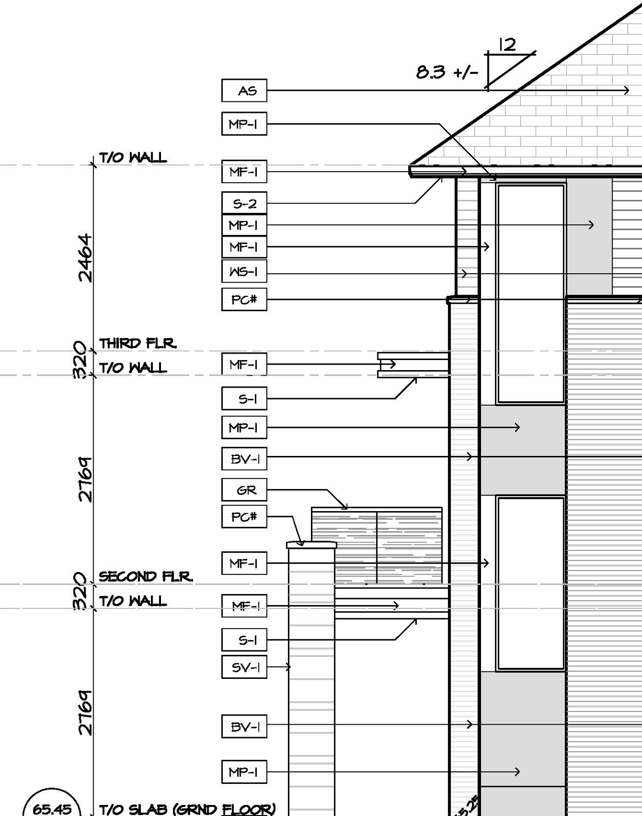
Architectural Plans2025-01-08 - Building Elevations - D02-02-24-0062
Architectural Plans2024-12-23 - Site Plan - Block 29 - D02-02-24-0062
Architectural Plans2024-12-23 - Site Plan - Block 28 - D02-02-24-0062
Architectural Plans2024-12-23 - Preliminary Construction Management Plan - D02-02-24-0062
Architectural Plans2024-12-23 - Plan 4R-30796 - D02-02-24-0062
Architectural Plans2024-12-23 - Plan 4M-1596 - D02-02-24-0062
Architectural Plans2024-12-23 - Overall Landscape Plan - D02-02-24-0062
Architectural Plans2024-12-23 - General Plan of Services - Block 29 - D02-02-24-0062
Architectural Plans2024-12-23 - General Plan of Services - Block 28 - D02-02-24-0062
Architectural Plans2024-12-23 - Erosion, Sediment Control and Removals Plan - Block 29 - D02-02-24-0062
Architectural Plans2024-12-23 - Erosion, Sediment control and Removals Plan - Block 28 - D02-02-24-0062
Architectural Plans2024-12-23 - Building Elevations - D02-02-24-0062
Architectural Plans2024-12-09 - Site Plan - Block 29 - D02-02-24-0062
Architectural Plans2024-12-09 - Site Plan - Block 28 - D02-02-24-0062
Architectural Plans2024-12-09 - Preliminary Construction Management Plan - D02-02-24-0062
Architectural Plans2024-12-09 - Planting Plan - Ph 2 and 3 (L2-B) - D02-02-24-0062
Architectural Plans2024-12-09 - Planting Plan - Ph 2 and 3 (L1-B) - D02-02-24-0062
Architectural Plans2024-12-09 - Overall Landscape Plan - D02-02-24-0062
Architectural Plans2024-12-09 - General Plan of Services - Block 29 - D02-02-24-0062
Architectural Plans2024-12-09 - General Plan of Services - Block 28 - D02-02-24-0062
Architectural Plans2024-12-09 - Erosion, Sediment Control and Removals Plan - Block 29 - D02-02-24-0062
Architectural Plans2024-12-09 - Erosion, Sediment Control and Removals Plan - Block 28 - D02-02-24-0062
Architectural Plans2024-12-09 - Building Elevations - D02-02-24-0062
Architectural Plans2024-10-18 - Site Plan - Block 29 - D02-02-24-0062
Architectural Plans2024-10-18 - Site Plan - Block 28 - D02-02-24-0062
Architectural Plans2024-10-18 - Revised Subdivision Planting Plans - D02-02-24-0062
Architectural Plans2024-10-18 - Preliminary Construction Management Plan - D02-02-24-0062
Architectural Plans2024-10-18 - Plan 4R-30796 - D02-02-24-0062
Architectural Plans2024-10-18 - Plan 4M-1596 - D02-02-24-0062
Architectural Plans2024-10-18 - General Plan of Services - Block 28 & 29 - D02-02-24-0062
Architectural Plans2024-10-18 - Architechtural Elevations - D02-02-24-0062
Architectural Plans2025-03-07 - General Plan of Services - D02-02-24-0062
Architectural Plans2025-05-27 - Site Plan - Block 29 - D02-02-24-0062
Architectural Plans2025-05-27 - Site Plan - Block 28 - D02-02-24-0062
Architectural Plans2025-05-27 - Overall Landscape Plan - D02-02-24-0062
Civil Engineering Report2025-03-07 - Civil Plan - D02-02-24-0062
Design Brief2024-12-23 - Urban Design Brief - D02-02-24-0062
Design Brief2024-12-09 - Urban Design Brief - D02-02-24-0062
Design Brief2024-10-18 - Urban Design Brief - D02-02-24-0062
Environmental2024-12-23 - Phase I-ESA Update - D02-02-24-0062
Erosion And Sediment Control Plan2024-10-18 - Erosion & Sediment Control Plan - Block 28 & 29 - D02-02-24-0062
Geotechnical Report2024-12-23 - Grading Plan - Block 29 - D02-02-24-0062
Geotechnical Report2024-12-23 - Grading Plan - Block 28 - D02-02-24-0062
Geotechnical Report2024-12-23 - Geotechnical Investigation - D02-02-24-0062
Geotechnical Report2024-12-09 - Grading Plan - Block 29 - D02-02-24-0062
Geotechnical Report2024-12-09 - Grading Plan - Block 28 - D02-02-24-0062
Geotechnical Report2024-10-18 - Grading Plan - Block 28 & 29 - D02-02-24-0062
Geotechnical Report2024-10-18 - Geotechnical Investigation - D02-02-24-0062
Geotechnical Report2025-04-10 - Grading Plan - D02-02-24-0062 (2)
Geotechnical Report2025-04-10 - Grading Plan - D02-02-24-0062
Geotechnical Report2025-05-27 - Grading Plan - Block 29 - D02-02-24-0062
Geotechnical Report2025-05-27 - Grading Plan - Block 28 - D02-02-24-0062
Landscape Plan2024-12-23 - Landscape Details - D02-02-24-0062
Landscape Plan2024-12-09 - Landscape Details - D02-02-24-0062
Landscape Plan2025-05-27 - Landscape Details - D02-02-24-0062
Noise Study2024-12-23 - Site Servicing, SWM, Noise, Erosion and Sediment Control Brief - D02-02-24-0062
Noise Study2024-12-23 - Noise Control Brief - D02-02-24-0062
Noise Study2024-12-09 - Noise Control Brief - D02-02-24-0062
Noise Study2025-04-10 - Site Servicing, Stormwater Management, Noise Erosion and Sediment Control Brief - D0
Planning2024-12-23 - Zoning Confirmation Report - Block 29 - D02-02-24-0062
Planning2024-12-23 - Zoning Confirmation Report - Block 28 - D02-02-24-0062
Planning2024-12-23 - Planning Rationale - D02-02-24-0062
Planning2024-12-09 - Zoning Confirmation Report - Block 29 - D02-02-24-0062
Planning2024-12-09 - Zoning Confirmation Report - Block 28 - D02-02-24-0062
Planning2024-12-09 - Planning Rationale - D02-02-24-0062
Planning2024-10-18 - Zoning Conformation Report-Block29 - D02-02-24-0062
Planning2024-10-18 - Zoning Conformation Report-Block28 - D02-02-24-0062
Planning2024-10-18 - Planning Rationale - D02-02-24-0062
Rendering2024-12-23 - Architectural Renders - D02-02-24-0062
Rendering2024-12-09 - Architectural Renders - D02-02-24-0062
Rendering2024-10-18 - Architectural Renders - Blocks 29 and 28 - D02-02-24-0062
Site Servicing2024-12-23 - Site Servicing Brief - D02-02-24-0062
Site Servicing2024-12-09 - Site Servicing Brief - D02-02-24-0062
Site Servicing2024-10-18 - Site Servicing Brief - D02-02-24-0062
Site Servicing2025-03-07 - Site Servicing Brief - D02-02-24-0062
Site Servicing2025-04-10 - Site Servicing Brief - D02-02-24-0062
Transportation Analysis2024-12-23 - Transportation Impact Assessment - D02-02-24-0062
Transportation Analysis2024-10-18 - Transportation Impact Assessment - D02-02-24-0062
Tree Information and Conservation2024-12-23 - Tree Conservation Plan - Block 30 - D02-02-24-0062
Tree Information and Conservation2024-12-23 - Landscape and Tree Conservation Plan - Block 29 - D02-02-24-0062
Tree Information and Conservation2024-12-23 - Landscape and Tree Conservation Plan - Block 28 - D02-02-24-0062
Tree Information and Conservation2024-12-23 - Geotechnical Tree Planting Recommendations - D02-02-24-0062
Tree Information and Conservation2024-12-09 - Tree Conservation Plan - Block 30 - D02-02-24-0062
Tree Information and Conservation2024-12-09 - Landscape and Tree Conservation Plan - Block 29 - D02-02-24-0062
Tree Information and Conservation2024-12-09 - Landscape and Tree Conservation Plan - Block 28 - D02-02-24-0062
Tree Information and Conservation2024-10-18 - Landscape Plan & Tree Conservation Plan, Details - Block 28 & 29 - D02-02-24-0062
Tree Information and Conservation2024-10-18 - Geotechnical Tree Planting Recommendations - D02-02-24-0062
Tree Information and Conservation2025-03-07 - Proposed Trees Review Plan - D02-02-24-0062
Tree Information and Conservation2025-05-27 - Landscape Plan & Tree Conservation Plan - Block 29 - D02-02-24-0062
Tree Information and Conservation2025-05-27 - Landscape Plan & Tree Conservation Plan - Block 28 - D02-02-24-0062
2024-12-23 - Planting Plan Phase 2 and 3 - D02-02-24-0062
2024-12-23 - Planting Plan Phase 2 & 3 - D02-02-24-0062
2024-12-23 - Master Servicing Study Update - D02-02-24-0062
2024-12-23 - Heritage Impact Assessment - D02-02-24-0062
2024-10-18 - Phase I - Environmental Site Assessment Update - D02-02-24-0062
2024-10-18 - Heritage Impact Assessment Addendum H - D02-02-24-0062
2024-10-18 - Greystone Yield Estimates 2024 - D02-02-24-0062
2024-10-18 - Area Certificate Phase 2 - D02-02-24-0062

Additional Information#

All Addresses295 Deschatelets
355 Deschatelets