535 Legget Dr. (D02-02-24-0058)

535 Legget Dr. (D02-02-24-0058) #

Summary #

Application StatusInactive
Review StatusZoning By-law in Effect
DescriptionOffice to residential Conversion to 115 residential apartments with 400m2 ground floor office.
WardWard 4 - Cathy Curry
Date Initiated2024-10-09
Last Updated2025-06-30

Renders #

  • Rendering of building from page 16 of the file '2025-01-17 - Urban Design Brief - D02-02-24-0058'
  • Rendering of building from page 8 of the file '2025-01-17 - Urban Design Brief - D02-02-24-0058'
  • Rendering of building from page 8 of the file '2024-10-09 - URBAN DESIGN BRIEF BROCHURE - D02-02-24-0058'
  • Rendering of building from page 18 of the file '2025-01-17 - Urban Design Brief - D02-02-24-0058'
  • Rendering of building from page 18 of the file '2025-01-17 - Urban Design Brief - D02-02-24-0058'
  • Rendering of building from page 12 of the file '2025-01-17 - Urban Design Brief - D02-02-24-0058'
  • Rendering of building from page 12 of the file '2025-01-17 - Urban Design Brief - D02-02-24-0058'
  • Rendering of building from page 17 of the file '2025-01-17 - Urban Design Brief - D02-02-24-0058'
  • Rendering of building from page 11 of the file '2025-01-17 - Urban Design Brief - D02-02-24-0058'
  • Rendering of building from page 11 of the file '2025-01-17 - Urban Design Brief - D02-02-24-0058'
  • Rendering of building from page 11 of the file '2025-01-17 - Urban Design Brief - D02-02-24-0058'
  • Rendering of building from page 12 of the file '2025-01-17 - Urban Design Brief - D02-02-24-0058'
  • Rendering of building from page 14 of the file '2025-01-17 - Urban Design Brief - D02-02-24-0058'
  • Rendering of building from page 14 of the file '2024-10-09 - URBAN DESIGN BRIEF BROCHURE - D02-02-24-0058'
  • Rendering of building from page 11 of the file '2025-01-17 - Urban Design Brief - D02-02-24-0058'
  • Rendering of building from page 14 of the file '2025-01-17 - Urban Design Brief - D02-02-24-0058'
  • Rendering of building from page 14 of the file '2024-12-04 - URBAN DESIGN BRIEF BROCHURE - D02-02-24-0058'
  • Rendering of building from page 7 of the file '2025-01-17 - Urban Design Brief - D02-02-24-0058'
  • Rendering of building from page 16 of the file '2025-01-17 - Urban Design Brief - D02-02-24-0058'
  • Rendering of building from page 8 of the file '2025-01-17 - Urban Design Brief - D02-02-24-0058'
  • Rendering of building from page 8 of the file '2024-10-09 - URBAN DESIGN BRIEF BROCHURE - D02-02-24-0058'
  • Rendering of building from page 18 of the file '2025-01-17 - Urban Design Brief - D02-02-24-0058'
  • Rendering of building from page 18 of the file '2025-01-17 - Urban Design Brief - D02-02-24-0058'
  • Rendering of building from page 12 of the file '2025-01-17 - Urban Design Brief - D02-02-24-0058'
  • Rendering of building from page 12 of the file '2025-01-17 - Urban Design Brief - D02-02-24-0058'
  • Rendering of building from page 17 of the file '2025-01-17 - Urban Design Brief - D02-02-24-0058'
  • Rendering of building from page 11 of the file '2025-01-17 - Urban Design Brief - D02-02-24-0058'
  • Rendering of building from page 11 of the file '2025-01-17 - Urban Design Brief - D02-02-24-0058'
  • Rendering of building from page 11 of the file '2025-01-17 - Urban Design Brief - D02-02-24-0058'
  • Rendering of building from page 12 of the file '2025-01-17 - Urban Design Brief - D02-02-24-0058'
  • Rendering of building from page 14 of the file '2025-01-17 - Urban Design Brief - D02-02-24-0058'
  • Rendering of building from page 14 of the file '2024-10-09 - URBAN DESIGN BRIEF BROCHURE - D02-02-24-0058'
  • Rendering of building from page 11 of the file '2025-01-17 - Urban Design Brief - D02-02-24-0058'
  • Rendering of building from page 14 of the file '2025-01-17 - Urban Design Brief - D02-02-24-0058'
  • Rendering of building from page 14 of the file '2024-12-04 - URBAN DESIGN BRIEF BROCHURE - D02-02-24-0058'
  • Rendering of building from page 7 of the file '2025-01-17 - Urban Design Brief - D02-02-24-0058'

Site and Floor Plans #

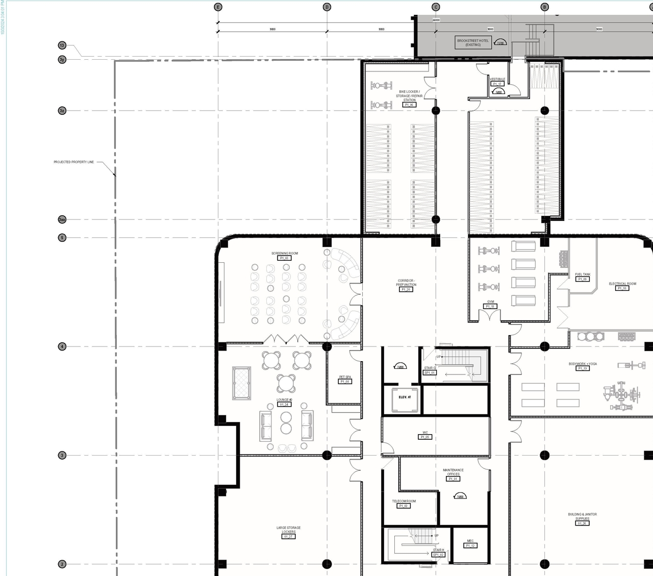
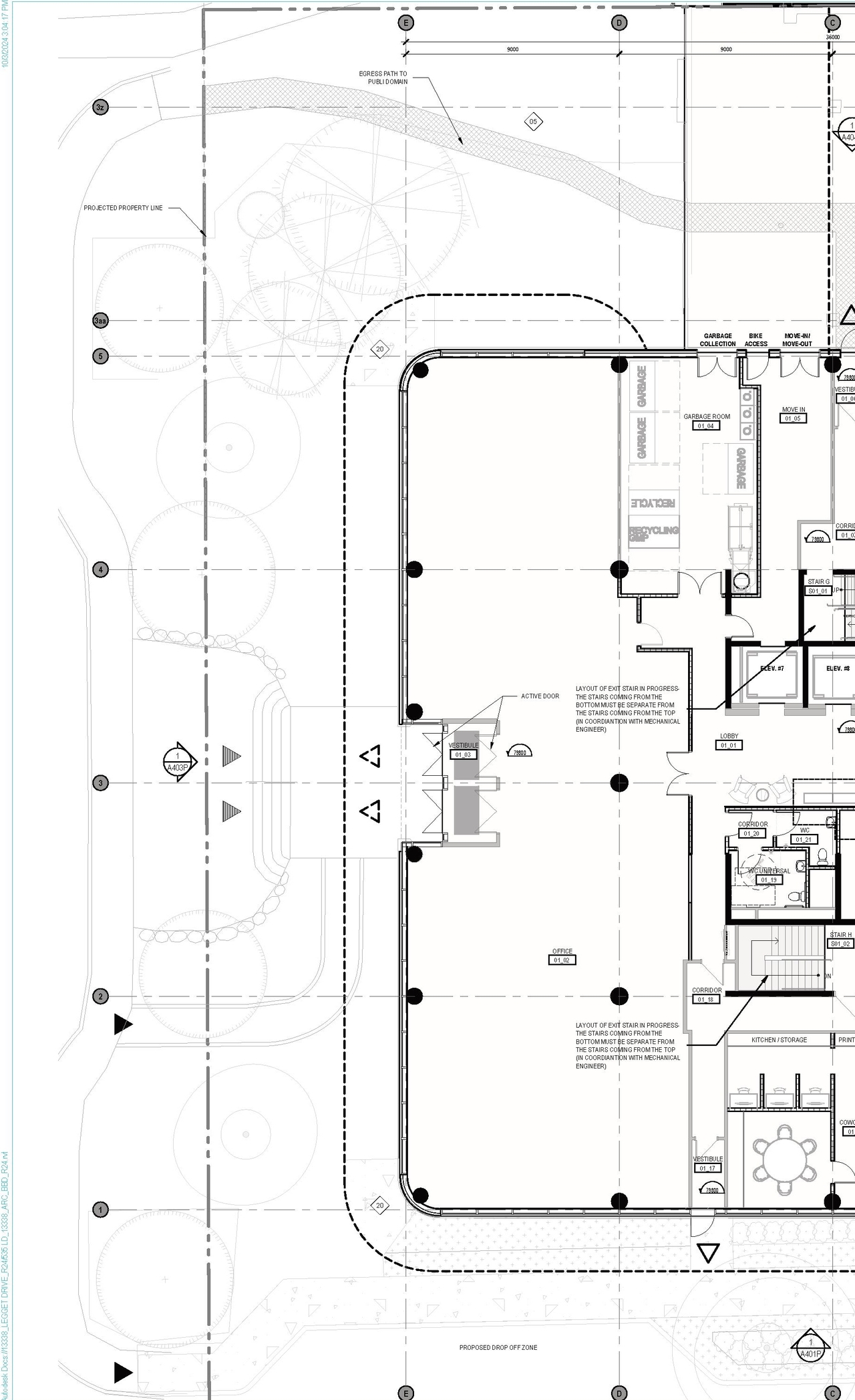
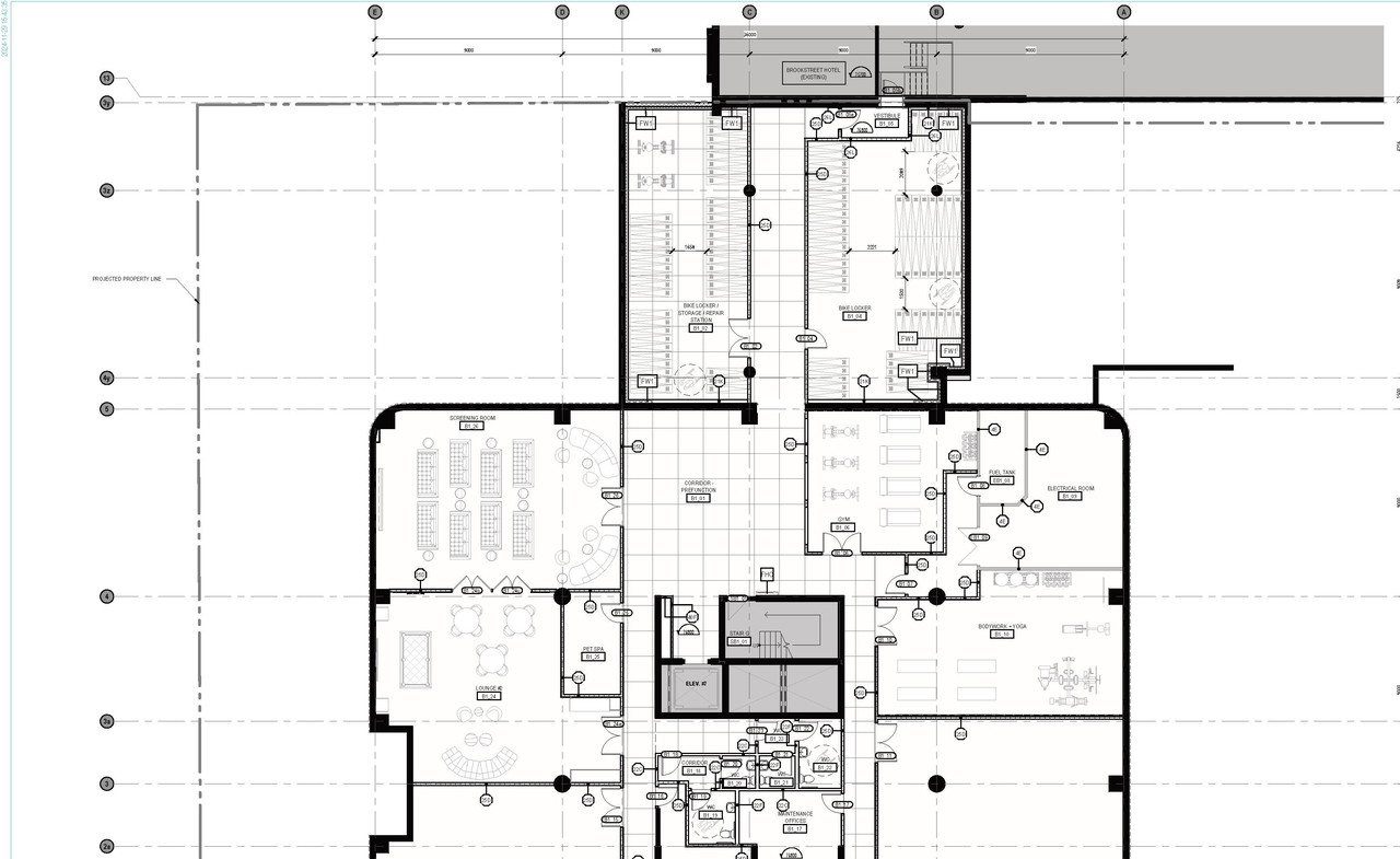
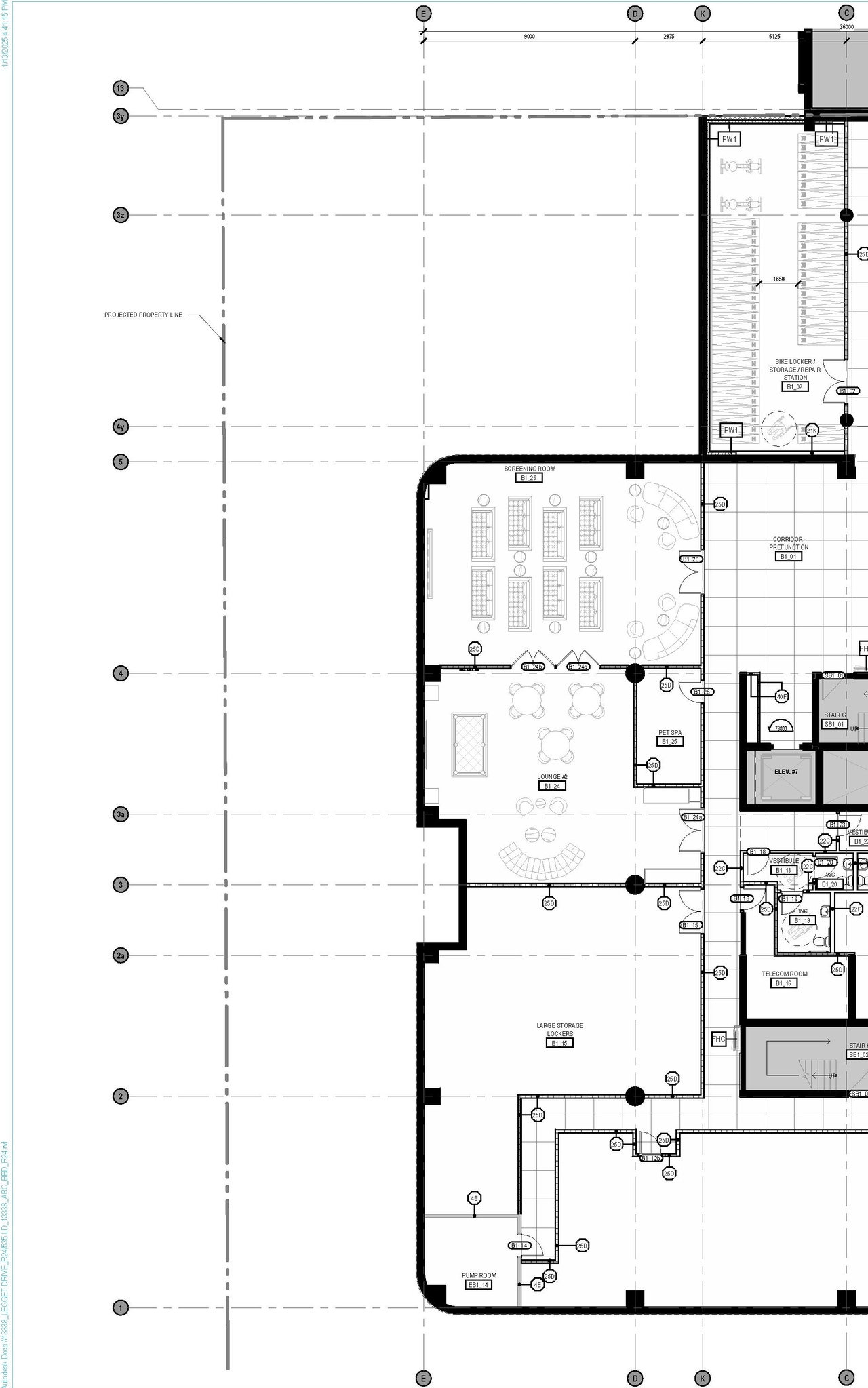
  • Floor plan for project from page 20 of the file '2025-01-17 - Urban Design Brief - D02-02-24-0058'
  • Floor plan for project from page 21 of the file '2025-01-17 - Urban Design Brief - D02-02-24-0058'
  • Construction site plan for project from page 22 of the file '2025-01-17 - Urban Design Brief - D02-02-24-0058'
  • Construction site plan for project from page 26 of the file '2025-01-17 - Urban Design Brief - D02-02-24-0058'
  • Floor plan for project from page 21 of the file '2024-12-04 - URBAN DESIGN BRIEF BROCHURE - D02-02-24-0058'
  • Construction site plan for project from page 20 of the file '2024-10-09 - URBAN DESIGN BRIEF BROCHURE - D02-02-24-0058'
  • Floor plan for project from page 20 of the file '2024-10-09 - URBAN DESIGN BRIEF BROCHURE - D02-02-24-0058'
  • Construction site plan for project from page 21 of the file '2024-10-09 - URBAN DESIGN BRIEF BROCHURE - D02-02-24-0058'
  • Floor plan for project from page 21 of the file '2024-10-09 - URBAN DESIGN BRIEF BROCHURE - D02-02-24-0058'
  • Construction site plan for project from page 22 of the file '2024-10-09 - URBAN DESIGN BRIEF BROCHURE - D02-02-24-0058'
  • Floor plan for project from page 22 of the file '2024-10-09 - URBAN DESIGN BRIEF BROCHURE - D02-02-24-0058'
  • Construction site plan for project from page 25 of the file '2024-10-09 - URBAN DESIGN BRIEF BROCHURE - D02-02-24-0058'
  • Construction site plan for project from page 25 of the file '2024-10-09 - URBAN DESIGN BRIEF BROCHURE - D02-02-24-0058'
  • Floor plan for project from page 20 of the file '2025-01-17 - Urban Design Brief - D02-02-24-0058'
  • Floor plan for project from page 21 of the file '2025-01-17 - Urban Design Brief - D02-02-24-0058'
  • Construction site plan for project from page 22 of the file '2025-01-17 - Urban Design Brief - D02-02-24-0058'
  • Construction site plan for project from page 26 of the file '2025-01-17 - Urban Design Brief - D02-02-24-0058'
  • Floor plan for project from page 21 of the file '2024-12-04 - URBAN DESIGN BRIEF BROCHURE - D02-02-24-0058'
  • Construction site plan for project from page 20 of the file '2024-10-09 - URBAN DESIGN BRIEF BROCHURE - D02-02-24-0058'
  • Floor plan for project from page 20 of the file '2024-10-09 - URBAN DESIGN BRIEF BROCHURE - D02-02-24-0058'
  • Construction site plan for project from page 21 of the file '2024-10-09 - URBAN DESIGN BRIEF BROCHURE - D02-02-24-0058'
  • Floor plan for project from page 21 of the file '2024-10-09 - URBAN DESIGN BRIEF BROCHURE - D02-02-24-0058'
  • Construction site plan for project from page 22 of the file '2024-10-09 - URBAN DESIGN BRIEF BROCHURE - D02-02-24-0058'
  • Floor plan for project from page 22 of the file '2024-10-09 - URBAN DESIGN BRIEF BROCHURE - D02-02-24-0058'
  • Construction site plan for project from page 25 of the file '2024-10-09 - URBAN DESIGN BRIEF BROCHURE - D02-02-24-0058'
  • Construction site plan for project from page 25 of the file '2024-10-09 - URBAN DESIGN BRIEF BROCHURE - D02-02-24-0058'

Documents #

TypeDocument
Adequacy Of Public Services2025-01-17 - Serviceability Report - D02-02-24-0058
Application Summary2025-02-26 - Application Summary - D02-02-24-0058
Architectural Plans2025-01-17 - General Site Plan - Projected - D02-02-24-0058
Architectural Plans2025-01-17 - General Servicing Plan - D02-02-24-0058
Architectural Plans2025-01-17 - Architectural Plans - D02-02-24-0058
Architectural Plans2024-12-04 - GENERAL SITE PLAN -D02-02-24-0058
Architectural Plans2024-12-04 - GENERAL SERVICING PLAN - D02-02-24-0058
Architectural Plans2024-12-04 - Architectural Plans - D02-02-24-0058
Architectural Plans2024-10-09 - GENERAL SITE PLAN - PROJECTED - D02-02-24-0058
Architectural Plans2024-10-09 - General Site Plan Projected - D02-02-24-0058
Architectural Plans2024-10-09 - Architectural Drawings - D02-02-24-0058
Design Brief2025-01-17 - Urban Design Brief - D02-02-24-0058
Design Brief2024-12-04 - URBAN DESIGN BRIEF BROCHURE - D02-02-24-0058
Design Brief2024-10-09 - URBAN DESIGN BRIEF BROCHURE - D02-02-24-0058
Environmental2024-10-09 - Phase II Environmental Site Assessment - D02-02-24-0058
Environmental2024-10-09 - Phase I Environmental Site Assessment - D02-02-24-0058
Erosion And Sediment Control Plan2025-01-17 - Erosion and Sediment Control Plan - D02-02-24-0058
Erosion And Sediment Control Plan2024-12-04 - EROSION AND SEDIMENT CONTROL PLAN - D02-02-24-0058
Geotechnical Report2025-01-17 - Grading Plan - D02-02-24-0058
Geotechnical Report2024-12-04 - Grading Plan - D02-02-24-0058
Landscape Plan2024-10-09 - Landscape Plans - D02-02-24-0058
Noise Study2024-10-09 - Noise Impact Feasibility Report - D02-02-24-0058
Planning2025-01-17 - Zoning Confirmation Report - D02-02-24-0058
Planning2025-01-17 - Planning Rationale - D02-02-24-0058
Planning2024-12-04 - Zoning Confirmation Report - D02-02-24-0058
Planning2024-12-04 - Planning Rationale - D02-02-24-0058
Planning2024-10-09 - Planning Rationale -D02-02-24-0058
Site Servicing2024-12-04 - Servicing Report - D02-02-24-0058
Site Servicing2024-10-09 - Servicing Report - D02-02-24-0058
Surveying2024-10-09 - Survey Plan - D02-02-24-0058
Transportation Analysis2024-10-09 - Transportation Impact Assessment - Letter - D02-02-24-0058
Tree Information and Conservation2025-01-17 - Landscape and Tree Conservation Plans - D02-02-24-0058
Tree Information and Conservation2024-12-04 - Tree Conservation Report - D02-02-24-0058
2024-12-04 - Roof drainage declaration - D02-02-24-0058
2024-10-09 -Zoning Confirmation Report - D02-02-24-0058
IDAddressLast UpdatedDate Initiated
D07-12-24-0123535 Legget Dr.2025-07-292024-10-09