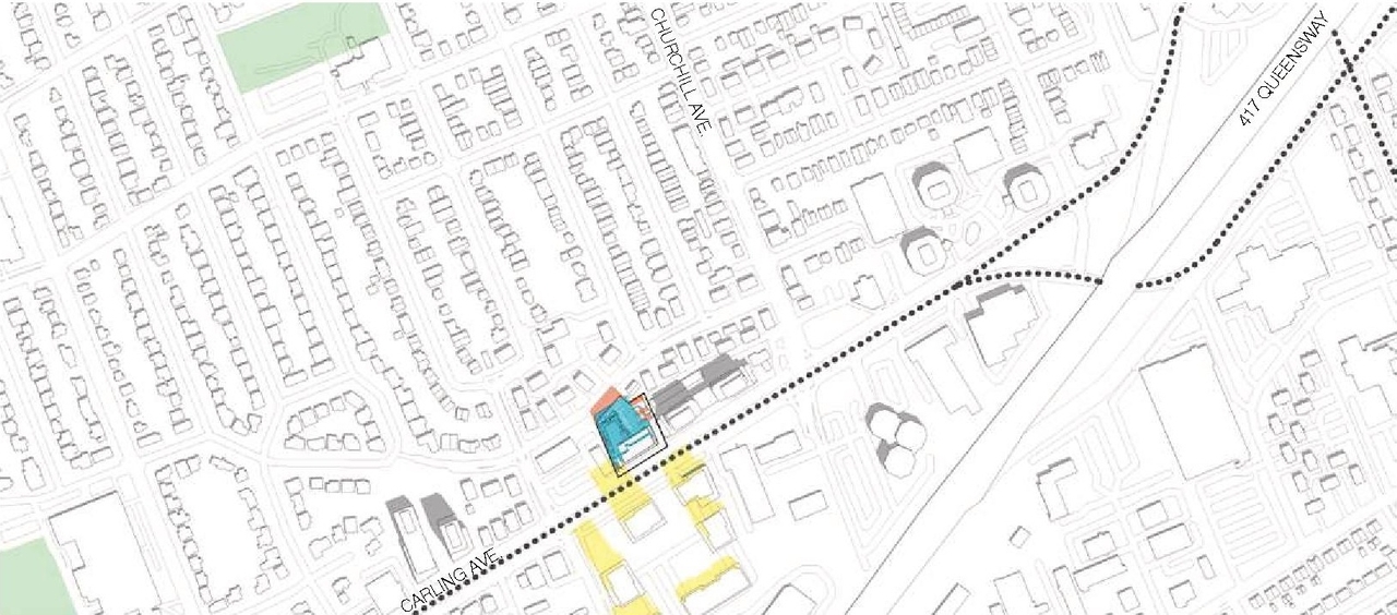
1657 Carling/386 Tillbury (D02-02-24-0032)

1657 Carling/386 Tillbury (D02-02-24-0032) #

Summary #

Application StatusInactive
Review StatusZoning By-law in Effect
DescriptionThe applicant is proposing a 28-storey high-rise residential tower massed to Carling Avenue. It will be sited on a 6 storey podium which rises to 9 storeys internal to the site and transitions down to 4 storeys towards Tillbury Ave. Greenspace is proposed fronting directly onto Tillbury Avenue.
WardWard 15 - Jeff Leiper
Date Initiated2024-07-29
Last Updated2025-10-08

Renders #

  • Rendering of building from page 18 of the file '2025-01-24 - Response to UDRP Recommendations - D02-02-24-0032'
  • Rendering of building from page 19 of the file '2025-01-24 - Response to UDRP Recommendations - D02-02-24-0032'
  • Rendering of building from page 24 of the file '2024-07-30 - Design Brief - D02-02-24-0032'
  • Rendering of building from page 17 of the file '2025-01-24 - Response to UDRP Recommendations - D02-02-24-0032'
  • Rendering of building from page 16 of the file '2025-01-24 - Response to UDRP Recommendations - D02-02-24-0032'
  • Rendering of building from page 37 of the file '2025-01-24 - Response to UDRP Recommendations - D02-02-24-0032'
  • Rendering of building from page 12 of the file '2025-01-24 - Design Brief - D02-02-24-0032'
  • Rendering of building from page 36 of the file '2025-01-24 - Response to UDRP Recommendations - D02-02-24-0032'
  • Rendering of building from page 11 of the file '2025-01-24 - Design Brief - D02-02-24-0032'
  • Rendering of building from page 16 of the file '2025-01-24 - Response to UDRP Recommendations - D02-02-24-0032'
  • Rendering of building from page 35 of the file '2025-01-24 - Response to UDRP Recommendations - D02-02-24-0032'
  • Rendering of building from page 45 of the file '2025-01-24 - Response to UDRP Recommendations - D02-02-24-0032'
  • Rendering of building from page 10 of the file '2025-01-24 - Design Brief - D02-02-24-0032'
  • Rendering of building from page 34 of the file '2025-01-24 - Response to UDRP Recommendations - D02-02-24-0032'
  • Rendering of building from page 7 of the file '2024-07-30 - Design Brief - D02-02-24-0032'
  • Rendering of building from page 13 of the file '2025-01-24 - Design Brief - D02-02-24-0032'
  • Rendering of building from page 9 of the file '2025-01-24 - Design Brief - D02-02-24-0032'
  • Rendering of building from page 35 of the file '2025-01-24 - Response to UDRP Recommendations - D02-02-24-0032'
  • Rendering of building from page 32 of the file '2025-01-24 - Response to UDRP Recommendations - D02-02-24-0032'
  • Rendering of building from page 7 of the file '2025-01-24 - Design Brief - D02-02-24-0032'
  • Rendering of building from page 21 of the file '2025-01-24 - Response to UDRP Recommendations - D02-02-24-0032'
  • Rendering of building from page 10 of the file '2025-01-24 - Design Brief - D02-02-24-0032'
  • Rendering of building from page 15 of the file '2025-01-24 - Design Brief - D02-02-24-0032'
  • Rendering of building from page 33 of the file '2025-01-24 - Response to UDRP Recommendations - D02-02-24-0032'
  • Rendering of building from page 31 of the file '2025-01-24 - Design Brief - D02-02-24-0032'
  • Rendering of building from page 6 of the file '2024-07-30 - Design Brief - D02-02-24-0032'
  • Rendering of building from page 32 of the file '2025-01-24 - Response to UDRP Recommendations - D02-02-24-0032'
  • Rendering of building from page 15 of the file '2025-01-24 - Design Brief - D02-02-24-0032'
  • Rendering of building from page 15 of the file '2025-01-24 - Design Brief - D02-02-24-0032'
  • Rendering of building from page 15 of the file '2025-01-24 - Design Brief - D02-02-24-0032'
  • Rendering of building from page 8 of the file '2025-01-24 - Design Brief - D02-02-24-0032'
  • Rendering of building from page 7 of the file '2025-01-24 - Design Brief - D02-02-24-0032'
  • Rendering of building from page 17 of the file '2025-01-24 - Design Brief - D02-02-24-0032'
  • Rendering of building from page 20 of the file '2025-01-24 - Response to UDRP Recommendations - D02-02-24-0032'
  • Rendering of building from page 9 of the file '2025-01-24 - Response to UDRP Recommendations - D02-02-24-0032'
  • Rendering of building from page 23 of the file '2024-07-30 - Design Brief - D02-02-24-0032'
  • Rendering of building from page 39 of the file '2025-01-24 - Response to UDRP Recommendations - D02-02-24-0032'
  • Rendering of building from page 29 of the file '2025-01-24 - Design Brief - D02-02-24-0032'
  • Rendering of building from page 22 of the file '2024-07-30 - Design Brief - D02-02-24-0032'
  • Rendering of building from page 28 of the file '2025-01-24 - Design Brief - D02-02-24-0032'
  • Rendering of building from page 38 of the file '2025-01-24 - Response to UDRP Recommendations - D02-02-24-0032'
  • Rendering of building from page 39 of the file '2025-01-24 - Response to UDRP Recommendations - D02-02-24-0032'
  • Rendering of building from page 22 of the file '2024-07-30 - Design Brief - D02-02-24-0032'
  • Rendering of building from page 29 of the file '2025-01-24 - Design Brief - D02-02-24-0032'
  • Rendering of building from page 38 of the file '2025-01-24 - Response to UDRP Recommendations - D02-02-24-0032'
  • Rendering of building from page 28 of the file '2025-01-24 - Design Brief - D02-02-24-0032'
  • Rendering of building from page 24 of the file '2024-07-30 - Design Brief - D02-02-24-0032'
  • Rendering of building from page 18 of the file '2025-01-24 - Response to UDRP Recommendations - D02-02-24-0032'
  • Rendering of building from page 19 of the file '2025-01-24 - Response to UDRP Recommendations - D02-02-24-0032'
  • Rendering of building from page 24 of the file '2024-07-30 - Design Brief - D02-02-24-0032'
  • Rendering of building from page 17 of the file '2025-01-24 - Response to UDRP Recommendations - D02-02-24-0032'
  • Rendering of building from page 16 of the file '2025-01-24 - Response to UDRP Recommendations - D02-02-24-0032'
  • Rendering of building from page 37 of the file '2025-01-24 - Response to UDRP Recommendations - D02-02-24-0032'
  • Rendering of building from page 12 of the file '2025-01-24 - Design Brief - D02-02-24-0032'
  • Rendering of building from page 36 of the file '2025-01-24 - Response to UDRP Recommendations - D02-02-24-0032'
  • Rendering of building from page 11 of the file '2025-01-24 - Design Brief - D02-02-24-0032'
  • Rendering of building from page 16 of the file '2025-01-24 - Response to UDRP Recommendations - D02-02-24-0032'
  • Rendering of building from page 35 of the file '2025-01-24 - Response to UDRP Recommendations - D02-02-24-0032'
  • Rendering of building from page 45 of the file '2025-01-24 - Response to UDRP Recommendations - D02-02-24-0032'
  • Rendering of building from page 10 of the file '2025-01-24 - Design Brief - D02-02-24-0032'
  • Rendering of building from page 34 of the file '2025-01-24 - Response to UDRP Recommendations - D02-02-24-0032'
  • Rendering of building from page 7 of the file '2024-07-30 - Design Brief - D02-02-24-0032'
  • Rendering of building from page 13 of the file '2025-01-24 - Design Brief - D02-02-24-0032'
  • Rendering of building from page 9 of the file '2025-01-24 - Design Brief - D02-02-24-0032'
  • Rendering of building from page 35 of the file '2025-01-24 - Response to UDRP Recommendations - D02-02-24-0032'
  • Rendering of building from page 32 of the file '2025-01-24 - Response to UDRP Recommendations - D02-02-24-0032'
  • Rendering of building from page 7 of the file '2025-01-24 - Design Brief - D02-02-24-0032'
  • Rendering of building from page 21 of the file '2025-01-24 - Response to UDRP Recommendations - D02-02-24-0032'
  • Rendering of building from page 10 of the file '2025-01-24 - Design Brief - D02-02-24-0032'
  • Rendering of building from page 15 of the file '2025-01-24 - Design Brief - D02-02-24-0032'
  • Rendering of building from page 33 of the file '2025-01-24 - Response to UDRP Recommendations - D02-02-24-0032'
  • Rendering of building from page 31 of the file '2025-01-24 - Design Brief - D02-02-24-0032'
  • Rendering of building from page 6 of the file '2024-07-30 - Design Brief - D02-02-24-0032'
  • Rendering of building from page 32 of the file '2025-01-24 - Response to UDRP Recommendations - D02-02-24-0032'
  • Rendering of building from page 15 of the file '2025-01-24 - Design Brief - D02-02-24-0032'
  • Rendering of building from page 15 of the file '2025-01-24 - Design Brief - D02-02-24-0032'
  • Rendering of building from page 15 of the file '2025-01-24 - Design Brief - D02-02-24-0032'
  • Rendering of building from page 8 of the file '2025-01-24 - Design Brief - D02-02-24-0032'
  • Rendering of building from page 7 of the file '2025-01-24 - Design Brief - D02-02-24-0032'
  • Rendering of building from page 17 of the file '2025-01-24 - Design Brief - D02-02-24-0032'
  • Rendering of building from page 20 of the file '2025-01-24 - Response to UDRP Recommendations - D02-02-24-0032'
  • Rendering of building from page 9 of the file '2025-01-24 - Response to UDRP Recommendations - D02-02-24-0032'
  • Rendering of building from page 23 of the file '2024-07-30 - Design Brief - D02-02-24-0032'
  • Rendering of building from page 39 of the file '2025-01-24 - Response to UDRP Recommendations - D02-02-24-0032'
  • Rendering of building from page 29 of the file '2025-01-24 - Design Brief - D02-02-24-0032'
  • Rendering of building from page 22 of the file '2024-07-30 - Design Brief - D02-02-24-0032'
  • Rendering of building from page 28 of the file '2025-01-24 - Design Brief - D02-02-24-0032'
  • Rendering of building from page 38 of the file '2025-01-24 - Response to UDRP Recommendations - D02-02-24-0032'
  • Rendering of building from page 39 of the file '2025-01-24 - Response to UDRP Recommendations - D02-02-24-0032'
  • Rendering of building from page 22 of the file '2024-07-30 - Design Brief - D02-02-24-0032'
  • Rendering of building from page 29 of the file '2025-01-24 - Design Brief - D02-02-24-0032'
  • Rendering of building from page 38 of the file '2025-01-24 - Response to UDRP Recommendations - D02-02-24-0032'
  • Rendering of building from page 28 of the file '2025-01-24 - Design Brief - D02-02-24-0032'
  • Rendering of building from page 24 of the file '2024-07-30 - Design Brief - D02-02-24-0032'

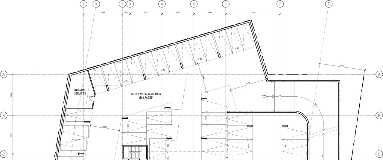
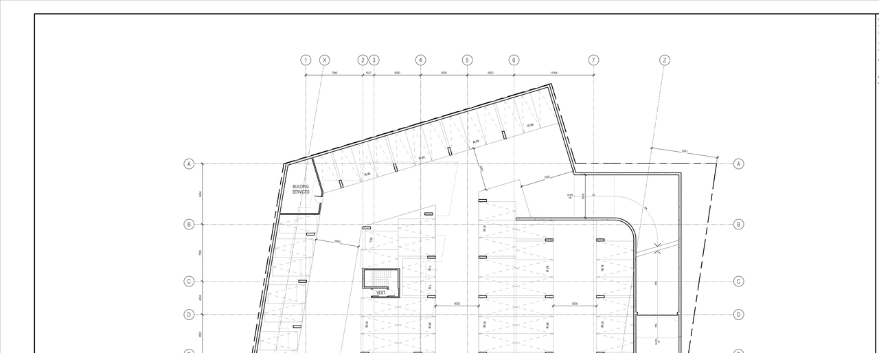
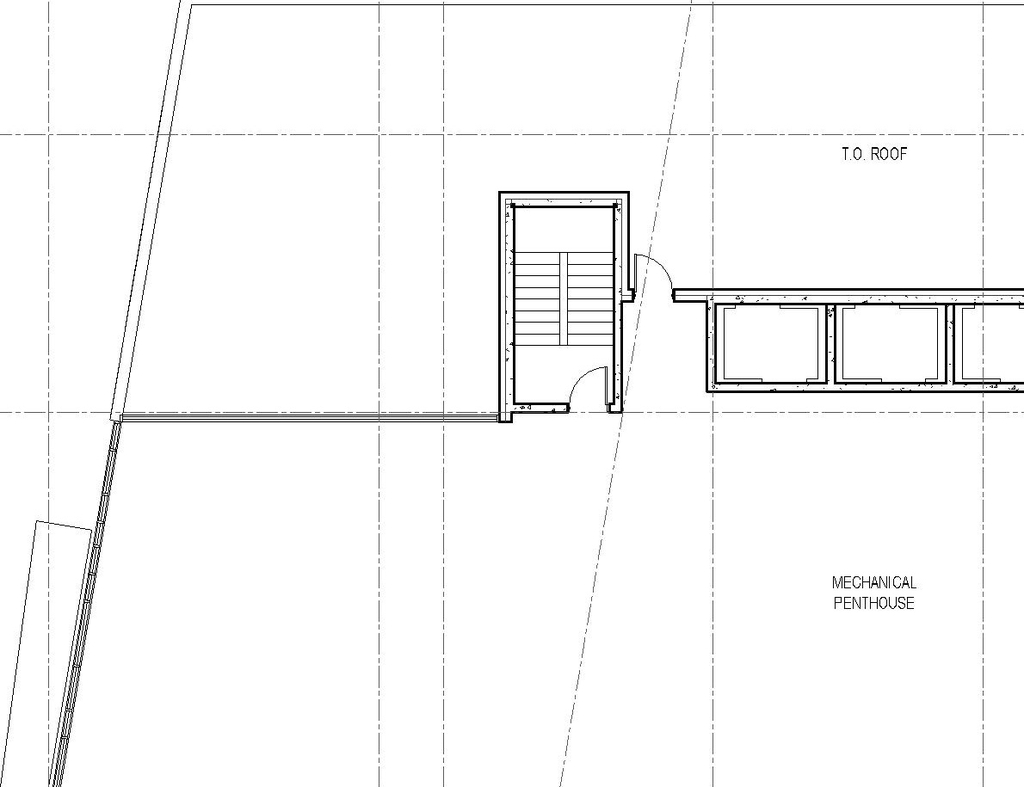
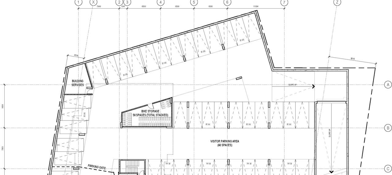
Site and Floor Plans #

  • Construction site plan for project from page 1 of the file '2025-01-24 - Floor Plans - D02-02-24-0032'
  • Construction site plan for project from page 3 of the file '2025-01-24 - Floor Plans - D02-02-24-0032'
  • Construction site plan for project from page 4 of the file '2025-01-24 - Floor Plans - D02-02-24-0032'
  • Construction site plan for project from page 15 of the file '2025-01-24 - Floor Plans - D02-02-24-0032'
  • Construction site plan for project from page 2 of the file '2025-01-24 - Design Brief - D02-02-24-0032'
  • Construction site plan for project from page 3 of the file '2025-01-24 - Design Brief - D02-02-24-0032'
  • Construction site plan for project from page 3 of the file '2025-01-24 - Design Brief - D02-02-24-0032'
  • Construction site plan for project from page 3 of the file '2025-01-24 - Design Brief - D02-02-24-0032'
  • Construction site plan for project from page 4 of the file '2025-01-24 - Design Brief - D02-02-24-0032'
  • Construction site plan for project from page 5 of the file '2025-01-24 - Design Brief - D02-02-24-0032'
  • Construction site plan for project from page 14 of the file '2025-01-24 - Design Brief - D02-02-24-0032'
  • Construction site plan for project from page 14 of the file '2025-01-24 - Design Brief - D02-02-24-0032'
  • Construction site plan for project from page 18 of the file '2025-01-24 - Design Brief - D02-02-24-0032'
  • Floor plan for project from page 18 of the file '2025-01-24 - Design Brief - D02-02-24-0032'
  • Construction site plan for project from page 31 of the file '2025-01-24 - Design Brief - D02-02-24-0032'
  • Construction site plan for project from page 32 of the file '2025-01-24 - Design Brief - D02-02-24-0032'
  • Construction site plan for project from page 32 of the file '2025-01-24 - Design Brief - D02-02-24-0032'
  • Construction site plan for project from page 32 of the file '2025-01-24 - Design Brief - D02-02-24-0032'
  • Construction site plan for project from page 32 of the file '2025-01-24 - Design Brief - D02-02-24-0032'
  • Construction site plan for project from page 33 of the file '2025-01-24 - Design Brief - D02-02-24-0032'
  • Construction site plan for project from page 33 of the file '2025-01-24 - Design Brief - D02-02-24-0032'
  • Construction site plan for project from page 33 of the file '2025-01-24 - Design Brief - D02-02-24-0032'
  • Construction site plan for project from page 33 of the file '2025-01-24 - Design Brief - D02-02-24-0032'
  • Construction site plan for project from page 33 of the file '2025-01-24 - Design Brief - D02-02-24-0032'
  • Construction site plan for project from page 33 of the file '2025-01-24 - Design Brief - D02-02-24-0032'
  • Construction site plan for project from page 33 of the file '2025-01-24 - Design Brief - D02-02-24-0032'
  • Construction site plan for project from page 34 of the file '2025-01-24 - Design Brief - D02-02-24-0032'
  • Construction site plan for project from page 34 of the file '2025-01-24 - Design Brief - D02-02-24-0032'
  • Construction site plan for project from page 34 of the file '2025-01-24 - Design Brief - D02-02-24-0032'
  • Construction site plan for project from page 34 of the file '2025-01-24 - Design Brief - D02-02-24-0032'
  • Construction site plan for project from page 34 of the file '2025-01-24 - Design Brief - D02-02-24-0032'
  • Construction site plan for project from page 34 of the file '2025-01-24 - Design Brief - D02-02-24-0032'
  • Construction site plan for project from page 34 of the file '2025-01-24 - Design Brief - D02-02-24-0032'
  • Construction site plan for project from page 34 of the file '2025-01-24 - Design Brief - D02-02-24-0032'
  • Construction site plan for project from page 34 of the file '2025-01-24 - Design Brief - D02-02-24-0032'
  • Construction site plan for project from page 34 of the file '2025-01-24 - Design Brief - D02-02-24-0032'
  • Construction site plan for project from page 35 of the file '2025-01-24 - Design Brief - D02-02-24-0032'
  • Construction site plan for project from page 35 of the file '2025-01-24 - Design Brief - D02-02-24-0032'
  • Construction site plan for project from page 35 of the file '2025-01-24 - Design Brief - D02-02-24-0032'
  • Construction site plan for project from page 35 of the file '2025-01-24 - Design Brief - D02-02-24-0032'
  • Construction site plan for project from page 35 of the file '2025-01-24 - Design Brief - D02-02-24-0032'
  • Construction site plan for project from page 35 of the file '2025-01-24 - Design Brief - D02-02-24-0032'
  • Construction site plan for project from page 35 of the file '2025-01-24 - Design Brief - D02-02-24-0032'
  • Construction site plan for project from page 35 of the file '2025-01-24 - Design Brief - D02-02-24-0032'
  • Construction site plan for project from page 35 of the file '2025-01-24 - Design Brief - D02-02-24-0032'
  • Construction site plan for project from page 35 of the file '2025-01-24 - Design Brief - D02-02-24-0032'
  • Construction site plan for project from page 35 of the file '2025-01-24 - Design Brief - D02-02-24-0032'
  • Construction site plan for project from page 35 of the file '2025-01-24 - Design Brief - D02-02-24-0032'
  • Construction site plan for project from page 36 of the file '2025-01-24 - Design Brief - D02-02-24-0032'
  • Construction site plan for project from page 36 of the file '2025-01-24 - Design Brief - D02-02-24-0032'
  • Construction site plan for project from page 36 of the file '2025-01-24 - Design Brief - D02-02-24-0032'
  • Construction site plan for project from page 36 of the file '2025-01-24 - Design Brief - D02-02-24-0032'
  • Construction site plan for project from page 36 of the file '2025-01-24 - Design Brief - D02-02-24-0032'
  • Construction site plan for project from page 36 of the file '2025-01-24 - Design Brief - D02-02-24-0032'
  • Construction site plan for project from page 36 of the file '2025-01-24 - Design Brief - D02-02-24-0032'
  • Construction site plan for project from page 36 of the file '2025-01-24 - Design Brief - D02-02-24-0032'
  • Construction site plan for project from page 36 of the file '2025-01-24 - Design Brief - D02-02-24-0032'
  • Construction site plan for project from page 36 of the file '2025-01-24 - Design Brief - D02-02-24-0032'
  • Construction site plan for project from page 36 of the file '2025-01-24 - Design Brief - D02-02-24-0032'
  • Construction site plan for project from page 36 of the file '2025-01-24 - Design Brief - D02-02-24-0032'
  • Construction site plan for project from page 36 of the file '2025-01-24 - Design Brief - D02-02-24-0032'
  • Construction site plan for project from page 36 of the file '2025-01-24 - Design Brief - D02-02-24-0032'
  • Floor plan for project from page 12 of the file '2024-07-30 - Design Brief - D02-02-24-0032'
  • Construction site plan for project from page 25 of the file '2024-07-30 - Design Brief - D02-02-24-0032'
  • Construction site plan for project from page 26 of the file '2024-07-30 - Design Brief - D02-02-24-0032'
  • Construction site plan for project from page 5 of the file '2025-01-24 - Response to UDRP Recommendations - D02-02-24-0032'
  • Construction site plan for project from page 12 of the file '2025-01-24 - Response to UDRP Recommendations - D02-02-24-0032'
  • Construction site plan for project from page 13 of the file '2025-01-24 - Response to UDRP Recommendations - D02-02-24-0032'
  • Construction site plan for project from page 13 of the file '2025-01-24 - Response to UDRP Recommendations - D02-02-24-0032'
  • Construction site plan for project from page 18 of the file '2025-01-24 - Response to UDRP Recommendations - D02-02-24-0032'
  • Floor plan for project from page 22 of the file '2025-01-24 - Response to UDRP Recommendations - D02-02-24-0032'
  • Floor plan for project from page 26 of the file '2025-01-24 - Response to UDRP Recommendations - D02-02-24-0032'
  • Construction site plan for project from page 40 of the file '2025-01-24 - Response to UDRP Recommendations - D02-02-24-0032'
  • Construction site plan for project from page 40 of the file '2025-01-24 - Response to UDRP Recommendations - D02-02-24-0032'
  • Construction site plan for project from page 40 of the file '2025-01-24 - Response to UDRP Recommendations - D02-02-24-0032'
  • Construction site plan for project from page 40 of the file '2025-01-24 - Response to UDRP Recommendations - D02-02-24-0032'
  • Construction site plan for project from page 40 of the file '2025-01-24 - Response to UDRP Recommendations - D02-02-24-0032'
  • Construction site plan for project from page 40 of the file '2025-01-24 - Response to UDRP Recommendations - D02-02-24-0032'
  • Construction site plan for project from page 1 of the file '2025-01-24 - Floor Plans - D02-02-24-0032'
  • Construction site plan for project from page 3 of the file '2025-01-24 - Floor Plans - D02-02-24-0032'
  • Construction site plan for project from page 4 of the file '2025-01-24 - Floor Plans - D02-02-24-0032'
  • Construction site plan for project from page 15 of the file '2025-01-24 - Floor Plans - D02-02-24-0032'
  • Construction site plan for project from page 2 of the file '2025-01-24 - Design Brief - D02-02-24-0032'
  • Construction site plan for project from page 3 of the file '2025-01-24 - Design Brief - D02-02-24-0032'
  • Construction site plan for project from page 3 of the file '2025-01-24 - Design Brief - D02-02-24-0032'
  • Construction site plan for project from page 3 of the file '2025-01-24 - Design Brief - D02-02-24-0032'
  • Construction site plan for project from page 4 of the file '2025-01-24 - Design Brief - D02-02-24-0032'
  • Construction site plan for project from page 5 of the file '2025-01-24 - Design Brief - D02-02-24-0032'
  • Construction site plan for project from page 14 of the file '2025-01-24 - Design Brief - D02-02-24-0032'
  • Construction site plan for project from page 14 of the file '2025-01-24 - Design Brief - D02-02-24-0032'
  • Construction site plan for project from page 18 of the file '2025-01-24 - Design Brief - D02-02-24-0032'
  • Floor plan for project from page 18 of the file '2025-01-24 - Design Brief - D02-02-24-0032'
  • Construction site plan for project from page 31 of the file '2025-01-24 - Design Brief - D02-02-24-0032'
  • Construction site plan for project from page 32 of the file '2025-01-24 - Design Brief - D02-02-24-0032'
  • Construction site plan for project from page 32 of the file '2025-01-24 - Design Brief - D02-02-24-0032'
  • Construction site plan for project from page 32 of the file '2025-01-24 - Design Brief - D02-02-24-0032'
  • Construction site plan for project from page 32 of the file '2025-01-24 - Design Brief - D02-02-24-0032'
  • Construction site plan for project from page 33 of the file '2025-01-24 - Design Brief - D02-02-24-0032'
  • Construction site plan for project from page 33 of the file '2025-01-24 - Design Brief - D02-02-24-0032'
  • Construction site plan for project from page 33 of the file '2025-01-24 - Design Brief - D02-02-24-0032'
  • Construction site plan for project from page 33 of the file '2025-01-24 - Design Brief - D02-02-24-0032'
  • Construction site plan for project from page 33 of the file '2025-01-24 - Design Brief - D02-02-24-0032'
  • Construction site plan for project from page 33 of the file '2025-01-24 - Design Brief - D02-02-24-0032'
  • Construction site plan for project from page 33 of the file '2025-01-24 - Design Brief - D02-02-24-0032'
  • Construction site plan for project from page 34 of the file '2025-01-24 - Design Brief - D02-02-24-0032'
  • Construction site plan for project from page 34 of the file '2025-01-24 - Design Brief - D02-02-24-0032'
  • Construction site plan for project from page 34 of the file '2025-01-24 - Design Brief - D02-02-24-0032'
  • Construction site plan for project from page 34 of the file '2025-01-24 - Design Brief - D02-02-24-0032'
  • Construction site plan for project from page 34 of the file '2025-01-24 - Design Brief - D02-02-24-0032'
  • Construction site plan for project from page 34 of the file '2025-01-24 - Design Brief - D02-02-24-0032'
  • Construction site plan for project from page 34 of the file '2025-01-24 - Design Brief - D02-02-24-0032'
  • Construction site plan for project from page 34 of the file '2025-01-24 - Design Brief - D02-02-24-0032'
  • Construction site plan for project from page 34 of the file '2025-01-24 - Design Brief - D02-02-24-0032'
  • Construction site plan for project from page 34 of the file '2025-01-24 - Design Brief - D02-02-24-0032'
  • Construction site plan for project from page 35 of the file '2025-01-24 - Design Brief - D02-02-24-0032'
  • Construction site plan for project from page 35 of the file '2025-01-24 - Design Brief - D02-02-24-0032'
  • Construction site plan for project from page 35 of the file '2025-01-24 - Design Brief - D02-02-24-0032'
  • Construction site plan for project from page 35 of the file '2025-01-24 - Design Brief - D02-02-24-0032'
  • Construction site plan for project from page 35 of the file '2025-01-24 - Design Brief - D02-02-24-0032'
  • Construction site plan for project from page 35 of the file '2025-01-24 - Design Brief - D02-02-24-0032'
  • Construction site plan for project from page 35 of the file '2025-01-24 - Design Brief - D02-02-24-0032'
  • Construction site plan for project from page 35 of the file '2025-01-24 - Design Brief - D02-02-24-0032'
  • Construction site plan for project from page 35 of the file '2025-01-24 - Design Brief - D02-02-24-0032'
  • Construction site plan for project from page 35 of the file '2025-01-24 - Design Brief - D02-02-24-0032'
  • Construction site plan for project from page 35 of the file '2025-01-24 - Design Brief - D02-02-24-0032'
  • Construction site plan for project from page 35 of the file '2025-01-24 - Design Brief - D02-02-24-0032'
  • Construction site plan for project from page 36 of the file '2025-01-24 - Design Brief - D02-02-24-0032'
  • Construction site plan for project from page 36 of the file '2025-01-24 - Design Brief - D02-02-24-0032'
  • Construction site plan for project from page 36 of the file '2025-01-24 - Design Brief - D02-02-24-0032'
  • Construction site plan for project from page 36 of the file '2025-01-24 - Design Brief - D02-02-24-0032'
  • Construction site plan for project from page 36 of the file '2025-01-24 - Design Brief - D02-02-24-0032'
  • Construction site plan for project from page 36 of the file '2025-01-24 - Design Brief - D02-02-24-0032'
  • Construction site plan for project from page 36 of the file '2025-01-24 - Design Brief - D02-02-24-0032'
  • Construction site plan for project from page 36 of the file '2025-01-24 - Design Brief - D02-02-24-0032'
  • Construction site plan for project from page 36 of the file '2025-01-24 - Design Brief - D02-02-24-0032'
  • Construction site plan for project from page 36 of the file '2025-01-24 - Design Brief - D02-02-24-0032'
  • Construction site plan for project from page 36 of the file '2025-01-24 - Design Brief - D02-02-24-0032'
  • Construction site plan for project from page 36 of the file '2025-01-24 - Design Brief - D02-02-24-0032'
  • Construction site plan for project from page 36 of the file '2025-01-24 - Design Brief - D02-02-24-0032'
  • Construction site plan for project from page 36 of the file '2025-01-24 - Design Brief - D02-02-24-0032'
  • Floor plan for project from page 12 of the file '2024-07-30 - Design Brief - D02-02-24-0032'
  • Construction site plan for project from page 25 of the file '2024-07-30 - Design Brief - D02-02-24-0032'
  • Construction site plan for project from page 26 of the file '2024-07-30 - Design Brief - D02-02-24-0032'
  • Construction site plan for project from page 5 of the file '2025-01-24 - Response to UDRP Recommendations - D02-02-24-0032'
  • Construction site plan for project from page 12 of the file '2025-01-24 - Response to UDRP Recommendations - D02-02-24-0032'
  • Construction site plan for project from page 13 of the file '2025-01-24 - Response to UDRP Recommendations - D02-02-24-0032'
  • Construction site plan for project from page 13 of the file '2025-01-24 - Response to UDRP Recommendations - D02-02-24-0032'
  • Construction site plan for project from page 18 of the file '2025-01-24 - Response to UDRP Recommendations - D02-02-24-0032'
  • Floor plan for project from page 22 of the file '2025-01-24 - Response to UDRP Recommendations - D02-02-24-0032'
  • Floor plan for project from page 26 of the file '2025-01-24 - Response to UDRP Recommendations - D02-02-24-0032'
  • Construction site plan for project from page 40 of the file '2025-01-24 - Response to UDRP Recommendations - D02-02-24-0032'
  • Construction site plan for project from page 40 of the file '2025-01-24 - Response to UDRP Recommendations - D02-02-24-0032'
  • Construction site plan for project from page 40 of the file '2025-01-24 - Response to UDRP Recommendations - D02-02-24-0032'
  • Construction site plan for project from page 40 of the file '2025-01-24 - Response to UDRP Recommendations - D02-02-24-0032'
  • Construction site plan for project from page 40 of the file '2025-01-24 - Response to UDRP Recommendations - D02-02-24-0032'
  • Construction site plan for project from page 40 of the file '2025-01-24 - Response to UDRP Recommendations - D02-02-24-0032'

Files #

TypeNameLinks
Adequacy Of Public Services2025-06-04 - Assessment of Adequacy of Public Services Report - D02-02-24-0032Download PDF
Adequacy Of Public Services2025-01-24 - Serviceability Report - D02-02-24-0032Download PDF
Adequacy Of Public Services2024-07-30 - Serviceability Report - D02-02-24-0032Download PDF
Application Summary2025-06-25 - Application Summary - D02-02-24-0032Download PDF
Architectural Plans2025-06-04 - Architectural Package - D02-02-24-0032Download PDF
Architectural Plans2025-01-24 - CONCEPTUAL SERVICING PLAN - D02-02-24-0032Download PDF
Architectural Plans2025-01-24 - SITE LANDSCAPE PLAN - D02-02-24-0032Download PDF
Architectural Plans2024-07-30 - Architectural Plans - D02-02-24-0032Download PDF
Design Brief2025-01-24 - Design Brief - D02-02-24-0032Download PDF
Design Brief2024-07-30 - Design Brief - D02-02-24-0032Download PDF
Design Brief2025-01-24 - Response to UDRP Recommendations - D02-02-24-0032Download PDF
Environmental2025-01-24 - Phase Two Environmental Site Assessment - D02-02-24-0032Download PDF
Environmental2025-01-24 - Phase 1 Environmental Site Assessment - D02-02-24-0032Download PDF
Environmental2024-07-30 - Phase II ESA Update - D02-02-24-0032Download PDF
Environmental2024-07-30 - Phase I ESA - D02-02-24-0032Download PDF
Floor Plan2025-01-24 - Floor Plans - D02-02-24-0032Download PDF
Geotechnical Report2025-01-24 - Geotechnical Investigation - D02-02-24-0032Download PDF
Geotechnical Report2024-07-30 - Geotechnical Investigation Seismic Report - D02-02-24-0032Download PDF
Geotechnical Report2024-07-30 - Geotechnical Investigation - D02-02-24-0032Download PDF
Landscape Plan2025-06-04 - Landscape Plan - D02-02-24-0032Download PDF
Noise Study2025-01-24 - Transportation Noise and Vibration - D02-02-24-0032Download PDF
Noise Study2025-01-24 - Noise Addendum Letter - D02-02-24-0032Download PDF
Noise Study2024-07-30 - Transportation Noise & Vibration Assessment - D02-02-24-0032Download PDF
Planning2025-06-04 - Zoning Confirmation Report - D02-02-24-0032Download PDF
Planning2025-06-04 - Planning Rationale - D02-02-24-0032Download PDF
Planning2025-01-24 - Zoning Confirmation Report - D02-02-24-0032Download PDF
Planning2025-01-24 - Planning Rationale -D02-02-24-0032Download PDF
Planning2024-07-30 - Planning Rationale - D02-02-24-0032Download PDF
Surveying2025-01-24 - Topographic Plan of Survey - D02-02-24-0032Download PDF
Surveying2024-07-30 - Topo Plan of Survey - D02-02-24-0032Download PDF
Transportation Analysis2025-06-04 - Transportation Impact Assessment - D02-02-24-0032Download PDF
Transportation Analysis2025-01-24 - Transportation Impact Assessment - D02-02-24-0032Download PDF
Transportation Analysis2024-07-30 - TIA Strategy Report - D02-02-24-0032Download PDF
Tree Information and Conservation2025-01-24 - Tree Conservation Report - D02-02-24-0032Download PDF
Tree Information and Conservation2024-07-30 - Tree Conservation Report - D02-02-24-0032Download PDF
Wind Study2025-01-24 - Pedestrian Level Wind Study - D02-02-24-0032Download PDF
Wind Study2024-07-30 - Pedestrian Level Wind Study - D02-02-24-0032Download PDF