1034 Mcgarry (D02-02-24-0017)

1034 Mcgarry (D02-02-24-0017) #

Summary #

Application StatusFile Pending
Review StatusApplication File Pending
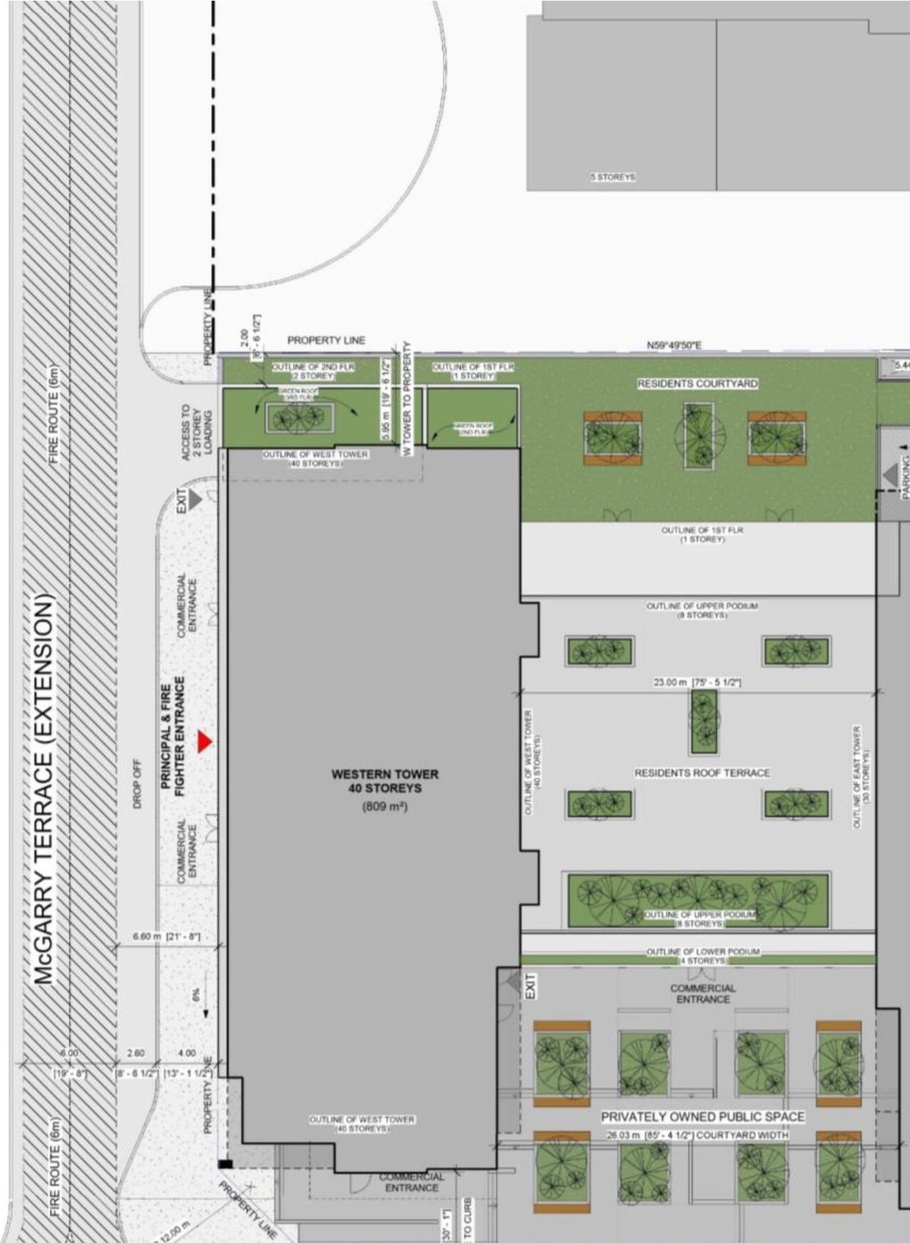
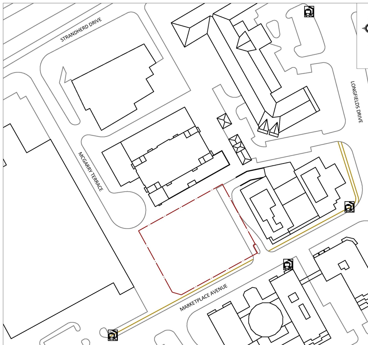
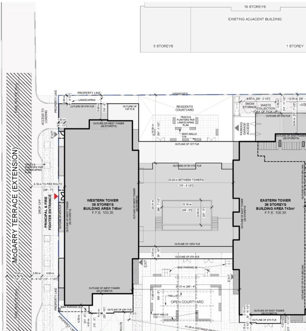
DescriptionThe City of Ottawa has received an Official Plan and Zoning By-law Amendment application to construct two high-rise, mixed-use towers (26- and 35 storeys) with underground vehicular and bicycle parking spaces, and a public courtyard.
WardWard 3 - David Hill
Date Initiated2024-06-19
Last Updated2024-08-20

Renders #

  • Rendering of building from page 11 of the file '2024-06-19 - Urban Design Review Panel Report - D02-02-24-0017'
  • Rendering of building from page 24 of the file '2024-06-19 - Urban Design Review Panel Report - D02-02-24-0017'
  • Rendering of building from page 24 of the file '2024-06-19 - Urban Design Review Panel Report - D02-02-24-0017'
  • Rendering of building from page 25 of the file '2024-06-19 - Design Brief - D02-02-24-0017'
  • Rendering of building from page 17 of the file '2024-06-19 - Design Brief - D02-02-24-0017'
  • Rendering of building from page 26 of the file '2024-06-19 - Urban Design Review Panel Report - D02-02-24-0017'
  • Rendering of building from page 25 of the file '2024-06-19 - Design Brief - D02-02-24-0017'
  • Rendering of building from page 29 of the file '2024-06-19 - Design Brief - D02-02-24-0017'
  • Rendering of building from page 23 of the file '2024-06-19 - Design Brief - D02-02-24-0017'
  • Rendering of building from page 27 of the file '2024-06-19 - Urban Design Review Panel Report - D02-02-24-0017'
  • Rendering of building from page 28 of the file '2024-06-19 - Urban Design Review Panel Report - D02-02-24-0017'
  • Rendering of building from page 23 of the file '2024-06-19 - Design Brief - D02-02-24-0017'
  • Rendering of building from page 21 of the file '2024-06-19 - Urban Design Review Panel Report - D02-02-24-0017'
  • Rendering of building from page 29 of the file '2024-06-19 - Urban Design Review Panel Report - D02-02-24-0017'
  • Rendering of building from page 26 of the file '2024-06-19 - Urban Design Review Panel Report - D02-02-24-0017'
  • Rendering of building from page 22 of the file '2024-06-19 - Urban Design Review Panel Report - D02-02-24-0017'
  • Rendering of building from page 29 of the file '2024-06-19 - Urban Design Review Panel Report - D02-02-24-0017'
  • Rendering of building from page 23 of the file '2024-06-19 - Design Brief - D02-02-24-0017'
  • Rendering of building from page 27 of the file '2024-06-19 - Urban Design Review Panel Report - D02-02-24-0017'
  • Rendering of building from page 1 of the file '2024-06-19 - Design Brief - D02-02-24-0017'
  • Rendering of building from page 26 of the file '2024-06-19 - Design Brief - D02-02-24-0017'
  • Rendering of building from page 28 of the file '2024-06-19 - Design Brief - D02-02-24-0017'
  • Rendering of building from page 30 of the file '2024-06-19 - Design Brief - D02-02-24-0017'
  • Rendering of building from page 20 of the file '2024-06-19 - Urban Design Review Panel Report - D02-02-24-0017'
  • Rendering of building from page 21 of the file '2024-06-19 - Design Brief - D02-02-24-0017'
  • Rendering of building from page 2 of the file '2024-06-19 - Perspectives - D02-02-24-0017'
  • Rendering of building from page 11 of the file '2024-06-19 - Urban Design Review Panel Report - D02-02-24-0017'
  • Rendering of building from page 21 of the file '2024-06-19 - Urban Design Review Panel Report - D02-02-24-0017'
  • Rendering of building from page 29 of the file '2024-06-19 - Urban Design Review Panel Report - D02-02-24-0017'
  • Rendering of building from page 51 of the file '2024-06-19 - Design Brief - D02-02-24-0017'
  • Rendering of building from page 22 of the file '2024-06-19 - Urban Design Review Panel Report - D02-02-24-0017'
  • Rendering of building from page 22 of the file '2024-06-19 - Urban Design Review Panel Report - D02-02-24-0017'
  • Rendering of building from page 11 of the file '2024-06-19 - Urban Design Review Panel Report - D02-02-24-0017'
  • Rendering of building from page 24 of the file '2024-06-19 - Urban Design Review Panel Report - D02-02-24-0017'
  • Rendering of building from page 24 of the file '2024-06-19 - Urban Design Review Panel Report - D02-02-24-0017'
  • Rendering of building from page 25 of the file '2024-06-19 - Design Brief - D02-02-24-0017'
  • Rendering of building from page 17 of the file '2024-06-19 - Design Brief - D02-02-24-0017'
  • Rendering of building from page 26 of the file '2024-06-19 - Urban Design Review Panel Report - D02-02-24-0017'
  • Rendering of building from page 25 of the file '2024-06-19 - Design Brief - D02-02-24-0017'
  • Rendering of building from page 29 of the file '2024-06-19 - Design Brief - D02-02-24-0017'
  • Rendering of building from page 23 of the file '2024-06-19 - Design Brief - D02-02-24-0017'
  • Rendering of building from page 27 of the file '2024-06-19 - Urban Design Review Panel Report - D02-02-24-0017'
  • Rendering of building from page 28 of the file '2024-06-19 - Urban Design Review Panel Report - D02-02-24-0017'
  • Rendering of building from page 23 of the file '2024-06-19 - Design Brief - D02-02-24-0017'
  • Rendering of building from page 21 of the file '2024-06-19 - Urban Design Review Panel Report - D02-02-24-0017'
  • Rendering of building from page 29 of the file '2024-06-19 - Urban Design Review Panel Report - D02-02-24-0017'
  • Rendering of building from page 26 of the file '2024-06-19 - Urban Design Review Panel Report - D02-02-24-0017'
  • Rendering of building from page 22 of the file '2024-06-19 - Urban Design Review Panel Report - D02-02-24-0017'
  • Rendering of building from page 29 of the file '2024-06-19 - Urban Design Review Panel Report - D02-02-24-0017'
  • Rendering of building from page 23 of the file '2024-06-19 - Design Brief - D02-02-24-0017'
  • Rendering of building from page 27 of the file '2024-06-19 - Urban Design Review Panel Report - D02-02-24-0017'
  • Rendering of building from page 1 of the file '2024-06-19 - Design Brief - D02-02-24-0017'
  • Rendering of building from page 26 of the file '2024-06-19 - Design Brief - D02-02-24-0017'
  • Rendering of building from page 28 of the file '2024-06-19 - Design Brief - D02-02-24-0017'
  • Rendering of building from page 30 of the file '2024-06-19 - Design Brief - D02-02-24-0017'
  • Rendering of building from page 20 of the file '2024-06-19 - Urban Design Review Panel Report - D02-02-24-0017'
  • Rendering of building from page 21 of the file '2024-06-19 - Design Brief - D02-02-24-0017'
  • Rendering of building from page 2 of the file '2024-06-19 - Perspectives - D02-02-24-0017'
  • Rendering of building from page 11 of the file '2024-06-19 - Urban Design Review Panel Report - D02-02-24-0017'
  • Rendering of building from page 21 of the file '2024-06-19 - Urban Design Review Panel Report - D02-02-24-0017'
  • Rendering of building from page 29 of the file '2024-06-19 - Urban Design Review Panel Report - D02-02-24-0017'
  • Rendering of building from page 51 of the file '2024-06-19 - Design Brief - D02-02-24-0017'
  • Rendering of building from page 22 of the file '2024-06-19 - Urban Design Review Panel Report - D02-02-24-0017'
  • Rendering of building from page 22 of the file '2024-06-19 - Urban Design Review Panel Report - D02-02-24-0017'

Site and Floor Plans #

  • Construction site plan for project from page 11 of the file '2024-06-19 - Urban Design Review Panel Report - D02-02-24-0017'
  • Construction site plan for project from page 13 of the file '2024-06-19 - Urban Design Review Panel Report - D02-02-24-0017'
  • Construction site plan for project from page 13 of the file '2024-06-19 - Urban Design Review Panel Report - D02-02-24-0017'
  • Construction site plan for project from page 14 of the file '2024-06-19 - Urban Design Review Panel Report - D02-02-24-0017'
  • Construction site plan for project from page 14 of the file '2024-06-19 - Urban Design Review Panel Report - D02-02-24-0017'
  • Construction site plan for project from page 14 of the file '2024-06-19 - Urban Design Review Panel Report - D02-02-24-0017'
  • Construction site plan for project from page 15 of the file '2024-06-19 - Urban Design Review Panel Report - D02-02-24-0017'
  • Construction site plan for project from page 16 of the file '2024-06-19 - Urban Design Review Panel Report - D02-02-24-0017'
  • Construction site plan for project from page 17 of the file '2024-06-19 - Urban Design Review Panel Report - D02-02-24-0017'
  • Construction site plan for project from page 18 of the file '2024-06-19 - Urban Design Review Panel Report - D02-02-24-0017'
  • Construction site plan for project from page 18 of the file '2024-06-19 - Urban Design Review Panel Report - D02-02-24-0017'
  • Construction site plan for project from page 19 of the file '2024-06-19 - Urban Design Review Panel Report - D02-02-24-0017'
  • Construction site plan for project from page 19 of the file '2024-06-19 - Urban Design Review Panel Report - D02-02-24-0017'
  • Construction site plan for project from page 23 of the file '2024-06-19 - Urban Design Review Panel Report - D02-02-24-0017'
  • Floor plan for project from page 24 of the file '2024-06-19 - Urban Design Review Panel Report - D02-02-24-0017'
  • Floor plan for project from page 27 of the file '2024-06-19 - Urban Design Review Panel Report - D02-02-24-0017'
  • Floor plan for project from page 27 of the file '2024-06-19 - Urban Design Review Panel Report - D02-02-24-0017'
  • Floor plan for project from page 28 of the file '2024-06-19 - Urban Design Review Panel Report - D02-02-24-0017'
  • Floor plan for project from page 28 of the file '2024-06-19 - Urban Design Review Panel Report - D02-02-24-0017'
  • Floor plan for project from page 30 of the file '2024-06-19 - Urban Design Review Panel Report - D02-02-24-0017'
  • Floor plan for project from page 30 of the file '2024-06-19 - Urban Design Review Panel Report - D02-02-24-0017'
  • Floor plan for project from page 30 of the file '2024-06-19 - Urban Design Review Panel Report - D02-02-24-0017'
  • Construction site plan for project from page 14 of the file '2024-06-19 - Design Brief - D02-02-24-0017'
  • Construction site plan for project from page 14 of the file '2024-06-19 - Design Brief - D02-02-24-0017'
  • Construction site plan for project from page 16 of the file '2024-06-19 - Design Brief - D02-02-24-0017'
  • Construction site plan for project from page 19 of the file '2024-06-19 - Design Brief - D02-02-24-0017'
  • Construction site plan for project from page 20 of the file '2024-06-19 - Design Brief - D02-02-24-0017'
  • Construction site plan for project from page 20 of the file '2024-06-19 - Design Brief - D02-02-24-0017'
  • Construction site plan for project from page 20 of the file '2024-06-19 - Design Brief - D02-02-24-0017'
  • Floor plan for project from page 22 of the file '2024-06-19 - Design Brief - D02-02-24-0017'
  • Construction site plan for project from page 25 of the file '2024-06-19 - Design Brief - D02-02-24-0017'
  • Construction site plan for project from page 25 of the file '2024-06-19 - Design Brief - D02-02-24-0017'
  • Floor plan for project from page 32 of the file '2024-06-19 - Design Brief - D02-02-24-0017'
  • Floor plan for project from page 41 of the file '2024-06-19 - Design Brief - D02-02-24-0017'
  • Floor plan for project from page 42 of the file '2024-06-19 - Design Brief - D02-02-24-0017'
  • Construction site plan for project from page 69 of the file '2024-06-19 - Design Brief - D02-02-24-0017'
  • Construction site plan for project from page 70 of the file '2024-06-19 - Design Brief - D02-02-24-0017'
  • Construction site plan for project from page 75 of the file '2024-06-19 - Design Brief - D02-02-24-0017'
  • Construction site plan for project from page 75 of the file '2024-06-19 - Design Brief - D02-02-24-0017'
  • Construction site plan for project from page 76 of the file '2024-06-19 - Design Brief - D02-02-24-0017'
  • Construction site plan for project from page 77 of the file '2024-06-19 - Design Brief - D02-02-24-0017'
  • Construction site plan for project from page 78 of the file '2024-06-19 - Design Brief - D02-02-24-0017'
  • Construction site plan for project from page 80 of the file '2024-06-19 - Design Brief - D02-02-24-0017'
  • Construction site plan for project from page 80 of the file '2024-06-19 - Design Brief - D02-02-24-0017'
  • Construction site plan for project from page 81 of the file '2024-06-19 - Design Brief - D02-02-24-0017'
  • Construction site plan for project from page 90 of the file '2024-06-19 - Design Brief - D02-02-24-0017'
  • Construction site plan for project from page 91 of the file '2024-06-19 - Design Brief - D02-02-24-0017'
  • Construction site plan for project from page 92 of the file '2024-06-19 - Design Brief - D02-02-24-0017'
  • Construction site plan for project from page 93 of the file '2024-06-19 - Design Brief - D02-02-24-0017'
  • Construction site plan for project from page 94 of the file '2024-06-19 - Design Brief - D02-02-24-0017'
  • Construction site plan for project from page 95 of the file '2024-06-19 - Design Brief - D02-02-24-0017'
  • Construction site plan for project from page 96 of the file '2024-06-19 - Design Brief - D02-02-24-0017'
  • Construction site plan for project from page 97 of the file '2024-06-19 - Design Brief - D02-02-24-0017'
  • Construction site plan for project from page 98 of the file '2024-06-19 - Design Brief - D02-02-24-0017'
  • Construction site plan for project from page 99 of the file '2024-06-19 - Design Brief - D02-02-24-0017'
  • Construction site plan for project from page 100 of the file '2024-06-19 - Design Brief - D02-02-24-0017'
  • Construction site plan for project from page 102 of the file '2024-06-19 - Design Brief - D02-02-24-0017'
  • Construction site plan for project from page 103 of the file '2024-06-19 - Design Brief - D02-02-24-0017'
  • Construction site plan for project from page 104 of the file '2024-06-19 - Design Brief - D02-02-24-0017'
  • Construction site plan for project from page 105 of the file '2024-06-19 - Design Brief - D02-02-24-0017'
  • Construction site plan for project from page 106 of the file '2024-06-19 - Design Brief - D02-02-24-0017'
  • Construction site plan for project from page 108 of the file '2024-06-19 - Design Brief - D02-02-24-0017'
  • Construction site plan for project from page 110 of the file '2024-06-19 - Design Brief - D02-02-24-0017'
  • Construction site plan for project from page 111 of the file '2024-06-19 - Design Brief - D02-02-24-0017'
  • Construction site plan for project from page 112 of the file '2024-06-19 - Design Brief - D02-02-24-0017'
  • Construction site plan for project from page 113 of the file '2024-06-19 - Design Brief - D02-02-24-0017'
  • Construction site plan for project from page 114 of the file '2024-06-19 - Design Brief - D02-02-24-0017'
  • Construction site plan for project from page 116 of the file '2024-06-19 - Design Brief - D02-02-24-0017'
  • Construction site plan for project from page 117 of the file '2024-06-19 - Design Brief - D02-02-24-0017'
  • Construction site plan for project from page 118 of the file '2024-06-19 - Design Brief - D02-02-24-0017'
  • Construction site plan for project from page 119 of the file '2024-06-19 - Design Brief - D02-02-24-0017'
  • Construction site plan for project from page 120 of the file '2024-06-19 - Design Brief - D02-02-24-0017'
  • Construction site plan for project from page 121 of the file '2024-06-19 - Design Brief - D02-02-24-0017'
  • Construction site plan for project from page 122 of the file '2024-06-19 - Design Brief - D02-02-24-0017'
  • Floor plan for project from page 44 of the file '2024-10-29 - URBAN DESIGN BRIEF-D02-02-24-0017'
  • Floor plan for project from page 45 of the file '2024-10-29 - URBAN DESIGN BRIEF-D02-02-24-0017'
  • Construction site plan for project from page 11 of the file '2024-06-19 - Urban Design Review Panel Report - D02-02-24-0017'
  • Construction site plan for project from page 13 of the file '2024-06-19 - Urban Design Review Panel Report - D02-02-24-0017'
  • Construction site plan for project from page 13 of the file '2024-06-19 - Urban Design Review Panel Report - D02-02-24-0017'
  • Construction site plan for project from page 14 of the file '2024-06-19 - Urban Design Review Panel Report - D02-02-24-0017'
  • Construction site plan for project from page 14 of the file '2024-06-19 - Urban Design Review Panel Report - D02-02-24-0017'
  • Construction site plan for project from page 14 of the file '2024-06-19 - Urban Design Review Panel Report - D02-02-24-0017'
  • Construction site plan for project from page 15 of the file '2024-06-19 - Urban Design Review Panel Report - D02-02-24-0017'
  • Construction site plan for project from page 16 of the file '2024-06-19 - Urban Design Review Panel Report - D02-02-24-0017'
  • Construction site plan for project from page 17 of the file '2024-06-19 - Urban Design Review Panel Report - D02-02-24-0017'
  • Construction site plan for project from page 18 of the file '2024-06-19 - Urban Design Review Panel Report - D02-02-24-0017'
  • Construction site plan for project from page 18 of the file '2024-06-19 - Urban Design Review Panel Report - D02-02-24-0017'
  • Construction site plan for project from page 19 of the file '2024-06-19 - Urban Design Review Panel Report - D02-02-24-0017'
  • Construction site plan for project from page 19 of the file '2024-06-19 - Urban Design Review Panel Report - D02-02-24-0017'
  • Construction site plan for project from page 23 of the file '2024-06-19 - Urban Design Review Panel Report - D02-02-24-0017'
  • Floor plan for project from page 24 of the file '2024-06-19 - Urban Design Review Panel Report - D02-02-24-0017'
  • Floor plan for project from page 27 of the file '2024-06-19 - Urban Design Review Panel Report - D02-02-24-0017'
  • Floor plan for project from page 27 of the file '2024-06-19 - Urban Design Review Panel Report - D02-02-24-0017'
  • Floor plan for project from page 28 of the file '2024-06-19 - Urban Design Review Panel Report - D02-02-24-0017'
  • Floor plan for project from page 28 of the file '2024-06-19 - Urban Design Review Panel Report - D02-02-24-0017'
  • Floor plan for project from page 30 of the file '2024-06-19 - Urban Design Review Panel Report - D02-02-24-0017'
  • Floor plan for project from page 30 of the file '2024-06-19 - Urban Design Review Panel Report - D02-02-24-0017'
  • Floor plan for project from page 30 of the file '2024-06-19 - Urban Design Review Panel Report - D02-02-24-0017'
  • Construction site plan for project from page 14 of the file '2024-06-19 - Design Brief - D02-02-24-0017'
  • Construction site plan for project from page 14 of the file '2024-06-19 - Design Brief - D02-02-24-0017'
  • Construction site plan for project from page 16 of the file '2024-06-19 - Design Brief - D02-02-24-0017'
  • Construction site plan for project from page 19 of the file '2024-06-19 - Design Brief - D02-02-24-0017'
  • Construction site plan for project from page 20 of the file '2024-06-19 - Design Brief - D02-02-24-0017'
  • Construction site plan for project from page 20 of the file '2024-06-19 - Design Brief - D02-02-24-0017'
  • Construction site plan for project from page 20 of the file '2024-06-19 - Design Brief - D02-02-24-0017'
  • Floor plan for project from page 22 of the file '2024-06-19 - Design Brief - D02-02-24-0017'
  • Construction site plan for project from page 25 of the file '2024-06-19 - Design Brief - D02-02-24-0017'
  • Construction site plan for project from page 25 of the file '2024-06-19 - Design Brief - D02-02-24-0017'
  • Floor plan for project from page 32 of the file '2024-06-19 - Design Brief - D02-02-24-0017'
  • Floor plan for project from page 41 of the file '2024-06-19 - Design Brief - D02-02-24-0017'
  • Floor plan for project from page 42 of the file '2024-06-19 - Design Brief - D02-02-24-0017'
  • Construction site plan for project from page 69 of the file '2024-06-19 - Design Brief - D02-02-24-0017'
  • Construction site plan for project from page 70 of the file '2024-06-19 - Design Brief - D02-02-24-0017'
  • Construction site plan for project from page 75 of the file '2024-06-19 - Design Brief - D02-02-24-0017'
  • Construction site plan for project from page 75 of the file '2024-06-19 - Design Brief - D02-02-24-0017'
  • Construction site plan for project from page 76 of the file '2024-06-19 - Design Brief - D02-02-24-0017'
  • Construction site plan for project from page 77 of the file '2024-06-19 - Design Brief - D02-02-24-0017'
  • Construction site plan for project from page 78 of the file '2024-06-19 - Design Brief - D02-02-24-0017'
  • Construction site plan for project from page 80 of the file '2024-06-19 - Design Brief - D02-02-24-0017'
  • Construction site plan for project from page 80 of the file '2024-06-19 - Design Brief - D02-02-24-0017'
  • Construction site plan for project from page 81 of the file '2024-06-19 - Design Brief - D02-02-24-0017'
  • Construction site plan for project from page 90 of the file '2024-06-19 - Design Brief - D02-02-24-0017'
  • Construction site plan for project from page 91 of the file '2024-06-19 - Design Brief - D02-02-24-0017'
  • Construction site plan for project from page 92 of the file '2024-06-19 - Design Brief - D02-02-24-0017'
  • Construction site plan for project from page 93 of the file '2024-06-19 - Design Brief - D02-02-24-0017'
  • Construction site plan for project from page 94 of the file '2024-06-19 - Design Brief - D02-02-24-0017'
  • Construction site plan for project from page 95 of the file '2024-06-19 - Design Brief - D02-02-24-0017'
  • Construction site plan for project from page 96 of the file '2024-06-19 - Design Brief - D02-02-24-0017'
  • Construction site plan for project from page 97 of the file '2024-06-19 - Design Brief - D02-02-24-0017'
  • Construction site plan for project from page 98 of the file '2024-06-19 - Design Brief - D02-02-24-0017'
  • Construction site plan for project from page 99 of the file '2024-06-19 - Design Brief - D02-02-24-0017'
  • Construction site plan for project from page 100 of the file '2024-06-19 - Design Brief - D02-02-24-0017'
  • Construction site plan for project from page 102 of the file '2024-06-19 - Design Brief - D02-02-24-0017'
  • Construction site plan for project from page 103 of the file '2024-06-19 - Design Brief - D02-02-24-0017'
  • Construction site plan for project from page 104 of the file '2024-06-19 - Design Brief - D02-02-24-0017'
  • Construction site plan for project from page 105 of the file '2024-06-19 - Design Brief - D02-02-24-0017'
  • Construction site plan for project from page 106 of the file '2024-06-19 - Design Brief - D02-02-24-0017'
  • Construction site plan for project from page 108 of the file '2024-06-19 - Design Brief - D02-02-24-0017'
  • Construction site plan for project from page 110 of the file '2024-06-19 - Design Brief - D02-02-24-0017'
  • Construction site plan for project from page 111 of the file '2024-06-19 - Design Brief - D02-02-24-0017'
  • Construction site plan for project from page 112 of the file '2024-06-19 - Design Brief - D02-02-24-0017'
  • Construction site plan for project from page 113 of the file '2024-06-19 - Design Brief - D02-02-24-0017'
  • Construction site plan for project from page 114 of the file '2024-06-19 - Design Brief - D02-02-24-0017'
  • Construction site plan for project from page 116 of the file '2024-06-19 - Design Brief - D02-02-24-0017'
  • Construction site plan for project from page 117 of the file '2024-06-19 - Design Brief - D02-02-24-0017'
  • Construction site plan for project from page 118 of the file '2024-06-19 - Design Brief - D02-02-24-0017'
  • Construction site plan for project from page 119 of the file '2024-06-19 - Design Brief - D02-02-24-0017'
  • Construction site plan for project from page 120 of the file '2024-06-19 - Design Brief - D02-02-24-0017'
  • Construction site plan for project from page 121 of the file '2024-06-19 - Design Brief - D02-02-24-0017'
  • Construction site plan for project from page 122 of the file '2024-06-19 - Design Brief - D02-02-24-0017'
  • Floor plan for project from page 44 of the file '2024-10-29 - URBAN DESIGN BRIEF-D02-02-24-0017'
  • Floor plan for project from page 45 of the file '2024-10-29 - URBAN DESIGN BRIEF-D02-02-24-0017'

Documents #

TypeDocument
Adequacy Of Public Services2024-06-19 - Assessment of Adequacy - D02-02-24-0017
Adequacy Of Public Services2024-06-19 - Adequacy Report - D02-02-24-0017
Adequacy Of Public Services2024-10-29 - Adequacy Report - D02-02-24-0017
Application Summary2024-07-19 - Application Summary - D02-02-24-0017
Architectural Plans2024-06-19 - Site Plan - D02-02-24-0017
Architectural Plans2024-06-19 - Plan 4R-34704 - D02-02-24-0017
Architectural Plans2024-06-19 - Plan 4R-33239 - D02-02-24-0017
Architectural Plans2024-06-19 - Plan 4R-31372 - D02-02-24-0017
Architectural Plans2024-06-19 - Parking Plan - D02-02-24-0017
Architectural Plans2024-06-19 - Elevations - D02-02-24-0017
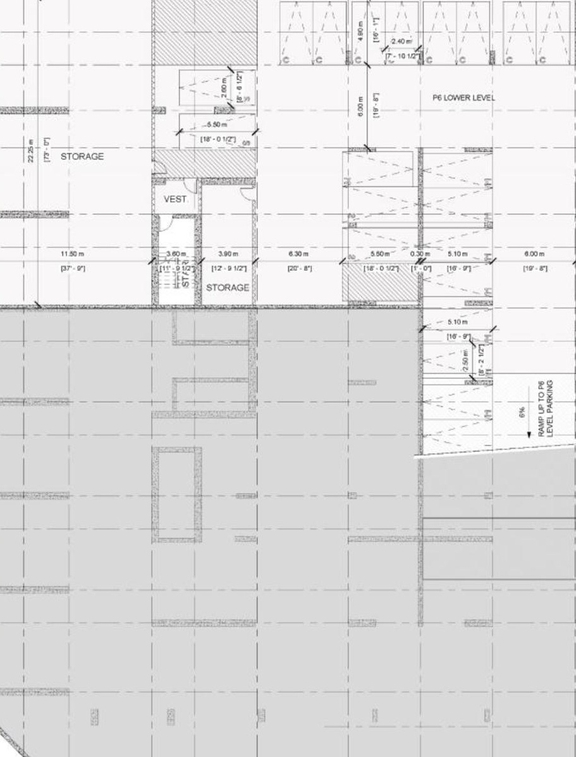
Architectural Plans2024-10-29 - P6 LOWER LEVEL PARKING plan - D02-02-24-0017
Architectural Plans2024-10-29 - P2-P6 TYPICAL PARKING PLANS - D02-02-24-0017
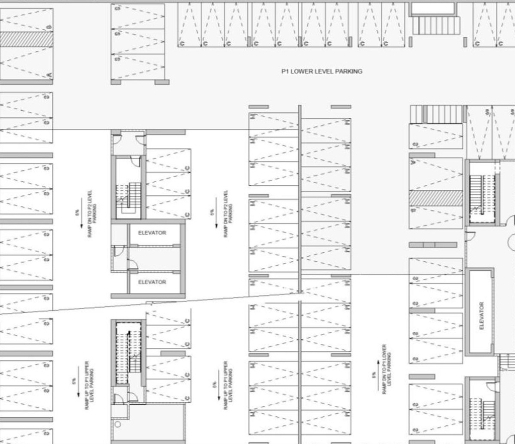
Architectural Plans2024-10-29 - P1 Parking Plan - D02-02-24-0017
Architectural Plans2024-10-29 - ARCHITECTURAL SITE PLAN - D02-02-24-0017
Design Brief2024-06-19 - Urban Design Review Panel Report - D02-02-24-0017
Design Brief2024-06-19 - Design Brief - D02-02-24-0017
Design Brief2024-10-29 - Urban Design Review Panel Report - D02-02-24-0017
Design Brief2024-10-29 - URBAN DESIGN BRIEF-D02-02-24-0017
Environmental2024-06-19 - Phase I- Environmental Site Assessment - D02-02-24-0017
Floor Plan2024-10-29 - FIRST FLOOR PLAN - D02-02-24-0017
Geotechnical Report2024-06-19 - Supplemental Geotechnical - D02-02-24-0017
Geotechnical Report2024-06-19 - Geotechnical Investigation - D02-02-24-0017
Planning2024-09-16 - Planning Rationale - D02-02-24-0017
Planning2024-06-19 - Zoning Report - D02-02-24-0017
Planning2024-10-29 - Planning Rationale -D02-02-24-0017
Rendering2024-06-19 - Perspectives - D02-02-24-0017
Shadow Study2024-06-19 - Shadow Study - D02-02-24-0017
Shadow Study2024-10-29 - Shadow Study - D02-02-24-0017
Surveying2024-06-19 - Topographical Plan of Survey - D02-02-24-0017
Transportation Analysis2024-06-19 - Transportation Impact Assessment - D02-02-24-0017
Wind Study2024-06-19 - Wind Study - D02-02-24-0017
2024-09-16 - Phase II - Environmental Site Assessment - D02-02-24-0017
2024-06-19 - Letter - Phase I-Environmental Site Assessment - D02-02-24-0017
2024-06-19 - Letter - Phase 1 Environmental Site Assessment - D02-02-24-0017
2024-06-19 - Letter - Geotechncial Conditions - D02-02-24-0017
IDAddressLast UpdatedDate Initiated
D01-01-24-00141034 Mcgarry2024-08-172024-06-19