30 Cleary Ave. (D02-02-23-0076)#
Summary#
| Application Status | Inactive |
| Review Status | Application Approved by OMB |
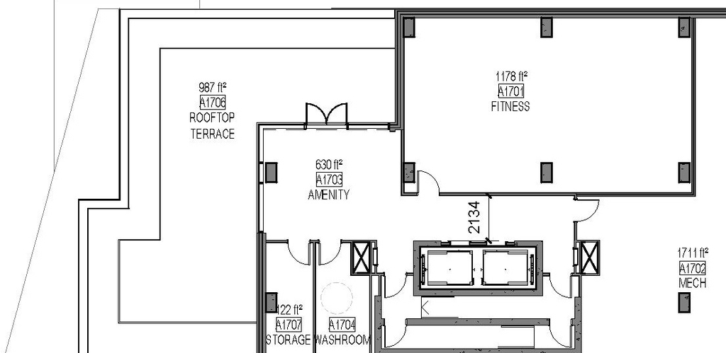
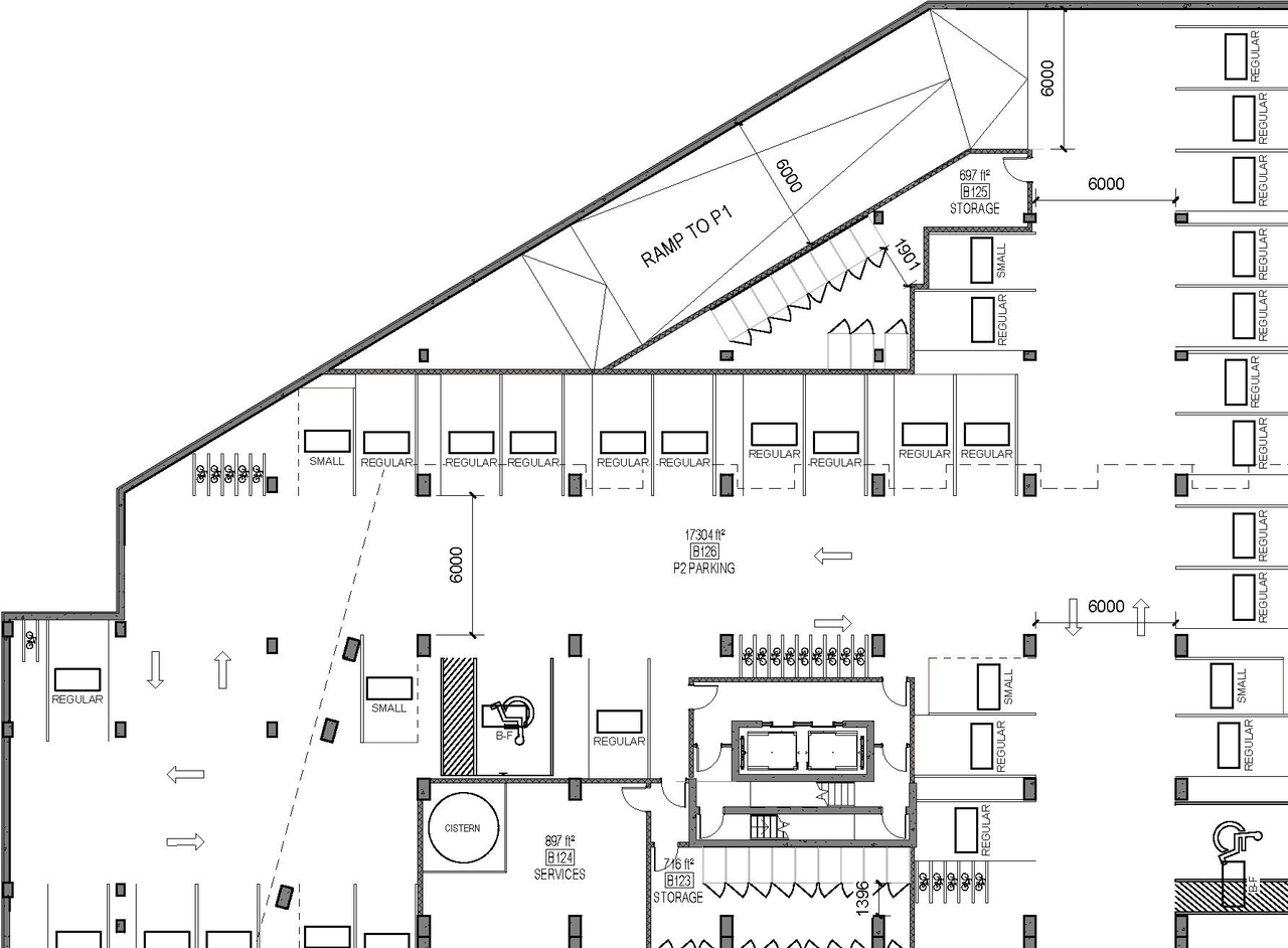
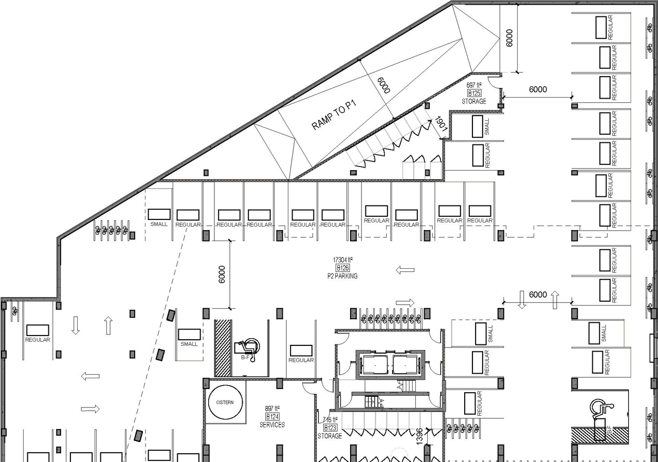
| Description | The City of Ottawa has received an Official Plan and Zoning By-law Amendment application to permit the development of a 6-storey and 16-storey residential buildings, containing a total of 214 units and 111 parking spaces. |
| Ward | Ward 7 - Theresa Kavanagh |
| Date Initiated | 2023-11-23 |
| Last Updated | 2025-05-01 |
Renders#
Location#
Select a marker to view the address.



















































