8 Withrow (D02-02-23-0062)

8 Withrow (D02-02-23-0062) #

Summary #

Application StatusInactive
Review StatusZoning By-law in Effect
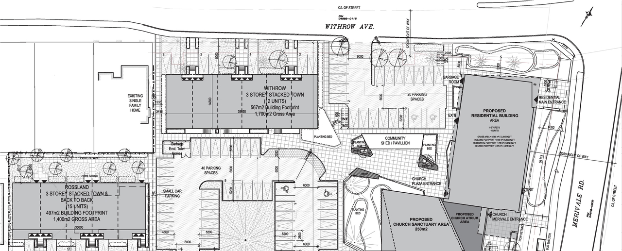
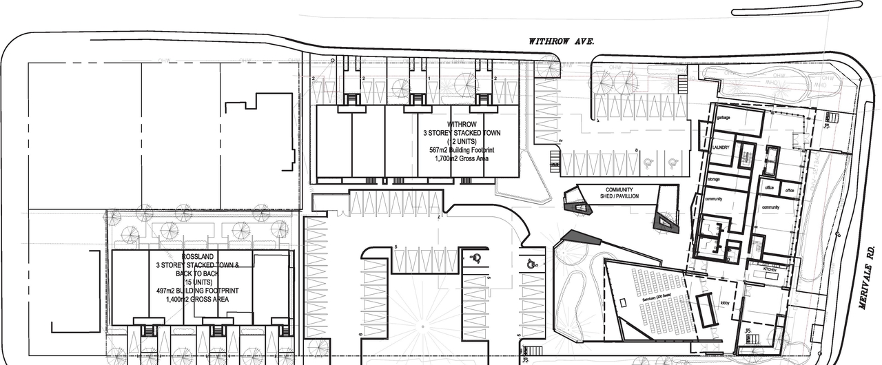
DescriptionThe City of Ottawa has received a Zoning By-law Amendment and Site Plan Control application to permit the construction of a new place of worship, an 8-storey apartment building with 57 affordable housing units, and 27 townhouse units.
WardWard 8 - Laine Johnson
Date Initiated2023-06-30
Last Updated2024-07-18

Renders #

  • Rendering of building from page 32 of the file '2024-04-08 - Design Brief - D02-02-23-0062'
  • Rendering of building from page 31 of the file '2024-04-08 - Design Brief - D02-02-23-0062'
  • Rendering of building from page 21 of the file '2024-04-08 - Design Brief - D02-02-23-0062'
  • Rendering of building from page 35 of the file '2024-04-08 - Design Brief - D02-02-23-0062'
  • Rendering of building from page 37 of the file '2024-04-08 - Design Brief - D02-02-23-0062'
  • Rendering of building from page 33 of the file '2024-04-08 - Design Brief - D02-02-23-0062'
  • Rendering of building from page 12 of the file '2024-04-08 - Design Brief - D02-02-23-0062'
  • Rendering of building from page 2 of the file '2024-04-08 - Design Brief - D02-02-23-0062'
  • Rendering of building from page 29 of the file '2024-04-08 - Design Brief - D02-02-23-0062'
  • Rendering of building from page 34 of the file '2024-04-08 - Design Brief - D02-02-23-0062'
  • Rendering of building from page 13 of the file '2024-04-08 - Design Brief - D02-02-23-0062'
  • Rendering of building from page 22 of the file '2024-04-08 - Design Brief - D02-02-23-0062'
  • Rendering of building from page 38 of the file '2024-04-08 - Design Brief - D02-02-23-0062'
  • Rendering of building from page 39 of the file '2024-04-08 - Design Brief - D02-02-23-0062'
  • Rendering of building from page 16 of the file '2024-04-08 - Design Brief - D02-02-23-0062'
  • Rendering of building from page 16 of the file '2024-04-08 - Design Brief - D02-02-23-0062'
  • Rendering of building from page 41 of the file '2024-04-08 - Design Brief - D02-02-23-0062'
  • Rendering of building from page 39 of the file '2024-04-08 - Design Brief - D02-02-23-0062'
  • Rendering of building from page 41 of the file '2024-04-08 - Design Brief - D02-02-23-0062'
  • Rendering of building from page 32 of the file '2024-04-08 - Design Brief - D02-02-23-0062'
  • Rendering of building from page 31 of the file '2024-04-08 - Design Brief - D02-02-23-0062'
  • Rendering of building from page 21 of the file '2024-04-08 - Design Brief - D02-02-23-0062'
  • Rendering of building from page 35 of the file '2024-04-08 - Design Brief - D02-02-23-0062'
  • Rendering of building from page 37 of the file '2024-04-08 - Design Brief - D02-02-23-0062'
  • Rendering of building from page 33 of the file '2024-04-08 - Design Brief - D02-02-23-0062'
  • Rendering of building from page 12 of the file '2024-04-08 - Design Brief - D02-02-23-0062'
  • Rendering of building from page 2 of the file '2024-04-08 - Design Brief - D02-02-23-0062'
  • Rendering of building from page 29 of the file '2024-04-08 - Design Brief - D02-02-23-0062'
  • Rendering of building from page 34 of the file '2024-04-08 - Design Brief - D02-02-23-0062'
  • Rendering of building from page 13 of the file '2024-04-08 - Design Brief - D02-02-23-0062'
  • Rendering of building from page 22 of the file '2024-04-08 - Design Brief - D02-02-23-0062'
  • Rendering of building from page 38 of the file '2024-04-08 - Design Brief - D02-02-23-0062'
  • Rendering of building from page 39 of the file '2024-04-08 - Design Brief - D02-02-23-0062'
  • Rendering of building from page 16 of the file '2024-04-08 - Design Brief - D02-02-23-0062'
  • Rendering of building from page 16 of the file '2024-04-08 - Design Brief - D02-02-23-0062'
  • Rendering of building from page 41 of the file '2024-04-08 - Design Brief - D02-02-23-0062'
  • Rendering of building from page 39 of the file '2024-04-08 - Design Brief - D02-02-23-0062'
  • Rendering of building from page 41 of the file '2024-04-08 - Design Brief - D02-02-23-0062'

Site and Floor Plans #

  • Construction site plan for project from page 4 of the file '2024-04-08 - Design Brief - D02-02-23-0062'
  • Construction site plan for project from page 4 of the file '2024-04-08 - Design Brief - D02-02-23-0062'
  • Construction site plan for project from page 6 of the file '2024-04-08 - Design Brief - D02-02-23-0062'
  • Construction site plan for project from page 21 of the file '2024-04-08 - Design Brief - D02-02-23-0062'
  • Floor plan for project from page 21 of the file '2024-04-08 - Design Brief - D02-02-23-0062'
  • Construction site plan for project from page 21 of the file '2024-04-08 - Design Brief - D02-02-23-0062'
  • Construction site plan for project from page 23 of the file '2024-04-08 - Design Brief - D02-02-23-0062'
  • Floor plan for project from page 25 of the file '2024-04-08 - Design Brief - D02-02-23-0062'
  • Floor plan for project from page 26 of the file '2024-04-08 - Design Brief - D02-02-23-0062'
  • Construction site plan for project from page 38 of the file '2024-04-08 - Design Brief - D02-02-23-0062'
  • Construction site plan for project from page 43 of the file '2024-04-08 - Design Brief - D02-02-23-0062'
  • Construction site plan for project from page 44 of the file '2024-04-08 - Design Brief - D02-02-23-0062'
  • Construction site plan for project from page 44 of the file '2024-04-08 - Design Brief - D02-02-23-0062'
  • Construction site plan for project from page 44 of the file '2024-04-08 - Design Brief - D02-02-23-0062'
  • Construction site plan for project from page 44 of the file '2024-04-08 - Design Brief - D02-02-23-0062'
  • Construction site plan for project from page 44 of the file '2024-04-08 - Design Brief - D02-02-23-0062'
  • Construction site plan for project from page 44 of the file '2024-04-08 - Design Brief - D02-02-23-0062'
  • Construction site plan for project from page 45 of the file '2024-04-08 - Design Brief - D02-02-23-0062'
  • Construction site plan for project from page 45 of the file '2024-04-08 - Design Brief - D02-02-23-0062'
  • Construction site plan for project from page 46 of the file '2024-04-08 - Design Brief - D02-02-23-0062'
  • Construction site plan for project from page 46 of the file '2024-04-08 - Design Brief - D02-02-23-0062'
  • Construction site plan for project from page 4 of the file '2024-04-08 - Design Brief - D02-02-23-0062'
  • Construction site plan for project from page 4 of the file '2024-04-08 - Design Brief - D02-02-23-0062'
  • Construction site plan for project from page 6 of the file '2024-04-08 - Design Brief - D02-02-23-0062'
  • Construction site plan for project from page 21 of the file '2024-04-08 - Design Brief - D02-02-23-0062'
  • Floor plan for project from page 21 of the file '2024-04-08 - Design Brief - D02-02-23-0062'
  • Construction site plan for project from page 21 of the file '2024-04-08 - Design Brief - D02-02-23-0062'
  • Construction site plan for project from page 23 of the file '2024-04-08 - Design Brief - D02-02-23-0062'
  • Floor plan for project from page 25 of the file '2024-04-08 - Design Brief - D02-02-23-0062'
  • Floor plan for project from page 26 of the file '2024-04-08 - Design Brief - D02-02-23-0062'
  • Construction site plan for project from page 38 of the file '2024-04-08 - Design Brief - D02-02-23-0062'
  • Construction site plan for project from page 43 of the file '2024-04-08 - Design Brief - D02-02-23-0062'
  • Construction site plan for project from page 44 of the file '2024-04-08 - Design Brief - D02-02-23-0062'
  • Construction site plan for project from page 44 of the file '2024-04-08 - Design Brief - D02-02-23-0062'
  • Construction site plan for project from page 44 of the file '2024-04-08 - Design Brief - D02-02-23-0062'
  • Construction site plan for project from page 44 of the file '2024-04-08 - Design Brief - D02-02-23-0062'
  • Construction site plan for project from page 44 of the file '2024-04-08 - Design Brief - D02-02-23-0062'
  • Construction site plan for project from page 44 of the file '2024-04-08 - Design Brief - D02-02-23-0062'
  • Construction site plan for project from page 45 of the file '2024-04-08 - Design Brief - D02-02-23-0062'
  • Construction site plan for project from page 45 of the file '2024-04-08 - Design Brief - D02-02-23-0062'
  • Construction site plan for project from page 46 of the file '2024-04-08 - Design Brief - D02-02-23-0062'
  • Construction site plan for project from page 46 of the file '2024-04-08 - Design Brief - D02-02-23-0062'

Documents #

TypeDocument
Adequacy Of Public Services2023-12-12 - Adequacy of Public Services Report - D02-02-23-0062
Adequacy Of Public Services2023-07-21 - Adequacey of Public Services Report - D02-02-23-0062
Application Summary2023-08-16 - Application Summary - D02-02-23-0062
Architectural Plans2024-04-08 - Plan 4R-2324 - D02-02-23-0062
Architectural Plans2024-04-08 - PlAN - 4R-2107 - D02-02-23-0062
Architectural Plans2023-12-12 - Site Plan - D02-02-23-0062
Architectural Plans2023-07-21 - Site Plan - D02-02-23-0062
Architectural Plans2023-07-21 - Sanitary Drainage Plan - D02-02-23-0062
Architectural Plans2023-07-21 - Architectural Package - D02-02-23-0062
Civil Engineering Report2023-12-12 - Civil Drawings - D02-02-23-0062
Civil Engineering Report2023-07-21 - Civil Cover Sheet - D02-02-23-0062
Design Brief2024-04-08 - Design Brief - D02-02-23-0062
Environmental2024-04-08 - Phase II Environmental Site Assessment - D02-02-23-0062
Environmental2024-04-08 - Phase 1 Environmental Site Assessment - D02-02-23-0062 (2)
Environmental2024-04-08 - Phase 1 Environmental Site Assessment - D02-02-23-0062
Environmental2023-07-21 - Phase II ESA - D02-02-23-0062
Environmental2023-07-21 - Phase I ESA Update- D02-02-23-0062
Environmental2023-07-21 - Phase I ESA - D02-02-23-0062
Erosion And Sediment Control Plan2023-07-21 - Erosion Control & Detail Sheet - D02-02-23-0062
Existing Conditions2023-07-21 - Existing Storm Drainage Plan - D02-02-23-0062
Geotechnical Report2023-07-21 - Grading Plan - D02-02-23-0062
Noise Study2024-04-08 - Traffic Noise Feasibility - D02-02-23-0062
Noise Study2023-07-21 - Noise Study - D02-02-23-0062
Planning2024-04-08 - Planning Rationale - D02-02-23-0062
Planning2023-07-21 - Planning Rationale - D02-02-23-0062
Shadow Study2024-04-08 - Shadow Studies - D02-02-23-0062
Shadow Study2023-07-21 - Shadow Study - D02-02-23-0062
Site Servicing2023-07-21 - Site Servicing Plan - D02-02-23-0062
Stormwater Management2023-07-21 - Storm Drainage Plan - D02-02-23-0062
Surveying2024-04-08 - Topographic Plan of Survey -D02-02-23-0062
Surveying2024-04-08 - Topographic Plan of Survey - D02-02-23-0062
Surveying2023-07-21 - Survey Plan - D02-02-23-0062
Transportation Analysis2024-04-08 - Transportation Impact Assessment - D02-02-23-0062
Transportation Analysis2023-12-12 - Transportation Impact Assessment - D02-02-23-0062
Transportation Analysis2023-07-21 - TIA Strategy Report - D02-02-23-0062
Tree Information and Conservation2023-12-12 - Tree Conservation Report - D02-02-23-0062
2023-07-21 - Conceptual Landscape Design - D02-02-23-0062