1531 St-Laurent, Boul (D02-02-23-0056)

1531 St-Laurent, Boul (D02-02-23-0056) #

Summary #

Application StatusFile Pending
Review StatusApplication File Pending
DescriptionThe City of Ottawa has received a Zoning By-law amendment and Site Plan Control application to construct two high-rise towers with modifications to the zoning provisions.
WardWard 18 - Marty Carr
Date Initiated2023-06-15
Last Updated2023-08-06

Renders #

  • Rendering of building from page 13 of the file '2024-07-23 - UDRP Design Brief - D02-02-23-0056'
  • Rendering of building from page 16 of the file '2024-07-23 - UDRP Design Brief - D02-02-23-0056'
  • Rendering of building from page 17 of the file '2024-07-23 - UDRP Design Brief - D02-02-23-0056'
  • Rendering of building from page 14 of the file '2024-07-23 - UDRP Design Brief - D02-02-23-0056'
  • Rendering of building from page 15 of the file '2024-07-23 - UDRP Design Brief - D02-02-23-0056'
  • Rendering of building from page 12 of the file '2024-07-23 - UDRP Design Brief - D02-02-23-0056'
  • Rendering of building from page 7 of the file '2024-07-23 - UDRP Design Brief - D02-02-23-0056'
  • Rendering of building from page 11 of the file '2024-07-23 - UDRP Design Brief - D02-02-23-0056'
  • Rendering of building from page 7 of the file '2024-07-23 - UDRP Design Brief - D02-02-23-0056'
  • Rendering of building from page 7 of the file '2024-07-23 - UDRP Design Brief - D02-02-23-0056'
  • Rendering of building from page 30 of the file '2024-07-23 - UDRP Design Brief - D02-02-23-0056'
  • Rendering of building from page 31 of the file '2024-07-23 - UDRP Design Brief - D02-02-23-0056'
  • Rendering of building from page 32 of the file '2024-07-23 - UDRP Design Brief - D02-02-23-0056'
  • Rendering of building from page 31 of the file '2024-07-23 - UDRP Design Brief - D02-02-23-0056'
  • Rendering of building from page 32 of the file '2024-07-23 - UDRP Design Brief - D02-02-23-0056'
  • Rendering of building from page 29 of the file '2024-07-23 - UDRP Design Brief - D02-02-23-0056'
  • Rendering of building from page 33 of the file '2024-07-23 - UDRP Design Brief - D02-02-23-0056'
  • Rendering of building from page 7 of the file '2024-07-23 - UDRP Design Brief - D02-02-23-0056'
  • Rendering of building from page 13 of the file '2024-07-23 - UDRP Design Brief - D02-02-23-0056'
  • Rendering of building from page 16 of the file '2024-07-23 - UDRP Design Brief - D02-02-23-0056'
  • Rendering of building from page 17 of the file '2024-07-23 - UDRP Design Brief - D02-02-23-0056'
  • Rendering of building from page 14 of the file '2024-07-23 - UDRP Design Brief - D02-02-23-0056'
  • Rendering of building from page 15 of the file '2024-07-23 - UDRP Design Brief - D02-02-23-0056'
  • Rendering of building from page 12 of the file '2024-07-23 - UDRP Design Brief - D02-02-23-0056'
  • Rendering of building from page 7 of the file '2024-07-23 - UDRP Design Brief - D02-02-23-0056'
  • Rendering of building from page 11 of the file '2024-07-23 - UDRP Design Brief - D02-02-23-0056'
  • Rendering of building from page 7 of the file '2024-07-23 - UDRP Design Brief - D02-02-23-0056'
  • Rendering of building from page 7 of the file '2024-07-23 - UDRP Design Brief - D02-02-23-0056'
  • Rendering of building from page 30 of the file '2024-07-23 - UDRP Design Brief - D02-02-23-0056'
  • Rendering of building from page 31 of the file '2024-07-23 - UDRP Design Brief - D02-02-23-0056'
  • Rendering of building from page 32 of the file '2024-07-23 - UDRP Design Brief - D02-02-23-0056'
  • Rendering of building from page 31 of the file '2024-07-23 - UDRP Design Brief - D02-02-23-0056'
  • Rendering of building from page 32 of the file '2024-07-23 - UDRP Design Brief - D02-02-23-0056'
  • Rendering of building from page 29 of the file '2024-07-23 - UDRP Design Brief - D02-02-23-0056'
  • Rendering of building from page 33 of the file '2024-07-23 - UDRP Design Brief - D02-02-23-0056'
  • Rendering of building from page 7 of the file '2024-07-23 - UDRP Design Brief - D02-02-23-0056'

Site and Floor Plans #

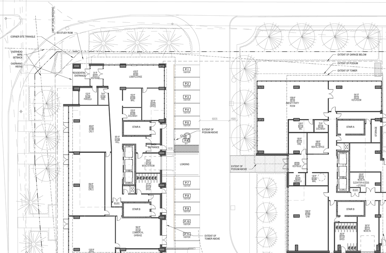
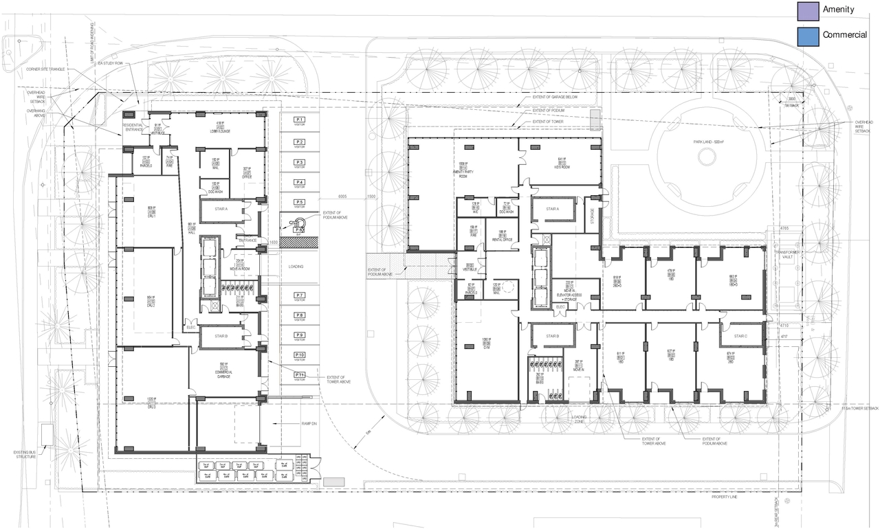
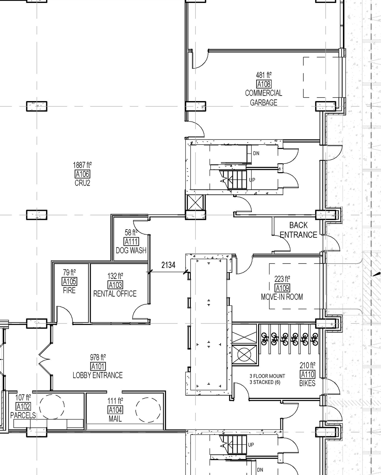
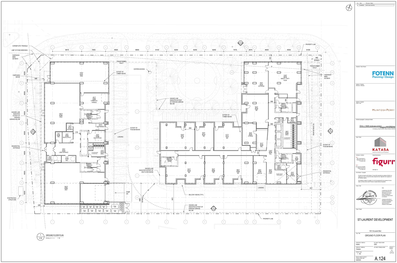
  • Construction site plan for project from page 3 of the file '2024-07-23 - UDRP Design Brief - D02-02-23-0056'
  • Construction site plan for project from page 5 of the file '2024-07-23 - UDRP Design Brief - D02-02-23-0056'
  • Construction site plan for project from page 6 of the file '2024-07-23 - UDRP Design Brief - D02-02-23-0056'
  • Construction site plan for project from page 9 of the file '2024-07-23 - UDRP Design Brief - D02-02-23-0056'
  • Construction site plan for project from page 10 of the file '2024-07-23 - UDRP Design Brief - D02-02-23-0056'
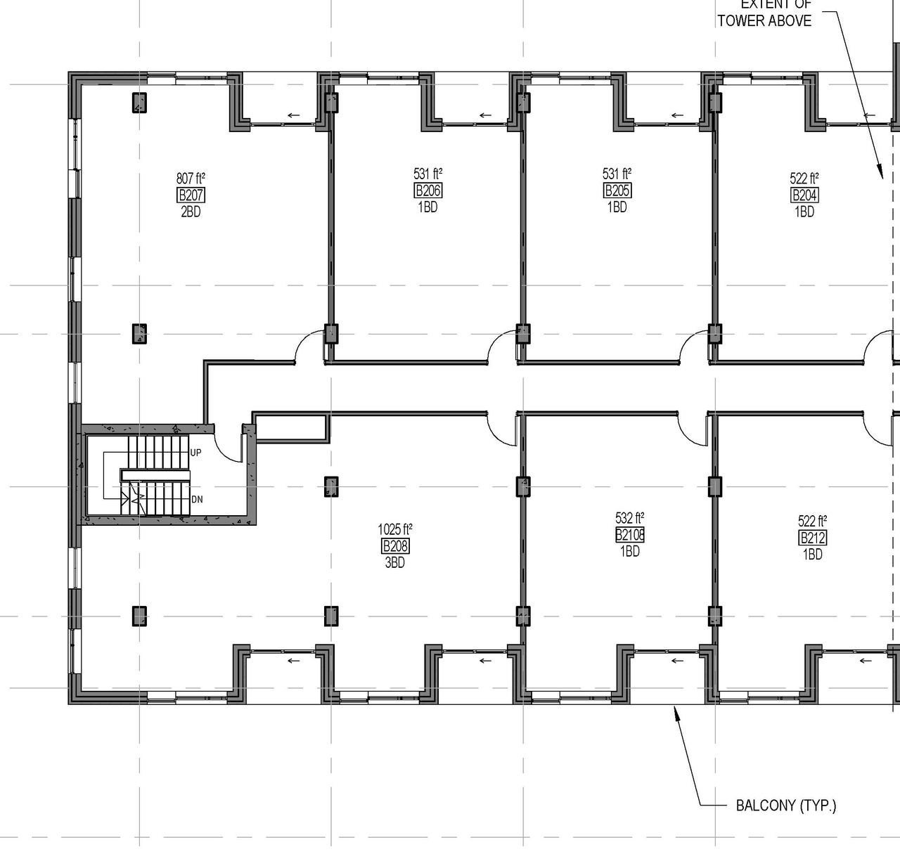
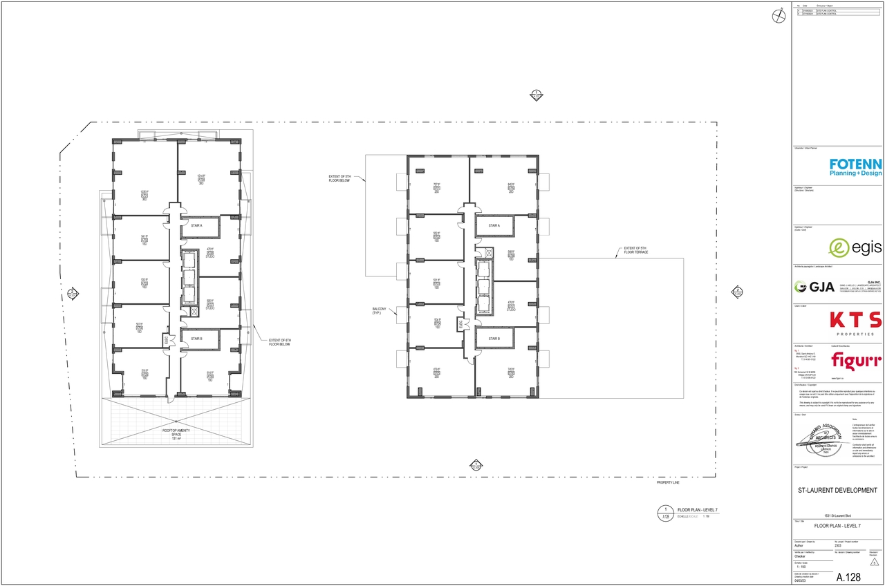
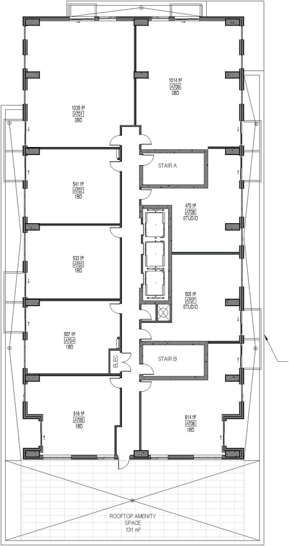
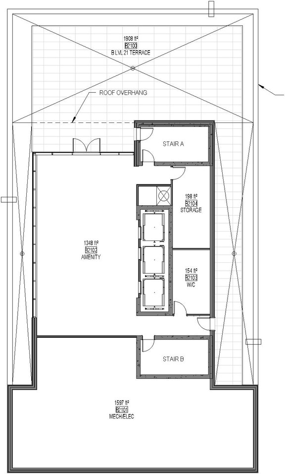
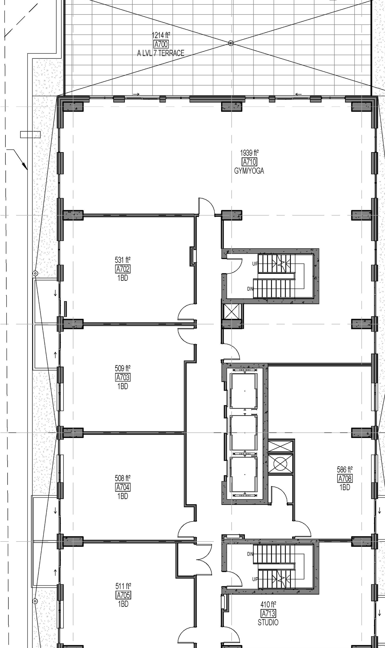
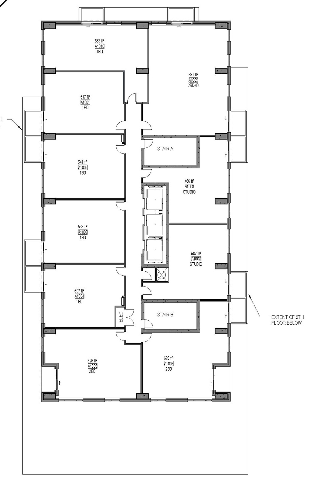
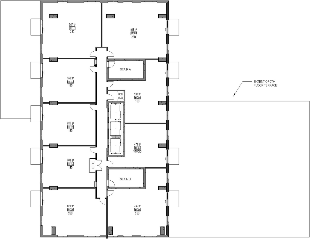
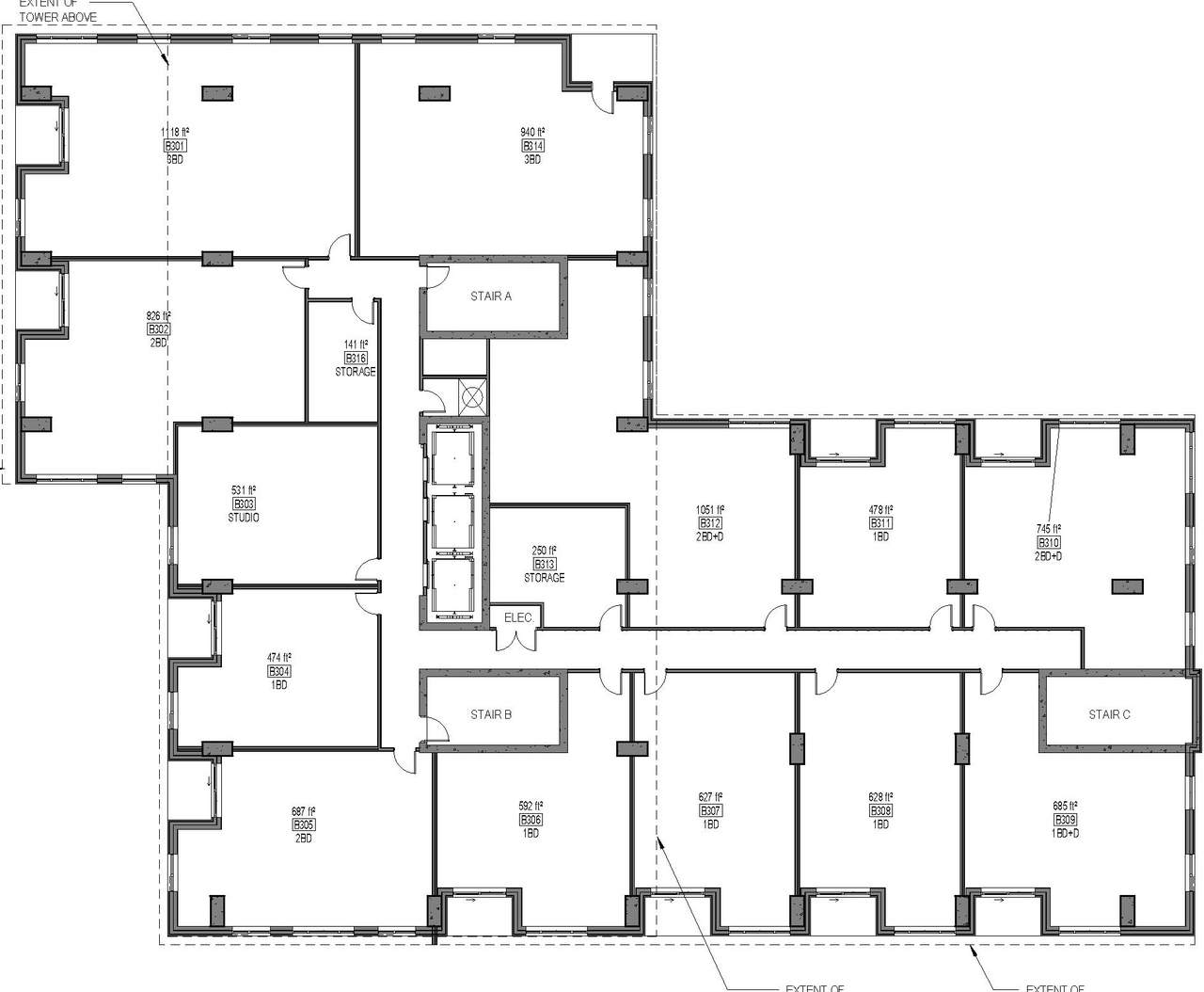
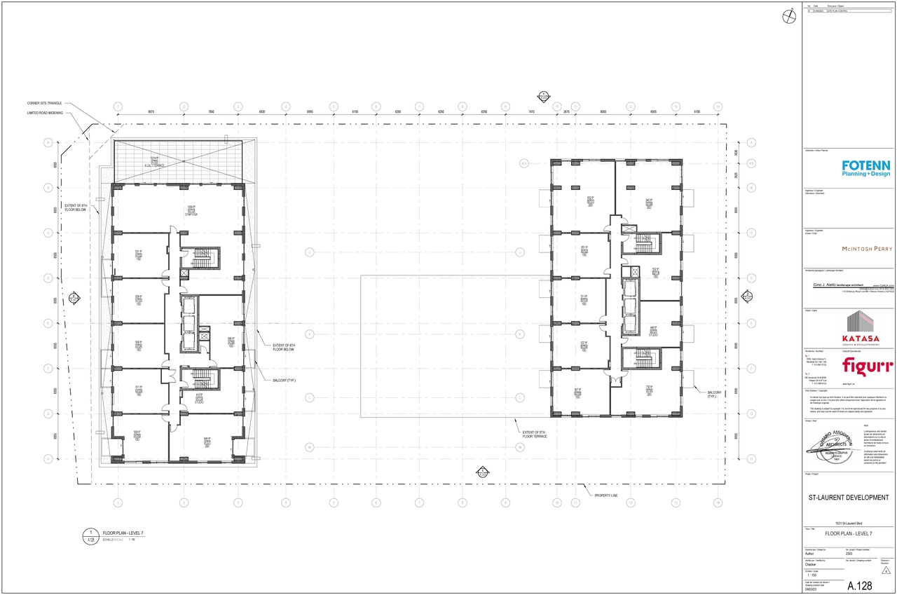
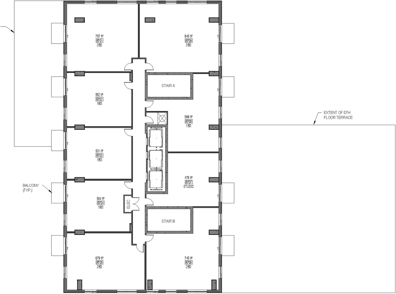
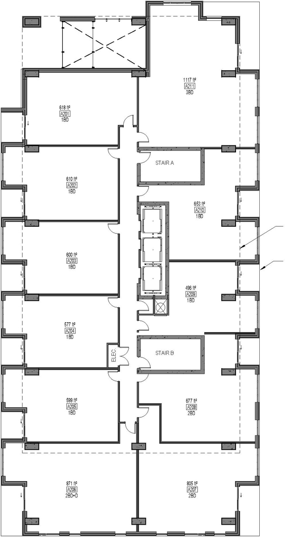
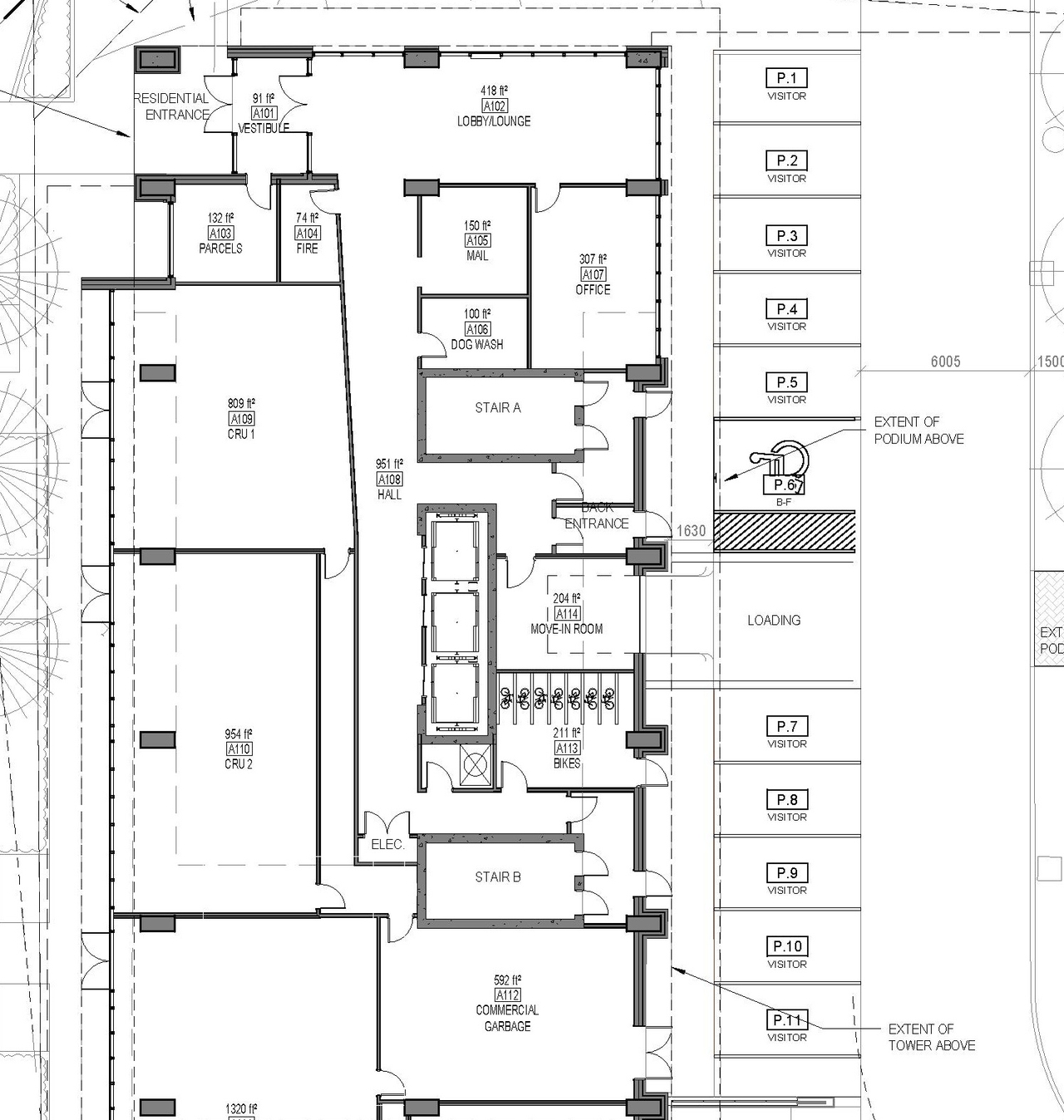
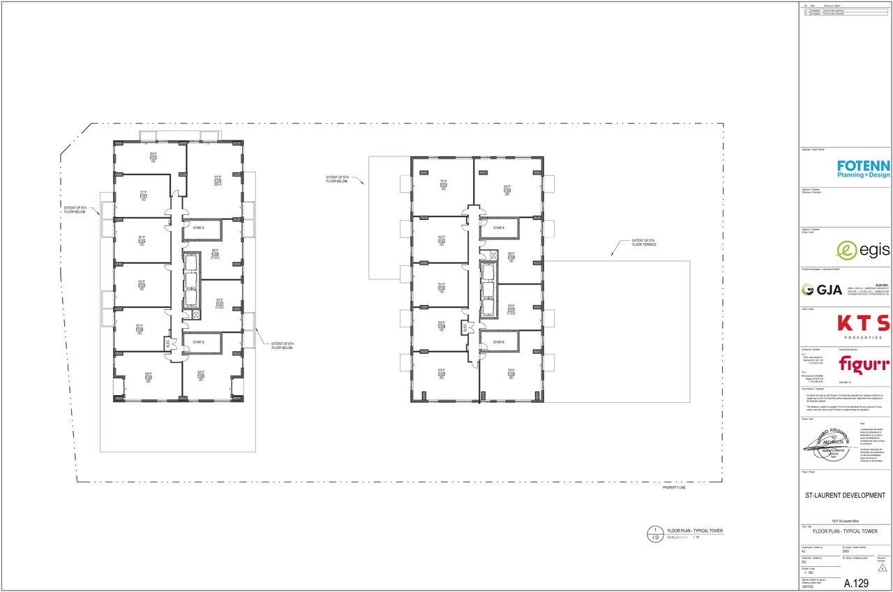
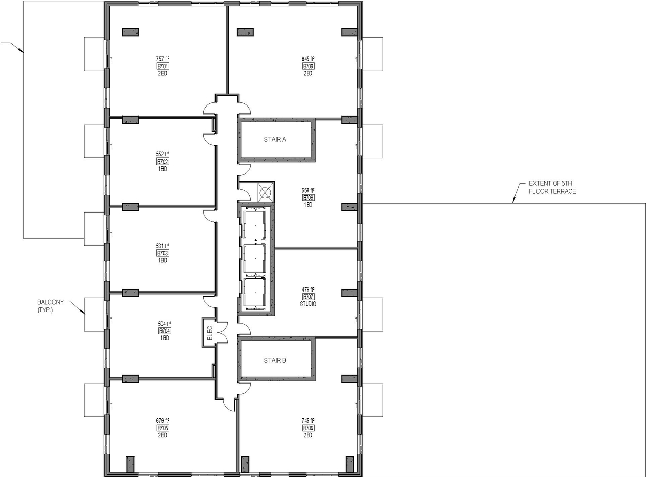
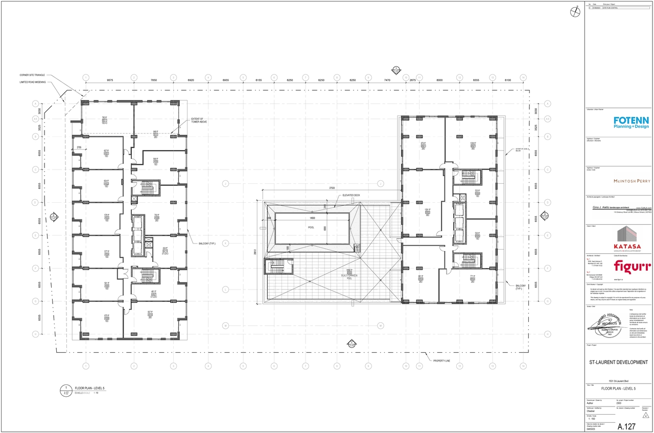
  • Floor plan for project from page 18 of the file '2024-07-23 - UDRP Design Brief - D02-02-23-0056'
  • Floor plan for project from page 19 of the file '2024-07-23 - UDRP Design Brief - D02-02-23-0056'
  • Floor plan for project from page 20 of the file '2024-07-23 - UDRP Design Brief - D02-02-23-0056'
  • Floor plan for project from page 21 of the file '2024-07-23 - UDRP Design Brief - D02-02-23-0056'
  • Floor plan for project from page 21 of the file '2024-07-23 - UDRP Design Brief - D02-02-23-0056'
  • Floor plan for project from page 22 of the file '2024-07-23 - UDRP Design Brief - D02-02-23-0056'
  • Floor plan for project from page 22 of the file '2024-07-23 - UDRP Design Brief - D02-02-23-0056'
  • Floor plan for project from page 23 of the file '2024-07-23 - UDRP Design Brief - D02-02-23-0056'
  • Floor plan for project from page 23 of the file '2024-07-23 - UDRP Design Brief - D02-02-23-0056'
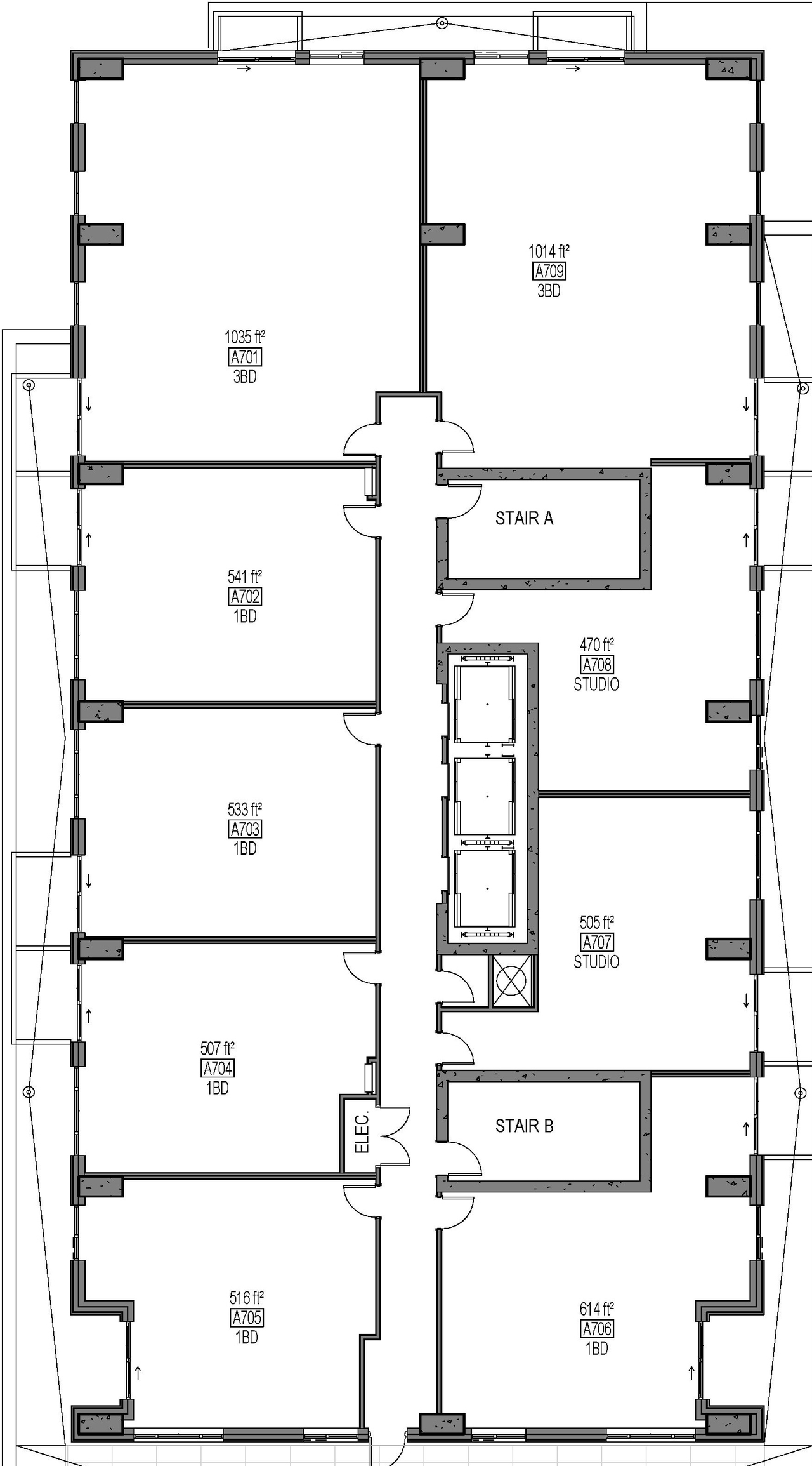
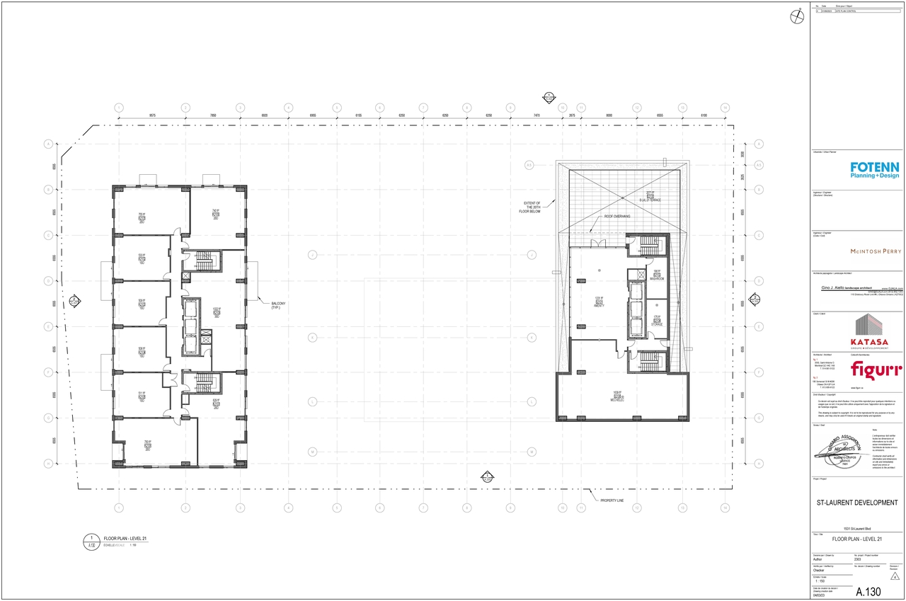
  • Floor plan for project from page 24 of the file '2024-07-23 - UDRP Design Brief - D02-02-23-0056'
  • Floor plan for project from page 24 of the file '2024-07-23 - UDRP Design Brief - D02-02-23-0056'
  • Floor plan for project from page 25 of the file '2024-07-23 - UDRP Design Brief - D02-02-23-0056'
  • Floor plan for project from page 25 of the file '2024-07-23 - UDRP Design Brief - D02-02-23-0056'
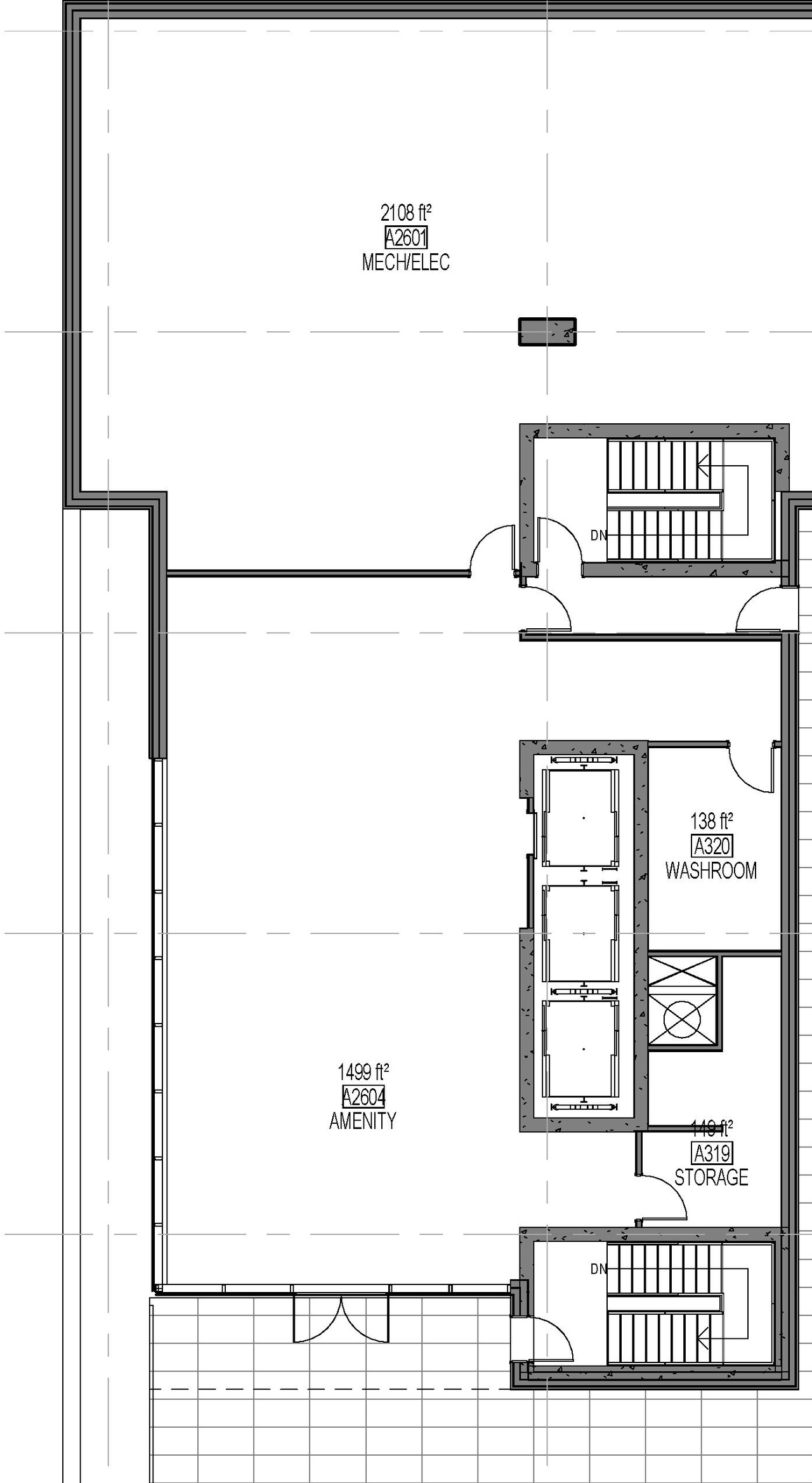
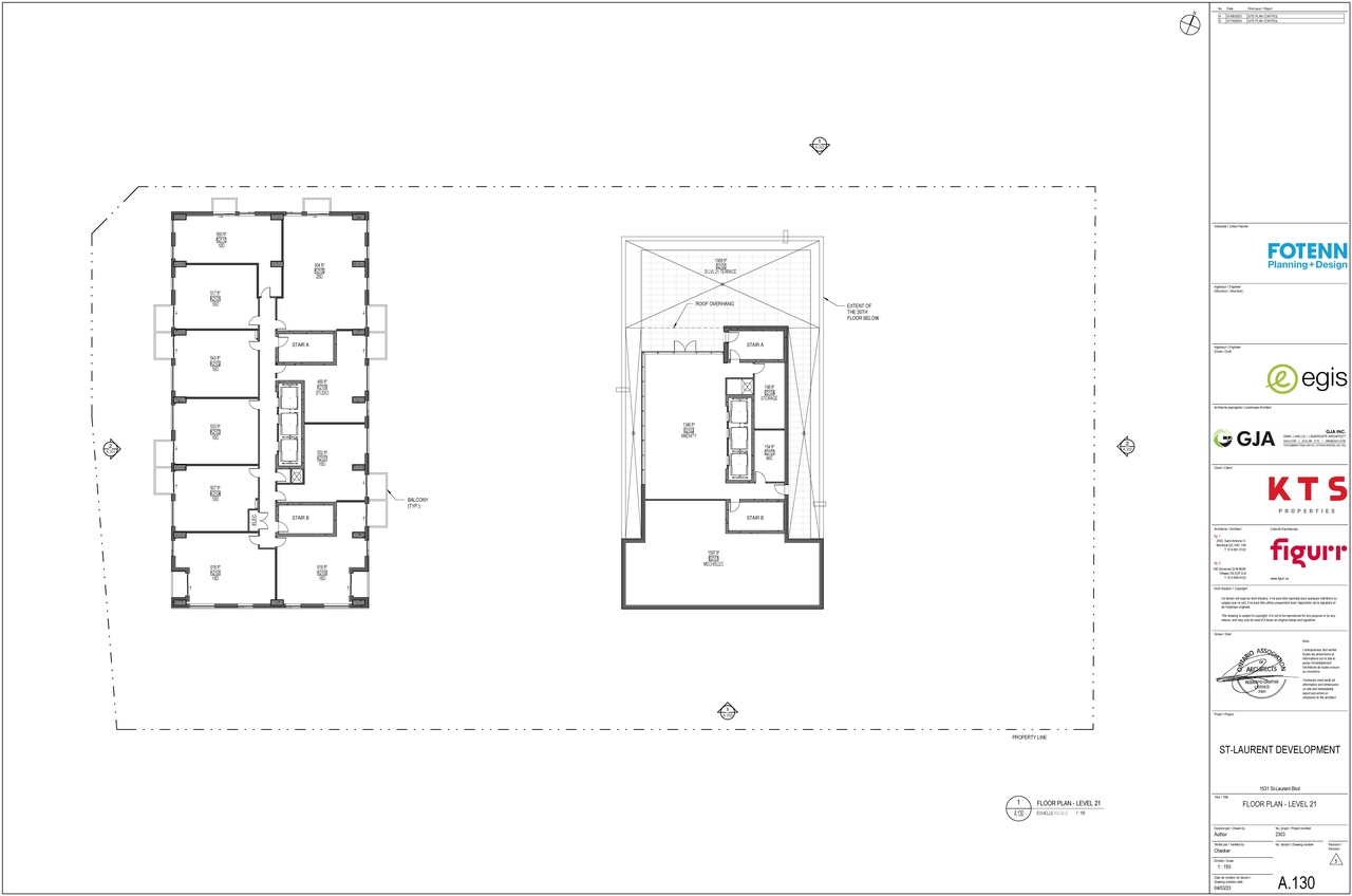
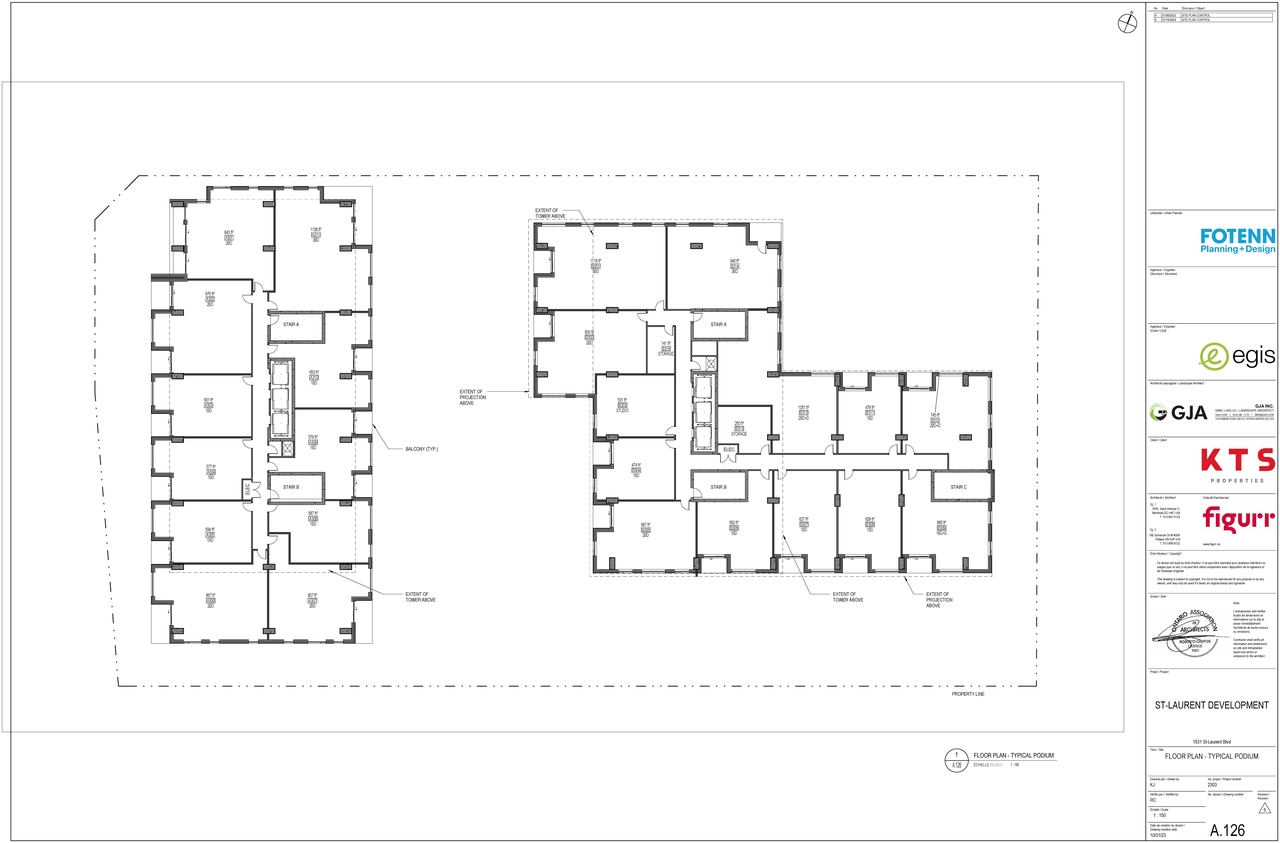
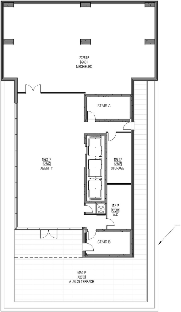
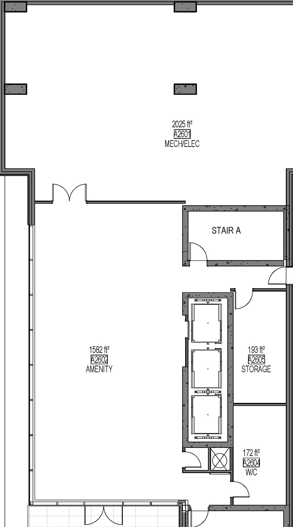
  • Floor plan for project from page 26 of the file '2024-07-23 - UDRP Design Brief - D02-02-23-0056'
  • Floor plan for project from page 26 of the file '2024-07-23 - UDRP Design Brief - D02-02-23-0056'
  • Floor plan for project from page 28 of the file '2024-07-23 - UDRP Design Brief - D02-02-23-0056'
  • Construction site plan for project from page 34 of the file '2024-07-23 - UDRP Design Brief - D02-02-23-0056'
  • Construction site plan for project from page 34 of the file '2024-07-23 - UDRP Design Brief - D02-02-23-0056'
  • Construction site plan for project from page 34 of the file '2024-07-23 - UDRP Design Brief - D02-02-23-0056'
  • Construction site plan for project from page 34 of the file '2024-07-23 - UDRP Design Brief - D02-02-23-0056'
  • Construction site plan for project from page 34 of the file '2024-07-23 - UDRP Design Brief - D02-02-23-0056'
  • Construction site plan for project from page 34 of the file '2024-07-23 - UDRP Design Brief - D02-02-23-0056'
  • Floor plan for project from page 35 of the file '2024-07-23 - UDRP Design Brief - D02-02-23-0056'
  • Construction site plan for project from page 35 of the file '2024-07-23 - UDRP Design Brief - D02-02-23-0056'
  • Construction site plan for project from page 35 of the file '2024-07-23 - UDRP Design Brief - D02-02-23-0056'
  • Construction site plan for project from page 35 of the file '2024-07-23 - UDRP Design Brief - D02-02-23-0056'
  • Construction site plan for project from page 36 of the file '2024-07-23 - UDRP Design Brief - D02-02-23-0056'
  • Construction site plan for project from page 36 of the file '2024-07-23 - UDRP Design Brief - D02-02-23-0056'
  • Construction site plan for project from page 36 of the file '2024-07-23 - UDRP Design Brief - D02-02-23-0056'
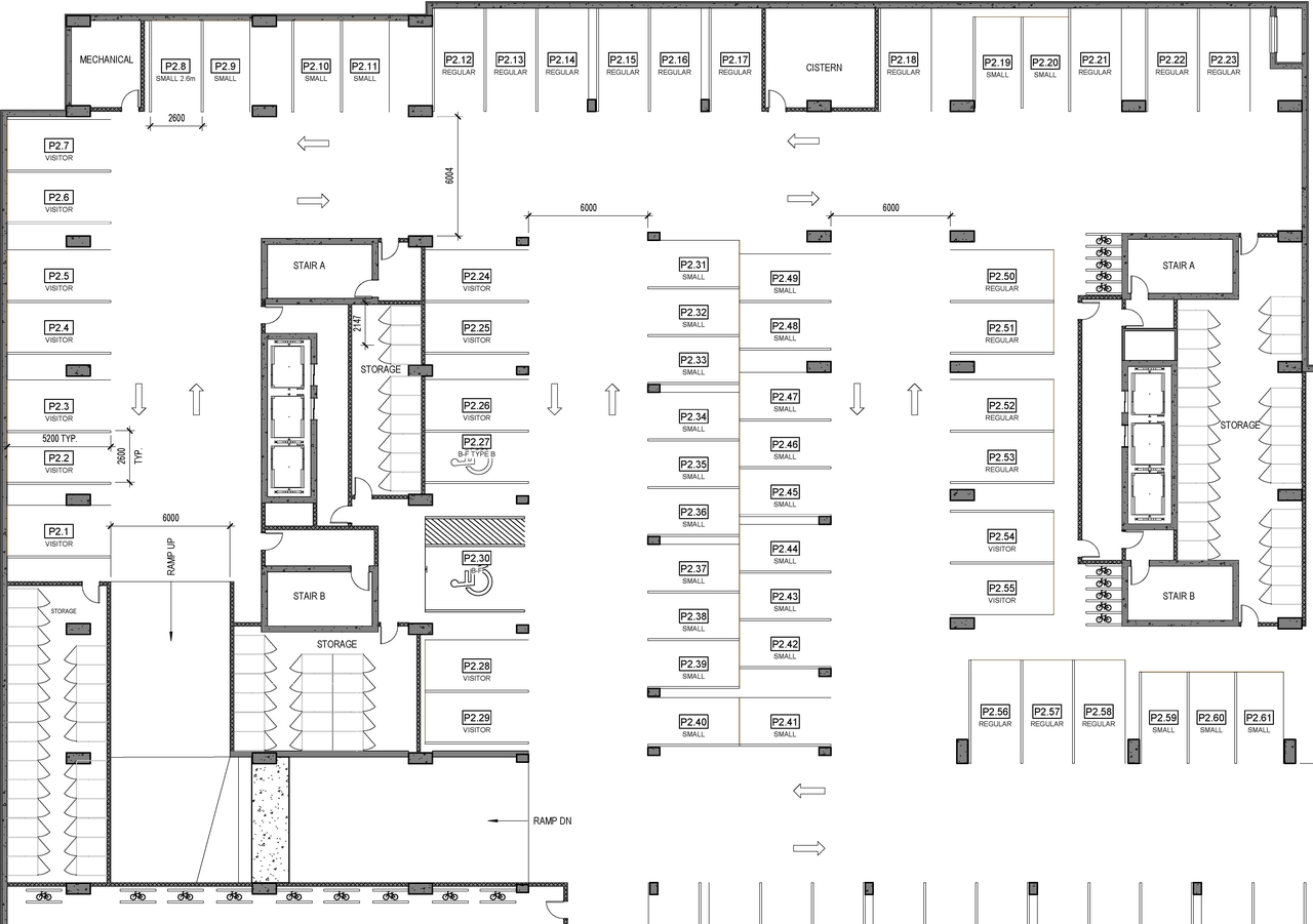
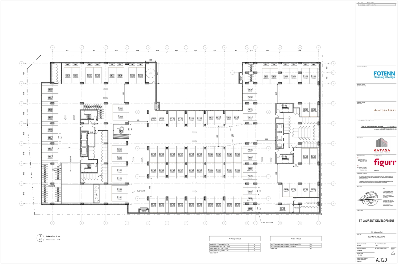
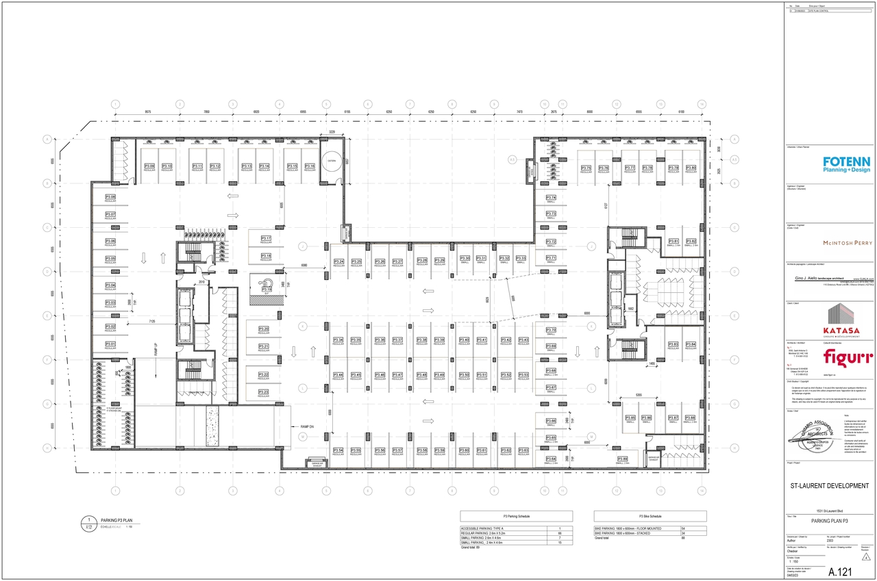
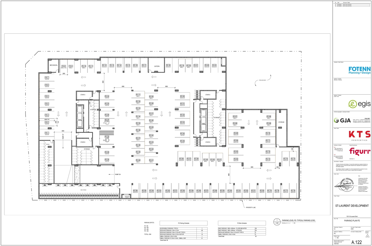
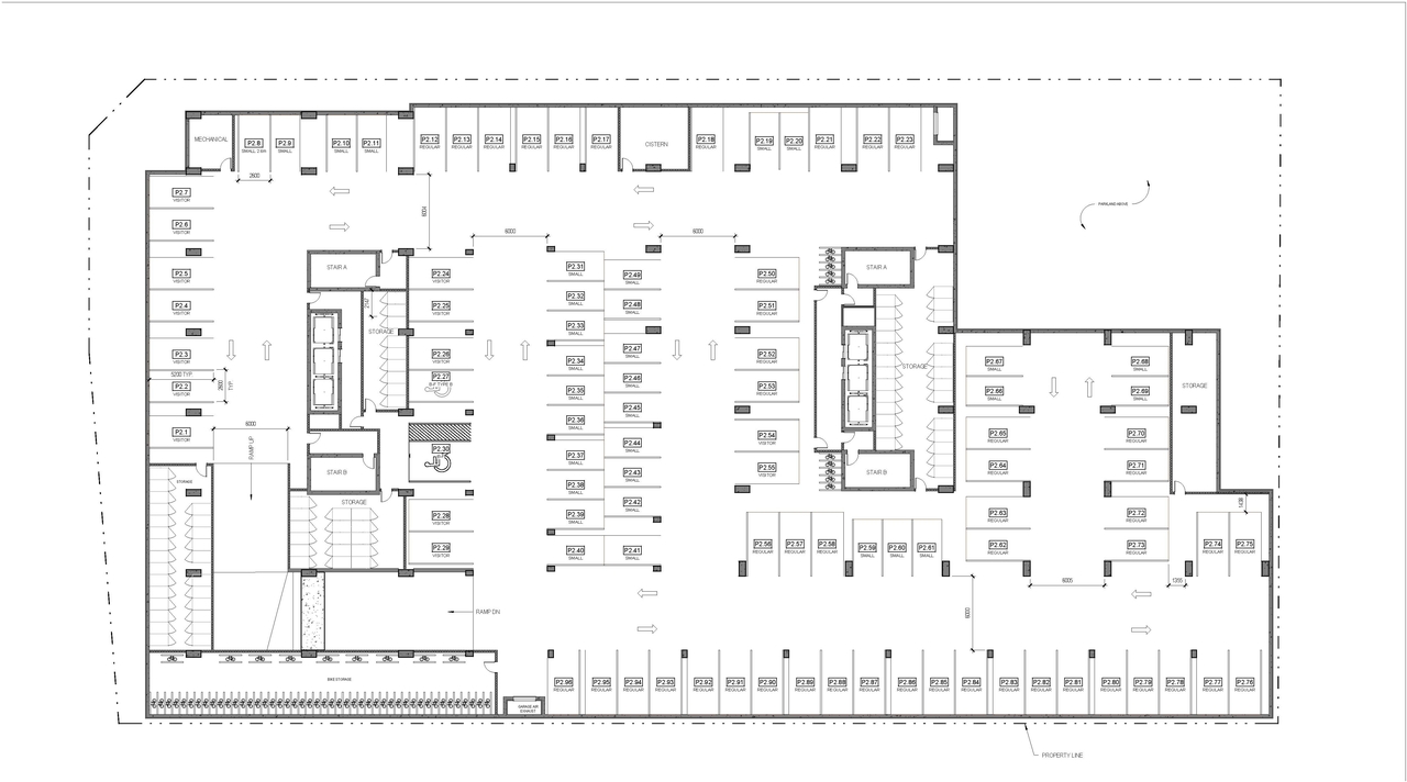
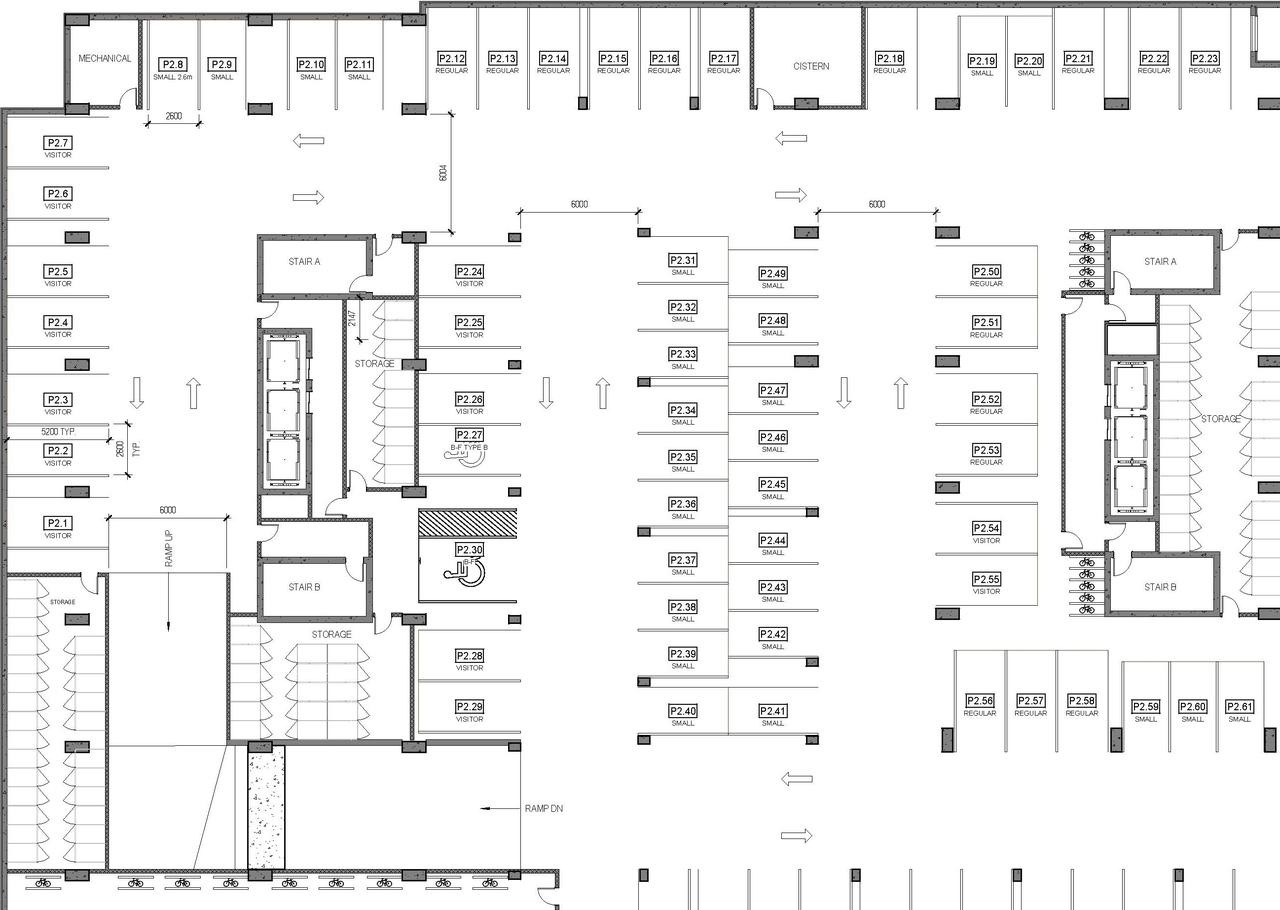
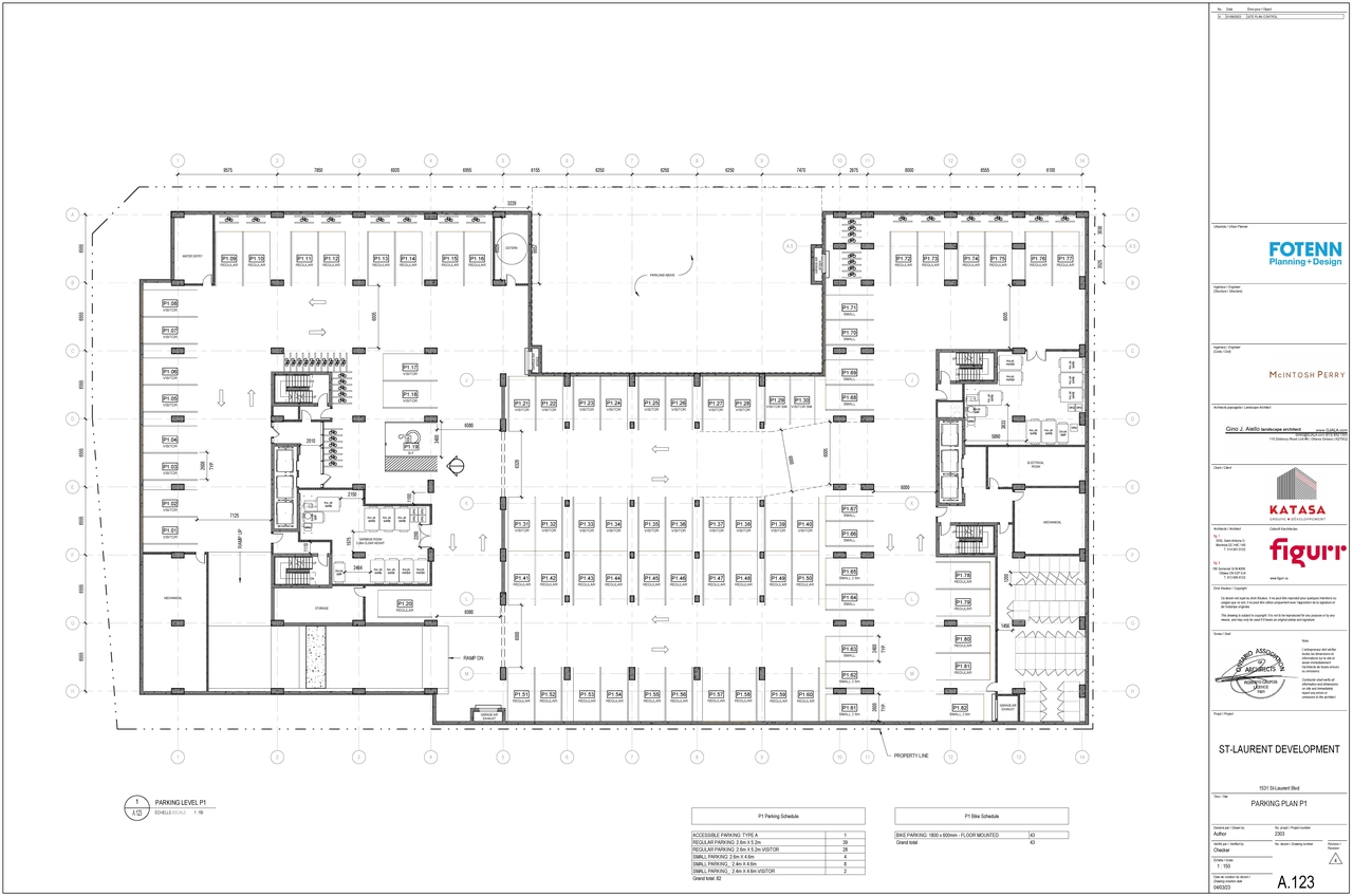
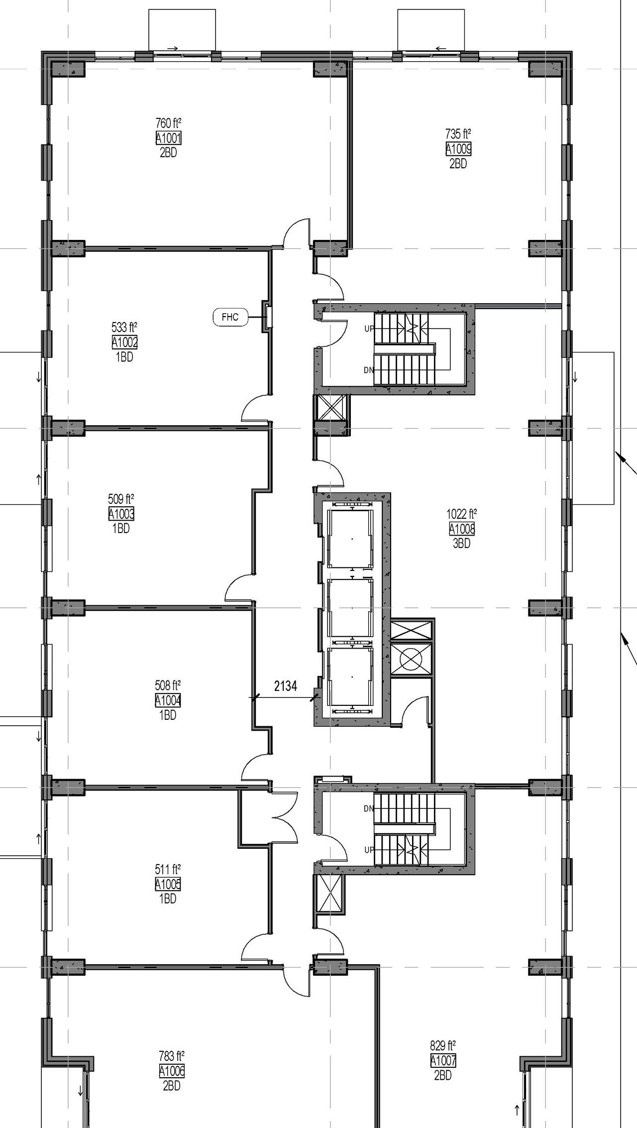
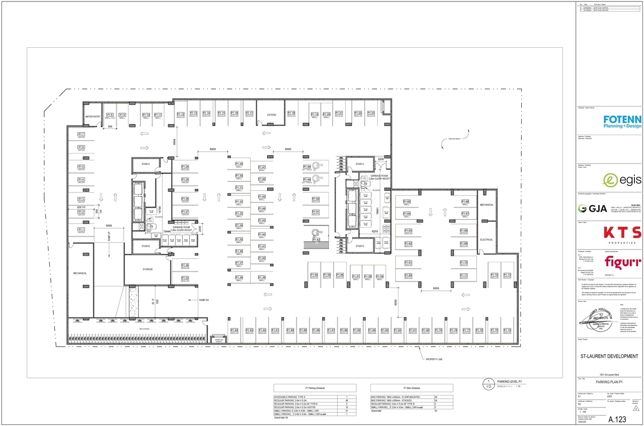
  • Floor plan for project from page 1 of the file '2024-07-23 - Parking & Floor Plans - D02-02-23-0056'
  • Floor plan for project from page 2 of the file '2024-07-23 - Parking & Floor Plans - D02-02-23-0056'
  • Floor plan for project from page 3 of the file '2024-07-23 - Parking & Floor Plans - D02-02-23-0056'
  • Floor plan for project from page 4 of the file '2024-07-23 - Parking & Floor Plans - D02-02-23-0056'
  • Floor plan for project from page 5 of the file '2024-07-23 - Parking & Floor Plans - D02-02-23-0056'
  • Floor plan for project from page 6 of the file '2024-07-23 - Parking & Floor Plans - D02-02-23-0056'
  • Floor plan for project from page 7 of the file '2024-07-23 - Parking & Floor Plans - D02-02-23-0056'
  • Floor plan for project from page 8 of the file '2024-07-23 - Parking & Floor Plans - D02-02-23-0056'
  • Floor plan for project from page 9 of the file '2024-07-23 - Parking & Floor Plans - D02-02-23-0056'
  • Floor plan for project from page 10 of the file '2024-07-23 - Parking & Floor Plans - D02-02-23-0056'
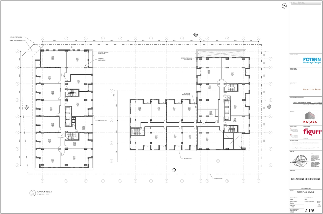
  • Floor plan for project from page 1 of the file '2023-06-15 - Floor Plans - D02-02-23-0056'
  • Floor plan for project from page 2 of the file '2023-06-15 - Floor Plans - D02-02-23-0056'
  • Floor plan for project from page 4 of the file '2023-06-15 - Floor Plans - D02-02-23-0056'
  • Floor plan for project from page 5 of the file '2023-06-15 - Floor Plans - D02-02-23-0056'
  • Floor plan for project from page 6 of the file '2023-06-15 - Floor Plans - D02-02-23-0056'
  • Floor plan for project from page 7 of the file '2023-06-15 - Floor Plans - D02-02-23-0056'
  • Floor plan for project from page 8 of the file '2023-06-15 - Floor Plans - D02-02-23-0056'
  • Floor plan for project from page 9 of the file '2023-06-15 - Floor Plans - D02-02-23-0056'
  • Floor plan for project from page 10 of the file '2023-06-15 - Floor Plans - D02-02-23-0056'
  • Floor plan for project from page 11 of the file '2023-06-15 - Floor Plans - D02-02-23-0056'
  • Floor plan for project from page 12 of the file '2023-06-15 - Floor Plans - D02-02-23-0056'
  • Floor plan for project from page 13 of the file '2023-06-15 - Floor Plans - D02-02-23-0056'
  • Construction site plan for project from page 3 of the file '2024-07-23 - UDRP Design Brief - D02-02-23-0056'
  • Construction site plan for project from page 5 of the file '2024-07-23 - UDRP Design Brief - D02-02-23-0056'
  • Construction site plan for project from page 6 of the file '2024-07-23 - UDRP Design Brief - D02-02-23-0056'
  • Construction site plan for project from page 9 of the file '2024-07-23 - UDRP Design Brief - D02-02-23-0056'
  • Construction site plan for project from page 10 of the file '2024-07-23 - UDRP Design Brief - D02-02-23-0056'
  • Floor plan for project from page 18 of the file '2024-07-23 - UDRP Design Brief - D02-02-23-0056'
  • Floor plan for project from page 19 of the file '2024-07-23 - UDRP Design Brief - D02-02-23-0056'
  • Floor plan for project from page 20 of the file '2024-07-23 - UDRP Design Brief - D02-02-23-0056'
  • Floor plan for project from page 21 of the file '2024-07-23 - UDRP Design Brief - D02-02-23-0056'
  • Floor plan for project from page 21 of the file '2024-07-23 - UDRP Design Brief - D02-02-23-0056'
  • Floor plan for project from page 22 of the file '2024-07-23 - UDRP Design Brief - D02-02-23-0056'
  • Floor plan for project from page 22 of the file '2024-07-23 - UDRP Design Brief - D02-02-23-0056'
  • Floor plan for project from page 23 of the file '2024-07-23 - UDRP Design Brief - D02-02-23-0056'
  • Floor plan for project from page 23 of the file '2024-07-23 - UDRP Design Brief - D02-02-23-0056'
  • Floor plan for project from page 24 of the file '2024-07-23 - UDRP Design Brief - D02-02-23-0056'
  • Floor plan for project from page 24 of the file '2024-07-23 - UDRP Design Brief - D02-02-23-0056'
  • Floor plan for project from page 25 of the file '2024-07-23 - UDRP Design Brief - D02-02-23-0056'
  • Floor plan for project from page 25 of the file '2024-07-23 - UDRP Design Brief - D02-02-23-0056'
  • Floor plan for project from page 26 of the file '2024-07-23 - UDRP Design Brief - D02-02-23-0056'
  • Floor plan for project from page 26 of the file '2024-07-23 - UDRP Design Brief - D02-02-23-0056'
  • Floor plan for project from page 28 of the file '2024-07-23 - UDRP Design Brief - D02-02-23-0056'
  • Construction site plan for project from page 34 of the file '2024-07-23 - UDRP Design Brief - D02-02-23-0056'
  • Construction site plan for project from page 34 of the file '2024-07-23 - UDRP Design Brief - D02-02-23-0056'
  • Construction site plan for project from page 34 of the file '2024-07-23 - UDRP Design Brief - D02-02-23-0056'
  • Construction site plan for project from page 34 of the file '2024-07-23 - UDRP Design Brief - D02-02-23-0056'
  • Construction site plan for project from page 34 of the file '2024-07-23 - UDRP Design Brief - D02-02-23-0056'
  • Construction site plan for project from page 34 of the file '2024-07-23 - UDRP Design Brief - D02-02-23-0056'
  • Floor plan for project from page 35 of the file '2024-07-23 - UDRP Design Brief - D02-02-23-0056'
  • Construction site plan for project from page 35 of the file '2024-07-23 - UDRP Design Brief - D02-02-23-0056'
  • Construction site plan for project from page 35 of the file '2024-07-23 - UDRP Design Brief - D02-02-23-0056'
  • Construction site plan for project from page 35 of the file '2024-07-23 - UDRP Design Brief - D02-02-23-0056'
  • Construction site plan for project from page 36 of the file '2024-07-23 - UDRP Design Brief - D02-02-23-0056'
  • Construction site plan for project from page 36 of the file '2024-07-23 - UDRP Design Brief - D02-02-23-0056'
  • Construction site plan for project from page 36 of the file '2024-07-23 - UDRP Design Brief - D02-02-23-0056'
  • Floor plan for project from page 1 of the file '2024-07-23 - Parking & Floor Plans - D02-02-23-0056'
  • Floor plan for project from page 2 of the file '2024-07-23 - Parking & Floor Plans - D02-02-23-0056'
  • Floor plan for project from page 3 of the file '2024-07-23 - Parking & Floor Plans - D02-02-23-0056'
  • Floor plan for project from page 4 of the file '2024-07-23 - Parking & Floor Plans - D02-02-23-0056'
  • Floor plan for project from page 5 of the file '2024-07-23 - Parking & Floor Plans - D02-02-23-0056'
  • Floor plan for project from page 6 of the file '2024-07-23 - Parking & Floor Plans - D02-02-23-0056'
  • Floor plan for project from page 7 of the file '2024-07-23 - Parking & Floor Plans - D02-02-23-0056'
  • Floor plan for project from page 8 of the file '2024-07-23 - Parking & Floor Plans - D02-02-23-0056'
  • Floor plan for project from page 9 of the file '2024-07-23 - Parking & Floor Plans - D02-02-23-0056'
  • Floor plan for project from page 10 of the file '2024-07-23 - Parking & Floor Plans - D02-02-23-0056'
  • Floor plan for project from page 1 of the file '2023-06-15 - Floor Plans - D02-02-23-0056'
  • Floor plan for project from page 2 of the file '2023-06-15 - Floor Plans - D02-02-23-0056'
  • Floor plan for project from page 4 of the file '2023-06-15 - Floor Plans - D02-02-23-0056'
  • Floor plan for project from page 5 of the file '2023-06-15 - Floor Plans - D02-02-23-0056'
  • Floor plan for project from page 6 of the file '2023-06-15 - Floor Plans - D02-02-23-0056'
  • Floor plan for project from page 7 of the file '2023-06-15 - Floor Plans - D02-02-23-0056'
  • Floor plan for project from page 8 of the file '2023-06-15 - Floor Plans - D02-02-23-0056'
  • Floor plan for project from page 9 of the file '2023-06-15 - Floor Plans - D02-02-23-0056'
  • Floor plan for project from page 10 of the file '2023-06-15 - Floor Plans - D02-02-23-0056'
  • Floor plan for project from page 11 of the file '2023-06-15 - Floor Plans - D02-02-23-0056'
  • Floor plan for project from page 12 of the file '2023-06-15 - Floor Plans - D02-02-23-0056'
  • Floor plan for project from page 13 of the file '2023-06-15 - Floor Plans - D02-02-23-0056'

Files #

TypeNameLinks
Application Summary2023-07-05 - Application Summary - D02-02-23-0056Download PDF
Architectural Plans2024-07-23 - Site Plan - D02-02-23-0056Download PDF
Architectural Plans2024-07-23 - Site Grading, Drainage & Erosion & Sediment Control Plan - D02-02-23-0056Download PDF
Architectural Plans2024-07-23 - Section Plan - D02-02-23-0056Download PDF
Architectural Plans2024-07-23 - Elevations - D02-02-23-0056Download PDF
Architectural Plans2023-06-15 - Site Plan - D02-02-23-0056Download PDF
Architectural Plans2023-06-15 - Site Grading, Drainage and Erosion and Sediment Control Plan - D02-02-23-0056Download PDF
Architectural Plans2023-06-15 - Sections Plan - D02-02-23-0056Download PDF
Architectural Plans2023-06-15 - Elevations - D02-02-23-0056Download PDF
Design Brief2024-07-23 - UDRP Design Brief - D02-02-23-0056Download PDF
Environmental2023-06-15 - Phase I Environmental Site Assessment - D02-02-23-0056Download PDF
Floor Plan2024-07-23 - Parking & Floor Plans - D02-02-23-0056Download PDF
Floor Plan2023-06-15 - Floor Plans - D02-02-23-0056Download PDF
Geotechnical Report2023-06-30 - Geotechnical Investigation - D02-02-23-0056Download PDF
Geotechnical Report2023-06-15 - Geotechnical Investigation - D02-02-23-0056Download PDF
Landscape Plan2024-07-23 - Landscape Plan - D02-02-23-0056Download PDF
Landscape Plan2023-06-15 - Landscape Plan -D02-02-23-0056Download PDF
Noise Study2024-07-23 - Transportation Noise Assessment - D02-02-23-0056Download PDF
Noise Study2023-06-15 - Transportation Noise Assessment - D02-02-23-0056Download PDF
Planning2023-06-15 - Planning Rationale - D02-02-23-0056Download PDF
Shadow Study2024-07-23 - Shadow Studies - D02-02-23-0056Download PDF
Shadow Study2023-06-15 - Shadow studies - D02-02-23-0056Download PDF
Site Servicing2024-07-23 - Site Servicing Plan - D02-02-23-0056Download PDF
Site Servicing2024-07-23 - Servicing & SWM Report - D02-02-23-0056Download PDF
Site Servicing2023-06-15 - Site Servicing Plan - D02-02-23-0056Download PDF
Site Servicing2023-06-15 - Servicing and Stormwater Management Report -D02-02-23-0056Download PDF
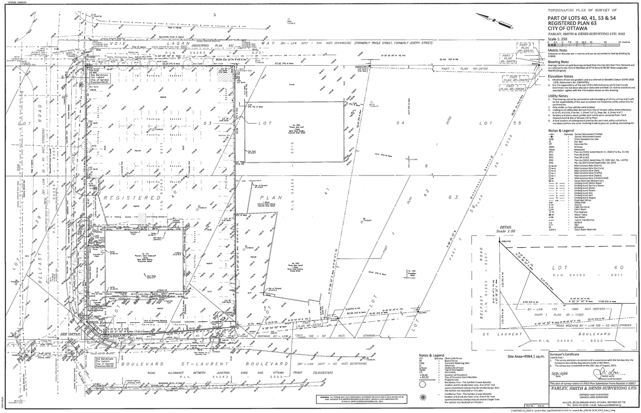
Surveying2023-06-15 - Topographic Plan of Survey - D02-02-23-0056Download PDF
Transportation Analysis2024-07-23 - TIA Strategy Report - D02-02-23-0056Download PDF
Transportation Analysis2023-06-15 - Transportation Impact Assessment - D02-02-23-0056Download PDF
Tree Information and Conservation2023-06-15 - Tree Conservation Report Letter - D02-02-23-0056Download PDF
Wind Study2024-07-23 - Wind Study - D02-02-23-0056Download PDF
Wind Study2023-06-15 - Pedestrian Level Wind Study - D02-02-23-0056Download PDF
2024-07-23 - Supplemental Phase II ESA - D02-02-23-0056Download PDF
2024-07-23 - Phase I & II ESA - D02-02-23-0056Download PDF
2023-06-15 - Presentation - D02-02-23-0056Download PDF