224 Preston St. (D02-02-23-0040)#
Summary#
| Application Status | Inactive |
| Review Status | Zoning By-law in Effect |
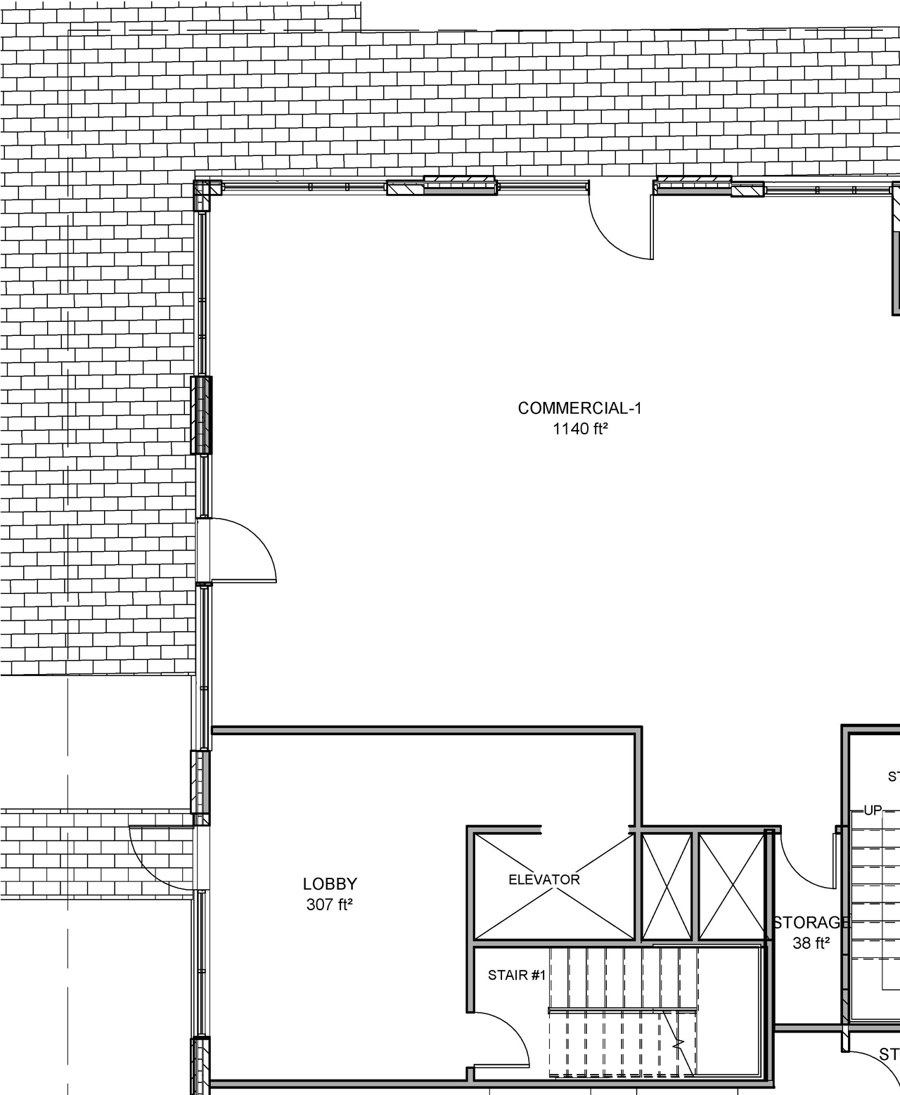
| Description | Construction of a 6 Storey mid-rise, Mixed-use building with 2 commercial units on the ground floor and a total of 28 residential units; 19 bachelor units and 9 one-bedroom units. A total of 149 square meters of amenity space is provided via private balconies, communal terraces and outdoor patio space. |
| Ward | Ward 14 - Ariel Troster |
| Date Initiated | 2023-05-16 |
| Last Updated | 2024-06-20 |
Location#
Select a marker to view the address.



