381 Kent St. (D02-02-23-0020)#
Summary#
| Application Status | Inactive |
| Review Status | Zoning By-law in Effect |
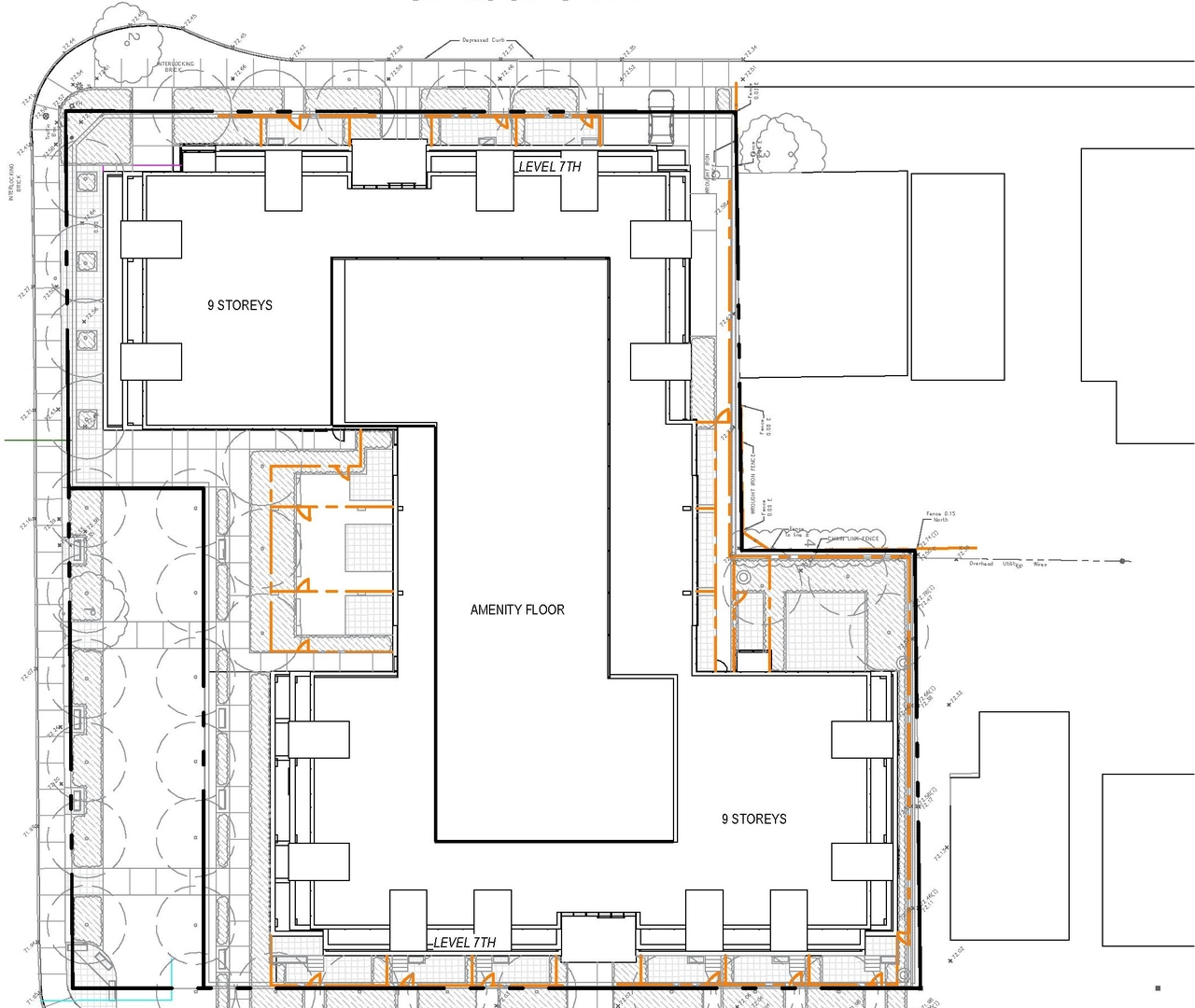
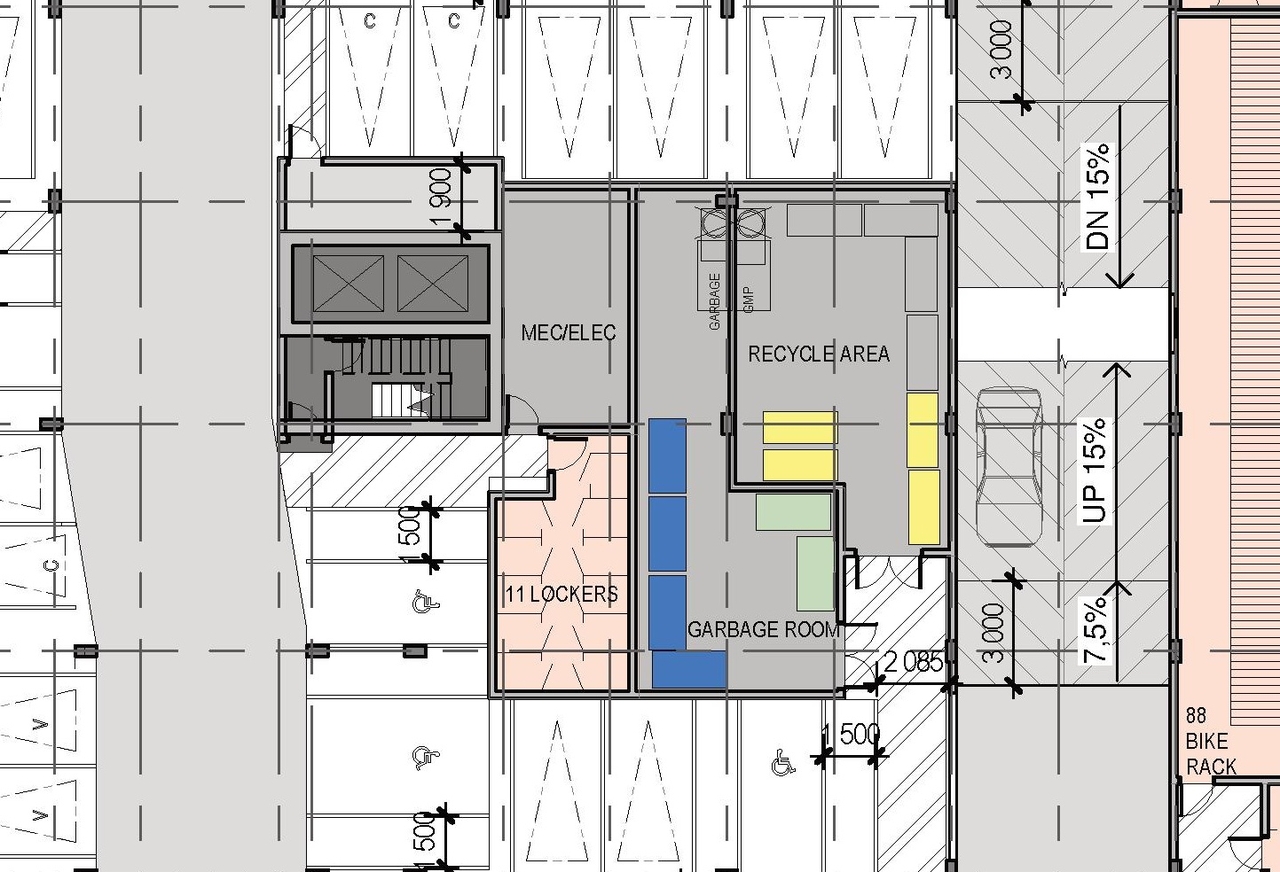
| Description | The proposed Zoning By-law Amendment serves to apply a GM General Mixed Use zoning with a site-specific exception to the site in order to establish a 9-storey mixed-use residential building with commercial elements at-grade. |
| Ward | Ward 14 - Ariel Troster |
| Date Initiated | 2023-03-22 |
| Last Updated | 2024-09-28 |
Renders#
Location#
Select a marker to view the address.

































































