393 Mcarthur (D02-02-22-0058)

393 Mcarthur (D02-02-22-0058) #

Summary #

Application StatusInactive
Review StatusZoning By-law in Effect
DescriptionTo permit site-specific provisions in support of the proposed six-storey mixed-use building.
WardWard 12 - Stéphanie Plante
Date Initiated2022-06-23
Last Updated2023-09-18

Renders #

  • Rendering of building from page 1 of the file '2023-06-12 - Perspective Views - D02-02-22-0058'
  • Rendering of building from page 3 of the file '2023-06-12 - Perspective Views - D02-02-22-0058'
  • Rendering of building from page 1 of the file '2022-12-20 - Perspective Views - D02-02-22-0058'
  • Rendering of building from page 2 of the file '2023-06-12 - Perspective Views - D02-02-22-0058'
  • Rendering of building from page 3 of the file '2022-12-20 - Perspective Views - D02-02-22-0058'
  • Rendering of building from page 7 of the file '2022-06-23 - Design Brief - D02-02-22-0058'
  • Rendering of building from page 2 of the file '2022-12-20 - Perspective Views - D02-02-22-0058'
  • Rendering of building from page 6 of the file '2022-06-23 - Design Brief - D02-02-22-0058'
  • Rendering of building from page 7 of the file '2022-06-23 - Design Brief - D02-02-22-0058'
  • Rendering of building from page 6 of the file '2022-06-23 - Design Brief - D02-02-22-0058'
  • Rendering of building from page 9 of the file '2022-06-23 - Design Brief - D02-02-22-0058'
  • Rendering of building from page 9 of the file '2022-06-23 - Design Brief - D02-02-22-0058'
  • Rendering of building from page 10 of the file '2022-06-23 - Design Brief - D02-02-22-0058'
  • Rendering of building from page 7 of the file '2022-06-23 - Design Brief - D02-02-22-0058'
  • Rendering of building from page 1 of the file '2023-06-12 - Perspective Views - D02-02-22-0058'
  • Rendering of building from page 3 of the file '2023-06-12 - Perspective Views - D02-02-22-0058'
  • Rendering of building from page 1 of the file '2022-12-20 - Perspective Views - D02-02-22-0058'
  • Rendering of building from page 2 of the file '2023-06-12 - Perspective Views - D02-02-22-0058'
  • Rendering of building from page 3 of the file '2022-12-20 - Perspective Views - D02-02-22-0058'
  • Rendering of building from page 7 of the file '2022-06-23 - Design Brief - D02-02-22-0058'
  • Rendering of building from page 2 of the file '2022-12-20 - Perspective Views - D02-02-22-0058'
  • Rendering of building from page 6 of the file '2022-06-23 - Design Brief - D02-02-22-0058'
  • Rendering of building from page 7 of the file '2022-06-23 - Design Brief - D02-02-22-0058'
  • Rendering of building from page 6 of the file '2022-06-23 - Design Brief - D02-02-22-0058'
  • Rendering of building from page 9 of the file '2022-06-23 - Design Brief - D02-02-22-0058'
  • Rendering of building from page 9 of the file '2022-06-23 - Design Brief - D02-02-22-0058'
  • Rendering of building from page 10 of the file '2022-06-23 - Design Brief - D02-02-22-0058'
  • Rendering of building from page 7 of the file '2022-06-23 - Design Brief - D02-02-22-0058'

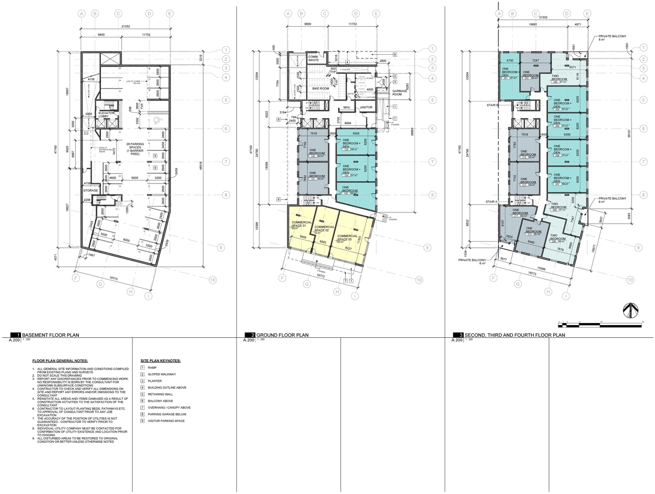
Site and Floor Plans #

  • Construction site plan for project from page 1 of the file '2023-06-12 - Floor Plans - D02-02-22-0058'
  • Floor plan for project from page 1 of the file '2023-06-12 - Floor Plans - D02-02-22-0058'
  • Construction site plan for project from page 2 of the file '2023-06-12 - Floor Plans - D02-02-22-0058'
  • Construction site plan for project from page 1 of the file '2023-06-12 - Floor Plans - D02-02-22-0058'
  • Floor plan for project from page 1 of the file '2023-06-12 - Floor Plans - D02-02-22-0058'
  • Construction site plan for project from page 2 of the file '2023-06-12 - Floor Plans - D02-02-22-0058'

Documents #

TypeDocument
Application Summary2022-07-26 - Application Summary - D02-02-22-0058 & D07-12-22-0102
Architectural Plans2023-06-12 - Site Plan - D02-02-22-0058
Architectural Plans2023-06-12 - Elevations - D02-02-22-0058
Architectural Plans2022-12-20 - Site Plan - D02-02-22-0058
Architectural Plans2022-12-20 - Roof Plan and Drainage Plan - D02-02-22-0058
Architectural Plans2022-12-20 - Notes Plan C-4 - D02-02-22-0058
Architectural Plans2022-12-20 - Elevations - D02-02-22-0058
Architectural Plans2022-06-23 - Site Plan - D02-02-22-0058
Architectural Plans2022-06-23 - Roof Plan and Drainage Plan - D02-02-22-0058
Architectural Plans2022-06-23 - Engineering Notes Plan - D02-02-22-0058
Architectural Plans2022-06-23 - Elevations - D02-02-22-0058
Design Brief2022-06-23 - Design Brief - D02-02-22-0058
Environmental2022-06-23 - Phase Two Environmental Site Assessment - D02-02-22-0058
Environmental2022-06-23 - Phase One Environmental Site Assessment - D02-02-22-0058
Existing Conditions2022-12-20 - Existing Conditions, Grading Plan and Sediment Control Plan - D02-02-22-0058
Existing Conditions2022-06-23 - Existing Conditions Grading Plan and Sediment Control Plan - D02-02-22-0058
Floor Plan2023-06-12 - Floor Plans - D02-02-22-0058
Floor Plan2022-12-20 - Floor Plans - D02-02-22-0058
Floor Plan2022-06-23 - Floor Plans (2) - D02-02-22-0058
Floor Plan2022-06-23 - Floor Plans - D02-02-22-0058
Geotechnical Report2022-06-23 - Geotechnical Investigation - D02-02-22-0058
Landscape Plan2023-06-12 - Landscape Plan - D02-02-22-0058
Landscape Plan2022-12-20 - Landscape Plan - D02-02-22-0058
Landscape Plan2022-06-23 - Landscape Plan - D02-02-22-0058
Noise Study2022-06-23 - Roadway Traffic Noise Assessment - D02-02-22-0058
Planning2022-06-23 - Planning Rationale - D02-02-22-0058
Rendering2023-06-12 - Perspective Views - D02-02-22-0058
Rendering2022-12-20 - Perspective Views - D02-02-22-0058
Site Servicing2022-12-20 - Site Servicing Plan - D02-02-22-0058
Site Servicing2022-06-23 - Site Servicing Study & Stormwater Management Report - D02-02-22-0058
Site Servicing2022-06-23 - Site Servicing Plan - D02-02-22-0058
Surveying2022-07-28 - Survey Plan - D02-02-22-0058
Surveying2022-06-23 - Survey Plan - D02-02-22-0058
Transportation Analysis2022-12-20 - Transportation Impact Assessment - D02-02-22-0058
Tree Information and Conservation2022-12-20 - Tree Conservation Report - D02-02-22-0058
Tree Information and Conservation2022-06-23 - Tree Conservation Report - D02-02-22-0058
2022-12-20 - Future Urban Context Drawing - D02-02-22-0058
2022-06-23 - Parking and Transportation Demand Management Memo - D02-02-22-0058
IDAddressLast UpdatedDate Initiated
D07-12-22-0102393 Mcarthur2024-07-032022-06-23