505 Chaudiere, Prive De La/315 Miwate (D02-02-22-0040)

505 Chaudiere, Prive De La/315 Miwate (D02-02-22-0040) #

Summary #

Application StatusFile Pending
Review StatusApplication File Pending
DescriptionThe City of Ottawa has received Zoning By-law Amendment and Site Plan Control applications to permit the development of a 23-storey mixed-use building, including an increase to the maximum permitted floorplate area for the 10th storey.
WardWard 14 - Ariel Troster
Date Initiated2022-04-27
Last Updated2022-06-22

Renders #

  • Rendering of building from page 52 of the file '2022-10-03 - Design Brief - D02-02-22-0040'
  • Rendering of building from page 48 of the file '2022-10-03 - Design Brief - D02-02-22-0040'
  • Rendering of building from page 47 of the file '2022-04-27 - Architectural Design Brief - D02-02-22-0040'
  • Rendering of building from page 19 of the file '2022-10-03 - Design Brief - D02-02-22-0040'
  • Rendering of building from page 52 of the file '2022-10-03 - Design Brief - D02-02-22-0040'
  • Rendering of building from page 14 of the file '2022-10-03 - Design Brief - D02-02-22-0040'
  • Rendering of building from page 14 of the file '2022-10-03 - Design Brief - D02-02-22-0040'
  • Rendering of building from page 53 of the file '2022-10-03 - Design Brief - D02-02-22-0040'
  • Rendering of building from page 14 of the file '2022-10-03 - Design Brief - D02-02-22-0040'
  • Rendering of building from page 30 of the file '2022-10-03 - Design Brief - D02-02-22-0040'
  • Rendering of building from page 14 of the file '2022-10-03 - Design Brief - D02-02-22-0040'
  • Rendering of building from page 29 of the file '2022-04-27 - Architectural Design Brief - D02-02-22-0040'
  • Rendering of building from page 54 of the file '2022-10-03 - Design Brief - D02-02-22-0040'
  • Rendering of building from page 11 of the file '2022-10-03 - Design Brief - D02-02-22-0040'
  • Rendering of building from page 14 of the file '2022-10-03 - Design Brief - D02-02-22-0040'
  • Rendering of building from page 30 of the file '2022-04-27 - Architectural Design Brief - D02-02-22-0040'
  • Rendering of building from page 18 of the file '2022-04-27 - Architectural Design Brief - D02-02-22-0040'
  • Rendering of building from page 31 of the file '2022-10-03 - Design Brief - D02-02-22-0040'
  • Rendering of building from page 14 of the file '2022-10-03 - Design Brief - D02-02-22-0040'
  • Rendering of building from page 54 of the file '2022-10-03 - Design Brief - D02-02-22-0040'
  • Rendering of building from page 32 of the file '2022-10-03 - Design Brief - D02-02-22-0040'
  • Rendering of building from page 47 of the file '2022-04-27 - Architectural Design Brief - D02-02-22-0040'
  • Rendering of building from page 11 of the file '2022-04-27 - Architectural Design Brief - D02-02-22-0040'
  • Rendering of building from page 3 of the file '2022-10-03 - Design Brief - D02-02-22-0040'
  • Rendering of building from page 31 of the file '2022-04-27 - Architectural Design Brief - D02-02-22-0040'
  • Rendering of building from page 48 of the file '2022-10-03 - Design Brief - D02-02-22-0040'
  • Rendering of building from page 1 of the file '2022-04-27 - Project Perspectives - D02-02-22-0040'
  • Rendering of building from page 3 of the file '2022-12-30 - Axonometric Views and Project Perspectives - D02-02-22-0040'
  • Rendering of building from page 5 of the file '2022-04-27 - Views Study - D02-02-22-0040'
  • Rendering of building from page 52 of the file '2022-10-03 - Design Brief - D02-02-22-0040'
  • Rendering of building from page 16 of the file '2022-04-27 - Architectural Design Brief - D02-02-22-0040'
  • Rendering of building from page 53 of the file '2022-04-27 - Architectural Design Brief - D02-02-22-0040'
  • Rendering of building from page 17 of the file '2022-10-03 - Design Brief - D02-02-22-0040'
  • Rendering of building from page 13 of the file '2022-10-03 - Design Brief - D02-02-22-0040'
  • Rendering of building from page 31 of the file '2022-10-03 - Design Brief - D02-02-22-0040'
  • Rendering of building from page 13 of the file '2022-04-27 - Architectural Design Brief - D02-02-22-0040'
  • Rendering of building from page 13 of the file '2022-10-03 - Design Brief - D02-02-22-0040'
  • Rendering of building from page 17 of the file '2022-10-03 - Design Brief - D02-02-22-0040'
  • Rendering of building from page 51 of the file '2022-04-27 - Architectural Design Brief - D02-02-22-0040'
  • Rendering of building from page 49 of the file '2022-04-27 - Architectural Design Brief - D02-02-22-0040'
  • Rendering of building from page 52 of the file '2022-10-03 - Design Brief - D02-02-22-0040'
  • Rendering of building from page 52 of the file '2022-04-27 - Architectural Design Brief - D02-02-22-0040'
  • Rendering of building from page 6 of the file '2022-04-27 - Views Study - D02-02-22-0040'
  • Rendering of building from page 17 of the file '2022-10-03 - Design Brief - D02-02-22-0040'
  • Rendering of building from page 51 of the file '2022-04-27 - Architectural Design Brief - D02-02-22-0040'
  • Rendering of building from page 16 of the file '2022-04-27 - Architectural Design Brief - D02-02-22-0040'
  • Rendering of building from page 10 of the file '2022-04-27 - Views Study - D02-02-22-0040'
  • Rendering of building from page 8 of the file '2022-04-27 - Views Study - D02-02-22-0040'
  • Rendering of building from page 51 of the file '2022-04-27 - Architectural Design Brief - D02-02-22-0040'
  • Rendering of building from page 17 of the file '2022-10-03 - Design Brief - D02-02-22-0040'
  • Rendering of building from page 16 of the file '2022-04-27 - Architectural Design Brief - D02-02-22-0040'
  • Rendering of building from page 16 of the file '2022-10-03 - Design Brief - D02-02-22-0040'
  • Rendering of building from page 12 of the file '2022-10-03 - Design Brief - D02-02-22-0040'
  • Rendering of building from page 3 of the file '2022-04-27 - Architectural Design Brief - D02-02-22-0040'
  • Rendering of building from page 19 of the file '2022-10-03 - Design Brief - D02-02-22-0040'
  • Rendering of building from page 15 of the file '2022-04-27 - Architectural Design Brief - D02-02-22-0040'
  • Rendering of building from page 31 of the file '2022-04-27 - Architectural Design Brief - D02-02-22-0040'
  • Rendering of building from page 30 of the file '2022-04-27 - Architectural Design Brief - D02-02-22-0040'
  • Rendering of building from page 53 of the file '2022-04-27 - Architectural Design Brief - D02-02-22-0040'
  • Rendering of building from page 31 of the file '2022-10-03 - Design Brief - D02-02-22-0040'
  • Rendering of building from page 18 of the file '2022-04-27 - Architectural Design Brief - D02-02-22-0040'
  • Rendering of building from page 19 of the file '2022-04-27 - Architectural Design Brief - D02-02-22-0040'
  • Rendering of building from page 32 of the file '2022-10-03 - Design Brief - D02-02-22-0040'
  • Rendering of building from page 44 of the file '2022-10-03 - Design Brief - D02-02-22-0040'
  • Rendering of building from page 12 of the file '2022-10-03 - Design Brief - D02-02-22-0040'
  • Rendering of building from page 45 of the file '2022-10-03 - Design Brief - D02-02-22-0040'
  • Rendering of building from page 30 of the file '2022-04-27 - Architectural Design Brief - D02-02-22-0040'
  • Rendering of building from page 45 of the file '2022-04-27 - Architectural Design Brief - D02-02-22-0040'
  • Rendering of building from page 20 of the file '2022-10-03 - Design Brief - D02-02-22-0040'
  • Rendering of building from page 43 of the file '2022-10-03 - Design Brief - D02-02-22-0040'
  • Rendering of building from page 43 of the file '2022-10-03 - Design Brief - D02-02-22-0040'
  • Rendering of building from page 51 of the file '2022-04-27 - Architectural Design Brief - D02-02-22-0040'
  • Rendering of building from page 32 of the file '2022-10-03 - Design Brief - D02-02-22-0040'
  • Rendering of building from page 44 of the file '2022-04-27 - Architectural Design Brief - D02-02-22-0040'
  • Rendering of building from page 42 of the file '2022-04-27 - Architectural Design Brief - D02-02-22-0040'
  • Rendering of building from page 42 of the file '2022-04-27 - Architectural Design Brief - D02-02-22-0040'
  • Rendering of building from page 43 of the file '2022-04-27 - Architectural Design Brief - D02-02-22-0040'
  • Rendering of building from page 1 of the file '2022-10-03 - Axonometric Views - D02-02-22-0040'
  • Rendering of building from page 1 of the file '2022-04-27 - Axonometric Views - D02-02-22-0040'
  • Rendering of building from page 1 of the file '2022-10-03 - Axonometric Views - D02-02-22-0040 (2)'
  • Rendering of building from page 1 of the file '2022-04-27 - Axonometric Views (2) - D02-02-22-0040'
  • Rendering of building from page 1 of the file '2022-12-30 - Axonometric Views and Project Perspectives - D02-02-22-0040'
  • Rendering of building from page 52 of the file '2022-10-03 - Design Brief - D02-02-22-0040'
  • Rendering of building from page 48 of the file '2022-10-03 - Design Brief - D02-02-22-0040'
  • Rendering of building from page 47 of the file '2022-04-27 - Architectural Design Brief - D02-02-22-0040'
  • Rendering of building from page 19 of the file '2022-10-03 - Design Brief - D02-02-22-0040'
  • Rendering of building from page 52 of the file '2022-10-03 - Design Brief - D02-02-22-0040'
  • Rendering of building from page 14 of the file '2022-10-03 - Design Brief - D02-02-22-0040'
  • Rendering of building from page 14 of the file '2022-10-03 - Design Brief - D02-02-22-0040'
  • Rendering of building from page 53 of the file '2022-10-03 - Design Brief - D02-02-22-0040'
  • Rendering of building from page 14 of the file '2022-10-03 - Design Brief - D02-02-22-0040'
  • Rendering of building from page 30 of the file '2022-10-03 - Design Brief - D02-02-22-0040'
  • Rendering of building from page 14 of the file '2022-10-03 - Design Brief - D02-02-22-0040'
  • Rendering of building from page 29 of the file '2022-04-27 - Architectural Design Brief - D02-02-22-0040'
  • Rendering of building from page 54 of the file '2022-10-03 - Design Brief - D02-02-22-0040'
  • Rendering of building from page 11 of the file '2022-10-03 - Design Brief - D02-02-22-0040'
  • Rendering of building from page 14 of the file '2022-10-03 - Design Brief - D02-02-22-0040'
  • Rendering of building from page 30 of the file '2022-04-27 - Architectural Design Brief - D02-02-22-0040'
  • Rendering of building from page 18 of the file '2022-04-27 - Architectural Design Brief - D02-02-22-0040'
  • Rendering of building from page 31 of the file '2022-10-03 - Design Brief - D02-02-22-0040'
  • Rendering of building from page 14 of the file '2022-10-03 - Design Brief - D02-02-22-0040'
  • Rendering of building from page 54 of the file '2022-10-03 - Design Brief - D02-02-22-0040'
  • Rendering of building from page 32 of the file '2022-10-03 - Design Brief - D02-02-22-0040'
  • Rendering of building from page 47 of the file '2022-04-27 - Architectural Design Brief - D02-02-22-0040'
  • Rendering of building from page 11 of the file '2022-04-27 - Architectural Design Brief - D02-02-22-0040'
  • Rendering of building from page 3 of the file '2022-10-03 - Design Brief - D02-02-22-0040'
  • Rendering of building from page 31 of the file '2022-04-27 - Architectural Design Brief - D02-02-22-0040'
  • Rendering of building from page 48 of the file '2022-10-03 - Design Brief - D02-02-22-0040'
  • Rendering of building from page 1 of the file '2022-04-27 - Project Perspectives - D02-02-22-0040'
  • Rendering of building from page 3 of the file '2022-12-30 - Axonometric Views and Project Perspectives - D02-02-22-0040'
  • Rendering of building from page 5 of the file '2022-04-27 - Views Study - D02-02-22-0040'
  • Rendering of building from page 52 of the file '2022-10-03 - Design Brief - D02-02-22-0040'
  • Rendering of building from page 16 of the file '2022-04-27 - Architectural Design Brief - D02-02-22-0040'
  • Rendering of building from page 53 of the file '2022-04-27 - Architectural Design Brief - D02-02-22-0040'
  • Rendering of building from page 17 of the file '2022-10-03 - Design Brief - D02-02-22-0040'
  • Rendering of building from page 13 of the file '2022-10-03 - Design Brief - D02-02-22-0040'
  • Rendering of building from page 31 of the file '2022-10-03 - Design Brief - D02-02-22-0040'
  • Rendering of building from page 13 of the file '2022-04-27 - Architectural Design Brief - D02-02-22-0040'
  • Rendering of building from page 13 of the file '2022-10-03 - Design Brief - D02-02-22-0040'
  • Rendering of building from page 17 of the file '2022-10-03 - Design Brief - D02-02-22-0040'
  • Rendering of building from page 51 of the file '2022-04-27 - Architectural Design Brief - D02-02-22-0040'
  • Rendering of building from page 49 of the file '2022-04-27 - Architectural Design Brief - D02-02-22-0040'
  • Rendering of building from page 52 of the file '2022-10-03 - Design Brief - D02-02-22-0040'
  • Rendering of building from page 52 of the file '2022-04-27 - Architectural Design Brief - D02-02-22-0040'
  • Rendering of building from page 6 of the file '2022-04-27 - Views Study - D02-02-22-0040'
  • Rendering of building from page 17 of the file '2022-10-03 - Design Brief - D02-02-22-0040'
  • Rendering of building from page 51 of the file '2022-04-27 - Architectural Design Brief - D02-02-22-0040'
  • Rendering of building from page 16 of the file '2022-04-27 - Architectural Design Brief - D02-02-22-0040'
  • Rendering of building from page 10 of the file '2022-04-27 - Views Study - D02-02-22-0040'
  • Rendering of building from page 8 of the file '2022-04-27 - Views Study - D02-02-22-0040'
  • Rendering of building from page 51 of the file '2022-04-27 - Architectural Design Brief - D02-02-22-0040'
  • Rendering of building from page 17 of the file '2022-10-03 - Design Brief - D02-02-22-0040'
  • Rendering of building from page 16 of the file '2022-04-27 - Architectural Design Brief - D02-02-22-0040'
  • Rendering of building from page 16 of the file '2022-10-03 - Design Brief - D02-02-22-0040'
  • Rendering of building from page 12 of the file '2022-10-03 - Design Brief - D02-02-22-0040'
  • Rendering of building from page 3 of the file '2022-04-27 - Architectural Design Brief - D02-02-22-0040'
  • Rendering of building from page 19 of the file '2022-10-03 - Design Brief - D02-02-22-0040'
  • Rendering of building from page 15 of the file '2022-04-27 - Architectural Design Brief - D02-02-22-0040'
  • Rendering of building from page 31 of the file '2022-04-27 - Architectural Design Brief - D02-02-22-0040'
  • Rendering of building from page 30 of the file '2022-04-27 - Architectural Design Brief - D02-02-22-0040'
  • Rendering of building from page 53 of the file '2022-04-27 - Architectural Design Brief - D02-02-22-0040'
  • Rendering of building from page 31 of the file '2022-10-03 - Design Brief - D02-02-22-0040'
  • Rendering of building from page 18 of the file '2022-04-27 - Architectural Design Brief - D02-02-22-0040'
  • Rendering of building from page 19 of the file '2022-04-27 - Architectural Design Brief - D02-02-22-0040'
  • Rendering of building from page 32 of the file '2022-10-03 - Design Brief - D02-02-22-0040'
  • Rendering of building from page 44 of the file '2022-10-03 - Design Brief - D02-02-22-0040'
  • Rendering of building from page 12 of the file '2022-10-03 - Design Brief - D02-02-22-0040'
  • Rendering of building from page 45 of the file '2022-10-03 - Design Brief - D02-02-22-0040'
  • Rendering of building from page 30 of the file '2022-04-27 - Architectural Design Brief - D02-02-22-0040'
  • Rendering of building from page 45 of the file '2022-04-27 - Architectural Design Brief - D02-02-22-0040'
  • Rendering of building from page 20 of the file '2022-10-03 - Design Brief - D02-02-22-0040'
  • Rendering of building from page 43 of the file '2022-10-03 - Design Brief - D02-02-22-0040'
  • Rendering of building from page 43 of the file '2022-10-03 - Design Brief - D02-02-22-0040'
  • Rendering of building from page 51 of the file '2022-04-27 - Architectural Design Brief - D02-02-22-0040'
  • Rendering of building from page 32 of the file '2022-10-03 - Design Brief - D02-02-22-0040'
  • Rendering of building from page 44 of the file '2022-04-27 - Architectural Design Brief - D02-02-22-0040'
  • Rendering of building from page 42 of the file '2022-04-27 - Architectural Design Brief - D02-02-22-0040'
  • Rendering of building from page 42 of the file '2022-04-27 - Architectural Design Brief - D02-02-22-0040'
  • Rendering of building from page 43 of the file '2022-04-27 - Architectural Design Brief - D02-02-22-0040'
  • Rendering of building from page 1 of the file '2022-10-03 - Axonometric Views - D02-02-22-0040'
  • Rendering of building from page 1 of the file '2022-04-27 - Axonometric Views - D02-02-22-0040'
  • Rendering of building from page 1 of the file '2022-10-03 - Axonometric Views - D02-02-22-0040 (2)'
  • Rendering of building from page 1 of the file '2022-04-27 - Axonometric Views (2) - D02-02-22-0040'
  • Rendering of building from page 1 of the file '2022-12-30 - Axonometric Views and Project Perspectives - D02-02-22-0040'

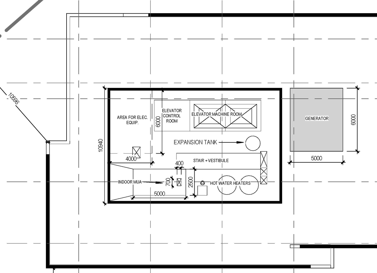
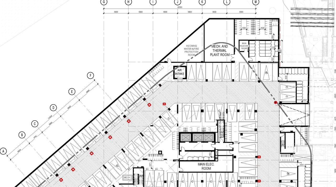
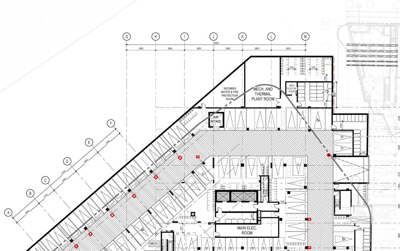
Site and Floor Plans #

  • Construction site plan for project from page 1 of the file '2022-12-30 - Overall Floor Plans - D02-02-22-0040'
  • Floor plan for project from page 2 of the file '2022-12-30 - Overall Floor Plans - D02-02-22-0040'
  • Construction site plan for project from page 2 of the file '2022-12-30 - Overall Floor Plans - D02-02-22-0040'
  • Construction site plan for project from page 3 of the file '2022-12-30 - Overall Floor Plans - D02-02-22-0040'
  • Construction site plan for project from page 4 of the file '2022-12-30 - Overall Floor Plans - D02-02-22-0040'
  • Floor plan for project from page 4 of the file '2022-12-30 - Overall Floor Plans - D02-02-22-0040'
  • Construction site plan for project from page 5 of the file '2022-12-30 - Overall Floor Plans - D02-02-22-0040'
  • Construction site plan for project from page 1 of the file '2022-12-30 - Axonometric Views and Project Perspectives - D02-02-22-0040'
  • Construction site plan for project from page 2 of the file '2022-12-30 - Axonometric Views and Project Perspectives - D02-02-22-0040'
  • Construction site plan for project from page 1 of the file '2022-10-03 - Project Perspectives - D02-02-22-0040'
  • Construction site plan for project from page 1 of the file '2022-10-03 - Floor Plan-P1 - D02-02-22-0040'
  • Construction site plan for project from page 1 of the file '2022-10-03 - Floor Plan-Mezzanine - D02-02-22-0040'
  • Floor plan for project from page 1 of the file '2022-10-03 - Floor Plan-Mezzanine - D02-02-22-0040'
  • Construction site plan for project from page 1 of the file '2022-10-03 - Floor Plan-Mechanical Penthouse - D02-02-22-0040'
  • Construction site plan for project from page 1 of the file '2022-10-03 - Floor Plan-Level 9 - D02-02-22-0040'
  • Construction site plan for project from page 1 of the file '2022-10-03 - Floor Plan-Level 3 - D02-02-22-0040'
  • Construction site plan for project from page 1 of the file '2022-10-03 - Floor Plan-Level 2 - D02-02-22-0040'
  • Floor plan for project from page 1 of the file '2022-10-03 - Floor Plan Level 1-Ground - D02-02-22-0040'
  • Construction site plan for project from page 1 of the file '2022-10-03 - Floor Plan Level 1-Ground - D02-02-22-0040'
  • Construction site plan for project from page 1 of the file '2022-10-03 - Floor Plan Level 1-Ground - D02-02-22-0040'
  • Construction site plan for project from page 4 of the file '2022-10-03 - Design Brief - D02-02-22-0040'
  • Floor plan for project from page 5 of the file '2022-10-03 - Design Brief - D02-02-22-0040'
  • Construction site plan for project from page 7 of the file '2022-10-03 - Design Brief - D02-02-22-0040'
  • Construction site plan for project from page 7 of the file '2022-10-03 - Design Brief - D02-02-22-0040'
  • Construction site plan for project from page 8 of the file '2022-10-03 - Design Brief - D02-02-22-0040'
  • Construction site plan for project from page 15 of the file '2022-10-03 - Design Brief - D02-02-22-0040'
  • Construction site plan for project from page 21 of the file '2022-10-03 - Design Brief - D02-02-22-0040'
  • Construction site plan for project from page 23 of the file '2022-10-03 - Design Brief - D02-02-22-0040'
  • Construction site plan for project from page 23 of the file '2022-10-03 - Design Brief - D02-02-22-0040'
  • Construction site plan for project from page 24 of the file '2022-10-03 - Design Brief - D02-02-22-0040'
  • Construction site plan for project from page 25 of the file '2022-10-03 - Design Brief - D02-02-22-0040'
  • Construction site plan for project from page 26 of the file '2022-10-03 - Design Brief - D02-02-22-0040'
  • Floor plan for project from page 27 of the file '2022-10-03 - Design Brief - D02-02-22-0040'
  • Floor plan for project from page 28 of the file '2022-10-03 - Design Brief - D02-02-22-0040'
  • Construction site plan for project from page 29 of the file '2022-10-03 - Design Brief - D02-02-22-0040'
  • Floor plan for project from page 35 of the file '2022-10-03 - Design Brief - D02-02-22-0040'
  • Construction site plan for project from page 36 of the file '2022-10-03 - Design Brief - D02-02-22-0040'
  • Floor plan for project from page 37 of the file '2022-10-03 - Design Brief - D02-02-22-0040'
  • Construction site plan for project from page 37 of the file '2022-10-03 - Design Brief - D02-02-22-0040'
  • Construction site plan for project from page 38 of the file '2022-10-03 - Design Brief - D02-02-22-0040'
  • Floor plan for project from page 39 of the file '2022-10-03 - Design Brief - D02-02-22-0040'
  • Construction site plan for project from page 39 of the file '2022-10-03 - Design Brief - D02-02-22-0040'
  • Construction site plan for project from page 39 of the file '2022-10-03 - Design Brief - D02-02-22-0040'
  • Construction site plan for project from page 39 of the file '2022-10-03 - Design Brief - D02-02-22-0040'
  • Floor plan for project from page 40 of the file '2022-10-03 - Design Brief - D02-02-22-0040'
  • Floor plan for project from page 41 of the file '2022-10-03 - Design Brief - D02-02-22-0040'
  • Floor plan for project from page 42 of the file '2022-10-03 - Design Brief - D02-02-22-0040'
  • Construction site plan for project from page 49 of the file '2022-10-03 - Design Brief - D02-02-22-0040'
  • Construction site plan for project from page 49 of the file '2022-10-03 - Design Brief - D02-02-22-0040'
  • Construction site plan for project from page 49 of the file '2022-10-03 - Design Brief - D02-02-22-0040'
  • Construction site plan for project from page 49 of the file '2022-10-03 - Design Brief - D02-02-22-0040'
  • Construction site plan for project from page 49 of the file '2022-10-03 - Design Brief - D02-02-22-0040'
  • Construction site plan for project from page 49 of the file '2022-10-03 - Design Brief - D02-02-22-0040'
  • Construction site plan for project from page 49 of the file '2022-10-03 - Design Brief - D02-02-22-0040'
  • Floor plan for project from page 53 of the file '2022-10-03 - Design Brief - D02-02-22-0040'
  • Construction site plan for project from page 1 of the file '2022-10-03 - Axonometric Views - D02-02-22-0040'
  • Construction site plan for project from page 1 of the file '2022-04-27 - Floor Plan-Mezzanine - D02-02-22-0040'
  • Floor plan for project from page 1 of the file '2022-04-27 - Floor Plan-Mezzanine - D02-02-22-0040'
  • Construction site plan for project from page 1 of the file '2022-04-27 - Floor Plan-Level 3 - D02-02-22-0040'
  • Floor plan for project from page 1 of the file '2022-04-27 - Floor Plan-Level 2 - D02-02-22-0040'
  • Floor plan for project from page 1 of the file '2022-04-27 - Floor Plan-Level 11 - D02-02-22-0040'
  • Floor plan for project from page 1 of the file '2022-04-27 - Floor Plan-Level 10 - D02-02-22-0040'
  • Floor plan for project from page 1 of the file '2022-04-27 - Floor Plan-Level 1-Ground - D02-02-22-0040'
  • Floor plan for project from page 1 of the file '2022-04-27 - Floor Plan Parking 1 - D02-02-22-0040'
  • Floor plan for project from page 1 of the file '2022-04-27 - Floor Plan Mechanical Penthouse - D02-02-22-0040'
  • Floor plan for project from page 1 of the file '2022-04-27 - Floor Plan Mechanical Penthouse - D02-02-22-0040'
  • Construction site plan for project from page 1 of the file '2022-04-27 - Axonometric Views (2) - D02-02-22-0040'
  • Construction site plan for project from page 14 of the file '2022-04-27 - Architectural Design Brief - D02-02-22-0040'
  • Construction site plan for project from page 23 of the file '2022-04-27 - Architectural Design Brief - D02-02-22-0040'
  • Construction site plan for project from page 24 of the file '2022-04-27 - Architectural Design Brief - D02-02-22-0040'
  • Floor plan for project from page 25 of the file '2022-04-27 - Architectural Design Brief - D02-02-22-0040'
  • Floor plan for project from page 27 of the file '2022-04-27 - Architectural Design Brief - D02-02-22-0040'
  • Construction site plan for project from page 28 of the file '2022-04-27 - Architectural Design Brief - D02-02-22-0040'
  • Construction site plan for project from page 28 of the file '2022-04-27 - Architectural Design Brief - D02-02-22-0040'
  • Construction site plan for project from page 29 of the file '2022-04-27 - Architectural Design Brief - D02-02-22-0040'
  • Floor plan for project from page 32 of the file '2022-04-27 - Architectural Design Brief - D02-02-22-0040'
  • Floor plan for project from page 34 of the file '2022-04-27 - Architectural Design Brief - D02-02-22-0040'
  • Floor plan for project from page 34 of the file '2022-04-27 - Architectural Design Brief - D02-02-22-0040'
  • Construction site plan for project from page 35 of the file '2022-04-27 - Architectural Design Brief - D02-02-22-0040'
  • Construction site plan for project from page 36 of the file '2022-04-27 - Architectural Design Brief - D02-02-22-0040'
  • Floor plan for project from page 36 of the file '2022-04-27 - Architectural Design Brief - D02-02-22-0040'
  • Floor plan for project from page 37 of the file '2022-04-27 - Architectural Design Brief - D02-02-22-0040'
  • Floor plan for project from page 38 of the file '2022-04-27 - Architectural Design Brief - D02-02-22-0040'
  • Floor plan for project from page 39 of the file '2022-04-27 - Architectural Design Brief - D02-02-22-0040'
  • Floor plan for project from page 40 of the file '2022-04-27 - Architectural Design Brief - D02-02-22-0040'
  • Construction site plan for project from page 48 of the file '2022-04-27 - Architectural Design Brief - D02-02-22-0040'
  • Construction site plan for project from page 48 of the file '2022-04-27 - Architectural Design Brief - D02-02-22-0040'
  • Construction site plan for project from page 48 of the file '2022-04-27 - Architectural Design Brief - D02-02-22-0040'
  • Construction site plan for project from page 48 of the file '2022-04-27 - Architectural Design Brief - D02-02-22-0040'
  • Construction site plan for project from page 1 of the file '2022-12-30 - Overall Floor Plans - D02-02-22-0040'
  • Floor plan for project from page 2 of the file '2022-12-30 - Overall Floor Plans - D02-02-22-0040'
  • Construction site plan for project from page 2 of the file '2022-12-30 - Overall Floor Plans - D02-02-22-0040'
  • Construction site plan for project from page 3 of the file '2022-12-30 - Overall Floor Plans - D02-02-22-0040'
  • Construction site plan for project from page 4 of the file '2022-12-30 - Overall Floor Plans - D02-02-22-0040'
  • Floor plan for project from page 4 of the file '2022-12-30 - Overall Floor Plans - D02-02-22-0040'
  • Construction site plan for project from page 5 of the file '2022-12-30 - Overall Floor Plans - D02-02-22-0040'
  • Construction site plan for project from page 1 of the file '2022-12-30 - Axonometric Views and Project Perspectives - D02-02-22-0040'
  • Construction site plan for project from page 2 of the file '2022-12-30 - Axonometric Views and Project Perspectives - D02-02-22-0040'
  • Construction site plan for project from page 1 of the file '2022-10-03 - Project Perspectives - D02-02-22-0040'
  • Construction site plan for project from page 1 of the file '2022-10-03 - Floor Plan-P1 - D02-02-22-0040'
  • Construction site plan for project from page 1 of the file '2022-10-03 - Floor Plan-Mezzanine - D02-02-22-0040'
  • Floor plan for project from page 1 of the file '2022-10-03 - Floor Plan-Mezzanine - D02-02-22-0040'
  • Construction site plan for project from page 1 of the file '2022-10-03 - Floor Plan-Mechanical Penthouse - D02-02-22-0040'
  • Construction site plan for project from page 1 of the file '2022-10-03 - Floor Plan-Level 9 - D02-02-22-0040'
  • Construction site plan for project from page 1 of the file '2022-10-03 - Floor Plan-Level 3 - D02-02-22-0040'
  • Construction site plan for project from page 1 of the file '2022-10-03 - Floor Plan-Level 2 - D02-02-22-0040'
  • Floor plan for project from page 1 of the file '2022-10-03 - Floor Plan Level 1-Ground - D02-02-22-0040'
  • Construction site plan for project from page 1 of the file '2022-10-03 - Floor Plan Level 1-Ground - D02-02-22-0040'
  • Construction site plan for project from page 1 of the file '2022-10-03 - Floor Plan Level 1-Ground - D02-02-22-0040'
  • Construction site plan for project from page 4 of the file '2022-10-03 - Design Brief - D02-02-22-0040'
  • Floor plan for project from page 5 of the file '2022-10-03 - Design Brief - D02-02-22-0040'
  • Construction site plan for project from page 7 of the file '2022-10-03 - Design Brief - D02-02-22-0040'
  • Construction site plan for project from page 7 of the file '2022-10-03 - Design Brief - D02-02-22-0040'
  • Construction site plan for project from page 8 of the file '2022-10-03 - Design Brief - D02-02-22-0040'
  • Construction site plan for project from page 15 of the file '2022-10-03 - Design Brief - D02-02-22-0040'
  • Construction site plan for project from page 21 of the file '2022-10-03 - Design Brief - D02-02-22-0040'
  • Construction site plan for project from page 23 of the file '2022-10-03 - Design Brief - D02-02-22-0040'
  • Construction site plan for project from page 23 of the file '2022-10-03 - Design Brief - D02-02-22-0040'
  • Construction site plan for project from page 24 of the file '2022-10-03 - Design Brief - D02-02-22-0040'
  • Construction site plan for project from page 25 of the file '2022-10-03 - Design Brief - D02-02-22-0040'
  • Construction site plan for project from page 26 of the file '2022-10-03 - Design Brief - D02-02-22-0040'
  • Floor plan for project from page 27 of the file '2022-10-03 - Design Brief - D02-02-22-0040'
  • Floor plan for project from page 28 of the file '2022-10-03 - Design Brief - D02-02-22-0040'
  • Construction site plan for project from page 29 of the file '2022-10-03 - Design Brief - D02-02-22-0040'
  • Floor plan for project from page 35 of the file '2022-10-03 - Design Brief - D02-02-22-0040'
  • Construction site plan for project from page 36 of the file '2022-10-03 - Design Brief - D02-02-22-0040'
  • Floor plan for project from page 37 of the file '2022-10-03 - Design Brief - D02-02-22-0040'
  • Construction site plan for project from page 37 of the file '2022-10-03 - Design Brief - D02-02-22-0040'
  • Construction site plan for project from page 38 of the file '2022-10-03 - Design Brief - D02-02-22-0040'
  • Floor plan for project from page 39 of the file '2022-10-03 - Design Brief - D02-02-22-0040'
  • Construction site plan for project from page 39 of the file '2022-10-03 - Design Brief - D02-02-22-0040'
  • Construction site plan for project from page 39 of the file '2022-10-03 - Design Brief - D02-02-22-0040'
  • Construction site plan for project from page 39 of the file '2022-10-03 - Design Brief - D02-02-22-0040'
  • Floor plan for project from page 40 of the file '2022-10-03 - Design Brief - D02-02-22-0040'
  • Floor plan for project from page 41 of the file '2022-10-03 - Design Brief - D02-02-22-0040'
  • Floor plan for project from page 42 of the file '2022-10-03 - Design Brief - D02-02-22-0040'
  • Construction site plan for project from page 49 of the file '2022-10-03 - Design Brief - D02-02-22-0040'
  • Construction site plan for project from page 49 of the file '2022-10-03 - Design Brief - D02-02-22-0040'
  • Construction site plan for project from page 49 of the file '2022-10-03 - Design Brief - D02-02-22-0040'
  • Construction site plan for project from page 49 of the file '2022-10-03 - Design Brief - D02-02-22-0040'
  • Construction site plan for project from page 49 of the file '2022-10-03 - Design Brief - D02-02-22-0040'
  • Construction site plan for project from page 49 of the file '2022-10-03 - Design Brief - D02-02-22-0040'
  • Construction site plan for project from page 49 of the file '2022-10-03 - Design Brief - D02-02-22-0040'
  • Floor plan for project from page 53 of the file '2022-10-03 - Design Brief - D02-02-22-0040'
  • Construction site plan for project from page 1 of the file '2022-10-03 - Axonometric Views - D02-02-22-0040'
  • Construction site plan for project from page 1 of the file '2022-04-27 - Floor Plan-Mezzanine - D02-02-22-0040'
  • Floor plan for project from page 1 of the file '2022-04-27 - Floor Plan-Mezzanine - D02-02-22-0040'
  • Construction site plan for project from page 1 of the file '2022-04-27 - Floor Plan-Level 3 - D02-02-22-0040'
  • Floor plan for project from page 1 of the file '2022-04-27 - Floor Plan-Level 2 - D02-02-22-0040'
  • Floor plan for project from page 1 of the file '2022-04-27 - Floor Plan-Level 11 - D02-02-22-0040'
  • Floor plan for project from page 1 of the file '2022-04-27 - Floor Plan-Level 10 - D02-02-22-0040'
  • Floor plan for project from page 1 of the file '2022-04-27 - Floor Plan-Level 1-Ground - D02-02-22-0040'
  • Floor plan for project from page 1 of the file '2022-04-27 - Floor Plan Parking 1 - D02-02-22-0040'
  • Floor plan for project from page 1 of the file '2022-04-27 - Floor Plan Mechanical Penthouse - D02-02-22-0040'
  • Floor plan for project from page 1 of the file '2022-04-27 - Floor Plan Mechanical Penthouse - D02-02-22-0040'
  • Construction site plan for project from page 1 of the file '2022-04-27 - Axonometric Views (2) - D02-02-22-0040'
  • Construction site plan for project from page 14 of the file '2022-04-27 - Architectural Design Brief - D02-02-22-0040'
  • Construction site plan for project from page 23 of the file '2022-04-27 - Architectural Design Brief - D02-02-22-0040'
  • Construction site plan for project from page 24 of the file '2022-04-27 - Architectural Design Brief - D02-02-22-0040'
  • Floor plan for project from page 25 of the file '2022-04-27 - Architectural Design Brief - D02-02-22-0040'
  • Floor plan for project from page 27 of the file '2022-04-27 - Architectural Design Brief - D02-02-22-0040'
  • Construction site plan for project from page 28 of the file '2022-04-27 - Architectural Design Brief - D02-02-22-0040'
  • Construction site plan for project from page 28 of the file '2022-04-27 - Architectural Design Brief - D02-02-22-0040'
  • Construction site plan for project from page 29 of the file '2022-04-27 - Architectural Design Brief - D02-02-22-0040'
  • Floor plan for project from page 32 of the file '2022-04-27 - Architectural Design Brief - D02-02-22-0040'
  • Floor plan for project from page 34 of the file '2022-04-27 - Architectural Design Brief - D02-02-22-0040'
  • Floor plan for project from page 34 of the file '2022-04-27 - Architectural Design Brief - D02-02-22-0040'
  • Construction site plan for project from page 35 of the file '2022-04-27 - Architectural Design Brief - D02-02-22-0040'
  • Construction site plan for project from page 36 of the file '2022-04-27 - Architectural Design Brief - D02-02-22-0040'
  • Floor plan for project from page 36 of the file '2022-04-27 - Architectural Design Brief - D02-02-22-0040'
  • Floor plan for project from page 37 of the file '2022-04-27 - Architectural Design Brief - D02-02-22-0040'
  • Floor plan for project from page 38 of the file '2022-04-27 - Architectural Design Brief - D02-02-22-0040'
  • Floor plan for project from page 39 of the file '2022-04-27 - Architectural Design Brief - D02-02-22-0040'
  • Floor plan for project from page 40 of the file '2022-04-27 - Architectural Design Brief - D02-02-22-0040'
  • Construction site plan for project from page 48 of the file '2022-04-27 - Architectural Design Brief - D02-02-22-0040'
  • Construction site plan for project from page 48 of the file '2022-04-27 - Architectural Design Brief - D02-02-22-0040'
  • Construction site plan for project from page 48 of the file '2022-04-27 - Architectural Design Brief - D02-02-22-0040'
  • Construction site plan for project from page 48 of the file '2022-04-27 - Architectural Design Brief - D02-02-22-0040'

Files #

TypeNameLinks
Architectural Plans2023-03-04 - Architectural Plans - D02-02-22-0040Download PDF
Architectural Plans2022-12-30 - Site Plans - D02-02-22-0040Download PDF
Architectural Plans2022-12-30 - Overall Plan - Mechanical Penthouse - D02-02-22-0040Download PDF
Architectural Plans2022-12-30 - Elevations - D02-02-22-0040Download PDF
Architectural Plans2022-10-03 - Site Plan - D02-02-22-0040Download PDF
Architectural Plans2022-10-03 - Sediment and Erosion Control Plan - D02-02-22-0040Download PDF
Architectural Plans2022-10-03 - Plans and Profile - Miwate Private - D02-02-22-0040Download PDF
Architectural Plans2022-10-03 - Plans and Profile - D02-02-22-0040Download PDF
Architectural Plans2022-10-03 - Notes Plan - D02-02-22-0040Download PDF
Architectural Plans2022-10-03 - Master Plan Ontario Lands - D02-02-22-0040Download PDF
Architectural Plans2022-10-03 - Elevation-West - D02-02-22-0040Download PDF
Architectural Plans2022-10-03 - Elevation-South - D02-02-22-0040Download PDF
Architectural Plans2022-10-03 - Elevation-North - D02-02-22-0040Download PDF
Architectural Plans2022-10-03 - Elevation-East - D02-02-22-0040Download PDF
Architectural Plans2022-10-03 - Context Site Plan - D02-02-22-0040Download PDF
Architectural Plans2022-04-27 - Site Plan - D02-02-22-0040Download PDF
Architectural Plans2022-04-27 - Sediment and Erosion Control Plan - D02-02-22-0040Download PDF
Architectural Plans2022-04-27 - Plans and Profile (2) - D02-02-22-0040Download PDF
Architectural Plans2022-04-27 - Plans and Profile - D02-02-22-0040Download PDF
Architectural Plans2022-04-27 - Notes Plan - D02-02-22-0040Download PDF
Architectural Plans2022-04-27 - Elevation West - D02-02-22-0040Download PDF
Architectural Plans2022-04-27 - Elevation South - D02-02-22-0040Download PDF
Architectural Plans2022-04-27 - Elevation North - D02-02-22-0040Download PDF
Architectural Plans2022-04-27 - Elevation East - D02-02-22-0040Download PDF
Architectural Plans2022-04-27 - Context Site Plan - D02-02-22-0040Download PDF
Architectural Plans2022-04-27 - Architectural Cover Sheet - D02-02-22-0040Download PDF
Civil Engineering Report2023-03-07 - Civil Plans - D02-02-22-0040Download PDF
Civil Engineering Report2022-12-30 - Civil Plans - D02-02-22-0040Download PDF
Cover Letter2022-10-03 - Cover Sheet - D02-02-22-0040Download PDF
Design Brief2022-10-03 - Design Brief - D02-02-22-0040Download PDF
Design Brief2022-04-27 - Architectural Design Brief - D02-02-22-0040Download PDF
Electrical Plan2022-04-27 - Lighting Compliance Letter - D02-02-22-0040Download PDF
Environmental2022-04-27 - Phase Two Environmental Site Assessment - D02-02-22-0040Download PDF
Environmental2022-04-27 - Phase One Environmental Site Assessment - D02-02-22-0040Download PDF
Environmental2022-04-27 - Phase II Environmental Site Assessment - D02-02-22-0040Download PDF
Environmental2022-04-27 - Phase I Environmental Site Assessment - D02-02-22-0040Download PDF
Environmental2022-04-27 - Environmental Noise Assessment - D02-02-22-0040Download PDF
Floor Plan2022-12-30 - Overall Floor Plans - D02-02-22-0040Download PDF
Floor Plan2022-10-03 - Floor Plan-P1 - D02-02-22-0040Download PDF
Floor Plan2022-10-03 - Floor Plan-Mezzanine - D02-02-22-0040Download PDF
Floor Plan2022-10-03 - Floor Plan-Mechanical Penthouse - D02-02-22-0040Download PDF
Floor Plan2022-10-03 - Floor Plan-Level 9 - D02-02-22-0040Download PDF
Floor Plan2022-10-03 - Floor Plan-Level 6 - D02-02-22-0040Download PDF
Floor Plan2022-10-03 - Floor Plan-Level 3 - D02-02-22-0040Download PDF
Floor Plan2022-10-03 - Floor Plan-Level 2 - D02-02-22-0040Download PDF
Floor Plan2022-10-03 - Floor Plan-Level 11 - D02-02-22-0040Download PDF
Floor Plan2022-10-03 - Floor Plan-Level 10 - D02-02-22-0040Download PDF
Floor Plan2022-10-03 - Floor Plan Level 1-Ground - D02-02-22-0040Download PDF
Floor Plan2022-04-27 - Floor Plan-Mezzanine - D02-02-22-0040Download PDF
Floor Plan2022-04-27 - Floor Plan-Level 4 - D02-02-22-0040Download PDF
Floor Plan2022-04-27 - Floor Plan-Level 3 - D02-02-22-0040Download PDF
Floor Plan2022-04-27 - Floor Plan-Level 2 - D02-02-22-0040Download PDF
Floor Plan2022-04-27 - Floor Plan-Level 11 - D02-02-22-0040Download PDF
Floor Plan2022-04-27 - Floor Plan-Level 10 - D02-02-22-0040Download PDF
Floor Plan2022-04-27 - Floor Plan-Level 1-Ground - D02-02-22-0040Download PDF
Floor Plan2022-04-27 - Floor Plan Parking 1 - D02-02-22-0040Download PDF
Floor Plan2022-04-27 - Floor Plan Mechanical Penthouse - D02-02-22-0040Download PDF
Floor Plan2022-04-27 - Floor Plan Level 12 - D02-02-22-0040Download PDF
Geotechnical Report2023-03-17 - Geotechnical Investigation Rev 3 - D02-02-22-0040Download PDF
Geotechnical Report2022-12-30 - Geotechnical Investigation Rev 3 - D02-02-22-0040Download PDF
Geotechnical Report2022-10-03 - Geotechnical Investigation - Block 201 to 205B - D02-02-22-0040Download PDF
Geotechnical Report2022-04-27 - Geotechnical Investigation - D02-02-22-0040Download PDF
Landscape Plan2023-03-07 - Landscape Plans and Details - D02-02-22-0040Download PDF
Landscape Plan2022-12-30 - Landscape Plans - Ground Floor - D02-02-22-0040Download PDF
Landscape Plan2022-12-30 - Landscape Plan - Second & Ninth Floor Amenity - D02-02-22-0040Download PDF
Landscape Plan2022-12-30 - Landscape Plan - Interim Condition - D02-02-22-0040Download PDF
Landscape Plan2022-12-30 - Landscape Details - D02-02-22-0040Download PDF
Landscape Plan2022-10-03 - Landscape Plan-Tenth Level - D02-02-22-0040Download PDF
Landscape Plan2022-10-03 - Landscape Plan-Second Level - D02-02-22-0040Download PDF
Landscape Plan2022-10-03 - Landscape Plan-Interim Condition - D02-02-22-0040Download PDF
Landscape Plan2022-10-03 - Landscape Plan-Ground Floor - D02-02-22-0040 (2)Download PDF
Landscape Plan2022-10-03 - Landscape Plan-Ground Floor - D02-02-22-0040Download PDF
Landscape Plan2022-10-03 - Landscape Details - D02-02-22-0040 (3)Download PDF
Landscape Plan2022-10-03 - Landscape Details - D02-02-22-0040 (2)Download PDF
Landscape Plan2022-10-03 - Landscape Details - D02-02-22-0040Download PDF
Landscape Plan2022-04-27 - Landscape Plan-Tenth Level - D02-02-22-0040Download PDF
Landscape Plan2022-04-27 - Landscape Plan-Second Level - D02-02-22-0040Download PDF
Landscape Plan2022-04-27 - Landscape Plan-Interim Control - D02-02-22-0040Download PDF
Landscape Plan2022-04-27 - Landscape Plan-Ground Floor (2) - D02-02-22-0040Download PDF
Landscape Plan2022-04-27 - Landscape Plan-Ground Floor - D02-02-22-0040Download PDF
Landscape Plan2022-04-27 - Landscape Details (3) - D02-02-22-0040Download PDF
Landscape Plan2022-04-27 - Landscape Details (2) - D02-02-22-0040Download PDF
Landscape Plan2022-04-27 - Landscape Details - D02-02-22-0040Download PDF
Noise Study2022-10-03 - Noise Report - D02-02-22-0040Download PDF
Planning2022-04-27 - Planning Rationale - D02-02-22-0040Download PDF
Rendering2022-12-30 - Axonometric Views and Project Perspectives - D02-02-22-0040Download PDF
Rendering2022-10-03 - Project Perspectives - D02-02-22-0040Download PDF
Rendering2022-10-03 - Axonometric Views - D02-02-22-0040 (2)Download PDF
Rendering2022-10-03 - Axonometric Views - D02-02-22-0040Download PDF
Rendering2022-04-27 - Views Study - D02-02-22-0040Download PDF
Rendering2022-04-27 - Project Perspectives - D02-02-22-0040Download PDF
Rendering2022-04-27 - Axonometric Views (2) - D02-02-22-0040Download PDF
Rendering2022-04-27 - Axonometric Views - D02-02-22-0040Download PDF
Shadow Study2022-10-03 - Shadow Study - D02-02-22-0040Download PDF
Shadow Study2022-04-27 - Shadow Study - D02-02-22-0040Download PDF
Site Servicing2023-03-17 - Site Servicing Report Rev 2 - D02-02-22-0040Download PDF
Site Servicing2022-12-30 - Site Servicing Report Rev 2 - D02-02-22-0040Download PDF
Site Servicing2022-10-03 - Site Servicing Report - D02-02-22-0040Download PDF
Site Servicing2022-10-03 - Site Servicing Plan-D02-02-22-0040Download PDF
Site Servicing2022-04-27 - Site Servicing Report - D02-02-22-0040Download PDF
Site Servicing2022-04-27 - Site Servicing Plan-Ultimate - D02-02-22-0040Download PDF
Site Servicing2022-04-27 - Site Servicing Plan-Interim - D02-02-22-0040Download PDF
Stormwater Management2022-10-03 - Stormwater Management Plan - D02-02-22-0040Download PDF
Stormwater Management2022-04-27 - Stormwater Management Plan - D02-02-22-0040Download PDF
Surveying2022-10-03 - Topographical Survey Plan - D02-02-22-0040Download PDF
Surveying2022-04-27 - Topographical Survey Plan - D02-02-22-0040Download PDF
Surveying2022-04-27 - Plan of Survey - D02-02-22-0040Download PDF
Transportation Analysis2022-10-03 - Transportation Addendum Letter - D02-02-22-0040Download PDF
Wind Study2022-04-27 - Pedestrian Level Wind Study - D02-02-22-0040Download PDF
2023-03-04 - Appendices - D02-02-22-0040Download PDF
2022-12-30 - Bird Friendly Design - D02-02-22-0040Download PDF
2022-10-03 - North-South Section - D02-02-22-0040Download PDF
2022-10-03 - Letter re Sprinkler for Inclusion in CIMA Site Servicing Report - D02-02-22-0040Download PDF
2022-10-03 - Hydrogeogy Report - D02-02-22-0040Download PDF
2022-10-03 - Grade Control and Drainage-D02-02-22-0040Download PDF
2022-10-03 - East-West Section - D02-02-22-0040Download PDF
2022-10-03 - Cross-Sections - D02-02-22-0040Download PDF
2022-10-03 - Cover Page - D02-02-22-0040Download PDF
2022-04-27 - Technical Memorandum - D02-02-22-0040Download PDF
2022-04-27 - North-South Section - D02-02-22-0040Download PDF
2022-04-27 - Letter Wildlife Program - D02-02-22-0040Download PDF
2022-04-27 - Grade Control and Drainage-Ultimate - D02-02-22-0040Download PDF
2022-04-27 - Grade Control and Drainage-Interim - D02-02-22-0040Download PDF
2022-04-27 - East West Section - D02-02-22-0040Download PDF
2022-04-27 - Cross Sections - D02-02-22-0040Download PDF
2022-04-27 - Cover Page - D02-02-22-0040Download PDF