1740-1760 St-Laurent Blvd. (D02-02-21-0137) #
Summary #
| Application Status | File Pending |
| Review Status | Application File Pending |
| Description | To permit a height of 50 m when 30 m is the maximum for AM10 zoned property |
| Ward | Ward 18 - Marty Carr |
| Date Initiated | 2021-10-27 |
| Last Updated | 2021-12-14 |
Renders #
Location #
Select a marker to view the address.
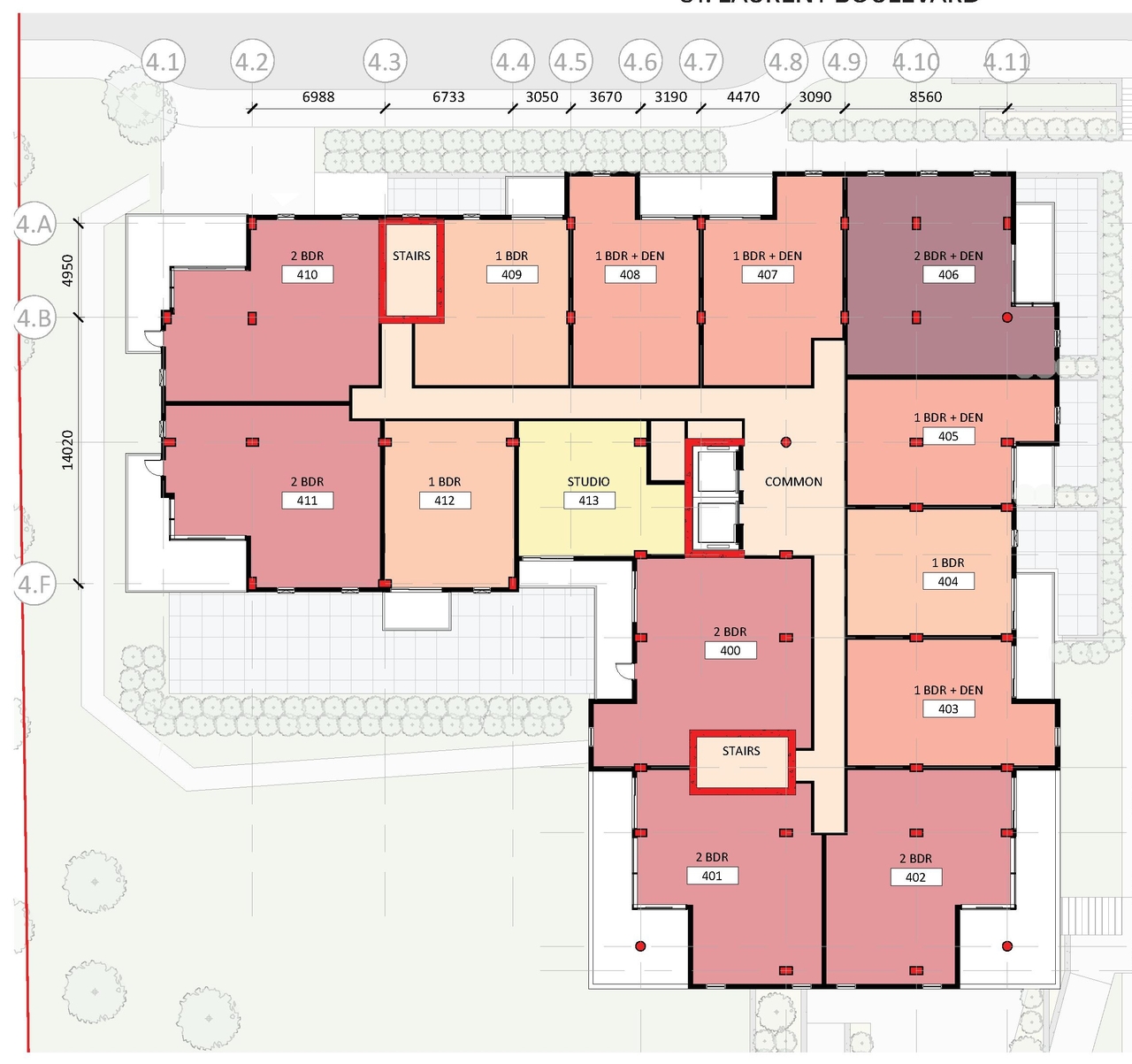
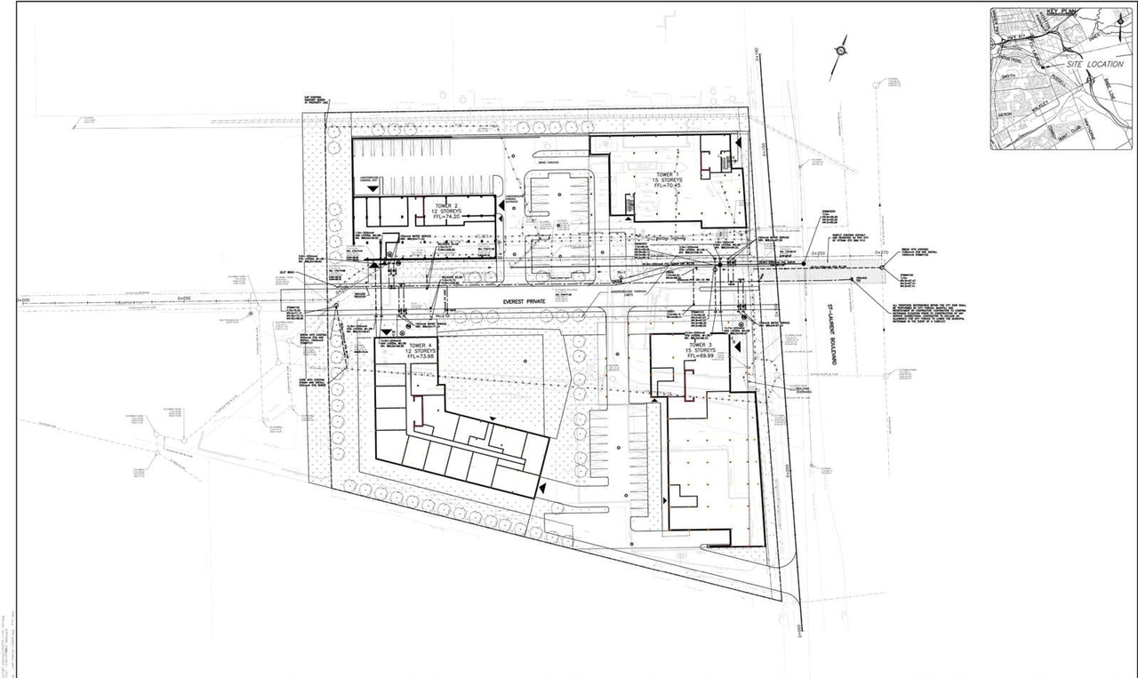
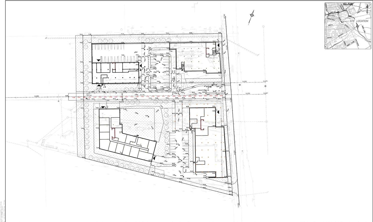
Site Plans, Elevations and Floor Plans #
Documents #
Additional Information #
| All Addresses | 1740 St-Laurent Blvd. 1754 St-Laurent Blvd. 1760 St-Laurent Blvd. |













































































































