770-774 Bronson Ave./557 Cambridge St. (D02-02-21-0068)#
Summary#
| Application Status | Inactive |
| Review Status | Zoning By-law in Effect |
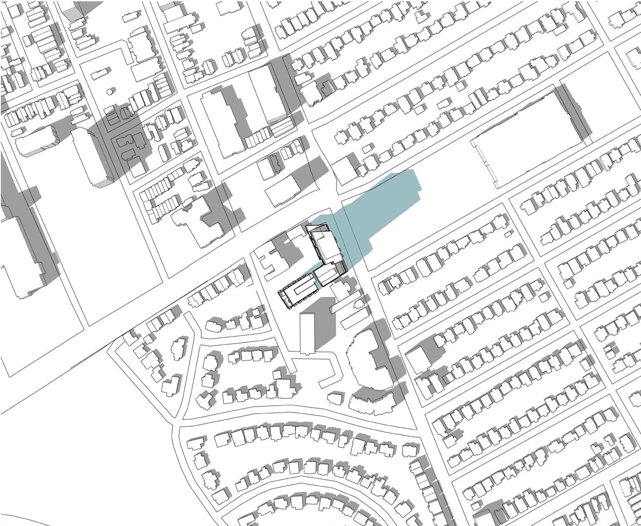
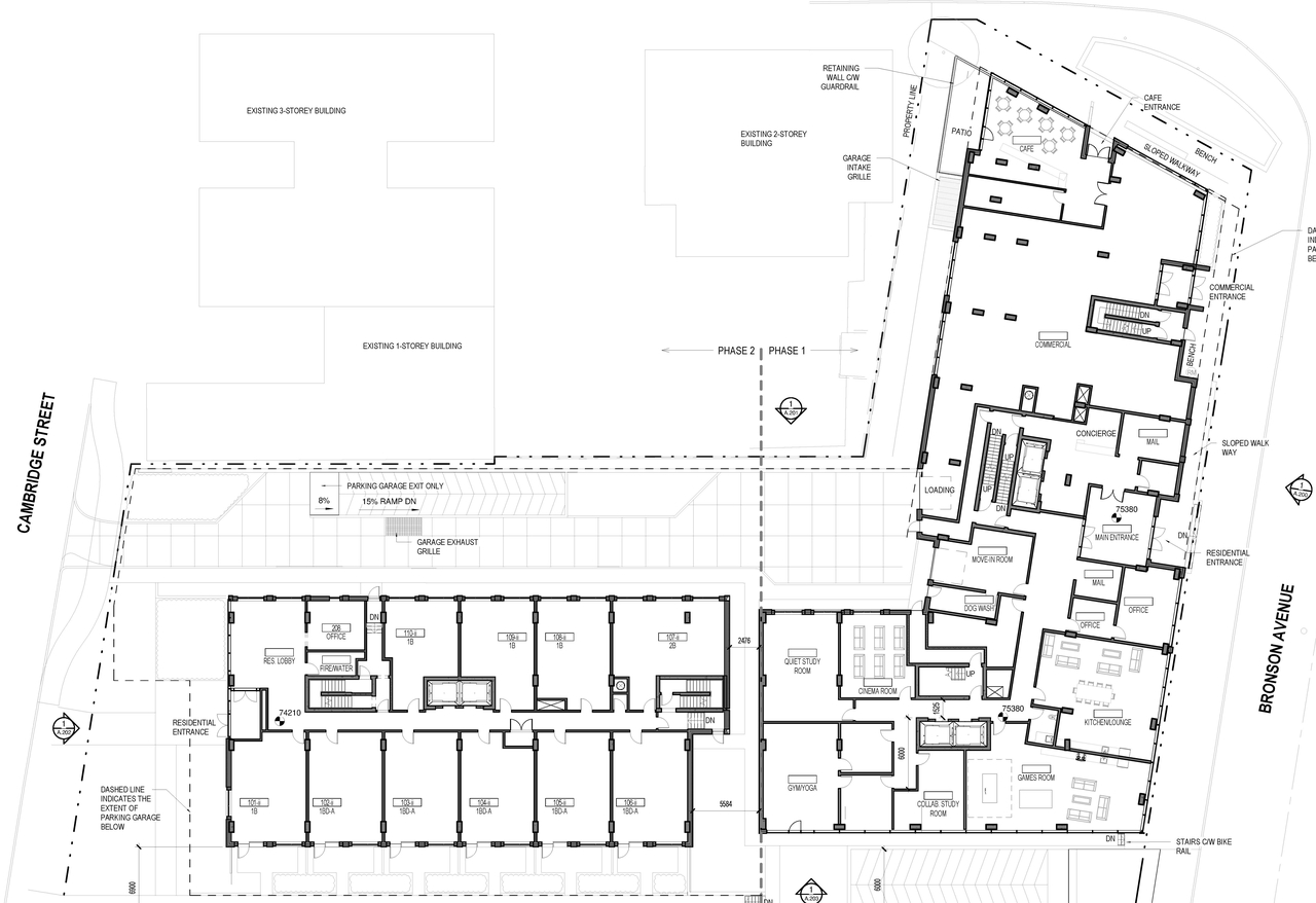
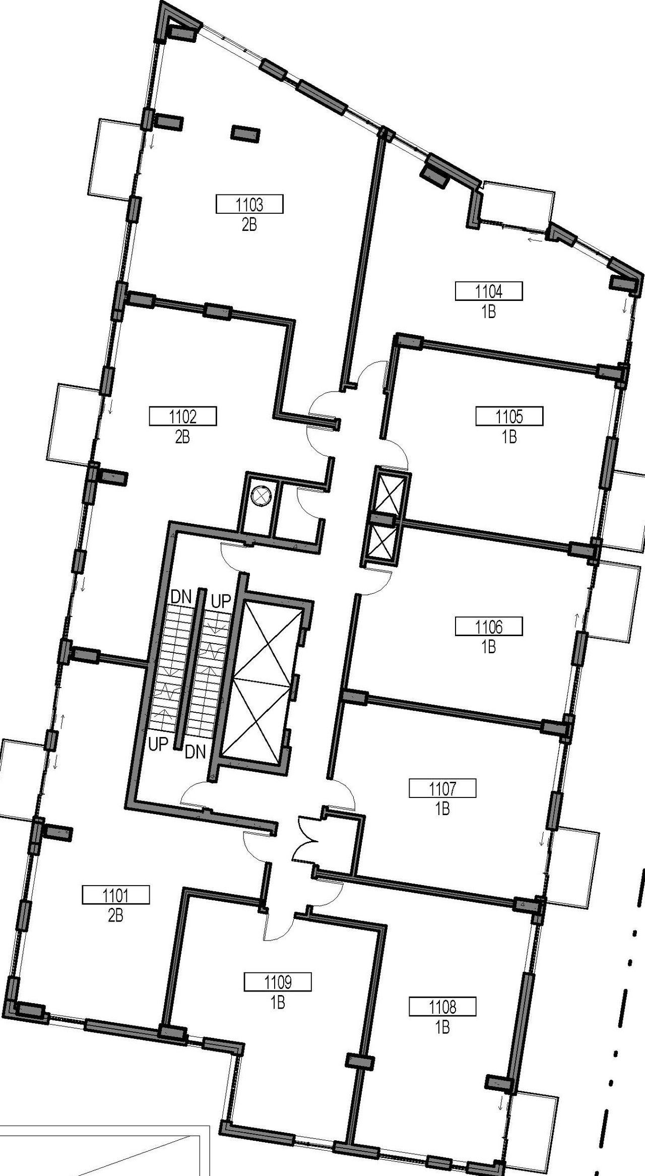
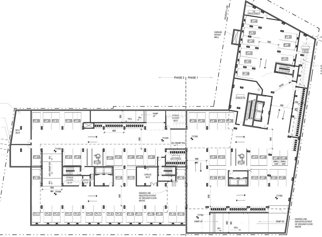
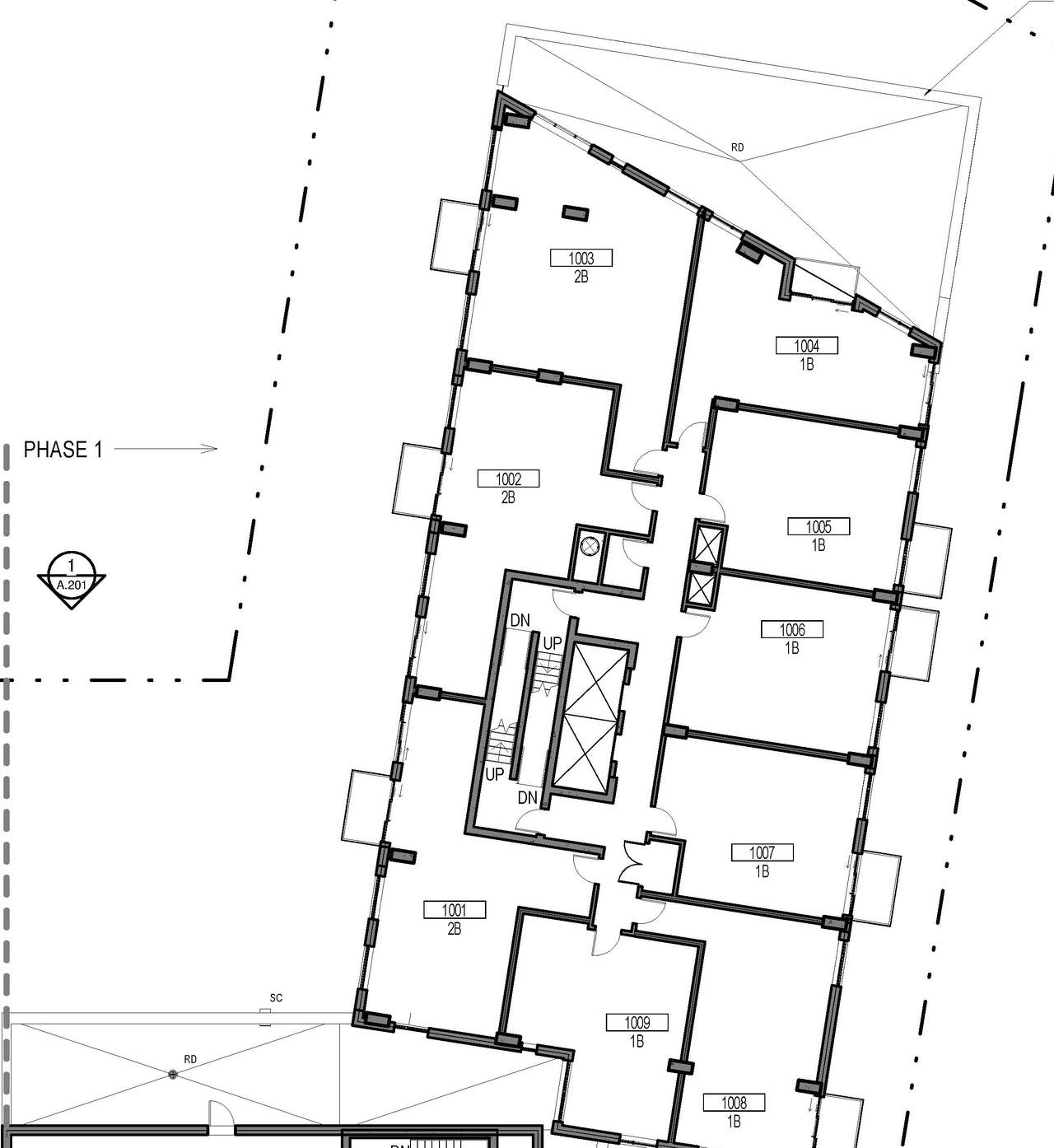
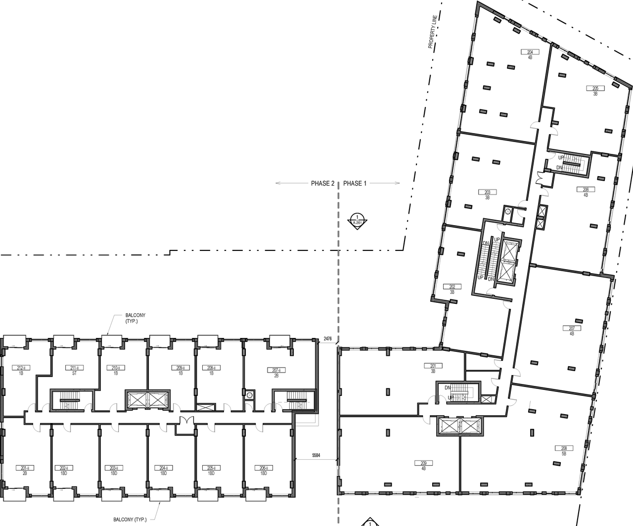
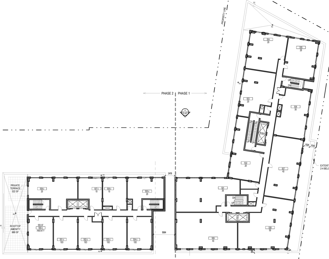
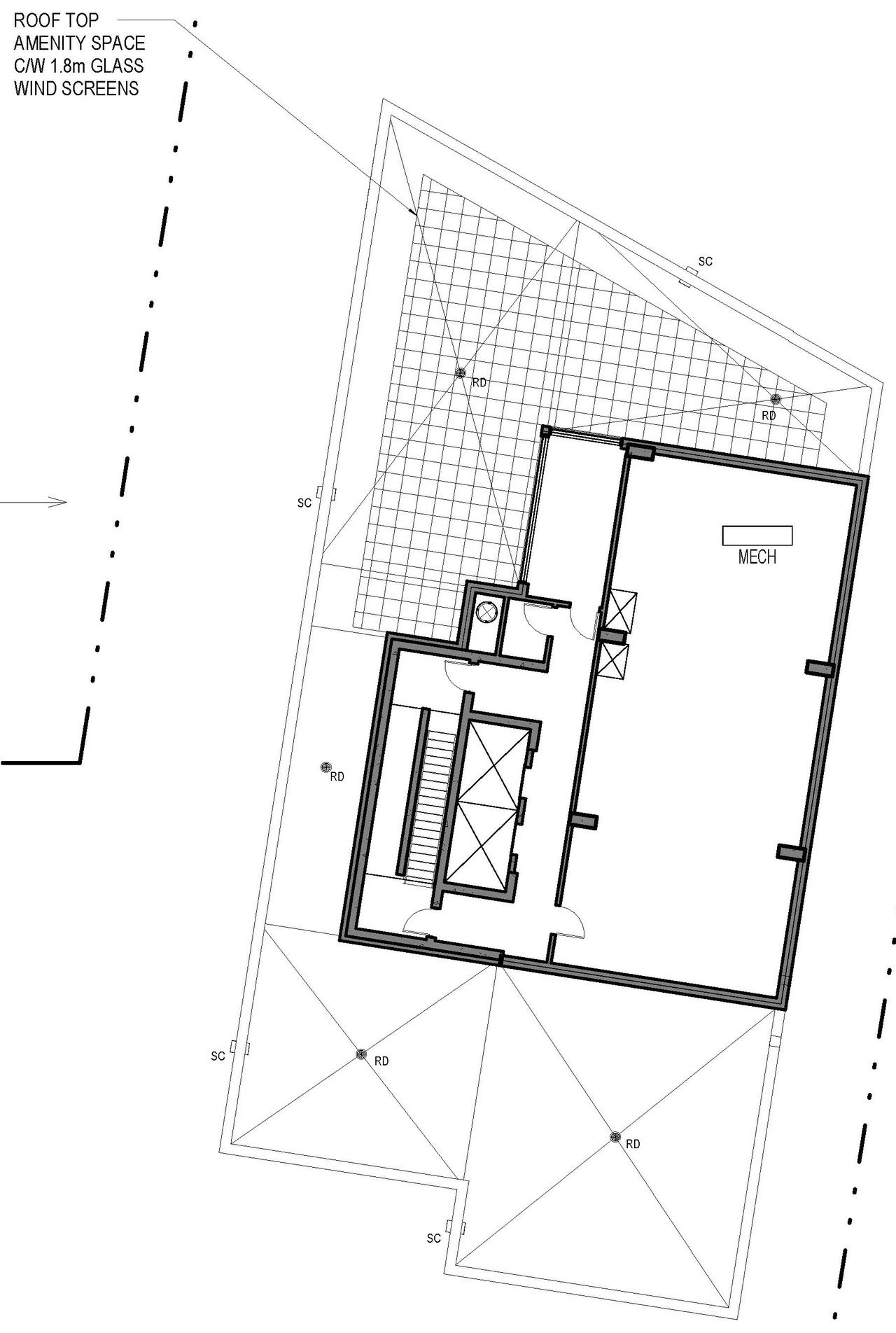
| Description | The proposed development consists of a 26-storey high-rise mixed-use with a nine storey podium along Bronson Avenue and extending west to Cambridge Street South, stepping down to four (4) storeys adjacent to the low-rise neighbourhood. A total of 328 units are proposed within the building which is to be constructed in two phases. |
| Ward | Ward 17 - Shawn Menard |
| Date Initiated | 2021-07-19 |
| Last Updated | 2023-12-20 |
Renders#
Location#
Select a marker to view the address.
Site Plans, Elevations and Floor Plans#
Documents#
Additional Information#
| All Addresses | 770 Bronson Ave. 774 Bronson Ave. 557 Cambridge St. |














































