120 Den Haag Dr. (D02-02-21-0008)#
Summary#
| Application Status | File Pending |
| Review Status | Application File Pending |
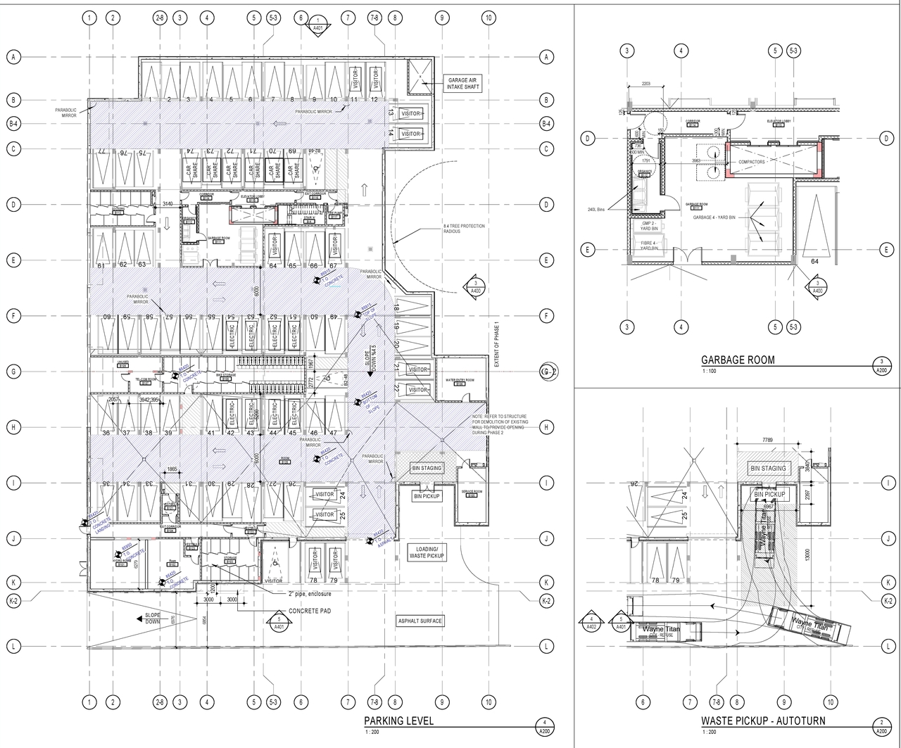
| Description | Proposed 8 storey mixed use building with 126 residential rental units and underground parking |
| Ward | Ward 13 - Rawlson King |
| Date Initiated | 2021-01-30 |
| Last Updated | 2022-06-20 |
Renders#
Location#
Select a marker to view the address.







