267 O'Connor (D02-02-20-0101)

267 O’Connor (D02-02-20-0101) #

Summary #

Application StatusFile Pending
Review StatusApplication File Pending
DescriptionThe proposed Zoning By-law Amendment proposes to amend the zoning of the subject property to “Residential Fifth Density, Subzone B, Exception XXXX, Schedule YYY (R5B[XXXX] S(YYY)). A new site-specific zoning schedule will establish permitted building heights, required setbacks and required stepbacks while the site-specific exception will provide the necessary relief from specific provisions of the current zone. The site-specific exception would also permit a range of non-residential uses for the at-grade retail space, consistent with the policies of the Centretown Secondary Plan.
WardWard 14 - Ariel Troster
Date Initiated2020-10-21
Last Updated2025-04-01

Renders #

  • Rendering of building from page 34 of the file '2025-09-03 - SDRP Design Brief - Package 3 - D02-02-20-0101'
  • Rendering of building from page 34 of the file '2025-02-24 - Design Brief - D01-01-20-0019 & D02-02-20-0101'
  • Rendering of building from page 43 of the file '2025-09-03 - SDRP Design Brief - Package 3 - D02-02-20-0101'
  • Rendering of building from page 33 of the file '2025-09-03 - SDRP Design Brief - Package 3 - D02-02-20-0101'
  • Rendering of building from page 36 of the file '2025-09-03 - SDRP Design Brief - Package 3 - D02-02-20-0101'
  • Rendering of building from page 32 of the file '2025-09-03 - SDRP Design Brief - Package 3 - D02-02-20-0101'
  • Rendering of building from page 24 of the file '2025-09-03 - SDRP Design Brief - Package 3 - D02-02-20-0101'
  • Rendering of building from page 26 of the file '2025-09-03 - SDRP Design Brief - Package 3 - D02-02-20-0101'
  • Rendering of building from page 28 of the file '2024-05-07 - Special Design Review Panel Presentation - D02-02-20-0101'
  • Rendering of building from page 18 of the file '2025-09-03 - SDRP Design Brief - Package 3 - D02-02-20-0101'
  • Rendering of building from page 31 of the file '2024-05-07 - Special Design Review Panel Presentation - D02-02-20-0101'
  • Rendering of building from page 16 of the file '2024-05-07 - Special Design Review Panel Presentation - D02-02-20-0101'
  • Rendering of building from page 25 of the file '2025-09-03 - SDRP Design Brief - Package 3 - D02-02-20-0101'
  • Rendering of building from page 21 of the file '2025-09-03 - SDRP Design Brief - Package 3 - D02-02-20-0101'
  • Rendering of building from page 18 of the file '2025-09-03 - SDRP Design Brief - Package 3 - D02-02-20-0101'
  • Rendering of building from page 42 of the file '2025-09-03 - SDRP Design Brief - Package 3 - D02-02-20-0101'
  • Rendering of building from page 41 of the file '2025-09-03 - SDRP Design Brief - Package 3 - D02-02-20-0101'
  • Rendering of building from page 30 of the file '2025-09-03 - SDRP Design Brief - Package 3 - D02-02-20-0101'
  • Rendering of building from page 39 of the file '2025-09-03 - SDRP Design Brief - Package 3 - D02-02-20-0101'
  • Rendering of building from page 6 of the file '2025-09-03 - SDRP Design Brief - Package 3 - D02-02-20-0101'
  • Rendering of building from page 16 of the file '2025-02-24 - Design Brief - D01-01-20-0019 & D02-02-20-0101'
  • Rendering of building from page 12 of the file '2025-09-03 - SDRP Design Brief - Package 3 - D02-02-20-0101'
  • Rendering of building from page 8 of the file '2025-09-03 - SDRP Design Brief - Package 3 - D02-02-20-0101'
  • Rendering of building from page 9 of the file '2025-09-03 - SDRP Design Brief - Package 3 - D02-02-20-0101'
  • Rendering of building from page 36 of the file '2025-02-24 - Design Brief - D01-01-20-0019 & D02-02-20-0101'
  • Rendering of building from page 1 of the file '2025-09-03 - SDRP Design Brief - Package 3 - D02-02-20-0101'
  • Rendering of building from page 39 of the file '2025-02-24 - Design Brief - D01-01-20-0019 & D02-02-20-0101'
  • Rendering of building from page 31 of the file '2025-09-03 - SDRP Design Brief - Package 3 - D02-02-20-0101'
  • Rendering of building from page 13 of the file '2025-09-03 - SDRP Design Brief - Package 3 - D02-02-20-0101'
  • Rendering of building from page 38 of the file '2024-05-07 - Special Design Review Panel Presentation - D02-02-20-0101'
  • Rendering of building from page 33 of the file '2025-02-24 - Design Brief - D01-01-20-0019 & D02-02-20-0101'
  • Rendering of building from page 16 of the file '2025-02-24 - Design Brief - D01-01-20-0019 & D02-02-20-0101'
  • Rendering of building from page 11 of the file '2025-09-03 - SDRP Design Brief - Package 3 - D02-02-20-0101'
  • Rendering of building from page 24 of the file '2025-09-03 - SDRP Design Brief - Package 3 - D02-02-20-0101'
  • Rendering of building from page 42 of the file '2025-02-24 - Design Brief - D01-01-20-0019 & D02-02-20-0101'
  • Rendering of building from page 7 of the file '2025-09-03 - SDRP Design Brief - Package 3 - D02-02-20-0101'
  • Rendering of building from page 45 of the file '2025-09-03 - SDRP Design Brief - Package 3 - D02-02-20-0101'
  • Rendering of building from page 34 of the file '2025-09-03 - SDRP Design Brief - Package 3 - D02-02-20-0101'
  • Rendering of building from page 7 of the file '2025-02-24 - Design Brief - D01-01-20-0019 & D02-02-20-0101'
  • Rendering of building from page 36 of the file '2024-05-07 - Special Design Review Panel Presentation - D02-02-20-0101'
  • Rendering of building from page 10 of the file '2025-09-03 - SDRP Design Brief - Package 3 - D02-02-20-0101'
  • Rendering of building from page 16 of the file '2025-02-24 - Design Brief - D01-01-20-0019 & D02-02-20-0101'
  • Rendering of building from page 16 of the file '2025-02-24 - Design Brief - D01-01-20-0019 & D02-02-20-0101'
  • Rendering of building from page 44 of the file '2025-02-24 - Design Brief - D01-01-20-0019 & D02-02-20-0101'
  • Rendering of building from page 27 of the file '2024-05-07 - Special Design Review Panel Presentation - D02-02-20-0101'
  • Rendering of building from page 9 of the file '2025-09-03 - SDRP Design Brief - Package 3 - D02-02-20-0101'
  • Rendering of building from page 26 of the file '2025-09-03 - SDRP Design Brief - Package 3 - D02-02-20-0101'
  • Rendering of building from page 8 of the file '2024-05-07 - Special Design Review Panel Presentation - D02-02-20-0101'
  • Rendering of building from page 32 of the file '2025-02-24 - Design Brief - D01-01-20-0019 & D02-02-20-0101'
  • Rendering of building from page 30 of the file '2024-05-07 - Special Design Review Panel Presentation - D02-02-20-0101'
  • Rendering of building from page 2 of the file '2025-09-03 - SDRP Design Brief - Package 3 - D02-02-20-0101'
  • Rendering of building from page 25 of the file '2024-05-07 - Special Design Review Panel Presentation - D02-02-20-0101'
  • Rendering of building from page 8 of the file '2025-02-24 - Design Brief - D01-01-20-0019 & D02-02-20-0101'
  • Rendering of building from page 11 of the file '2025-09-03 - SDRP Design Brief - Package 3 - D02-02-20-0101'
  • Rendering of building from page 26 of the file '2024-05-07 - Special Design Review Panel Presentation - D02-02-20-0101'
  • Rendering of building from page 7 of the file '2024-05-07 - Special Design Review Panel Presentation - D02-02-20-0101'
  • Rendering of building from page 42 of the file '2024-05-07 - Special Design Review Panel Presentation - D02-02-20-0101'
  • Rendering of building from page 41 of the file '2025-02-24 - Design Brief - D01-01-20-0019 & D02-02-20-0101'
  • Rendering of building from page 30 of the file '2025-02-24 - Design Brief - D01-01-20-0019 & D02-02-20-0101'
  • Rendering of building from page 38 of the file '2025-09-03 - SDRP Design Brief - Package 3 - D02-02-20-0101'
  • Rendering of building from page 27 of the file '2024-05-07 - Special Design Review Panel Presentation - D02-02-20-0101'
  • Rendering of building from page 24 of the file '2024-05-07 - Special Design Review Panel Presentation - D02-02-20-0101'
  • Rendering of building from page 20 of the file '2025-09-03 - SDRP Design Brief - Package 3 - D02-02-20-0101'
  • Rendering of building from page 21 of the file '2025-02-24 - Design Brief - D01-01-20-0019 & D02-02-20-0101'
  • Rendering of building from page 1 of the file 'Special Design Review Meeting Recommendations FR - Jan 15 2021'
  • Rendering of building from page 38 of the file '2025-02-24 - Design Brief - D01-01-20-0019 & D02-02-20-0101'
  • Rendering of building from page 7 of the file '2025-09-03 - SDRP Design Brief - Package 3 - D02-02-20-0101'
  • Rendering of building from page 8 of the file '2025-09-03 - SDRP Design Brief - Package 3 - D02-02-20-0101'
  • Rendering of building from page 49 of the file '2025-09-03 - SDRP Design Brief - Package 3 - D02-02-20-0101'
  • Rendering of building from page 28 of the file '2024-05-07 - Special Design Review Panel Presentation - D02-02-20-0101'
  • Rendering of building from page 3 of the file '2024-05-07 - Special Design Review Panel Presentation - D02-02-20-0101'
  • Rendering of building from page 16 of the file '2025-02-24 - Design Brief - D01-01-20-0019 & D02-02-20-0101'
  • Rendering of building from page 34 of the file '2024-05-07 - Special Design Review Panel Presentation - D02-02-20-0101'
  • Rendering of building from page 28 of the file '2025-09-03 - SDRP Design Brief - Package 3 - D02-02-20-0101'
  • Rendering of building from page 15 of the file '2025-09-03 - SDRP Design Brief - Package 3 - D02-02-20-0101'
  • Rendering of building from page 16 of the file '2025-02-24 - Design Brief - D01-01-20-0019 & D02-02-20-0101'
  • Rendering of building from page 6 of the file '2024-05-07 - Special Design Review Panel Presentation - D02-02-20-0101'
  • Rendering of building from page 24 of the file '2025-02-24 - Design Brief - D01-01-20-0019 & D02-02-20-0101'
  • Rendering of building from page 16 of the file '2025-02-24 - Design Brief - D01-01-20-0019 & D02-02-20-0101'
  • Rendering of building from page 18 of the file '2024-05-07 - Special Design Review Panel Presentation - D02-02-20-0101'
  • Rendering of building from page 44 of the file '2025-09-03 - SDRP Design Brief - Package 3 - D02-02-20-0101'
  • Rendering of building from page 3 of the file '2025-02-24 - Design Brief - D01-01-20-0019 & D02-02-20-0101'
  • Rendering of building from page 43 of the file '2025-02-24 - Design Brief - D01-01-20-0019 & D02-02-20-0101'
  • Rendering of building from page 7 of the file '2025-09-03 - SDRP Design Brief - Package 3 - D02-02-20-0101'
  • Rendering of building from page 66 of the file '2025-02-24 - Design Brief - D01-01-20-0019 & D02-02-20-0101'
  • Rendering of building from page 10 of the file '2025-02-24 - Design Brief - D01-01-20-0019 & D02-02-20-0101'
  • Rendering of building from page 15 of the file '2024-05-07 - Special Design Review Panel Presentation - D02-02-20-0101'
  • Rendering of building from page 9 of the file '2024-05-07 - Special Design Review Panel Presentation - D02-02-20-0101'
  • Rendering of building from page 53 of the file '2025-09-03 - SDRP Design Brief - Package 3 - D02-02-20-0101'
  • Rendering of building from page 51 of the file '2024-05-07 - Special Design Review Panel Presentation - D02-02-20-0101'
  • Rendering of building from page 2 of the file '2025-02-24 - Design Brief Appendix - D01-01-20-0019 & D02-02-20-0101'
  • Rendering of building from page 39 of the file '2024-05-07 - Special Design Review Panel Presentation - D02-02-20-0101'
  • Rendering of building from page 17 of the file '2024-05-07 - Special Design Review Panel Presentation - D02-02-20-0101'
  • Rendering of building from page 26 of the file '2025-09-03 - SDRP Design Brief - Package 3 - D02-02-20-0101'
  • Rendering of building from page 34 of the file '2025-02-24 - Design Brief - D01-01-20-0019 & D02-02-20-0101'
  • Rendering of building from page 1 of the file '2025-02-24 - Design Brief Appendix - D01-01-20-0019 & D02-02-20-0101'
  • Rendering of building from page 73 of the file '2025-02-24 - Design Brief - D01-01-20-0019 & D02-02-20-0101'
  • Rendering of building from page 21 of the file '2025-02-24 - Design Brief - D01-01-20-0019 & D02-02-20-0101'
  • Rendering of building from page 20 of the file '2025-02-24 - Design Brief - D01-01-20-0019 & D02-02-20-0101'
  • Rendering of building from page 54 of the file '2024-05-07 - Special Design Review Panel Presentation - D02-02-20-0101'
  • Rendering of building from page 58 of the file '2024-05-07 - Special Design Review Panel Presentation - D02-02-20-0101'
  • Rendering of building from page 2 of the file '2024-05-07 - Special Design Review Panel Presentation - D02-02-20-0101'
  • Rendering of building from page 52 of the file '2025-09-03 - SDRP Design Brief - Package 3 - D02-02-20-0101'
  • Rendering of building from page 19 of the file '2025-09-03 - SDRP Design Brief - Package 3 - D02-02-20-0101'
  • Rendering of building from page 69 of the file '2025-02-24 - Design Brief - D01-01-20-0019 & D02-02-20-0101'
  • Rendering of building from page 1 of the file '2024-05-07 - Special Design Review Panel Presentation - D02-02-20-0101'
  • Rendering of building from page 22 of the file '2024-05-07 - Special Design Review Panel Presentation - D02-02-20-0101'
  • Rendering of building from page 65 of the file '2025-02-24 - Design Brief - D01-01-20-0019 & D02-02-20-0101'
  • Rendering of building from page 44 of the file '2025-02-24 - Design Brief Appendix - D01-01-20-0019 & D02-02-20-0101'
  • Rendering of building from page 22 of the file '2024-05-07 - Special Design Review Panel Presentation - D02-02-20-0101'
  • Rendering of building from page 22 of the file '2024-05-07 - Special Design Review Panel Presentation - D02-02-20-0101'
  • Rendering of building from page 1 of the file '2025-02-24 - NCC View Plane Diagram - D01-01-20-0019 & D02-02-20-0101'
  • Rendering of building from page 28 of the file '2025-09-03 - SDRP Design Brief - Package 3 - D02-02-20-0101'
  • Rendering of building from page 31 of the file '2025-02-24 - Design Brief - D01-01-20-0019 & D02-02-20-0101'
  • Rendering of building from page 16 of the file '2025-02-24 - Design Brief - D01-01-20-0019 & D02-02-20-0101'
  • Rendering of building from page 31 of the file '2025-02-24 - Design Brief - D01-01-20-0019 & D02-02-20-0101'
  • Rendering of building from page 32 of the file '2024-05-07 - Special Design Review Panel Presentation - D02-02-20-0101'
  • Rendering of building from page 27 of the file '2025-09-03 - SDRP Design Brief - Package 3 - D02-02-20-0101'
  • Rendering of building from page 31 of the file '2025-02-24 - Design Brief - D01-01-20-0019 & D02-02-20-0101'
  • Rendering of building from page 48 of the file '2025-02-24 - Design Brief - D01-01-20-0019 & D02-02-20-0101'
  • Rendering of building from page 55 of the file '2025-02-24 - Design Brief - D01-01-20-0019 & D02-02-20-0101'
  • Rendering of building from page 52 of the file '2025-02-24 - Design Brief - D01-01-20-0019 & D02-02-20-0101'
  • Rendering of building from page 54 of the file '2025-02-24 - Design Brief - D01-01-20-0019 & D02-02-20-0101'
  • Rendering of building from page 51 of the file '2025-02-24 - Design Brief - D01-01-20-0019 & D02-02-20-0101'
  • Rendering of building from page 53 of the file '2025-02-24 - Design Brief - D01-01-20-0019 & D02-02-20-0101'
  • Rendering of building from page 49 of the file '2025-02-24 - Design Brief - D01-01-20-0019 & D02-02-20-0101'
  • Rendering of building from page 23 of the file '2024-05-07 - Special Design Review Panel Presentation - D02-02-20-0101'
  • Rendering of building from page 57 of the file '2025-02-24 - Design Brief - D01-01-20-0019 & D02-02-20-0101'
  • Rendering of building from page 15 of the file '2024-05-07 - Special Design Review Panel Presentation - D02-02-20-0101'
  • Rendering of building from page 16 of the file '2025-02-24 - Design Brief Appendix - D01-01-20-0019 & D02-02-20-0101'
  • Rendering of building from page 15 of the file '2024-05-07 - Special Design Review Panel Presentation - D02-02-20-0101'
  • Rendering of building from page 18 of the file '2025-09-03 - SDRP Design Brief - Package 3 - D02-02-20-0101'
  • Rendering of building from page 34 of the file '2025-09-03 - SDRP Design Brief - Package 3 - D02-02-20-0101'
  • Rendering of building from page 34 of the file '2025-02-24 - Design Brief - D01-01-20-0019 & D02-02-20-0101'
  • Rendering of building from page 43 of the file '2025-09-03 - SDRP Design Brief - Package 3 - D02-02-20-0101'
  • Rendering of building from page 33 of the file '2025-09-03 - SDRP Design Brief - Package 3 - D02-02-20-0101'
  • Rendering of building from page 36 of the file '2025-09-03 - SDRP Design Brief - Package 3 - D02-02-20-0101'
  • Rendering of building from page 32 of the file '2025-09-03 - SDRP Design Brief - Package 3 - D02-02-20-0101'
  • Rendering of building from page 24 of the file '2025-09-03 - SDRP Design Brief - Package 3 - D02-02-20-0101'
  • Rendering of building from page 26 of the file '2025-09-03 - SDRP Design Brief - Package 3 - D02-02-20-0101'
  • Rendering of building from page 28 of the file '2024-05-07 - Special Design Review Panel Presentation - D02-02-20-0101'
  • Rendering of building from page 18 of the file '2025-09-03 - SDRP Design Brief - Package 3 - D02-02-20-0101'
  • Rendering of building from page 31 of the file '2024-05-07 - Special Design Review Panel Presentation - D02-02-20-0101'
  • Rendering of building from page 16 of the file '2024-05-07 - Special Design Review Panel Presentation - D02-02-20-0101'
  • Rendering of building from page 25 of the file '2025-09-03 - SDRP Design Brief - Package 3 - D02-02-20-0101'
  • Rendering of building from page 21 of the file '2025-09-03 - SDRP Design Brief - Package 3 - D02-02-20-0101'
  • Rendering of building from page 18 of the file '2025-09-03 - SDRP Design Brief - Package 3 - D02-02-20-0101'
  • Rendering of building from page 42 of the file '2025-09-03 - SDRP Design Brief - Package 3 - D02-02-20-0101'
  • Rendering of building from page 41 of the file '2025-09-03 - SDRP Design Brief - Package 3 - D02-02-20-0101'
  • Rendering of building from page 30 of the file '2025-09-03 - SDRP Design Brief - Package 3 - D02-02-20-0101'
  • Rendering of building from page 39 of the file '2025-09-03 - SDRP Design Brief - Package 3 - D02-02-20-0101'
  • Rendering of building from page 6 of the file '2025-09-03 - SDRP Design Brief - Package 3 - D02-02-20-0101'
  • Rendering of building from page 16 of the file '2025-02-24 - Design Brief - D01-01-20-0019 & D02-02-20-0101'
  • Rendering of building from page 12 of the file '2025-09-03 - SDRP Design Brief - Package 3 - D02-02-20-0101'
  • Rendering of building from page 8 of the file '2025-09-03 - SDRP Design Brief - Package 3 - D02-02-20-0101'
  • Rendering of building from page 9 of the file '2025-09-03 - SDRP Design Brief - Package 3 - D02-02-20-0101'
  • Rendering of building from page 36 of the file '2025-02-24 - Design Brief - D01-01-20-0019 & D02-02-20-0101'
  • Rendering of building from page 1 of the file '2025-09-03 - SDRP Design Brief - Package 3 - D02-02-20-0101'
  • Rendering of building from page 39 of the file '2025-02-24 - Design Brief - D01-01-20-0019 & D02-02-20-0101'
  • Rendering of building from page 31 of the file '2025-09-03 - SDRP Design Brief - Package 3 - D02-02-20-0101'
  • Rendering of building from page 13 of the file '2025-09-03 - SDRP Design Brief - Package 3 - D02-02-20-0101'
  • Rendering of building from page 38 of the file '2024-05-07 - Special Design Review Panel Presentation - D02-02-20-0101'
  • Rendering of building from page 33 of the file '2025-02-24 - Design Brief - D01-01-20-0019 & D02-02-20-0101'
  • Rendering of building from page 16 of the file '2025-02-24 - Design Brief - D01-01-20-0019 & D02-02-20-0101'
  • Rendering of building from page 11 of the file '2025-09-03 - SDRP Design Brief - Package 3 - D02-02-20-0101'
  • Rendering of building from page 24 of the file '2025-09-03 - SDRP Design Brief - Package 3 - D02-02-20-0101'
  • Rendering of building from page 42 of the file '2025-02-24 - Design Brief - D01-01-20-0019 & D02-02-20-0101'
  • Rendering of building from page 7 of the file '2025-09-03 - SDRP Design Brief - Package 3 - D02-02-20-0101'
  • Rendering of building from page 45 of the file '2025-09-03 - SDRP Design Brief - Package 3 - D02-02-20-0101'
  • Rendering of building from page 34 of the file '2025-09-03 - SDRP Design Brief - Package 3 - D02-02-20-0101'
  • Rendering of building from page 7 of the file '2025-02-24 - Design Brief - D01-01-20-0019 & D02-02-20-0101'
  • Rendering of building from page 36 of the file '2024-05-07 - Special Design Review Panel Presentation - D02-02-20-0101'
  • Rendering of building from page 10 of the file '2025-09-03 - SDRP Design Brief - Package 3 - D02-02-20-0101'
  • Rendering of building from page 16 of the file '2025-02-24 - Design Brief - D01-01-20-0019 & D02-02-20-0101'
  • Rendering of building from page 16 of the file '2025-02-24 - Design Brief - D01-01-20-0019 & D02-02-20-0101'
  • Rendering of building from page 44 of the file '2025-02-24 - Design Brief - D01-01-20-0019 & D02-02-20-0101'
  • Rendering of building from page 27 of the file '2024-05-07 - Special Design Review Panel Presentation - D02-02-20-0101'
  • Rendering of building from page 9 of the file '2025-09-03 - SDRP Design Brief - Package 3 - D02-02-20-0101'
  • Rendering of building from page 26 of the file '2025-09-03 - SDRP Design Brief - Package 3 - D02-02-20-0101'
  • Rendering of building from page 8 of the file '2024-05-07 - Special Design Review Panel Presentation - D02-02-20-0101'
  • Rendering of building from page 32 of the file '2025-02-24 - Design Brief - D01-01-20-0019 & D02-02-20-0101'
  • Rendering of building from page 30 of the file '2024-05-07 - Special Design Review Panel Presentation - D02-02-20-0101'
  • Rendering of building from page 2 of the file '2025-09-03 - SDRP Design Brief - Package 3 - D02-02-20-0101'
  • Rendering of building from page 25 of the file '2024-05-07 - Special Design Review Panel Presentation - D02-02-20-0101'
  • Rendering of building from page 8 of the file '2025-02-24 - Design Brief - D01-01-20-0019 & D02-02-20-0101'
  • Rendering of building from page 11 of the file '2025-09-03 - SDRP Design Brief - Package 3 - D02-02-20-0101'
  • Rendering of building from page 26 of the file '2024-05-07 - Special Design Review Panel Presentation - D02-02-20-0101'
  • Rendering of building from page 7 of the file '2024-05-07 - Special Design Review Panel Presentation - D02-02-20-0101'
  • Rendering of building from page 42 of the file '2024-05-07 - Special Design Review Panel Presentation - D02-02-20-0101'
  • Rendering of building from page 41 of the file '2025-02-24 - Design Brief - D01-01-20-0019 & D02-02-20-0101'
  • Rendering of building from page 30 of the file '2025-02-24 - Design Brief - D01-01-20-0019 & D02-02-20-0101'
  • Rendering of building from page 38 of the file '2025-09-03 - SDRP Design Brief - Package 3 - D02-02-20-0101'
  • Rendering of building from page 27 of the file '2024-05-07 - Special Design Review Panel Presentation - D02-02-20-0101'
  • Rendering of building from page 24 of the file '2024-05-07 - Special Design Review Panel Presentation - D02-02-20-0101'
  • Rendering of building from page 20 of the file '2025-09-03 - SDRP Design Brief - Package 3 - D02-02-20-0101'
  • Rendering of building from page 21 of the file '2025-02-24 - Design Brief - D01-01-20-0019 & D02-02-20-0101'
  • Rendering of building from page 1 of the file 'Special Design Review Meeting Recommendations FR - Jan 15 2021'
  • Rendering of building from page 38 of the file '2025-02-24 - Design Brief - D01-01-20-0019 & D02-02-20-0101'
  • Rendering of building from page 7 of the file '2025-09-03 - SDRP Design Brief - Package 3 - D02-02-20-0101'
  • Rendering of building from page 8 of the file '2025-09-03 - SDRP Design Brief - Package 3 - D02-02-20-0101'
  • Rendering of building from page 49 of the file '2025-09-03 - SDRP Design Brief - Package 3 - D02-02-20-0101'
  • Rendering of building from page 28 of the file '2024-05-07 - Special Design Review Panel Presentation - D02-02-20-0101'
  • Rendering of building from page 3 of the file '2024-05-07 - Special Design Review Panel Presentation - D02-02-20-0101'
  • Rendering of building from page 16 of the file '2025-02-24 - Design Brief - D01-01-20-0019 & D02-02-20-0101'
  • Rendering of building from page 34 of the file '2024-05-07 - Special Design Review Panel Presentation - D02-02-20-0101'
  • Rendering of building from page 28 of the file '2025-09-03 - SDRP Design Brief - Package 3 - D02-02-20-0101'
  • Rendering of building from page 15 of the file '2025-09-03 - SDRP Design Brief - Package 3 - D02-02-20-0101'
  • Rendering of building from page 16 of the file '2025-02-24 - Design Brief - D01-01-20-0019 & D02-02-20-0101'
  • Rendering of building from page 6 of the file '2024-05-07 - Special Design Review Panel Presentation - D02-02-20-0101'
  • Rendering of building from page 24 of the file '2025-02-24 - Design Brief - D01-01-20-0019 & D02-02-20-0101'
  • Rendering of building from page 16 of the file '2025-02-24 - Design Brief - D01-01-20-0019 & D02-02-20-0101'
  • Rendering of building from page 18 of the file '2024-05-07 - Special Design Review Panel Presentation - D02-02-20-0101'
  • Rendering of building from page 44 of the file '2025-09-03 - SDRP Design Brief - Package 3 - D02-02-20-0101'
  • Rendering of building from page 3 of the file '2025-02-24 - Design Brief - D01-01-20-0019 & D02-02-20-0101'
  • Rendering of building from page 43 of the file '2025-02-24 - Design Brief - D01-01-20-0019 & D02-02-20-0101'
  • Rendering of building from page 7 of the file '2025-09-03 - SDRP Design Brief - Package 3 - D02-02-20-0101'
  • Rendering of building from page 66 of the file '2025-02-24 - Design Brief - D01-01-20-0019 & D02-02-20-0101'
  • Rendering of building from page 10 of the file '2025-02-24 - Design Brief - D01-01-20-0019 & D02-02-20-0101'
  • Rendering of building from page 15 of the file '2024-05-07 - Special Design Review Panel Presentation - D02-02-20-0101'
  • Rendering of building from page 9 of the file '2024-05-07 - Special Design Review Panel Presentation - D02-02-20-0101'
  • Rendering of building from page 53 of the file '2025-09-03 - SDRP Design Brief - Package 3 - D02-02-20-0101'
  • Rendering of building from page 51 of the file '2024-05-07 - Special Design Review Panel Presentation - D02-02-20-0101'
  • Rendering of building from page 2 of the file '2025-02-24 - Design Brief Appendix - D01-01-20-0019 & D02-02-20-0101'
  • Rendering of building from page 39 of the file '2024-05-07 - Special Design Review Panel Presentation - D02-02-20-0101'
  • Rendering of building from page 17 of the file '2024-05-07 - Special Design Review Panel Presentation - D02-02-20-0101'
  • Rendering of building from page 26 of the file '2025-09-03 - SDRP Design Brief - Package 3 - D02-02-20-0101'
  • Rendering of building from page 34 of the file '2025-02-24 - Design Brief - D01-01-20-0019 & D02-02-20-0101'
  • Rendering of building from page 1 of the file '2025-02-24 - Design Brief Appendix - D01-01-20-0019 & D02-02-20-0101'
  • Rendering of building from page 73 of the file '2025-02-24 - Design Brief - D01-01-20-0019 & D02-02-20-0101'
  • Rendering of building from page 21 of the file '2025-02-24 - Design Brief - D01-01-20-0019 & D02-02-20-0101'
  • Rendering of building from page 20 of the file '2025-02-24 - Design Brief - D01-01-20-0019 & D02-02-20-0101'
  • Rendering of building from page 54 of the file '2024-05-07 - Special Design Review Panel Presentation - D02-02-20-0101'
  • Rendering of building from page 58 of the file '2024-05-07 - Special Design Review Panel Presentation - D02-02-20-0101'
  • Rendering of building from page 2 of the file '2024-05-07 - Special Design Review Panel Presentation - D02-02-20-0101'
  • Rendering of building from page 52 of the file '2025-09-03 - SDRP Design Brief - Package 3 - D02-02-20-0101'
  • Rendering of building from page 19 of the file '2025-09-03 - SDRP Design Brief - Package 3 - D02-02-20-0101'
  • Rendering of building from page 69 of the file '2025-02-24 - Design Brief - D01-01-20-0019 & D02-02-20-0101'
  • Rendering of building from page 1 of the file '2024-05-07 - Special Design Review Panel Presentation - D02-02-20-0101'
  • Rendering of building from page 22 of the file '2024-05-07 - Special Design Review Panel Presentation - D02-02-20-0101'
  • Rendering of building from page 65 of the file '2025-02-24 - Design Brief - D01-01-20-0019 & D02-02-20-0101'
  • Rendering of building from page 44 of the file '2025-02-24 - Design Brief Appendix - D01-01-20-0019 & D02-02-20-0101'
  • Rendering of building from page 22 of the file '2024-05-07 - Special Design Review Panel Presentation - D02-02-20-0101'
  • Rendering of building from page 22 of the file '2024-05-07 - Special Design Review Panel Presentation - D02-02-20-0101'
  • Rendering of building from page 1 of the file '2025-02-24 - NCC View Plane Diagram - D01-01-20-0019 & D02-02-20-0101'
  • Rendering of building from page 28 of the file '2025-09-03 - SDRP Design Brief - Package 3 - D02-02-20-0101'
  • Rendering of building from page 31 of the file '2025-02-24 - Design Brief - D01-01-20-0019 & D02-02-20-0101'
  • Rendering of building from page 16 of the file '2025-02-24 - Design Brief - D01-01-20-0019 & D02-02-20-0101'
  • Rendering of building from page 31 of the file '2025-02-24 - Design Brief - D01-01-20-0019 & D02-02-20-0101'
  • Rendering of building from page 32 of the file '2024-05-07 - Special Design Review Panel Presentation - D02-02-20-0101'
  • Rendering of building from page 27 of the file '2025-09-03 - SDRP Design Brief - Package 3 - D02-02-20-0101'
  • Rendering of building from page 31 of the file '2025-02-24 - Design Brief - D01-01-20-0019 & D02-02-20-0101'
  • Rendering of building from page 48 of the file '2025-02-24 - Design Brief - D01-01-20-0019 & D02-02-20-0101'
  • Rendering of building from page 55 of the file '2025-02-24 - Design Brief - D01-01-20-0019 & D02-02-20-0101'
  • Rendering of building from page 52 of the file '2025-02-24 - Design Brief - D01-01-20-0019 & D02-02-20-0101'
  • Rendering of building from page 54 of the file '2025-02-24 - Design Brief - D01-01-20-0019 & D02-02-20-0101'
  • Rendering of building from page 51 of the file '2025-02-24 - Design Brief - D01-01-20-0019 & D02-02-20-0101'
  • Rendering of building from page 53 of the file '2025-02-24 - Design Brief - D01-01-20-0019 & D02-02-20-0101'
  • Rendering of building from page 49 of the file '2025-02-24 - Design Brief - D01-01-20-0019 & D02-02-20-0101'
  • Rendering of building from page 23 of the file '2024-05-07 - Special Design Review Panel Presentation - D02-02-20-0101'
  • Rendering of building from page 57 of the file '2025-02-24 - Design Brief - D01-01-20-0019 & D02-02-20-0101'
  • Rendering of building from page 15 of the file '2024-05-07 - Special Design Review Panel Presentation - D02-02-20-0101'
  • Rendering of building from page 16 of the file '2025-02-24 - Design Brief Appendix - D01-01-20-0019 & D02-02-20-0101'
  • Rendering of building from page 15 of the file '2024-05-07 - Special Design Review Panel Presentation - D02-02-20-0101'
  • Rendering of building from page 18 of the file '2025-09-03 - SDRP Design Brief - Package 3 - D02-02-20-0101'

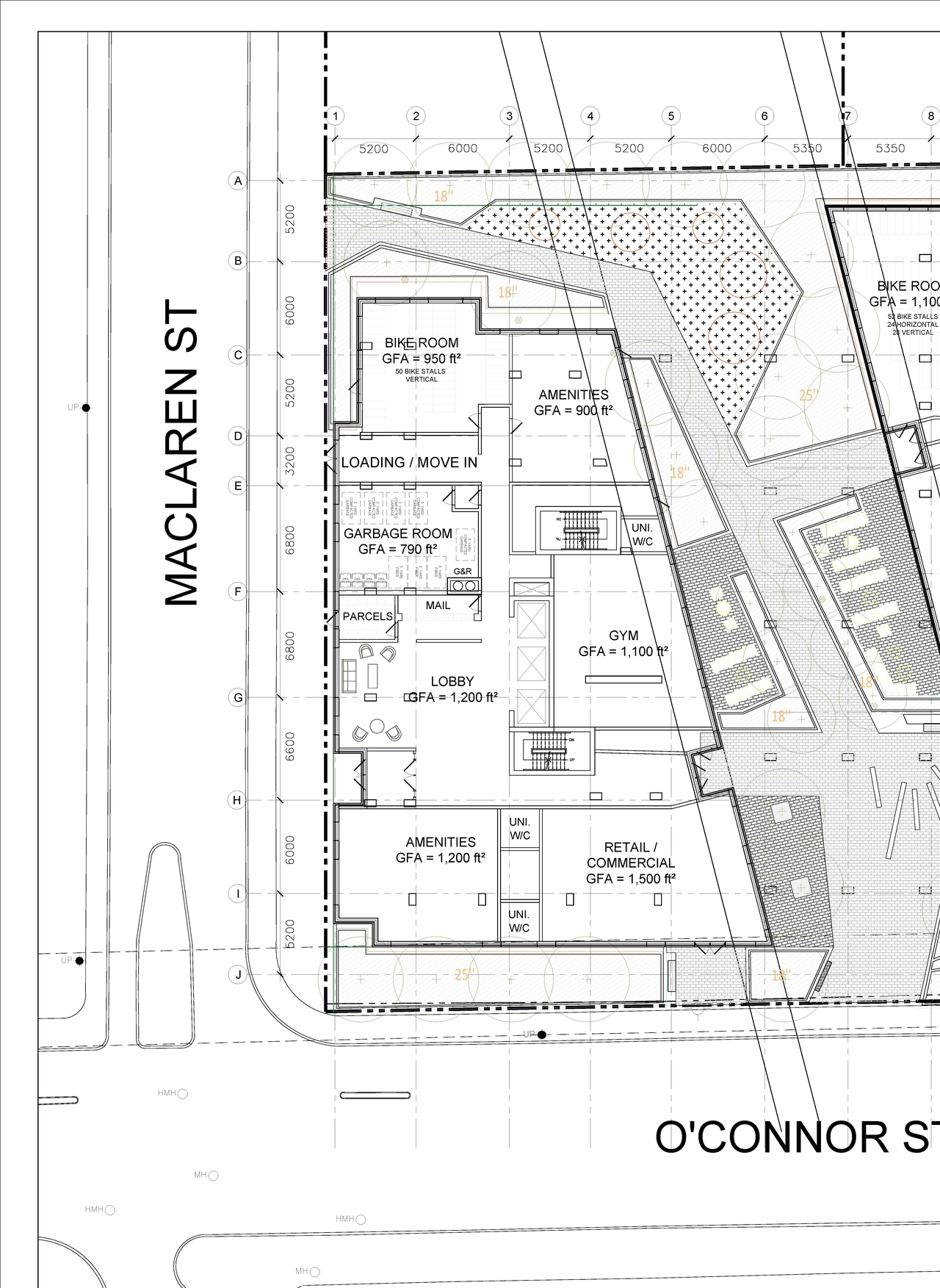
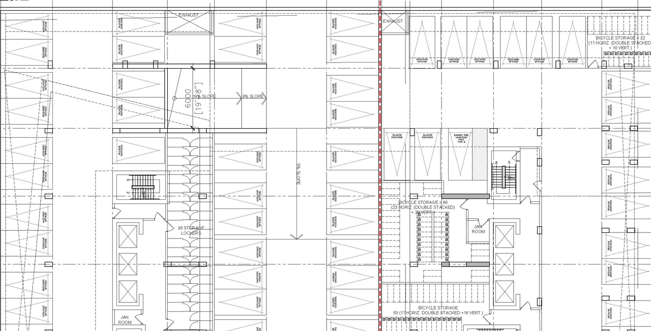
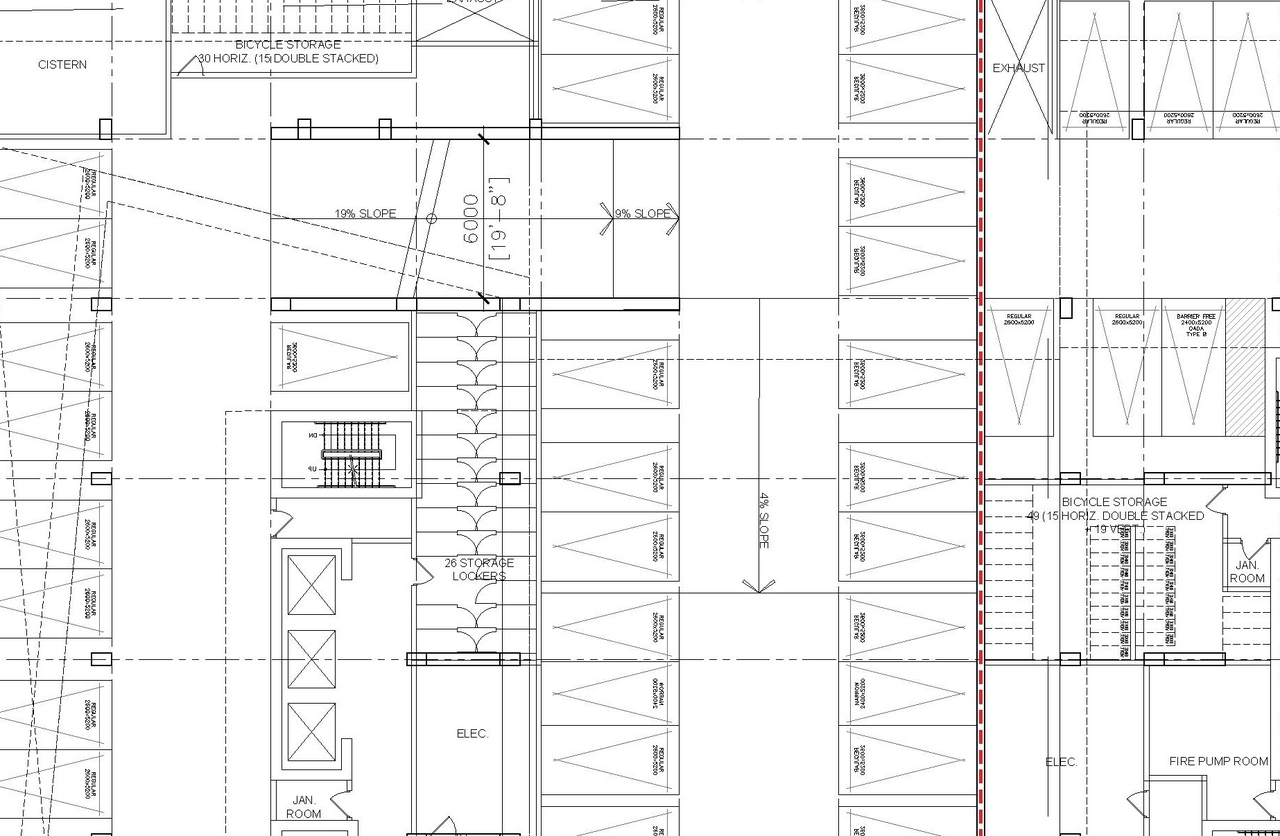
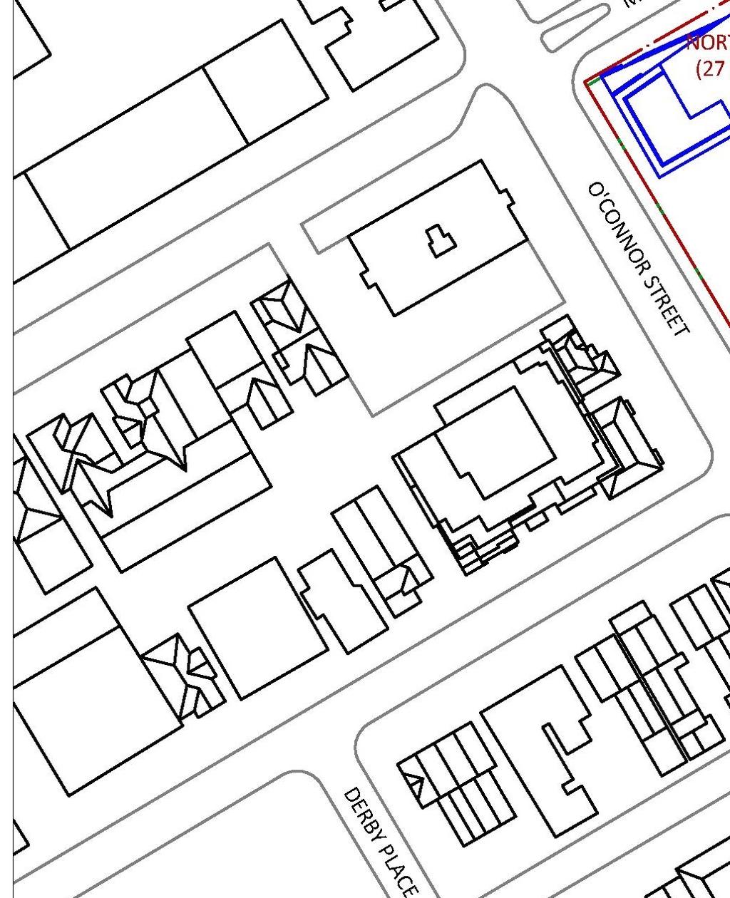
Site and Floor Plans #

  • Construction site plan for project from page 1 of the file 'Special Design Review Meeting Recommendations FR - Jan 15 2021'
  • Construction site plan for project from page 10 of the file '2024-05-07 - Special Design Review Panel Presentation - D02-02-20-0101'
  • Construction site plan for project from page 22 of the file '2024-05-07 - Special Design Review Panel Presentation - D02-02-20-0101'
  • Floor plan for project from page 33 of the file '2024-05-07 - Special Design Review Panel Presentation - D02-02-20-0101'
  • Floor plan for project from page 33 of the file '2024-05-07 - Special Design Review Panel Presentation - D02-02-20-0101'
  • Floor plan for project from page 33 of the file '2024-05-07 - Special Design Review Panel Presentation - D02-02-20-0101'
  • Floor plan for project from page 33 of the file '2024-05-07 - Special Design Review Panel Presentation - D02-02-20-0101'
  • Construction site plan for project from page 33 of the file '2024-05-07 - Special Design Review Panel Presentation - D02-02-20-0101'
  • Floor plan for project from page 33 of the file '2024-05-07 - Special Design Review Panel Presentation - D02-02-20-0101'
  • Floor plan for project from page 33 of the file '2024-05-07 - Special Design Review Panel Presentation - D02-02-20-0101'
  • Construction site plan for project from page 33 of the file '2024-05-07 - Special Design Review Panel Presentation - D02-02-20-0101'
  • Floor plan for project from page 33 of the file '2024-05-07 - Special Design Review Panel Presentation - D02-02-20-0101'
  • Floor plan for project from page 49 of the file '2024-05-07 - Special Design Review Panel Presentation - D02-02-20-0101'
  • Construction site plan for project from page 55 of the file '2024-05-07 - Special Design Review Panel Presentation - D02-02-20-0101'
  • Construction site plan for project from page 55 of the file '2024-05-07 - Special Design Review Panel Presentation - D02-02-20-0101'
  • Construction site plan for project from page 55 of the file '2024-05-07 - Special Design Review Panel Presentation - D02-02-20-0101'
  • Construction site plan for project from page 56 of the file '2024-05-07 - Special Design Review Panel Presentation - D02-02-20-0101'
  • Construction site plan for project from page 56 of the file '2024-05-07 - Special Design Review Panel Presentation - D02-02-20-0101'
  • Construction site plan for project from page 56 of the file '2024-05-07 - Special Design Review Panel Presentation - D02-02-20-0101'
  • Construction site plan for project from page 57 of the file '2024-05-07 - Special Design Review Panel Presentation - D02-02-20-0101'
  • Construction site plan for project from page 2 of the file '2020-10-23 - Site Plan and Floor Plans - D02-02-20-0101'
  • Construction site plan for project from page 4 of the file '2020-10-23 - Site Plan and Floor Plans - D02-02-20-0101'
  • Construction site plan for project from page 4 of the file '2025-02-24 - Design Brief Appendix - D01-01-20-0019 & D02-02-20-0101'
  • Construction site plan for project from page 5 of the file '2025-02-24 - Design Brief Appendix - D01-01-20-0019 & D02-02-20-0101'
  • Construction site plan for project from page 6 of the file '2025-02-24 - Design Brief Appendix - D01-01-20-0019 & D02-02-20-0101'
  • Construction site plan for project from page 7 of the file '2025-02-24 - Design Brief Appendix - D01-01-20-0019 & D02-02-20-0101'
  • Construction site plan for project from page 8 of the file '2025-02-24 - Design Brief Appendix - D01-01-20-0019 & D02-02-20-0101'
  • Construction site plan for project from page 9 of the file '2025-02-24 - Design Brief Appendix - D01-01-20-0019 & D02-02-20-0101'
  • Construction site plan for project from page 10 of the file '2025-02-24 - Design Brief Appendix - D01-01-20-0019 & D02-02-20-0101'
  • Construction site plan for project from page 11 of the file '2025-02-24 - Design Brief Appendix - D01-01-20-0019 & D02-02-20-0101'
  • Construction site plan for project from page 12 of the file '2025-02-24 - Design Brief Appendix - D01-01-20-0019 & D02-02-20-0101'
  • Construction site plan for project from page 13 of the file '2025-02-24 - Design Brief Appendix - D01-01-20-0019 & D02-02-20-0101'
  • Construction site plan for project from page 14 of the file '2025-02-24 - Design Brief Appendix - D01-01-20-0019 & D02-02-20-0101'
  • Construction site plan for project from page 15 of the file '2025-02-24 - Design Brief Appendix - D01-01-20-0019 & D02-02-20-0101'
  • Construction site plan for project from page 17 of the file '2025-02-24 - Design Brief Appendix - D01-01-20-0019 & D02-02-20-0101'
  • Construction site plan for project from page 18 of the file '2025-02-24 - Design Brief Appendix - D01-01-20-0019 & D02-02-20-0101'
  • Construction site plan for project from page 19 of the file '2025-02-24 - Design Brief Appendix - D01-01-20-0019 & D02-02-20-0101'
  • Construction site plan for project from page 20 of the file '2025-02-24 - Design Brief Appendix - D01-01-20-0019 & D02-02-20-0101'
  • Construction site plan for project from page 21 of the file '2025-02-24 - Design Brief Appendix - D01-01-20-0019 & D02-02-20-0101'
  • Construction site plan for project from page 22 of the file '2025-02-24 - Design Brief Appendix - D01-01-20-0019 & D02-02-20-0101'
  • Construction site plan for project from page 23 of the file '2025-02-24 - Design Brief Appendix - D01-01-20-0019 & D02-02-20-0101'
  • Construction site plan for project from page 24 of the file '2025-02-24 - Design Brief Appendix - D01-01-20-0019 & D02-02-20-0101'
  • Construction site plan for project from page 25 of the file '2025-02-24 - Design Brief Appendix - D01-01-20-0019 & D02-02-20-0101'
  • Construction site plan for project from page 26 of the file '2025-02-24 - Design Brief Appendix - D01-01-20-0019 & D02-02-20-0101'
  • Construction site plan for project from page 27 of the file '2025-02-24 - Design Brief Appendix - D01-01-20-0019 & D02-02-20-0101'
  • Construction site plan for project from page 28 of the file '2025-02-24 - Design Brief Appendix - D01-01-20-0019 & D02-02-20-0101'
  • Construction site plan for project from page 29 of the file '2025-02-24 - Design Brief Appendix - D01-01-20-0019 & D02-02-20-0101'
  • Construction site plan for project from page 32 of the file '2025-02-24 - Design Brief Appendix - D01-01-20-0019 & D02-02-20-0101'
  • Construction site plan for project from page 33 of the file '2025-02-24 - Design Brief Appendix - D01-01-20-0019 & D02-02-20-0101'
  • Construction site plan for project from page 34 of the file '2025-02-24 - Design Brief Appendix - D01-01-20-0019 & D02-02-20-0101'
  • Construction site plan for project from page 35 of the file '2025-02-24 - Design Brief Appendix - D01-01-20-0019 & D02-02-20-0101'
  • Construction site plan for project from page 36 of the file '2025-02-24 - Design Brief Appendix - D01-01-20-0019 & D02-02-20-0101'
  • Construction site plan for project from page 37 of the file '2025-02-24 - Design Brief Appendix - D01-01-20-0019 & D02-02-20-0101'
  • Construction site plan for project from page 38 of the file '2025-02-24 - Design Brief Appendix - D01-01-20-0019 & D02-02-20-0101'
  • Construction site plan for project from page 39 of the file '2025-02-24 - Design Brief Appendix - D01-01-20-0019 & D02-02-20-0101'
  • Construction site plan for project from page 42 of the file '2025-02-24 - Design Brief Appendix - D01-01-20-0019 & D02-02-20-0101'
  • Construction site plan for project from page 60 of the file '2025-02-24 - Design Brief Appendix - D01-01-20-0019 & D02-02-20-0101'
  • Construction site plan for project from page 37 of the file '2025-02-24 - Design Brief - D01-01-20-0019 & D02-02-20-0101'
  • Floor plan for project from page 53 of the file '2025-02-24 - Design Brief - D01-01-20-0019 & D02-02-20-0101'
  • Floor plan for project from page 54 of the file '2025-02-24 - Design Brief - D01-01-20-0019 & D02-02-20-0101'
  • Construction site plan for project from page 57 of the file '2025-02-24 - Design Brief - D01-01-20-0019 & D02-02-20-0101'
  • Floor plan for project from page 62 of the file '2025-02-24 - Design Brief - D01-01-20-0019 & D02-02-20-0101'
  • Floor plan for project from page 63 of the file '2025-02-24 - Design Brief - D01-01-20-0019 & D02-02-20-0101'
  • Construction site plan for project from page 67 of the file '2025-02-24 - Design Brief - D01-01-20-0019 & D02-02-20-0101'
  • Construction site plan for project from page 70 of the file '2025-02-24 - Design Brief - D01-01-20-0019 & D02-02-20-0101'
  • Construction site plan for project from page 70 of the file '2025-02-24 - Design Brief - D01-01-20-0019 & D02-02-20-0101'
  • Construction site plan for project from page 70 of the file '2025-02-24 - Design Brief - D01-01-20-0019 & D02-02-20-0101'
  • Construction site plan for project from page 70 of the file '2025-02-24 - Design Brief - D01-01-20-0019 & D02-02-20-0101'
  • Construction site plan for project from page 71 of the file '2025-02-24 - Design Brief - D01-01-20-0019 & D02-02-20-0101'
  • Construction site plan for project from page 71 of the file '2025-02-24 - Design Brief - D01-01-20-0019 & D02-02-20-0101'
  • Construction site plan for project from page 71 of the file '2025-02-24 - Design Brief - D01-01-20-0019 & D02-02-20-0101'
  • Construction site plan for project from page 17 of the file '2025-09-03 - SDRP Design Brief - Package 3 - D02-02-20-0101'
  • Construction site plan for project from page 19 of the file '2025-09-03 - SDRP Design Brief - Package 3 - D02-02-20-0101'
  • Construction site plan for project from page 26 of the file '2025-09-03 - SDRP Design Brief - Package 3 - D02-02-20-0101'
  • Construction site plan for project from page 37 of the file '2025-09-03 - SDRP Design Brief - Package 3 - D02-02-20-0101'
  • Construction site plan for project from page 47 of the file '2025-09-03 - SDRP Design Brief - Package 3 - D02-02-20-0101'
  • Construction site plan for project from page 1 of the file 'Special Design Review Meeting Recommendations FR - Jan 15 2021'
  • Construction site plan for project from page 10 of the file '2024-05-07 - Special Design Review Panel Presentation - D02-02-20-0101'
  • Construction site plan for project from page 22 of the file '2024-05-07 - Special Design Review Panel Presentation - D02-02-20-0101'
  • Floor plan for project from page 33 of the file '2024-05-07 - Special Design Review Panel Presentation - D02-02-20-0101'
  • Floor plan for project from page 33 of the file '2024-05-07 - Special Design Review Panel Presentation - D02-02-20-0101'
  • Floor plan for project from page 33 of the file '2024-05-07 - Special Design Review Panel Presentation - D02-02-20-0101'
  • Floor plan for project from page 33 of the file '2024-05-07 - Special Design Review Panel Presentation - D02-02-20-0101'
  • Construction site plan for project from page 33 of the file '2024-05-07 - Special Design Review Panel Presentation - D02-02-20-0101'
  • Floor plan for project from page 33 of the file '2024-05-07 - Special Design Review Panel Presentation - D02-02-20-0101'
  • Floor plan for project from page 33 of the file '2024-05-07 - Special Design Review Panel Presentation - D02-02-20-0101'
  • Construction site plan for project from page 33 of the file '2024-05-07 - Special Design Review Panel Presentation - D02-02-20-0101'
  • Floor plan for project from page 33 of the file '2024-05-07 - Special Design Review Panel Presentation - D02-02-20-0101'
  • Floor plan for project from page 49 of the file '2024-05-07 - Special Design Review Panel Presentation - D02-02-20-0101'
  • Construction site plan for project from page 55 of the file '2024-05-07 - Special Design Review Panel Presentation - D02-02-20-0101'
  • Construction site plan for project from page 55 of the file '2024-05-07 - Special Design Review Panel Presentation - D02-02-20-0101'
  • Construction site plan for project from page 55 of the file '2024-05-07 - Special Design Review Panel Presentation - D02-02-20-0101'
  • Construction site plan for project from page 56 of the file '2024-05-07 - Special Design Review Panel Presentation - D02-02-20-0101'
  • Construction site plan for project from page 56 of the file '2024-05-07 - Special Design Review Panel Presentation - D02-02-20-0101'
  • Construction site plan for project from page 56 of the file '2024-05-07 - Special Design Review Panel Presentation - D02-02-20-0101'
  • Construction site plan for project from page 57 of the file '2024-05-07 - Special Design Review Panel Presentation - D02-02-20-0101'
  • Construction site plan for project from page 2 of the file '2020-10-23 - Site Plan and Floor Plans - D02-02-20-0101'
  • Construction site plan for project from page 4 of the file '2020-10-23 - Site Plan and Floor Plans - D02-02-20-0101'
  • Construction site plan for project from page 4 of the file '2025-02-24 - Design Brief Appendix - D01-01-20-0019 & D02-02-20-0101'
  • Construction site plan for project from page 5 of the file '2025-02-24 - Design Brief Appendix - D01-01-20-0019 & D02-02-20-0101'
  • Construction site plan for project from page 6 of the file '2025-02-24 - Design Brief Appendix - D01-01-20-0019 & D02-02-20-0101'
  • Construction site plan for project from page 7 of the file '2025-02-24 - Design Brief Appendix - D01-01-20-0019 & D02-02-20-0101'
  • Construction site plan for project from page 8 of the file '2025-02-24 - Design Brief Appendix - D01-01-20-0019 & D02-02-20-0101'
  • Construction site plan for project from page 9 of the file '2025-02-24 - Design Brief Appendix - D01-01-20-0019 & D02-02-20-0101'
  • Construction site plan for project from page 10 of the file '2025-02-24 - Design Brief Appendix - D01-01-20-0019 & D02-02-20-0101'
  • Construction site plan for project from page 11 of the file '2025-02-24 - Design Brief Appendix - D01-01-20-0019 & D02-02-20-0101'
  • Construction site plan for project from page 12 of the file '2025-02-24 - Design Brief Appendix - D01-01-20-0019 & D02-02-20-0101'
  • Construction site plan for project from page 13 of the file '2025-02-24 - Design Brief Appendix - D01-01-20-0019 & D02-02-20-0101'
  • Construction site plan for project from page 14 of the file '2025-02-24 - Design Brief Appendix - D01-01-20-0019 & D02-02-20-0101'
  • Construction site plan for project from page 15 of the file '2025-02-24 - Design Brief Appendix - D01-01-20-0019 & D02-02-20-0101'
  • Construction site plan for project from page 17 of the file '2025-02-24 - Design Brief Appendix - D01-01-20-0019 & D02-02-20-0101'
  • Construction site plan for project from page 18 of the file '2025-02-24 - Design Brief Appendix - D01-01-20-0019 & D02-02-20-0101'
  • Construction site plan for project from page 19 of the file '2025-02-24 - Design Brief Appendix - D01-01-20-0019 & D02-02-20-0101'
  • Construction site plan for project from page 20 of the file '2025-02-24 - Design Brief Appendix - D01-01-20-0019 & D02-02-20-0101'
  • Construction site plan for project from page 21 of the file '2025-02-24 - Design Brief Appendix - D01-01-20-0019 & D02-02-20-0101'
  • Construction site plan for project from page 22 of the file '2025-02-24 - Design Brief Appendix - D01-01-20-0019 & D02-02-20-0101'
  • Construction site plan for project from page 23 of the file '2025-02-24 - Design Brief Appendix - D01-01-20-0019 & D02-02-20-0101'
  • Construction site plan for project from page 24 of the file '2025-02-24 - Design Brief Appendix - D01-01-20-0019 & D02-02-20-0101'
  • Construction site plan for project from page 25 of the file '2025-02-24 - Design Brief Appendix - D01-01-20-0019 & D02-02-20-0101'
  • Construction site plan for project from page 26 of the file '2025-02-24 - Design Brief Appendix - D01-01-20-0019 & D02-02-20-0101'
  • Construction site plan for project from page 27 of the file '2025-02-24 - Design Brief Appendix - D01-01-20-0019 & D02-02-20-0101'
  • Construction site plan for project from page 28 of the file '2025-02-24 - Design Brief Appendix - D01-01-20-0019 & D02-02-20-0101'
  • Construction site plan for project from page 29 of the file '2025-02-24 - Design Brief Appendix - D01-01-20-0019 & D02-02-20-0101'
  • Construction site plan for project from page 32 of the file '2025-02-24 - Design Brief Appendix - D01-01-20-0019 & D02-02-20-0101'
  • Construction site plan for project from page 33 of the file '2025-02-24 - Design Brief Appendix - D01-01-20-0019 & D02-02-20-0101'
  • Construction site plan for project from page 34 of the file '2025-02-24 - Design Brief Appendix - D01-01-20-0019 & D02-02-20-0101'
  • Construction site plan for project from page 35 of the file '2025-02-24 - Design Brief Appendix - D01-01-20-0019 & D02-02-20-0101'
  • Construction site plan for project from page 36 of the file '2025-02-24 - Design Brief Appendix - D01-01-20-0019 & D02-02-20-0101'
  • Construction site plan for project from page 37 of the file '2025-02-24 - Design Brief Appendix - D01-01-20-0019 & D02-02-20-0101'
  • Construction site plan for project from page 38 of the file '2025-02-24 - Design Brief Appendix - D01-01-20-0019 & D02-02-20-0101'
  • Construction site plan for project from page 39 of the file '2025-02-24 - Design Brief Appendix - D01-01-20-0019 & D02-02-20-0101'
  • Construction site plan for project from page 42 of the file '2025-02-24 - Design Brief Appendix - D01-01-20-0019 & D02-02-20-0101'
  • Construction site plan for project from page 60 of the file '2025-02-24 - Design Brief Appendix - D01-01-20-0019 & D02-02-20-0101'
  • Construction site plan for project from page 37 of the file '2025-02-24 - Design Brief - D01-01-20-0019 & D02-02-20-0101'
  • Floor plan for project from page 53 of the file '2025-02-24 - Design Brief - D01-01-20-0019 & D02-02-20-0101'
  • Floor plan for project from page 54 of the file '2025-02-24 - Design Brief - D01-01-20-0019 & D02-02-20-0101'
  • Construction site plan for project from page 57 of the file '2025-02-24 - Design Brief - D01-01-20-0019 & D02-02-20-0101'
  • Floor plan for project from page 62 of the file '2025-02-24 - Design Brief - D01-01-20-0019 & D02-02-20-0101'
  • Floor plan for project from page 63 of the file '2025-02-24 - Design Brief - D01-01-20-0019 & D02-02-20-0101'
  • Construction site plan for project from page 67 of the file '2025-02-24 - Design Brief - D01-01-20-0019 & D02-02-20-0101'
  • Construction site plan for project from page 70 of the file '2025-02-24 - Design Brief - D01-01-20-0019 & D02-02-20-0101'
  • Construction site plan for project from page 70 of the file '2025-02-24 - Design Brief - D01-01-20-0019 & D02-02-20-0101'
  • Construction site plan for project from page 70 of the file '2025-02-24 - Design Brief - D01-01-20-0019 & D02-02-20-0101'
  • Construction site plan for project from page 70 of the file '2025-02-24 - Design Brief - D01-01-20-0019 & D02-02-20-0101'
  • Construction site plan for project from page 71 of the file '2025-02-24 - Design Brief - D01-01-20-0019 & D02-02-20-0101'
  • Construction site plan for project from page 71 of the file '2025-02-24 - Design Brief - D01-01-20-0019 & D02-02-20-0101'
  • Construction site plan for project from page 71 of the file '2025-02-24 - Design Brief - D01-01-20-0019 & D02-02-20-0101'
  • Construction site plan for project from page 17 of the file '2025-09-03 - SDRP Design Brief - Package 3 - D02-02-20-0101'
  • Construction site plan for project from page 19 of the file '2025-09-03 - SDRP Design Brief - Package 3 - D02-02-20-0101'
  • Construction site plan for project from page 26 of the file '2025-09-03 - SDRP Design Brief - Package 3 - D02-02-20-0101'
  • Construction site plan for project from page 37 of the file '2025-09-03 - SDRP Design Brief - Package 3 - D02-02-20-0101'
  • Construction site plan for project from page 47 of the file '2025-09-03 - SDRP Design Brief - Package 3 - D02-02-20-0101'

Documents #

TypeDocument
Adequacy Of Public Services2025-02-24 - Assessment of Adequacy of Public Services - D01-01-20-0019 & D02-02-20-0101
Application Summary2020-11-12 - Application Summary - D02-02-20-0101
Application Summary2025-02-24 - Application Summary - D01-01-20-0019 & D02-02-20-0101
Architectural Plans2024-05-07 - Site Plan - D02-02-20-0101
Architectural Plans2024-05-07 - Elevations - D02-02-20-0101
Architectural Plans2020-10-23 - Engineering Plans - D02-02-20-0101
Architectural Plans2020-10-23 - Elevations - D02-02-20-0101
Architectural Plans2025-02-24 - Site Plan - D01-01-20-0019 & D02-02-20-0101
Architectural Plans2025-02-24 - Building Elevations - D01-01-20-0019 & D02-02-20-0101
Architectural Plans2025-02-24 - Architectural Plans - D01-01-20-0019 & D02-02-20-0101
Design BriefSpecial Design Review Meeting Recommendations FR - Jan 15 2021
Design BriefSpecial Design Review Meeting Recommendations EN - Jan 15 2021
Design Brief2024-05-07 - Special Design Review Panel Presentation - D02-02-20-0101
Design Brief2025-02-24 - Design Brief Appendix - D01-01-20-0019 & D02-02-20-0101
Design Brief2025-02-24 - Design Brief - D01-01-20-0019 & D02-02-20-0101
Design Brief2025-09-03 - SDRP Design Brief - Package 3 - D02-02-20-0101
Environmental2020-10-23 - Phase 2 Environmental Site Assessment Update - D02-02-20-0101
Environmental2020-10-23 - Phase 1 Environmental Site Assessment Update - D02-02-20-0101
Environmental2025-02-24 - Phase I ESA Update - D01-01-20-0019 & D02-02-20-0101
Environmental2025-02-25 - Phase II ESA Update - D02-02-20-0101
Floor Plan2020-10-23 - Site Plan and Floor Plans - D02-02-20-0101
Geotechnical Report2020-10-23 - Geotechnical Investigation - D02-02-20-0101
Geotechnical Report2025-02-24 - Geotechnical Report - D01-01-20-0019 & D02-02-20-0101
Landscape Plan2020-10-23 - Landscape Plan - D02-02-20-0101
Landscape Plan2020-10-23 - Landscape Architecture Concept - D02-02-20-0101
Landscape Plan2025-02-24 - Landscape Plans - D01-01-20-0019 & D02-02-20-0101
Landscape Plan2025-02-24 - Landscape Imagery - D01-01-20-0019 & D02-02-20-0101
Noise Study2020-10-23 - Noise Study - D02-02-20-0101
Noise Study2025-02-24 - Traffic Noise Feasibility Assessment - D01-01-20-0019 & D02-02-20-0101
Planning2020-10-23 - Planning Rationale - D02-02-20-0101
Planning2025-02-24 - Planning Rationale - D01-01-20-0019 & D02-02-20-0101
Rendering2025-02-24 - NCC View Plane Diagram - D01-01-20-0019 & D02-02-20-0101
Shadow Study2020-10-23 - Sun Shadow Study - D02-02-20-0101
Shadow Study2025-02-24 - Sun Shadow Study - D01-01-20-0019 & D02-02-20-0101
Site Servicing2020-10-23 - Site Servicing Report - D02-02-20-0101
Surveying2020-10-23 - Topographic Sketch - D02-02-20-0101
Surveying2025-02-24 - Survey Plan - D01-01-20-0019 & D02-02-20-0101
Transportation Analysis2020-10-23 - Transportation Impact Assessment Strategy Report - D02-02-20-0101
Transportation Analysis2020-10-23 - Transportation Impact Assessment Screening Form - D02-02-20-0101
Transportation Analysis2025-02-24 - TIA Strategy Report - D01-01-20-0019 & D02-02-20-0101
Tree Information and Conservation2025-02-24 - Tree Conservation Report - D01-01-20-0019 & D02-02-20-0101
Wind Study2020-10-23 - Wind Study - D02-02-20-0101
Wind Study2025-02-24 - Pedestrian Level Wind Study - D01-01-20-0019 & D02-02-20-0101
2020-10-23 - Proposed Zoning Schedule - D02-02-20-0101
2020-10-23 - Cultural Heritage Impact Statement - D02-02-20-0101
2025-02-24 - Sustainability Strategy - D01-01-20-0019 & D02-02-20-0101
2025-02-24 - SDRP Report - D01-01-20-0019 & D02-02-20-0101
2025-02-24 - Planned Context Massing Study - D01-01-20-0019 & D02-02-20-0101
2025-02-24 - Heritage Impact Assessment - D01-01-20-0019 & D02-02-20-0101
2025-02-24 - Formal Public Consultation Program - D01-01-20-0019 & D02-02-20-0101