7000 Campeau (D02-02-19-0123)

7000 Campeau (D02-02-19-0123) #

Summary #

Application StatusInactive
Review StatusApplication Approved by OMB
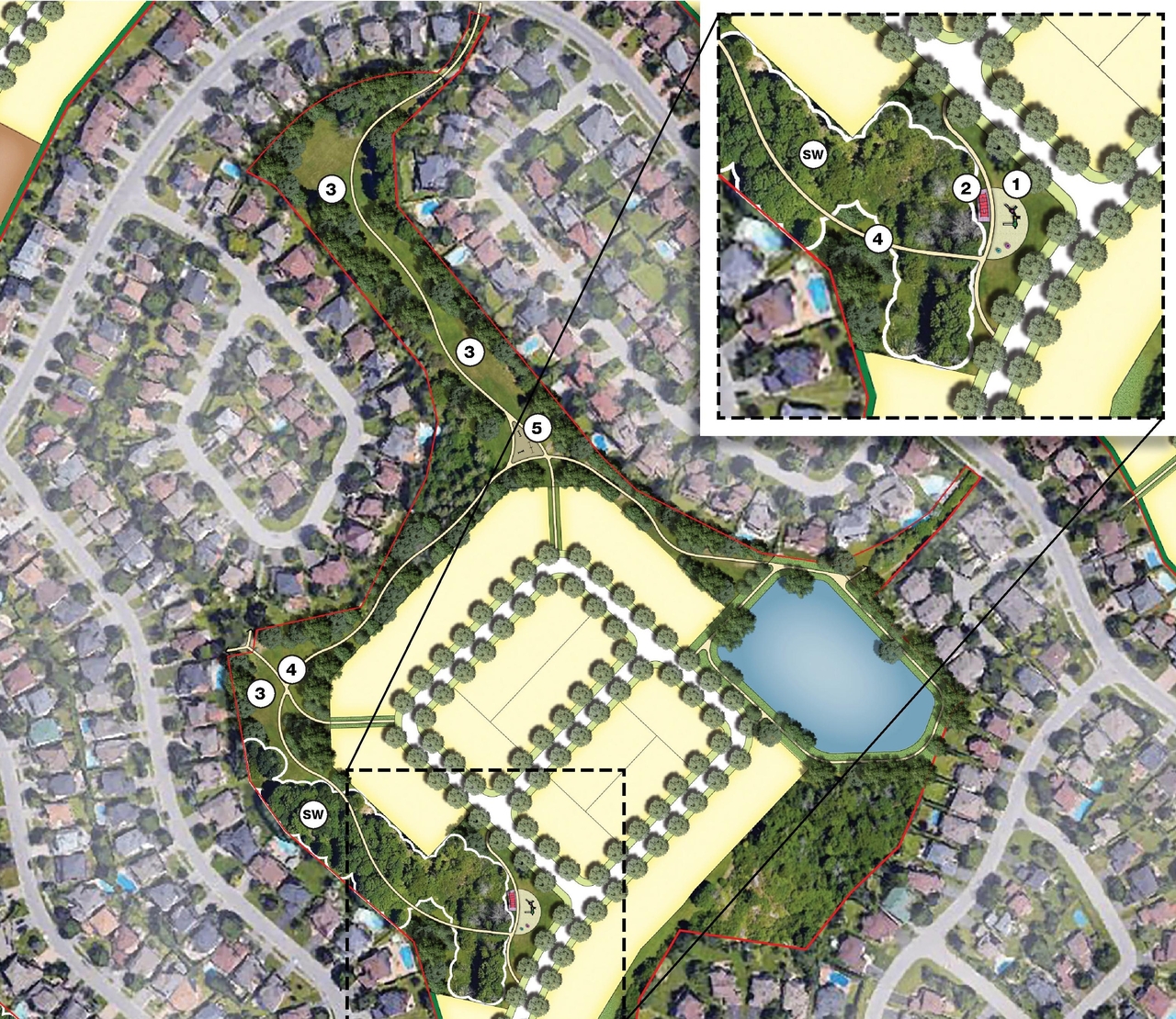
DescriptionPLEASE SEND COMMENTS TO [email protected] The City of Ottawa has received a concurrent Plan of Subdivision and Zoning By-law Amendment application to permit the development of a residential subdivision that includes a mix of housing types, parks, stormwater management ponds, open spaces, landscape buffers and roadways in Kanata North.
WardWard 4 - Cathy Curry
Date Initiated2019-10-08
Last Updated2022-03-22

Renders #

  • Rendering of building from page 21 of the file '2021-06-23 - Urban Design - D02-02-19-0123'
  • Rendering of building from page 15 of the file '2021-06-23 - Urban Design - D02-02-19-0123'
  • Rendering of building from page 23 of the file '2021-06-23 - Urban Design - D02-02-19-0123'
  • Rendering of building from page 19 of the file '2021-06-23 - Urban Design - D02-02-19-0123'
  • Rendering of building from page 27 of the file '2019-10-11 - Urban Design Brief - D02-02-19-0123'
  • Rendering of building from page 18 of the file '2021-06-23 - Urban Design - D02-02-19-0123'
  • Rendering of building from page 18 of the file '2019-10-11 - Urban Design Brief - D02-02-19-0123'
  • Rendering of building from page 19 of the file '2021-06-23 - Urban Design - D02-02-19-0123'
  • Rendering of building from page 18 of the file '2021-06-23 - Urban Design - D02-02-19-0123'
  • Rendering of building from page 19 of the file '2021-06-23 - Urban Design - D02-02-19-0123'
  • Rendering of building from page 36 of the file '2019-10-11 - Urban Design Brief - D02-02-19-0123'
  • Rendering of building from page 21 of the file '2021-06-23 - Urban Design - D02-02-19-0123'
  • Rendering of building from page 18 of the file '2021-06-23 - Urban Design - D02-02-19-0123'
  • Rendering of building from page 16 of the file '2021-06-23 - Urban Design - D02-02-19-0123'
  • Rendering of building from page 20 of the file '2021-06-23 - Urban Design - D02-02-19-0123'
  • Rendering of building from page 22 of the file '2021-06-23 - Urban Design - D02-02-19-0123'
  • Rendering of building from page 22 of the file '2021-06-23 - Urban Design - D02-02-19-0123'
  • Rendering of building from page 26 of the file '2021-06-23 - Urban Design - D02-02-19-0123'
  • Rendering of building from page 20 of the file '2021-06-23 - Urban Design - D02-02-19-0123'
  • Rendering of building from page 17 of the file '2021-06-23 - Urban Design - D02-02-19-0123'
  • Rendering of building from page 20 of the file '2021-06-23 - Urban Design - D02-02-19-0123'
  • Rendering of building from page 15 of the file '2021-06-23 - Urban Design - D02-02-19-0123'
  • Rendering of building from page 18 of the file '2019-10-11 - Urban Design Brief - D02-02-19-0123'
  • Rendering of building from page 17 of the file '2021-06-23 - Urban Design - D02-02-19-0123'
  • Rendering of building from page 15 of the file '2021-06-23 - Urban Design - D02-02-19-0123'
  • Rendering of building from page 23 of the file '2021-06-23 - Urban Design - D02-02-19-0123'
  • Rendering of building from page 16 of the file '2021-06-23 - Urban Design - D02-02-19-0123'
  • Rendering of building from page 26 of the file '2021-06-23 - Urban Design - D02-02-19-0123'
  • Rendering of building from page 17 of the file '2021-06-23 - Urban Design - D02-02-19-0123'
  • Rendering of building from page 16 of the file '2021-06-23 - Urban Design - D02-02-19-0123'
  • Rendering of building from page 19 of the file '2019-10-11 - Urban Design Brief - D02-02-19-0123'
  • Rendering of building from page 21 of the file '2021-06-23 - Urban Design - D02-02-19-0123'
  • Rendering of building from page 15 of the file '2021-06-23 - Urban Design - D02-02-19-0123'
  • Rendering of building from page 23 of the file '2021-06-23 - Urban Design - D02-02-19-0123'
  • Rendering of building from page 19 of the file '2021-06-23 - Urban Design - D02-02-19-0123'
  • Rendering of building from page 27 of the file '2019-10-11 - Urban Design Brief - D02-02-19-0123'
  • Rendering of building from page 18 of the file '2021-06-23 - Urban Design - D02-02-19-0123'
  • Rendering of building from page 18 of the file '2019-10-11 - Urban Design Brief - D02-02-19-0123'
  • Rendering of building from page 19 of the file '2021-06-23 - Urban Design - D02-02-19-0123'
  • Rendering of building from page 18 of the file '2021-06-23 - Urban Design - D02-02-19-0123'
  • Rendering of building from page 19 of the file '2021-06-23 - Urban Design - D02-02-19-0123'
  • Rendering of building from page 36 of the file '2019-10-11 - Urban Design Brief - D02-02-19-0123'
  • Rendering of building from page 21 of the file '2021-06-23 - Urban Design - D02-02-19-0123'
  • Rendering of building from page 18 of the file '2021-06-23 - Urban Design - D02-02-19-0123'
  • Rendering of building from page 16 of the file '2021-06-23 - Urban Design - D02-02-19-0123'
  • Rendering of building from page 20 of the file '2021-06-23 - Urban Design - D02-02-19-0123'
  • Rendering of building from page 22 of the file '2021-06-23 - Urban Design - D02-02-19-0123'
  • Rendering of building from page 22 of the file '2021-06-23 - Urban Design - D02-02-19-0123'
  • Rendering of building from page 26 of the file '2021-06-23 - Urban Design - D02-02-19-0123'
  • Rendering of building from page 20 of the file '2021-06-23 - Urban Design - D02-02-19-0123'
  • Rendering of building from page 17 of the file '2021-06-23 - Urban Design - D02-02-19-0123'
  • Rendering of building from page 20 of the file '2021-06-23 - Urban Design - D02-02-19-0123'
  • Rendering of building from page 15 of the file '2021-06-23 - Urban Design - D02-02-19-0123'
  • Rendering of building from page 18 of the file '2019-10-11 - Urban Design Brief - D02-02-19-0123'
  • Rendering of building from page 17 of the file '2021-06-23 - Urban Design - D02-02-19-0123'
  • Rendering of building from page 15 of the file '2021-06-23 - Urban Design - D02-02-19-0123'
  • Rendering of building from page 23 of the file '2021-06-23 - Urban Design - D02-02-19-0123'
  • Rendering of building from page 16 of the file '2021-06-23 - Urban Design - D02-02-19-0123'
  • Rendering of building from page 26 of the file '2021-06-23 - Urban Design - D02-02-19-0123'
  • Rendering of building from page 17 of the file '2021-06-23 - Urban Design - D02-02-19-0123'
  • Rendering of building from page 16 of the file '2021-06-23 - Urban Design - D02-02-19-0123'
  • Rendering of building from page 19 of the file '2019-10-11 - Urban Design Brief - D02-02-19-0123'

Site and Floor Plans #

  • Construction site plan for project from page 7 of the file '2021-06-23 - Urban Design - D02-02-19-0123'
  • Construction site plan for project from page 8 of the file '2021-06-23 - Urban Design - D02-02-19-0123'
  • Construction site plan for project from page 13 of the file '2021-06-23 - Urban Design - D02-02-19-0123'
  • Construction site plan for project from page 14 of the file '2021-06-23 - Urban Design - D02-02-19-0123'
  • Floor plan for project from page 18 of the file '2021-06-23 - Urban Design - D02-02-19-0123'
  • Construction site plan for project from page 26 of the file '2021-06-23 - Urban Design - D02-02-19-0123'
  • Construction site plan for project from page 27 of the file '2021-06-23 - Urban Design - D02-02-19-0123'
  • Construction site plan for project from page 29 of the file '2021-06-23 - Urban Design - D02-02-19-0123'
  • Construction site plan for project from page 29 of the file '2021-06-23 - Urban Design - D02-02-19-0123'
  • Construction site plan for project from page 30 of the file '2021-06-23 - Urban Design - D02-02-19-0123'
  • Construction site plan for project from page 30 of the file '2021-06-23 - Urban Design - D02-02-19-0123'
  • Construction site plan for project from page 31 of the file '2021-06-23 - Urban Design - D02-02-19-0123'
  • Construction site plan for project from page 31 of the file '2021-06-23 - Urban Design - D02-02-19-0123'
  • Construction site plan for project from page 31 of the file '2021-06-23 - Urban Design - D02-02-19-0123'
  • Construction site plan for project from page 33 of the file '2021-06-23 - Urban Design - D02-02-19-0123'
  • Construction site plan for project from page 35 of the file '2021-06-23 - Urban Design - D02-02-19-0123'
  • Construction site plan for project from page 37 of the file '2021-06-23 - Urban Design - D02-02-19-0123'
  • Construction site plan for project from page 41 of the file '2021-06-23 - Urban Design - D02-02-19-0123'
  • Construction site plan for project from page 41 of the file '2021-06-23 - Urban Design - D02-02-19-0123'
  • Construction site plan for project from page 42 of the file '2021-06-23 - Urban Design - D02-02-19-0123'
  • Construction site plan for project from page 42 of the file '2021-06-23 - Urban Design - D02-02-19-0123'
  • Construction site plan for project from page 43 of the file '2021-06-23 - Urban Design - D02-02-19-0123'
  • Construction site plan for project from page 43 of the file '2021-06-23 - Urban Design - D02-02-19-0123'
  • Construction site plan for project from page 44 of the file '2021-06-23 - Urban Design - D02-02-19-0123'
  • Construction site plan for project from page 44 of the file '2021-06-23 - Urban Design - D02-02-19-0123'
  • Construction site plan for project from page 45 of the file '2021-06-23 - Urban Design - D02-02-19-0123'
  • Construction site plan for project from page 46 of the file '2021-06-23 - Urban Design - D02-02-19-0123'
  • Construction site plan for project from page 46 of the file '2021-06-23 - Urban Design - D02-02-19-0123'
  • Construction site plan for project from page 47 of the file '2021-06-23 - Urban Design - D02-02-19-0123'
  • Construction site plan for project from page 49 of the file '2021-06-23 - Urban Design - D02-02-19-0123'
  • Construction site plan for project from page 55 of the file '2021-06-23 - Urban Design - D02-02-19-0123'
  • Construction site plan for project from page 55 of the file '2021-06-23 - Urban Design - D02-02-19-0123'
  • Construction site plan for project from page 55 of the file '2021-06-23 - Urban Design - D02-02-19-0123'
  • Construction site plan for project from page 55 of the file '2021-06-23 - Urban Design - D02-02-19-0123'
  • Construction site plan for project from page 55 of the file '2021-06-23 - Urban Design - D02-02-19-0123'
  • Construction site plan for project from page 57 of the file '2021-06-23 - Urban Design - D02-02-19-0123'
  • Construction site plan for project from page 59 of the file '2021-06-23 - Urban Design - D02-02-19-0123'
  • Construction site plan for project from page 7 of the file '2020-07-16- Urban Design Brief- D02-02-19-0123'
  • Construction site plan for project from page 13 of the file '2020-07-16- Urban Design Brief- D02-02-19-0123'
  • Construction site plan for project from page 14 of the file '2020-07-16- Urban Design Brief- D02-02-19-0123'
  • Construction site plan for project from page 27 of the file '2020-07-16- Urban Design Brief- D02-02-19-0123'
  • Construction site plan for project from page 29 of the file '2020-07-16- Urban Design Brief- D02-02-19-0123'
  • Construction site plan for project from page 29 of the file '2020-07-16- Urban Design Brief- D02-02-19-0123'
  • Construction site plan for project from page 30 of the file '2020-07-16- Urban Design Brief- D02-02-19-0123'
  • Construction site plan for project from page 30 of the file '2020-07-16- Urban Design Brief- D02-02-19-0123'
  • Construction site plan for project from page 31 of the file '2020-07-16- Urban Design Brief- D02-02-19-0123'
  • Construction site plan for project from page 31 of the file '2020-07-16- Urban Design Brief- D02-02-19-0123'
  • Construction site plan for project from page 31 of the file '2020-07-16- Urban Design Brief- D02-02-19-0123'
  • Construction site plan for project from page 33 of the file '2020-07-16- Urban Design Brief- D02-02-19-0123'
  • Construction site plan for project from page 33 of the file '2020-07-16- Urban Design Brief- D02-02-19-0123'
  • Construction site plan for project from page 33 of the file '2020-07-16- Urban Design Brief- D02-02-19-0123'
  • Construction site plan for project from page 33 of the file '2020-07-16- Urban Design Brief- D02-02-19-0123'
  • Construction site plan for project from page 35 of the file '2020-07-16- Urban Design Brief- D02-02-19-0123'
  • Construction site plan for project from page 37 of the file '2020-07-16- Urban Design Brief- D02-02-19-0123'
  • Construction site plan for project from page 39 of the file '2020-07-16- Urban Design Brief- D02-02-19-0123'
  • Construction site plan for project from page 40 of the file '2020-07-16- Urban Design Brief- D02-02-19-0123'
  • Construction site plan for project from page 40 of the file '2020-07-16- Urban Design Brief- D02-02-19-0123'
  • Construction site plan for project from page 41 of the file '2020-07-16- Urban Design Brief- D02-02-19-0123'
  • Construction site plan for project from page 42 of the file '2020-07-16- Urban Design Brief- D02-02-19-0123'
  • Construction site plan for project from page 42 of the file '2020-07-16- Urban Design Brief- D02-02-19-0123'
  • Construction site plan for project from page 43 of the file '2020-07-16- Urban Design Brief- D02-02-19-0123'
  • Construction site plan for project from page 45 of the file '2020-07-16- Urban Design Brief- D02-02-19-0123'
  • Construction site plan for project from page 47 of the file '2020-07-16- Urban Design Brief- D02-02-19-0123'
  • Construction site plan for project from page 48 of the file '2020-07-16- Urban Design Brief- D02-02-19-0123'
  • Construction site plan for project from page 49 of the file '2020-07-16- Urban Design Brief- D02-02-19-0123'
  • Construction site plan for project from page 13 of the file '2019-10-11 - Urban Design Brief - D02-02-19-0123'
  • Construction site plan for project from page 14 of the file '2019-10-11 - Urban Design Brief - D02-02-19-0123'
  • Construction site plan for project from page 27 of the file '2019-10-11 - Urban Design Brief - D02-02-19-0123'
  • Construction site plan for project from page 30 of the file '2019-10-11 - Urban Design Brief - D02-02-19-0123'
  • Construction site plan for project from page 30 of the file '2019-10-11 - Urban Design Brief - D02-02-19-0123'
  • Construction site plan for project from page 31 of the file '2019-10-11 - Urban Design Brief - D02-02-19-0123'
  • Construction site plan for project from page 31 of the file '2019-10-11 - Urban Design Brief - D02-02-19-0123'
  • Construction site plan for project from page 7 of the file '2021-06-23 - Urban Design - D02-02-19-0123'
  • Construction site plan for project from page 8 of the file '2021-06-23 - Urban Design - D02-02-19-0123'
  • Construction site plan for project from page 13 of the file '2021-06-23 - Urban Design - D02-02-19-0123'
  • Construction site plan for project from page 14 of the file '2021-06-23 - Urban Design - D02-02-19-0123'
  • Floor plan for project from page 18 of the file '2021-06-23 - Urban Design - D02-02-19-0123'
  • Construction site plan for project from page 26 of the file '2021-06-23 - Urban Design - D02-02-19-0123'
  • Construction site plan for project from page 27 of the file '2021-06-23 - Urban Design - D02-02-19-0123'
  • Construction site plan for project from page 29 of the file '2021-06-23 - Urban Design - D02-02-19-0123'
  • Construction site plan for project from page 29 of the file '2021-06-23 - Urban Design - D02-02-19-0123'
  • Construction site plan for project from page 30 of the file '2021-06-23 - Urban Design - D02-02-19-0123'
  • Construction site plan for project from page 30 of the file '2021-06-23 - Urban Design - D02-02-19-0123'
  • Construction site plan for project from page 31 of the file '2021-06-23 - Urban Design - D02-02-19-0123'
  • Construction site plan for project from page 31 of the file '2021-06-23 - Urban Design - D02-02-19-0123'
  • Construction site plan for project from page 31 of the file '2021-06-23 - Urban Design - D02-02-19-0123'
  • Construction site plan for project from page 33 of the file '2021-06-23 - Urban Design - D02-02-19-0123'
  • Construction site plan for project from page 35 of the file '2021-06-23 - Urban Design - D02-02-19-0123'
  • Construction site plan for project from page 37 of the file '2021-06-23 - Urban Design - D02-02-19-0123'
  • Construction site plan for project from page 41 of the file '2021-06-23 - Urban Design - D02-02-19-0123'
  • Construction site plan for project from page 41 of the file '2021-06-23 - Urban Design - D02-02-19-0123'
  • Construction site plan for project from page 42 of the file '2021-06-23 - Urban Design - D02-02-19-0123'
  • Construction site plan for project from page 42 of the file '2021-06-23 - Urban Design - D02-02-19-0123'
  • Construction site plan for project from page 43 of the file '2021-06-23 - Urban Design - D02-02-19-0123'
  • Construction site plan for project from page 43 of the file '2021-06-23 - Urban Design - D02-02-19-0123'
  • Construction site plan for project from page 44 of the file '2021-06-23 - Urban Design - D02-02-19-0123'
  • Construction site plan for project from page 44 of the file '2021-06-23 - Urban Design - D02-02-19-0123'
  • Construction site plan for project from page 45 of the file '2021-06-23 - Urban Design - D02-02-19-0123'
  • Construction site plan for project from page 46 of the file '2021-06-23 - Urban Design - D02-02-19-0123'
  • Construction site plan for project from page 46 of the file '2021-06-23 - Urban Design - D02-02-19-0123'
  • Construction site plan for project from page 47 of the file '2021-06-23 - Urban Design - D02-02-19-0123'
  • Construction site plan for project from page 49 of the file '2021-06-23 - Urban Design - D02-02-19-0123'
  • Construction site plan for project from page 55 of the file '2021-06-23 - Urban Design - D02-02-19-0123'
  • Construction site plan for project from page 55 of the file '2021-06-23 - Urban Design - D02-02-19-0123'
  • Construction site plan for project from page 55 of the file '2021-06-23 - Urban Design - D02-02-19-0123'
  • Construction site plan for project from page 55 of the file '2021-06-23 - Urban Design - D02-02-19-0123'
  • Construction site plan for project from page 55 of the file '2021-06-23 - Urban Design - D02-02-19-0123'
  • Construction site plan for project from page 57 of the file '2021-06-23 - Urban Design - D02-02-19-0123'
  • Construction site plan for project from page 59 of the file '2021-06-23 - Urban Design - D02-02-19-0123'
  • Construction site plan for project from page 7 of the file '2020-07-16- Urban Design Brief- D02-02-19-0123'
  • Construction site plan for project from page 13 of the file '2020-07-16- Urban Design Brief- D02-02-19-0123'
  • Construction site plan for project from page 14 of the file '2020-07-16- Urban Design Brief- D02-02-19-0123'
  • Construction site plan for project from page 27 of the file '2020-07-16- Urban Design Brief- D02-02-19-0123'
  • Construction site plan for project from page 29 of the file '2020-07-16- Urban Design Brief- D02-02-19-0123'
  • Construction site plan for project from page 29 of the file '2020-07-16- Urban Design Brief- D02-02-19-0123'
  • Construction site plan for project from page 30 of the file '2020-07-16- Urban Design Brief- D02-02-19-0123'
  • Construction site plan for project from page 30 of the file '2020-07-16- Urban Design Brief- D02-02-19-0123'
  • Construction site plan for project from page 31 of the file '2020-07-16- Urban Design Brief- D02-02-19-0123'
  • Construction site plan for project from page 31 of the file '2020-07-16- Urban Design Brief- D02-02-19-0123'
  • Construction site plan for project from page 31 of the file '2020-07-16- Urban Design Brief- D02-02-19-0123'
  • Construction site plan for project from page 33 of the file '2020-07-16- Urban Design Brief- D02-02-19-0123'
  • Construction site plan for project from page 33 of the file '2020-07-16- Urban Design Brief- D02-02-19-0123'
  • Construction site plan for project from page 33 of the file '2020-07-16- Urban Design Brief- D02-02-19-0123'
  • Construction site plan for project from page 33 of the file '2020-07-16- Urban Design Brief- D02-02-19-0123'
  • Construction site plan for project from page 35 of the file '2020-07-16- Urban Design Brief- D02-02-19-0123'
  • Construction site plan for project from page 37 of the file '2020-07-16- Urban Design Brief- D02-02-19-0123'
  • Construction site plan for project from page 39 of the file '2020-07-16- Urban Design Brief- D02-02-19-0123'
  • Construction site plan for project from page 40 of the file '2020-07-16- Urban Design Brief- D02-02-19-0123'
  • Construction site plan for project from page 40 of the file '2020-07-16- Urban Design Brief- D02-02-19-0123'
  • Construction site plan for project from page 41 of the file '2020-07-16- Urban Design Brief- D02-02-19-0123'
  • Construction site plan for project from page 42 of the file '2020-07-16- Urban Design Brief- D02-02-19-0123'
  • Construction site plan for project from page 42 of the file '2020-07-16- Urban Design Brief- D02-02-19-0123'
  • Construction site plan for project from page 43 of the file '2020-07-16- Urban Design Brief- D02-02-19-0123'
  • Construction site plan for project from page 45 of the file '2020-07-16- Urban Design Brief- D02-02-19-0123'
  • Construction site plan for project from page 47 of the file '2020-07-16- Urban Design Brief- D02-02-19-0123'
  • Construction site plan for project from page 48 of the file '2020-07-16- Urban Design Brief- D02-02-19-0123'
  • Construction site plan for project from page 49 of the file '2020-07-16- Urban Design Brief- D02-02-19-0123'
  • Construction site plan for project from page 13 of the file '2019-10-11 - Urban Design Brief - D02-02-19-0123'
  • Construction site plan for project from page 14 of the file '2019-10-11 - Urban Design Brief - D02-02-19-0123'
  • Construction site plan for project from page 27 of the file '2019-10-11 - Urban Design Brief - D02-02-19-0123'
  • Construction site plan for project from page 30 of the file '2019-10-11 - Urban Design Brief - D02-02-19-0123'
  • Construction site plan for project from page 30 of the file '2019-10-11 - Urban Design Brief - D02-02-19-0123'
  • Construction site plan for project from page 31 of the file '2019-10-11 - Urban Design Brief - D02-02-19-0123'
  • Construction site plan for project from page 31 of the file '2019-10-11 - Urban Design Brief - D02-02-19-0123'

Documents #

TypeDocument
Application Summary2019-10-22 - Application Summary - D02-02-19-0123
Architectural Plans2021-06-23 - Engineering Plans - D02-02-19-0123
Architectural Plans2021-06-23 - Draft Plan - D02-02-19-0123
Architectural Plans2021-06-23 - Concept Plan - D02-02-19-0123
Architectural Plans2020-07-16- Draft Plan of Subdivision- D02-02-19-0123
Architectural Plans2020-07-16- Concept Plan- D02-02-19-0123
Architectural Plans2019-10-21 - Land Use Concept Plan - D02-02-19-0123
Architectural Plans2019-10-11 - Storm Servicing & Drainage Plan - D02-02-19-0123
Architectural Plans2019-10-11 - Preliminary Grading Plan - D02-02-19-0123
Architectural Plans2019-10-11 - Pedestrian, Cycling & Traffic Calming Plans - D02-02-19-0123
Architectural Plans2019-10-11 - Draft Plan of Subdivision - D02-02-19-0123
Design Brief2021-06-23 - Urban Design - D02-02-19-0123
Design Brief2020-07-16- Urban Design Brief- D02-02-19-0123
Design Brief2019-10-11 - Urban Design Brief - D02-02-19-0123
Environmental2021-06-23 - Phase II Environmental Site Assessment - D02-02-19-0123
Environmental2021-06-23 - Phase 1 Environmental Site Assessment - D02-02-19-0123
Environmental2019-10-11 - Phase 2 Environmental Site Assessment - D02-02-19-0123
Environmental2019-10-11 - Phase 1 Environmental Site Assessment - D02-02-19-0123
Geotechnical Report2021-06-23 - Geotechnical - D02-02-19-0123
Geotechnical Report2019-10-11 - Geotechnical Study - D02-02-19-0123
Noise Study2021-06-23 - Noise - D02-02-19-0123
Noise Study2020-07-16- Roadway Traffic Noise Feasibility Assessment- D02-02-19-0123
Noise Study2019-10-11 - Roadway Traffic Noise Feasibility Assessment - D02-02-19-0123
Planning2021-06-23 - Planning Addendum Letter - D02-02-19-0123
Planning2019-10-11 - Planning Rationale - D02-02-19-0123
Stormwater Management2021-06-23 - Stormwater Management Plan - D02-02-19-0123
Stormwater Management2020-07-16- Stormwater Management Plan- D02-02-19-0123
Stormwater Management2019-10-11 - Stormwater Management Report - D02-02-19-0123
Surveying2019-10-11 - Survey Plan - D02-02-19-0123
Transportation Analysis2021-06-23 - Transportation Impact Assessment - D02-02-19-0123
Transportation Analysis2019-10-11 - Transportation Impact Assessment - D02-02-19-0123
Tree Information and Conservation2021-06-23 - Existing and Post Tree Retention - D02-02-19-0123
Tree Information and Conservation2021-06-23 - Environmental Impact Statement Tree Conservation Report Addendum - D02-02-19-0123
Tree Information and Conservation2020-07-16- Comnbined Environmental Impact Statement & Tree Conservation Report- D02-02-19-0123
Tree Information and Conservation2019-10-21 - Combined Environmental Impact Statement & Tree Conservation Report - D02-02-19-0123
November 25, 2019 Meeting- Questions and Answers - CITY
November 25, 2019 Meeting- Questions and Answers - APPLICANT
2021-06-23 - Water Balance - D02-02-19-0123
2021-06-23 - Sanitary Post Development - D02-02-19-0123
2021-06-23 - Post Development Conditions - D02-02-19-0123
2021-06-23 - Monitoring and Calibration Report - D02-02-19-0123
2021-06-23 - Hydrologic Assessment - D02-02-19-0123
2021-06-23 - Geomorphological and Erosion Report - D02-02-19-0123
2021-06-23 - Geo Response Memo - D02-02-19-0123
2021-06-23 - Functional Servicing Report - D02-02-19-0123
2020-07-16- Transportation Impact Study- D02-02-19-0123
2020-07-16- Planning Rationale Addendum- D02-02-19-0123
2020-07-16- Phase 2 Environmental Site Assessment- D02-02-19-0123
2020-07-16- Monitoring Calibration Report- D02-02-19-0123
2020-07-16- Geotechnical Study- D02-02-19-0123
2020-07-16- Geomorphology Report- D02-02-19-0123
2020-07-16- Functional Servicing Report- D02-02-19-0123
2020-07-16- Environmental Assessment Response Letter- D02-02-19-0123
2020-07-16- Downstream Impact Assessment- D02-02-19-0123
2019-11-26 - November 25th Presentation - D02-02-19-0123
2019-10-11 - Public Consultation Strategy - D02-02-19-0123
2019-10-11 - Monitoring and Hyrdological Model Calibration Report - D02-02-19-0123
2019-10-11 - Infiltration Testing Memo - D02-02-19-0123
2019-10-11 - Geomorphological Study - D02-02-19-0123
2019-10-11 - Functional Servicing Report -D02-02-19-0123
Privacy Policy