1867 Alta Vista Dr. (D01-01-25-0026) #
Summary #
| Application Status | Active |
| Review Status | Comment Period in Progress |
| Description | The City of Ottawa has received applications for an Official Plan Amendment and a Zoning By-law Amendment to permit the development of a nine-storey residential building with underground parking and a Privately Owned Public Space (POPS). |
| Ward | Ward 18 - Marty Carr |
| Date Initiated | 2025-12-17 |
| Last Updated | 2026-01-31 |
Renders #
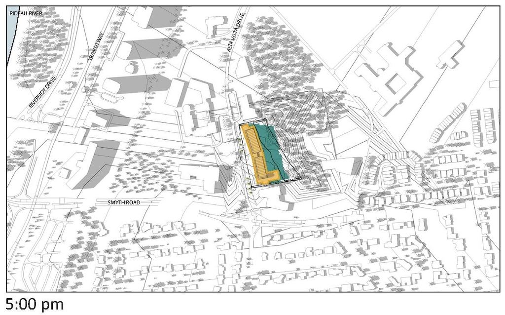
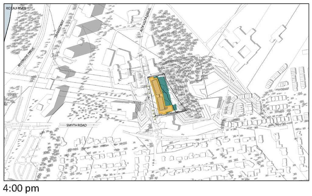
Location #
Select a marker to view the address.
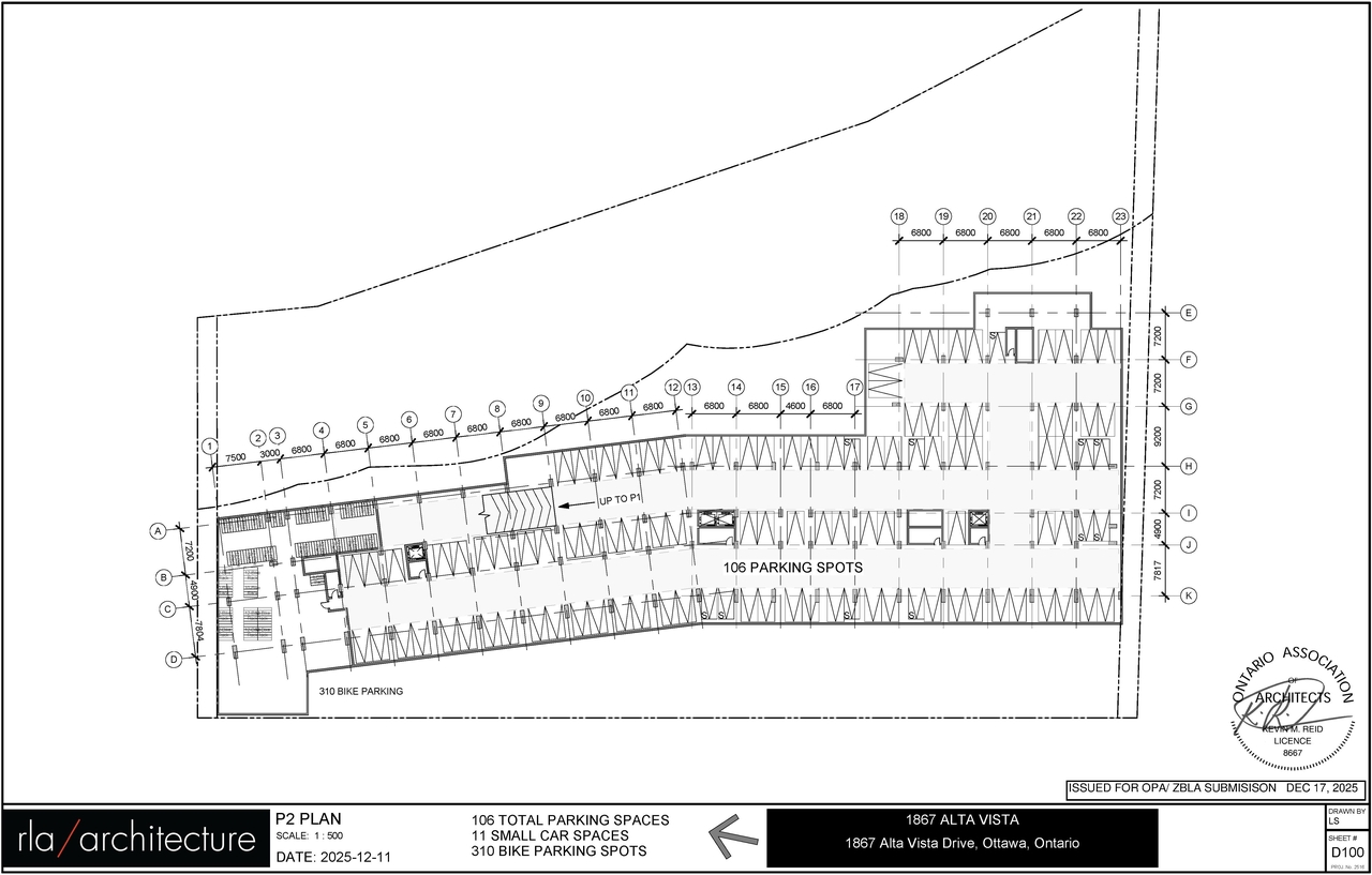
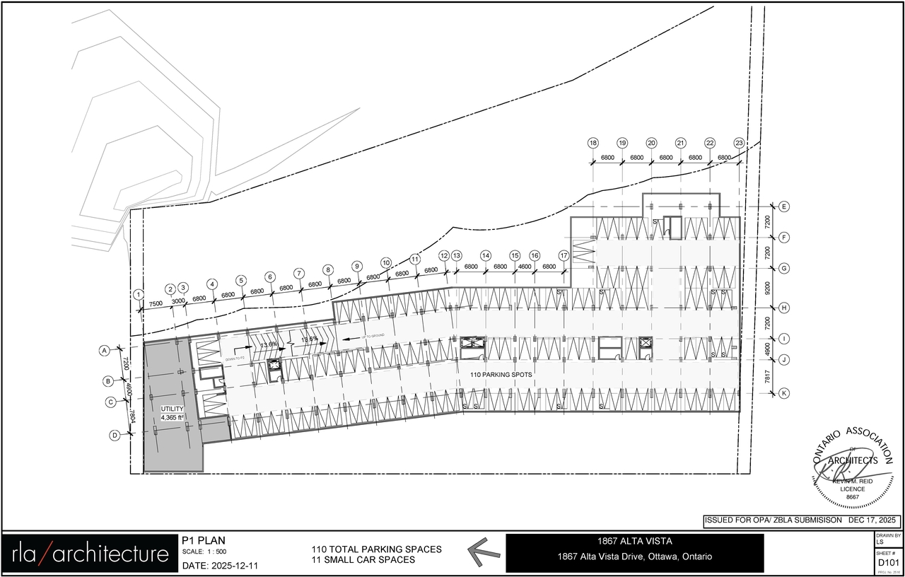
Site and Floor Plans #
Documents #
Additional Information #
| Other IDs | D02-02-25-0099 |
































































