593-601 Laurier Ave. W. (D01-01-24-0026)

593-601 Laurier Ave. W. (D01-01-24-0026) #

Summary #

Application StatusActive
Review StatusComment Period in Progress
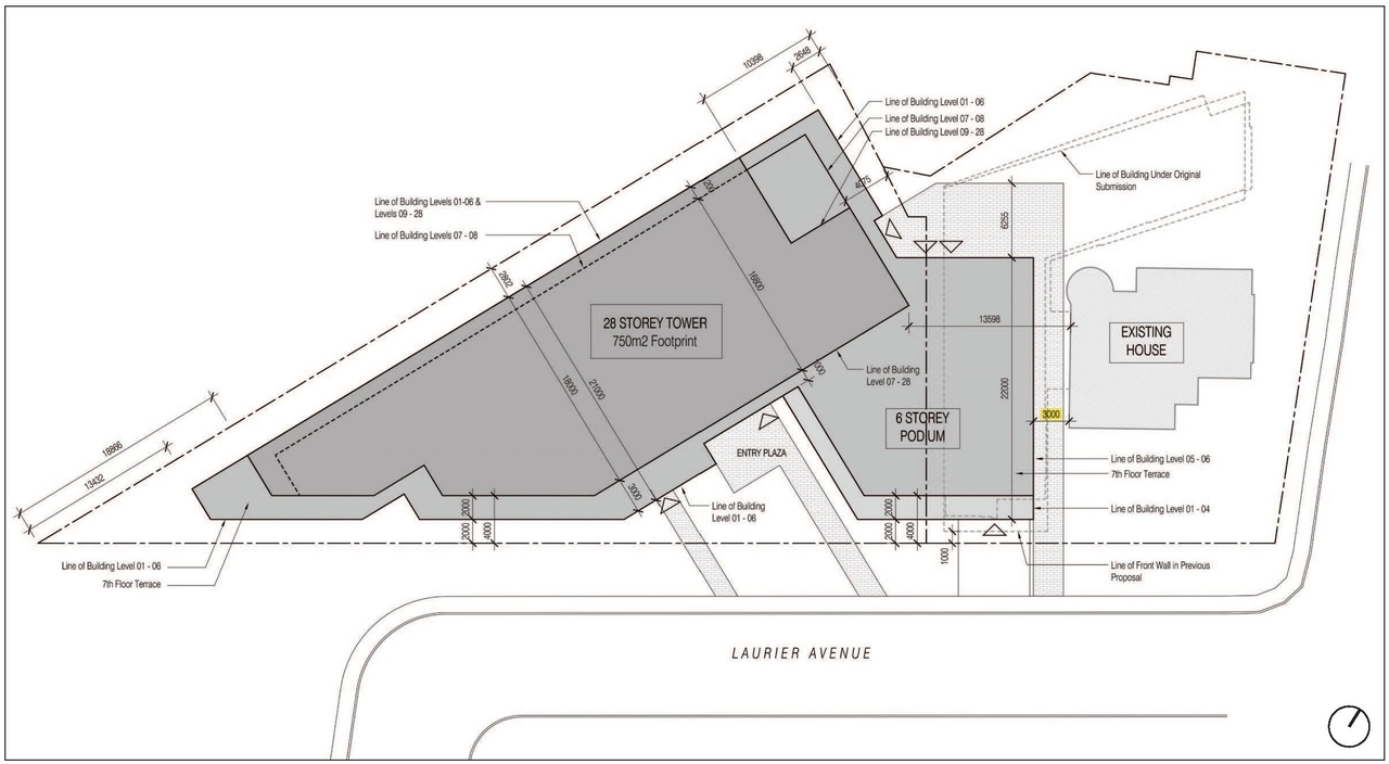
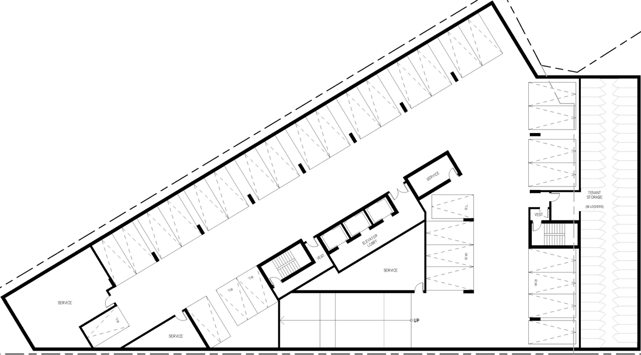
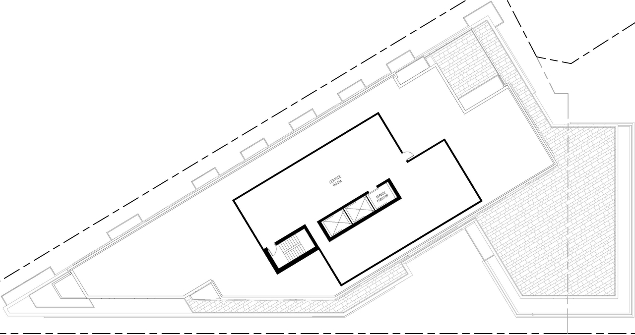
DescriptionThe City of Ottawa has received an Official Plan and Zoning By-law Amendment application to permit the construction of a 28-storey high-rise apartment building comprising of 326 residential units and 94 underground vehicular parking spaces adjacent to the existing heritage building (Alexander Fleck House).
WardWard 14 - Ariel Troster
Date Initiated2024-12-17
Last Updated2025-12-31

Renders #

  • Rendering of building from page 6 of the file '2025-07-16 - Urban View Analysis - D01-01-24-0026'
  • Rendering of building from page 12 of the file '2025-11-26 - UDRP Report - D01-01-24-0026'
  • Rendering of building from page 6 of the file '2025-07-16 - Urban View Analysis - D01-01-24-0026'
  • Rendering of building from page 1 of the file '2025-11-26 - UDRP Report - D01-01-24-0026'
  • Rendering of building from page 10 of the file '2025-11-26 - UDRP Report - D01-01-24-0026'
  • Rendering of building from page 9 of the file '2025-11-26 - UDRP Report - D01-01-24-0026'
  • Rendering of building from page 25 of the file '2025-11-26 - UDRP Report - D01-01-24-0026'
  • Rendering of building from page 22 of the file '2025-11-26 - UDRP Report - D01-01-24-0026'
  • Rendering of building from page 24 of the file '2025-11-26 - UDRP Report - D01-01-24-0026'
  • Rendering of building from page 13 of the file '2025-11-26 - UDRP Report - D01-01-24-0026'
  • Rendering of building from page 9 of the file '2025-11-26 - UDRP Report - D01-01-24-0026'
  • Rendering of building from page 13 of the file '2024-12-18 - Urban Design Brief - D01-01-24-0026'
  • Rendering of building from page 6 of the file '2025-07-16 - Urban View Analysis - D01-01-24-0026'
  • Rendering of building from page 10 of the file '2025-11-26 - UDRP Report - D01-01-24-0026'
  • Rendering of building from page 23 of the file '2025-11-26 - UDRP Report - D01-01-24-0026'
  • Rendering of building from page 20 of the file '2025-11-26 - UDRP Report - D01-01-24-0026'
  • Rendering of building from page 20 of the file '2025-11-26 - UDRP Report - D01-01-24-0026'
  • Rendering of building from page 23 of the file '2025-11-26 - UDRP Report - D01-01-24-0026'
  • Rendering of building from page 21 of the file '2025-11-26 - UDRP Report - D01-01-24-0026'
  • Rendering of building from page 21 of the file '2025-11-26 - UDRP Report - D01-01-24-0026'
  • Rendering of building from page 13 of the file '2024-12-18 - Urban Design Brief - D01-01-24-0026'
  • Rendering of building from page 30 of the file '2025-11-26 - UDRP Report - D01-01-24-0026'
  • Rendering of building from page 30 of the file '2025-11-26 - UDRP Report - D01-01-24-0026'
  • Rendering of building from page 33 of the file '2024-12-18 - Urban Design Brief - D01-01-24-0026'
  • Rendering of building from page 34 of the file '2024-12-18 - Urban Design Brief - D01-01-24-0026'
  • Rendering of building from page 43 of the file '2025-11-26 - UDRP Report - D01-01-24-0026'
  • Rendering of building from page 44 of the file '2025-11-26 - UDRP Report - D01-01-24-0026'
  • Rendering of building from page 44 of the file '2025-11-26 - UDRP Report - D01-01-24-0026'
  • Rendering of building from page 43 of the file '2025-11-26 - UDRP Report - D01-01-24-0026'
  • Rendering of building from page 6 of the file '2024-12-18 - Urban Design Brief - D01-01-24-0026'
  • Rendering of building from page 12 of the file '2025-11-26 - UDRP Report - D01-01-24-0026'
  • Rendering of building from page 6 of the file '2025-07-16 - Urban View Analysis - D01-01-24-0026'
  • Rendering of building from page 12 of the file '2025-11-26 - UDRP Report - D01-01-24-0026'
  • Rendering of building from page 6 of the file '2025-07-16 - Urban View Analysis - D01-01-24-0026'
  • Rendering of building from page 1 of the file '2025-11-26 - UDRP Report - D01-01-24-0026'
  • Rendering of building from page 10 of the file '2025-11-26 - UDRP Report - D01-01-24-0026'
  • Rendering of building from page 9 of the file '2025-11-26 - UDRP Report - D01-01-24-0026'
  • Rendering of building from page 25 of the file '2025-11-26 - UDRP Report - D01-01-24-0026'
  • Rendering of building from page 22 of the file '2025-11-26 - UDRP Report - D01-01-24-0026'
  • Rendering of building from page 24 of the file '2025-11-26 - UDRP Report - D01-01-24-0026'
  • Rendering of building from page 13 of the file '2025-11-26 - UDRP Report - D01-01-24-0026'
  • Rendering of building from page 9 of the file '2025-11-26 - UDRP Report - D01-01-24-0026'
  • Rendering of building from page 13 of the file '2024-12-18 - Urban Design Brief - D01-01-24-0026'
  • Rendering of building from page 6 of the file '2025-07-16 - Urban View Analysis - D01-01-24-0026'
  • Rendering of building from page 10 of the file '2025-11-26 - UDRP Report - D01-01-24-0026'
  • Rendering of building from page 23 of the file '2025-11-26 - UDRP Report - D01-01-24-0026'
  • Rendering of building from page 20 of the file '2025-11-26 - UDRP Report - D01-01-24-0026'
  • Rendering of building from page 20 of the file '2025-11-26 - UDRP Report - D01-01-24-0026'
  • Rendering of building from page 23 of the file '2025-11-26 - UDRP Report - D01-01-24-0026'
  • Rendering of building from page 21 of the file '2025-11-26 - UDRP Report - D01-01-24-0026'
  • Rendering of building from page 21 of the file '2025-11-26 - UDRP Report - D01-01-24-0026'
  • Rendering of building from page 13 of the file '2024-12-18 - Urban Design Brief - D01-01-24-0026'
  • Rendering of building from page 30 of the file '2025-11-26 - UDRP Report - D01-01-24-0026'
  • Rendering of building from page 30 of the file '2025-11-26 - UDRP Report - D01-01-24-0026'
  • Rendering of building from page 33 of the file '2024-12-18 - Urban Design Brief - D01-01-24-0026'
  • Rendering of building from page 34 of the file '2024-12-18 - Urban Design Brief - D01-01-24-0026'
  • Rendering of building from page 43 of the file '2025-11-26 - UDRP Report - D01-01-24-0026'
  • Rendering of building from page 44 of the file '2025-11-26 - UDRP Report - D01-01-24-0026'
  • Rendering of building from page 44 of the file '2025-11-26 - UDRP Report - D01-01-24-0026'
  • Rendering of building from page 43 of the file '2025-11-26 - UDRP Report - D01-01-24-0026'
  • Rendering of building from page 6 of the file '2024-12-18 - Urban Design Brief - D01-01-24-0026'
  • Rendering of building from page 12 of the file '2025-11-26 - UDRP Report - D01-01-24-0026'

Location #

Select a marker to view the address.

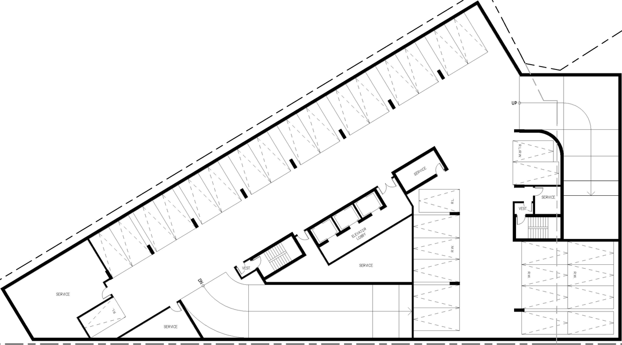
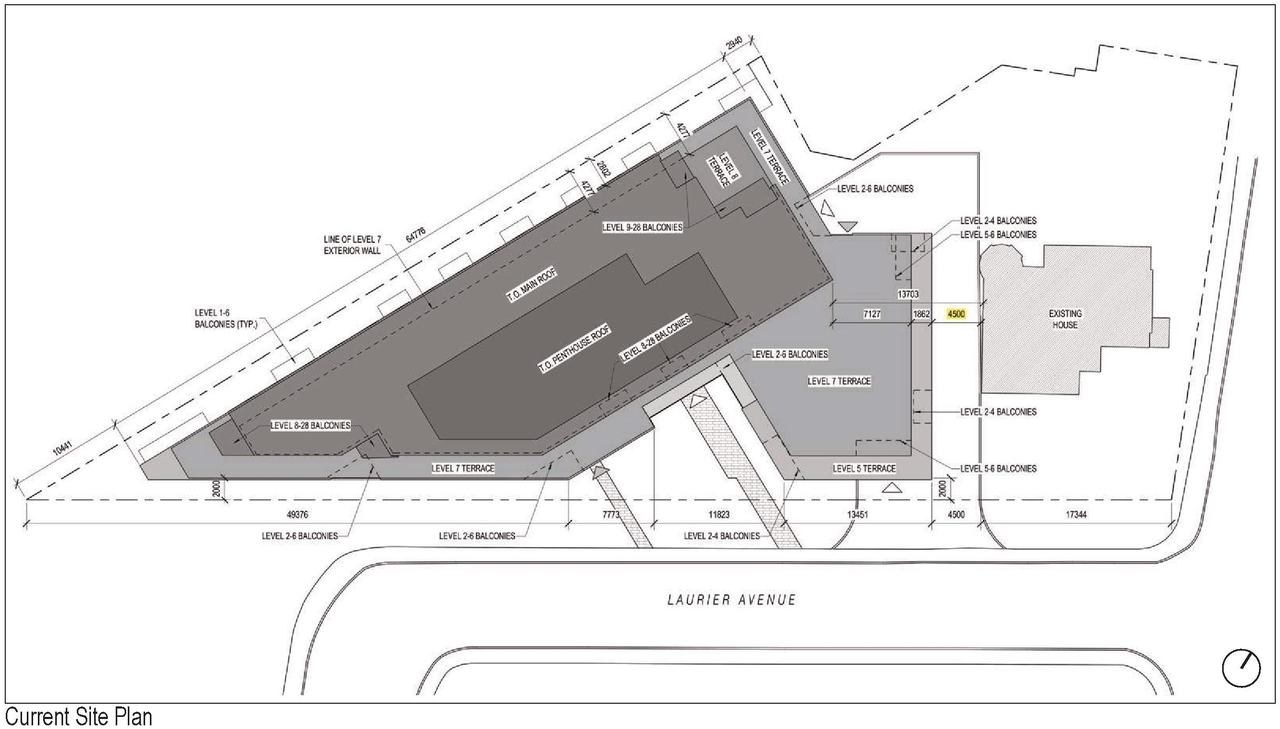
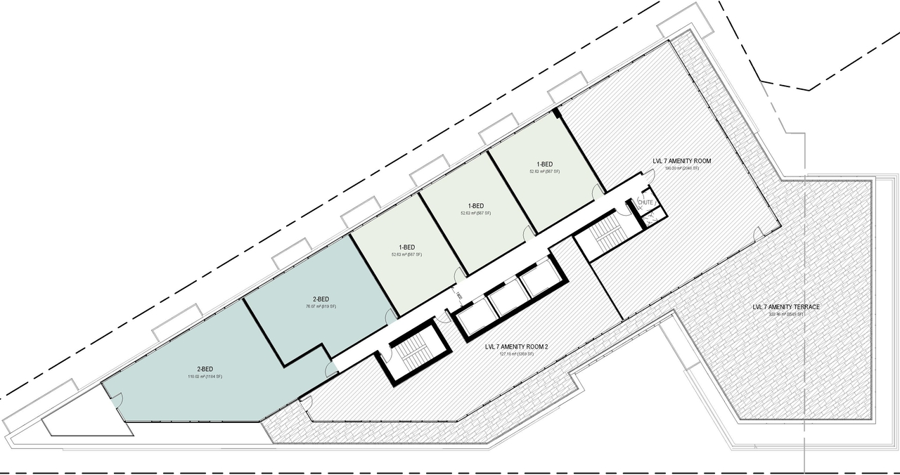
Site and Floor Plans #

  • Construction site plan for project from page 4 of the file '2025-11-26 - UDRP Report - D01-01-24-0026'
  • Construction site plan for project from page 4 of the file '2025-11-26 - UDRP Report - D01-01-24-0026'
  • Construction site plan for project from page 4 of the file '2025-11-26 - UDRP Report - D01-01-24-0026'
  • Construction site plan for project from page 5 of the file '2025-11-26 - UDRP Report - D01-01-24-0026'
  • Construction site plan for project from page 5 of the file '2025-11-26 - UDRP Report - D01-01-24-0026'
  • Construction site plan for project from page 7 of the file '2025-11-26 - UDRP Report - D01-01-24-0026'
  • Construction site plan for project from page 10 of the file '2025-11-26 - UDRP Report - D01-01-24-0026'
  • Construction site plan for project from page 14 of the file '2025-11-26 - UDRP Report - D01-01-24-0026'
  • Construction site plan for project from page 15 of the file '2025-11-26 - UDRP Report - D01-01-24-0026'
  • Construction site plan for project from page 16 of the file '2025-11-26 - UDRP Report - D01-01-24-0026'
  • Construction site plan for project from page 17 of the file '2025-11-26 - UDRP Report - D01-01-24-0026'
  • Construction site plan for project from page 18 of the file '2025-11-26 - UDRP Report - D01-01-24-0026'
  • Construction site plan for project from page 19 of the file '2025-11-26 - UDRP Report - D01-01-24-0026'
  • Construction site plan for project from page 26 of the file '2025-11-26 - UDRP Report - D01-01-24-0026'
  • Construction site plan for project from page 27 of the file '2025-11-26 - UDRP Report - D01-01-24-0026'
  • Construction site plan for project from page 30 of the file '2025-11-26 - UDRP Report - D01-01-24-0026'
  • Construction site plan for project from page 30 of the file '2025-11-26 - UDRP Report - D01-01-24-0026'
  • Construction site plan for project from page 32 of the file '2025-11-26 - UDRP Report - D01-01-24-0026'
  • Construction site plan for project from page 32 of the file '2025-11-26 - UDRP Report - D01-01-24-0026'
  • Floor plan for project from page 33 of the file '2025-11-26 - UDRP Report - D01-01-24-0026'
  • Construction site plan for project from page 36 of the file '2025-11-26 - UDRP Report - D01-01-24-0026'
  • Floor plan for project from page 39 of the file '2025-11-26 - UDRP Report - D01-01-24-0026'
  • Floor plan for project from page 39 of the file '2025-11-26 - UDRP Report - D01-01-24-0026'
  • Floor plan for project from page 42 of the file '2025-11-26 - UDRP Report - D01-01-24-0026'
  • Construction site plan for project from page 47 of the file '2025-11-26 - UDRP Report - D01-01-24-0026'
  • Construction site plan for project from page 47 of the file '2025-11-26 - UDRP Report - D01-01-24-0026'
  • Construction site plan for project from page 47 of the file '2025-11-26 - UDRP Report - D01-01-24-0026'
  • Construction site plan for project from page 47 of the file '2025-11-26 - UDRP Report - D01-01-24-0026'
  • Construction site plan for project from page 49 of the file '2025-11-26 - UDRP Report - D01-01-24-0026'
  • Construction site plan for project from page 2 of the file '2025-11-26 - Context Views - D01-01-24-0026'
  • Construction site plan for project from page 2 of the file '2025-07-16 - Urban View Analysis - D01-01-24-0026'
  • Construction site plan for project from page 3 of the file '2024-12-18 - Urban Design Brief - D01-01-24-0026'
  • Construction site plan for project from page 4 of the file '2024-12-18 - Urban Design Brief - D01-01-24-0026'
  • Construction site plan for project from page 5 of the file '2024-12-18 - Urban Design Brief - D01-01-24-0026'
  • Construction site plan for project from page 9 of the file '2024-12-18 - Urban Design Brief - D01-01-24-0026'
  • Construction site plan for project from page 10 of the file '2024-12-18 - Urban Design Brief - D01-01-24-0026'
  • Construction site plan for project from page 19 of the file '2024-12-18 - Urban Design Brief - D01-01-24-0026'
  • Construction site plan for project from page 20 of the file '2024-12-18 - Urban Design Brief - D01-01-24-0026'
  • Floor plan for project from page 22 of the file '2024-12-18 - Urban Design Brief - D01-01-24-0026'
  • Construction site plan for project from page 22 of the file '2024-12-18 - Urban Design Brief - D01-01-24-0026'
  • Floor plan for project from page 23 of the file '2024-12-18 - Urban Design Brief - D01-01-24-0026'
  • Floor plan for project from page 25 of the file '2024-12-18 - Urban Design Brief - D01-01-24-0026'
  • Floor plan for project from page 29 of the file '2024-12-18 - Urban Design Brief - D01-01-24-0026'
  • Construction site plan for project from page 35 of the file '2024-12-18 - Urban Design Brief - D01-01-24-0026'
  • Construction site plan for project from page 35 of the file '2024-12-18 - Urban Design Brief - D01-01-24-0026'
  • Construction site plan for project from page 35 of the file '2024-12-18 - Urban Design Brief - D01-01-24-0026'
  • Construction site plan for project from page 35 of the file '2024-12-18 - Urban Design Brief - D01-01-24-0026'
  • Construction site plan for project from page 35 of the file '2024-12-18 - Urban Design Brief - D01-01-24-0026'
  • Construction site plan for project from page 35 of the file '2024-12-18 - Urban Design Brief - D01-01-24-0026'
  • Construction site plan for project from page 35 of the file '2024-12-18 - Urban Design Brief - D01-01-24-0026'
  • Construction site plan for project from page 35 of the file '2024-12-18 - Urban Design Brief - D01-01-24-0026'
  • Construction site plan for project from page 36 of the file '2024-12-18 - Urban Design Brief - D01-01-24-0026'
  • Construction site plan for project from page 36 of the file '2024-12-18 - Urban Design Brief - D01-01-24-0026'
  • Construction site plan for project from page 36 of the file '2024-12-18 - Urban Design Brief - D01-01-24-0026'
  • Construction site plan for project from page 36 of the file '2024-12-18 - Urban Design Brief - D01-01-24-0026'
  • Construction site plan for project from page 36 of the file '2024-12-18 - Urban Design Brief - D01-01-24-0026'
  • Construction site plan for project from page 36 of the file '2024-12-18 - Urban Design Brief - D01-01-24-0026'
  • Construction site plan for project from page 36 of the file '2024-12-18 - Urban Design Brief - D01-01-24-0026'
  • Construction site plan for project from page 37 of the file '2024-12-18 - Urban Design Brief - D01-01-24-0026'
  • Construction site plan for project from page 37 of the file '2024-12-18 - Urban Design Brief - D01-01-24-0026'
  • Construction site plan for project from page 37 of the file '2024-12-18 - Urban Design Brief - D01-01-24-0026'
  • Construction site plan for project from page 38 of the file '2024-12-18 - Urban Design Brief - D01-01-24-0026'
  • Construction site plan for project from page 38 of the file '2024-12-18 - Urban Design Brief - D01-01-24-0026'
  • Construction site plan for project from page 38 of the file '2024-12-18 - Urban Design Brief - D01-01-24-0026'
  • Construction site plan for project from page 38 of the file '2024-12-18 - Urban Design Brief - D01-01-24-0026'
  • Construction site plan for project from page 38 of the file '2024-12-18 - Urban Design Brief - D01-01-24-0026'
  • Construction site plan for project from page 38 of the file '2024-12-18 - Urban Design Brief - D01-01-24-0026'
  • Construction site plan for project from page 38 of the file '2024-12-18 - Urban Design Brief - D01-01-24-0026'
  • Construction site plan for project from page 4 of the file '2025-11-26 - UDRP Report - D01-01-24-0026'
  • Construction site plan for project from page 4 of the file '2025-11-26 - UDRP Report - D01-01-24-0026'
  • Construction site plan for project from page 4 of the file '2025-11-26 - UDRP Report - D01-01-24-0026'
  • Construction site plan for project from page 5 of the file '2025-11-26 - UDRP Report - D01-01-24-0026'
  • Construction site plan for project from page 5 of the file '2025-11-26 - UDRP Report - D01-01-24-0026'
  • Construction site plan for project from page 7 of the file '2025-11-26 - UDRP Report - D01-01-24-0026'
  • Construction site plan for project from page 10 of the file '2025-11-26 - UDRP Report - D01-01-24-0026'
  • Construction site plan for project from page 14 of the file '2025-11-26 - UDRP Report - D01-01-24-0026'
  • Construction site plan for project from page 15 of the file '2025-11-26 - UDRP Report - D01-01-24-0026'
  • Construction site plan for project from page 16 of the file '2025-11-26 - UDRP Report - D01-01-24-0026'
  • Construction site plan for project from page 17 of the file '2025-11-26 - UDRP Report - D01-01-24-0026'
  • Construction site plan for project from page 18 of the file '2025-11-26 - UDRP Report - D01-01-24-0026'
  • Construction site plan for project from page 19 of the file '2025-11-26 - UDRP Report - D01-01-24-0026'
  • Construction site plan for project from page 26 of the file '2025-11-26 - UDRP Report - D01-01-24-0026'
  • Construction site plan for project from page 27 of the file '2025-11-26 - UDRP Report - D01-01-24-0026'
  • Construction site plan for project from page 30 of the file '2025-11-26 - UDRP Report - D01-01-24-0026'
  • Construction site plan for project from page 30 of the file '2025-11-26 - UDRP Report - D01-01-24-0026'
  • Construction site plan for project from page 32 of the file '2025-11-26 - UDRP Report - D01-01-24-0026'
  • Construction site plan for project from page 32 of the file '2025-11-26 - UDRP Report - D01-01-24-0026'
  • Floor plan for project from page 33 of the file '2025-11-26 - UDRP Report - D01-01-24-0026'
  • Construction site plan for project from page 36 of the file '2025-11-26 - UDRP Report - D01-01-24-0026'
  • Floor plan for project from page 39 of the file '2025-11-26 - UDRP Report - D01-01-24-0026'
  • Floor plan for project from page 39 of the file '2025-11-26 - UDRP Report - D01-01-24-0026'
  • Floor plan for project from page 42 of the file '2025-11-26 - UDRP Report - D01-01-24-0026'
  • Construction site plan for project from page 47 of the file '2025-11-26 - UDRP Report - D01-01-24-0026'
  • Construction site plan for project from page 47 of the file '2025-11-26 - UDRP Report - D01-01-24-0026'
  • Construction site plan for project from page 47 of the file '2025-11-26 - UDRP Report - D01-01-24-0026'
  • Construction site plan for project from page 47 of the file '2025-11-26 - UDRP Report - D01-01-24-0026'
  • Construction site plan for project from page 49 of the file '2025-11-26 - UDRP Report - D01-01-24-0026'
  • Construction site plan for project from page 2 of the file '2025-11-26 - Context Views - D01-01-24-0026'
  • Construction site plan for project from page 2 of the file '2025-07-16 - Urban View Analysis - D01-01-24-0026'
  • Construction site plan for project from page 3 of the file '2024-12-18 - Urban Design Brief - D01-01-24-0026'
  • Construction site plan for project from page 4 of the file '2024-12-18 - Urban Design Brief - D01-01-24-0026'
  • Construction site plan for project from page 5 of the file '2024-12-18 - Urban Design Brief - D01-01-24-0026'
  • Construction site plan for project from page 9 of the file '2024-12-18 - Urban Design Brief - D01-01-24-0026'
  • Construction site plan for project from page 10 of the file '2024-12-18 - Urban Design Brief - D01-01-24-0026'
  • Construction site plan for project from page 19 of the file '2024-12-18 - Urban Design Brief - D01-01-24-0026'
  • Construction site plan for project from page 20 of the file '2024-12-18 - Urban Design Brief - D01-01-24-0026'
  • Floor plan for project from page 22 of the file '2024-12-18 - Urban Design Brief - D01-01-24-0026'
  • Construction site plan for project from page 22 of the file '2024-12-18 - Urban Design Brief - D01-01-24-0026'
  • Floor plan for project from page 23 of the file '2024-12-18 - Urban Design Brief - D01-01-24-0026'
  • Floor plan for project from page 25 of the file '2024-12-18 - Urban Design Brief - D01-01-24-0026'
  • Floor plan for project from page 29 of the file '2024-12-18 - Urban Design Brief - D01-01-24-0026'
  • Construction site plan for project from page 35 of the file '2024-12-18 - Urban Design Brief - D01-01-24-0026'
  • Construction site plan for project from page 35 of the file '2024-12-18 - Urban Design Brief - D01-01-24-0026'
  • Construction site plan for project from page 35 of the file '2024-12-18 - Urban Design Brief - D01-01-24-0026'
  • Construction site plan for project from page 35 of the file '2024-12-18 - Urban Design Brief - D01-01-24-0026'
  • Construction site plan for project from page 35 of the file '2024-12-18 - Urban Design Brief - D01-01-24-0026'
  • Construction site plan for project from page 35 of the file '2024-12-18 - Urban Design Brief - D01-01-24-0026'
  • Construction site plan for project from page 35 of the file '2024-12-18 - Urban Design Brief - D01-01-24-0026'
  • Construction site plan for project from page 35 of the file '2024-12-18 - Urban Design Brief - D01-01-24-0026'
  • Construction site plan for project from page 36 of the file '2024-12-18 - Urban Design Brief - D01-01-24-0026'
  • Construction site plan for project from page 36 of the file '2024-12-18 - Urban Design Brief - D01-01-24-0026'
  • Construction site plan for project from page 36 of the file '2024-12-18 - Urban Design Brief - D01-01-24-0026'
  • Construction site plan for project from page 36 of the file '2024-12-18 - Urban Design Brief - D01-01-24-0026'
  • Construction site plan for project from page 36 of the file '2024-12-18 - Urban Design Brief - D01-01-24-0026'
  • Construction site plan for project from page 36 of the file '2024-12-18 - Urban Design Brief - D01-01-24-0026'
  • Construction site plan for project from page 36 of the file '2024-12-18 - Urban Design Brief - D01-01-24-0026'
  • Construction site plan for project from page 37 of the file '2024-12-18 - Urban Design Brief - D01-01-24-0026'
  • Construction site plan for project from page 37 of the file '2024-12-18 - Urban Design Brief - D01-01-24-0026'
  • Construction site plan for project from page 37 of the file '2024-12-18 - Urban Design Brief - D01-01-24-0026'
  • Construction site plan for project from page 38 of the file '2024-12-18 - Urban Design Brief - D01-01-24-0026'
  • Construction site plan for project from page 38 of the file '2024-12-18 - Urban Design Brief - D01-01-24-0026'
  • Construction site plan for project from page 38 of the file '2024-12-18 - Urban Design Brief - D01-01-24-0026'
  • Construction site plan for project from page 38 of the file '2024-12-18 - Urban Design Brief - D01-01-24-0026'
  • Construction site plan for project from page 38 of the file '2024-12-18 - Urban Design Brief - D01-01-24-0026'
  • Construction site plan for project from page 38 of the file '2024-12-18 - Urban Design Brief - D01-01-24-0026'
  • Construction site plan for project from page 38 of the file '2024-12-18 - Urban Design Brief - D01-01-24-0026'

Documents #

TypeDocument
Application Summary2025-12-31 - Application Summary - D01-01-24-0026
Architectural Plans2025-11-26 - Conservation Plan - D01-01-24-0026
Architectural Plans2025-11-26 - Architectural Plans - D01-01-24-0026
Architectural Plans2025-07-16 - Site Plan - D01-01-24-0026
Architectural Plans2025-07-16 - Average Grade Plan - D01-01-24-0026
Architectural Plans2025-07-16 - Architectural Drawings - D01-01-24-0026
Architectural Plans2024-12-18 - Architectural Plans - D01-01-24-0026
Design Brief2025-11-26 - UDRP Report - D01-01-24-0026
Design Brief2025-07-16 - Urban Design Brief Report - D01-01-24-0026
Design Brief2024-12-18 - Urban Design Brief - D01-01-24-0026
Environmental2025-07-16 - Phase I Environmental Site Assessment - D01-01-24-0026
Environmental2025-07-16 - Environmental Site Remedial Action Plan - D01-01-24-0026
Environmental2025-07-16 - Environmental Impact Study - D01-01-24-0026
Environmental2024-12-30 - Environmental Impact Study - D01-01-24-0026
Environmental2024-12-18 - Phase II ESA - D01-01-24-0026
Environmental2024-12-18 - Phase I ESA - D01-01-24-0026
Geotechnical Report2025-11-26 - Grading & Drainage - Redline - D01-01-24-0026
Geotechnical Report2025-11-26 - Geotechnical Investigation - D01-01-24-0026
Geotechnical Report2024-12-18 - Geotechnical Investigation - D01-01-24-0026
Landscape Plan2025-11-26 - Landscape Plan - D01-01-24-0026
Landscape Plan2025-07-16 - Landscape Plan - D01-01-24-0026
Noise Study2024-12-18 - Transportation Noise Assessment - D01-01-24-0026
Planning2025-11-26 - Planning Rationale - D01-01-24-0026
Planning2025-07-16 - Planning Rationale - D01-01-24-0026
Planning2024-12-18 - Zoning Confirmation Report - D01-01-24-0026
Planning2024-12-18 - Planning Rationale - D01-01-24-0026
Rendering2025-11-26 - Context Views - D01-01-24-0026
Rendering2025-07-16 - Urban View Analysis - D01-01-24-0026
Shadow Study2025-11-26 - Shadow Analysis - D01-01-24-0026
Shadow Study2025-07-16 - Shadow Analysis - Graphics + Description - D01-01-24-0026
Site Servicing2025-11-26 - Site Servicing & SWM Report - D01-01-24-0026
Site Servicing2025-07-16 - Site Servicing & SWM Report - D01-01-24-0026
Site Servicing2024-12-18 - Site Servicing & SWM Report - D01-01-24-0026
Surveying2024-12-18 - Plan of Survey - D01-01-24-0026
Transportation Analysis2025-11-26 - Transportation Impact Assessment - D01-01-24-0026
Transportation Analysis2024-12-30 - Transportation Impact Assessment - D01-01-24-0026
Tree Information and Conservation2024-12-18 - Tree Conservation Report - D01-01-24-0026
Wind Study2025-11-26 - Pedestrian Level Wind Study Addendum - D01-01-24-0026
Wind Study2024-12-18 - Pedestrian Level Wind Study - D01-01-24-0026
2025-11-26 - Site & Landscape Context - D01-01-24-0026
2025-11-26 - Heritage Impact Assessment Addendum - D01-01-24-0026
2024-12-18 - Heritage Impact Assessment - D01-01-24-0026

Additional Information #

All Addresses593 Laurier Ave. W.
601 Laurier Ave. W.